Herik Sendri B. Galor
Bachelor of Science in Architecture
Ateneo de Davao University


![]()
Herik Sendri B. Galor
Bachelor of Science in Architecture
Ateneo de Davao University


Magis greetings!
I am pleased to send you this letter to express my sincere interest to embark on an architectural apprenticeship in your company. I am a graduate of Bachelor of Science in Architecture at Ateneo de Davao University, batch 2023. With my necessary skills, I hope that I can be part of and contribute to your company's success while learning more with your team alongside your visions and remarkable expertise.
Being a student-athlete since then, I always choose to take challenges that will allow me to be efficient not only independently, but also in a team environment. Moreover, I always seek and value recommendations, criticisms, as well as changes; for it is essential in collaborative learning and individual growth. I trust that being under your firm's supervision, I will have a meaningful and productive diversified architectural experience that will mold me to be a better individual and architect in time.
SINGLE DETACHED VILLA
OPTICAL CLINIC INTERIOR FIT OUT
GADGET STORE INTERIOR FIT OUT
DENTAL AND FACIAL CLINIC
MUSEO KALON NADAL


PROJECT: A PROPOSED SINGLE DETACHED VILLA
LOCATION: BAGANGA, DAVAO ORIENTAL
YEAR: 2023
DESIGN AND VISUALIZATION WORKS - UNDER ACAV ARCHITECT
1- DINING AREA
2- LIVING AREA
3-BED/SLEEPING AREA
4- INDOOR KITCHEN
5- STORAGE/CABINET
6- VANITY SINK
7- INDOOR SHOWER ROOM
8- OUTDOOR SHOWER AREA
9- TOILET ROOM
10- LANAI


I S O M E T I R

THIS PROPOSED VILLA SHARES PART IN THE DEVELOPMENT OF A BEACH RESORT LOCATED AT BAGANGA, DAVAO ORIENTAL. INTEGRATION OF TROPICAL DESIGN IN THE DESIGN PROCESS IS ESSENTIAL FOR ITS GEOGRAPHICAL AND GEOLOGICAL CONTEXT SYNTHETIC THATCHED ROOF WILL BE UTILIZED AS ROOFING MATERIAL HIP ROOF WAS USED WITH EXPOSED RAFTERS AND BATTENS TO HIGHTLIGHT ITS HIGH CEILING DESIGN THE DINING AREA IS ISOLATED FROM THE BEDROOM TO SEPARATE SOCIAL AND RESTING AREAS A GLASS CURTAIN WALL IN ITS FACADE PROMOTES OPENNESS AND INTERACTION TO OUTDOOR ENVIRONMENT., MAINLY TO THE PATHWAY LEADING TO THE OCEAN.







P E R S P E C T I V E
P E R S P E C T I V E




PROJECT: A PROPOSED OPTICAL CLINIC
LOCATION: BAJADA, DAVAO CITY
YEAR: 2024
DESIGN AND VISUALIZATION WORKS - UNDER ACAV ARCHITECT




PROJECT: A PROPOSED ELITE MOBILE STORE
LOCATION: DAVAO CITY
YEAR: 2024
PART OF DESIGN TEAM | VISUALIZATION WORKS - UNDER ACAV ARCHITECT

THIS PROPOSAL WAS USED TO PRESENT A SCHEMATIC DESIGN CONCEPT FOR AN EXTENSION OF THE EXISTING DENTAL AND FACIAL CLINIC LOCATED AT MARFORI ST., DAVAO CITY. OTHER DESIGN ELEMENTS ON THE EXISTING BRANCH WERE UTILIZED TO MAINTAIN THE CLINIC’S IDENTITY. TO CREATE A LIVELY AMBIENCE, UTILIZATION OF CURVES WERE APPLIED TO FURNITURES, WALLS, AND OTHER DESIGN ELEMENTS

LOCATION: MARFORI HEIGHTS, DAVAO CITY
PROJECT: A PROPOSED DENTAL AND FACIAL CLINIC YEAR: 2024
DESIGN AND VISUALIZATION WORKS - UNDER ACAV ARCHITECT









MUSEO KALON NADAL IS A PROPOSED ETHNOGRAPHIC MUSEUM THAT REMINISCES ABOUT KORONADAL CITY'S PAST. THE MUSEUM'S NARRATIVE IS GROUNDED ON HANDURAWAN; A COMPILATION OF NARRATIVES DERIVED FROM INTENSIVE RESEARCH CONDUCTED BY THE LOCAL GOVERNMENT UNIT OF KORONADAL TO RECORD THE CITY'S EARLY BEGINNINGS UP TO THE POST-JAPANESE OCCUPATION OF THE CITY THE PROPOSED MUSEUM INTENDS TO TRANSLATE THE HANDURAWAN NARRATIVE INTO ARCHITECTURAL GUIDELINES THAT ENGAGE SENSORY PERCEPTIONS IN LEARNING USING CONTEXTUAL SENSORY DESIGN STRATEGIES TO ADVANCE COMPREHENSION OF THE NARRATIVE APPROACH, VISITORS' LEARNING EXPERIENCE WILL BE ENRICHED BY THE LOCAL CULTURE AND HISTORY WITH THIS, MUSEUM VISITORS WILL BE REWARDED WITH A BODY OF MEANINGFUL EXPERIENCES COUPLED WITH NEW KNOWLEDGE, CULTURAL TRANSMISSION, AND SOCIAL COHESION THAT FURTHER OPPORTUNITIES FOR THE CITY OF KORONADAL.

1
2
4
5




























THIRD FLOOR ZONING PLAN

SECOND FLOOR ZONING PLAN

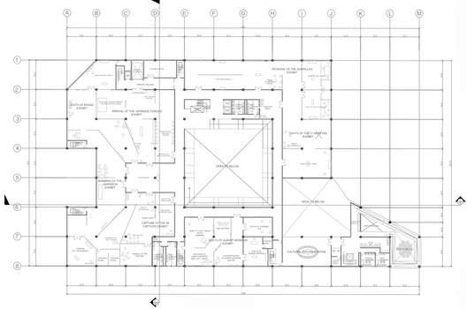
GROUND FLOOR ZONING PLAN






VIEWING DECK
REVENGE OF THE SETTLERS EXHIBIT
THE 28 CAPTIVES EXHIBIT
BOMBING OF THE GARRISON EXHIBIT
DEATH OF EPANG EXHIBIT
ARRIVAL OF THE JAPANESE EXHIBIT
DEATH OF ALBERT MORROW EXHIBIT 1ST 2ND 3RD 4TH 5TH 7TH 6TH 8TH 9TH 10TH 12TH 11TH
INTERACTION OF THE TRI-PEOPLE GALLERY
ARRIVAL OF CHRISTIAN SETTLERS GALLERY
BLAAN AND MAGUINDANAON GALLERY
AUSTRONESIAN GALLERY
ORIENTATION AREA










THE ORIGIN OF TRIBES IN THE PHILIPPINES THROUGH THE PRESENTATION OF DIFFERENT THEORIES REGARDING THE AUSTRONESIAN










PROVIDE AN EXPERIENCE OF SIGNIFICANT WAR SCENES AND EVENTS DURING THE JAPANESE OCCUPATION OF THE CITY.


SHOWCASE THE HEROISM AND SACRIFICE OF ALBERT MORROW ALONGSIDE THE LOYALTY AND NOBILITY OF HIS AID, SANTIAGO ODI.
BE IMMERSED IN THE SCENE OF THE DEATH OF 17 MARTYRS AND THE REVENGE OF THE GUERILLAS AGAINST THE JAPANESE FORCES WHICH PAVED THE WAY FOR THE CITY'S FREEDOM FROM THE CONQUERORS' HANDS










MUSEUM BUILDING FRONT ELEVATION

MUSEUM BUILDING RIGHT SIDE ELEVATION

MUSEUM BUILDING REAR ELEVATION

MUSEUM BUILDING LEFT SIDE ELEVATION

CROSS SECTION LONGITUDINAL SECTION



AUSTRONESIAN GALLERY

DEATH OF EPANG

ARRIVAL OF JAPANESE EXHIBIT

BOMBING OF GARRISON EXHIBIT

DEATH OF SANTIAGO ODI

CAFETERIA

ARRIVAL OF JAPANESE EXHIBIT

DEATH OF ALBERT MORROW

DEATH OF 17 MARTYRS

SCULPTURE GARDEN



DEATH OF CAPT OISHIE

OUTDOOR EXHIBITION SPACE

CHILDREN'S PLAYGROUND

“A STUDY ON THE EFFECTS OF CLASSROOM DESIGN ON STUDENTS' LEARNING PERFORMANCE”
THIS STUDY IS SET TO INVESTIGATE AND EVALUATE THE IMPACT OF CLASSROOM ELEMENTS OF DESIGN ON LEARNING PERFORMANCE IN A SEMESTER OF UNDERGRADUATE COLLEGE STUDENTS OF THE UNIVERSITY OF MINDANAO, DAVAO CITY, MAIN CAMPUS.









3 STUDENTCENTER 4-FACULTY 5-COLLEGEBUILDING1WITHCAFETERIA 6-COLLEGEBUILDING2
9 CAFETERIA2 10-CHAPEL 11-DORMITORY


14 GARBAGEDISPOSALUNIT 15-RENTABLESPACES 16-OPENFIELD





A PROPOSED ONE-STOREY REST HOUSE, INSPIRED FROM JAPANESE ARCHITECTURE, PARTICULARLY A MINKA HOUSE TROPICAL DESIGN WAS INTEGRATED TO CONTEXTUALIZE THE BUILDING’S FUNCTIONALITY AND RELATIONSHIP ACCORIDING TO ITS ENVIRONMENT. IT EMPHASIZES OPENNESS WITH ITS CONTINUOUS ACCESS OF SPACES AND THE THROUGH FLOOR TO CEILING WINDOWS THAT PROMOTES INDOOR AND OUTDOOR ENVIRONMENT CONNECTION TUBULAR STEELS WERE UTILIZED AS SUN SHADING TOOL IN RELATION TO THE SUN’S DIRECTION JALAOUSIE WINDOWS WERE USED TO MAXIMIZE AIR FLOW AND AWNING WINDOWS ON TOP TO REGULATE AIR CIRCULATION/VENTILATIONTO ACHIEVE THERMAL COMFORT




GROUND FLOOR PLAN

ROOF DECK FLOOR PLAN

SECOND TO FOURTH (TYPICAL) FLOOR PLAN

A HOSTEL WHERE BACKPACKERS CAN FIND SERENITY, ENVELOPED WITH REVIVALIST ARCHITECTURE DESIGN, MIXED WITH INDUSTRIAL DESIGN CONCEPTS, AND TOUCHES OF TROPICAL DESIGN
LOCATED AT JIN PALMA STREET, POBLACION DAVAO CITY, IN FRONT OF PEOPLE`S PARK, THE PROPOSED CASA DE SERENIDAD IS A HOSTEL COMPOSED OF TWELVE ROOMS WITH TOILET & BATH, RECEPTION, STAFF ROOM, WITH TOILET & BATH, A COMMON POWDER ROOM, AND A COMMON LOBBY A ROOF DECK IS PROVIDED FOR VIEWING, UTILIZING THE BUILDING S LOCATION
PROPERTY LINE SETBACKS ARE PROVIDED IN FRONT AND BACK PORTION OF THE BUILDING FOR THE ROOMS TO HAVE A BALANCE SUNLIGHT EXPOSURE THROUGH ITS PARALLEL-TO-SUN AND WIND DIRECTION WINDOWS FOR ENERGY EFFICIENCY HAVING NO ST ACKS ON ITS SIDES, THE FIRE EXIT STAIRS WAS LOCATAED AT THE BUILDING’S FACADE AND WILL BE COVERED WITH A CLADDING THAT WILL BE PART OF THE FACADE’S DESIGN. ABOUTTHEPROJECT







“A PROPOSED OVERLAND TERMINAL: A STUDY ON THE EFFECTS OF TERMINAL DESIGN ON PASSENGER EMOTION”
THIS STUDY AIMS TO INVESTIGATE AND EVALUATE THE EFFECTS OF TERMINAL DESIGN BASED ON SERVICESCAPE ELEMENTS SUCH AS EXTERNAL, INTERIOR, AMBIENT, FUNCTIONAL, PRODUCT/FURNITURE/DISPLAYS, AND SOCIAL VARIABLES ON EMOTIONS OF PASSENGERS IN DAVAO CITY OVERLAND TRANSPORT TERMINAL. ALSO, THIS STUDY SEEKS TO UNDERSTAND THE INFLUENCE OF TERMINAL DESIGN ON PASSENGER’S DECISION-MAKING PROCESSES OF TERMINAL USAGE. LASTLY, THE STUDY ALSO STRIVES TO DETERMINE TERMINAL DESIGN ELEMENTS THAT BEST BENEFIT PASSENGER’S EMOTIONS AS A TOOL IN SAFEGUARDING THE PASSENGER ENVIRONMENT AND THE CONTINUITY OF PUBLIC TRANSPORTATION RIDERSHIP





3- PRIVATE VEHICLE PARKING AREA/DROP-OFF ENTRANCE 4-MOTORCYCLE/BICYCLEPARKING 5-PRIVATEVEHICLEPARKINGAREA 6-(PUV)JEEPANDVANLOADINGAREA/BAYS 7-ROTUNDA
8- PRIVATE VEHICLE PARKING AREA/DROP-OFF EXIT
-BUSPARKINGAREA
-VAN/JEEPPARKINGAREA
THE SITE - IS LOCATED AT PANACAN, DAVAO CITY, ALONG DAANG MAHARLIKA HIGHWAY, DAVAO CITY DIVERSION ROAD A MAJOR ROAD ACCOMPANIES IT ON ITS NORTHWEST-TO-NORTHEAST SIDE AND A MINOR ROAD ON ITS SOUTHWEST TO THE SOUTHEAST SIDE ITS BOUNDARIES ENCLOSE 5 2 HECTARES OF LAND AREA ACCORDING TO THE COMPREHENSIVE ZONING ORDINANCE OF DAVAO CITY, THE SITE BELONGS TO THE INFRASTRUCTURE OR UTILITY ZONE THE USAGE OF THE SITE FOR THE PROPOSED OVERLAND TERMINAL WOULD PRIMARILY CATER TO NORTHERN ROUTE-ORIENTED BUSES TO HELP AVOID CONGESTION IN THE CITY'S CIVIC CENTER
SUN PATH - THE SUN RISES FROM THE SITE'S EAST SID TO THE WEST SIDE THE WESTERN SUN IN ITS PEAK POIN MAY DELIVER EXCESSIVE HEAT TO THE PROPOSE DEVELOPMENT AND THE USERS, GIVEN THAT N EXISTING ADJACENT BUILDINGS MAY BLOCK OR PROVID SHADING THE PROVISION OF GREEN SPACES MAY AD SHADING; ATRIUMS ARE INCORPORATED TO MAXIMIZ GOD'S WAY OF LIGHTING AND THE GLASS WALLS SHADING FROM CANOPIES AND ROOF EAVES IS ALS NEEDED TO CONTROL SUNLIGHT PENETRATION


18-PRIVATEVEHICLEDROP-OFFANDPASSENGERENTRANCE
-MAINTERMINALENTRANCE
-PUVDROP-OFFAREA
-PUVEXIT
-BUS/JEEP/VANTERMINALENTRANCE
-BUS/JEEP/VANTERMINALEXIT

WIND ANALYSIS - THE SITE'S NORTHEAST AND SOUTHWEST SIDES ARE THE WIND FLOW PATHWAYS WINDOW OPENINGS TO OPEN SPACE AND ATRIUM WILL BE ALIGNED WITH THE WIND FLOW DIRECTION TO ENHANCE NATURAL VENTILATION AND STACK EFFECT



SECOND FLOOR PLAN
MAIN TERMINAL BUILDING FRONT ELEVATION
MAIN TERMINAL BUILDING REAR ELEVATION
MAIN TERMINAL BUILDING R




S A D A






REVIT DESIGN AND DEVELOPMENT WORKS



ERECTED IN A LOT WITH AN AREA OF 150 SQM, THIS PROPOSED 2-STOREY RESIDENTIAL BUILDING ENCOMPASSES THE GARAGE AREA, LIVING AREA, POWDER ROOM, DINING AREA, KITCHEN, MAID'S ROOM, GUEST ROOM, HOBBY AREA, MASTER BEDROOM, TWO OTHER BEDROOMS WITH SHARED BALCONY, AND A MASTER'S BALCONY ITS FACADE IS DEFINED BY VERTICAL AND HORIZONTAL LINES, CONTRASTING COLORS, AND TROPICAL ELEMENTS, WHICH CREATE ASYMMETRY AND BOLDNESS. ALL PLUMBING LINES, SUCH AS DOWNSPOUTS, ARE EMBEDDED INSIDE THE WALLS FROM THE INSIDE GUTTER, AND ALL STRUCTURAL COLUMNS ARE FLASHED IN THE WALLS TO ACHIEVE A CLEAN LOOK WITH NO OBSTRUCTIONS IN THE EXTERIOR
E X P L O D E D D I A G R A M

1- MAN’S GATE
2- VEHICULAR GATE 3- CAR PARK 4- MAIN DOOR 5- GUEST ROOM 6- GUEST ROOM T&B
7- POWDER ROOM
8- LIVING AREA 9- DINING AREA
KITCHEN
12- MAID’S ROOM
13- MAID’S T&B
14- BEDROOM 1
15- HOBBY AREA
16- BEDROOM 2
17- SHARED BALCONY
18- COMMON T&B
19- MASTER BEDROOM T&B
20- MASTER BEDROOM
21- MASTER BEDROOM BALCONY



P E R S P E C T I V E





A R T D E C








AS A GRADUATE OF BATCH 2023, IN MY FIRST YEAR’S APPRENTICESHIP, I WORKED OR ENGAGED ON CLIENT MEETINGS, ADMINISTRATIVE ORIENTATIONS, CONSTRUCTION SITE SUPERVISION, PRODUCT PURCHASING, COORDINATION, AND MEETINGS WITH SUPPLIERS AS WELL AS WITH ALLIED PROFESSIONALS, AND PROJECT TURNOVER THESE EXPERIENCES REWARDED ME WITH A PERSPECTIVE OF THE REALITIES OF CONSTRUCTION AND HOW TO DEAL WITH THE ENVIRONMENT THIS APPROACH OPENED DOORS TO MEETING PASSIONATE INDIVIDUALS, NEW FRIENDS, AND UNLOCKED OPPORTUNITIES.. ALL OF THESE SHARED PART WILL BE CHERISHED, TREASURED, AND CONTINUE
2 0 2 4