Zandschelstraat 4, Goirle

Page 1

HuizenHendriks van

Een diepe tuin op het westen

Houtkachel aanwezig

Een woning met veel mogelijkheden

2 slaapkamers

Vrij uitzicht!

Zandschelstraat 4 , 5051 HL Goirle
H55
175355

De in deze brochure getoonde informatie wordt door Hendriks makelaardij met zorg samengesteld, doch voor de juistheid en volledigheid daarvan kan niet worden ingestaan en kunnen hieraan geen rechten worden ontleend. Spel- en typefouten voorbehouden. De plattegronden zijn geproduceerd voor promotionele doeleinden en ter indicatie. Er kunnen geen rechten aan worden ontleend. Maten zijn niet eigenhandig opgemeten. Indien er twijfel bestaat over de accuratie van de gegevens aangaande deze brochure, is de geïnteresseerde zelf verantwoordelijk voor het nameten van deze gegevens. Voor meer informatie wordt u doorverwezen naar www.hendriks.nl

Verkoper vertelt

Ben jij op zoek naar een woning met veel leefruimte, vrij uitzicht én voldoende mogelijkheden?

Dan zit je goed met dit fijne gezinshuis die diverse mogelijkheden biedt om de woning uit te breiden en de zolder om te toveren tot extra slaapkamer!

Daarnaast kom je te wonen op een ideale centrale locatie met alle denkbare voorzieningen in de omgeving.

Kenmerken eengezinswoning tussenwoning 4 91 m² 213 m² 360 m³ 1938 achtertuin, voortuin, zijtuin geen garage c.v.-ketel dakisolatie, grotendeels dubbelglas F Soort Type Kamers Woonoppervlakte Perceeloppervlakte Inhoud Bouwjaar Tuin Garage Verwarming Isolatie Energielabel
Tilburg: Besterdring 223, T 013 - 549 91 90
Te koop bij

Knusse woonkamer

lichte woonkamer

neutrale afwerking

Vanuit de hal met de trapopgang naar de bovenverdieping, kom je binnen in de woon-/ eetkamer en keuken. De woning is heerlijk licht. Via de grote ramen aan zowel de voor- als achterzijde strijkt er een aangename hoeveelheid daglicht de ruimte binnen, heerlijk! De woonkamer kan je verwarmen door de houtkachel.

Daarnaast beschik je over een neutrale basis waarin je met de nieuwste trends uit de voeten kunt en een nieuw thuis kunt realiseren. Laat je creatieve geest de vrije loop!

huizen van hendriks

Zie de potentie!

ruime keuken nette badkamer

Aan de achterzijde vind je de lichte, ruime keuken. De keuken is geplaatst in een L-opstelling en biedt voldoende werk- en opbergruimte. Uiteraard ben je voorzien van diverse apparatuur en vanuit de keuken heb je toegang tot de achtertuin. Daarnaast heb je de mogelijkheid om de woonkamer/keuken uit te breiden waardoor je hier een fijne open leefkeuken kunt realiseren. Zie de potentie!

Vanuit de keuken komen we in de bijkeuken en badkamer. In de bijkeuken is de wasmachine aansluiting gesitueerd. De badkamer is in lichte kleurstelling van grond tot plafond betegeld en oogt hiermee verzorgd. De ruimte is ingedeeld met een wastafel, handdoek radiator, toilet, bad en douchecabine. Spoel de dag van je af!

huizen van hendriks

2 slaapkamers

voldoende mogelijkheden

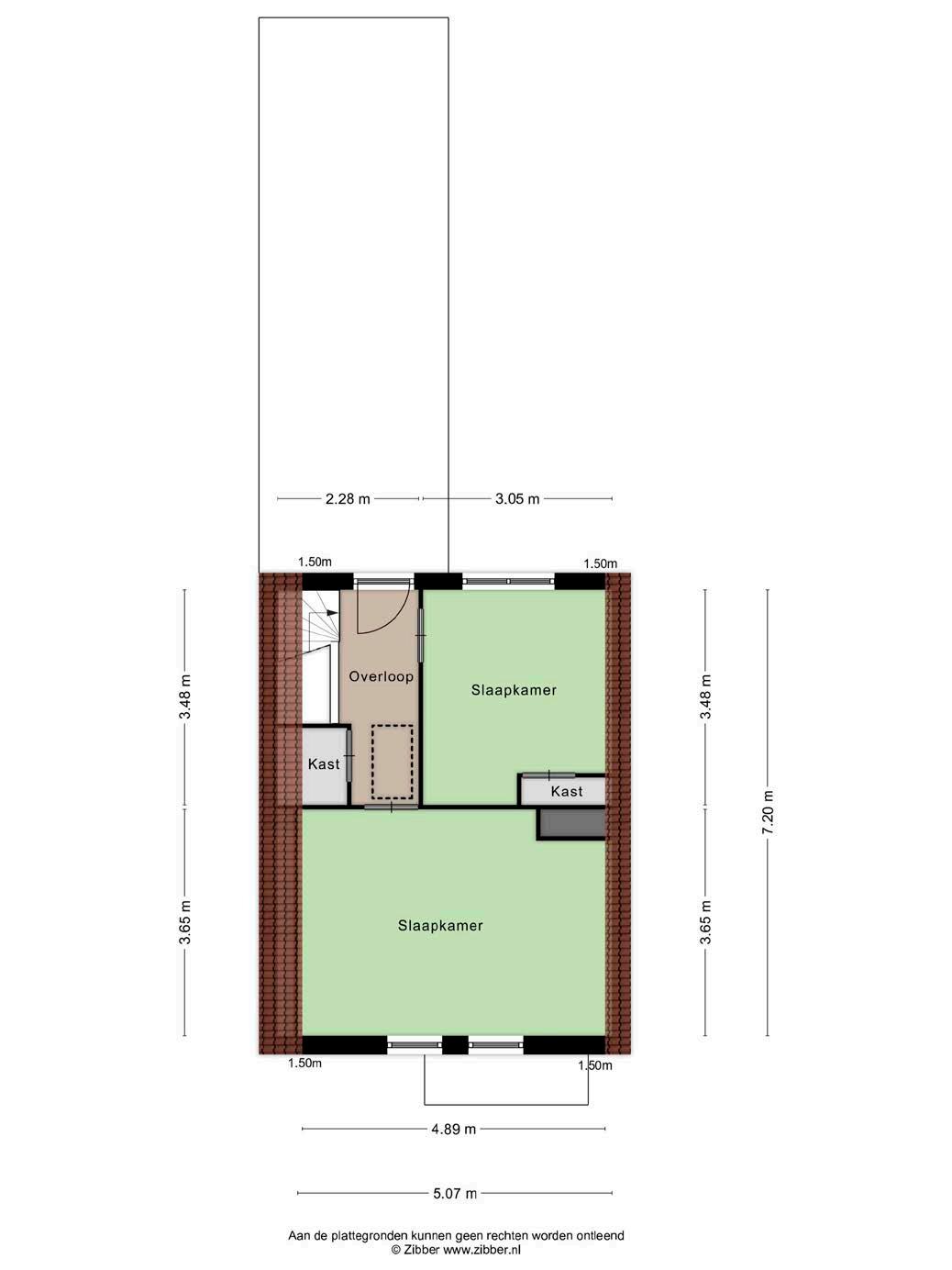
Op de eerste verdieping beschik je over een tweetal slaapkamers. De vertrekken zijn ieder van goed formaat, lekker licht en eenvoudig afgewerkt. Daarnaast is de slaapkamer aan de voorzijde van het huis voorzien van een ruime vaste kast, ideaal!

Op de tweede verdieping vind je een ruime zolder. Wanneer je een vaste trap naar de zolder realiseert kan je ook hier nog een ruime slaapkamer van maken. Zie jij het al helemaal voor je? Daarnaast is het dak goed geïsoleerd, waardoor de koud buiten blijft en het binnen aangenaam is.

Veel mogelijkheden

huizen van hendriks

keurig aangelegd

Tuin op het westen genieten!

Middels de tuindeur vanuit de keuken komen we in de diepe tuin die is gelegen op het westen. De tuin is aangelegd met een mix van bestrating, groene beplanting en fruitbomen. Daarnaast is er voldoende ruimte om een knusse lounge plek te creëren waar je kunt genieten van je kopje koffie in het zonnetje!

Tevens is er een houten berging aanwezig die is voorzien van elektra. De berging biedt voldoende ruimte voor het opbergen van je tuingereedschap en fietsen.

huizen van hendriks
Zandschelstraat 4 5051 HL Goirle
Zandschelstraat 4 5051 HL Goirle
Zandschelstraat 4 5051 HL Goirle

De gemeente Goirle ligt in de provincie Noord-Brabant op steenworp afstand van Tilburg en heeft ca. 24000 inwoners. De gemeente beschikt over een goed gevarieerd voorzieningenaanbod. Er zijn goede onderwijsmogelijkheden, er is een gevarieerd winkelbestand en er zijn goede sportaccommodaties.

Ook is binnen de gemeente sprake van een goede werkgelegenheid. Bedrijvigheid vindt plaats op de industrieterreinen Tijvoort-Noord, Tijvoort-Zuid in Goirle en Veertels in Riel. De meest uiteenlopende bedrijven zijn er gevestigd.

Ook op het gebied van welzijn en cultuur heeft de gemeente veel te bieden. Door dit alles heerst er in de gemeente een goed woon- en leefklimaat. Er zijn verschillende culturele accommodaties waar gedurende het gehele jaar velerlei activiteiten plaatsvinden. Veel organisaties, instellingen en verenigingen maken onder meer gebruik van de faciliteiten van het Jan van Besouwhuis in Goirle.

De gemeente Goirle beschikt over enkele interessante bezienswaardigheden. Heemerf de Schutsboom wordt beheerd door de Heemkundige Kring De Vyer Heertganghen. Er is een 18e eeuws wevershuisje, een museum, een archief, een langdeelschuur met landbouwgereedschappen, een kruidentuin en een bijenstand. Ook kunt u een bezoek brengen aan de prachtige neogotische St. Janskerk. De kerk met toren is uit ca. 1460.

heerlijk wonen in Goirle

Goirle
noorden kadastrale kaart

Lokaal makelaarschap

Wij geloven sterk in lokaal makelaarschap. Kennis van de buurt, de omgeving en de daarbij behorende ontwikkeling van de huizenprijzen zijn onmisbaar om voor jou het maximale resultaat te boeken.

Met Hendriks Makelaardij kies je voor:

• makelaars die al jarenlang verbonden zijn met de regio

• kennis van de lokale woningmarkt

• een verkoopplan afgestemd op jouw woning

• maximale exposure van je huis

• bezichtigingen ook in het weekend

• netwerk met honderden woningzoekers

Verkoop je je huis met Hendriks dan ben je met de eigen app 24/7 op de hoogte van het verkoopproces. Bezichtigingsverzoeken bereiken je direct en beantwoord je snel en discreet op het moment dat het jou uitkomt.

Ook je huis verkopen? Onze makelaars komen graag en vrijblijvend bij je langs. We maken dan direct een gratis waardebepaling. Hendriks Makelaardij werkt op basis van no cure no pay. En betalen doe je pas bij verkoop.

Besterdring 223 013 - 549 91 90 tilburg@hendriks.nl www.hendriks.nl

onze makelaarskantoren huizen van hendriks
WHATSAPP FOTO’S WONING ADRES WAARDE + + = Besterdring 223 013 - 549 91 90 tilburg@hendriks.nl www.hendriks.nl Ook je huis verkopen? WhatsApp de foto’s en het adres van je woning naar 06 44 33 78 72 en ontvang een gratis waardebepaling!

Turn static files into dynamic content formats.

Create a flipbook
Issuu converts static files into: digital portfolios, online yearbooks, online catalogs, digital photo albums and more. Sign up and create your flipbook.