Análisis de casos arquitectónicos: vivienda multifamiliar

Page 1

ANÁLISIS DE CASOS ARQUITECTÓNICOS

I. INTRODUCCIÓN II. OBJETIVOS I.GENERAL II.ESPECÍFICOS III. MARCO TEÓRICO I. DEFINICIONES IV. ANÁLISIS DE CASOS I. MARCO REFERENC I. ANTECEDENTE II. MARCO TEÓR III. DATOS GENE IV. CARACTERÍS V. ANÁLISIS CONTEXTU I. UBICACIÓN Y II. ACCESIBILIDA III. EQUIPAMIEN IV. TOPOGRAFÍA V. RIESGOS Y VU VI. ACONDICION VIII. VISUALES INDICE
VI. ANÁLISIS FOR I. IDEA REC II. CONCEP III. PRINCIP IV. RELACIO V. ANÁLISIS ESPA I. TIPOS DE II. RELACIO III. ORGAN IV. CALIDA V. JERARQ VI. ANÁLISIS FUN I. ZONIFIC II. ACCESOS III. CIRCULACIÓN IV. INTENSIDAD DE FLUJO V. FLUJOGRAMA DE CIRCULACIÓN VI. ORGANIGRAMA FUNCIONAL

VII. ANÁLISIS CONSTRUCTIVO I. TRAMA ESTRUCTURAL

ESTRUCTURA

MATERIALES

II.
III.

INTRODUCCIÓN

En el presente estudio, analizaremos el proyecto de vivienda multifamiliar "VIVIENDA N1" del STUDIO SIMOVIC , en el año 2016, que tiene como proveedores : FUNDERMAX, SUNCE MARINKOVIC, TARA PARQUET.

El equipo de trabajo: Dragan Veljkovic, Milan Pavlovic (ingenieros civiles), Snezana Petrovic (Ingeniero eléctrico), Vladislav Milovanovic (Ingeniero hidroeléctrico), Vladimir Zaljevski (Ingeniero mecánico), Petar y Marija Simovic (Arquitectos).

El fin del análisis es formar una capacidad crítica ante los aspectos y defectos que tiene esta vivienda multifamiliar.

OBJETIVOS

OBJETIVO GENERAL:

Conocer la importancia de los conceptos teóricos-prácticos desarrollados, analizar la "VIVIENDA N1" de STUDIO

SIMOVIC que es una vivienda multifamiliar, obteniendo comocimientos que se puede aplicar en el contexto.

OBJETIVO ESPECÍFICO:

• Identificar si la edificación sigue las normas urbanas.

•Analizar los aspectos de la vivienda multifamilar con su entorno.

• Demostrar el diseño y la construcción de la vivienda multifamiliar.

MARCO TEÓRICO

DEFINICIÓN:

La vivienda es un inmueble en la que la familia realiza sus actividades cotidianas dentro de los parámetros de función.

Tipología general de vivienda

•Vivienda multifamiliar:

Está divido en viviendas familiares que comparte el edificio o terreno.

• Vivienda unifamiliar:

Es la que 1 sola familia ocupa todo el edificio o terreno.

Tipos de viviendas

multifamiliares: •Dúplex:
Consta de 2 pisos que están conectados por una escalera,
•Flat:
Es un departamento construido dentro de un edificio de estructura de material noble y placas de concreto armado, con vista a la calle o al interior.

•Penthouse: Es un departamento especial que se encuentra en la parte más alta de un edificio, se disqtinque de otros departamentos del edificio, ya que el penthouse tiene más comodidades y es más costoso.

•Torre: Son edificios de 10 niveles y tiene un ancensor. Este tipo de edificaciones siguen aumentando en muchos países, sobre todo en lugares donde la población es densa y no hay mucho espacio para construir.

ANÁLISIS DE CASOS

MARCO REFERENCIAL

ANTECEDENTES HISTÓRICOS

La ciudad Kragujevac:

Revivió en la segunda mitad del siglo XV cuando los turcos erigieron un nuevo asentamiento en la margen izquierda del río Lepenica. El asentamiento lleva el nombre del ave Kraguj, un tipo de águila, que según la creencia popular habitaba en los bosques cercanos.

La ciudad de Kragujevac tiene patrimonio cultural e histórico, y la gente es agradable y sociable, tiene muchos lugares para divertirse y entretenerse, Kragujevac tiene un hermoso centro con zona peatonal, con muchas cafeterías. También hay un centro comercial Plaza y el parque conmemorativo "Sumarice" para agradables paseos y entretenimiento.

Los ganadores del PREMIO DE DISEÑO MICROMACRO para 2017 son Studio Simović por el Proyecto Vivienda N1 en la CATEGORÍA Arquitectura y Diseño de Interiores. La inauguración de la exposición y la ceremonia de premiación se llevaron a cabo el 6 de diciembre de 2017 en la Galería de Ciencia y Tecnología de la Academia de Ciencias y Artes de Serbia, Serbia. Studio Simovic fue el encargado de construir la vivienda multifamiliar "VIVIENDA N1". PREMIO DE DISEÑO MICROMACRO 2017
DATOS GENERALES Ubicación: Nombre: Año de construcción: Área construido: Encargado: Equipo de proyecto: Total de departamentos: Calle Nemanjina 1 de Kragujevac (Serbia VIVIENDA 1 2016 441m² Studio Simovic Dragan Veljkovic, Milan Pavlovic (ingenieros civiles), Snezana Petrovic (Ingeniero eléctrico), Vladislav Milovanovic (Ingeniero hidroeléctrico), Vladimir Zaljevski (Ingeniero mecánico), Petar y Marija Simovic (Arquitectos). 4 departamentos en total, 2 apartamentos de dos dormitorios y 2 apartamentos dúplex-áticos,

CARACTERÍSTICAS DE LA POBLACIÓN

Demogrfía en la ciudad de Kragujevac 175 577 Habitantes Estratificación social Rasgos y estatus social: Presenta una sociedad variada, los pobladores tienen diferentes actividades, como el comercio, agricultura, etc. Ideología y fe: La mayoría de los habitantes tienen como religión la Ortodoxa-Cristiana, Islámica, RomanoCatólica, Protestante y Judía. Idioma: Serbio

ANÁLISIS CONTEXTU

UBICACIÓN GENERAL EUROPA Limita con: Norte: Sur: Este: Oeste: SIBERIA Limita con: Norte: Sur: Este: Oeste: Océano Ártico Mar mediterráneo Continente asiático Océano atlántico Océano Ártico Kazajistán, Mongolia, Corea del Norte y China Océano pacífico Montes Urales SIBERIA
UBICACIÓN GENERAL KRAGUJEVAC Limita con: Norte: Sur: Este: Oeste: Danubio Raska Pomoravlje Morava LOCALIZACIÓN KRAGUJEVAC VIVIENDA MULTIFAMILIAR EN KRAGUJEVAC
U 34m 13m VÍA SECUNDARIA CARA LAZARA SKERLICÉVA DOBLE VÍA KRALJA ALEKSANDRA I KARADORDEVICA VÍA PRINCIPAL TRANSPORTE PRIVADO: AUTO, BICICLETA PÚBLICO: BUS, TAXIS
CENTROS MÉDICOS Centro de estética dermatológica a CENTROS DE COMERCIO Restaurante
EQUIPAMIENTO 1 Tienda de electrodomésticos 2 Tienda de electrodomésticos Salón de belleza Tienda de instrumentos CENTROS DE ESTUDIOS Academia de lenguas extranjeras Ca
Latitud: 44.014577 Altitud: 195.5994209 Longitud: 20.909663

RIESGOS Y VULNERABILIDAD

Alto Media Bajo Muy bajo

Terremoto A 430m
se encuentra una tienda de pirotecnía
Amanecer: 6:30 am Puesta del sol: 18:21 pm Temperatura: varía de -4°C a 28°C
Fotrografías de la vivienda multifamiliar, permitiendo la entrada de luz natural.

En Kragujevac, los veranos son calurosos y mayormente

CLIMA
VISUALES

ANÁLISIS DE ACASOS NÁLISIS FORMAL

IDEAS

Forma trapezoidal

RECTORAS

Yuxtaposición

PRINCIPIOS ORDENADORES

Simetría

tmo

Jerarquía por situación

Adición:

La terraza en el que se presenta un jardín, área verde. e uso, la vivienda e a edificios

ANÁLISIS DE ACASOS NÁLISIS ESPACIAL

(Entrada)

TIPOS DE ESPACIOS Sótano
Espacio exterior Espacio Real Espacios servidores

TIPOS DE

ESPACIOS
TIPOS DE ESPACIOS

Tercer piso

Espacio exterior Espacio permeable Espacios servidores Espacios impermeables

Terraza

meables

ores
Espacio principal: Sala - comedor Espacio secundario: cocina Espacio terciario: dormitorio y baño

ANÁLISIS DE ACASOS NÁLISIS FUNCIONAL

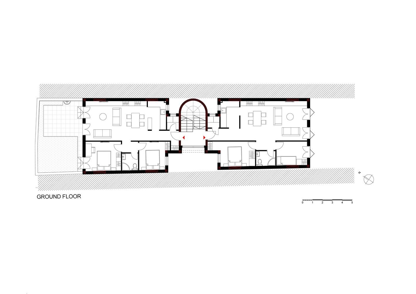
Primer piso

Zona social
ACCESO Vivienda multifamiliar Ingresos
Lle esc dep La E N T R A D A
1ER PISO Acceso general al 2do piso Acceso al 1er dúplex Acceso al 2do 2duplex DO PISO

al

La escalera en general solo

al 3er piso, para subir a 4to piso mediante la escalera en los 2 duplex.

Acceso
desplazamiento vertical
llega
Ático Primer piso Segundo y tercer piso Circulación vertical Circulación horizontal Escaleras Pasadizos
Departamento 2

Primer piso

Segundo y tercer piso

ANÁLISIS DE ACASOS NÁLISIS CONSTRUCTIVO

Estructural: Cemento Acero Cobe Dry w HPL Made Acab Pintu Parqu Vidrio

Turn static files into dynamic content formats.

Create a flipbook
Issuu converts static files into: digital portfolios, online yearbooks, online catalogs, digital photo albums and more. Sign up and create your flipbook.