Portfolio-Compact

Page 1

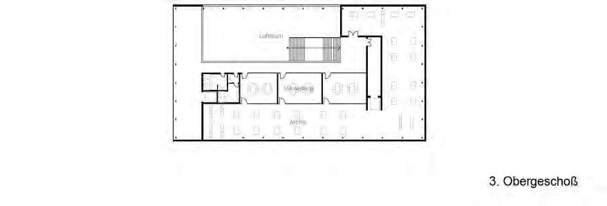
Die industrieleAnlage befindet sich auf dem Hinterhofder Oranienstr 29in Kreuzberg, Berlin. Das 3teund4teObergeschoss desrechten Flügels wurde im Krieg stark zertört. In den 60er Jahren gab eseine teil Sanierung, die die Decke �=====ir.==== ..a

des4ten OG miteinem Flachdach 1versehen konnte. Die GSG kaufte die SanierungsbedürftigeAnlage nach der Wiedervereinigung ab.Seid vorkurzem strebtder Eigentümer eine Revitalisierung und Umnutzung des Gebäudeszu einerGewerbefläche bzw. Büro an.

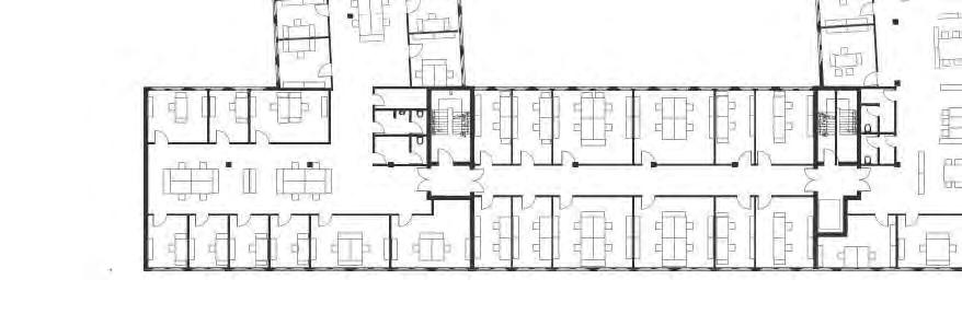
AUFSTOCKUNG 1.0, heißt das Konzept, was konziepert wurde um dieses Projecktanzugehen. Die Räume in den Untergeschoßen wurden als Büroräume umgenutzt. Währenddiezwei neuenAufgestockten Etagen, teilweise auch mit neuenArbeitstischen belegt wurden, dieaber hauptsächlich als comforttableMeetingräume dienen sollen.

Der neue Baukörper soll sich von der alten industrielen Backsteinfassadedeutlich abheben und eben das Neue bewusst darstellen. Daherwurdeausgewähltdas licht undurchlässige Modulglassbauelemente von "Pinkketron"

CAD DRAUF.blau neu-Wiederhergestellt 1:0,42
__L_._____,.acf::i..=!1 �1
��"W�Jf��=�"""""'l"'=d!�!l.......:
G.
b---, ................,.,,......., . (b->-"""I ��·
DannisGunawan M10b SoSe2020 Prof.RüdigerEbel NorenZarazik StädtebaulichesEntwerfeningroßstädt.Verknüpfungsbereichen
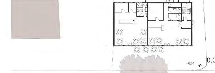
Dannis Gunawan M 10 b SoSe 2020 Prof. Rüdiger Ebel Noren Zarazik Städtebauliches Entwerfen in großstädt. Verknüpfungsbereichen EG 1.OG 2.OG 3.OG 4.OG
DannisGunawan M10b
Prof.RüdigerEbel NorenZarazik
SoSe2020
StädtebaulichesEntwerfeningroßstädt.Verknüpfungsbereichen

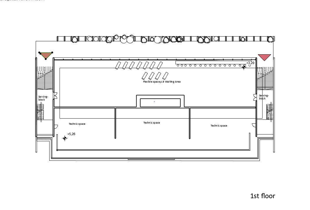
Concept

Clima-Concept

Separated Entrence

Seperated Entrence between the operational area, where the arrival and departure visitor circulates. The relaxing area, which is conected by the stair in the service shaft`s.

Siteplan

Ground plan

Fassade

Front elevation

Beach elevation

Section

Sub-Urban Housing

The House is setteled on Jln.Arteri Pondok lndah in Jakarta, lndonesia. TheProjeckt Task was torenovate a damaged existingFacade.

The owner of the house, wannted to avoidan impudentexpensive renovation. To doso, the new facade should represend a suburban street style design. We involed agravity artistin order to paint thebasepartofthe building.

Thematerials were not supliedby the surounding resources,but are local andare capableto be reused. Themosaictalesgivesthefassade anopticalIllusianofatarnish survace.To avoid enviromentalnoise we used PVC double glased windows.

Due the given situation andlocal craftmanscapabilityof-... equiepment,weprovidethesite managerwithcapableexecution plans.

Betreut von Prof. Dipl.Ing Felix Wellnitz

Begutachtet von Prof. Dipl. Ing Ritz Ritzer

Verbesserungs Vorschläge

Übernehmen des städtebaulichen Kontext für die neuen Quartiere Schaffen von bezahlbaren Wohnraum für die Slumbewohner

Nutzung

• Gut gedeckt in Bereichen; Gesundheit, Einzelhandel und Religion

• Mangel an Bedarf in Bereichen; Bildung, Freizeit, Sport, Spielplätze und Kultur

Verbesserungs Vorschläge

• Bildung von Zentrennetzwerk durch die neuen Quartiere (als Nutzungsbündelung im Sinne „Stadt der kurzen Wege“)

• Decken des nicht vorhandener Nutzungsbedarf im Bereich Versorgung, Kultur, Bildung und Freizeitnutzungen

Verkehr

• Sechsspurige Verbindungsstraße im Westen, Jl. KH Mansyur und im Norden, Jl. Jembatan Tinggi

• Im Gebiet, zweispurige Wohnstraßen

• Nicht motorisierte Kampunggassen innerhalb der Quartiere

Verbesserungs Vorschläge

• Die Einbindung der sauberen Kampungsgassen in die neuen Quartiere als Fahrrad und Fußgängerwege.

• Bildung von Verbindungsstraßen zur Erreichbarkeit des ÖPNV`s und zum Markt Tanah Abang

• Verbesserungen des Straßenraums durch; Oberflächenmaterialien, Bürgersteige und Begrünung

Öffentlicher Raum

• Straßenraum; saubere Kampunggassen

Wege innerhalb der Kampungs (Straßenraum Freiraum bzw Grünanlagen Fluss

Straßenraum Markt

Einzelhandel Straßenraum Markt Wege innerhalb der Kampungs (Straßenraum Freiraum bzw Grünanlagen Fluss

Einzelhandel

Einzelhandel Straßenraum Markt Wege innerhalb der Kampungs (Straßenraum) Freiraum bzw Grünanlagen Fluss

• Wenig Grünflächen, wenn vorhanden dann nur in privater Hand

Verbesserungs Vorschläge

• Die Erhaltung von sauberen Kampungsgassen und dessen Einbindung in die neuen Quartiere

• Transformation des alten Marktes durch Bildung von Gewerberäumen, im EG, der neuen Quartiere als Nutzungsbündelung

• Schaffen eines Grünzugs als Freiraum

• Märkte; Markt Tanah Abang und Markt Pasar Kambing Phase

Hoher Lärmemision Schule Bank Polizei Feuerwehr Krankenhaus Mosche Aphotheke Sport Frisör Feuerwehr
Slum Upgrading Masterarbeit von Dannis Gunawan, 867226. BEUTH HOCHSCHULE FÜR TECHNIK BERLIN
Bebauung
-
1
der Slums entlang des Flusses und
der Bewohner in die drei neuen Quartiere.
2 Ersetzen der frei gewordene Fläche mit einen
Räumung
Umsiedlung
Phase
Grünstreifen
barkeit des ÖPNV`s
Phase 3 Verbinden der drei neuen Quartiere durch ein Fuß- und Fahrradweg entlang des Grünstreifens. Verbesserungen des Straßenraums zur Erreich-
Nord orientierte Häuserreihen. Im südlichen Bereich des Gebiets Willkürliche Bebauungsstruktur im nördlichen Bereichs des Gebiets Größere
Phase 4 Bildung von Nutzungsbündelungen in den neuen Quartieren. Im Sinne Stadt der kurzen Wege. Before After
Maßstäbe, entlang der Hauptverkehrsstraße
1.Herausnehmen von drei proportionalen Bausteinen aus der Umgebung 2.Bilden einer vollen Fläche, aus den drei Bausteinen 4.Heraus nehmen einige der Bausteine zur Bildung von Frei räumen 90 N S KLIMAGERECHTE BAUWEISE Soziales Gemeinde Komitee Workingspace für Frauen Bildung Lifelong Learning Center Handwerker Ausbildungscenter Gesundheit Klinik Apotheke Erwerbwirtschftliches Lebensmittel Jugentliche Freizeit Sport NUTZUNGS SCHEMATA KONZEPT QUARTIER RAUMPROGRAM ÖFFENTLICHER RAUM PRIVAT A01 III IIII II II II II III II

Turn static files into dynamic content formats.

Create a flipbook
Issuu converts static files into: digital portfolios, online yearbooks, online catalogs, digital photo albums and more. Sign up and create your flipbook.