Porfolio de Máster BIM Management (I) | Gonzalo Camargo García

Page 1

mar c go a porfolio de máster bim (I) gonzalo camargo garcía

módulo de revit arquitectura (I) | interpretación bim de vivienda domus aurea en monterrey

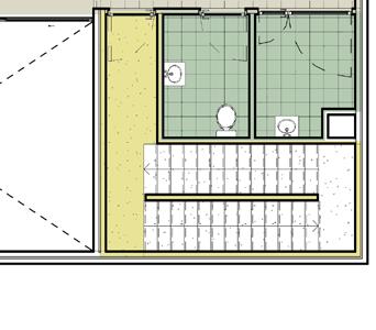
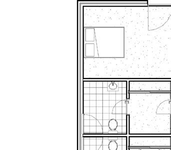
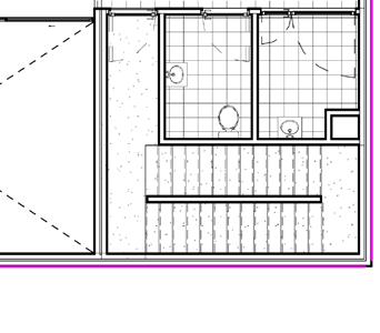
0.00 m +00 P. Baja 4.30 m +01 P. Primera 8.30 m +02 P. Azotea 11.00 m +03 P. Cubierta -3.00 m -01 P. Soterrada 01 2 4 4 -3.00 m RECÁMARA PATIO INGLÉS LAVANDERÍA DISTRIBUIDOR 1 TRASTERO 2 TRASTERO 1 EQUIPOS 1 1 : 100 A. Sur 0.00 m +00 P. Baja 4.30 m +01 P. Primera 8.30 m +02 P. Azotea 11.00 m +03 P. Cubierta -3.00 m -01 P. Soterrada 01 2 4 4 -3.00 m RECÁMARA PATIO INGLÉS LAVANDERÍA DISTRIBUIDOR 1 TRASTERO 2 TRASTERO 1 EQUIPOS 1 1 : 100 A. Sur 0.00 m +00 P. Baja 4.30 m +01 P. Primera 8.30 m +02 P. Azotea 11.00 m +03 P. Cubierta -3.00 m -01 P. Soterrada 01 2 4 4 -3.00 m RECÁMARA PATIO INGLÉS LAVANDERÍA DISTRIBUIDOR 1 TRASTERO 2 TRASTERO 1 EQUIPOS 1 1 : 100 01 A. Sur 2 0.00 m +00 P. Baja 4.30 m +01 P. Primera 8.30 m +02 P. Azotea 11.00 m +03 P. Cubierta -3.00 m -01 P. Soterrada 01 2 4 4 -3.00 m RECÁMARA PATIO INGLÉS LAVANDERÍA DISTRIBUIDOR 1 TRASTERO 2 TRASTERO 1 EQUIPOS 1 1 : 100 01 A. Sur 2 1 : 100 01 -01 P. Soterrada 3
porfolio de máster bim management oficial autodesk (I) | gonzalo camargo garcía
4.30 m+01 P. Primera +03 P. Cubierta -01 P. Soterrada DORMITORIO 1 COCINA 2 4 4 3.72 2.40 4.16 2.30 0.46 1.48 4.00 0.30 7.70 0.30 4.00 1.48 5.03 0.45 7.11 0.45 0.50 1.00 8.62 5.48 1.61 5.48 0.15 4.19 0.15 1.61 2.10 1.19 7.70 1.20 1.71 2.31 0.17 10.11 2.31 0.15 10.13 0.63 0.58 3.60 0.971.08 1.08 3.46 0.45 0.45 2.31 5.84 0.45 0.45 0.45 0.45 0.45 0.45 1.88 0.30 1.88 0.30 2.10 3.48 0.30 1.88 0.50 2.31 3.53 3.00 4.16 3.79 1.88 2.31 0.15 1.08 3 3 0.00 m ENTRADA HALL ASEO 1 DISTRI. 2 ESTANCIA 1 ESTANCIA 2 COCINA 1 PATIO GARAJE 1 GARAJE 2 EQUIPOS 2 DISTRI. 3 0.00 m 8.63 Plano Nº plano Situación Proyecto Nº proyecto Revisión Escala La propiedad El/Los arquitecto/s Fecha 1 : 100 Domus Aurea 01 Plantas Soterrada 01 Montes Himalaya 02/12/21 Tecnológico nºfecha +00 P. Baja (Acotada) 0.00 m+00 P. Baja 4.30 m+01 P. Primera 8.30 m+02 P. Azotea 11.00 m +03 P. Cubierta -3.00 m -01 P. Soterrada AZOTEA DORMITORIO 1 ESTANCIA 1 HALL ESTANCIA FAMILIAR VESTIDOR 3 COCINA 1 COCINA 2 ASEO 4 LAVANDERÍA DISTRIBUIDOR 1 PATIO INGLÉS 4 4 3.72 2.40 4.16 2.30 0.46 1.48 4.00 0.30 7.70 0.30 4.00 1.48 5.03 0.45 7.11 0.45 0.50 1.00 8.62 5.48 1.61 5.48 0.15 4.19 0.15 1.61 2.10 1.19 7.70 1.20 1.71 2.31 0.17 10.11 2.31 0.15 10.13 0.63 0.58 3.60 0.971.08 1.08 3.46 0.45 0.45 2.31 5.84 0.45 0.45 0.45 0.45 0.45 0.45 1.88 0.30 1.88 0.30 2.10 3.48 0.30 1.88 0.30 0.50 2.31 3.53 3.80 4.16 3.00 2.01 3.00 4.16 3.79 1.88 2.31 0.15 1.08 3 3 0.00 m ENTRADA HALL ASEO 1 DISTRI. 2 ESTANCIA 1 ESTANCIA 2 COCINA 1 PATIO GARAJE 1 GARAJE 2 EQUIPOS 2 DISTRI. 3 0.00 m 8.63 Plano Nº plano Situación Proyecto Nº proyecto Revisión Escala La propiedad El/Los arquitecto/s Fecha 1 : 100 Domus Aurea 01 Plantas Soterrada 01 Montes Himalaya 02/12/21 Tecnológico nºfecha +00 P. Baja (Acotada) 0.00 m+00 P. Baja 4.30 m+01 P. Primera 8.30 m+02 P. Azotea 11.00 m +03 P. Cubierta -3.00 m -01 P. Soterrada AZOTEA DORMITORIO 1 ESTANCIA 1 HALL ESTANCIA FAMILIAR VESTIDOR 3 COCINA 1 COCINA 2 ASEO 4 LAVANDERÍA DISTRIBUIDOR 1 PATIO INGLÉS 01 2 4 4 3.72 2.40 4.16 2.30 0.46 1.48 4.00 0.30 7.70 0.30 4.00 1.48 5.03 0.45 7.11 0.45 0.50 1.00 8.62 5.48 1.61 5.48 0.15 4.19 0.15 1.61 2.10 1.19 7.70 1.20 1.71 2.31 0.17 10.11 2.31 0.15 10.13 0.63 0.58 3.60 0.971.08 1.08 3.46 0.45 0.45 2.31 5.84 0.45 0.45 0.45 0.45 0.45 0.45 1.88 0.30 1.88 0.30 2.10 3.48 0.30 1.88 0.30 0.50 2.31 3.53 3.80 4.16 3.00 2.01 3.00 4.16 3.79 1.88 2.31 0.15 1.08 3 3 0.00 m ENTRADA HALL ASEO 1 DISTRI. 2 ESTANCIA 1 ESTANCIA 2 COCINA 1 PATIO GARAJE 1 GARAJE 2 EQUIPOS 2 DISTRI. 3 0.00 m 8.63 Plano Nº plano Situación Proyecto Nº proyecto Revisión Escala La propiedad El/Los arquitecto/s Fecha 1 : 100 Domus Aurea 01 Plantas Soterrada Montes Himalaya 02/12/21 Tecnológico nºfecha 1 : 100 01 +00 P. Baja (Acotada) 5 0.00 m+00 P. Baja 4.30 m+01 P. Primera 8.30 m+02 P. Azotea 11.00 m +03 P. Cubierta -3.00 m -01 P. Soterrada AZOTEA DORMITORIO 1 ESTANCIA 1 HALL ESTANCIA FAMILIAR VESTIDOR 3 COCINA 1 COCINA 2 ASEO 4 LAVANDERÍA DISTRIBUIDOR 1 PATIO INGLÉS 01 2 4 4 3.72 2.40 4.16 2.30 0.46 1.48 4.00 0.30 7.70 0.30 4.00 1.48 5.03 0.45 7.11 0.45 0.50 1.00 8.62 5.48 1.61 5.48 0.15 4.19 0.15 1.61 2.10 1.19 7.70 1.20 1.71 2.31 0.17 10.11 2.31 0.15 10.13 0.63 0.58 3.60 0.971.08 1.08 3.46 0.45 0.45 2.31 5.84 0.45 0.45 0.45 0.45 0.45 0.45 1.88 0.30 1.88 0.30 2.10 3.48 0.30 1.88 0.30 0.50 2.31 3.53 3.80 4.16 3.00 2.01 3.00 4.16 3.79 1.88 2.31 0.15 1.08 3 3 0.00 m ENTRADA HALL ASEO 1 DISTRI. 2 ESTANCIA 1 ESTANCIA 2 COCINA 1 PATIO GARAJE 1 GARAJE 2 EQUIPOS 2 DISTRI. 3 0.00 m 8.63 Plano Nº plano Situación Proyecto Nº proyecto Revisión Escala La propiedad El/Los arquitecto/s Fecha 1 : 100 Domus 01 Plantas 01 Montes 02/12/21 Tecnológico nºfecha 1 : 100 01 S. 6 4 1 : 100 01 +00 P. Baja (Acotada) 5 escuela de formación online | editeca 02 | 03

módulo de revit arquitectura (I) | interpretación bim de vivienda domus aurea en monterrey

02 4 3 3 0.00 m ENTRADA HALL ASEO 1 DISTRIBUIDOR 2 ESTANCIA 1 ESTANCIA 2 COCINA 1 PATIO GARAJE 1 GARAJE 2 EQUIPOS 2 DISTRIBUIDOR 3 0.00 m 0.00 m+00 P. Baja 4.30 m+01 P. Primera 8.30 m+02 P. Azotea 11.00 m +03 P. Cubierta -3.00 m -01 P. Soterrada 1 : 100 02 +00 P. Baja (Materiales) 1 1 : 100 A. Norte 02 4 3 3 0.00 m ENTRADA HALL ASEO 1 DISTRIBUIDOR 2 ESTANCIA 1 ESTANCIA 2 COCINA 1 PATIO GARAJE 1 GARAJE 2 EQUIPOS 2 DISTRIBUIDOR 3 0.00 m 0.00 m+00 P. Baja 4.30 m+01 P. Primera 8.30 m+02 P. Azotea 11.00 m +03 P. Cubierta -3.00 m -01 P. Soterrada 1 : 100 02 +00 P. Baja (Materiales) 1 1 : 100 A. Norte
porfolio de máster bim management oficial autodesk (I) | gonzalo camargo garcía 02 4 3 3 0.00 m ENTRADA HALL ASEO 1 DISTRIBUIDOR 2 ESTANCIA 1 ESTANCIA 2 COCINA 1 PATIO GARAJE 1 GARAJE 2 EQUIPOS 2 DISTRIBUIDOR 3 0.00 m 0.00 m+00 P. Baja 4.30 m+01 P. Primera 8.30 m+02 P. Azotea 11.00 m +03 P. Cubierta -3.00 m -01 P. Soterrada 1 : 100 02 +00 P. Baja (Materiales) 1 1 : 100 02 A. Norte 4
04 | 05 GARAJE 1 Plano Nº plano Nº revisión Situación Proyecto Nº proyecto Revisión Escala La propiedad El/Los arquitecto/s Fecha 1 : 100 Domus Aurea (Campo 01 Planta Baja (Materiales Puertas) 02 Montes Himalaya S/N 02/15/21 Tecnológico de Monterrey nºfecha motivo +00 P. Baja (Sección por puertas) 02 4 3 3 0.00 m ENTRADA HALL ASEO 1 DISTRIBUIDOR 2 ESTANCIA 1 ESTANCIA 2 COCINA 1 PATIO GARAJE 1 GARAJE 2 EQUIPOS 2 DISTRIBUIDOR 3 0.00 m +01 P. Primera +02 P. Azotea +03 P. Cubierta -01 P. Soterrada Primera Azotea Cubierta Soterrada Plano Nº plano Situación Proyecto Nº proyecto Revisión Escala La propiedad El/Los arquitecto/s Fecha 1 : 100 Domus Aurea 01 Planta Baja Puertas) 02 Montes Himalaya 02/15/21 Tecnológico nºfecha 1 : 100 02 +00 P. Baja (Sección por puertas) 2 02 4 3 3 0.00 m ENTRADA HALL ASEO 1 DISTRIBUIDOR 2 ESTANCIA 1 ESTANCIA 2 COCINA 1 PATIO GARAJE 1 GARAJE 2 EQUIPOS 2 DISTRIBUIDOR 3 0.00 m 0.00 m +00 P. Baja 4.30 m +01 P. Primera 8.30 m +02 P. Azotea 11.00 m +03 P. Cubierta -3.00 m -01 P. Soterrada Primera Azotea Cubierta Soterrada Plano Nº plano Situación Proyecto Nº proyecto Revisión Escala La propiedad El/Los arquitecto/s Fecha 1 : 100 Domus Aurea 01 Planta Baja Puertas) 02 Montes Himalaya 02/15/21 Tecnológico nºfecha 1 : 100 02 +00 P. Baja (Sección por puertas) 2 escuela de formación online | editeca 02 4 3 3 0.00 m ENTRADA HALL ASEO 1 DISTRIBUIDOR 2 ESTANCIA 1 ESTANCIA 2 COCINA 1 PATIO GARAJE 1 GARAJE 2 EQUIPOS 2 DISTRIBUIDOR 3 0.00 m 0.00 m +00 P. Baja 4.30 m +01 P. Primera 8.30 m +02 P. Azotea 11.00 m +03 P. Cubierta -3.00 m -01 P. Soterrada Baja Primera Azotea Cubierta Soterrada Plano Nº plano Situación Proyecto Nº Revisión Escala La El/Los arquitecto/s Fecha 1 Domus 01 Planta Puertas) Montes 02/15/21 Tecnológico nºfecha 1 100 02 +00 P. Baja (Sección por puertas) 2 1 : 100 02 S. 3 3

módulo de revit arquitectura (I) | interpretación bim de vivienda domus aurea en monterrey

03 2 4 4 ASEO 2 4.30 m ASEO 3 BAÑO DORMITORIO 1 DORMITORIO 2 DORMITORIO 3 DISTRIBUIDOR 4 DISTRIBUIDOR 5 ESTANCIA FAMILIAR DOBLE ALTURA 1 VESTIDOR 1 VESTIDOR 2 VESTIDOR 3 0.00 m +00 P. Baja 4.30 m +01 P. Primera 8.30 m +02 P. Azotea 11.00 m +03 P. Cubierta -3.00 m -01 P. Soterrada 1 : 100 03 +01 P. Primera 1 1 100 A. Oeste 03 2 4 4 ASEO 2 4.30 m ASEO 3 BAÑO DORMITORIO 1 DORMITORIO 2 DORMITORIO 3 DISTRIBUIDOR 4 DISTRIBUIDOR 5 ESTANCIA FAMILIAR DOBLE ALTURA 1 VESTIDOR 1 VESTIDOR 2 VESTIDOR 3 0.00 m +00 P. Baja 4.30 m +01 P. Primera 8.30 m +02 P. Azotea 11.00 m +03 P. Cubierta -3.00 m -01 P. Soterrada 1 : 100 03 +01 P. Primera 1 1 100 A. Oeste 03 2 4 4 ASEO 2 4.30 m ASEO 3 BAÑO DORMITORIO 1 DORMITORIO 2 DORMITORIO 3 DISTRIBUIDOR 4 DISTRIBUIDOR 5 ESTANCIA FAMILIAR DOBLE ALTURA 1 VESTIDOR 1 VESTIDOR 2 VESTIDOR 3 0.00 m +00 P. Baja 4.30 m +01 P. Primera 8.30 m +02 P. Azotea 11.00 m +03 P. Cubierta -3.00 m -01 P. Soterrada 1 100 03 +01 P. Primera 1 1 : 100 03 A. Oeste 2
porfolio de máster bim management oficial autodesk (I) | gonzalo camargo garcía
0.00 m+00 P. Baja 4.30 m+01 P. Primera 8.30 m+02 P. Azotea 11.00 m +03 P. Cubierta -3.00 m -01 P. Soterrada AZOTEA ESTANCIA FAMILIAR PISCINA MURO CORTINA HALL ASEO 1 EQUIPOS 2 PATIO DISTRIBUIDOR 1 EQUIPOS 1 PATIO INGLÉS DORMITORIO 1 Plano Nº plano Situación Proyecto Nº proyecto Revisión Escala La El/Los arquitecto/s Fecha Como Domus 01 Planta Seccionada 03 Montes 02/16/21 Tecnológico nºfecha 03 0.00 m+00 P. Baja 4.30 m+01 P. Primera 8.30 m+02 P. Azotea 11.00 m +03 P. Cubierta -3.00 m -01 P. Soterrada AZOTEA ESTANCIA FAMILIAR PISCINA MURO CORTINA HALL DISTRIBUIDOR 1 EQUIPOS 1 PATIO INGLÉS DORMITORIO 1 Plano Nº plano Nº revisión Situación Proyecto Nº proyecto Revisión Escala La propiedad El/Los arquitecto/s Fecha Como se indica Domus Aurea (Campo Baeza) 01 Planta Primera & Axonometría Seccionada 03 Montes Himalaya S/N 02/16/21 Tecnológico de Monterrey nºfecha motivo 03 4 1 : 1 03 Axonometría Seccionada 3 0.00 m+00 P. Baja 4.30 m+01 P. Primera 8.30 m+02 P. Azotea 11.00 m +03 P. Cubierta -3.00 m -01 P. Soterrada AZOTEA ESTANCIA FAMILIAR PISCINA MURO CORTINA HALL ASEO 1 EQUIPOS 2 PATIO DISTRIBUIDOR 1 EQUIPOS 1 PATIO INGLÉS DORMITORIO 1 Plano Nº plano Situación Proyecto Nº proyecto Revisión Escala La propiedad El/Los arquitecto/s Fecha Como Domus 01 Planta Primera Seccionada 03 Montes 02/16/21 Tecnológico nºfecha 1 : 100 03 S. 7 4 1 : 1 03 Axonometría Seccionada 3 06 | 07 escuela de formación online | editeca

módulo de revit arquitectura (I) | interpretación bim de vivienda domus aurea en monterrey

04 2 3 3 COCINA 2 ASEO 4 PASILLO DOBLE ALTURA 2 PISCINA ENCIMERA EXTERIOR AZOTEA 8.30 m 9.30 m 1 : 100 04 +02 P. Azotea 1 1 : 100 A. Este 1 : 1 04 Infografía 4 04 2 3 3 COCINA 2 ASEO 4 PASILLO DOBLE ALTURA 2 PISCINA ENCIMERA EXTERIOR AZOTEA 8.30 m 9.30 m 0.00 m +00 P. Baja 4.30 m +01 P. Primera 8.30 m +02 P. Azotea 11.00 m +03 P. Cubierta -3.00 m -01 P. Soterrada 1 : 100 04 +02 P. Azotea 1 1 : 100 A. Este 1 : 1 04 Infografía 4 04 2 3 3 COCINA 2 ASEO 4 PASILLO DOBLE ALTURA 2 ENCIMERA EXTERIOR AZOTEA 8.30 m 9.30 m 0.00 m +00 P. Baja 4.30 +01 P. 8.30 m +02 P. Azotea m +03 P. -3.00 m -01 P. 1 04 +02 P. Azotea 1 1 04 A. 2 1 1 04 Infografía 4
porfolio de máster bim management oficial autodesk (I) | gonzalo camargo garcía
DOBLE ALTURA 2 ESTANCIA FAMILIAR Infografía Exterior 04 0.00 m +00 P. Baja 4.30 m +01 P. Primera 8.30 m +02 P. Azotea 11.00 m +03 P. Cubierta -3.00 m -01 P. Soterrada PISCINA ESTANCIA 2 Plano Nº plano Situación Proyecto Nº proyecto Revisión Escala La propiedad El/Los arquitecto/s Fecha Como se indica Domus Aurea (Campo 01 Planta Azotea & Exterior 04 Montes Himalaya 02/16/21 Tecnológico de nºfecha 1 : 1 04 Infografía Exterior 4 Primera Azotea Cubierta Soterrada 0.00 m+00 P. Baja 4.30 m+01 P. Primera 8.30 m+02 P. Azotea 11.00 m +03 P. Cubierta -3.00 m -01 P. Soterrada PISCINA ENCIMERA EXTERIOR AZOTEA DOBLE ALTURA 2 HALL ESTANCIA 2 ENTRADA PATIO ESTANCIA FAMILIAR Plano Nº plano Situación Proyecto Nº proyecto Revisión Escala La El/Los arquitecto/s Fecha Como Domus 01 Planta Exterior Montes 02/16/21 Tecnológico nºfecha 1 : 1 04 Infografía Exterior 4 Primera Cubierta Soterrada 0.00 m+00 P. Baja 4.30 m+01 P. Primera 8.30 m+02 P. Azotea 11.00 m +03 P. Cubierta -3.00 m -01 P. Soterrada PISCINA ENCIMERA EXTERIOR AZOTEA DOBLE ALTURA 2 HALL ESTANCIA 2 ENTRADA PATIO ESTANCIA FAMILIAR Plano Nº plano Situación Proyecto Nº proyecto Revisión Escala La propiedad El/Los arquitecto/s Fecha Como Domus 01 Planta Azotea Exterior 04 Montes 02/16/21 Tecnológico nºfecha 1 : 100 04 S. 2 3 1 1 Infografía Exterior 4 08 | 09 escuela de formación online | editeca

módulo de revit arquitectura (I) | interpretación bim de vivienda domus aurea en monterrey

2 2 PATIO AZOTEA CUBIERTA DE ENCIMERA EXTERIOR CUBIERTA PLANA NO TRANSITABLE ENTRADA PISCINA 0.00 m +00 P. Baja 4.30 m +01 P. Primera 8.30 m +02 P. Azotea 11.00 m +03 P. Cubierta -3.00 m -01 P. Soterrada DORMITORIO 2 1 : 100 +03 P. Cubierta 1 : 100 2 2 PATIO AZOTEA CUBIERTA DE ENCIMERA EXTERIOR CUBIERTA PLANA NO TRANSITABLE ENTRADA PISCINA 0.00 m +00 P. Baja 4.30 m +01 P. Primera 8.30 m +02 P. Azotea 11.00 m +03 P. Cubierta -3.00 m -01 P. Soterrada ENCIMERA EXTERIOR AZOTEA DORMITORIO 3 COCINA 1 ESTANCIA 2 ESTANCIA 1 PATIO PATIO ESTANCIA FAMILIAR DORMITORIO 2 PISCINA 1 : 100 +03 P. Cubierta 1 : 100 2 2 PATIO AZOTEA CUBIERTA DE ENCIMERA EXTERIOR CUBIERTA PLANA NO TRANSITABLE ENTRADA PISCINA 0.00 m +00 P. Baja 4.30 m +01 P. Primera 8.30 m +02 P. Azotea 11.00 m +03 P. Cubierta -3.00 m -01 P. Soterrada 3 05 ENCIMERA EXTERIOR AZOTEA DORMITORIO 3 COCINA 1 ESTANCIA 2 ESTANCIA 1 PATIO PATIO ESTANCIA FAMILIAR DORMITORIO 2 PISCINA 1 : 100 +03 P. Cubierta 1 : 100 05 S. 4 2 2 2 PATIO AZOTEA CUBIERTA DE ENCIMERA EXTERIOR CUBIERTA PLANA NO TRANSITABLE ENTRADA PISCINA 0.00 m +00 P. Baja 4.30 m +01 P. Primera 8.30 m +02 P. Azotea 11.00 m +03 P. Cubierta -3.00 m -01 P. Soterrada 3 05 ENCIMERA EXTERIOR AZOTEA DORMITORIO 3 COCINA 1 ESTANCIA 2 ESTANCIA 1 PATIO PATIO ESTANCIA FAMILIAR DORMITORIO 2 PISCINA 1 : 100 05 +03 P. Cubierta 1 1 : 100 05 S. 4 2
porfolio de máster bim management oficial autodesk (I) | gonzalo camargo garcía
Baja Primera Azotea Cubierta Soterrada Plano Nº plano Situación Proyecto Nº proyecto Revisión Escala La propiedad El/Los arquitecto/s Fecha Como Domus 01 Planta Interior 05 Montes 02/16/21 Tecnológico nºfecha 1 : 1 05 Infografía Interior 4 Primera Azotea Cubierta Soterrada 0.00 m+00 P. Baja Plano Nº plano Situación Proyecto Nº proyecto Revisión Escala La propiedad El/Los arquitecto/s Fecha Como Domus 01 Planta Cubierta Interior 05 Montes 02/16/21 Tecnológico nºfecha 1 : 1 05 Infografía Interior 4 Baja Primera Azotea Cubierta Soterrada 0.00 m+00 P. Baja Plano Nº plano Situación Proyecto Nº proyecto Revisión Escala La El/Los arquitecto/s Fecha Como Domus 01 Planta Interior 05 Montes 02/16/21 Tecnológico nºfecha 1 : 5 05 S. Constructiva 3 1 1 05 Infografía Interior 4 10 | 11 escuela de formación online | editeca
módulo de revit arquitectura (II) | interpretación bim de apartamentos okurayama en yokohama porfolio de máster bim management oficial autodesk (I) | gonzalo camargo garcía
12 | 13 escuela de formación online | editeca
módulo de revit arquitectura (II) | interpretación bim de apartamentos okurayama en yokohama porfolio de máster bim management oficial autodesk (I) | gonzalo camargo garcía
14 | 15 escuela de formación online | editeca
porfolio de máster bim management oficial autodesk (I) | gonzalo camargo garcía módulo de revit arquitectura (II) | interpretación bim de apartamentos okurayama en yokohama
16 | 17 escuela de formación online | editeca
módulo de revit arquitectura (III) | interpretación bim de pabellón cultural en santiponce porfolio de máster bim management oficial autodesk (I) | gonzalo camargo garcía
18 | 19 escuela de formación online | editeca
módulo de revit arquitectura (III) | interpretación bim de pabellón cultural en santiponce porfolio de máster bim management oficial autodesk (I) | gonzalo camargo garcía
20 | 21 escuela de formación online | editeca
módulo de revit arquitectura (III) | interpretación bim de pabellón cultural en santiponce porfolio de máster bim management oficial autodesk (I) | gonzalo camargo garcía
22 | 23 escuela de formación online | editeca
módulo de revit arquitectura (III) | interpretación bim de pabellón cultural en santiponce porfolio de máster bim management oficial autodesk (I) | gonzalo camargo garcía
24 | 25 escuela de formación online | editeca

DG.A.01.1.01

Plantas de arquitectura

Revit Arquitectura (IV). Ejercicio final

FAS_Muros

Familia y tipo Fase de creación Fase de derribo

Muro básico: MU-Cimentación_HA_30 Nueva ConstrucciónNinguno

Muro básico: MU-Cimentación_MO/HA/MO_25Actual Derribo

Muro básico: MU-Cimentación_MO/HA/MO_25Actual Ninguno

Muro básico: MU-Cimentación_MO/HA/MO_25Nueva ConstrucciónNinguno

Muro básico: MU_CE/MO/HA/LV/HA/YE/YE_30Nueva ConstrucciónNinguno

Muro básico: MU_MO+N/LR/2N_15 Nueva ConstrucciónNinguno

Muro básico: MU_MO+N/LR/N+WN_15 Nueva ConstrucciónNinguno

Muro básico: MU_MO/HA/MO_15 Nueva ConstrucciónNinguno

FAS_Muros

WIP_AN_S1_PP_GCG

escala 1 :

escala

módulo de revit arquitectura (IV) | interpretación bim de vivienda domus aurea en monterrey

Familia y tipo Fase de creación Fase de derribo

Muro básico: MU_MO/HA/MO_25 Nueva ConstrucciónNinguno

Muro básico: MU_MO/HA/MO_30 Nueva ConstrucciónNinguno

Muro básico: MU_MO/MO/HA/LV/HA/MO/MO_30Nueva ConstrucciónNinguno

Muro básico: MU_MO/MO/HA/LV/HA/YE/WN_30Nueva ConstrucciónNinguno

Muro básico: MU_MO/MO/HA/LV/HA/YE/YE_30Nueva ConstrucciónNinguno

WIP_AN_P0_PP_FasesActualDemolido_GCG

escala 1 100

Muro básico: MU_YE/YE/HA/LV/HA/YE/YE_30Nueva ConstrucciónNinguno

Muro básico: TA_2N/LR/2N_15 Nueva ConstrucciónNinguno

Muro básico: TA_WN+N/LR/2N_15 Nueva ConstrucciónNinguno

Muro básico: TA_WN+N/LR/N+WN_15 Nueva ConstrucciónNinguno

WIP_AN_P0_PP_GCG

B A A Entrada a reciento Hall Distribuidor 2 Aseo 2 Cuarto técnico Garage 1 Jardín trasero Estancia central Estancia este Muro actual/preexistente 0,00 m -0,15 m N -5,53 m E -3,59 m N 0,00 m E 0,00 m Muro básico VE_C_2H_ME 405x240 VE_C_4H_ME 770x240 Muro básico MU_YE/YE/HA/LV/HA/YE/YE_30 Muro básico TA_WN+N/LR/2N_15 Muro básico MU_MO/MO/HA/LV/HA/YE/YE_30 AR_EM_3H_MA Muro básico MU-Cimentación_MO/HA/MO_25 Muro básico MU-Cimentación_MO/HA/MO_25 VE_C_2H_ME 240x240 Dormitorio 1 Aseo 3Vestidor 1 Aseo 4Vestidor 2 Dormitorio 2 Sala de estar Distribuidor 4 Distribuidor 5 Dormitorio 3 Aseo 5 Vestidor 3 4,00 m Muro básico VE_OAF_2H_ME VE_OAF_2H_ME VE_OA_1H_ME VE_OA_1H_ME VE_OAF_2H_ME Muro básico VE_OA_1H_ME Muro básico Escalera moldeada in situ ES_HA_C14.29/H30_PlantaSegunda Piscina Terraza 8,00 m Muro básico MU_MO/MO/HA/LV/HA/MO/MO_30 Muro básico MU_MO/HA/MO_15 Muro MU_MO/HA/MO_15 VE_C_4H_ME Patio inglés Lavandería Almacén 2 Almacén 1 Aseo 1 Distribuidor 1 -3,30 m Muro básico AR_EM_3H_MA 156x240 Muro básico TA_2N/LR/2N_15 Muro básico TA_WN+N/LR/2N_15 Escalera moldeada in situ ES_HA_C13.75/H30_Sotano Muro básico MU_MO/HA/MO_25 Muro demolido Muro actual Muro básico MU-Cimentación_MO/HA/MO_25 Muro básico MU-Cimentación_MO/HA/MO_25
Vivienda Domus
Himalaya,
escala 1 100
Montes
1
100
:
100
WIP_AN_P1_PP_GCG
escala 1
WIP_AN_P2_PP_GCG
100
porfolio de máster bim management oficial autodesk (I) | gonzalo camargo garcía

Domus

MED_Niveles

NombreFamilia

S1_SotanoNivel:

escuela

Camargo

B Distribuidor 3 Garage 2 Cocina 1 VE_C_2H_ME 405x240 Escalera moldeada in situ ES_HA_C14.29/H30_PlantaPrimera VE_C_2H_ME 240x120 Pasillo Aseo 5Cocina 2 Muro básico MU_MO/HA/MO_15 Muro básico MU_MO+N/LR/N+WN_15 Escalera moldeada in situ ES_HA_C14.29/H30_PlantaSegunda Muro básico TA_WN+N/LR/N+WN_15
g c 13/12/21
g
Gonzalo
García,
Aurea Monterrey, México WIP_AN_3D-Explotado_GCG escala 1 150
y tipoAlzado
Nivel 1-3,30 m
Nivel 10,00 m
Nivel 14,00 m
Nivel 18,00 m
Nivel 110,70 m 26 | 27
P0_Planta0Nivel:
P1_Planta1Nivel:
P2_Planta2Nivel:
PC_PlantaCubiertaNivel:
de formación online | editeca

módulo

Habitaciones

Leyenda_Habitaciones_GCG

WIP_AN_S1_PP_Habitaciones_GCG

Suelo: FO_HA_10

WIP_AN_P1_PP_Habitaciones_GCG

Vivienda Domus

Montes Himalaya, Revit Arquitectura (IV). Ejercicio final

LOC_Suelos

Familia y tipo MED_Edificio

Suelo: SU_PI-MarmolRosa/MO/LV/HA_2+2+5+10 2

Suelo: CU_GR/MO/GT/TA/LV/HA_1+1.5+0+0+2.5+10Edificio1

Suelo: FO_HA_10 Edificio1

Suelo: FO_HA_13 Edificio1

Suelo: FO_HA_39 Edificio1

Suelo: SU_CE/MO/HA/LV_1.5+1.+10+4 Edificio1

Suelo: SU_MA/AI/TA/LV/HA_5+30+0.08+10+39Edificio1

Suelo: SU_MO/HA/MO_1.5+12+1.5 Edificio1

Suelo: SU_PI-MarmolBlanco/MO/LV_2+2+5 Edificio1

Suelo: SU_PI-MarmolRosa/MO/LV/HA_2+2+5+10 2Edificio1

Suelo: SU_PI/MO/GR_3+7+20 Edificio1

Suelo: SU_PI/MO/HA_2+3+10 Edificio1

Suelo: SU_PI/MO/HA_30 Edificio1

WIP_AN_P0_PP_Habitaciones_GCG

WIP_AN_P2_PP_Habitaciones_GCG

Estancia este 07 56,68 m² Estancia central 08 61,15 m² Hall 13 29,34 m² Distribuidor 2 12 2,18 m² Aseo 2 11 5,42 m² Cuarto técnico 10 4,33 m² Almacén 2 05 9,97 m² Lavandería 02 5,62 m² Patio inglés 06 14,26 m² Distribuidor 1 01 11,55 m² Almacén 1 03 1,31 m² Aseo 1 04 2,34 m² Menor que 6,00 m² 6,00 m² - 10,00 m² 10,00 m² - 14,00 m² 14,00 m² - 20,00 m² 20,00 m² - 30,00 m² 30,00 m² - 50,00 m² 50,00 m² o más Dormitorio 1 15 22,85 m² Aseo 3 16 5,49 m² Vestidor 1 17 4,04 m² Aseo 4 18 5,49 m² Vestidor 2 19 4,04 m² Dormitorio 2 21 19,73 m² Sala de estar 22 98,18 m² Distribuidor 5 23 15,59 m² Vestidor 3 24 12,15 m² Aseo 5 25 10,59 m² Dormitorio 3 26 26,02 m² Distribuidor 4 20 2,94 m² Terraza 27 166,45 m² DG.A.01.2.02
escala 1 100
escala 1 : 100
escala 1 : 100
escala 1 100
MED_Habitaciones Número Nivel Nombre Área 17 P1_Planta1Vestidor 14,04 m² 18 P1_Planta1Aseo 4 5,49 m² 19 P1_Planta1Vestidor 24,04 m² 20 P1_Planta1Distribuidor 42,94 m² 21 P1_Planta1Dormitorio 219,73 m² 22 P1_Planta1Sala de estar98,18 m² 23 P1_Planta1Distribuidor 515,59 m² 24 P1_Planta1Vestidor 312,15 m² 25 P1_Planta1Aseo 5 10,59 m² 26 P1_Planta1Dormitorio 326,02 m² 27 P2_Planta2Terraza 166,45 m² 28 P2_Planta2Pasillo 16,04 m² 29 P2_Planta2Aseo 5 5,25 m² 30 P2_Planta2Cocina 2 5,63 m² Total general: 30 693,47 m² MED_Habitaciones Número Nivel Nombre Área 01 S1_SotanoDistribuidor 111,55 m² 02 S1_SotanoLavandería5,62 m² 03 S1_SotanoAlmacén 11,31 m² 04 S1_SotanoAseo 1 2,34 m² 05 S1_SotanoAlmacén 29,97 m² 06 S1_SotanoPatio inglés14,26 m² 07 P0_Planta0Estancia este56,68 m² 08 P0_Planta0Estancia central61,15 m² 09 P0_Planta0Cocina 1 56,10 m² 10 P0_Planta0Cuarto técnico4,33 m² 11 P0_Planta0Aseo 2 5,42 m² 12 P0_Planta0Distribuidor 22,18 m² 13 P0_Planta0Hall 29,34 m² 14 P0_Planta0Distribuidor 312,76 m² 15 P1_Planta1Dormitorio 122,85 m² 16 P1_Planta1Aseo 3 5,49 m² porfolio de máster bim management oficial autodesk (I) | gonzalo camargo garcía
revit arquitectura (IV) | interpretación bim de vivienda domus aurea en monterrey
de

Domus

MED_Suelos

Camargo García, Gonzalo

g g c 13/12/21

Cocina 1 09 56,10 m² Distribuidor 3 14 12,76 m² Pasillo 28 16,04 m² Aseo 5 29 5,25 m² Cocina 2 30 5,63 m²
Aurea Monterrey, México MED_Edificio MED_Localización Vivienda Vivienda Vivienda Vivienda Vivienda Vivienda Vivienda Vivienda Vivienda Jardin Jardin Jardin MAT_Suelos Material: Nombre Material: Área Familia y tipo _Cerámica piscina azul _Cerámica piscina azul 34,73 m² Suelo: SU_CE/MO/HA/LV_1.5+1.+10+4 _Cerámica piscina azul: 1 34,73 m² _Cámara de aire _Cámara de aire 148,46 m²Suelo: SU_MA/AI/TA/LV/HA_5+30+0.08+10+39 _Cámara de aire: 1 148,46 m² _Entarimado de madera _Entarimado de madera 148,46 m²Suelo: SU_MA/AI/TA/LV/HA_5+30+0.08+10+39 _Entarimado de madera: 1 148,46 m² _Geotextil _Geotextil 109,37 m²Suelo: CU_GR/MO/GT/TA/LV/HA_1+1.5+0+0+2.5+10 _Geotextil: 1 109,37 m² _Grava _Grava 109,37 m²Suelo: CU_GR/MO/GT/TA/LV/HA_1+1.5+0+0+2.5+10 _Grava 49,02 m² Suelo: SU_PI/MO/GR_3+7+20 _Grava: 2 158,39 m² _Hormigón armado _Hormigón armado 109,37 m²Suelo: CU_GR/MO/GT/TA/LV/HA_1+1.5+0+0+2.5+10 _Hormigón armado 34,73 m² Suelo: SU_CE/MO/HA/LV_1.5+1.+10+4 _Hormigón armado 13,39 m² Suelo: SU_MO/HA/MO_1.5+12+1.5 _Hormigón armado 13,39 m² Suelo: SU_MO/HA/MO_1.5+12+1.5 _Hormigón armado 189,52 m²Suelo: SU_PI/MO/HA_2+3+10 _Hormigón armado 8,47 m² Suelo: SU_PI/MO/HA_30 _Hormigón armado 59,90 m² Suelo: FO_HA_10 _Hormigón armado 243,66 m²Suelo: FO_HA_10 _Hormigón armado 180,74 m²Suelo: FO_HA_10 _Hormigón armado 146,18 m²Suelo: FO_HA_39 _Hormigón armado 31,56 m² Suelo: FO_HA_13 _Hormigón armado 19,91 m² Suelo: FO_HA_10 _Hormigón armado: 12 1050,80 m² _Lana de vidrio _Lana de vidrio 224,60 m²Suelo: SU_PI-MarmolBlanco/MO/LV_2+2+5 _Lana de vidrio 142,65 m²Suelo: SU_PI-MarmolBlanco/MO/LV_2+2+5 _Lana de vidrio 6,27 m² Suelo: SU_PI-MarmolBlanco/MO/LV_2+2+5 _Lana de vidrio 109,37 m²Suelo: CU_GR/MO/GT/TA/LV/HA_1+1.5+0+0+2.5+10 _Lana de vidrio 148,46 m²Suelo: SU_MA/AI/TA/LV/HA_5+30+0.08+10+39 _Lana de vidrio 34,73 m² Suelo: SU_CE/MO/HA/LV_1.5+1.+10+4 _Lana de vidrio 39,57 m² Suelo: SU_PI-MarmolBlanco/MO/LV_2+2+5 _Lana de vidrio 14,86 m² Suelo: SU_PI-MarmolBlanco/MO/LV_2+2+5 _Lana de vidrio 5,72 m² Suelo: SU_PI-MarmolRosa/MO/LV/HA_2+2+5+10 2 _Lana de vidrio 10,97 m² Suelo: SU_PI-MarmolRosa/MO/LV/HA_2+2+5+10 2 _Lana de vidrio 10,59 m² Suelo: SU_PI-MarmolRosa/MO/LV/HA_2+2+5+10 2 _Lana de vidrio 10,87 m² Suelo: SU_PI-MarmolRosa/MO/LV/HA_2+2+5+10 2 _Lana de vidrio: 12 758,66 m² _Mortero de cemento _Mortero de cemento 224,60 m²Suelo: SU_PI-MarmolBlanco/MO/LV_2+2+5 _Mortero de cemento 142,65 m²Suelo: SU_PI-MarmolBlanco/MO/LV_2+2+5 _Mortero de cemento 6,27 m² Suelo: SU_PI-MarmolBlanco/MO/LV_2+2+5 _Mortero de cemento 109,37 m²Suelo: CU_GR/MO/GT/TA/LV/HA_1+1.5+0+0+2.5+10 _Mortero de cemento 34,73 m² Suelo: SU_CE/MO/HA/LV_1.5+1.+10+4 _Mortero de cemento 39,57 m² Suelo: SU_PI-MarmolBlanco/MO/LV_2+2+5 _Mortero de cemento 14,86 m² Suelo: SU_PI-MarmolBlanco/MO/LV_2+2+5 _Mortero de cemento 189,52 m²Suelo: SU_PI/MO/HA_2+3+10 _Mortero de cemento 8,47 m² Suelo: SU_PI/MO/HA_30 _Mortero de cemento 49,02 m² Suelo: SU_PI/MO/GR_3+7+20 _Mortero de cemento 5,72 m² Suelo: SU_PI-MarmolRosa/MO/LV/HA_2+2+5+10 2 _Mortero de cemento 10,97 m² Suelo: SU_PI-MarmolRosa/MO/LV/HA_2+2+5+10 2 _Mortero de cemento 10,59 m² Suelo: SU_PI-MarmolRosa/MO/LV/HA_2+2+5+10 2 _Mortero de cemento 10,87 m² Suelo: SU_PI-MarmolRosa/MO/LV/HA_2+2+5+10 2 _Mortero de cemento: 14 857,20 m² _Mortero impermeable blanco _Mortero impermeable blanco 26,78 m² Suelo: SU_MO/HA/MO_1.5+12+1.5 _Mortero impermeable blanco 26,78 m² Suelo: SU_MO/HA/MO_1.5+12+1.5 _Mortero impermeable blanco: 2 53,56 m² _Piedra granito gris _Piedra granito gris 49,02 m² Suelo: SU_PI/MO/GR_3+7+20 _Piedra granito gris: 1 49,02 m² _Piedra marmol blanco _Piedra marmol blanco 224,60 m²Suelo: SU_PI-MarmolBlanco/MO/LV_2+2+5 _Piedra marmol blanco 142,65 m²Suelo: SU_PI-MarmolBlanco/MO/LV_2+2+5 _Piedra marmol blanco 6,27 m² Suelo: SU_PI-MarmolBlanco/MO/LV_2+2+5 _Piedra marmol blanco 39,57 m² Suelo: SU_PI-MarmolBlanco/MO/LV_2+2+5 _Piedra marmol blanco 14,86 m² Suelo: SU_PI-MarmolBlanco/MO/LV_2+2+5 _Piedra marmol blanco: 5 427,95 m² _Piedra marmol fino alabastro _Piedra marmol fino alabastro 8,47 m² Suelo: SU_PI/MO/HA_30 _Piedra marmol fino alabastro: 1 8,47 m² _Piedra marmol rosa _Piedra marmol rosa 5,72 m² Suelo: SU_PI-MarmolRosa/MO/LV/HA_2+2+5+10 2 _Piedra marmol rosa 10,97 m² Suelo: SU_PI-MarmolRosa/MO/LV/HA_2+2+5+10 2 _Piedra marmol rosa 10,59 m² Suelo: SU_PI-MarmolRosa/MO/LV/HA_2+2+5+10 2 _Piedra marmol rosa 10,87 m² Suelo: SU_PI-MarmolRosa/MO/LV/HA_2+2+5+10 2 _Piedra marmol rosa: 4 38,15 m² _Piedra sólida gris _Piedra sólida gris 189,52 m²Suelo: SU_PI/MO/HA_2+3+10 _Piedra sólida gris: 1 189,52 m² _Tela asfáltia _Tela asfáltia 109,37 m²Suelo: CU_GR/MO/GT/TA/LV/HA_1+1.5+0+0+2.5+10 _Tela asfáltia 148,46 m²Suelo: SU_MA/AI/TA/LV/HA_5+30+0.08+10+39 _Tela asfáltia: 2 257,82 m²
Familia y tipo Nivel Área Suelo: SU_PI-MarmolRosa/MO/LV/HA_2+2+5+10 2 P1_Planta1 10,59 m² P1_Planta1: 4 344,95 m² Suelo: FO_HA_10 P2_Planta2 19,91 m² Suelo: FO_HA_13 P2_Planta2 31,56 m² Suelo: FO_HA_39 P2_Planta2 146,18 m² Suelo: SU_CE/MO/HA/LV_1.5+1.+10+4 P2_Planta2 34,73 m² Suelo: SU_MA/AI/TA/LV/HA_5+30+0.08+10+39 P2_Planta2 148,46 m² Suelo: SU_MO/HA/MO_1.5+12+1.5 P2_Planta2 13,39 m² Suelo: SU_MO/HA/MO_1.5+12+1.5 P2_Planta2 13,39 m² Suelo: SU_PI-MarmolBlanco/MO/LV_2+2+5 P2_Planta2 6,27 m² Suelo: SU_PI-MarmolRosa/MO/LV/HA_2+2+5+10 2 P2_Planta2 10,87 m² P2_Planta2: 9 424,75 m² Suelo: CU_GR/MO/GT/TA/LV/HA_1+1.5+0+0+2.5+10 PC_PlantaCubierta109,37 m² PC_PlantaCubierta: 1 109,37 m²
MED_Suelos
y tipo Nivel Área Suelo: FO_HA_10 S1_Sotano 59,90 m² Suelo: SU_PI-MarmolBlanco/MO/LV_2+2+5 S1_Sotano 39,57 m² Suelo: SU_PI-MarmolBlanco/MO/LV_2+2+5 S1_Sotano 14,86 m² S1_Sotano: 3 114,33 m² Suelo: FO_HA_10 P0_Planta0 243,66 m² Suelo: SU_PI-MarmolBlanco/MO/LV_2+2+5 P0_Planta0 224,60 m² Suelo: SU_PI-MarmolRosa/MO/LV/HA_2+2+5+10 2 P0_Planta0 5,72 m² Suelo: SU_PI/MO/GR_3+7+20 P0_Planta0 49,02 m² Suelo: SU_PI/MO/HA_2+3+10 P0_Planta0 189,52 m² Suelo: SU_PI/MO/HA_30 P0_Planta0 8,47 m² P0_Planta0: 6 720,98 m² Suelo: FO_HA_10 P1_Planta1 180,74 m² Suelo: SU_PI-MarmolBlanco/MO/LV_2+2+5 P1_Planta1 142,65 m² Suelo: SU_PI-MarmolRosa/MO/LV/HA_2+2+5+10 2 P1_Planta1 10,97 m² 28 | 29 escuela de formación online | editeca
Familia

módulo

SUP_Utiles

Nivel Nombre

P0_Planta0Área - Estancia este56,68

P0_Planta0Área - Estancia central61,20 m²

P0_Planta0Área - Hall 29,35 m²

P0_Planta0Área - Cuarto técnico4,33 m²

P0_Planta0Área - Aseo 2 5,42 m²

P0_Planta0Área - Distribuidor 22,18 m²

P0_Planta0Área - Distribuidor 312,76 m²

P0_Planta0Área - Cocina 1 56,10 m²

P1_Planta1Área - Dormitorio 122,85 m²

P1_Planta1Área - Aseo 3 5,49 m²

P1_Planta1Área - Aseo 4 5,49 m²

P1_Planta1Área - Vestidor 2 4,04 m²

P1_Planta1Área - Vestidor 1 4,01 m²

P1_Planta1Área - Dormitorio 219,73 m²

P1_Planta1Área - Sala de estar39,12 m²

SUP_Utiles

2,34 m² Área común del edificio Área - Aseo 1

1,31 m² Área común del edificio Área - Almacén 1

5,62 m² Área común del edificio Área - Lavandería

MED_Escaleras

9,97 m² Área común del edificio Área - Almacén 2 14,26 m² Área común del edificio Área - Patio inglés

15,34 m² Área común del edificio Área - Distribuidor 1

56,68 m² Área común del edificio Área - Estancia este

4,33 m² Área común del edificio Área - Cuarto técnico

5,42 m² Área común del edificio Área - Aseo 2 2,18 m² Área común del edificio Área - Distribuidor 2

61,20 m² Área común del edificio Área - Estancia

29,35 m² Área común del edificio Área - Hall

22,85
Área común del edificio
Dormitorio
m² Área común del edificio Área - Aseo 3
m² Área común del edificio Área - Aseo 4 4,04 m² Área común del edificio Área - Vestidor 2 4,01 m² Área común del edificio Área - Vestidor 1 19,73 m² Área común del edificio Área - Dormitorio 2 39,12 m² Área común del edificio Área - Sala de estar 26,01 m² Área común del edificio Área - Dormitorio 3 10,59 m² Área común del edificio Área - Aseo 5 12,15 m² Área común del edificio Área - Vestidor 3 15,59 m² Área común del edificio Área - Distribuidor 5 2,94 m² Área común del edificio Área - Distribuidor 4 128,14 m² Área común del edificio Área - Terraza DG.A.01.3.03 Superficies útiles Vivienda Domus Montes Himalaya, Revit Arquitectura
Ejercicio final escala 1 : 100
Área -
1 5,49
5,49
(IV).
escala
100
WIP_AN_S1_PP_Sup.Util_GCG
1
1
100
WIP_AN_P0_PP_Sup.Util_GCG
escala
:
WIP_AN_P1_PP_Sup.Util_GCG
escala 1 100
WIP_AN_P2_PP_Sup.Util_GCG
Nivel Nombre Área
- Dormitorio 326,01 m²
- Aseo 5 10,59 m²
- Vestidor 3 12,15 m²
- Distribuidor 515,59 m² P1_Planta1Área - Distribuidor 42,94 m² S1_SotanoÁrea - Almacén 2 9,97 m² S1_SotanoÁrea - Patio inglés 14,26 m² S1_SotanoÁrea - Lavandería 5,62 m² S1_SotanoÁrea - Distribuidor 115,34 m² S1_SotanoÁrea - Almacén 1 1,31 m² S1_SotanoÁrea - Aseo 1 2,34 m² P2_Planta2Área - Terraza 128,14 m² P2_Planta2Área - Pasillo 16,05 m² P2_Planta2Área - Cocina 2 5,63 m² P2_Planta2Área - Aseo 5 5,25 m²
P1_Planta1Área
P1_Planta1Área
P1_Planta1Área
P1_Planta1Área
Área
Material: NombreMaterial: _Hormigón armado _Hormigón armado28,03 _Hormigón armado32,38 _Hormigón armado32,38 _Piedra marmol _Piedra marmol _Piedra marmol _Piedra marmol
Familia y tipo Nivel base Nivel superior Número de contrahuellas real Altura de contrahuella real Profundidad de huella real Escalera moldeada in situ: ES_HA_C13.75/H30_SotanoS1_SotanoP0_Planta024 0,14 m0,30 m Escalera moldeada in situ: ES_HA_C14.29/H30_PlantaPrimeraP0_Planta0P1_Planta128 0,14 m0,30 m Escalera moldeada in situ: ES_HA_C14.29/H30_PlantaSegundaP1_Planta1P2_Planta228 0,14 m0,30 m porfolio de máster bim management oficial autodesk (I) | gonzalo camargo garcía
| interpretación bim de vivienda domus
en monterrey
de revit arquitectura (IV)
aurea

Domus Aurea

Monterrey, México

MAT_Escaleras

NombreMaterial: Área Familia y tipo

armado armado28,03 m²Escalera moldeada in situ: ES_HA_C13.75/H30_Sotano

armado32,38 m²Escalera moldeada in situ: ES_HA_C14.29/H30_PlantaPrimera

armado32,38 m²Escalera moldeada in situ: ES_HA_C14.29/H30_PlantaSegunda 92,80

MED_Ventanas

Camargo García, Gonzalo

MED_Ventanas

m²Escalera moldeada in situ: ES_HA_C13.75/H30_Sotano marmol

m²Escalera moldeada in situ: ES_HA_C14.29/H30_PlantaPrimera

marmol blanco35,70 m²Escalera moldeada in situ: ES_HA_C14.29/H30_PlantaSegunda

102,07 m²

PU_A-Exterior_1H_VI:

PU_A-Exterior_1H_VI:

MED_Puertas

MAT_Ventanas

MED_Puertas

central 12,76 m² Área común del edificio Área - Distribuidor 3 56,10 m² Área común del edificio Área - Cocina 1 16,05 m² Área común del edificio Área - Pasillo 5,63 m² Área común del edificio Área - Cocina 2 5,25 m² Área común del edificio Área - Aseo 5
g g c 13/12/21
m² marmol blanco marmol blanco30,66
blanco35,70
Material: Nombre Material: Área Familia y tipo _Vidrio claro 19,41 m² VE_C_2H_ME: 240x240 _Vidrio claro 68,16 m² VE_C_2H_ME: 405x240 _Vidrio claro 131,14 m²VE_C_4H_ME: 770x240 _Vidrio claro 13,30 m² VE_OA_1H_ME: 100x100 _Vidrio claro 88,90 m² VE_OAF_2H_ME: 240x240 _Vidrio claro: 12 329,83 m² Metal - Strugal - Stainless Steel Metal - Strugal - Stainless Steel0,02 m² VE_C_4H_ME: 770x240 Metal - Strugal - Stainless Steel: 20,02 m² Silicone Rubber - Strugal - Black Silicone Rubber - Strugal - Black0,55 m² VE_C_2H_ME: 240x120 Silicone Rubber - Strugal - Black0,87 m² VE_C_2H_ME: 240x240 Silicone Rubber - Strugal - Black2,17 m² VE_C_2H_ME: 405x240 Silicone Rubber - Strugal - Black5,86 m² VE_C_4H_ME: 770x240 Silicone Rubber - Strugal - Black1,81 m² VE_OA_1H_ME: 100x100 Silicone Rubber - Strugal - Black4,39 m² VE_OAF_2H_ME: 240x240 Silicone Rubber - Strugal - Black: 1215,65 m² MAT_Ventanas Material: Nombre Material: Área Familia y tipo _Aluminio fundido blanco _Aluminio fundido blanco 4,38 m² VE_C_2H_ME: 240x120 _Aluminio fundido blanco 6,51 m² VE_C_2H_ME: 240x240 _Aluminio fundido blanco 16,47 m² VE_C_2H_ME: 405x240 _Aluminio fundido blanco 33,12 m² VE_C_4H_ME: 770x240 _Aluminio fundido blanco 7,28 m² VE_OA_1H_ME: 100x100 _Aluminio fundido blanco 22,35 m² VE_OAF_2H_ME: 240x240 _Aluminio fundido blanco: 1290,11 m² _Metal acero inoxidable _Metal acero inoxidable 0,03 m² VE_C_2H_ME: 240x120 _Metal acero inoxidable 0,03 m² VE_C_2H_ME: 240x240 _Metal acero inoxidable 0,06 m² VE_C_2H_ME: 405x240 _Metal acero inoxidable 0,06 m² VE_C_4H_ME: 770x240 _Metal acero inoxidable 0,04 m² VE_OA_1H_ME: 100x100 _Metal acero inoxidable 0,04 m² VE_OAF_2H_ME: 240x240 _Metal acero inoxidable: 12 0,27 m² _Vidrio claro _Vidrio claro 8,93 m² VE_C_2H_ME: 240x120
Familia y tipo NivelAnchuraAltura VE_OA_1H_ME: 100x100 P1_Planta11,00 m1,00 m VE_OA_1H_ME: 100x100: 3 3,00 m3,00 m VE_OAF_2H_ME: 240x240 P1_Planta12,40 m2,40 m VE_OAF_2H_ME: 240x240 P1_Planta12,40 m2,40 m VE_OAF_2H_ME: 240x240 P1_Planta12,40 m2,40 m VE_OAF_2H_ME: 240x240: 3 7,20 m7,20 m VE_A_1H_ME: VE_H_800x145 P2_Planta28,00 m1,45 m VE_A_1H_ME: VE_H_800x145: 1 8,00 m1,45 m VE_C_4H_ME: 770x240 P2_Planta27,70 m2,40 m VE_C_4H_ME: 770x240: 1 7,70 m2,40 m Total general: 13 46,50 m24,85 m
Familia y tipo NivelAnchuraAltura VE_C_2H_ME: 240x120 P0_Planta02,40 m1,20 m VE_C_2H_ME: 240x120: 1 2,40 m1,20 m VE_C_2H_ME: 240x240 P0_Planta02,40 m2,40 m VE_C_2H_ME: 240x240: 1 2,40 m2,40 m VE_C_2H_ME: 405x240 P0_Planta04,05 m2,40 m VE_C_2H_ME: 405x240 P0_Planta04,05 m2,40 m VE_C_2H_ME: 405x240: 2 8,10 m4,80 m VE_C_4H_ME: 770x240 P0_Planta07,70 m2,40 m VE_C_4H_ME: 770x240: 1 7,70 m2,40 m VE_OA_1H_ME: 100x100 P1_Planta11,00 m1,00 m VE_OA_1H_ME: 100x100 P1_Planta11,00 m1,00 m MAT_Puertas Material: NombreMaterial: Área Familia y tipo Acier inoxydable AISI 304 Acier inoxydable AISI 304 0,02 m²PU_A-Exterior_1H_VI: 100x240 Acier inoxydable AISI 304: 40,02 m² Aluminium Aluminium 0,59 m²PU_A-Exterior_1H_VI: 100x240 Aluminium: 4 0,59 m² Aluminum Aluminum 0,54 m²PU_A-Exterior-EntradaParcela_2H_ME: 198x198 Aluminum: 1 0,54 m² Madera - Castaño Madera - Castaño 1,39 m²PU_A-Exterior-EntradaParcela_2H_ME: 198x198 Madera - Castaño 0,60 m²PU_C-Garaje_1H_ME: 350x198 Madera - Castaño: 3 1,99 m² P Metal P Metal 1,94 m²PU_C-Garaje_1H_ME: 350x198 P Metal: 2 1,94 m² Polantis C Metal Polantis C Metal 0,55 m²PU_C-Garaje_1H_ME: 350x198 Polantis C Metal: 2 0,55 m² Polantis C Onde 1 Polantis C Onde 1 9,03 m²PU_C-Garaje_1H_ME: 350x198 Polantis C Onde 1: 2 9,03 m² Polantis C Onde 2 Polantis C Onde 2 22,53 m²PU_C-Garaje_1H_ME: 350x198 Polantis C Onde 2: 2 22,53 m² Silicone Rubber - Strugal - Black Silicone Rubber - Strugal - Black1,62 m²PU_A-Exterior_2H_ME: 210x240 Silicone Rubber - Strugal - Black1,67 m²PU_A-Exterior_2H_ME: 230x240 Silicone Rubber - Strugal - Black: 23,29 m² Titanium Titanium 0,05 m²PU_A-Exterior-EntradaParcela_2H_ME: 198x198 Titanium: 1 0,05 m² Verre Verre 15,21 m²PU_A-Exterior_1H_VI: 100x240 Verre: 4 15,21 m² Wood (Oak) Wood (Oak) 0,32 m²PU_A-Exterior-EntradaParcela_2H_ME: 198x198 Wood (Oak): 1 0,32 m² Wood - Strugal - Softwood Lumber Wood - Strugal - Softwood Lumber1,51 m²PU_A-Exterior_1H_MA: 100x240 Wood - Strugal - Softwood Lumber16,66 m²PU_A-Interior_1H_MA: 75x240 Wood - Strugal - Softwood Lumber14,83 m²PU_A-Interior_1H_MA: 85x240 Wood - Strugal - Softwood Lumber: 16 33,00 m² MAT_Puertas Material: NombreMaterial: Área Familia y tipo 1 1 8,63 m²PU_C-Garaje_1H_ME: 350x198 1: 2 8,63 m² _Aluminio fundido blanco _Aluminio fundido blanco10,06 m²PU_A-Exterior-EntradaParcela_2H_ME: 198x198 _Aluminio fundido blanco7,57 m²PU_A-Exterior_1H_MA: 100x240 _Aluminio fundido blanco23,34 m²PU_A-Exterior_1H_VI: 100x240 _Aluminio fundido blanco7,90 m²PU_A-Exterior_2H_ME: 210x240 _Aluminio fundido blanco8,18 m²PU_A-Exterior_2H_ME: 230x240 _Aluminio fundido blanco: 857,06 m² _Madera contrachapado blanco _Madera contrachapado blanco52,79 m²PU_A-Interior_1H_MA: 75x240 _Madera contrachapado blanco49,95 m²PU_A-Interior_1H_MA: 85x240 _Madera contrachapado blanco7,89 m²PU_C-Interior_1H_MA: 75x240 _Madera contrachapado blanco24,44 m²PU_C-Interior_1H_MA: 115x240 _Madera contrachapado blanco28,18 m²PU_C-Interior_1H_MA: 150x240 _Madera contrachapado blanco49,57 m²PU_C-Interior_1H_MA: 350x240 _Madera contrachapado blanco: 22212,83 m² _Metal acero inoxidable _Metal acero inoxidable 1,10 m²PU_A-Exterior-EntradaParcela_2H_ME: 198x198 _Metal acero inoxidable 0,05 m²PU_A-Exterior_1H_MA: 100x240 _Metal acero inoxidable 0,50 m²PU_A-Exterior_1H_VI: 100x240 _Metal acero inoxidable 0,03 m²PU_A-Exterior_2H_ME: 210x240 _Metal acero inoxidable 0,03 m²PU_A-Exterior_2H_ME: 230x240 _Metal acero inoxidable 0,25 m²PU_A-Interior_1H_MA: 75x240 _Metal acero inoxidable 0,22 m²PU_A-Interior_1H_MA: 85x240 _Metal acero inoxidable 0,01 m²PU_C-Interior_1H_MA: 75x240 _Metal acero inoxidable 0,03 m²PU_C-Interior_1H_MA: 115x240 _Metal acero inoxidable 0,03 m²PU_C-Interior_1H_MA: 150x240 _Metal acero inoxidable 0,03 m²PU_C-Interior_1H_MA: 350x240 _Metal acero inoxidable: 302,28 m² _Vidrio claro _Vidrio claro 0,23 m²PU_A-Exterior-EntradaParcela_2H_ME: 198x198 _Vidrio claro: 1 0,23 m² _Vidrio traslucido _Vidrio traslucido 15,51 m²PU_A-Exterior_2H_ME: 210x240 _Vidrio traslucido 17,28 m²PU_A-Exterior_2H_ME: 230x240 _Vidrio traslucido: 2 32,80 m² Acero galvanizado Acero galvanizado 8,77 m²PU_C-Interior_1H_MA: 75x240 Acero galvanizado 30,47 m²PU_C-Interior_1H_MA: 115x240 Acero galvanizado 38,88 m²PU_C-Interior_1H_MA: 150x240 Acero galvanizado 86,94 m²PU_C-Interior_1H_MA: 350x240 Acero galvanizado: 7 165,06 m²
Familia y tipo Nivel AnchuraAltura PU_C-Interior_1H_MA: 350x240 P0_Planta03,50 m 2,40 m PU_C-Interior_1H_MA: 350x240: 2 7,00 m 4,80 m PU_H_0H: 0915 x 2134mm P0_Planta00,00 m 0,00 m PU_H_0H: 0915 x 2134mm P0_Planta00,00 m 0,00 m PU_H_0H: 0915 x 2134mm: 2 0,00 m 0,00 m PU_A-Interior_1H_MA: 75x240 P1_Planta10,75 m 2,40 m PU_A-Interior_1H_MA: 75x240 P1_Planta10,75 m 2,40 m PU_A-Interior_1H_MA: 75x240 P1_Planta10,75 m 2,40 m PU_A-Interior_1H_MA: 75x240 P1_Planta10,75 m 2,40 m PU_A-Interior_1H_MA: 75x240 P1_Planta10,75 m 2,40 m PU_A-Interior_1H_MA: 75x240 P1_Planta10,75 m 2,40 m PU_A-Interior_1H_MA: 75x240: 6 4,50 m 14,40 m PU_A-Interior_1H_MA: 85x240 P1_Planta10,85 m 2,40 m PU_A-Interior_1H_MA: 85x240 P1_Planta10,85 m 2,40 m PU_A-Interior_1H_MA: 85x240 P1_Planta10,85 m 2,40 m PU_A-Interior_1H_MA: 85x240: 3 2,55 m 7,20 m PU_C-Interior_1H_MA: 115x240 P1_Planta11,15 m 2,40 m PU_C-Interior_1H_MA: 115x240 P1_Planta11,15 m 2,40 m PU_C-Interior_1H_MA: 115x240: 2 2,30 m 4,80 m PU_A-Exterior_1H_VI: 100x240 P2_Planta21,00 m 2,40 m PU_A-Exterior_1H_VI: 100x240 P2_Planta21,00 m 2,40 m PU_A-Exterior_1H_VI: 100x240: 2 2,00 m 4,80 m PU_A-Exterior_2H_ME: 210x240 P2_Planta22,10 m 2,40 m PU_A-Exterior_2H_ME: 210x240: 1 2,10 m 2,40 m Total general: 34 43,38 m75,54 m
Familia y tipo Nivel AnchuraAltura PU_A-Exterior_1H_VI: 100x240 S1_Sotano1,00 m 2,40 m
100x240 S1_Sotano1,00
m 2,40 m
100x240: 2 2,00 m 4,80 m PU_A-Interior_1H_MA: 75x240 S1_Sotano0,75 m 2,40 m PU_A-Interior_1H_MA: 75x240 S1_Sotano0,75 m 2,40 m PU_A-Interior_1H_MA: 75x240: 2 1,50 m 4,80 m PU_A-Interior_1H_MA: 85x240 S1_Sotano0,85 m 2,40 m PU_A-Interior_1H_MA: 85x240: 1 0,85 m 2,40 m PU_C-Interior_1H_MA: 75x240 S1_Sotano0,75 m 2,40 m PU_C-Interior_1H_MA: 75x240: 1 0,75 m 2,40 m PU_A-Exterior-EntradaParcela_2H_ME: 198x198P0_Planta01,98 m 1,98 m PU_A-Exterior-EntradaParcela_2H_ME: 198x198: 1 1,98 m 1,98 m PU_A-Exterior_1H_MA: 100x240 P0_Planta01,00 m 2,40 m PU_A-Exterior_1H_MA: 100x240: 1 1,00 m 2,40 m PU_A-Exterior_2H_ME: 230x240 P0_Planta02,30 m 2,40 m PU_A-Exterior_2H_ME: 230x240: 1 2,30 m 2,40 m PU_A-Interior_1H_MA: 85x240 P0_Planta00,85 m 2,40 m PU_A-Interior_1H_MA: 85x240 P0_Planta00,85 m 2,40 m PU_A-Interior_1H_MA: 85x240 P0_Planta00,85 m 2,40 m PU_A-Interior_1H_MA: 85x240: 3 2,55 m 7,20 m PU_C-Garaje_1H_ME: 350x198 P0_Planta03,50 m 1,98 m PU_C-Garaje_1H_ME: 350x198 P0_Planta03,50 m 1,98 m PU_C-Garaje_1H_ME: 350x198: 2 7,00 m 3,96 m PU_C-Interior_1H_MA: 150x240 P0_Planta01,50 m 2,40 m PU_C-Interior_1H_MA: 150x240 P0_Planta01,50 m 2,40 m PU_C-Interior_1H_MA: 150x240: 2 3,00 m 4,80 m PU_C-Interior_1H_MA: 350x240 P0_Planta03,50 m 2,40 m 30 | 31 escuela de formación online | editeca

Superficies construidas

SUP_Construidas

Nivel Nombre Área

P0_Planta0Área 283,68 m²

S1_SotanoÁrea 64,93 m²

P1_Planta1Área 267,13 m²

P2_Planta2Área 265,13 m²

módulo de revit arquitectura (IV) | interpretación bim de vivienda domus aurea en monterrey

MED_Muros

de base ÁreaLongitud Altura desconectada AreaBruta

Familia y tipo

Muro básico: MU-Cimentación_HA_30S1_Sotano14,01 m²19,71 m0,70 m13,80 m²

Muro básico: MU-Cimentación_HA_30S1_Sotano7,13 m²7,43 m1,00 m7,43 m²

Muro básico: MU-Cimentación_HA_30S1_Sotano9,14 m²13,05 m0,70 m9,14 m²

Muro básico: MU-Cimentación_HA_30S1_Sotano10,20 m²13,05 m0,80 m10,44 m²

Muro básico: MU-Cimentación_HA_30S1_Sotano9,49 m²13,86 m0,70 m9,70 m²

Muro básico: MU-Cimentación_HA_30S1_Sotano4,26 m²5,62 m0,80 m4,50 m²

Muro básico: MU-Cimentación_HA_30S1_Sotano8,10 m²8,10 m1,00 m8,10 m²

Muro básico: MU-Cimentación_HA_30S1_Sotano7,73 m²7,43 m1,00 m7,43 m²

Muro básico: MU-Cimentación_HA_30S1_Sotano7,43 m²7,43 m1,00 m7,43 m²

Muro básico: MU-Cimentación_HA_30S1_Sotano7,80 m²8,10 m1,00 m8,10 m²

Muro básico: MU-Cimentación_HA_30S1_Sotano3,72 m²5,62 m0,70 m3,93 m²

Muro básico: MU-Cimentación_HA_30S1_Sotano5,39 m²8,00 m0,70 m5,60 m²

Muro básico: MU_MO/HA/MO_25 S1_Sotano23,19 m²7,43 m3,00 m22,29 m²

WIP_AN_S1_PP_Sup.Construida_GCG

Muro básico: MU_MO/HA/MO_30 S1_Sotano8,70 m²2,13 m4,35 m9,24 m² escala

WIP_AN_P1_PP_Sup.Construida_GCG

267,13

MED_Muros

Familia y tipo Restricción de base ÁreaLongitud Altura desconectada AreaBruta

Muro básico: MU_MO/HA/MO_30 S1_Sotano8,70 m²2,13 m4,35 m9,24 m² Muro básico: MU_MO/MO/HA/LV/HA/YE/YE_30 S1_Sotano19,07 m²5,85 m3,00 m17,55 m²

Muro básico: MU_MO/MO/HA/LV/HA/YE/YE_30 S1_Sotano23,03 m²7,43 m3,00 m22,29 m²

Vivienda Domus

Montes Himalaya, Revit Arquitectura (IV). Ejercicio final

Muro básico: MU_MO/MO/HA/LV/HA/YE/YE_30 S1_Sotano18,14 m²6,00 m3,30

escala 1 100

WIP_AN_P0_PP_Sup.Construida_GCG

Muro básico: TA_2N/LR/2N_15 Muro básico: TA_WN+N/LR/2N_15 Muro básico:

Muro básico:

Muro básico:

S1_Sotano: 30 Muro básico:

MU-Cimentación_MO/HA/MO_25

Muro básico:

MU-Cimentación_MO/HA/MO_25

Muro básico:

MU-Cimentación_MO/HA/MO_25

Muro básico:

MU-Cimentación_MO/HA/MO_25

283,68

WIP_AN_P2_PP_Sup.Construida_GCG

265,13 m² Área

64,93 m² Área construida bruta Área
m² Área construida bruta Área
m² Área construida bruta Área
construida
bruta Área DG.A.01.4.04
TA_WN+N/LR/2N_15
TA_WN+N/LR/2N_15
Muro básico:
TA_WN+N/LR/2N_15
TA_WN+N/LR/2N_15
m19,80 m² Muro básico: MU_MO/MO/HA/LV/HA/YE/YE_30 S1_Sotano16,60 m²7,43 m3,00 m22,29 m² Muro básico: TA_2N/LR/2N_15 S1_Sotano2,02 m²0,63 m3,40 m2,14 m² Muro básico: TA_2N/LR/2N_15 S1_Sotano4,81 m²2,37 m3,40 m8,04 m² Muro básico: TA_2N/LR/2N_15 S1_Sotano2,20 m²1,31 m3,40 m4,46 m² Muro básico: TA_2N/LR/2N_15 S1_Sotano10,24 m²4,86 m3,40 m16,53 m² Muro básico: TA_2N/LR/2N_15 S1_Sotano2,77 m²1,28 m2,45 m3,13 m²
Restricción
1 100
escala 1 100
escala 1
100
porfolio de máster bim management oficial autodesk (I) | gonzalo camargo garcía

Domus

MED_Muros

Familia y tipo Restricción de base ÁreaLongitud Altura desconectada AreaBruta

TA_2N/LR/2N_15 S1_Sotano2,17 m²3,49 m3,40 m11,85 m²

TA_WN+N/LR/2N_15

TA_WN+N/LR/2N_15

TA_WN+N/LR/2N_15 S1_Sotano3,62 m²1,36 m3,40 m4,61 m²

TA_WN+N/LR/2N_15

Muro

MED_Muros

Camargo García, Gonzalo

MED_Muros

MU-Cimentación_MO/HA/MO_25 P0_Planta080,80 m²25,25 m3,20 m80,80 m²

MU-Cimentación_MO/HA/MO_25 P0_Planta057,02 m²24,26 m3,20 m77,63 m²

MU-Cimentación_MO/HA/MO_25

MU-Cimentación_MO/HA/MO_25

Muro básico: MU_MO/MO/HA/LV/HA/YE/YE_30

Muro básico:

MU_MO/MO/HA/LV/HA/YE/YE_30

m²13,71 m4,30 m58,95 m²

P0_Planta024,57 m²6,00 m4,20 m25,20 m²

P0_Planta045,54 m²19,71 m4,30 m84,75 m²

Muro básico: MU_YE/YE/HA/LV/HA/YE/YE_30P0_Planta040,06 m²13,05 m4,30 m56,12 m² Muro básico:

MED_Muros

MED_Muros

Muro

Muro básico:

MU_CE/MO/HA/LV/HA/YE/YE_30

Muro básico:

Muro básico: MU_CE/MO/HA/LV/HA/YE/YE_30

Muro

Muro básico:

m²4,02 m1,60 m6,43 m²

m²8,00 m1,60 m12,80 m²

m²19,71 m4,00 m78,84 m²

Muro básico: MU_MO/HA/MO_15 P2_Planta23,66 m²1,52 m2,70 m4,11 m²

Muro básico: MU_MO/HA/MO_15 P2_Planta24,80 m²8,15 m0,95 m7,74 m²

Muro básico: MU_MO/HA/MO_15 P2_Planta23,23 m²1,52 m2,70 m4,11 m²

Muro básico: MU_MO/HA/MO_30 P2_Planta20,81 m²5,46 m0,15 m0,82 m² Muro básico: MU_MO/HA/MO_30

MU_MO/MO/HA/LV/HA/YE/YE_30

Muro básico: MU_YE/YE/HA/LV/HA/YE/YE_30P1_Planta138,97 m²13,05 m4,00 m52,20 m²

Muro básico: MU_YE/YE/HA/LV/HA/YE/YE_30P1_Planta139,54 m²13,05 m4,00 m52,20 m²

Muro básico: TA_2N/LR/2N_15 P1_Planta115,48 m²3,95 m4,00 m15,78 m²

Muro básico: TA_2N/LR/2N_15 P1_Planta114,03 m²3,69 m4,10 m15,14 m²

Muro básico: TA_2N/LR/2N_15 P1_Planta112,10 m²3,65 m4,00 m14,58 m²

Muro básico: TA_2N/LR/2N_15 P1_Planta12,28 m²1,36 m4,10 m5,56 m²

Muro básico: TA_2N/LR/2N_15 P1_Planta116,42 m²5,50 m4,10 m22,55 m²

Muro básico: TA_2N/LR/2N_15 P1_Planta16,82 m²3,53 m4,10 m14,45 m²

Muro básico: TA_2N/LR/2N_15 P1_Planta16,77 m²2,17 m4,10 m8,90 m²

Muro básico: TA_2N/LR/2N_15 P1_Planta18,31 m²3,53 m4,10 m14,45 m²

Muro básico: TA_2N/LR/2N_15 P1_Planta11,85 m²2,17 m4,10 m8,90 m²

Muro básico: TA_2N/LR/2N_15 P1_Planta19,13 m²4,50 m4,10 m18,43 m²

Muro básico: TA_2N/LR/2N_15 P1_Planta11,85 m²2,17 m4,10 m8,90 m²

Muro básico: TA_2N/LR/2N_15 P1_Planta10,89 m²1,35 m0,79 m1,06 m²

Muro básico: TA_WN+N/LR/2N_15

m²4,50 m4,10 m18,43 m²

P2_Planta235,70 m²13,85 m2,55 m35,32 m²

MU_MO/MO/HA/LV/HA/YE/YE_30

Muro básico: MU_MO/MO/HA/LV/HA/YE/YE_30

Muro básico:

P2_Planta213,10 m²5,61 m2,70 m15,15 m²

MU_MO/MO/HA/LV/HA/YE/YE_30 P2_Planta28,16 m²3,28 m2,55 m8,36 m²

Muro básico:

MU_MO/MO/HA/LV/HA/YE/YE_30 P2_Planta2 8,00 m2,40 m19,20 m²

Muro básico: MU_YE/YE/HA/LV/HA/YE/YE_30P2_Planta213,10 m²5,54 m2,55 m14,11 m²

Muro básico: TA_2N/LR/2N_15 P2_Planta29,29 m²3,95 m2,80 m11,05 m²

Muro básico: TA_2N/LR/2N_15 P2_Planta21,90 m²1,35 m1,49 m2,01 m²

Muro básico: TA_WN+N/LR/2N_15 P1_Planta16,81 m²2,63 m4,10 m10,78 m²

Muro básico: TA_WN+N/LR/2N_15 P1_Planta114,30 m²4,50

MAT_Muros

Muro básico: TA_WN+N/LR/2N_15 P2_Planta27,26 m²2,98 m2,80 m8,34 m²

Muro básico: TA_WN+N/LR/2N_15 P2_Planta210,68 m²4,50 m2,80 m12,59 m²

Muro básico: TA_WN+N/LR/N+WN_15P2_Planta21,25 m²0,65 m2,80 m1,82 m²

Muro básico: TA_WN+N/LR/N+WN_15P2_Planta21,84 m²0,81 m2,80 m2,27 m²

Muro básico: TA_WN+N/LR/N+WN_15P2_Planta26,89 m²2,91 m2,80

MAT_Muros

930,07 m²

_Mortero de cemento

_Mortero de cemento 33,68 m²Muro básico: MU_CE/MO/HA/LV/HA/YE/YE_30 33,68 m²

_Mortero impermeable blanco

_Mortero impermeable blanco543,03 m²Muro básico: MU-Cimentación_MO/HA/MO_25

_Mortero impermeable blanco0,32 m²Muro básico: MU_MO+N/LR/2N_15

_Mortero impermeable blanco3,61 m²Muro básico: MU_MO+N/LR/N+WN_15

_Mortero impermeable blanco23,38 m²Muro básico: MU_MO/HA/MO_15

_Mortero impermeable blanco85,03 m²Muro básico: MU_MO/HA/MO_25

_Mortero impermeable blanco49,83 m²Muro básico: MU_MO/HA/MO_30

_Mortero impermeable blanco430,66 m²Muro básico: MU_MO/MO/HA/LV/HA/MO/MO_30

_Mortero impermeable blanco11,48 m²Muro básico: MU_MO/MO/HA/LV/HA/YE/WN_30

_Mortero impermeable blanco1202,53 m²Muro básico: MU_MO/MO/HA/LV/HA/YE/YE_30 2349,89

g g c 13/12/21
LOC_Muros Familia y tipo MED_EdificioMED_Localización Muro básico: MU_MO/MO/HA/LV/HA/MO/MO_30 Edificio1 Vivienda Muro básico: MU_MO/MO/HA/LV/HA/YE/WN_30 Edificio1 Vivienda Muro básico: MU_MO/MO/HA/LV/HA/YE/YE_30 Edificio1 Vivienda Muro básico: MU_YE/YE/HA/LV/HA/YE/YE_30 Edificio1 Vivienda Muro básico: TA_2N/LR/2N_15 Edificio1 Vivienda Muro básico: TA_WN+N/LR/2N_15 Edificio1 Vivienda Muro básico: TA_WN+N/LR/N+WN_15 Edificio1 Vivienda LOC_Muros Familia y tipo MED_EdificioMED_Localización Muro básico: MU-Cimentación_HA_30 Edificio1 Jardin Muro básico: MU-Cimentación_MO/HA/MO_25 Edificio1 Jardin Muro básico: MU_CE/MO/HA/LV/HA/YE/YE_30 Edificio1 Vivienda Muro básico: MU_MO+N/LR/2N_15 Edificio1 Vivienda Muro básico: MU_MO+N/LR/N+WN_15 Edificio1 Vivienda Muro básico: MU_MO/HA/MO_15 Edificio1 Vivienda Muro básico: MU_MO/HA/MO_25 Edificio1 Jardin Muro básico: MU_MO/HA/MO_30 Edificio1 Jardin
Aurea Monterrey, México
Material: Nombre Material: Área Familia y tipo _Lana de vidrio 5,60 m²Muro básico: MU_MO/MO/HA/LV/HA/YE/WN_30 _Lana de vidrio 585,96 m²Muro básico: MU_MO/MO/HA/LV/HA/YE/YE_30
de vidrio 194,54 m²Muro básico: MU_YE/YE/HA/LV/HA/YE/YE_30
_Lana
m² _Panel yeso blanco _Panel yeso blanco 0,66 m²Muro básico: MU_MO+N/LR/2N_15 _Panel yeso blanco 7,08 m²Muro básico: MU_MO+N/LR/N+WN_15 _Panel yeso blanco 728,48 m²Muro básico: TA_2N/LR/2N_15 _Panel yeso blanco 489,80 m² Muro básico: TA_WN+N/LR/2N_15 _Panel yeso blanco 42,70 m²Muro básico: TA_WN+N/LR/N+WN_15 1268,72 m² _Panel yeso blanco húmedo _Panel yeso blanco húmedo 3,47 m²Muro básico: MU_MO+N/LR/N+WN_15 _Panel yeso blanco húmedo 5,43 m²Muro básico: MU_MO/MO/HA/LV/HA/YE/WN_30 _Panel yeso blanco húmedo 163,70 m²Muro básico: TA_WN+N/LR/2N_15 _Panel yeso blanco húmedo 42,70 m²Muro básico: TA_WN+N/LR/N+WN_15 215,30 m²
Material: Nombre Material: Área Familia y tipo _Cerámica piscina azul _Cerámica piscina azul 33,88 m²Muro básico: MU_CE/MO/HA/LV/HA/YE/YE_30 33,88 m² _Enlucido yeso blanco _Enlucido yeso blanco 60,49 m²Muro básico: MU_CE/MO/HA/LV/HA/YE/YE_30 _Enlucido yeso blanco 5,45 m²Muro básico: MU_MO/MO/HA/LV/HA/YE/WN_30 _Enlucido yeso blanco 1135,04 m²Muro básico: MU_MO/MO/HA/LV/HA/YE/YE_30 _Enlucido yeso blanco 777,85 m²Muro básico: MU_YE/YE/HA/LV/HA/YE/YE_30 1978,82 m² _Hormigón armado _Hormigón armado 94,39 m²Muro básico: MU-Cimentación_HA_30 _Hormigón armado 271,52 m²Muro básico: MU-Cimentación_MO/HA/MO_25 _Hormigón armado 66,45 m²Muro básico: MU_CE/MO/HA/LV/HA/YE/YE_30 _Hormigón armado 11,69 m²Muro básico: MU_MO/HA/MO_15 _Hormigón armado 42,52 m²Muro básico: MU_MO/HA/MO_25 _Hormigón armado 24,92 m²Muro básico: MU_MO/HA/MO_30 _Hormigón armado 215,81 m²Muro básico: MU_MO/MO/HA/LV/HA/MO/MO_30 _Hormigón armado 11,28 m²Muro básico: MU_MO/MO/HA/LV/HA/YE/WN_30 _Hormigón armado 1179,41 m²Muro básico: MU_MO/MO/HA/LV/HA/YE/YE_30 _Hormigón armado 389,48 m²Muro básico: MU_YE/YE/HA/LV/HA/YE/YE_30 2307,45 m² _Lana de roca _Lana de roca 187,81 m²Muro básico: TA_2N/LR/2N_15 _Lana de roca 167,76 m²Muro básico: TA_WN+N/LR/2N_15 _Lana de roca 22,10 m²Muro básico: TA_WN+N/LR/N+WN_15 377,67 m² _Lana de vidrio _Lana de vidrio 32,37 m²Muro básico: MU_CE/MO/HA/LV/HA/YE/YE_30 _Lana de vidrio 0,28 m²Muro básico: MU_MO+N/LR/2N_15 _Lana de vidrio 3,58 m²Muro básico: MU_MO+N/LR/N+WN_15 _Lana de vidrio 107,74 m²Muro básico: MU_MO/MO/HA/LV/HA/MO/MO_30
Familia y tipo Restricción de base ÁreaLongitud Altura desconectada AreaBruta Muro básico: TA_WN+N/LR/2N_15 P1_Planta12,31 m²0,80 m4,00 m3,21 m² Muro básico: TA_WN+N/LR/N+WN_15P1_Planta17,07 m²2,34 m4,10 m9,57 m² P1_Planta1: 30 516,44 m²171,03 m111,19 m645,96 m² Muro básico: MU_CE/MO/HA/LV/HA/YE/YE_30 P2_Planta212,32 m²8,00 m1,60 m12,80 m² Muro básico: MU_MO+N/LR/2N_15P2_Planta20,32 m²1,36 m2,40 m3,25 m² Muro básico: MU_MO+N/LR/N+WN_15P2_Planta23,61 m²4,50 m2,50 m11,24
Muro
MU_MO/MO/HA/LV/HA/MO/MO_30
Muro
P2_Planta214,56 m²5,86 m2,55 m14,94 m² Muro básico: MU_MO/MO/HA/LV/HA/MO/MO_30 P2_Planta234,39 m²13,05 m2,70 m35,24 m² Muro básico: MU_MO/MO/HA/LV/HA/YE/WN_30 P2_Planta25,75 m²2,26 m2,55 m5,75 m² Muro básico:
P2_Planta23,00 m²19,71 m0,15 m2,96 m² Muro básico: MU_MO/HA/MO_30 P2_Planta20,80 m²5,46 m0,15 m0,82 m² Muro básico: MU_MO/HA/MO_30 P2_Planta22,91 m²19,71 m0,15 m2,96 m²
básico:
P2_Planta239,81 m²19,71 m2,70 m53,22 m²
básico: MU_MO/MO/HA/LV/HA/MO/MO_30 P2_Planta219,71 m²7,52 m2,70 m20,29 m² Muro básico: MU_MO/MO/HA/LV/HA/MO/MO_30
m8,13 m² P2_Planta2: 27 258,85 m²177,19 m57,69 m318,60 m²
Familia y tipo Restricción de base ÁreaLongitud Altura desconectada AreaBruta
TA_WN+N/LR/2N_15 P0_Planta09,38 m²2,41
Muro básico:
m4,10 m9,86 m²
m²2,63 m4,10 m10,78 m² Muro básico: TA_WN+N/LR/N+WN_15P0_Planta02,40 m²0,81 m4,10 m3,32 m² Muro básico: TA_WN+N/LR/N+WN_15P0_Planta02,67 m²0,65 m4,10 m2,67 m² P0_Planta0: 31 729,35 m²242,76 m119,04 m915,14
básico: TA_WN+N/LR/2N_15 P0_Planta07,14
P1_Planta16,06
MU_CE/MO/HA/LV/HA/YE/YE_30 P1_Planta111,01
m²4,27 m1,60 m6,83 m²
básico: MU_MO/MO/HA/LV/HA/YE/YE_30 P1_Planta180,04 m²19,71 m4,00 m78,84 m² Muro básico: MU_MO/MO/HA/LV/HA/YE/YE_30 P1_Planta144,44 m²13,05 m4,00 m52,20 m²
P1_Planta16,68
Muro
básico: MU_MO/MO/HA/LV/HA/YE/YE_30 P1_Planta167,32
P1_Planta150,00
m²13,05 m4,00 m52,20 m²
P1_Planta114,30
m18,43
m4,10
TA_WN+N/LR/2N_15 P1_Planta17,57 m²2,34 m4,10 m9,57
Muro
TA_WN+N/LR/2N_15 P1_Planta114,43 m²5,50
Muro
TA_WN+N/LR/2N_15 P1_Planta17,07 m²2,34 m4,10 m9,57 m² Muro básico: TA_WN+N/LR/2N_15 P1_Planta12,60 m²0,65 m4,00 m2,60 m²
Muro básico:
básico:
m4,10 m22,55 m²
básico:
Familia y tipo Restricción de base ÁreaLongitud Altura desconectada AreaBruta Muro básico: MU_YE/YE/HA/LV/HA/YE/YE_30P0_Planta022,28 m²8,00 m4,30 m34,40 m² Muro básico: TA_2N/LR/2N_15 P0_Planta015,99 m²3,90 m4,10 m15,99 m² Muro básico: TA_2N/LR/2N_15 P0_Planta01,76 m²0,68 m4,10 m2,77 m² Muro básico: TA_2N/LR/2N_15 P0_Planta01,76 m²0,68 m4,10 m2,77 m² Muro básico: TA_2N/LR/2N_15 P0_Planta02,17 m²0,68 m4,10 m2,77 m² Muro básico: TA_2N/LR/2N_15 P0_Planta01,76 m²0,68 m4,10 m2,77 m² Muro básico: TA_2N/LR/2N_15 P0_Planta07,02 m²2,02 m4,10 m8,30 m² Muro básico: TA_2N/LR/2N_15 P0_Planta02,46 m²1,43 m4,10 m5,86 m² Muro básico: TA_2N/LR/2N_15 P0_Planta011,05 m²8,00 m4,10 m32,80 m² Muro básico: TA_2N/LR/2N_15 P0_Planta010,21 m²8,00 m4,10 m32,80 m² Muro básico: TA_2N/LR/2N_15 P0_Planta00,72 m²1,35 m0,64 m0,86 m² Muro básico: TA_2N/LR/2N_15 P0_Planta01,85 m²1,43 m4,10 m5,86 m² Muro básico: TA_WN+N/LR/2N_15 P0_Planta019,85 m²5,85 m4,10 m23,99 m²
básico: TA_WN+N/LR/2N_15 P0_Planta09,96 m²2,63 m4,10 m10,78 m²
Muro
y tipo Restricción de base ÁreaLongitud Altura desconectada AreaBruta
Familia
básico: MU-Cimentación_MO/HA/MO_25 P0_Planta036,22 m²11,60 m3,20 m37,10 m²
básico: MU_MO/HA/MO_25 P0_Planta019,33 m²7,73 m2,50 m19,33 m² Muro básico: MU_MO/MO/HA/LV/HA/YE/YE_30 P0_Planta044,84 m²13,05 m4,30 m56,12 m² Muro básico: MU_MO/MO/HA/LV/HA/YE/YE_30 P0_Planta054,50 m²13,05 m4,30 m56,12 m² Muro básico: MU_MO/MO/HA/LV/HA/YE/YE_30 P0_Planta057,16
Muro
MU_YE/YE/HA/LV/HA/YE/YE_30P0_Planta041,44 m²13,05 m4,30 m56,12 m²
S1_Sotano10,11
S1_Sotano4,12 m²1,87 m3,40 m6,37 m²
m²3,49 m3,40 m11,85 m² TA_WN+N/LR/2N_15
S1_Sotano11,78 m²4,86
m3,40 m16,53 m²
S1_Sotano4,63 m²2,30 m3,40 m7,80 m² 270,27 m²183,59 m70,55 m311,61 m²
P0_Planta019,04
m²6,23 m3,20 m19,92 m²
32 | 33 escuela de formación online | editeca
P0_Planta078,43 m²24,26 m3,20 m77,63 m²

Secciones de arquitectura

módulo de revit arquitectura (IV) | interpretación bim de vivienda domus aurea en monterrey

CON_VistasPlanos

WIP_AN_AL_Sur_GCG

Vivienda Domus

Montes Himalaya, Revit Arquitectura (IV). Ejercicio final

PUB_AN_3D_FachadaTrasera_GCG

WIP_AN_SEC.1_GCG

y3 y4 y5 x5 x4 x3 x2 y1 y7 y2 y6 x1 x6 1,00 m a1 = 1,50 m a2 = 1,50 m a2 = 1,50 m a1 = 1,50 m 1,00 m a4 = 8,00 m a3 = 6,00 m EQ EQ a5 = 3,70 m 0,00 m P0_Planta0 4,00 mP1_Planta1 8,00 mP2_Planta2 10,70 m PC_PlantaCubierta -3,30 m S1_Sotano DG.A.02.1.05
_Grupo_Subgrupo Nombre de vista Familia y tipo Nivel asociado Plantilla de vista Fase Número de plano Nombre de plano 01.WIP_AAGCGWIP_AA_AL_Este_GCG Alzado: Alzado 1 Ninguno Actual 01.WIP_AAGCGWIP_AA_AL_Oeste_GCG Alzado: Alzado 1 Ninguno Actual 01.WIP_AAGCGWIP_AA_AL_Norte_GCG Alzado: Alzado 1 Ninguno Actual 01.WIP_AAGCGWIP_AA_3D_GCG Vista 3D: Vista 3D Ninguno Actual 01.WIP_AAGCGWIP_AA_P0_PP_GCG Plano de planta: Plano de planta P0_Planta0 GCG_ARQUITECTURA-1 Actual 01.WIP_AAGCGWIP_AA_AL_Sur_GCG Alzado: Alzado 1 Ninguno Actual 01.WIP_AAGCGWIP_AA_P1_PP_GCG Plano de planta: Plano de planta P1_Planta1 GCG_ARQUITECTURA-1 Actual 01.WIP_AAGCGWIP_AA_P1_PT_GCG Plano de techo: Plano del techo P1_Planta1 Ninguno Actual 01.WIP_AAGCGWIP_AA_P1_PE_GCG Plano estructural: Plano estructural P1_Planta1 Ninguno Actual 01.WIP_AAGCGWIP_AA_P2_PP_GCG Plano de planta: Plano de planta P2_Planta2 GCG_ARQUITECTURA-1 Actual 01.WIP_AAGCGWIP_AA_P2_PT_GCG Plano de techo: Plano del techo P2_Planta2 Ninguno Actual 01.WIP_AAGCGWIP_AA_P2_PE_GCG Plano estructural: Plano estructural P2_Planta2 Ninguno Actual 01.WIP_AAGCGWIP_AA_PC_PP_GCG Plano de planta: Plano de planta PC_PlantaCubiertaGCG_ARQUITECTURA-1 Actual 01.WIP_AAGCGWIP_AA_PC_PT_GCG Plano de techo: Plano del techo PC_PlantaCubiertaNinguno Actual 01.WIP_AAGCGWIP_AA_PC_PE_GCG Plano estructural: Plano estructural PC_PlantaCubiertaNinguno Actual 01.WIP_AAGCGWIP_AA_S1_PP_GCG Plano de planta: Plano de planta S1_Sotano GCG_ARQUITECTURA-1 Actual 01.WIP_AAGCGWIP_AA_S1_PT_GCG Plano de techo: Plano del techo S1_Sotano Ninguno Actual 01.WIP_AAGCGWIP_AA_S1_PE_GCG Plano estructural: Plano estructural S1_Sotano Ninguno Actual 02.WIP_ADGCGWIP_AD_P0_PP_GCG Plano de planta: Plano de planta P0_Planta0 GCG_ARQUITECTURA-1 Derribo 02.WIP_ADGCGWIP_AD_P1_PP_GCG Plano de planta: Plano de planta P1_Planta1 GCG_ARQUITECTURA-1 Derribo 02.WIP_ADGCGWIP_AD_P2_PP_GCG Plano de planta: Plano de planta P2_Planta2 GCG_ARQUITECTURA-1 Derribo 02.WIP_ADGCGWIP_AD_PC_PP_GCG Plano de planta: Plano de planta PC_PlantaCubiertaGCG_ARQUITECTURA-1 Derribo 02.WIP_ADGCGWIP_AD_S1_PP_GCG Plano de planta: Plano de planta S1_Sotano GCG_ARQUITECTURA-1 Derribo 02.WIP_ADGCGWIP_AD_3D_GCG Vista 3D: Vista 3D Ninguno Derribo 02.WIP_ADGCGWIP_AD_AL_Este_GCG Alzado: Alzado 1 Ninguno Derribo 02.WIP_ADGCGWIP_AD_AL_Norte_GCG Alzado: Alzado 1 Ninguno Derribo 02.WIP_ADGCGWIP_AD_AL_Oeste_GCG Alzado: Alzado 1 Ninguno Derribo 02.WIP_ADGCGWIP_AD_AL_Sur_GCG Alzado: Alzado 1 Ninguno Derribo 03.WIP_ANGCGWIP_AN_P0_PP_GCG Plano de planta: Plano de planta P0_Planta0 GCG_ARQUITECTURA-1 Nueva ConstrucciónDG.A.01.1.01Plantas de arquitectura escala 1 50 WIP_AN_P0_PP_ParámetrosMobiliarioEstanciaCentral_GCG escala 1 100
escala 1 100
porfolio de máster bim management oficial autodesk (I) | gonzalo camargo garcía

Domus

CON_VistasPlanos

PUB_AN_3D_Terraza_GCG

WIP_AN_SEC.2_GCG

Camargo

g g c 13/12/21
Gonzalo
García,
Aurea Monterrey, México
_Grupo_Subgrupo Nombre de vista Familia y tipo Nivel asociado Plantilla de vista Fase Número de plano Nombre de plano 03.WIP_ANGCGWIP_AN_P1_PP_GCG Plano de planta: Plano de planta P1_Planta1 GCG_ARQUITECTURA-1 Nueva ConstrucciónDG.A.01.1.01Plantas de arquitectura 03.WIP_ANGCGWIP_AN_P2_PP_GCG Plano de planta: Plano de planta P2_Planta2 GCG_ARQUITECTURA-1 Nueva ConstrucciónDG.A.01.1.01Plantas de arquitectura 03.WIP_ANGCGWIP_AN_PC_PP_GCG Plano de planta: Plano de planta PC_PlantaCubiertaGCG_ARQUITECTURA-1 Nueva Construcción 03.WIP_ANGCGWIP_AN_S1_PP_GCG Plano de planta: Plano de planta S1_Sotano GCG_ARQUITECTURA-1 Nueva ConstrucciónDG.A.01.1.01Plantas de arquitectura 03.WIP_ANGCGWIP_AN_AL_Este_GCG Alzado: Alzado 1 Ninguno Nueva Construcción 03.WIP_ANGCGWIP_AN_AL_Norte_GCG Alzado: Alzado 1 Ninguno Nueva Construcción 03.WIP_ANGCGWIP_AN_AL_Oeste_GCG Alzado: Alzado 1 Ninguno Nueva Construcción 03.WIP_ANGCGWIP_AN_AL_Sur_GCG Alzado: Alzado 1 GCG_ALZADO-1 Nueva ConstrucciónDG.A.02.1.05Secciones de arquitectura 03.WIP_ANGCGWIP_AN_SEC.2_GCG Sección: Sección 1 GCG_SECCIÓN-1 Nueva ConstrucciónDG.A.02.1.05Secciones de arquitectura 03.WIP_ANGCGWIP_AN_SEC.1_GCG Sección: Sección 1 GCG_SECCIÓN-1 Nueva ConstrucciónDG.A.02.1.05Secciones de arquitectura 03.WIP_ANGCGWIP_AN_P1_PP_Habitaciones_GCG Plano de planta: Plano de planta P1_Planta1 GCG_ARQUITECTURA-1 Nueva ConstrucciónDG.A.01.2.02Habitaciones 03.WIP_ANGCGWIP_AN_P2_PP_Habitaciones_GCG Plano de planta: Plano de planta P2_Planta2 GCG_ARQUITECTURA-1 Nueva ConstrucciónDG.A.01.2.02Habitaciones 03.WIP_ANGCGWIP_AN_S1_PP_Habitaciones_GCG Plano de planta: Plano de planta S1_Sotano GCG_ARQUITECTURA-1 Nueva ConstrucciónDG.A.01.2.02Habitaciones 03.WIP_ANGCGWIP_AN_P0_PP_Habitaciones_GCG Plano de planta: Plano de planta P0_Planta0 GCG_ARQUITECTURA-1 Nueva ConstrucciónDG.A.01.2.02Habitaciones 03.WIP_ANGCGWIP_AN_P0_PP_Sup.Construida_GCG Plano de área: Gross Building P0_Planta0 GCG_SUPERFICIES-1 Nueva ConstrucciónDG.A.01.4.04Superficies construidas 03.WIP_ANGCGWIP_AN_S1_PP_Sup.Construida_GCG Plano de área: Gross Building S1_Sotano GCG_SUPERFICIES-1 Nueva ConstrucciónDG.A.01.4.04Superficies construidas 03.WIP_ANGCGWIP_AN_P1_PP_Sup.Construida_GCG Plano de área: Gross Building P1_Planta1 GCG_SUPERFICIES-1 Nueva ConstrucciónDG.A.01.4.04Superficies construidas 03.WIP_ANGCGWIP_AN_P2_PP_Sup.Construida_GCG Plano de área: Gross Building P2_Planta2 GCG_SUPERFICIES-1 Nueva ConstrucciónDG.A.01.4.04Superficies construidas 03.WIP_ANGCGWIP_AN_P0_PP_Sup.Util_GCG Plano de área: Rentable P0_Planta0 GCG_SUPERFICIES-1 Nueva ConstrucciónDG.A.01.3.03Superficies útiles 03.WIP_ANGCGWIP_AN_P1_PP_Sup.Util_GCG Plano de área: Rentable P1_Planta1 GCG_SUPERFICIES-1 Nueva ConstrucciónDG.A.01.3.03Superficies útiles 03.WIP_ANGCGWIP_AN_S1_PP_Sup.Util_GCG Plano de área: Rentable S1_Sotano GCG_SUPERFICIES-1 Nueva ConstrucciónDG.A.01.3.03Superficies útiles 03.WIP_ANGCGWIP_AN_P2_PP_Sup.Util_GCG Plano de área: Rentable P2_Planta2 GCG_SUPERFICIES-1 Nueva ConstrucciónDG.A.01.3.03Superficies útiles 03.WIP_ANGCGWIP_AN_3D-Explotado_GCG Vista 3D: Vista 3D GCG_3D-1 Derribo DG.A.01.1.01Plantas de arquitectura 03.WIP_ANGCGWIP_AN_3D_GCG Vista 3D: Vista 3D Ninguno Derribo 03.WIP_ANGCGWIP_AN_P0_PP_FasesActualDemolido_GCG Plano de planta: Plano de planta P0_Planta0 GCG_ARQUITECTURA-1 Derribo DG.A.01.1.01 Plantas de arquitectura 03.WIP_ANGCGWIP_AN_P0_PP_ParámetrosMobiliarioEstanciaCentral_GCGPlano de planta: Plano de planta P0_Planta0 GCG_ARQUITECTURA-1 Nueva ConstrucciónDG.A.02.1.05Secciones de arquitectura 04.WIP_PUBGCGPUB_AN_3D_FachadaTrasera_GCG Vista 3D: Vista 3D GCG_RENDERSLINEA-1 Nueva Construcción 04.WIP_PUBGCGPUB_AN_3D_Terraza_GCG Vista 3D: Vista 3D GCG_RENDERSLINEA-1 Nueva Construcción escala 1 : 100
34 | 35 escuela de formación online | editeca

# Mesa parametrizada

01

8

Silla_3D

Tipos de familias:

· Silla_1 persona: 40 cm (Ancho)

Silla_2 personas: 80 cm (Ancho)

· Silla_3 personas: 120 cm (Ancho)

Parámetros de tipo:

· Alto_Respaldo · Alto_Asiento · Acho_Asiento

Parámetros de ejemplar:

· Brazos

· Estructura (Respaldo) Tablero (Respaldo)

# Silla parametrizada

20 50 50 20 140 2 1 3 3 43 25 27 27 60 70 20 20 50 50 140 625 24 2 5 61 5 1 420 2055 1 61 1 5 27 12 13 3 4 13 102 1 20 20 1 41 27 1 : 10 01 Mesa_Planta 1 1 : 10 01 Mesa_Sur 3 1 : 10 01 Mesa_Oeste 4 1 : 10 01 Silla_Planta 6 1 : 10 01 Silla_Oeste 7
1 : 10 01 Silla_Sur 5
de revit familias (I) | mobiliario paramétrico porfolio de máster bim management oficial autodesk (I) | gonzalo camargo garcía
módulo
Plano Nº plano Situación Proyecto Nº proyecto Revisión Escala La propiedad El/Los arquitecto/s Fecha Como Mobiliario 01 Mobiliario 01 Madrid, 03/08/21 Miguel nºfecha 01 Mesa_3D 2 Tipos de familias: · Mesa_2 sillas: 140x60x70 cm (LxAxH) · Mesa_4 sillas: 140x120x70 cm (LxAxH) · Mesa_6 sillas: 140x180x70 cm (LxAxH) Parámetros de tipo: · Largo · Ancho Alto Parámetros de ejemplar: Alfombrilla · Florero · Flores 1 : 1 01 Composición_1 9 1 : 1 01 Composición_3 10 1 : 1 01 Composición_2 11 36 | 37 escuela de formación online | editeca
módulo de revit familias (II) | mobiliario paramétrico porfolio de máster bim management oficial autodesk (I) | gonzalo camargo garcía
38 | 39 escuela de formación online | editeca
módulo de revit familias (II) | mobiliario paramétrico porfolio de máster bim management oficial autodesk (I) | gonzalo camargo garcía
40 | 41 escuela de formación online | editeca
módulo de revit familias (II) | mobiliario paramétrico porfolio de máster bim management oficial autodesk (I) | gonzalo camargo garcía
42 | 43 escuela de formación online | editeca
módulo de revit familias (II) | mobiliario paramétrico porfolio de máster bim management oficial autodesk (I) | gonzalo camargo garcía
44 | 45 escuela de formación online | editeca
módulo de revit familias (III) | mobiliario paramétrico porfolio de máster bim management oficial autodesk (I) | gonzalo camargo garcía
46 | 47 escuela de formación online | editeca
módulo de revit interiorismo | interpretación bim de interiorismo de la vivienda domus aurea en monterrey porfolio de máster bim management oficial autodesk (I) | gonzalo camargo garcía
48 | 49 escuela de formación online | editeca
+34 61682 3090 linkedin.com/in/gonzalo-camargo-garcia gonzalo.camargo.arquitectura@outlook.com

Turn static files into dynamic content formats.

Create a flipbook
Issuu converts static files into: digital portfolios, online yearbooks, online catalogs, digital photo albums and more. Sign up and create your flipbook.