Porfolio de Arquitectura | Gonzalo Camargo García

Page 1

mar c go a porfolio de arquitectura gonzalo camargo garcía

proyecto fin de máster en arquitectura | centro-rescate de miradas-históricas

centro-rescate de miradas-históricas

propuesta de pabellón cultural en santiponce, sevilla

El proyecto se localiza en el área metropolitana de Sevilla, al noroeste del municipio de Santiponce. Al encontrarse en un entorno muy naturalizado su principal objetivo consiste en salvaguardar la esencia del lugar. Para ello, resulta imprescindible conservar la continuidad de corredores verdes y trazos históricos de acueductos y murallas, los cuales, acaban determinando la forma del proyecto.

El pabellón propuesto no presenta ninguna intención de ser figurativo, sino más bien ser un elemento mediador entre la gente, el sitio, sus vivencias y sus tiempos. Es diseñado pensando en su deterioro, con la intención de permitir que la inevitabilidad del medio y del tiempo desempeñen un papel positivo. Se trata de un dispositivo que da servicio a una ruina romana, el castellum aquae, un depósito inactivo de aguas. En definitiva, el nuevo edificio intenta no perder la identidad del territorio y la realidad compleja de la que parte, consiguiendo además una autonomía propia.

la algaba

itálica

santiponce vega del guadalquivir

termas mayores

anfiteatro

conjunto arqueológico de itálica

teatro

termas menores

valencina de la concepción

cja. de guzmán

gines camas

contexto territorial autocad

vista exterior del pabellón revit + lumion pro + photoshop

sevilla

monasterio san isidoro del campo

autocad emplazamiento

porfolio de arquitectura | gonzalo camargo garcía 01

castellumaquae

trazodemuralla

trazodeacueducto

1.preexistencias+trazoshistóricos

castellumaquae

vegetación

2.espacios-resultado+usos

puentedelosvinateros+lagunadeitálica

3.recorridos+miradas

cerrosdelaljarafe

recep.+cafe. invest.

expo.

parquearq.deitálica

4.adecuación

centro-rescate de miradas-históricas | proyecto fin de máster en arquitectura
+ revit propuesta de pabellón cultural
autocad
02 | 03

proyecto fin de máster en arquitectura | centro-rescate de miradas-históricas

porfolio de arquitectura | gonzalo camargo garcía
planta baja + fachadas sur/este autocad
centro-rescate
| proyecto fin de máster en arquitectura 04 | 05
de miradas-históricas
autocad planta baja + fachada este

de máster en arquitectura | centro-rescate de miradas-históricas

porfolio de arquitectura | gonzalo camargo garcía
planta primera + secciones transversal/longitudinal autocad
centro-rescate de miradas-históricas | proyecto fin de máster en arquitectura 06 | 07
autocad planta primera + sección longitudinal

proyecto fin de máster en arquitectura | centro-rescate de miradas-históricas

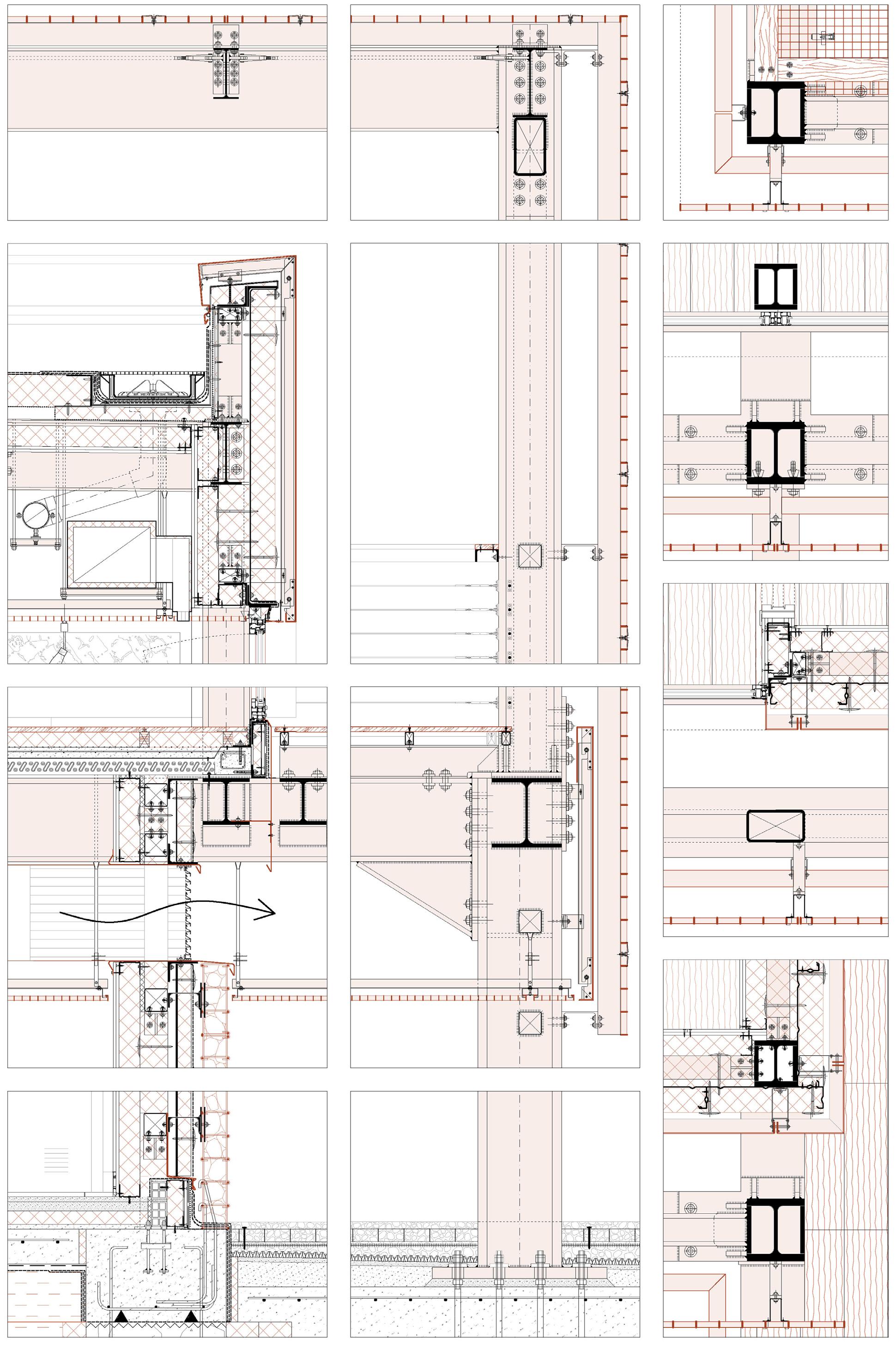
3d constructivo autocad + revit

panel de rejilla metálica electrofundida

viga de perfil ipe metálico

arriostramiento metálico

bandeja de panel composite

suelo de emparrillado metálico

soporte estructural de perfil hem metálico con platabandas

subestructura de perfil omega metálico

viga de celosía de perfil rhs metálico

cubierta ligera de sistema deck

entarimado exterior de madera

forjado de chapa colaborante

falso techo registrable de paneles de rejilla metálica

vista exterior de cafetería revit + lumion pro + photoshop

porfolio de arquitectura | gonzalo camargo garcía
|
08 | 09 revit + lumion pro + photoshop vista interior de sala expositiva autocad + revit sección constructiva tipo
centro-rescate de miradas-históricas
proyecto fin de máster en arquitectura
de máster en arquitectura | centro-rescate de miradas-históricas porfolio de arquitectura | gonzalo camargo garcía
proyecto fin

plantillas fablab + maqueta física autocad + cortadora láser + photoshop

un parásito en el último espacio 02

propuesta de vivienda-parásita ubicada en cualquier azotea

La nueva vivienda es flexible y susceptible de insertarse en estructuras diversas. Su especificidad y adaptabilidad la convierten en una materia al mismo tiempo sensible y dúctil para su adaptación a innumerables azoteas de edificios.

Sus principales objetivos son: la relación comunidad/privacidad, la flexibilidad de sus espacios y la economía de medios. La dimensión más importante del proyecto es luz natural, la forma en la que esta se refleja en el mismo y la manera de encerrarse en el interior de cada habitación. Son los espacios los que adquieren autonomía y muchos de ellos no tienen misión específica, o lo que es lo mismo, contienen cualquier actividad que es compatible con su tamaño, forma o iluminación.

Cabe destacar que parte de la fachada-parásita ayuda al edificio preexistente actuando de protector solar, simulando así una interacción biológica efectiva entre dos “organismos arquitectónicos”.

|
académico 10 | 11
parasitar el último espacio
proyecto

concurso cátedra metropol | el camino del vino

03

el camino del vino

propuesta de factoría vitivinícola en chiclana de la frontera, cádiz

El territorio presenta una gran herida que discurre entre dos realidades, por un lado, un polígono industrial, y, por otro lado, una aglomeración de viviendas irregulares desconectadas del núcleo urbano.

La nueva propuesta pretende sanar la herida mediante diversos elementos. El primero consiste en un elemento grapa que conecta las realidades anteriores, con el que se remodela la carretera y se levanta un pasaje verde revitalizador. El segundo elemento se trata de un hilo peatonal que recorre perpendicularmente el proyecto unificando caminos y construcciones preexistentes. Como guía de este último elemento interviene un conjunto de emparrados elevados de uvas con el que se consigue orientar a los trabajadores y visitantes del lugar.

Para colmatar el espacio y generar productividad se incorporan diversos equipamientos, tratándose de áreas de oportunidad económica y social. Es muy importante destacar el uso industrial relacionado con el vino, con el cual, interviene la Factoría Vitivinícola.

3d general autocad + revit + illustrator + photoshop

intercambiador

edificios industriales reutilizados

autocad + photoshop + illustrator localización

elemento grapa hilo peatonal

bodega

laguna de la paja

zona de crianza

nave experimental

dirección y factoría vitivinícola

i+d+i mercado

laboratorios

vista exterior de la factoría vitivinícula revit + photoshop
porfolio de arquitectura | gonzalo camargo garcía

localización autocad + photoshop

módulo apoyo escolar

módulo polivante

almacén aseos

módulo apoyo escolar

módulo talleres

acceso a pasarela peatonal

punto de continuidad

propuesta de escuela-taller en el barrio de su eminencia, sevilla

El proyecto dota a la ciudad de una infraestructura de comunicación colocada entre dos barrios interrumpidos por una vía rodada de grandes dimensiones.

La propuesta consiste en una escuela-taller asociada a una pasarela peatonal con las que se consigue conectar ambos barrios, facilitando así la reactivación comercial y formativa de los ciudadanos. El edificio nace a partir de una poderosa modulación, la cual, se inicia en la estructura, compone el suelo y acota las carpinterías. Espacialmente se basa en un conjunto de cajas separadas que siguen un orden rítmico consiguiendo adaptarse a la trama de la ciudad. Estas cajas se inyectan en una espina dorsal de grandes dimensiones generando un potente lugar de paso. A modo de escudo, las fachadas más cortas de las cajas son opacas, acentuando así la transversalidad de la luz natural y de las miradas entre las diversas aulas.

Es importante destacar el aprovechamiento de un conjunto de vías de tren antiguas para instalar pequeños puestos móviles que cumplen la función de mercadillo temporal.

autocad + photoshop planta general

módulo cafetería

acceso a salón de actos administración

módulo biblioteca

módulo profesorado mercadillo temporal

vía rodada

maqueta física + photoshop vista exterior de la escuela-taller

punto
continuidad | proyecto académico
de
12 | 13
04

proyecto académico | forma auténtica natural habitada

forma auténtica natural habitada 05

propuesta urbana y residencial en el palmar, cádiz

El proyecto se puede localizar en numerosos puntos de El Palmar, siempre y cuando se desarrolle en los ejes peatonales entre padrones locales. La idea principal se basa en una “estructura vegetal” compuesta principalmente por dos elementos arquitectónicos base: tallos y hojas.

Los tallos son el esqueleto del proyecto, fundamentados en agarrarse en las raíces de la vía litoral. Estos crecen hacia el interior del territorio mediante cuatro líneas de recorrido diferenciadas por su intencionalidad, direccionalidad y materialidad.

Las hojas consisten en el levantamiento de cuatro escenarios: [1] granja experimental, [2] viviendas, [3] equipamientos y [4] campos de cultivo. Con estas construcciones se produce un ejercicio de auto-semejanza fractal, donde cada pieza trata de ser idéntica a las demás e idéntica al espacio global al que pertenece. Los paquetes de viviendas, son edificaciones no terminadas, las cuales, consisten en habitaciones y jardines ensamblados no de manera lineal, lo que genera espacios con una fuerte relación comunitaria.

tallo estructurador hojas de granja experimental

tallo recolector hojas de viviendas

tallo acolche hojas de cultivos

hojas de equipamientos

resultado

autocad + photochop localización + ideario + propuesta urbana

porfolio de arquitectura | gonzalo camargo garcía

auténtica

autocad + photoshop propuesta paquete de viviendas + propuesta zoom de vivienda

forma
natural
|
académico
habitada
proyecto
14 | 15 entrada principal a vivienda 1 taquillas públicas 2 buzón 3 mueble equipado abatible 4 cama abatible 5 almacenamiento 6 aljibe de agua pluvial 7 ducha 8 lavabo 9 inodoro 10 zona de estar 11 entrada trasera a vivienda 12 porche 13 patio exterior privado 14 cultivos 15 zona de estudio 16 almacenamiento 17

proyecto académico | reactivando lo público desde lo privado

06

reactivando lo público desde lo privado

propuesta residencial en el barrio de su eminencia, sevilla

El proyecto trata la reactivación de un barrio residencial muy degradado tanto a nivel social como urbanístico. Con este proyecto se plantea la posibilidad de recuperar una atmósfera más agradable y humana en la ciudad.

Se proyectan cinco tipos de viviendas entrelazadas entre sí mediante diferentes módulos habitacionales que dan hogar a una comunidad híbrida. La planta baja acoge usos públicos, resuelta mediante la aparición de diversas plazas abiertas, talleres, zonas de estudio, cafeterías y huertos tanto públicos como privados.

Para reactivar el barrio en altura se apuesta por el levantamiento de siete finas torres, proporcionando: acceso inmediato a las viviendas en altura, depuración de la escala arquitectónica, generación de hitos visuales y diálogo con la ciudad.

maqueta artesanal + photoshop vista general superior

café

taller

taller estudio estudio

plaza este

café estudio estudio

plaza norte plaza oeste

planta baja autocad + photoshop

viviendas movilidad reducida

vista general exterior oeste maqueta física + photoshop

viviendas movilidad reducida

plaza sur huertos

porfolio de arquitectura | gonzalo camargo garcía

vivienda tercera edad

torre mirador

autocad + photoshop zoom de planta primera este

vivienda estudiantes

vivienda unifamiliar

autocad + photoshop zoom de planta segunda este maqueta física + photoshop vista general exterior sur

desde lo privado | proyecto académico 16 | 17
reactivando lo público

concurso europan 16 | shape of water

shape of water 07

propuesta urbana y residencial en alzira, valencia

Alzira posee dos fuertes entidades territoriales, el agua y la orografía. La nueva intervención trata de vincular el agua y el territorio para devolver a los alzireños parte del patrimonio que les pertenece. El principal reto consiste en recuperar los rastros del agua de riego y los cultivos, los cuales, modelaron la imagen de la localidad.

Se proyecta un camino del agua donde emergen los equipamientos que permiten reconocer el lugar. A través de miradores a modo de torres vigía se unen lugares importantes como el hospital y la zona urbana, reforzados mediante la incorporación de nuevas plazas, una zona deportiva, un parque de bomberos y diversos edificios rehabilitados.

Las nuevas viviendas surgen a partir de la traza del agua que conecta el territorio, presentándose como bloques residenciales dispuestos a modo de matriz orgánica. Las tipologías de estas viviendas nacen debido al solapamiento de diferentes estancias en torno a un núcleo húmedo, pudiendo ser algunas de estas estancias configurables.

alzira

río júcar

localización autocad + photoshop mirador 2 + camino del agua revit + lumion pro + photoshop

hospital mirador 5 mirador 4

camino del agua

mirador 3

camino del agua

mirador 2

zona deportiva

cultivos recuperados

protección civil

mirador 1 helipuerto

camino del agua bomberos

piscina

viviendas

camino del agua

autocad + photoshop propuesta de barrio revit + lumion pro + photoshop mirador 2 + plaza + camino del agua

porfolio de arquitectura | gonzalo camargo garcía

viv.1 hab.

viv.3 hab.

viv.2 hab.

viv.2 hab.

Los tabiques duros protegen la zona húmeda y los tabiques blandos permiten modificar los espacios en el futuro. Ambos respetan la ventilación cruzada de la casa.

Los sistemas de protección “sola” permiten ampliar el espacio desde el exterior hacia el interior, pasando el filtro de vegetación y reduciendo la temperatura ambiente.

revit + autocad + photoshop planta + sección + 3d de vivienda 2 hab.

La zona húmeda de la casa se adosa a la galería de paso, permitiendo ordenar las instalaciones y los usos de la vivienda.

La terraza se concibe como una estancia más de la casa, la cual, se extiende desde el exterior hacia el interior.

revit + autocad + photoshop sección fugada interior de vivienda

revit + lumion pro + photoshop bloques residenciales + camino del agua

shape of water | concurso europan 16
18 | 19

proyecto académico | apartamentos okurayama de sanaa

apartamentos okurayama de sanaa

interpretación bim y vídeo de un proyecto residencial en yokohama, japón

«Jardines y habitaciones se entremezclan confortablemente. [...] La atmósfera de las unidades de habitación es abierta y luminosa, conectada con las áreas verdes de alrededor, lo que amplía el campo de acción de los residentes [...]». SANAA (2010). Kazuyo Sejima y Ryue Nishizawa 2008-2011: Arquitectura inorgánica. El croquis Nº155.

08
vista exterior de apartamentos + vídeo de recorrido virtual animado revit + lumion pro + photoshop 3d seccionado + 3d general revit + photoshop revit despiece 3d
porfolio de arquitectura | gonzalo camargo garcía ±0,00 m +2,60
+5,30
+7,70
acceso al recorrido virtual
m
m
m

sala de estar

planta baja revit

sala de estar

patio norte hall baño

baño

hall

sala de estar

patio oeste

baño

hall hall

patio este sala de estar

patio sur

fachada sur revit

dormitorio

dormitorio terraza

dormitorio

baño baño baño

hall terraza

dormitorio dormitorio

baño baño baño

dormitorio

revit planta primera

revit seccion transversal

revit + lumion pro + photoshop vista interior de apartamento

apartamentos
| proyecto académico 20 | 21
okurayama de sanaa

proyecto académico | biblioteca universitaria de siza vieira

biblioteca universitaria de siza vieira

interpretación bim de un fragmento estructural de una biblioteca en aveiro, portugal

«Se trata de un edificio alargado apoyado longitudinalmente en tres crujías de igual anchura, de las cuales los dos laterales sufren alteraciones en los espacios de borde, mientras que la central está perforada por espacios de distinta altura». SIZA, A. (1993). Álvaro Siza 1988-1993: Monografías de arquitectura y vivienda. AV Monografías Nº40.

diseño de estructura + planta segunda de estructura revit

armadura escalera revit

armadura vigas + armadura pilar revit

armadura zapata revit revit despiece de estructura

09
porfolio de arquitectura | gonzalo camargo garcía
+0,15 m +3,65 m +7,15 m +10,65 m +14,65 m -1,50 m

edifico base

tubería de rociador para protección contra incendios tubería de suministro calefacción sistema hidrónico tubería de retorno calefacción sistema hidrónico

tubería de saneamiento tubería de agua caliente sanitaria tubería de agua fría sanitaria

conducto de aire viciado conducto de aire retorno conducto de aire suministro

luminaria interior empotrada en techo

luminaria exterior empotrada en pared

rociador

radiador

vivienda domus aurea de campo baeza | proyecto académico

vivienda domus aurea de campo baeza 10

interpretación bim de las instalaciones de un proyecto residencial en monterrey, méxico

«[...] la casa se divida en tres planos. En la planta baja, las zonas más públicas. La continuidad al jardín se hará a través de verandas y zonas de sombra. En planta alta, los dormitorios y el espacio de estar que se asoma a los espacios de planta baja. En la parte más alta, en la azotea, unas zonas más privadas donde incluiríamos la piscina». CAMPO BAEZA, A. (2016). Memoria de Domus Aurea. URL: www.campobaeza.com

revit 3d de las instalaciones principales interruptor simple

calentador de agua

grupo de presión

caldera de gas

módulo de ventilador ahu

unidad de control del aire

22 | 23

trabajo fin de grado en arquitectura | la fragmentación como herramienta proyectual

la fragmentación

como herramienta proyectual 11

Con este trabajo se pretende entender la aplicación y evolución de la herramienta de la fragmentación empleada en la arquitectura de Enric Miralles y Carme Pinós, centrándonos en el cementerio de Igualada como primera obra en la que se aplica de manera plena.

zona de panteones

descarga del documento

muros

estudio de la fragmentación como herramienta para conseguir la maleabilidad del cementerio de miralles & pinós en igualada, barcelona porfolio de arquitectura | gonzalo camargo garcía
De inicio, se desarrolla la descripción de un marco teórico con el que se conoce el origen de la herramienta y se obtiene una definición de la misma. El bloque central ayuda a adquirir un conocimiento general sobre la pareja de arquitectos, a conocer la evolución proyectual del cementerio y a entender el uso de la herramienta de fragmentación. Y, por último, se concluye mediante una reflexión acerca de cómo se puede llegar a conseguir la identidad de proyecto gracias a la fragmentación.
de enterramientos edificio de servicios entrada capilla espacio vacío
conjunto de relaciones fragmentarias autocad autocad conjunto de independencias fragmentarias

centro cultural pompidou de rogers & piano | apunte a pie de calle

centro cultural pompidou de rogers & piano 12

interpretación dibujada a mano de un centro cultural en parís, francia

lápices de colores + rotulador negro plaza georges pompidou

24 | 25

linkedin.com/in/gonzalo-camargo-garcia gonzalo.camargo.arquitectura@outlook.com

+34 61682 3090

Turn static files into dynamic content formats.

Create a flipbook
Issuu converts static files into: digital portfolios, online yearbooks, online catalogs, digital photo albums and more. Sign up and create your flipbook.