

NOCTURNAL PRISM
1/ Type: Residence
2/ Theme: David Bowie’s Persona, Jungian Psychology, Kabbalah
3/ Location: 639 N Doheny Dr, Beverly Hills, Los Angeles, US
4/ Personal Work
5/ Academic Work: 11.2024-01.2025
PROPOSITION
This project explores the intersection of architecture, psychology, and mysticism through the lens of David Bowie’s personas, with a particular focus on Jung’s concept of the shadow and the symbolic framework of the Kabbalistic Tree of Life. The design creates a series of interconnected spaces, each inspired by specific Sefirot and tarot archetypes, to represent the journey of self-discovery, transformation, and creative expression. The spaces act as physical manifestations of psychological states, blending light, shadow, and symbolic elements to evoke introspection and balance. Each room invites users to confront repressed aspects of themselves, mirroring Bowie’s journey of navigating dualities—order and chaos, discipline and freedom, light and darkness—to channel his internal conflicts into transcendent art. By intertwining mystical symbolism, psychological theories, and Bowie’s creative legacy, this project creates an immersive environment that challenges perceptions, fosters self-exploration, and celebrates the transformative power of the unconscious.

PROLOGUE
THE THIN WHITE DUKE
02-DAVID BOWIE’S


Ziggy Stardust
An androgynous, flamboyant rock star and alien prophet Aladdin Sane Described by Bowie as “Ziggy goes to America”


Jack A dystopian, post-apocalyptic rebel living in a world inspired by George Orwell’s 1984. The Thin White Duke A cold, detached, and aristocratic figure, wearing tailored suits and embodying emotional emptiness and existential angst


PERSONAS, JUNG’S ARCHETYPES AND KABBALAH
Ziggy embodied glam rock and introduced themes of decadence, apocalyptic prophecy, and rebellion. reflects the Persona archetype. As Ziggy, Bowie embraced a otherworldly identity, performing a role for the public.
Aladdin Sane can be seen as a trickster figure, representing chaos and transformation. The lightning bolt across his face hints at a disruption of the ego and the balance between the conscious self and unconscious forces.
Halloween Jack, a figure born out of dystopia, embodies the Hero’s Journey, with elements of struggle, disillusionment, and the need to survive in a chaotic world.
Jung used five archetypes as tools to describe the different elements and functions within the human psyche. His goal was to map out the complexities of the mind in a way that could explain both conscious and unconscious processes Jung believed that the ultimate goal of human life was to achieve individuation, the process of becoming the most authentic and whole version of oneself. Individuation involves integrating all aspects of the psyche—the conscious and unconscious, the light and the dark—into a harmonious and complete self. During this project, the focusing part is shadow which contains repressed elements of the personality, and integrating it allows the individual to confront their inner darkness and move toward self-acceptance


The Thin White Duke is perhaps the most psychologically complex of Bowie’s personas, embodying elements of the Shadow in its darkest, most destructive form.
The Duke reflecting Bowie’s descent into addiction and his struggle with self-destructive tendencies.
During this period, David Bowie delved deeply into mysticism, the occult, and Kabbalistic studies


David Bowie as the Blind Prophet embodies the archetype of a visionary figure
Bowie was fascinated by the Kabbalistic Tree of Life, a mystical diagram representing the structure of the universe and the path to divine understanding. This is reflected in the title track Station to Station, which references the “stations of the cross” and themes of spiritual ascension.
Kabbalah is a mystical Jewish tradition that explores the nature of God, the universe, and the soul It teaches that divine energy flows through the Tree of Life, which consists of ten Sefirot, and emphasizes spiritual growth through meditation, study, and prayer
By integrating the feminine and masculine aspects of the Divine and confronting the shadow one can achieve spiritual enlightenment and contribute to world healing. Kabbalistic teachings use symbols like the Hebrew alphabet, which is believed to hold divine power and represent different aspects of creation.
The shadow, as Jung described, represents the unconscious parts of the self that are repressed but hold creativity, vitality, and transformative potential. Integrating the shadow is essential for true self-realization, as it allows individuals to reconcile light and darkness within. Similarly, in Kabbalah, the Qliphoth—the shadow side of the Sefirot—must be acknowledged and elevated to achieve spiritual wholeness. Both systems see the shadow as the gateway to transformation emphasizing that true growth comes from confronting and integrating the depths of the unconscious.

Comedy
was
Vic-


Chateau Marmont This hotel is synonymous with Hollywood’s decadent lifestyle. MOCA Pacific Design Center
Studios The place Bowie recording ‘Station to Station Before me, Raphael Behind me, Gabriel At my right hand, Michael At my left hand, Uriel Ateh! Malkuth! Ve-Geburah! Ve-Gedulah! Le-Olam! Amen!
Troubadour A West Hollywood club that nurtured folk, rock, and singer-songwriters


Gallery

Odyssey1 Night club with prevalently durg use



store
01-THE TRANSFORMATION OF NAMES AND SYMBOLS
In Kabbalah, the transformation of names and letters embodies the flow of divine energy into the material realm.
Notariqon
A Kabbalistic method of forming acronyms or phrases, distills identity to its essence. Transforming David Bowie to DVBV
Siglis
Create certain siglis to represent Hebrew letters
Athbash
Head-to-tail switching, reflects unity and transformation through balanced substitution of letters.
Athbash Combination
At least two letters changed in each groups
Avgad Combination
At least two letters changed in each groups
CHAPTER I THE JOURNEY
02-PROGRAMME
Combination
Avgad sequence switching, represents flow and renewal through sequence reordering.
Choosing
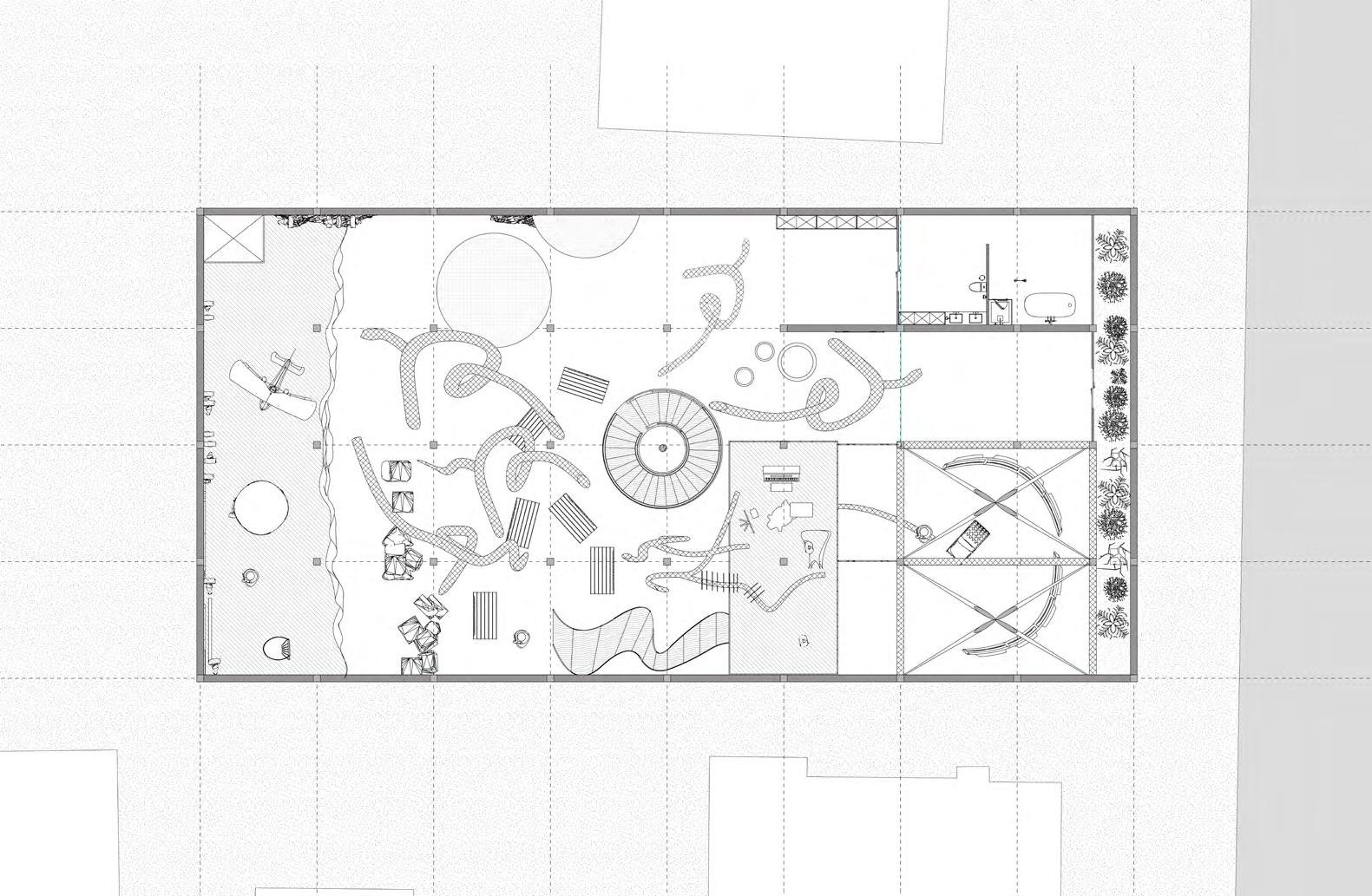
The programme integrates spaces and functions inspired by the Sephiroth, aligning each room’s purpose with Kabbalistic symbolism to create a narrative of spiritual and material interplay
Transforming
‘The Thin White Duke’ embodies the strict qualities, lacking the features of the Pillar of Mercy. The design could metaphorically mirror the base structure to harmonise this imbalance, creating a deliberate contrast by making the Pillar of Mercy side more open.
Ein Sof
Atzilut (Emanation)
Beriah (Creation)
Yetzirah (Formation)
Assiyah (Action)
Ein Sof translates to “Infinite” and represents the infinite, limitless, and unknowable aspect of the Divine in Kabbalistic thought. It is the ultimate source of all creation.
Represents the closest connection to the infinite source (Ein Sof). Associated with the Sefirah Keter (Crown) and the highest spiritual energy.
Associated with wisdom and understanding.Governs abstract thought and the formation of ideas, bridging the divine and the tangible.
Associated with the “emotional realm”, represents the shaping and refining of creative energies into forms and relationships.
The world of physical manifestation and action. This world is where spiritual energy takes its final, tangible form in the material realm.

Kether
Higher spiritial and meditation
Binah governs structure and discipline
Chokhmah For study and wisdom
Yeshod Living room, foundation, and the bridge between spiritual and physical.
Hod Drug room, governs abstract thought and the veiling of reality
Netzach Collection room, reflects the preservation of artistic and aesthetic achievements
Geburah Mystic room, transformation Malkuth Bedroom, areas of rest, grounding, and physical presence.
Chesed Recording room, creative expansion Malkuth Grey spaces, represents the ultimate manifestation of all higher energies
Yesod For study and wisdom
Malkuth Bathroom, represents grounding and purifying the body






CHAPTER II THE MAGICIAN

02-THE SPACES
The design integrates Kabbalistic symbolism with Jung’s shadow concept, creating an immersive environment for spiritual introspection and creative transformation. The fragmented mirrors, symbolic textures, and interplay of light and shadow represent the tension between chaos and harmony, shadow and light, which are integral to the individuation process.
KETHER-CROWN









The Magician symbolizes mastery, willpower, and the ability to channel spiritual energy into material creation. This emphasizing the integration of the unconscious—the repressed and denied aspects of the self—as a gateway to creativity and transformation. The Magician represents the individual who reconciles light and darkness, conscious and unconscious, to achieve self-realization. Similarly, in Kabbalah, this process mirrors the central role of Chokhmah, the Sefirah of wisdom and intuitive insight, which provides the spark of creation that must be balanced with structure and understanding.
meditation/study, higher spiritual related
Lighting Lights on the Crystal pile
Lighting lights point arrangement on device connection
Vision fragmented mirrors hang from the installation
a- The All-Seeing Eye
A symbolic feature representing intuition, divine insight, and the ability to perceive beyond the physical realm.
a Function

b- Hanging Installation
A structure representing balance and connection, embodying the role of the harmonizer of oppositional forces.
Vision Mirror on the wall Create illusionary spaces that enhance sacredness b c d

c- Chair
The chair with owl feather elements symbolizes wisdom and introspection.

Vision owl feather represents Wisdom and nocturnality
Screen
The owl feather elements screen serves as both a physical and symbolic partition.


This second world is a dynamic environment where the dualities of Gevurah and Chesed converge, united by the central force of Tiferet.



The spiral staircase embodies Tiferet, the Sefirah of harmony and balance. Its flowing form symbolizes the union of opposites, bridging Gevurah’s discipline and Chesed’s expansion as Bowie ascends toward spiritual and artistic integration. The interplay of light and shadow reflects Tiferet’s mediating role, guiding a journey toward unity and transcendence. The recording room reflects Chesed’s expansive and nurturing energy, with its open design fostering collaboration and creativity. Inspired by Bowie’s Station to Station album cover, the sky imagery bridges earthly creativity with divine inspiration, encouraging exploration and artistic experimentation.




The occult room reflects Jung’s concept of the shadow as a gateway to creativity and self-realization. The open spaces, veiled by hanging fabrics, symbolize the interplay between concealment and revelation, mirroring the unconscious as vast yet elusive. Ceiling mirrors distort and fragment reflections, evoking the fractured psyche and inviting self-examination, while the dynamic interplay of light and shadow captures the fluid nature of inner transformation. The dragon spine columns anchor the space with raw, primal energy, representing chaos and transformation, while their crystalline details symbolize moments of clarity. Star-like ornaments and sigils further tie the room to the themes of navigation and ascension, aligning with The Chariot Tarot card’s journey of discipline and balance. This room is both a physical and symbolic space for confronting the shadow, transforming darkness into vitality, and channelling Bowie’s fascination with mysticism and the unconscious into creative expression.

lights on the end of dragon spine column symbolizes the raw, primal energy of transformation.
the duality of containment and openness.
on the ceiling suggest the transcendence of
a- Cabinet
The sigil-inspired sections and half-transparent red glass body symbolize the storage of hidden knowledge and the illumination of the unseen.
b- Altar Table
With sigil-inspired legs, the altar serves as a space for ritual and creative activities. The sigils symbolize the codified language of mysticism


c- Column
The dragon spine with a crystal pile symbolizes the raw, primal energy of transformation and self-realization.
d- Chair
The tree-inspired form reflects growth, connection, and grounding, tying to the cyclical nature of transformation. Serves as a place of contemplation.


CHAPTER IV THE HANGED MAN

The Hanged Man tarot card symbolizes surrender, introspection, and the need for a new perspective, often through sacrifice. This aligns with Jung’s shadow concept, inviting the integration of unconscious aspects. The space embodies this transformation, using mirrors for self-reflection and light and shadow to evoke the fractured psyche. Through themes of suspension and renewal, the space encourages introspection and creativity.

NETZACH- VICTORY
This room showcases Bowie’s collection of antiques and other artefacts, representing the resonance of life, death, and rebirth.

YESHOD- FOUNDATION
Represents the Pillar of Balance, connecting the spiritual and material worlds.

YESHOD- FOUNDATION
living room creates a space that balances grounding and reflection.







The Drug Room explores Bowie’s darker experiences, with undulating red walls and velvet carpets symbolizing the chaos of addiction. Butterfly elements evoke fleeting beauty and the fragility of existence. The space functions as both a confessional and a physical manifestation of confronting the inner shadow. Mirrored screens and layered textures represent confusion and reflection, offering potential clarity amid turmoil. In the heart of Hod, Bowie lies alone, surrounded by pulsing crimson walls that reflect fragmented personas, a soul seeking integration.
CHAPTER V THE JUDGEMENT

Malkuth, the lowest sphere of the Kabbalah Tree of Life, represents the material world and the grounding of spiritual energies into tangible reality. It is a realm where the physical and the ethereal intersect, embodying the delicate balance between grounding and aspiration.
The Judgement card deepens this narrative, symbolizing awakening, redemption, and the integration of the self into a higher state of being. Bowie’s depiction in the card reveals him as both a seeker and a guide, navigating the transformative process of confronting the past and embracing renewal.



Lighting
Crystal Chandelier symbolizes divine light connecting the material and spiritual realms.

Lighting
Snake decorative table lamp, the snake represents renewal and spiritual growth.
a- Bath Tab
Integrates mystical sigils, representing purification and transformation through the element of water.

Vision
Mirrors as half sphere and cone,create a distorted perspective, inviting to embrace new ways of thinking.
b- Monitor sets
Inspired by The Man Who Fell to Earth, symbolize Bowie’s engagement with alienation and technology

Vision
The space includes grey areas reflecting Bowie’s fears and anxieties. Jimmy Page’s smiling photo evokes unease tied to Bowie’s fascination with the occult, while aircraft imagery symbolizes his fear of flying, reflecting vulnerability and unpredictability. Security cameras highlight his paranoia and the constant surveillance of fame, adding an oppressive tone.
These elements ground the space in Bowie’s psychological struggles, blending transcendence with earthly fears. It encourages confronting vulnerabilities, and transforming fear into self-reflection and growth, echoing Bowie’s own journey through art and identity.
pipes inspired by tree roots and serpentine, mirroring the serpentine paths of Bowie’s personal evolution.
Vision
Inherited from the previous arched frame.
Vision
Arch elements on ceiling reflect gateways to higher understanding.
c- Serpentine Wall
Organic and flowing, these walls echo themes of growth, renewal, and the cyclical nature of existence.

d- Bench
The bench integrates sigils into design, serving as a symbolic resting point. could combine together as Bowie’s bed.

LEAF & LOOM
1/ Type: Residence/ Industry
2/ Theme: Craftsmanship, Community Integration, Local Materials
3/ Location: Puerto Limón Costa Rica
4/ Personal Work
5/ Academic Work: 06.2024- 11.2024
PROPOSITION
“Leaf & Loom” is an architectural and community-driven project that blends the natural beauty and resilience of the banana plant with the sustainable, modular design of vernacular architecture. Situated within the tropical landscapes of Costa Rica, this project seeks to create a harmonious, flexible living space for local workers, integrating the rich cultural heritage of the region with contemporary design principles.
Inspired by the unique qualities of banana trees—particularly their strong yet flexible nature, their ability to thrive in a diverse range of conditions, and their essential role in the local ecosystem—”Leaf & Loom” proposes a community of modular units. These units are designed with banana leaf-shaped roofs, bamboo frames, and other natural materials that reflect the vernacular architecture of the region, while also allowing for future flexibility as families grow and community needs evolve.
Yuxin (Gloria) He



Construction of a railway connecting the capital San José to Puerto Limon begins
1899s

In order to gain more profit, The United Fruit Company (UFC) was founded in 1899.
1920-1950s

UFC expands its influence, effectively controlling infrastructure and politics in several Central American countries.

Economic intervention: paying workers vouchers instead of
‘The game still goes on. The guns of the rovers are silenced; but the tintype man, the enlarged photograph brigand, the kodaking tourist and the scouts of the gentle brigade of fakirs have found it out, and carry on the work. The hucksters of Germany, France, and Sicily now bag its small change across their counters. Gentleman adventurers throng the waiting-rooms of its rulers with proposals for railways and concessions.’

CABBAGES AND KINGS by O. HENRY






intervention: violent suppression of protest

The land is cleared and prepared using machinery and manual labour. Banana plantlets or suckers are planted, requiring careful spacing and depth to ensure healthy growth.
Regular irrigation, fertilization, and pest control are essential.
Mature banana bunches are cut using machetes or automated harvesters.
Harvested bananas are transported to packing stations using conveyor systems or vehicles.


CLEANING AND SORTING
Bananas are washed in water tanks to remove latex and debris.
Bananas are packed into boxes, often with cushioning to prevent bruising.




Packaged bananas are stored in refrigerated units to maintain freshness. Shipped via trucks, ships, or aeroplanes.







Area A: around 390000 square meters
Pros: Proximity to the main road (Route 241) for easy access to transportation and supplies.
Cons: Potential noise and pollution from the nearby road.


Area B: around 450000 square meters
Pros: Close to Route 241 and the community of Beverly, making it convenient for access to amenities and services.
Cons: Proximity to the road may pose noise issues.

Area C: around 420000 square meters
Pros: Close to the community of Beverly, providing easy access to local services and amenities. Close to the rail system
Cons: Proximity to urban areas might limit expansion. Area D: around 470000 square meters
Pros: Located further from the main road, offering a quieter environment for residential living.





























07-MODULAR HOUSING CLUSTERS

The axonometric rendering showcases a two-story modular housing unit. The open ground floor promotes communal living, while the upper level provides private spaces. Traditional materials like banana-fiber thatched roofing and bamboo frames honor the region’s cultural identity and tropical context. Sustainability is key, with locally sourced materials reducing the carbon footprint and climate-adaptive features such as large overhangs for rain protection and permeable shading for airflow.






Sliding curtains provide privacy and partition spaces, maintaining an airy, adaptable interior flow.


The axonometric rendering shows a two-story modular housing unit. The open ground floor encourages communal living, while the upper level provides private spaces. Traditional materials like banana-fiber thatched roofing and bamboo frames connect the design to its tropical roots. Sustainability is prioritized with locally sourced materials to reduce the carbon footprint and climate-adaptive features like large overhangs for rain protection and permeable shading for airflow.
Shading system

The shading, inspired by banana leaves, rotates to adapt to sunlight and privacy, enhancing energy efficiency.

Bamboo connections provide a durable, flexible, and sustainable framework for modular structures.



Modular public spaces shift and combine easily, using lightweight mechanisms for flexible transitions.

The roof inspired by banana leaves, offers thermal insulation, blending with the environment.


Rendered diagrams illustrate the delineation between the working zones and the visitor-friendly areas. showcasing its dual functionality as both a production hub and a visitor experience space. Highlights include interactive displays and curated spaces where visitors can learn about the production process, blending functionality with educational and experiential elements. This dual-purpose approach demonstrates the seamless integration of operational efficiency and visitor engagement.






09- FACTORY AREA
The axonometric diagram focuses on the composition and functionality of the factory area, emphasizing its modular design and adaptability. They highlighted the column-free spaces enabled by long-span trusses, creating an expansive and flexible production environment. Key details, such as movable roof systems, enhance ventilation and natural light while reflecting sustainable design principles. The factory layout is optimized with clearly defined zones for processing, packaging, and storage, seamlessly integrated with loading bays for efficient product distribution. These diagrams capture the innovation and practicality embedded in the factory’s design, showcasing it as the heart of the plantation’s operations.

The system connects essential areas, streamlining transportation for workers and lightweight materials while offering visitors a aerial perspective of the site.



The movable roof systems allows dynamic control of ventilation and lighting, ensuring a comfortable and energy-efficient working environment.


blending functionality with educational and experiential elements. This dual-purpose approach demonstrates the seamless integration of operational efficiency and visitor engagement.


PROFESSIONAL WORKS
Practice Works/ Model Making/ Technical Study
This section presents a diverse collection of my additional works, extending beyond architecture to include fine art, graphic explorations, and projects from my internship experience. These works reflect my engagement with different creative disciplines, showcasing my ability to experiment with various mediums, techniques, and conceptual approaches. They highlight my adaptability, artistic sensibilities, and professional growth beyond academic architectural projects.







TECHNICAL STUDY
Upper: Academic Project Climatis Odyssea; Under: Academic Project Verdant Vista
The first diagram represents the Technical Study for Climatis Odyssea, detailing the wall layering system. It highlights various building components such as insulation, steel beams, HVAC air ducts, and glazing.
The second diagram is for Verdant Vista, illustrating the building’s facade and structural composition. It outlines a combination of materials, including curved timber panels, insulation, triple glazing, and CLT slabs. The diagram emphasizes aspects like ventilation, moisture control, and composite wood flooring, as well as the layered construction from the facade to the foundation.
SITE MODEL
113 Pollard St, Manchester M4 7JA, United Kingdom Group Work
Role: Laser cutting preparation and CAD file creation
Contribution: Assisted in creating accurate CAD files for laser cutting, ensuring precise cuts for the architectural elements. Helped in assembling the model, refining façade details, and ensuring a seamless fit of components.
SITE MODEL
25 Birchall Way, Manchester M15 6DU, United Kingdom Group Work
Role: Landscape modelling and contextual detailing
Contribution: Developed the landscape and topographical elements of the site model, shaping terrain and integrating vegetation for a realistic representation. Focused on contextual elements such as pathways, roads, and open spaces to enhance the clarity of the site context.
















- Office building
- Industrial heritage extile manufacturing legacy
- Parametric design
- Material and spatial translation
This project reimagines the G1-2 plot of 138th Street, Dinghai Street, Yangpu District, Shanghai, as part of the region’s urban renewal. The plot is designed to be built and used as a new office building for Yangpu Urban Investment Group. The site, historically home to textile mills and dormitories, is deeply rooted in Shanghai’s industrial heritage. The project integrates the past with contemporary sustainable design principles through an architectural intervention.
My role in the project encompassed several key design and analytical tasks:
· Historical & Urban Analysis: I developed site history diagrams, illustrating the industrial heritage and its impact on the urban fabric.
· Massing & Spatial Studies: I explored how new interventions could integrate into the existing urban landscape through site modelling and preliminary volumetric analysis.
· Parametric Façade Development: I contributed to the curtain wall design, employing Grasshopper-based parametric tools to create façade elements inspired by the cotton flowers.
This project challenged me to think beyond form and function—to consider how architecture serves as a mediator between past and future, history and innovation. By drawing from the repetitive geometries of textile machinery, the proposal reinterprets the site’s manufacturing legacy through a contemporary lens. At the same time, the design responds to Shanghai’s broader urban renewal initiatives, balancing heritage preservation with sustainability and adaptability.