Briljantwoning Novy
Scherp geslepen, slim en doordacht, briljant.




Wie wij zijn
Waarom de Briljantwoning?
Briljante voordelen
17 Handige rekenhulp 14 Keuzevrijheid
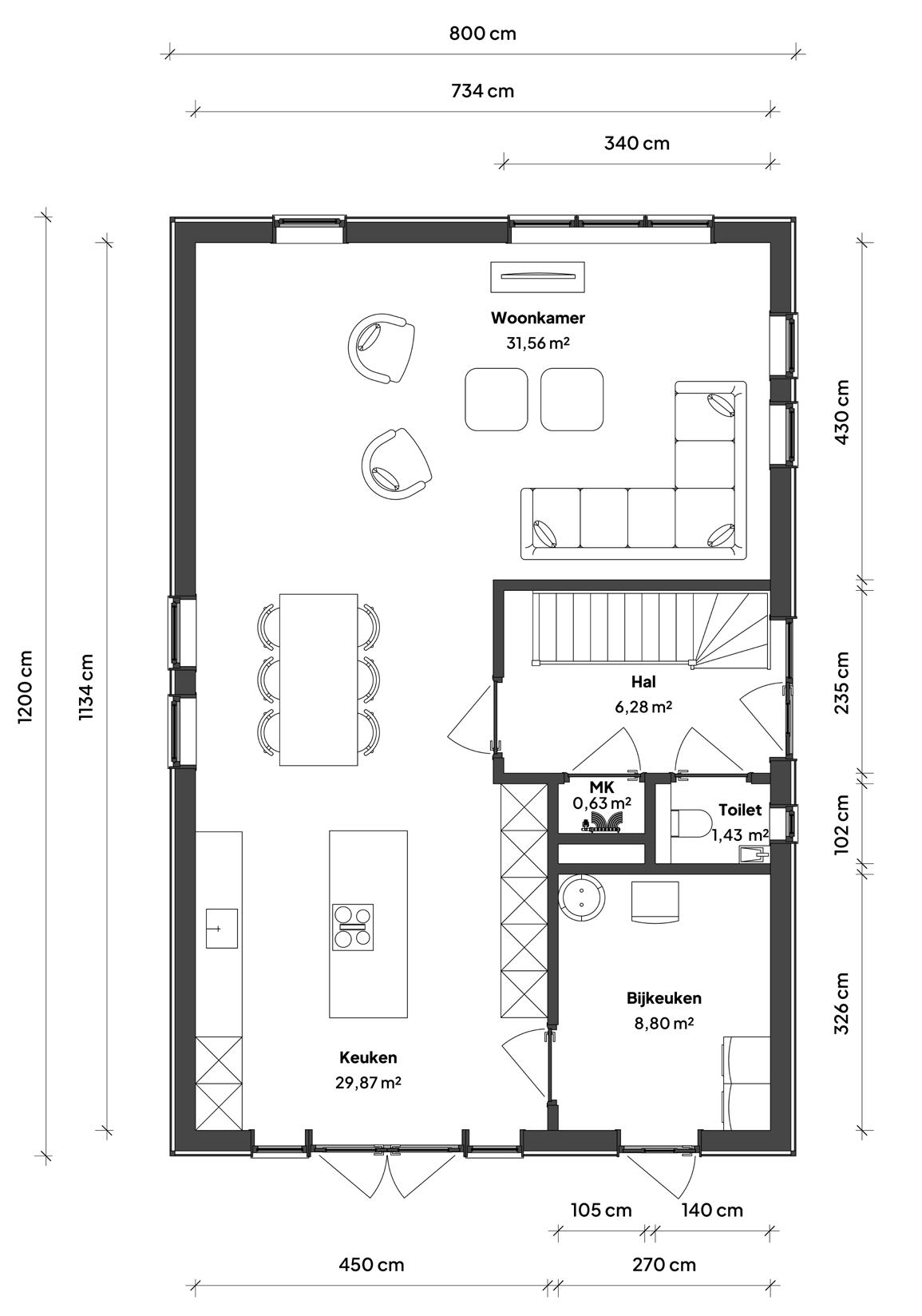
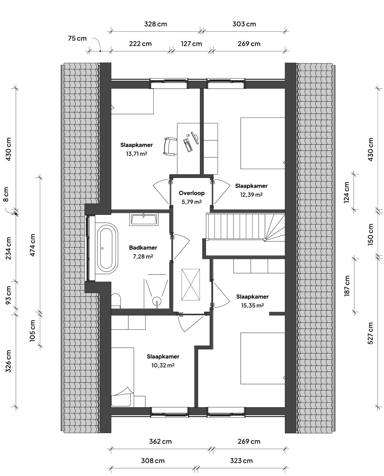
Plattegronden
Doorsnede 16 Flexibiliteit
18 Werkproces
19 Mooie woorden die we hoorden


![]()
Scherp geslepen, slim en doordacht, briljant.




Wie wij zijn
Waarom de Briljantwoning?
Briljante voordelen
17 Handige rekenhulp 14 Keuzevrijheid
Plattegronden
Doorsnede 16 Flexibiliteit
18 Werkproces
19 Mooie woorden die we hoorden


Wij zijn Geldersche Woningbouw.
Een gemotiveerd team van meer dan 100 mensen. Onze passie? Geldersche Woningbouw geeft ruimte. Praktisch betekent dat het ontwerpen, bouwen en plaatsen van houten woningen en het begeleiden van onze opdrachtgever door het hele proces. Dit doen we vanuit de showroom en onze moderne productielocaties in Kootwijkerbroek en Goor.
Met onze jarenlange ervaring vanuit Geldersche Houtbouw, bouwer van onder andere houten bijgebouwen, mantelzorgwoningen en woningen, hebben we al veel opdrachtgevers blij gemaakt met een fijn thuis. Naast het bouwen van houten woningen en bijgebouwen hebben we ook het thermisch modificeren van hout in eigen beheer. Hierdoor kunnen we altijd de hoogste kwaliteit garanderen.
Op ons kunt u bouwen, want Geldersche Woningbouw staat voor ruimte en vrijheid. Kernwaarden die ons dagelijks bezighouden en die we graag aan u doorgeven!

Een briljant is een specifiek soort slijpvorm voor edelstenen, meestal diamanten.
Deze slijpvorm is ontworpen om maximale schittering en lichtreflectie te bereiken.
Deze maximale schittering vertaalt zich in het ontwerp en het concept van deze woning. Eveneens reflecteert het jarenlange ervaring met honderden opdrachtgevers.
Alle ervaring in één ontwerp
Bij de maatwerkprojecten die wij bouwen, zien we vaak dat mensen twijfelen of hun gekozen plattegrond wel optimaal is. Met deze woning nemen we die onzekerheid weg. Het ontwerp is slim en doordacht, gebaseerd op bewezen functionaliteit.
Omdat de benodigde berekeningen en technische tekeningen al zijn afgerond, kunnen we een vergunningsaanvraag razendsnel indienen en de woning in korte tijd bouwen.
Voordelig
Dankzij deze efficiënte aanpak kunnen we deze woning voordeliger aanbieden dan een volledig maatwerkproject, zonder concessies te doen aan kwaliteit of comfort. Een slimme keuze voor wie zoekt naar een goed doordachte en betrouwbare oplossing. Dat is een briljante woning!


€ 100.000
Goedkoper dan een vergelijkbare maatwerk woning.
80% Minder kans op onvoorziene kosten.

1 week Binnen één week een vergunningsaanvraag. € 0
Ontwerp-, berekenings- en engineeringskosten.
2 weken Binnen twee weken wind- en waterdicht.

Bij het ontwerpen van deze Briljantwoning zijn factoren als goothoogte, dakhelling en indeling nauwkeurig afgestemd. Dit resulteert in een bovenverdieping met opvallend veel ruimte, inclusief vier volwaardige slaapkamers en een grote vliering.
Dankzij het slimme ontwerp biedt de woning 13% meer inhoud, 22% meer woonoppervlak en een extra vliering vergeleken met woningen waar het dak direct op de verdiepingsvloer begint.


Wat verbruikt u aan energie met deze woning? Wat zijn de kosten met en zonder salderen? Dat zijn relevante vragen die we vaker krijgen. Daarom hebben we voor u inzichtelijk gemaakt wat u kunt verwachten. De berekening is op basis van een huishouden van 4 personen.
*Indicatieve bedragen o.b.v. vast contract.
Berekening verbruik
Verwarming en tapwater
Koken, koelvries, etc.
Zonne-energie
Resultaat
Met salderen
Kosten per maand
Zonder salderen
Gebruik zonne-energie
Inkoop per maand
Terugleveren overschot
Kosten per maand





80,7 m2
Netto vloeroppervlakte van begane grond.
68,2 m2
Netto vloeroppervlakte 1e verdieping.

16,2 m2
Netto vloeroppervlakte zolder.

Binnen mum van tijd werd de woning opgeleverd. We wonen nu in onze droomwoning!“



voorgevel

rechtergevel

linkergevel

achtergevel
Bouwoppervlakte: 96 m2
Nokhoogte: 8,8 m
Dakhelling: 50 °
Inhoud: 613,2 m3
Gebruiksoppervlakte: 149 m2
Begane oppervlakte: 80,7 m2
Goothoogte: 4 m
1e verdieping oppervlakte: 68,8m2
2e verdieping oppervlakte: 21,7 m2
Overstekken: geen
Rc-waarde:
Vloer: 3,7
Wand: 4,7
Dak: 7,3


Thermisch gemodificeerd vuren naturel
& thermisch gemodificeerd vuren zwart
Kiest u voor Briljant, dan krijgt u briljante keuzemogelijkheden. U heeft de mogelijkheid om uw eigen stempel te drukken op het ontwerp. Welke kleur de gevelbekleding of de dakbedekking wordt is aan u, zodat de woning perfect aansluit bij uw smaak. Het is mogelijk om de woning te spiegelen.
In onze showroom vindt u diverse samples om de mogelijkheden zelf te ervaren en een weloverwogen keuze te maken. Ook in deze brochure laten we u een aantal variaties zien, zodat u alvast een idee krijgt van de eindresultaten. Zo maken we van uw huis écht uw thuis.
Geïmpregneerd vuren zwart


Geïmpregneerd vuren lichtblauw

Thermisch gemodificeerd fraké naturel
Om een briljante woning te zijn, moet er ook flexibiliteit zijn. Als u zelf wilt afbouwen of op een andere manier wilt besparen kan dat. Wilt u de woning helemaal compleet laten bouwen, dan is natuurlijk ook dat mogelijk. Daarom hebben we drie afwerkingsniveaus in de prijsstelling opgenomen. Basis, comfort en compleet.

Basis - Zelf aanpakken, maximaal besparen
Met het Basispakket legt u de fundering voor uw nieuwe woning, letterlijk en figuurlijk. Dit niveau bevat alle essentiële onderdelen die nodig zijn om een solide woning neer te zetten. Perfect voor de handige doe-hetzelver die graag kosten bespaart door zelf bepaalde onderdelen van de afwerking op zich te nemen.
Comfort - Een stap verder en minder werk
Met Comfort ziet u hoe eenvoudig bouwen kan zijn. Naast de stevige basis nemen wij al een flink deel van de afwerking voor onze rekening. Van isolatie tot binnendeuren en trappen. Een ideale balans tussen zelf doen en gemak.
Compleet - Zorgeloos genieten
Met het Compleetpakket kiest u voor het grootste gemak. Alles van de voorgaande afwerkingsniveaus is inbegrepen, aangevuld met installaties zoals vloerverwarming, een warmtepomp en mechanische ventilatie. Uw woning is bijna instapklaar; alleen de badkamer, keuken en het afwerkingswerk zoals schilderen en behangen, blijft aan u. Dit is de zorgeloze keuze voor wie zijn woning zo snel mogelijk gereed wil hebben.


Prijs*
Ontwerpkosten
BENG-berekening
Bouwbesluittoets
Constructieberekening
Voorlopig energielabel
MPG berekening
Stikstof- en flora- en faunaberekening
Indienen vergunning
Grondwerk
Fundering
Gevelbekleding
Dakbedekking + hwa’s
Triple beglazing
Hardhouten buitenkozijnen
Dakisolatie
Isoleren buiten- en binnenwanden
Aftimmering + naden smeren
Binnendeuren
Vensterbanken
Trap
Dekvloer
Riolering
Zonnepanelen
Water- & elektra-installaties
Warmtepomp
Vloerverwarming
Mechanische ventilatie
Leges
Heipalen
Tegelwerk + sanitair
Badkamer + keuken
Schilderwerk
Basis Comfort Compleet


Een woning bouwen kan een complex project zijn als niet alles duidelijk en inzichtelijk is. Om u te helpen hebben we al een handige begroting voor u opgezet. Die kunt u gemakkelijk zelf verder invullen waardoor u niets vergeet en de kosten inzichtelijk houdt.
* Actuele prijzen op aanvraag beschikbaar.
Wat kunt u verwachten wanneer u besluit een woning te kopen? Normaal gesproken zijn er veel stappen nodig om tot een goede woning te komen. Denk alleen al aan de verschillende ontwerpfasen waarin talloze keuzes gemaakt moeten worden. Bij de Briljantwoningen maken we het een stuk eenvoudiger voor u.
Orderbevestiging
Er hoeven nog maar een paar zaken duidelijk te worden om de definitieve kosten vast te stellen. Zijn er bijvoorbeeld heipalen nodig? Of wilt u een andere kleur gevelbekleding? Dit bespreken we samen met u. Zodra u akkoord gaat met de offerte, geeft u de opdracht, eventueel onder voorbehoud van vergunning.
Vergunning
Wij verzorgen de vergunningsaanvraag bij de gemeente. Omdat we alle benodigde stukken al hebben voorbereid, kan dit vaak nog dezelfde week gebeuren!
De laatste details
Daarna plant onze kopersbegeleider een afspraak met u in. Tijdens deze afspraak leggen we samen alle details vast. Denk hierbij aan het type binnendeuren, de plinthoogte en andere belangrijke keuzes.
Planning en productie
Wanneer de vergunning is verleend, plannen we de bouw in overleg met u in. In de week vóór plaatsing wordt de woning door ons geprefabriceerd in onze werkplaats. Op de afgesproken data voeren we het graafwerk uit, storten we de fundering en plaatsen we de houtbouw. Afhankelijk van het afwerkingsniveau dat u kiest, vindt daarna de afbouw plaats.
Oplevering
Onze kopersbegeleider levert uw woning op de laatste dag van plaatsing aan u op. De bouwplaats wordt door ons netjes achtergelaten, en de woning wordt bezemschoon opgeleverd.


Een pracht van een huis!
Vanaf het eerste contact tot aan de oplevering van de woning was het team van Geldersche Woningbouw buitengewoon behulpzaam en deskundig. Altijd bereid om vragen te beantwoorden en advies te geven. Ze namen de tijd om onze ideeën te begrijpen en hielpen ons bij het kiezen van het juiste product(ontwerp).
Het eindresultaat is een prachtig, goed gebouwd huis dat we met trots ons thuis noemen. De kwaliteit van het werk is uitstekend, van de architectuur tot de afwerkingen.
We zijn Geldersche Woningbouw echt dankbaar voor hun harde werk en toewijding. Als u op zoek bent naar een betrouwbare, eersteklas bouwonderneming om uw droomhuis te bouwen, zoek dan niet verder!
Familie Blok, Moerstraten




De Vang 3
3774 SL Kootwijkerbroek

info@gelderschewoningbouw.nl


www.gelderschewoningbouw.nl 0342 78 40 40 Maandag tot en met vrijdag 8:00 tot 17:00 uur Zaterdag van 8:00 tot 15:00 uur 's Avonds op afspraak