



![]()




I am a young professional and recent graduate of Clemson University’s M.Arch II program, having completed my B.A in Architecture at Clemson with a minor in geography. During this time, I spent two years studying in historic Charleston, SC where I participated in the design-build studio gaining real-life experience on how architecture can provide opportunities for a community and enhance the quality of life. Over the past few years, I have been developing my knowledge of architectural practice and strengthening my technical skills through various design positions. With these professional experiences, I have gained a strong understanding of the importance of place and contextual design. I am self-motivated and willing to put in the work needed to create engaging and unconventional design responses to the challenging concerns of each project.
My interests include vernacular architecture and its correlation to the sense of place through the connection of the natural and cultural resources of a community, as well as sustainable design and the overall impact architecture has on a person’s health and wellbeing.
My goal is to create designs that enrich the environment, improve quality of life, and provide opportunities for a sustainable future.
07.2023-05.2024
Designer
Served as the sustainability champion of the Learning Studio where I focused on the impacts of biophilia and design performance while participating in the design of a K-12 school in the SD + DD phases
Spring 2023
Clemson University
Teacher Assistant
Acted as the Digital TA to the freshman architecture class and helped them navigate new software and graphic styles through planned tutorials and lessons
Fall 2022
AJ Architects
Architectural Intern
Assisted with the design and project management of residential and small historic buildings, creating a conceptual design set for BAR review in Revit
05.2020-08.2022
Red Iron Architects
Architectural Intern
Worked on all phases of K-12 schools, tenant up-fits + small commercial buildings using Revit and Lumion for CD sets and renderings
2021-2023
Master of Architecture
Clemson University
Abroad Studies: Charleston, SC ‘22 2021 LEED GA Accreditation
2017-2021
B.A. in Architecture
Minor in Geography
Clemson University
Abroad Studies: Charleston, SC ‘20
2023 Honorable Mention - Harlan E. McClure Award
2022 AIA COTE Top 10 Award for Students
Robert Miller Award for Rigor
2021 Tau Sigma Delta Honor Society Inductee
AIA SAR Student Design Award Nominee
Senior Design Award for Best Execution
2019 IPAL Cohort
AIA People’s Choice Award
Second Year Faculty Award Nominee
Dean’s List | President’s List
Hayley Hayes
Interiors Lead, Lake|Flato Architects (626) 437.7240|hayley.snider@gmail.com
David Pastre
Principal Lecturer + Director, Clemson Design Center (843) 696.3343|pastre@g.clemson.edu
Ashley Jennings
Principal + Owner, AJ Architects (843) 810.0029|ashley@ajarch.net
The following provides a selection of work that was completed between 2020 and 2024 at Clemson University and in practice. My hope is that this portfolio captures my passion for architecture through my sense of adventure, my diligence in each detailed design, and my love for creativity in pursuit of the most engaging and complete proposals.
Bethea, LEED GA







Completed: M.Arch II | 1st Year | Fall 2021
Professors: Ulrike Heine, George Schafer, David Franco
Programs: Revit, Lumion, AutoCad, Adobe Suite
Partner: Jesse Blevins
The Connected Farm is an intergenerational communal housing project which impacts its residents by implementing self-sustainability through agriculture and the efficient utilization of resources. The farm aims to address the opportunities present on the island such as shortage of sustainable housing, seasonal job instability, and insufficient resources such as Internet access which leads to island flight for young individuals and generational disconnect for those aging in place. The solution is to create a community that is 100% self-sufficient to reduce housing costs, supply year-round income opportunities through agriculture and technology-based jobs, and provide a one stop-shop that promotes community and connection among all generations. This site integrates agriculture and technology to foster a sustainable future for the residents of Vinalhaven. The farm provides an end to social isolation by bringing generations together and providing social and economic opportunities through the power of food.











CONNECT ALLOCATE PRODUCE
CORE COMMUNITY
SURROUNDING COMMUNITY RESOURCE











Completed: M.Arch II | 1st Year | Spring 2022
Professors: David Pastre
Partners: Clemson Design + Build Studio
This pavilion acts not only as an outdoor classroom for the students of Edith L. Frierson Elementary School, but as a reminder to the children that they can achieve greatness. For a low-income school, many of these children never have the opportunity to hear from designers or see what it means to be an architect. Each time they are within the space, they will remember the interactions they had with our studio and the experience of being a part of the design. This project showed me how architecture can provide opportunities for communities and enhance the quality of life. The project was intended to be completed in the Spring of 2022, but due to permitting conflicts and the discovery of an easement, on-site construction was pushed back until the Fall. With the project now consisting of two phases, off-site fabrication continued. The construction set and shop drawings were finalized, and metal fabrication began. All steel connections throughout the pavilion were cut, hole punched, welded and painted. With such an intricate trellis design and paint pattern, we decided that a mock-up would be integral in understanding the steel connections and paint so a section of the trellis was assembled and evaluated off-site. With the emerging conflicts during this project, teamwork, communication and flexibility became essential tools.

SITE PLAN

PROPOSED INTEGRATED PROGRAM





TREE HOUSE DESIGN
ORIGINAL SCHOOL
INSPIRATION

CONNECTION TO GARDEN
DRAWING
COUNTING

WEAVING
EDUCATION


MEMORIAL BENCH


SITE PLAN

PROGRAM LAYOUT





WHITEBOARDS C FLEXIBLE SEATING

INTERLOCKING CLEAT SYSTEM

STORAGE DIAGRAM
INTERLOCKING STOOLS INTERLOCKING BENCH

INTERLOCKING WORKTOPS













Completed: M.Arch II | 2nd Year | Fall 2022
Professor: Bradford Watson
Programs: Revit, Lumion, AutoCad, Adobe Suite, Cove Tool
Can we minimize the ecological footprint while maximizing the quality of life in order to create a holistic system where community integration and green infrastructure reshape the concept of affordable housing?
The Urban Village is a workforce housing project which focuses on fostering an integrated community between the occupants of the building and the people of the neighboring area in order to promote livability, sustainability, and inclusivity through the intertwining of the natural and built environment. The Village is situated on a disputed, brownfield site between one of Charleston’s oldest neighborhoods, which promotes social alienation, and the Medical District, which acts as a city in itself. Due to this, The Village’s long-term success is dependent on a green infrastructure and an invested community in order to sustain it. Therefore, the value of the Village relies on the people’s willingness to embrace diversity and their commitment to a sustainable future.



FUTURE DEVELOPMENT
FUTURE DEVELOPMENT





URBAN VILLAGE
HARLESTON VILLAGE







WATERFRONT RESILIENCY





OPEN
CONNECTION



GREEN INFRASTRUCTURE










SLIDING SHUTTER













PARKS DEVELOPMENT
URBAN AGRICULTURE WATERFRONT DEVELOPMENT
BALANCED APPROACH
SAFETY+ ACCESSIBILITY



FOOD PRODUCTION EMPLOYMENT


PEDESTRIAN INFRASTRUCTURE BIKE NETWORK PUBLIC TRANSPORTATION
ANCHOR TO THE COMMUNITY



AGRICULTURE PARKS NEIGHBORS AFFORDABLE DIVERSITY




DESIGN CATALYST










UNITS















Modularity allows for personalization and versatility by replacing and removing the standard units. The modular home also allows for a minimized ecological footprint and decreased construction times with controlled fabrication off site.

2" ARCH FINISH CONCRETE SLAB
4" STRUCTURAL CONCRETE SLAB
3" 2x6 BOARD FORM CONCRETE
4" RIGID INSULATION
3" CAST-IN-PLACE CONCRETE
6" RIGID INSULATION GRAVEL STRUCTURAL FOOTING 1'6" BELOW GRADE PILES
The concept for the design is to take the rhythm of the windows that is normally seen in Charleston and to give it a new tempo. The windows are placed on a grid and all align to that grid to create proportion with the first floor having the largest windows to the smallest windows being in the residential spaces.
FOUNDATION


PARAPET CAP W/ FLASHING + CONTINUOUS CLEAT COPING
ROOF
WOODEN BASE
PINE FLOORING
SLOTTED FOAM MATT W/ ADHESIVE
GYPCRETE W/ HYDRONIC TUBES
1/2" PLYWOOD SHEATHING
5-PLY CLT WALL ASSEMBLY
EPDM RUBBER MEMBRANE CANT
1/2" BACKER BOARD
12" TAPERED ROOF
2x8 BLOCKING
5-PLY CLT FLOOR ASSEMBLY
TWO (2) LAYERS OF 5/8" X GWB
NON-COMBUSTIBLE MEMBRANE
SELF-ADHERED FLASHING
SHEET METAL HEAD
FLASHING (SLOPED) WITH FOLDED END DAMS ATTACHED TO SLOPED WOOD BLOCKING
CONTINUOUS WATER SEAL AT HEAD, JAMB, AND SILL CONDITIONS
FLOOR ROOF TO CLT WALL
WALL BEYOND
INSULATED WINDOW
CONTINUOUS WATER SEAL AT HEAD, JAMB, AND SILL CONDITIONS
SHEET METAL SILL FLASHING W/ FOLDED END DAMS
7/8" CORRUGATED METAL RAIN SCREEN
SLIDING SHUTTER PANELS + TRACK


Completed: Undergrad | 4th Year| Spring 2021
Professors: Ulrike Heine, George Schafer, David Franco, Tim Brown
Programs: Revit, Lumion, Adobe Suite, Premiere Rush
Partners: Michael Caraballo + Autumn Hinson
Click Here to View Project Video
The Coastal Discovery Museum is a beloved, communityoriented institution that has remained committed to its roots of preserving the local environment, history, culture, and arts. The CDM inspires people to care for the Lowcountry by discovering connections between air, land, water, and living things for greater environmental awareness. Through this mission statement, we developed a proposal that highlights the beauty of the natural landscape and permeates local culture by incorporating strategic site planning, appropriate architectural design, and an emphasis on preservation of the natural landscape. The museum will feature gallery space that provides exposure for local artists and will house a large public area that acts as the main hall which encourages visitors to flow through the building and explore. The final component is the education wing where imagination and discovery can run wild in classrooms, studios, and outdoor learning zones.


INDOOR + OUTDOOR RELATIONSHIP
PAVILION
ECOLOGY POND
AMPHITHEATER
SCULPTURE GARDEN
IMMERSIVE ENVIRONMENT RESILIENCY


PROGRAM DIAGRAM





Professional Work, 2023-2024
Firm: Lake|Flato Architects
Programs: Revit, Enscape, ClimateStudio, Insight 360, BIM 360, Bluebeam
Mentors: Rebecca Sibley, Jamie Sartory, Hayley Hayes
This campus, located in Midland, TX, and originally designed by Frank Welch, is home to a private school which serves students in K-12th grade. I was a part of a team that was tasked with designing a new lower school to house students in K-4th grade, a new library and entry building, a small expansion of the original chapel, and an interior renovation of their current administration building. I was brought in to the project at the beginning of the SD phase and continued through the end of the DD phase where I aided in the design of the interior spaces and helped with documenting, Revit modeling, and coordinating with reps. I also played a role as the sustainability champion for this project where I was able to impact the design through daylight and energy analysis and the research of biophilic design.


Natural light enters the classrooms and common spaces through high performance windows providing views to nature and simulating a natural circadian rhythm which promotes overall wellness and productivity. With daylight studies, we were able to provide uniform lighting and glare reduction within in the classrooms for the optimal learning experience.

OCCUPIED SPACE NON-REGULARLY OCCUPIED SPACE
Healthy materials, robust acoustics, and natural daylighting positively impacts student performance. Clerestories, skylights and a sunshade/light shelf combo provide glare control Accessible storage and teaching walls enhance the acoustic design and establish independence and ownership in the classroom.


CLASSROOM STORAGE

Materials that emulate the outdoors are used throughout the interior, such as wood patterns and dried grass textures, reflecting the ecology of the area. The neutral color palette creates a calm setting and increases concentration to enhance the learning environment.





























































Professional Work, Fall 2022
Firm: AJ Architects
Program: Revit
Mentor: Ashley Jennings
This project is located in the historic district of Charleston, SC. My task was to assist in the design and project management of a new home and ADU keeping in mind the existing context. I modeled the project in Revit and created a conceptual drawing set including site plan, floor plans, and elevations that were reviewed by the Neighborhood Association as well as the local Board of Architectural Review (BAR). This project was granted approval for conceptual design.






















Professional Work, Summer 2022
Firm: Red Iron Architects
Programs: Revit, Lumion, AutoCad, Adobe Suite
Mentor: Emma Souder
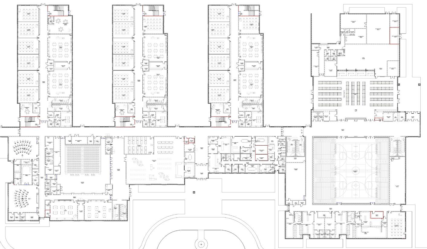
For this project, I was a part of a team that was tasked with designing a prototype for a high school. I helped with this project during the schematic and design development phases. I aided in the design of the school and generated the 3D Model in Revit. Then, I created a furniture plan, helped with the life safety plan, and created renderings. Time management and teamwork were vital for the success of this project due to its short time frame.



Professional Work, Spring 2022
Firm: Red Iron Architects
Programs: Revit, Lumion, Photoshop
Mentor: Joellen Rogers
This is a multi-phase project designed around a significant community landmark. The new educational building is to be site sensitive to preserve the natural landscape of the area. I created this design and rendering as a part of the preliminary design process and as a marketing strategy for obtaining the job.


1. Rockville Church, Pen
2. Vanderhorst Residence, Pencil
3. “Hailee,” Pencil
4. Mell Hall, Pencil
5. St. Philips Church, Pen
6. Shutter Dog Detail, Pencil
5. Fire Escape
6. Repetition











(803) 840.2570
Gauge Bethea gauge.gnb@gmail.com
Diligent, passionate, determined to succeed, versatile, adventurous, creative, industrious, and open-minded to knew possibilities.
