BITACORA TALLER

Page 1

PTTPSF

“(...) la relación entre arquitecto y naturaleza es de amor-odio.

La sostenibilidad consiste en construir pensando en el futuro, no sólo teniendo en cuenta la resistencia física de un edificio, sino pensando también en su resistencia estilística, en los usos del futuro y en la resistencia del propio y de sus recursos energéticos.”

Renzo Piano Arquitectura sostenible

TALLER DE ARQUITECTURA IV
CONTENIDO Descripción del proyecto ... ............................................................................. .. 04 Proceso de diseño ... ......................................................................................... 06 Analisis del entorno.... ............................................................................................................. . 07 Planos arquitectonicos.... .......................................................................................................... 09 Cortes arquitectonicos ..... ................................................................................................................ 14 Detalles constructivos.... ................................................................................................................... 17 Axonometria.... ............................................................................................................................... ..... 22 Perspectiva.... ............................................................................................................................... ........ 23 Detalle constructivo ilustrado.... ...................................................................................................... 24 Corte fugado... 25 Fachada ... 25

PLAYFIELD PTTPSF

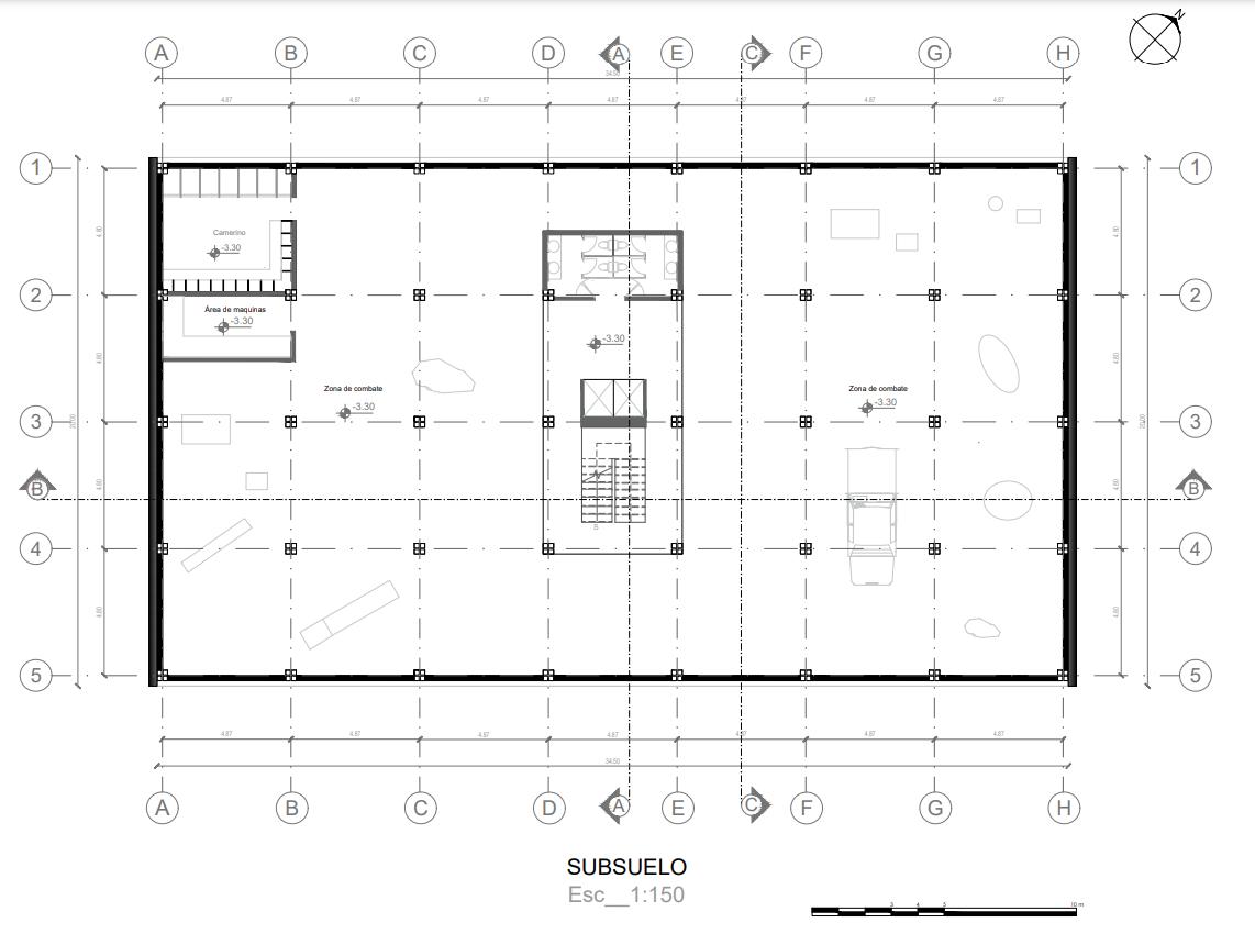
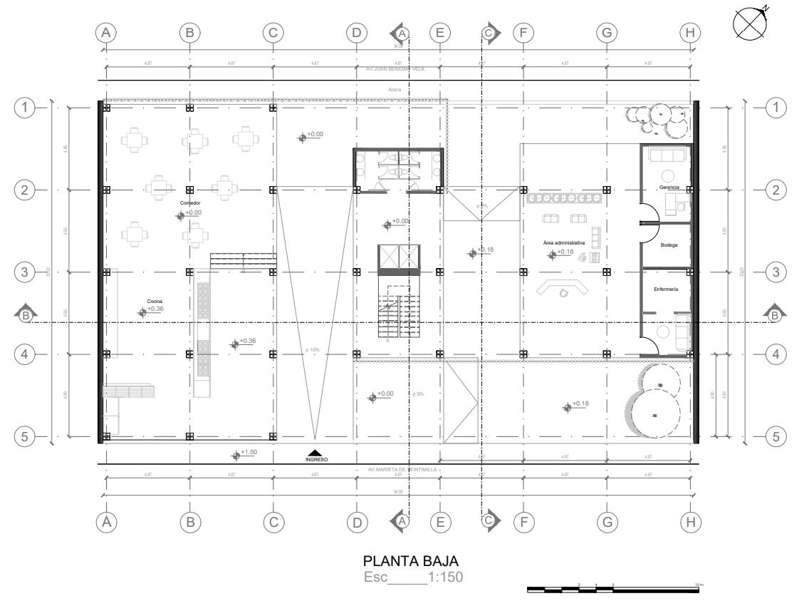
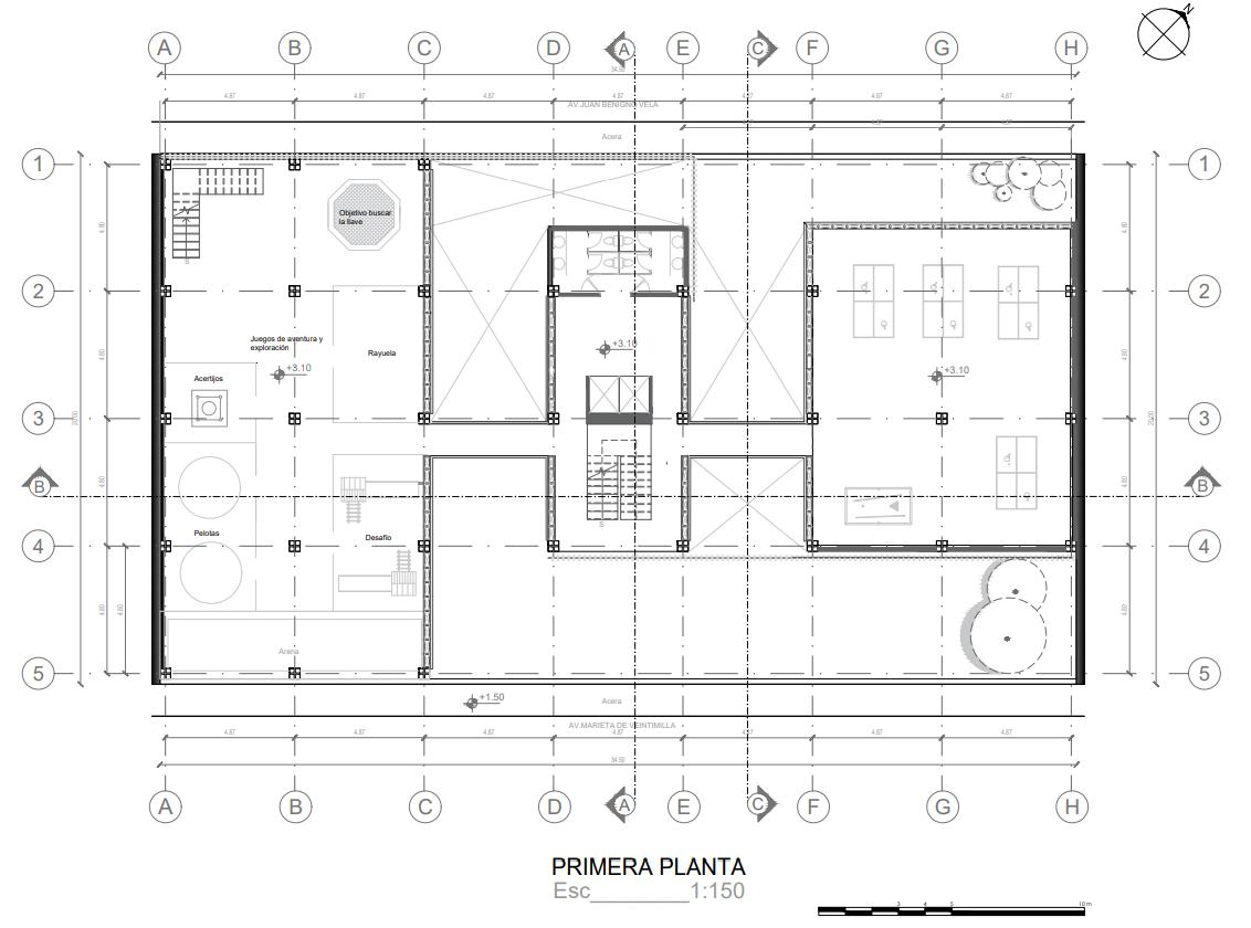
PTTPSF es una composición estereotómica de volúmenes dispuesta con diferentes alturas relacionado con el concepto de circulación que se convierte en el corazón del objetivo arquitectónico. La implementación de materiales de madera y acero es un proceso de adaptación del edificio a varias funciones. La propuesta arquitectónica está proyectada en una zona de gran congestión visual y de flujo comercial dentro de la ciudad. Es así que se plantea el objetivo de crear dos ejes que ayudan a interrelacionar a los habitantes del sector según su recorrido. En el sector existe un pronunciado carácter de centros educativos, mercados, viviendas por lo que existe una cohesión generacional entre adolescentes y jóvenes. La composición arquitectónica se resume en tres volúmenes aislados entre si unidos mediante puentes la cual pase puede apreciar lo tectónico y estereotómico.

Gabriela Michelle Valencia Salinas

Taller de arquitectura IV

Phd.Arq . Valeria Reinoso Naranjo

04
05

PROCESO DE DISEÑO

06

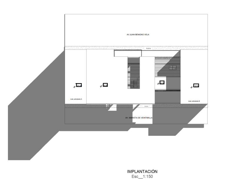
ANÁLISIS DEL ENTORNO

07

ANÁLISIS DEL ENTORNO

08

PLANOS ARQUITECTONICOS

09

PLANOS ARQUITECTONICOS

10

PLANOS ARQUITECTONICOS

11

PLANOS ARQUITECTONICOS

12

PLANOS ARQUITECTONICOS

13

CORTE ARQUITECTONICO

14

PLANOS ARQUITECTONICOS

15

CORTE ARQUITECTONICO

16

DETALLE CONSTRUCTIVO

17

DETALLE CONSTRUCTIVO

18

DETALLE CONSTRUCTIVO

19

DETALLE CONSTRUCTIVO

20

DETALLE CONSTRUCTIVO

21

AXONOMETRIA FUNCIONAL

AXONOMETRIA ESTRUCTURAL

22

PERSPECTIVA

23

PERSPECTIVA

24
25
FACHADA
CORTE FUGADO
SUR

DETALLES CONSTRUCTIVO

26

DETALLES CONSTRUCTIVO

27

GABRIELA VALENCIA

Turn static files into dynamic content formats.

Create a flipbook
Issuu converts static files into: digital portfolios, online yearbooks, online catalogs, digital photo albums and more. Sign up and create your flipbook.