Florida Water Resources Journal - October 2020

Page 1


NEED TREATMENT CAPACITY BUT ON A TIGHT BUDGET?

Evoqua’s DAVCO™ field-erected treatment plants (FETP) are ideal for expanding existing or new greenfield plants providing a solution for treating flows from 0.1 to 3 million gallons per day (MGD). Systems can be designed in a variety of configurations, including activated sludge processes, sequencing batch reactors, and oxidation ditch configurations.

Using shop-built components and field erection, the DAVCO FETP system o ers an economical, sustainable treatment solution that can be operational in months instead of years!

Photo courtesy of: WPC Industrial Contractors is the General Contractor of record.

Editor’s Office and Advertiser Information:

Florida Water Resources Journal

1402 Emerald Lakes Drive

Clermont, FL 34711

Phone: 352-241-6006 • Fax: 352-241-6007

Email: Editorial, editor@fwrj.com

Display and Classified Advertising, ads@fwrj.com

Business Office: P.O. Box 653, Venice, FL 34284-0653 Web: http://www.fwrj.com

General Manager: Michael Delaney

Editor: Rick Harmon

Graphic Design Manager: Patrick Delaney

Mailing Coordinator: Buena Vista Publishing

Published by BUENA VISTA PUBLISHING for Florida Water Resources Journal, Inc.

President: Richard Anderson (FSAWWA) Peace River/Manasota Regional Water Supply Authority

Vice President: Jamey Wallace (FWEA) Jacobs

Treasurer: Rim Bishop (FWPCOA) Seacoast Utility Authority

Secretary: Holly Hanson (At Large) ILEX Services Inc., Orlando

Moving?

The Post Office will not forward your magazine. Do not count on getting the Journal unless you notify us directly of address changes by the 15th of the month preceding the month of issue. Please do not telephone address changes. Email changes to changes@fwrj.com, fax to 352-241-6007, or mail to Florida Water Resources Journal, 1402 Emerald Lakes Drive, Clermont, FL 34711

Membership Questions

FSAWWA: Casey Cumiskey – 407-979-4806 or fsawwa.casey@gmail.com

FWEA: Karen Wallace, Executive Manager – 407-574-3318

FWPCOA: Darin Bishop – 561-840-0340

Training Questions

FSAWWA: Donna Metherall – 407-979-4805 or fsawwa.donna@gmail.com

FWPCOA: Shirley Reaves – 321-383-9690

For Other Information

DEP Operator Certification: Ron McCulley – 850-245-7500

FSAWWA: Peggy Guingona – 407-979-4820

Florida Water Resources Conference: 407-363-7751

FWPCOA Operators Helping Operators: John Lang – 772-559-0722, e-mail – oho@fwpcoa.org

FWEA: Karen Wallace, Executive Manager – 407-574-3318

Websites

Florida Water Resources Journal: www.fwrj.com

FWPCOA: www.fwpcoa.org

FSAWWA: www.fsawwa.org

FWEA: www.fwea.org and www.fweauc.org

Florida Water Resources Conference: www.fwrc.org

News and Features

Agencies

Chronic Underinvestment in America’s Water Infrastructure Puts Economy at Risk

Nominations for Leadership Awards Being Accepted

Port St. Lucie Utility Systems Launches Educational Video Library

Valve Assessment and Renewal Averts Critical Asset Failure—Brad Gresham

From AWWA—2020 Florida Section Education Winner: High School Academy Program

Water Research Foundation Announce New Projects 59 COVID-19 Pandemic is Wake-Up Call for Water Availability

Technical Articles

8 Hillsborough County Wet Well Dilemma: Fall Protection Evaluation and Implementation at Its Pump Stations— Brian J. Lewis, David D. Fox Sr., and Nicholas Eckhardt

28 A Method to Reduce Adverse Gassing Effects in Hypochlorite Pumping Systems—Scott Roane, Tom Ridgik, Eiman Abbas, and Harry Dillard 44 Annual Inflow and Infiltration Mitigation Planning Keeps the City of Altamonte Springs Poised to Handle Storm Events— Eric Gassen, Edward Talton, Christophe Robert, Ed Torres, and Kipton Lockcuff

Education and Training

Columns

16 FSAWWA Speaking Out—Kim Kowalski

19 Test Yourself—Donna Kaluzniak

20 FWEA Committee Corner: An Interview with Kevin Avaiya, Florida’s 2020 Stockholm Junior Water Prize Winner— Shea Dunifon

34 C Factor—Kenneth Enlow

40 FWEA Focus—James J. Wallace

42 Let’s Talk Safety: Reducing the Risk of Workplace Violence in the Water Industry

54 Reader Profile—Joe Paterniti

58 FWEA Chapter Corner—FWEA South Florida Chapter: A Success Story—Melody Gonzalez and Arturo Burbano

Departments

54 New Products 60 Classifieds

62 Display Advertiser Index

the City of Altamonte Springs handle storm events. For more information, go to page 44.

Federal Agencies Announce National Wastewater Surveillance System for COVID-19

The Centers for Disease Control and Prevention (CDC) and the U.S. Department of Health and Human Services, in collaboration with agencies throughout the federal government, are initiating the National Wastewater Surveillance System (NWSS) in response to the COVID-19 pandemic.

The data generated by NWSS aim to help public health officials better understand the extent of COVID-19 infections in communities across the United States.

The CDC is currently developing a portal for state, local, tribal, and territorial health departments to submit wastewater testing information into a national database for use in summarizing and interpreting the data for public health action. Participation in a national database will ensure data comparability across jurisdictions.

Data from wastewater testing are not meant to replace existing COVID-19 surveillance systems, but are meant to complement them by providing an efficient pooled community sample. The data are also for communities where timely COVID-19 clinical testing is underutilized or unavailable, and at the subcounty level.

Advantages of Wastewater Infectious Disease Surveillance

Nearly 80 percent of U.S. households are served by municipal sewage collection systems. Sewage testing has been successfully used as a

method for early detection of other diseases, such as polio. It’s been determined that SARS-CoV-2 can be shed in the feces of individuals with symptomatic or asymptomatic infection; therefore, wastewater surveillance can capture data on both types of infections. Quantitative SARS-CoV-2 measurements in untreated sewage can provide information on changes in total COVID-19 in the sewershed.

Depending on the frequency of testing, sewage surveillance can be a leading indicator of changes in COVID-19 burden in a community.

Is Wastewater Surveillance Right for the Community?

Wastewater surveillance of the virus that causes COVID-19 is a developing field. Health departments setting up a sewage-based infectious disease surveillance system should consider the following to generate data that are useful for a public health response:

S Sewage testing over time can provide trend data that can complement other surveillance data that informs public health decision making; however, at this time, it’s not possible to reliably and accurately predict the number of infected individuals in a community based on sewage testing.

S Community-level wastewater surveillance at a treatment plant will not capture homes on a septic-based system.

S Community-level wastewater surveillance at a wastewater treatment plant also will not capture communities or facilities served by decentralized systems, such as prisons, universities, or hospitals that treat their waste.

S Low levels of infection in a community may

not be captured by sewage surveillance. The lower limits of detection (i.e., the smallest number of people shedding the virus in their stool that can still be detected by current testing methods) for sewage surveillance are not yet well understood. More data on fecal shedding by infected individuals over the course of the disease are needed to better understand the limits of detection.

S All wastewater treatment plants may not be appropriate as sites for surveillance given their operations logistics (including if sewage is pretreated before it reaches the plant).

How to Become Engaged

Using wastewater surveillance for public health action requires a multidisciplinary approach. Communities interested in conducting wastewater surveillance for COVID-19 should identify the necessary local partners for sample collection, testing, and public health action.

Local partners should include state, local, tribal, and territorial health departments; COVID-19 epidemiologists; environmental health epidemiologists; laboratory scientists; wastewater treatment plants and workers; and testing laboratories. The CDC is not currently accepting sewage samples for testing.

The NWSS is currently ramping up efforts, through partnerships with state, local, tribal, and territorial health departments. Additional information, including sampling, testing, and interpretation guidance; minimum reporting requirements; and instructions for reporting through the data portal will be updated as they become available.

Chronic Underinvestment in America’s Water Infrastructure Puts Economy at Risk

The United States is underinvesting in its drinking water and wastewater systems, which is putting American households and the economy at risk, according to a new report released by the American Society of Civil Engineers (ASCE) and Value of Water Campaign. The report, “The Economic Benefits of Investing in Water Infrastructure: How a Failure to Act Would Affect the U.S. Economy Recovery,” finds that as water infrastructure deteriorates and service disruptions increase, annual costs to American households due to water and wastewater failures will be seven times higher in 20 years than they are today—from $2 billion in 2019 to $14 billion by 2039.

An Aging Infrastructure

America’s water infrastructure is aging, with many drinking water systems and wastewater treatment facilities nearing the end of their respective design lives (75 to 100 years), causing contamination and economic disruptions to communities. Between 2012 and 2018, the rate of water main breaks in the U.S. rose by 27 percent to roughly 300,000 breaks per year—equivalent to a break more than every two minutes. Leaking pipes lost the equivalent of $7.6 billion worth of treated water in 2019, and this loss is projected to more than double over the next 20 years, reaching $16.7 billion in 2039. In addition to the impact to

households, American businesses most reliant on water will spend $250 billion in 2039 on water service disruptions.

“As a nation, we have deferred crucial investment in our vital water resources for too long and we’re seeing the adverse results play out now,” said K.N. “Guna” Gunalan, ASCE president. “The 2019 investment gap of $81 billion outlined in this report has held back businesses, hurt American pocketbooks, and above all, threatened public health and safety. In addition, investing in water infrastructure now will provide a path to economic recovery that we desperately need as a result of the COVID-19 pandemic. Our leaders must act immediately to ensure our systems do not continue to deteriorate and bear greater costs in years to come.”

Said Radhika Fox, chief executive officer of the US Water Alliance, which coordinates the Value of Water Campaign, “In the past, investing in our water infrastructure as a nation allowed communities to flourish. It dramatically improved public health and set our economy up for success. At a time when so much is at stake, we cannot continue to ignore the urgency of the situation. Communities cannot shoulder the burden of capital improvements and maintaining aging water systems all by themselves. We have to come together and prioritize investing in our water infrastructure once again.”

Funding is Needed

In 2019, total capital spending on water infrastructure fell $81 billion short of the capital need. If funding and infrastructure investment trends continue, the annual gap will grow to $136 billion by 2039. Also in 2019, water service disruptions resulted in $51 billion economic loss for 11 water-reliant industries, such as education, health services, retail, construction, manufacturing, and more. With the current trajectory, service disruptions will cost waterreliant businesses an estimated $116 billion by 2029 and will soar to $264 billion by 2039. With damage and flooding from increasing storms, in addition to water shutoffs and deteriorating infrastructure, production costs for businesses and prices for consumers are expected to climb. The report finds that more than $625 billion in business sales (gross output) would be lost over the next 10 years. By 2039, that number will near $3.9 trillion. Failing to invest would cause reductions in wages and disposable income; by 2039, 636,000 jobs would be lost annually.

Investment Pays Dividends

The report also notes that the future does not have to look this bleak. If investment is increased to address these shortfalls now, the U.S. gross domestic product (GDP) would grow by $4.5 trillion in 20 years. This investment would create 800,000 new jobs and disposable income would rise by more than $2,000 per household.

A research team comprised of EBP, Downstream Strategies, and the Interindustry Forecasting Project at the University of Maryland (INFORUM) worked with ASCE and the Value of Water Campaign to develop this analysis. Go to www.asce.org to read the full report.

REACTOR PROCESS.

We have more than 55 years of experience in oxidation ditch technology and more than 2000 installations. Lakeside’s CLR process offers a variety of wastewater treatment options, including several operational modes, nitrogen and phosphorus removal, and an adaptable configuration, providing maximum flexibility with consistently high quality effluent. The CLR process is simple to operate and can be configured in several shapes, including the conventional racetrack, folded U-shape or concentric multichannel designs. Lakeside’s staff delivers full service from initial concept through construction to plant operation. The result: reliable results with minimal operator attention and maintenance. When performance counts, count on the industry leader for more than 90 years!

4906 U.S. Hwy 27 South Sebring, FL 33870-5653

863.382.2101 Phone 863.382.7639 Fax trippensee@htn.net

Speak to one of our experts at 630.837.5640, email us at sales@lakeside-equipment.com, or visit www.lakeside-equipment.com for more product information.

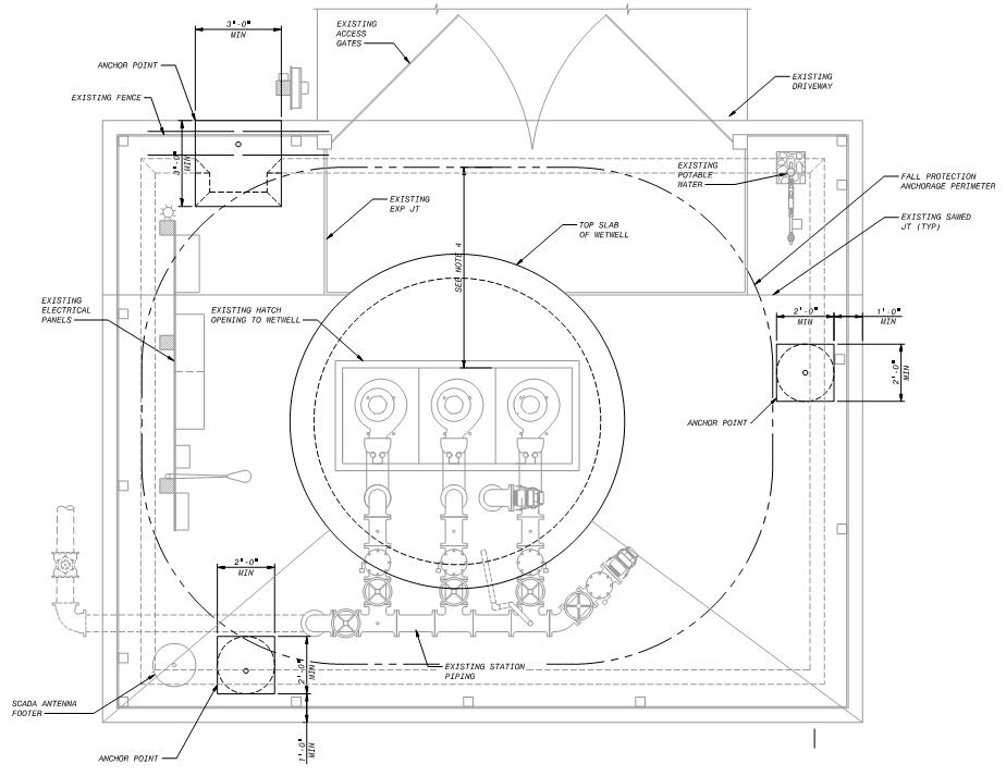
Hillsborough County Wet Well

Dilemma: Fall Protection Evaluation and Implementation at Its Pump Stations

Founded in 1834 and boasting a population of approximately 1.4 million, Hillsborough County (county) is the fourth most populous county in Florida. The Hillsborough County Water Resources Department (HCWRD) provides drinking water and wastewater treatment services to the unincorporated portions of the county.

The HCWRD operates four water treatment plants, eight wastewater treatment plants, a biosolids facility, and administrative and field support facilities. The sewer system serves an area of 294 sq mi, with 171,009 sewer connections, and includes 826 collection system sewage pump stations.

Each pump station receives routine cleaning and maintenance services performed by HCWRD personnel. The HCWRD promotes a strong safety culture and is continuously looking for opportunities to improve safety for its staff. Currently, the relevant standard operating procedures (SOPs) for maintenance at the pump stations include fall hazard protection and tieoff points. These points are typically located on existing pump station features, such as:

S Control panel supports

S Fence posts

S Maintenance trucks

The availability and location of tie-off points vary greatly between stations, since there are many different station configurations, and over the years, HCWRD built the stations to varying standards.

In 2018, HCWRD investigated standardizing the safety equipment used. It retained Black & Veatch, a consulting engineering firm, to review available safety options for working in or around openings; specifically, the HCWRD pump stations wet wells. Black & Veatch worked with HCWRD to review the various station configurations and examine representative sites containing various tie-off point configurations. The goal is to develop a safety solution that covers various station sizes and layouts.

Part of the safety solution was defining the type of safety coverage. The primary concern is employee safety; therefore, fall protection and fall prevention are defined as follows:

S Fall protection systems use tie-off locations and fall arresters to limit the distance and force on the user’s body during a fall.

S Fall prevention systems prevent the user from being able to proceed past the edge of the fall hazard by employing either a physical barrier (such as a railing) or fall

Brian J. Lewis, E.I., is an engineer intern, and David D. Fox Sr. is assistant section manager, with Hillsborough County Water Resources Department in Tampa. Nicholas Eckhardt, P.E., is a project manager— water, with Black & Veatch in Tampa.

restraint system (such as lanyards with tieoffs) designed to prevent the employee from passing the edge of the wet well.

A fall may still result in injury or death, even though a fall protection system fall arrester prevents an employee from falling to the bottom of the wet well. The fall may result in an employee being trapped in the wet well, unable to climb out, unconscious as a result of the fall, and/or overcome with toxic fumes.

Some sites are remote (with no cellphone service) and a single employee performs most maintenance work. Reducing or eliminating these risks drives the county forward in its safety goals with fall prevention procedures.

Continued on page 10

Figure 1. Existing station tie-off to electrical panel supports.
Figure 2. Ground anchor connections.

IMS Paste-Lime Slakers & Bulk Chemical Storage Silos

and Feed System

s

A-758™ and A-758 Plus™ Paste-Lime Slakers

Patented water panel locally mounted (# 9,908,812, #10,494,297)

• Paste-type lime slaking with more reactive hydrated lime slurry production and lower quicklime operating costs

• Proven and robust mechanical water control torque valve with PLC or relay logic based operation

• Improved and reliable non-proprietary electronic water control valve option with PLC-based operation

• Pre-assembled and piped water distribution panel for easy access, remote mounting options, and faster delivery

• Capacities: 500, 1,000, 2,000, 4,000, 8,000 lb/hr

• Volumetric or gravimetric belt-type or screw-type feeder options

• Standard conveyor, screen or new screw-type grit remover options

• 2,000+ parts in inventory for fast delivery

Bulk Chemical Storage Silos and Feed Systems

Represented by:

• Stores and feeds dry hydrated lime, quicklime, powdered activated carbon (PAC), or soda ash in a silo, dissolves it in a tank, and pumps the chemical solution to the point of application

• Tailored to the project’s needs

• Pre-assembled, piped, wired and factory-tested

• Fully engineered and integrated

• Single-piece welded silo construction (up to 14-foot in diameter)

• Skirted interior with insulation, lighting, fans, dampers, louvers, and heaters

• Completely automatic control system with PLC

• Flexible configurations and options for individual installation requirements

• Can be used in conjunction with the IMS A-758™ and A-758 PLUS™ Paste-Lime Slakers

Simplicity by Design, Reliability by Experience

Continued from page 8

Safety Options

There are many different safety options, and Black & Veatch’s engineers and safety experts examined fall prevention methods specific to HCWRD’s needs.

The HCWRD has recently purchased selfretracting lifelines/lanyards with fall arresters. These lanyards are 9 ft long and used to tie off electrical panels, fence posts, or service trucks. These anchor points are at various locations around the site, and they aren’t positioned well for equipment use, wet well access, and work efficiency.

The following safety options were explored, which include a brief explanation of their use.

1. Continue Tie-Offs to Existing Infrastructure. Per Occupational Safety and Health Administration (OSHA) requirements, each tie-off point for fall protection must be able to withstand 5,000 lb per person. The structural design of the existing infrastructure (Figure 1) was analyzed and it was determined that the infrastructure was

of varying standards and not strong enough to use as tie-off points. Tying off to existing infrastructure is a low-cost option, since the infrastructure and lanyards already exist; however, since the infrastructure strength is insufficient, it does not present a viable option.

2. Add Tie-Offs to Ground Anchors. This includes adding multiple ground anchors around the site to provide tie-off locations that allow access to each part of the station. This option may require removal of existing concrete to install the anchors (Figure 2), but is, overall, a lower-cost option. The main disadvantage is that the tie-off points are installed at ground level, and for the fall prevention to be effective, tie-off points need to be overhead (above the personnel attachment point of the harness).

3. Install Overhead Beams or Cables for Anchor Points

This option puts the tie-off locations overhead, which meets proper tie-off requirements; however, this option can be quite costly, will not include full coverage at all sites, and is unsightly for neighbors adjacent to the pump station (Figure 3).

4. Permanent Railings. Permanently installed railings

are in use at some HCWRD pump stations (Figure 4), and the railings, with access gates, were evaluated. The railings provide full fall prevention; however, when the gate needs to be opened for certain maintenance activities, there is a fall risk.

5. Portable Railings. Similar to the permanent railings, this option is for portable-type railings with gates (Figure 5). These railings are adjustable for each unique site layout where installing permanent railings isn’t feasible due to space constraints or station configuration.

6. Safety Grates. This option includes installing a grating that covers the wet well opening when the hatch is open (Figure 6); the grating then folds upward to serve as protective barriers similar to railings. The grating is removable when necessary for access, but doing so removes the fall prevention. This option was deemed to be cost-prohibitive.

7. Vehicle Hitch Mount. The HCWRD could outfit every maintenance truck with a hitchmount system to eliminate the fall hazard when accessing wet wells. The operator can place the hitch-mount system as needed to access the site

Figure 3. Representation of an overhead system.
Figure 5. Staff demonstrating use of portable railings.
Figure 6. Current pump station with safety grate.
Figure 4. Existing site with permanent railing.

to provide an overhead tie-off location (Figure 7). The only limitation is that there may be some sites where truck access is not available. The system has the advantages of being portable, useful for most sites, and available from multiple locations on a single site when used in conjunction with floor-mount davit bases.

8. Fall Arrest Anchor Post. This option utilizes a fall arrest anchor post with permanently installed anchor points (Figure 8). This system is similar to the hitch-mount hoist in functionality, but instead uses permanent anchor points. The operator can move the single unit as needed to each anchor point. These provide adequate tieoff locations for multiple users, but are difficult for a single employee to move around at the site.

9. Safety Alert System. There are several devices available that can send a manual or automatic emergency request and track employees when in use (Figure 9). The systems detect falls and can be programmed to automatically call a designated person when an event occurs. They use cellphone service, which could be an issue at a remote site. Another disadvantage is that the unit may not be easily accessible during an emergency, could have a low or dead battery, and is not proactive as a fall prevention measure by itself.

Design Options

After reviewing and discussing the safety options, HCWRD decided to move forward employing a mix of them. These options would be standardized and allow for full coverage for each existing station configuration, as well as new stations.

1. Railings. The HCWRD will provide a certain amount of portable railings to be used as needed. These will be set up to provide fall prevention when there are multiple employees or visitors present at the site. The railings could limit certain maintenance activities, but will allow flexibility for routine inspection activities and provide a solution for smaller sites. For some larger sites, HCWRD can install permanent railings if the specific layout, and where the station design, calls for it.

2. Hitch-Mount Hoists. Each maintenance truck is supplied with a hitch-mount hoist. Operators can position a single truck or multiple trucks to provide tie-off points around the station. At some sites, multiple trucks (or even a single truck) will have difficulty with positioning to allow adequate tie-off locations. To account for this, the installation of floor- or flush-mount davit bases in multiple locations around the site will provide additional anchor points for situations where multiple employees are onsite. These anchors allow moving the hitch-mount hoist from the hitch mount to these ground anchors.

3. Portable Anchor Post. For certain stations when there is limited truck access to the site for

hitch-mount hoists, anchor posts will be used to provide tie-off locations. This post system is specifically designed to allow for multiple employees to simultaneously connect and can

located around the site. This post system is currently installed in two stations and provides adequate fall protection, but is not compatible with the hitch-mount system.

Continued on page 13

Figure 7. Staff demonstrating use of a hitch-mount system.
Figure 8. Fall arrest anchor post (left) and post ground anchors (right).
Figure 9. Representation of a safety alert system.
Figure 10. Existing pump station standard layout/configuration with new anchor points.
Figure 11. New pump station with anchor points.
Figure 12. New flush-mount floor sleeve with thickened slab.
Figure 13. New raised pedestal floor sleeve.
Figure 14. Free-standing base.
Figure 15. Anchor types.

Continued from page 11

Implementation

Part of implementing the fall prevention plan is to cover both existing and new sites. The HCWRD asked for a site layout design for existing sites. For typical site activities, a maintenance truck accesses the site and uses the hitch-mount system. The site layout design provides for multiple points to install floor- and flush-mount davit bases that accept the hitch-mount hoist. The site design also identifies the locations for the davit base system.

Site visits help determine the locations around the site, with an estimated two anchor points per station. Anchor points are located to account for access to the electrical panel and wet well, while including structural limitations, such as the edges of concrete, slab expansion joints, and distance from other anchor points.

Site layout design structural considerations account for the forces on the davit bases in the event of a fall. Multiple base footing options were designed as follows:

S Slab thickening

S Raised pedestal

S Free-standing base

These foundation designs, combined with the hoist receiver options of a flush- and floor-mount sleeve, allow for flexibility in retrofitting various existing site layouts and structural conditions. Each existing station will be examined for wet well access and safety connection requirements. For new (future) pump stations, HCWRD will implement “safety by design” by incorporating a fall protection system into the standard configuration (Figure 10).

Retrofitting the 826 existing pump stations will be a significant challenge. A new station site layout provides for safety in future stations. The overall layout and options are similar to the retrofit design, but with a few key differences. Options for installation can be simplified and standardized, since new stations will adhere to the updated HCWRD standards (Figures 11-15).

The HCWRD’s existing SOPs must be updated to implement these fall prevention safety systems and station-specific uses, along with employee training.

Components, such as lanyards and hitchmount hoists, have been purchased by HCWRD. The systems will be installed in the future at existing stations, and new stations will incorporate the safety systems by design.

Conclusions

The HCWRD considers it very important to involve its employees in the process of selecting a new fall protection system and to get their input

into what systems are the easiest to use and will best integrate into the SOPs. This encourages employee buy-in and the likelihood that they will use the equipment after installation.

After the initial safety option recommendations were made, HCWRD purchased small quantities of the preferred equipment (Figures 16 and 17) and had maintenance teams use the equipment and provide feedback, which went into the final determination of which options to use. It was found, however, that no single solution could accommodate all situations

due to the large variation of design standards and layouts for pump stations over the years. It’s very important to have multiple solutions covering all the different designs. The HCWRD estimates that approximately $4 million will be needed to purchase and install the equipment needed to retrofit its 826 pump stations, which is approximately $4,500 per station. The work is scheduled to be complete by the end of 2022. The county is adding the new floor-mount davit

Continued on page 14

Throughout Florida, across the U.S., and in the UK and Asia, communities work with us to prepare for and withstand threats to their water, wastewater, energy and telecommunications infrastucture: Resolving flooding and climate change challenges, becoming energy efficient, reducing O&M costs, meeting regulatory requirements, and optimizing operations through smart analytics. Visit bv.com to see how we are building a world of difference by operationalizing resilience.

Continued from page 13

receptacles to its standards and estimates an additional $3,500 per station for new pump stations. The vehicle hitch-mount system was installed by HCWRD on its fleet of maintenance trucks and its use is now incorporated in the SOPs. It’s effectively being used on a daily basis and employee feedback has been positive. Floor- and flush-mount

davit bases that accept the hitch-mount hoist have been installed in 41 pump stations to date, and there is a contract to complete a total of 90 stations by early 2021 with a continuing services contractor.

Portable railing systems have been purchased and are in use at pump stations that are too small or have access issues to preclude the use of the vehicle hitch-mount system. The portable anchor post

system is in use at two pump stations and has been purchased for installation at another eight stations. Floor- and flush-mount davit bases have been purchased for installation at another 250 pump stations. Once scoping is completed, additional contracts with continuing services contractors will be set up for installation.

Figure 16. Recently installed flush-mount anchor does not block access or introduce a trip hazard.
Figure 17. Recently installed pedestal mount anchor.

Operators: Take the CEU Challenge!

Members of the Florida Water and Pollution Control Operators Association (FWPCOA) may earn continuing education units through the CEU Challenge! Answer the questions published on this page, based on the technical articles in this month’s issue. Circle the letter of each correct answer. There is only one correct answer to each question! Answer 80 percent of the questions on any article correctly to earn 0.1 CEU for your license. Retests are available.

This month’s editorial theme is New Facilities, Expansions, and Upgrades . Look above each set of questions to see if it is for water operators (DW), distribution system operators ( DS), or wastewater operators (WW). Mail the completed page (or a photocopy) to: Florida Environmental Professionals Training, P.O. Box 33119, Palm Beach Gardens, Fla. 33420-3119. Enclose $15 for each set of questions you choose to answer (make checks payable to FWPCOA). You MUST be an FWPCOA member before you can submit your answers!

A Method to Reduce Adverse Gassing Effects in Hypochlorite Pumping

(Article 1: CEU = 0.1DS/DW/WW02015372)

1. Which of the following is not among the guidance given to prevent degassing in hypochlorite pump suction lines?

a. Liquid velocity not exceeding 0.1 ft/second

b. Maximum detention time of four hours

c. Maximum piping run of 500 ft

d. Liquid velocity not greater than 7 ft/second

2. The city’s selected type of hypochlorite recycle pump was a. peristaltic. b. centrifugal.

c. diaphragm. d. solenoid.

3. The city’s daily degassing protocol includes

a. purging the air release valve.

b. briefly increasing the recycle pump speed to 100 percent.

c. briefly shutting off the recycle pump.

d. disconnecting and purging the feed pump head.

4. Which of the following catalyzes the reaction by which oxygen is purged from the hypochlorite ion?

a. Metallic components b. Certain types of plastics

c. Hypochlorous acid d. Ammonia

5. When using a hydraulic diaphragm pump, which of the following pump settings is recommended to minimize degassing?

a. High speed, high stroke b. High speed, low stroke

c. Low speed, high stroke d. Medium speed, medium stroke

Annual Inflow and Infiltration Mitigation Planning Keeps the City of Altamonte Springs Poised to Handle Storm Events

Eric Gassen, Edward Talton, Christopher Robert, Ed Torres, and Kipton Lockcuff (Article 2: CEU = 0.1WW02015373)

1. The sanitary sewer overflow analysis and planning (SSOAP) toolbox was developed by the

a) Florida Department of Environmental Protection.

b) City of Altamonte Springs.

c) Water Environment Federation.

d) U.S. Environmental Protection Agency.

2. ______________ was/were not initially counted as defects within the pipe segment prioritization.

a) Joint separation

c) Damaged service laterals

b) Root infiltration

d) Deposits

3. Which of the following repairs were incorporated into the smoke testing program?

a) Stormwater cross connections

c) Cleanout defects

b) Damaged manhole structures

d) Defects requiring significant excavation

4. ___________________ is used to cure resin in a cured-in-place pipe (CIPP) lining system.

a) Water b) Air c) Heat d) Elastomeric catalyst

5. In developing its evaluation program, the city used __________________ year(s) of supervisory control and data acquisition (SCADA) data.

a) one b) two c) five d) ten

FSAWWA SPEAKING OUT

Back to School 2020: FSAWWA Supports the “New Normal”

he FSAWWA has been involved in a partnership with high school academies throughout the state for the past nine years. We have committed to financial support for textbooks, laboratory supplies, and travel support for plant tours. This is a great program and expands every year with the addition of a new academy.

I would like to thank Shea Dunifon, education coordinator for Pinellas County

Utilities, for the information about Seminole High School Academy, and Andrea Armstrong, career program specialist and academy coordinator with St. Johns Technical High School, for her “blurb of thanks” included here. I appreciate their continued relationship with FSAWWA.

Seminole High School Academy

The return to school in fall 2020 will be unlike any other. Long before COVID-19, plans were under way for Seminole High School Academy, which is part of Pinellas County Schools (PCS), to launch its new water resource sustainability program this fall. This program will enable the students to take three core courses:

S Introduction to Environmental Water Technology

S Intermediate Environmental Water Technology

S Advanced Environmental Water Technology

There’s also an optional water reclamation course during their senior year.

Students will then be granted permission via a waiver from the Florida Department of Environmental Protection (FDEP) to take either the level 3 drinking water and/or C level wastewater operator licensure exam. Upon graduation, students will need to complete 2,080 hours of service at a treatment facility as an operator trainee to receive their license.

Starting a new program isn’t an easy feat, even for a seasoned teacher like Jerry Cantrell,

From left to right are Ken Broome, Region IV chair; Shea Dunifon ; Jane Lucas; and Jerry Cantrell with books from the section for Seminole High School Academy students.
Jane Lucas (right) accepts training books from Ken Broome.
Jane Lucas (left) and Jerry Cantrell demonstrate the COVID greeting.
Ken Broome (left) receives a thank-you gift of a coffee mug from Jane Lucas and her school.
Jane Lucas (left) and Shea Dunifon give a thumbs up!

who will be leading the program as part of the PCS career and technical education (CTE) programs at Seminole High Engineering Academy. Cantrell and Jane Lucas, Seminole High principal, joined forces with the FSAWWA High School Operator Initiative in summer 2019 to learn more about career opportunities for their students, including alternatives to traditional college-bound programs.

First, Cantrell will need to study and receive operator certifications in both drinking water and wastewater, as well as pass a CTE certification. While this may seem like a lot of work, many FSAWWA members stepped up to help with the program’s progress and provide encouragement.

Working with the section’s Region IV members, Seminole High has received support through discussions with different community partners, like the Southwest Florida Water Management District, Tampa Bay Water, Pinellas County Utilities, City of St. Petersburg, City of Tarpon Springs, FDEP, Career Source Pinellas,

and Pinellas County Economic Development to connect with the experts it needs to build a successful program.

In addition to building networks in the community, the FSAWWA board of directors approved the purchase of 10 copies of each of the four books required for study to take the level 3 and/or wastewater C operator licensure examinations. These books will be used by PCS students this fall.

“It’s the support from community partners, such as FSAWWA, that make it possible for public schools to provide full and enriching educational experiences for their students,” said Cantrell. “The literature provided by FSAWWA will enable Seminole High to train the next generation of water and wastewater operators.”

In addition to providing books for the students to use, FSAWWA is assisting Seminole High by finding grant funding for its courses, sponsoring enrichment opportunities for its students (e.g., the Model Water Tower

Competition), printing marketing collateral for students via brochures, and donating “No Operator, No Water” wristbands.

In preparation of the launch of the new water resource sustainability program, Seminole High competed in its first Region IV Model Water Tower Competition in November 2019, where it took second place in the high school category. This past June, six students from Seminole High interned at the Pinellas County Utilities South Cross Bayou Advanced Water Reclamation Facility for two weeks to learn about the facility’s operations and the types of careers it offers. Students shadowed operators and electrical equipment technicians. The remaining four weeks, however, were done virtually due to concerns of rising COVID-19 cases across the state.

While some students will be returning to brick and mortar school buildings, and others will be attending from virtual classrooms, the water

Continued on page 18

Students at St. Johns Technical High School working with their textbooks provided by FSAWWA.

Nominations for Leadership Awards Being Accepted

Winners introduced at Water Quality Association convention in 2021

Nominations and applications are open for the Water Quality Association (WQA) annual leadership awards, which recognize individuals and companies who have excelled in their service to the water quality improvement industry.

Members of WQA, as well as their peers and colleagues within the water industry, are encouraged to submit a nomination for one of the following awards:

S Hall of Fame

S Lifetime Membership

S Key

S Ray Cross

S Regents

S Award of Merit

S International Award of Merit

S Honorary Membership

S Next Gen Award

Applications are also being taken for the WQA Excellence Award, established in 2017 to honor member companies that demonstrate excellence in customer service, business operations, community service, and innovation in two categories: manufacturer/supplier and dealer. Companies apply for this honor, rather than being nominated. At a minimum, the applicant must have been a WQA member for three years, sell or manufacture certified products, and have at least one certified professional on staff.

Deadline for nominations and applications is October 7. Nominations are evaluated against individual award criteria, and winners are chosen by the WQA board of governors. Not all awards are necessarily given each year.

Winners will be introduced at the next WQA Convention and Exposition, scheduled to be held April 27-29, 2021, in Las Vegas.

To learn more and to see past award recipients, visit https://www.wqa.org/ awards.

Continued from page 17

resource sustainability program will still go on as planned.

It’s important to note that, while the school year won’t proceed as usual, we’ll try to maintain some sense of normalcy, issuing student textbooks and continuing to connect teachers with the resources—including people—they need to keep moving forward.

There are a lot of people to thank, in addition to Jane Lucas and Jerry Cantrell, for making this partnership possible, including:

S Michael Condran

S Peggy Guingona

S Donna Metherall

S Mark Lehigh

S Jason Parrillo

S Kenneth Broome

S Daniel Glaser

S Steve Soltau

St. Johns Technical High School

The faculty and other personnel at St. Johns Technical High School and the Academy of Coastal and Water Resources want to express how much they appreciate the generous support FSAWWA gives to the CTE program each year. We recently received two hefty boxes full of the Sacramento State Water and Wastewater Treatment Plan textbooks, with online access, as well as the water and collection systems video training series, and I want to extend a big “thank you”!

The videos will be even more beneficial now that we are charting unprecedented waters in education, and students are learning in the classroom, as well as from home, simultaneously. Field studies are on hold, so the videos will help students see the various industry operations and mechanics.

Guest speakers most likely will not be coming to campus for awhile, so we are looking at scheduling virtual speakers. Going virtual will allow more opportunities to connect with folks— both statewide and nationally!

Steve Soltau, thank you! You are always so proactive in connecting us with the support systems and industry folks we need.

We sincerely appreciate the continued collaboration and support of FSAWWA and we look forward to working with you again this school year!

I would like to thank all of the high school academies for their commitment to developing the next generation of water industry workers, and the section will continue to do all it can to help them.

Please continue to stay safe and healthy!

Test Yourself

What Do You Know About Public Notification Requirements?

1. Per the U.S. Environmental Protection Agency (EPA) Public Notification Rule website, a Tier 1 notification (immediate notice) must be issued when human health may be immediately impacted. Public water suppliers must provide notice to the public as soon as possible, but no later than

a. two hours.

b. eight hours.

c. 12 hours.

d. 24 hours.

2. Per Florida Administrative Code (FAC) 62-560, Requirements for Public Water Systems That Are Out of Compliance, how must the public water suppliers provide a Tier 1 notice regarding an acute risk to human health?

a. Mailed letters to affected public

b. Radio and television broadcasts

c. Social media

d. Telephone calls

3. Per FAC 62-560, for violations of a nonacute maximum contaminant level, a Tier 2 notification by mail or hand delivery must be provided and by publication in a daily newspaper as soon as possible, but no later than how long after the system learns of the violation?

a. Three days

b. Seven days

c. 10 days

d. 30 days

4. Per FAC 62-560, what type of violation would require a Tier 3 notice?

a. Failure to perform monitoring for a secondary contaminant.

b. Maximum contaminant level violation for nitrate or nitrite.

c. Violation of the maximum residual disinfectant level for chlorine dioxide in the water distribution system.

d. Violations of a nonacute maximum contaminant level.

5. Per EPA’s Public Notification Rule website, the following are included in the 10 required elements in a public notice except

a. a description of the violation that occurred.

b. language encouraging broader distribution of the notice.

c. the amount of fines and penalties incurred by the water supplier.

d. the potential health effects of the violation.

6. Per FAC 62-560, public water suppliers must issue a recission of the notification once the violation or failure has been resolved. The method of delivery shall address the same target audience and be

a. hand-delivered to the affected locations.

b. in the same manner as the initial public notice.

c. issued through radio and television media.

d. sent through the mail.

7. Per the Florida Department of Environmental Protection (FDEP) website, Public Notification Requirements for Public Access Reuse Systems, owners/operators of public access reuse systems must ensure that users of reclaimed water are informed about the origin, nature, and characteristics of reclaimed water and limitations on the use of reclaimed water. Acceptable methods of notification include

a. advisory signs and public notification flyers.

b. newspaper advertisements.

c. social media posts.

d. statements on utility bills.

8. Per FAC 62-610, Reuse of Reclaimed Water and Land Application, permittees must ensure that users of reclaimed water are informed about the origin, nature, and characteristics of reclaimed water; the manner in which reclaimed water can be safely used; and limitations on the use of reclaimed water. Notification is required at the time of initial connection to the reclaimed water distribution system and how often afterwards?

a. Annually

b. Biannually

c. Every five years

d. Every 10 years

9. Per FAC 62-604, Collection Systems and Transmission Facilities, owners/operators of collection/transmission systems shall report to the department all unauthorized releases or spills of

wastewater to surface water or groundwaters from its collection/transmission system or any other abnormal events within 24 hours. In addition to the local office, they must report the event to the State Warning Point within 24 hours if the public health or environment is endangered or if the volume of the spill is greater than

a. 100 gallons.

b. 500 gallons.

c. 1,000 gallons.

d. 2,500 gallons.

10. Per the FDEP Public Notice of Pollution website, Section 403.077 Florida Statutes requires facilities to submit a public notification of pollution to

a. FDEP.

b. local media.

c. social media outlets.

d. the utility’s website.

Answers on page 62

References used for this quiz:

• FAC 62-560, Requirements for Public Water Systems That Are Out of Compliance

• FAC 62-610, Reuse of Reclaimed Water and Land Application

• FAC 62-604, Collection Systems and Transmission Facilities

• FDEP’s Public Notification Requirements for Public Access Reuse Systems website: https://floridadep. gov/water/domestic-wastewater/content/publicnotification-requirements-public-access-reusesystems

• FDEP’s Public Notice of Pollution website: https:// floridadep.gov/sec/sec/documents/public-noticepollution

• EPA’s Public Notification Rule website: https://www. epa.gov/dwreginfo/public-notification-rule

Send Us Your Questions

Readers are welcome to submit questions or exercises on water or wastewater treatment plantoperations for publication in Test Yourself. Send your question (with the answer) or your exercise (with the solution) by email to: donna@h2owriting.com

FWEA COMMITTEE CORNER

Welcome to the FWEA Committee Corner! The Member Relations Committee of the Florida Water Environment Association hosts this article to celebrate the success of recent association committee activities and inform members of upcoming events. To have information included from your committee, send details to Melody Gonzalez at gonzalezm@bv.com.

An Interview with Kevin Avaiya, Florida’s 2020 Stockholm Junior Water Prize Winner

The Stockholm Junior Water Prize (SJWP) is considered the most prestigious award in the world for high school students to receive for their efforts in researching and providing innovative solutions to combat global water challenges. The purpose of the competition is to increase students’ interest in water-related issues and sustainability, while increasing awareness of issues from across the globe.

The International SJWP was founded by the Stockholm Water Foundation. The HRH Crown Princess Victoria is the patron of the prize. In a royal ceremony, during World Water Week in Stockholm, Sweden, the international winner receives $5,000 USD and a blue crystal sculpture in the shape of a water droplet, crafted by Hanne Dreutler.

In the United States, the Water Environment Federation (WEF) and its member associations

host the country’s SJWP competition with support from ITT Industries, The Coca-Cola Company, and Delta Airlines. The WEF member associations select state SJWP winners and sponsor travel for the top student and the student’s teacher to the national competition.

FWEA Participation

For over 10 years, members of the Florida Water Environment Association (FWEA), through its Public Communication and Outreach Committee (PCOC), have worked at the local and state level to facilitate the SJWP competition.

In 2020, Florida received 17 entries for the SJWP and awarded first place to Kevin Avaiya of Strawberry Crest High School for his research, “Development of a Water-Stable Metal-Organic Framework/Thiol-Functionalized Polymer Composite for Selectivity and Rapid Removal of Arsenic in Water.”

Interview

I had a chance to interview this rising high school senior, who is by all means an inspiration to the industry.

Shea: What is one interesting fact or thing that you would like to share about yourself?

Kevin: I’d say the most interesting thing would be that I’m ambidextrous. For example, I can write with both hands, but I predominantly use my right hand because my left hand might get in the way of other people whenever we’re at a desk together. When I’m drawing, I can use both my hands. I usually play sports, like basketball and

tennis, with my left hand, and then when I’m doing my sign language, I use my left hand.

Shea: You mentioned basketball and tennis. Do you play basketball or any other sports in particular, or do you just like a little bit of everything?

Kevin: I played basketball for a little bit in middle school and then I switched to tennis in high school. I’ve been playing tennis on the varsity team for the past three years now. I take a lot of pride in playing tennis; you know, it’s relaxing after school, and also playing the sport aggressively because that’s what I love. It’s a hot pace—it’s always go, go, go. So, in the heat of the match its fun because you know you’re always against an opponent who has the same passion and drive as you, and so you want to see who is going to meet you or who is going to beat you at the top. After school, whenever I don’t have tennis practice, I like to spend my time volunteering and helping kids with special needs play the sport as well.

Shea: Wow. You’re a busy guy! You’re going to fit into this industry so well, as I feel like we’re the busiest people “keeping the water flowing.” Now, I’d like to get a little bit into your research. I read in your biography that you’ve been doing research in water since fourth grade. Can you tell me a little bit about how that started?

Kevin: I was blessed with an opportunity to work in fourth grade because of what I had seen when I went to India that past summer. I had a firstperson account of how these local villages and communities had limited resources in getting access to clean water. One of the most important things was that when I went there, their water was just completely murky; I could see all these impurities and sediment that was forming. I can’t even imagine how much bacteria could be in that water, and one of the things these locals were conveying to me in their language was that they would have to drink their water because a

Shea Dunifon
Melody Gonzalez
Kevin proudly displays his certificate and medal as the Florida state winner of the Stockholm Junior Water Prize competition.

clean source of water would be miles away and they would have to walk on foot to travel long distances in order to get that water and bring it back for everyone in the village. It was really hard to see how these people were coping with the circumstances that they were in and I really wanted to change it for them because this was my country.

When I came back home, I did research on the Moringa oleifera, or drumstick tree. I had found that there was a protein in the moringa seed and it has the ability to clump bacteria in water— pretty much bind to it and settle bacteria to the bottom of the container. You could see how much of the impurities were settling at the bottom. So, it did start in fourth grade with moringa.

Shea: May I ask what part of India that was? Kevin: Ah, it was Gujarat.

Shea: How did you get connected with the University of South Florida (USF)? How did that start?

Kevin: I knew that I was conducting college-level research, and that can be overwhelming at first because you never know if it’s going to work or not. And with the whole idea of metal organic frameworks, I can explain it as a super sponge because that’s essentially what it is, like a sponge that sucks up arsenic in the water. I knew that as a high school student I was limited in my resources in a high school laboratory and I knew that there were certain machines and materials that were not present in a high school lab setting. One of the things I did was, honestly, I just took action; I just

that’s what my project deals with. I had to wait until I got an email back saying that I got approval to work in his lab, and the rest is history.

Shea: So how did you get into metal organics in the first place?

Kevin: I knew that I didn’t want to take just another approach to water because this was going to be my second project. I was going from a fourth-grade project to a high school-level project, so there is a jump there. This whole idea sprouted because I didn’t want to use another plant to remove arsenic in water. I just researched for three to four months and I found that metal organic frameworks were an optimal absorbent to take the arsenic out of the water, and so I went with those frameworks. It was a risk, I knew that for sure, but I didn’t even know if I would have a project or not at the end of the year, because with metal organic frameworks in the lab setting, it can definitely destabilize, and your structure could break apart, just like that. Because you are using such high temperatures to create the actual framework, and when it’s under those high temperatures, the molecules in the structure can definitely break apart, so you’d have to redo the entire process. And that’s what happened to me; I had to redo much of the process over and over because I would find myself seeing that the structure would break after I would test it.

Shea: Before you got involved with the SJWP, you were involved in the Florida Water Resources Conference (FWRC). How did that happen?

fair this year, where I received second place. That didn’t qualify me for state, which was devastating, but it was a shot, and I still recovered, right? I also received a special award—the City of Tampa Drinking Water Award.

After that regional science competition, I thought that my project would just go into dust. I didn’t have any other outlets where I could share my passion and interest in water and I looked on my bulletin board because that is pretty much a reminder of what I have to do throughout the year and what competitions I have to apply for; you know, maybe what research paper competitions or poster competitions I want to pursue in the future, and one of the things there was FWRC. So again, I had done research ahead of time and found that the conference had a college competition for undergraduate- and graduate-level research. I saw this as a challenge because I wanted to be part of this competition as a high school student. And you know that many people in college see high schoolers as not as talented at college-level research, or maybe not capable of doing such research; I wanted to prove them wrong in that sense. So, I decided to contact Holly Hanson, who runs the conference; she got me in touch with the director,

Kevin receives the 2020 Tampa Drinking Water Award from Jane Castor, Tampa mayor (far right).
Kevin working hard in the school’s laboratory..
Continued on page 22

time and I really wanted to win that award, but I came up short and another person had won. I looked online and saw that I could apply for the state SJWP competition without even winning regionals. The regional certificate was just an access for applicants to apply to the state competition, and this gave me encouragement. I saw on their website that if you have a water-qualifying project you can apply for the SJWP state competition, and that’s exactly what I did. I skipped the regional part

of the competition, went to state, applied with my research paper, and it all just worked out in the end. I’m really grateful for that.

Shea: As a high schooler who learned about this competition externally, is there something that you could recommend that we could do better to get the word out about that competition?

Kevin: That’s a good question because I had a similar situation—not with water—with getting the word out with other schools. I would say just

have a direct contact point with other schools, interacting maybe with a couple of students and a couple of schools in the county. Maybe just come and speak to the class about what is happening in water today and what we can do about it and how we can, as high schoolers, participate in the water industry. We can take a shot at the global water crisis and use SJWP as a way to encourage other high schoolers to join the movement, as well. You could ask them to participate directly, but I would say to get the message across that you should be encouraging them to join the water movement.

Shea: I like that—join the water movement. I feel like that should be your bumper sticker, right?

Kevin: That’s my slogan for this year.

Shea: Mine is, “All my stories begin with ‘Once Upon a Flush.’”

Kevin: Oh, that’s good. I like that.

Shea: We talked a little bit about FWRC and SJWP, so to all the aspiring middle school and high school scientists or engineers out there, what advice would you give them?

Kevin: One of the first things is, balance is everything. In doing this extensive research, I had to balance my life with the rigorous international baccalaureate program that I’m in. Being able to balance that program with the schoolwork that they give and coming to do research every day in the lab, maybe working two to three hours, maybe four, on school nights, is something that is hard for anyone to do, and I had to challenge myself; that’s the first piece of advice I’d give.

The second piece of advice would be to expect failure and learn to overcome it. There’s no way to put it other than that because, with research, you are going to fail. I thought that with planning every step of the way I’d be able to do this; maybe a month or so to actually complete the project, but it turned out to take three to four months to do the entire project. I definitely underestimated myself on the amount of time it would take. So, one of the things I had learned from failure was to take a step back from the situation. Whenever I had a problem with an experiment, I would have to step back and pretty much take five to 10 minutes to exit the lab, recuperate, maybe focus on something else, and then I would come back into the lab and pretty much re-evaluate the situation.

My next piece of advice would be to get out of your comfort zone; achieving great things is going to have to come from outside your comfort zone. And so you have to have the idea of venturing out and exploring other avenues. I know in wastewater treatment that there are many ideas that we can pursue, and if we just pursue a specific idea, such as heavy metal concentration and detoxification, then we lose sight of the other ideas, such as bioremediation.

Finally, I would say to dream big and just go for it. You know if you don’t have the tenacity to take those big actions—to contact a professor or do the research ahead of time before you do the experiment—there’s no point to actually doing the experiment yourself. You have to be passionate about it. You have to be able to put the nail in the coffin in each step of the process or else you’re going to find yourself lacking in some part of the experiment. And if you see yourself lacking, then you’re going to find yourself in pretty much a vortex of failure. That’s actually understated—not a vortex of failure but a vortex of problems, and without a plan, you’re not going to evaluate those problems correctly. So, I would say dream big and go for it because no one else is going to do it besides you.

Shea: That’s all such great advice. I have to ask, do you have any career plans or a school you want to go to?

Kevin: I know I want to pursue a career in the sciences and I want to further my research in water treatment, but maybe focusing more on the health side, perhaps in the medical field. So, long-term exposure to arsenic can lead to organ injuries, cancer, or even death, right? Maybe in the future I can focus on research on how there is a correlation between arsenic levels and their impact on people who are getting lung and bladder cancer.

In terms of college, where I want to go, definitely an Ivy League school would be nice, but I’m going to apply to everywhere all around the country and I’m definitely going to apply to USF, University of Florida (UF), University of North Carolina, and University of Pennsylvania, but of these, I think an Ivy League school, and UF and USF, are some of the target schools that I’m looking at. I definitely want to continue my research in water because that’s what I’m so passionate about.

Shea: Definitely, I think you’d almost be crazy to leave water at this point. You’ve done so much! Kevin: I started from fourth grade.

It would seem the water profession chose Kevin—it’s almost crystal clear. Or perhaps that’s the effect of the moringa seeds, binding to the impurities in the water; either way, we’re honored that Kevin joined the water movement and we’re grateful to have him.

Other Winners

The FWEA Public Communications and Outreach Committee would also like to recognize the 2020 SJWP runners-up:

Second place: Sabrina Hu, “Solar-Powered Water Purifier”

Third place: Rohan Jakhete, “SAMMI: Smart Autonomous Mercury Monitoring Instrument”

And last but not least, a special thanks to all of our judges:

S Julie Karleskint

S Tim Madhanagopal

S James Murduca

S Kerstin Kenty

S Rajendra “Raj” Vaidya

S Zachery Loeb

S Mike Knowles

S Bina Nayak

S Maraida Balaguer-Barbosa

S Chuck Olson

A special thank-you goes to the amazing Arpita Meher for judging and coordinating the SJWP for Florida, as well as serving as the vice chair of PCOC.

Shea Dunifon is the education coordinator at Pinellas County Utilities South Cross Bayou Water Reclamation Facility in St. Petersburg.

Thickener Feed System

HERITAGE Month HISPANIC

AWWAcelebratesHispanicHeritageMonthand recognizesthecontributions Hispanic-Americans extendto supportpublichealthin theircommunities. Join usaswereflectupon thosethathelpus accomplish ourvision every day:a betterworld through betterwater.

September 15 - October 15

Denver Water, Denver Colorado
YP Scavenger HuntACE18 Warner Palermo, Director Technical Services,
Puerto Rico Section

A Method to Reduce Adverse Gassing Effects in Hypochlorite Pumping Systems

This article discusses a unique method to reduce adverse gassing effects in hypochlorite pumping systems, which delivers disinfectant to various water and wastewater treatment processes. The heart of this method is a peristaltic recycle pump installed in the feed pump suction that’s downstream of the feed pumps. In use for several years, this installation has almost completely eliminated adverse gassing effects that often plague hypochlorite pumping systems. Adverse gassing effects include air binding, erratic feed pump output, and potentially dangerous buildup of high pressure in closed piping segments.

Water Chemistry of Gassing

In an aqueous solution, the relevant equations are:

NaOCl + H2O => HOCl + NaOH (1)

HOCl => H+ + OCl (2)

Where: NaOCl = sodium hypochlorite, H2O = water, HOCl = hypochlorous acid, NaOH = sodium hydroxide, OCl- = hypochlorite anion

As it pertains to disinfection, Equation (2) is of particular interest. As a function of pH, hypochlorous acid, a strong disinfectant, is in equilibrium with hypochlorite anion, a weak disinfectant. At a pH of 7.3, the two substances are about equally present. As pH increases, disinfection power decreases due to the hypochlorite anion predominating.

Sodium hypochlorite solution loses it strength by two decomposition pathways: chlorate ion formation and oxygen formation. The latter is the source of gassing.

The decomposition reaction is: OCl- + OCl- => O2 + 2Cl-

Where: OCl- = hypochlorite anion, O2 = gaseous oxygen, Cl- = chloride anion

Scott Roane is water system supervisor; Tom Ridgik, P.E., is engineering supervisor; Eiman Abbas is an engineer; and Harry Dillard is lead engineering technician, in the public services department of the City of Alachua.

catalyzed by the presence of certain transition metals, such as nickel (Ni+2), copper (Cu+2) and cobalt (Co+2), that are present during the hypochlorite solution manufacturing process. As expected, decomposition increases with higher hypochlorite concentration and higher temperature. The latter is especially significant in Florida’s high ambient temperatures. In the presence of ultraviolet (UV) light, hypochlorite solution will also decompose to oxygen gas and chlorate ion, but this pathway is minimized and even prevented by constructing storage tanks of materials, such as fiberglass pipe (FRP), that do not transmit UV light.

Design Practices to Reduce Effects of Off-Gassing

Miller provides a thorough primer on how to design sodium hypochlorite feed systems, including advice on how to mitigate off-gassing. To prevent metal-catalyzed off-gassing, the installation of metallic components should be avoided, even for such small items as ball check spring valves and hose fittings. Diaphragm-type isolation valves are preferred. If ball valves are used, they can trap the off-gas, which can lead to high pressure and valve rupture. To prevent this, a hole that vents to the upstream side is drilled in the valve ball.

To partially reduce air binding of the pumps, the suction line should be upwardly sloped from the storage tank to a suction line vent that’s usually located just prior to the pump skid. This vent is normally routed back to the storage tank. Other guidance is to keep the piping length between the pump and the application point as short as possible. Specifics include a maximum piping run of 500 ft, or a maximum detention time of four hours in the feed pipe. Pipe velocities should be kept as high as possible, but under 5

Figure 1. Simplified process flow diagram of hypochlorite feed pumping system with suction recycle pump.

to 7 ft per second (fps). Such high velocities will tend to sweep oxygen bubbles along with the feed, minimizing accumulation.

Hydraulic diaphragm pumps are commonly used, but can be subject to air binding. If compatible, installing a “degassing” vent valve on the pump head is recommended. To prevent excessive agitation of the hypochlorite solution, low-speed and high-stroke settings are preferred over high-speed and low-stroke settings.

Hantelman and Zahller documented their commissioning of a sodium hypochlorite feed system, which is part of an advanced disinfection system that treats water supply from a reservoir. The system consists of two sodium hypochlorite solution storage tanks, three peristaltic pumps, and a carrier water system, which conveys the hypochlorite solution to a 30-in. water supply line.

During start-up, they observed the chlorine residual of the process water and attributed its erratic behavior to “air” (most likely oxygen gas) in the system. They iteratively tinkered so as to make the chlorine residual more stable.

For the first iteration, they plumbed the suction side to the vent (universally considered good practice) and disconnected the pressure relief line. Although improvement was achieved, it was insufficient.

For the next iteration, they made a concerted effort to remove locales where gas would accumulate and erratically discharge. This included removing horizontal pipe, removing the strainer, installing vertical wye fittings, and bypassing the flow switch. The chlorine residual was much smoother, but there was still room for improvement.

For the final iteration, the discharge pressure back pressure valve, a source of an erratic air pocket, was bypassed. The carrier water was also routed to the hypochlorite panel, reducing the length of the pipe that contains the concentrated hypochlorite solution. The chlorine residual was now stable—smooth and with no spikes.

The Plant Experience

The Water Treatment Plant

The City of Alachua (city) is located in north central Florida, has a population of about 10,000, and is the home of several burgeoning high-tech parks. The city operates its own water utility, and is fortunate to have a high-quality water supply. Three well pumps, the largest being 950 gal per minute (gpm), provide water to the treatment plant, where sodium hypochlorite solution is injected. After sufficient contact time, accomplished in two contact tanks, the treated water is ready for distribution. Required discharge pressure is typically 85 to 90 pounds

per sq in. gauge (psig), which is relatively high for Florida, due to over 100 ft of elevation change within the distribution system.

Initial Installation and Start-Up Difficulties

The installed sodium hypochlorite feed system consists of three subsystems:

S Storage tanks and suction piping

S Pump skid

S Discharge piping

Nominal 12 percent sodium hypochlorite solution is stored in two 250-gal polyethylene storage tanks. These tanks are located outdoors under an overhang and thus away from direct UV light. The tanks are within 10 ft of the indoor pump skid. The ¼-in. nominal-diameter Teflon suction tubing enters through the top of the tank and is furnished with a filter/foot valve near the tank bottom. A larger vertical polyvinyl chloride

(PVC) pipe within the tank simply holds the tubing in place.

Inside the skid room, the tubing transitions to a nominal ½-in.-diameter PVC pipe that connects to the skid, and suction is not flooded. Depending on the tank level, some suction lift is required of the feed pumps. There is no provision for a suction connection to the vent just prior to the pump skid. The suction piping routing may not be conventionally considered as ideal; however, vertical tank entry precludes the need for bulkhead fittings at the bottom side of the each tank. Such bulkhead fittings are a common source of leaks.

The sodium hypochlorite feed skid includes three solenoid-driven feed pumps that are doubly redundant. Although one pump is sufficient to supply the required solution, three pumps generally operate together at lower speeds. If one pump fails, the hypochlorite solution output from

Continued on page 30

Figure 2. Hypochlorite feed pump skid and suction recycle pump.

the skid is only reduced by 33 percent, which still maintains an acceptable dosing rate until repairs can be made. The capacity of each pump is 0.95 gal per hour (gph). Pump controls include speed and stroke adjustment; usually, stroke is kept at 100 percent. Open-loop flow pacing of pump speed is the normal control mode.

Each pump has been furnished with a degassing valve that vents back to the storage tanks. Solenoid-driven pumps, rather than hydraulic diaphragm pumps, were selected because required discharge flows are low and the required discharge pressure is high. This application is quite suitable for solenoiddriven pumps, and such pumps include an electromagnet that switches on and off, imparting stroke movement to the diaphragm head.

The discharge pipe is made of ½-in. PVC piping and is about 60 ft long. It connects to a feed quill inserted into the process pipe.

During start-up, it soon became evident that feed pumping was problematic as gas binding of the pumps frequently occurred and pump output was erratic. It was obvious that gassing in the suction line was the culprit.

The Modified System

See Figures 1 and 2 for a simplified process flow diagram and a photo of the modified system.

To remove the unwanted gas, the city’s water system supervisor hypothesized that a pump installed on the downstream suction line, and its discharge recycled back to the storage tank, would be effective. The concept is that increasing suction header velocity would increase fluid dynamic drag so that gas bubbles would move along with the liquid flow. This recycle pump also has the advantage of providing additional suction lift.

The selected recycle pump is the peristaltic type, which is suitable for pumping liquid/ gas mixtures. Such a pump includes flexible tubing with a rolling mechanism that imparts pumping action to the liquid air mix. Required discharge pressure is low, another point in favor of a peristaltic pump. The capacity of the recycle pump is 1.67 gph at a discharge pressure of less than 2 psig.

After commissioning the recycle pump, the appearance of visible gas bubbles was greatly reduced in the suction piping. More importantly, the sodium hypochlorite solution pumped output is stabilized, and continues to be so. Air binding and erratic pump behavior are now a thing of the past.

The initial nonflooded suction piping configuration has not been changed, as it doesn’t impact successful pump operation and is not a source of tank leakage.

Typical Pumping Parameters

A typical treated water flow rate to the distribution system averages around 925 gpm. The associated sodium hypochlorite solution flow rate is approximately 0.5 gph, resulting in a chlorine residual on the order of 1.0 mg/l. Each feed pump delivers about a third of the total output, with a pump speed of about 80 to 100 strokes per minute and a stroke length of 100 percent. The suction recycle pump operates at 50 percent speed to deliver a flow rate of about 0.835 gph.

Flow rates entering and exiting the suction header are 1.335 and 0.835 gph, respectively, with feed pump takeoff accounting for the difference. With an actual suction header diameter of 0.526 in., flow velocities entering and exiting the suction header are 0.033 and 0.021 fps, respectively. Velocity in the recycle line is 0.36 fps, due to an actual inner diameter of only 0.125 in. for the nominal ¼-in. Teflon tubing. Although this suction recycle flow rate has been found to work, it’s not necessarily the optimal flow rate.

Daily Degassing Protocol

Upon daily check of the sodium hypochlorite feed system, staff will increase the speed of the peristaltic recycle pump to 100 percent, or 1.67 gph, for about one to three minutes to increase pipe velocity and purge the suction manifold. This, in turn, increases fluid dynamic drag so as to clear any stubborn gas bubbles that may get lodged in a fitting, strainer, or other high-friction areas within the suction piping. Typically, staff will initially observe rapidly moving bubbles in the clear ¼- in. Teflon line directly connected to the peristaltic pump intake.

Once no bubbles are seen for at least 15 seconds, pump speed is reduced back to its normal 50 percent setting. Particularly effective in dislodging bubbles is closing the suction line for several seconds between the tank and the skid. The increased efficacy is likely due to the increased line suction.

In the event of a random gas binding issue, this procedure can be repeated, which clears the feed pump intake much faster than the degassing valve on the feed pump itself. This eliminates most, if not all, of the downtime during such an event.

Why not continuously recycle at 100 percent speed? Staff is of the opinion that running at only 50 percent speed during normal operations will extend the life of the pump tubing.

Discussion and Conclusions

A literature review of air in pipelines concludes that “there are no generally accepted formulae for the transport of air bubbles or

pockets in pipelines and there is wide variation between the various prediction equations.”

Corcos has authored a manual that emphasizes air removal in water pipes, which is of particular concern for gravity rural drinking water systems. He presents an equation that applies to air pockets that are long compared to pipe diameter, but not to bubbles. This equation calculates a critical velocity, above which the air pocket begins to move in a horizontal pipe. In this equation, the critical velocity is proportional to pipe diameter to the 2.5 power. The equation constant assumes the liquid to be water and includes factors for both surface tension and the velocity profile, including the Reynolds number. At the higher supercritical velocity, air will definitely be swept along with the liquid. For ½-in.-diameter pipe, the supercritical velocity is about 0.6 fps.

In the ½-in. hypochlorite suction manifold, velocities range from 0.01 to 0.05 fps, the latter being the purging velocity with the suction recycle pump at full speed. Thus, the velocities typically experienced in the suction manifold are at an order of magnitude less than the supercritical velocity mentioned previously. It was concluded that the supercritical velocity predicting when stationary air pockets begin to move in pipes does not seem to apply here.

The Reynolds number characterizes whether a fluid is either in that laminar, transition, or turbulent flow regime. Below 2300, flow is laminar; above 4000, flow is turbulent. Knowing that the kinematic viscosity of 12 percent hypochlorite solution is 1.27 centistokes (cSt), the Reynolds number in the ½-in. suction manifold can be calculated for the maximum velocity purged condition (2.17 gph). For this condition, the Reynolds number is only 152, meaning that laminar flow is present over the entire flow regime.

Operations staff is very pleased with the topentry suction lift piping configuration, and has no plans to change it. As for the feed pump skid itself, several improvements are recommended. For the suction manifold, it’s suggested to provide a slight upward slope in the direction of flow, which will encourage gas to exit the system. As it’s now constructed, takeoff from the suction manifold to each feed pump is via a tee with a horizontal branch; instead, it’s suggested that the tee be installed in the manifold so its branch is vertically downward.

The suction (and recycle) lines consist of mostly horizontal and opaque PVC piping, and mostly vertical and translucent Teflon tubing, which is fortuitous as it allows the operator to visually observe bubble movement. Installed in the horizontal pipe is a filter with a clear plastic housing, which also allows viewing of bubble formation and removal. If bubble formation is

anticipated in a to-be-installed hypochlorite feed system, it’s suggested that at least a portion of the suction piping be made of either translucent of transparent material to aid in diagnosing the extent of problematic bubbles.

Recycling sodium hypochlorite solution from the suction header back to the storage tanks effectively removes the oxygen off-gas from the solution. Air binding of pumps and erratic pump output has been greatly reduced, making it almost a thing of the past. Recycling does introduce a degree of mechanical complexity to the system, as an additional pump is required.

Although this suction recycle approach has been developed for nonflooded (suction lift) supply, it’s expected to also be applicable for flooded suction configurations. Where lift is required for the hypochlorite solution suction, note that it’s not permissible to install a vent in the suction line just prior to the skid; otherwise, the suction prime will be lost.

For flooded suction systems, a vent on the suction line just prior to the skid is recommended if the layout allows. As noted by Hantelman and Zahller, such a vent helps to degas, but does not completely eliminate gassing. Installing a recycle pump on the downstream end of the skid’s suction manifold could further degas the system.

As noted by Corcos, the supercritical velocity to cause movement of a long air pocket in a horizontal water line is 0.6 fps. As stated, velocities in the ½-in. suction manifold are an order of magnitude less; note, though, that certain segments of the suction line from the tank to the skid consist of ¼-in. Teflon tubing (1/8-in. internal diameter [ID]). Similarly, the recycle line from the skid to the recycle pump, as well as the pump discharge line, consists of the same 1/8-in. ID-size tubing. Under a typical feed rate, and with the recycle pump at its purge velocity, flow rates entering and exiting the skid are 2.17 and 1.67 gph, respectively. Corresponding velocities in the associated 1/8-in. ID tubing segments are 0.94 and 0.73 fps, respectively. Such velocities exceed the supercritical flow rate to move long air pockets. This is considered a coincidence, as the ½-in-diameter suction manifold is the salient pipe segment for bubble behavior.

The recycle suction pump method should seriously be considered to mitigate off-gassing effects, especially if other methods are not sufficiently effective. The recycle suction pump method provides the designer with another tool to address the sometimes quite frustrating effects of sodium hypochlorite solution off-gassing.

References

• Pamphlet 96, Chlorine Institute, Sodium Hypochlorite Manual.

• AWWA Ohio Section Technology Committee, “White Paper on Disinfection with Hypochlorites,” Sept. 17, 2007.

• “Disinfection With Liquid Sodium Hypochlorite: Principles, Methods, and Lessons Learned,” Frank A. Miller, Florida Water Resources Journal, April 2012.

• “Problems with Hypo: Best Design Practices for Smooth and Efficient Sodium Hypochlorite

Feed Systems,” Chad Hantelman and Jeff Zahller, Pacific Northwest Section, AWWA Annual Conference, May 2013.

• Air in Pipelines, A Literature Review, Report SR 649, April 2005, HR Wallingford.

• Air in Water Pipes, Second Edition, A Manual for Designers of Spring-Supplied GravityDriven Drinking Water Rural Delivery Systems, Gilles Corcos, July 2004.

BUILDING STRONGER, TOGETHER

Your water needs to be safe and reliable.

So does your contractor.

PC is leading the construction of the nation’s most critical water and wastewater treatment plant projects along the East Coast.

Port St. Lucie Utility Systems Launches Educational Video Library

Free online resources available for virtual learners

The library is open—the new online video library that is—and it’s filled with “little lessons” that are all about water and wastewater. Port St. Lucie Utility Systems (PSLUS) understands the limitations schools are facing this year due to COVID-19, and has produced an online video series breaking

down what would have been in-person classroom presentations into short videos covering a variety of topics.

The videos provide a total of one and a half hours of content that align with several of the Next Generation Sunshine State Standards (NGSSS) science benchmarks

for elementary-aged children. There are 14 lessons, and each one focuses on a wateror sewer-related topic, which includes the following:

S Why is Water So Special?

S What is the Water Cycle?

S How Can I Become a Water Saver Superhero?

S How Can I Prevent Clogs?

S How Do Microorganisms Help Treat Wastewater?

There is a tremendous amount of online content available about these topics; however, many of the PSLUS lessons are specific to the water and wastewater operations of Port St. Lucie and St. Lucie County.

The videos use a variety of easy-tounderstand explanations, plus visuals, hands-on activities, and crafts to help the viewer relate to every topic. Viewers are encouraged to provide feedback and engage with the presenter, Jenny Tomes, utility marketing coordinator in the city’s utility systems department, to share ideas, ask questions, and chat about the things they learned from each lesson.

This unique online video library is available to teachers, students, and homeschool groups alike, as well as anyone wanting to know more about Port St. Lucie’s water and wastewater operations. The online ibrary is available at: https://www. youtube.complaylist?list=PLuIg6N8I5H SNNBL4jDIubmW45EVHexgYZ.

Filling You In on Filtration

reetings, everyone. I hope you all are doing well.

When having discussions about water treatment and filtration, with today’s technology the subject often leads to discussions on the various membrane options. Membranes are definitely effective in many applications and will probably continue to be the way of the future. That being said, there are many water and wastewater facilities that are still utilizing conventional filtration methods. In this column, I would like to cover some of the basics of conventional filtration.

Filtration Basics

Filtration in your water or wastewater facility is an essential component in your treatment process. Improper filtration or malfunctioning filters can lead to serious issues, like loss of production and/or a contamination of the filter effluent.

What is Filtration?

Filtration is a physical process where water is passed through a porous medium to remove suspended solids. There are two basic mechanisms of solids removal in a granular filter: straining and nonstraining.

Straining – Particles larger than the pores of the filter will be deposited on the filter media and removed, or “strained” out of the flow of water.

Nonstraining – Particles too small to strain, such as colloidal particles, color, and silt, and micro-organisms, like Cryptosporidium and Giardia, are removed by employing mechanisms called interception, sedimentation, and Brownian Diffusion.

Nonstraining Filtration Mechanisms

Interception – Occurs when the particles come into contact with the grains of media and either stick to the media grain or are caught between two grains of media.

Sedimentation – Heavy particles with a settling velocity greater than the velocity of the water moving through the filter will settle between the media grains.

Brownian Diffusion – Diffusion towards media granules occurs for very small particles, such as viruses. Particles move randomly about within the fluid, due to thermal gradients. This mechanism is only important for particles with diameters of <1 micron.

Upstream Treatment Processes Aid in the Filtration Mechanism

Coagulation, flocculation, and sedimentation all serve to help remove particulates from water prior to filtration. Filter-aid polymers are also added to help improve the filtration process. Chemical treatment, such as coagulants or filter-aid polymers, will act to destabilize colloidal and other small particles. Once the charge has been destabilized, the particle will attach or “stick to” the media grains.

Granular Filters

There are three types of granular filters: gravity, pressure, and slow sand. For this discussion I want to focus on gravity filters, or rapid sand filters, which are the most common types of filter media used to remove nonsettable floc remaining after chemical coagulation, conventional lime softening, and sedimentation.

Underdrains

The purpose of the underdrain is to support the filter media, collect treated water, and channel it to the clearwell or other storage and distribution facilities. When the filter becomes dirty, the underdrain serves to evenly distribute backwash water across the area of the filter. The types of underdrains include:

Leopold Filter Tile – A commonly used underdrain block, this is a ceramic block designed to distribute the water during filtration and backwash. This type of underdrain requires support gravel for the filter media.

Wheeler Underdrain – Has a bed of ceramic balls placed in a conical section to help distribute the water flow. It requires support gravel, as well.

Wagner Underdrain – A slotted concrete block that allows the distribution of water across the filter surface area during filter operation and backwashing.

The underdrains I’ve described are older technology, but may still be utilized in your facility, depending on the age of your treatment plant.

A newer technology in conventional filtration is the Leopold dual parallel lateral (two-pass) underdrains designed to distribute both air (for air scouring) and water evenly across the area of the filter during backwash. Flow is reversed during

normal filter operation. This design, with the use of a porous plate cap (integral media support), allows for the elimination of support gravel and provides more freeboard between the top of the filter media and the wash water trough, resulting in a lower filter media depth.

There are other underdrain designs made of different materials, such as stainless steel, but the mechanism of how they work is virtually the same.

Filter Media

Filters are often defined by the type of media structure installed in them:

S Mono Media – One media type per filter.

S Dual Media – Two primary media types, usually sand and anthracite or sand and granular activated carbon (GAC).

S Multimedia or Mixed Media – Utilizing combinations of sand, anthracite, GAC, garnet, gravel, etc.

In all cases, the support material for the filter can be different gradients of gravel or a porous plate or similar support.

Filter media are classified as follows:

S Effective Size – A measurement by which 10 percent of weight passes through a specific-size sieve.

S Uniformity Coefficient – A numeric quantity calculated by dividing the size of the sieve opening that will pass 60 percent of a sample by the size of the opening, which will pass 10 percent of the sample on a weight basis.

Uniformity Coefficient (UC)

= Diameter of 60% by weight grains, mm ÷ Diameter of 10% by weight grains, mm

Example

= 1.5 mm (60% by weight) ÷ 1.0 mm (10% by weight) = 1.15 UC

Typical Filter Media Characteristics

S Hardness – The hardness of the material on the Mohs scale.

Specific gravity becomes important when determining the filter expansion rate during backwash: the heavier the granular material, the greater the backwash water velocity needed to lift and separate the media during the backwash cycle. Effective expansion is in the range of 30 to 35 percent.

The Mohs scale is a measure of the hardness of a material from 1 to 10, with 1 being talc and 10 being diamond.

For GAC, an abrasion number (AWWA B604) or hardness percentage (ASTM D3802) is also used to define the ability of a material to hold up to deterioration due to agitation of the material rubbing together or against the sides of the filter.

The size range of GAC is usually expressed as the sieve sizes, expressed in mm or US Mesh, between which most of the GAC is retained. The GAC is usually specified by sieve size in various ranges, like 20x50 or 12x50, which are smaller sizes (around 0.3 to 0.8 mm), to 8x20 or 8x30, which are larger in size (around 1.5 to 2.0 mm). The smaller GAC is more suitable to shallower bed filters where the larger-size GAC is often used in deeper filter beds of 4 to 6 feet deep.

Filter Operation

The basic design for filters should allow for 2 to 10 gpm/ft2 of surface area. The U.S. Environmental Protection Agency (EPA) recommends a maximum loading of 4 gpm/ ft2 for surface water plants.

Filter loading rate is defined as gpm/ft2:

Filter loading rate = Filter surface area ft2 ÷ Filter flow gpm

Typical filter loading rates are:

S Gravity filter = 2 to 10 gpm/ft2

S Slow sand filter = 0.015 to 0.15 gpm/ft2

The number of filters required for a plant should be based on the plant design flow at peak flow, with at least one filter out of service for backwash and one filter out for maintenance, and still be able to produce the required amount of water.

during the course of the filter run divided by the surface area of the filter. The UFRV should be around 5,000 gal/ft2 or better. The following is an example of how to calculate the UFRV of a filter: What is the UFRV of a 25-ft x 30-ft filter flowing at 6 mgd, with the filter run lasting 24 hours?

Filter surface area

= 25 ft x 30 ft

= 750 ft2

UFRV

= Volume filtered in gal ÷ Filter surface area, ft2

UFRV

= 6,000,000 gal ÷ 750 ft2

= 8000 gal/ft2

Another way to evaluate a filter’s performance is by conducting filter profiles, which map a filter’s performance during a filter run. Performance factors include filter run time, filter flow, loss of head, and turbidity. By periodically performing filter profiles, you can get an understanding of the condition of your filters, which is useful in troubleshooting filter issues and for determining when filters need to be rebuilt.

Filter Backwash

When a filter reaches the end of its filtration cycle, it needs to be cleaned. The filter backwash is the reversing of water flow through the filter to basically clean the filter media and help to restratify the media.

The backwash rate needs to be sufficient enough to expand the bed and wash out the majority of the particulate accumulated in the filter during the filter run without washing the media from the filter.

As the filter accumulates solids, the head loss or force required to maintain flow increases. A point is reached where either flow cannot be maintained or solids are forced through the filter. When this happens, it’s time to backwash the filter.

S Specific Gravity – The weight of the media as compared to the weight of water: SP of 1 is equal to 8.34 pounds, which is the weight of 1 gallon of water.

Filter run lengths can vary depending on the hydraulic filter loading (amount of water flowing through the filter) and the solids loading on the filter (amount of particulate to be filtered).

The best way to compare filter run time is by the unit filter run volume (UFRV), which is the volume of water produced by the filter

The hydraulic backwash method reverses flow up through the filter bed and expands and fluidizes the media to shear off the floc. Hydraulic backwash alone is a poor method for cleaning filters where heavy solids loading occurs.

Hydraulic backwash (plus surface wash) helps to break up the crust at the surface of the filter and remove solids that hydraulic backwash alone cannot remove. The surface wash is usually applied during the first few Continued on page 36

minutes of the filter wash during the lowrate filter backwash period.

Hydraulic backwash with air scour in the range of 3 to 5 scfm/ft2 provides much more violent agitation of the media than with surface wash. It’s more effective than surface wash and is usually applied during the low-rate filter backwash period at the beginning of the backwash cycle.

Air scour, combined with a low-rate backwash (around 7 gpm/ft2), is the mosteffective way to remove solids from a filter. The media grains have a greater potential to collide, increasing the scrubbing action during the air scour.

Low-rate backwash is usually in the range of 5 to 7 gpm/ft2 for three to five minutes.

High-rate backwash follows the lowrate backwash. High-rate backwash can be anywhere between 10 to 22 gpm/ft2, depending on the water temperature and density of the media. High-rate backwash can last from 8 to 12 minutes, depending on how dirty a filter is. The majority of the filter particulate will be removed in the first five minutes of the backwash.

High-rate backwash is usually followed by a second low-rate backwash to allow settling of the filter media.

After a filter is backwashed, the filter will flow to waste until the filter reestablishes the proper filter turbidity effluent level and is safe to put back into service.

Backwash water usually flows to a recycle or equalization basin, where it’s then collected and returned to the head

of the treatment plant. The recycle rule, which went into effect in 2004, required an initial report submitted in December 2003 defining the recycle system, the source and volumes of each flow going to the recycle system, and the return location and rate to the plant. Each plant is required to submit a recycle report to the Florida Department of Environmental Protection (FDEP) annually by January 10.

The EPA requires monitoring of individual filter effluent and combined filter effluent turbidity for compliance with Subpart H surface water systems. Surface water plants are not to exceed 0.3 nephelometric turbidity units (NTU).

Proper filter operation is important to the success of your treatment facility in maintaining water quality and quantity. Filter media replacement is expensive and requires some down time for each filter to be rehabilitated. Proper operation of upstream processes and filters will increase the life cycle of the filters. Solids loading from poor treatment sedimentation increases the solids loading on the filters. Improper filter backwashing can cause the buildup of mud balls, resulting in dead zones and channeling in the filter that will increase turbidity breakthrough. Prolonged operation of high pH could lead to calcification on the underdrain.

If it’s determined that the filter media need to be replaced, take time to properly inspect the underdrains as follows: S Clean, replace, or repair underdrains that are in need of maintenance.

S Perform differential pressure and hydraulic flow tests on the underdrains to ensure that they meet manufacturer recommendations.

S Look for dead spots across the surface area of the underdrain that may indicate clogging of the underdrain laterals.

S Inspect the orifice plate for sections that may be clogged. If underdrains have been clogged with calcium carbonate scale, they may need to be acid-cleaned.

That’s all I have for conventional filter operation. I hope that if you’re still using this type of filtration in your facility that this information will help you to be a better operator.

FWPCOA Training Update

Training Venues

We’re still looking for venues that can and will accommodate our training classes. We feel that phasing in classroom training with smaller groups in a controlled environment is one of the ways to get training back out to our members and the industry.

We are looking for our utilities to provide training rooms, and are also looking at other venues, like theaters, churches, hotel conference rooms, etc. We’ve developed procedures that follow the latest Centers for Disease Control and Prevention (CDC) guidelines for conducting training and are willing to follow any guidelines required by a facility, including off-hours, like nights and weekends.

Proctors Needed

The training office is in need of proctors for online courses in all regions. If you are available to be a proctor, please contact the training office at 321-383-9690.

Online Training

In the meantime, and as always, our online Training Institute is up and running. You can access our online training by going to the FWPCOA website at www.fwpcoa. org and selecting the “Online Institute” button at the upper right-hand area of the home page to open the login page. You then scroll down to the bottom of this screen and click on “View Catalog” to open the catalog and see the many training programs offered. Select your preferred training program and register online to take the course.

That’s all I have for this C Factor. Everyone take care and, as usual, keep up the good work!

Valve Assessment and Renewal Averts Critical Asset Failure

Reducing consequence of failure while improving water quality by assessing and rehabilitating large water main valves to extend service life of critical infrastructure components

Asset management is simply the process of planning, budgeting, funding, designing, constructing, monitoring, evaluating, maintaining, and rehabilitating assets to provide maximum benefits with available and often limited funds. Unfortunately, the United States has experienced a maintenance crisis within the past 25 years or so, and its aging infrastructure hasn’t received needed condition assessment, maintenance, and repair.

Some of the most basic considerations of building an asset management program have long been ignored. These include location, asset specifics, condition, site specific details, and accuracy of information. Having an asset management condition assessment program

allows a utility to move from being reactive to being proactive, and eventually predictive, in its operations.

Rehabilitating, rather than replacing, large valves in a water system makes perfect economic sense when the cost, time, and operational benefits are considered.

A Case Study

Grand Rapids, Mich., provides a good example of valve rehabilitation. Using Lake Michigan as its water source, the city owns and operates the second largest water system in the state. The system consists of roughly 1,250 miles of pipeline and more than 31,000 valves. There are approximately 1,300 large valves (16 inches and larger) in the city’s transmission system that are used

to control it during main breaks and planned maintenance.

Large and critical valves are the backbone of water transmission and distribution systems. They control water networks and reduce the consequences of failure when a main break occurs. Some of these valves are enormous assets, with the power to control flow through pipelines of more than 7 feet in diameter. These valves can weigh several tons and withstand operating pressures of up to 500 pounds per square inch (psi).

According to the American Water Works Association (AWWA) Manual of Water Supply Practice M44, Distribution Valves: Selection, Installation, Field Testing, and Maintenance (www.awwa.org/m44), such valves should be inspected and exercised annually. When operating properly, critical valves help utilities respond effectively to crises by isolating problem areas and limiting the duration and effects of outages.

Water System Challenges

In many utilities around the world, critical valves are in poor condition and cannot be operated properly. Many utilities lack the internal resources and expertise to perform necessary assessments and repairs. Some lack the equipment to properly free “frozen” or inoperable valves, whereas others are unwilling to conduct these assessments on assets larger than 12 inches, as they may not have the processes, procedures, and experience to perform the work successfully. Many others simply don’t perform the most basic asset management principles required to maintain effective and efficient operation. When large and critical valves fail, utility managers have effectively lost control of their systems, which increases vulnerability to water main breaks and other system hazards. Once valves have failed, utilities have traditionally sought to replace them, often leading to great expense and extended service disruptions.

During the past few years, operation and maintenance of large valves in Grand Rapids

An “after” photo of the valve shows some of the positive effects of a large valve rehabilitation.
A “before” photo of the valve.
A large 93-year-old “frozen” valve that was returned to excellent working condition.

had declined because the city’s water staff was focused on competing priorities. Without a consistent inspection and exercising program for these critical valves, staff found that many of them were inoperable and began exploring options for valve replacements.

The city’s water staff was aware of a long segment of transmission line that couldn’t be isolated because of inoperable valves. To regain control of that part of the transmission system, the city replaced five large valves at an average cost of $125,000 each. The replacement effort was time-consuming and disruptive. Each valve took an average of one week to replace, and while the work was being completed, city streets needed to be shut down and traffic rerouted to accomplish the work.

This level of effort and cost was a wakeup call, compelling the utility’s managers to pursue alternative methods to replacing these critical assets.

What Grand Rapids discovered is that there is a more economical, less risky, and more sustainable option to replacement, which consists of preventive maintenance, repair, and rehabilitation. Efficient, highperforming utilities are turning away from the wasteful practice of replacing valves that can be restored to full operational function, and are instead engaging experts in asset renewal to extend the life of critical assets at substantially lower cost. This allows water utilities to stretch limited capital funds and take advantage of innovative solutions that deliver the data needed to make smarter decisions regarding their infrastructure.

The city enlisted Xylem as a water technology consultant and discovered that only about 60 percent of valves in most water systems are operable; the rest can’t be located, or are inaccessible or mechanically inoperable. In addition, many valves in water transmission and distribution systems are in an incorrect position, such as closed when they should be open. This condition leads to hydraulic inefficiencies, reduced flow, limited firefighting capacity, and potential water quality issues caused by inadvertent dead ends.

For Grand Rapids, this meant that of the 1,300 large valves in its water system, potentially 500 may have operability issues. With limited information on which assets required attention and a limited capital budget for replacement, the city needed a more focused approach to help it make educated repair or remediation decisions.

Steps to Success

In accordance with the city’s asset management plan, the first step was to

determine the status of the city’s valves. Because many of these assets were installed decades ago, utility managers were apprehensive about whether any of the valves selected for assessment would perform properly.

In October 2017, the city partnered with Xylem to assess and evaluate 20 large valves in its transmission system as part of a comprehensive asset management pilot program. The consultant worked with the city’s utility staff members, who provided traffic control support, access to the valve vaults, and topside support. The pilot program’s results helped the city’s water staff determine how to improve performance across the system.

During its evaluation, the consultant found that 11 of the city’s 20 large valves worked well. Although the findings surprised the city’s water staff, the numbers lined up closely to the national average of 60 percent valve operability. One of the inoperable valves was rehabilitated during the initial pilot program by installing a new bull gear to replace one that had crumbled while the valve was being exercised.

Another large valve was found to be frozen. The field technicians worked on the valve for several hours, gradually and systematically increasing the torque used to turn the valve with a hydraulically actuated, microprocessor-controlled valve-turning machine. With steam rising from the valve body in late October 2017, the crew took a break for lunch. Upon its return, using a peak force of 1,000-foot pounds, the valve broke free and began operating. After cleaning up the stem and guides through continued exercising, the valve was declared “operational” at low torque—and remains so to this day. Once the consultant completed the initial assessment, the city immediately updated its asset information, allowing it to identify which control valves to operate in the event of an emergency

In spring 2018, Grand Rapids initiated a contract to repair and restore the seven remaining valves assessed in 2017. One valve slated for a stem replacement was removed from the list because of extensive site work that would have been required to remove the valve bonnet and repair the valve. Considering all of the work required, the valve’s rehabilitation was deemed to be cost-prohibitive.

The remaining six valves were rehabilitated through an array of activities that included full and partial gear replacements. The rehabilitation included designing and manufacturing the necessary replacement parts for each valve, performing several packing repairs, and replacing one operating nut.

Grand Rapids found that 11 of the 20 valves initially assessed were operationally sound. Eight of the nine remaining valves were repaired and restored for less than the cost of replacing just one valve, for a total savings approaching $1 million. The rehabilitation work took approximately one to two days per valve, and only one main was taken out of service to facilitate the repair. In addition to the cost savings, the city obtained critical information (physical, locational, and operational) for its asset inventory and avoided the inconvenience associated with valve replacements, all while improving its resilience to water-related disasters.

Lessons Learned

Critical valves protect the water supply and the most essential pipelines in any transmission or distribution system, including those in Florida. Uncontrolled failure events are hugely disruptive and costly, as is replacing critical valves. By assessing and rehabilitating valves with remaining useful life, a highly efficient utility can dramatically lower its capital investment and take control of these essential assets.

By implementing a valve condition assessment and rehabilitation program, a utility can save money that can be invested in other proactive asset management activities, such as comprehensive leak detection. Such activities reduce the need for rate increases, promote sustainability, and improve system control. They also allows a utility to mitigate risk by reducing the likelihood and consequence of failure

Capitalizing on its recent success and committing to advance its overall asset management program, Grand Rapids has recently procured services to assess and rehabilitate the remaining large valves, perform pipeline prioritization and risk analysis, and assess the condition of critical mains. These steps will allow the city to be well positioned to measure and analyze its nonrevenue water and optimize metering services.

Brad Gresham is a business development manager with Xylem in St. Simons Island, Ga.

FWEA FOCUS

It’s Time for Self-Reflection: Invest in Yourself, Your Career, and FWEA!

e have now entered the home stretch for 2020. What a year it has been. Whether your organization follows the common September/October fiscal year turnover, or you follow the calendar year, this is an excellent time for self-reflection and career assessment.

This month’s issue of the magazine focuses on new facilities, expansions, and upgrades. It occurs to me that this theme provides a perfect parallel to the personal and career growth process. By taking time to reflect on your career (goals that have been set, achieved, and/or remain to be completed), you will identify the ways you can expand, upgrade, or even create new opportunities for your career. And, regardless of where your self-exploration leads, FWEA can provide you the support and opportunities for growth that will certainly maximize your career.

Expand Your Skills

Your experiences have led you to this point in your career. It’s important to take stock of the progress you have made and compare it to the vision of where you want to be at this stage in your professional life.

In my organization, we ask the following questions:

S What do I want to be doing?

S What am I doing to get there?

S What’s working—and what isn’t?

S What resources do I need?

S Who can help?

Now that these questions have been answered, if you have confirmed that you are in the right position, it’s time to begin the work to “expand” your skills. Take this time to assess your experience and past performance. Identify what skills need development and maybe some fine-tuning. Are your developmental needs more technical in nature? Well, you’re in luck, because FWEA offers a significant opportunity to continue to increase your technical skills through a variety of offerings.

Hopefully, you are taking advantage of WEFTEC Connect, but if not, we have many excellent opportunities to expand your skills. The FWEA’s Wastewater Process, Collections Systems, and Biosolids committees will all be providing excellent learning opportunities throughout October and November. Just head over to www. fwea.org and check out the calendar.

Additionally, our local chapters consistently bring relevant events to our members to discuss important topics, such as how utility leaders are managing the new challenges brought on by COVID-19. These luncheons, seminars, and roundtables offer great opportunities to learn skills that are being applied today to allow you to bring those new skills to your job for increased efficiency and effectiveness.

Upgrade Your Career

If your self-reflection confirms that you’re interested, ready, and willing to tackle a more challenging job, or take on more responsibility and “upgrade” your career, there are a plethora of opportunities to support this goal as well. First, you should always look within your organization

for opportunities to be mentored by successful individuals who have reached the career milestones and responsibilities you seek to achieve. Beyond the internal opportunities for guidance, external opportunities abound for excellent mentoring and learning.

There’s a tremendous amount of career support provided by FWEA. Accepting opportunities to volunteer in a local chapter, a committee, and ultimately, on the FWEA board of directors, can provide endless opportunities for personal growth. Speaking from my experience, both my Treasure Coast and First Coast chapter leadership positions, as well as my FWEA board responsibilities, have provided me with substantial growth opportunities. Becoming a leader in FWEA can help you foster the necessary leadership skills to navigate promotional opportunities for more responsibility within your own organization.

Try Something New

There is the possibility that this process leads you to the conclusion that you are ready for a completely “new” challenge. After all, there are many ways to serve the water industry. Utilizing the networks available to you as an FWEA volunteer, as well as your exposure to the many facets of the water industry, alternative career pathways will become visible. What’s most important is that you tap into your passion and never look back!

In the end, it’s all about doing what you love or what interests you the most, developing your best self, and fostering the growth needed to reach your ultimate career goals.

As Mahatma Gandhi once stated, “If I have the belief that I can do it, I shall surely acquire the capacity to do it even if I may not have it at the beginning.”

UF TREEO will continue to follow the most recent guidance from the CDC and the University of Florida. To view the latest COVID-19 safety measures UF TREEO is taking please visit our website.

For a full course schedule, visit www.uftreeo.org

Backflow Prevention Courses

Backflow Prevention Recertification

Oct. 15-16, 2020 | Pensacola, FL

Oct. 17-18, 2020 | Venice, FL

Oct. 20-21, 2020 | Fort Myers, FL

Oct. 24-25, 2020 | Jacksonville, FL

Dec. 3-4, 2020 | Pensacola, FL

Dec. 4-5, 2020 | Fort Myers, FL

Dec. 5-6, 2020 | Tampa, FL

Dec. 10-11, 2020 | Destin, FL

Dec. 11-12, 2020 | Venice, FL

Backflow Prevention Assembly Tester

Training & Certification

Oct. 12-16, 2020 | Davie, FL

Oct. 26-29, 2020 | Jacksonville, FL

Nov. 2-6, 2020 | Destin, FL

Nov. 7-15, 2020 | Tampa, FL

Nov. 11-14, 2020 | Venice, FL

Dec. 7-11, 2020 | Pensacola, FL

Dec. 12-20, 2020 | Tampa, FL

Backflow Prevention Assembly Repair and Maintenance Training & Certification

Nov. 4-6, 2020 | Davie, FL

Nov. 6-7, 2020 | Venice, FL

Water/Wastewater Courses

Intro to Lift Station Maintenance

Oct. 9, 2020 | Live Virtual Course

Dec. 8, 2020 |Live Virtual Course

Wastewater Class A Certification Review

Oct. 12-16, 2020 | Live Virtual Course

Water Distribution System Pipes & Valves

Oct. 19, 2020 | Live Virtual Course

Wastewater Class B Certification Review

Oct. 26-30, 2020 | Live Virtual Course

Water Class C Certification Review

Nov. 2-6, 2020 | Live Virtual Course

Introduction to Electrical Maintenance

Nov. 17-19, 2020 | Gainesville, FL

Activated Sludge Process Control & Troubleshooting

Nov. 17-20, 2020 | Gainesville, FL

Water Distribution Systems Operator Level 1 Training

Dec. 9-11, 2020 | Live Virtual Course

Process Control of Advanced Waste Treatment Plants

Dec. 15-17, 2020 |Gainesville, FL

Online Courses

• Asbestos Refresher: Contractor/Supervisor

• Backflow Prevention Assembly Tester

Training & Certification

• Introduction to Backflow Prevention

• Florida Water Conservation Coordinator

Introductory Course

• Hazardous Waste Regulations for Generators

• Wastewater Collection Systems

• Wastewater Treatment Plant Operations

Class C Training Course

• Water Distribution Systems Level 2 & 3

• Water Treatment Plant Operations

Class C & B Training Course

• Wastewater Class C Certification Review

• Wastewater Class B Certification Review

• Water Class C & B Certification Review

This column addresses safety issues of interest to water and wastewater personnel, and will appear monthly in the magazine. The Journal is also interested in receiving any articles on the subject of safety that it can share with readers in the “Spotlight on Safety” column.

Reducing the Risk of Workplace Violence in the Water Industry

Workplace violence is any act or threat of physical violence, harassment, intimidation, or other threatening and disruptive behavior that occurs at the worksite. It ranges from threats and verbal abuse, to physical assaults and even homicide. It can affect and involve employees, clients, customers, and visitors.

Acts of violence and other injuries are currently the third-leading cause of fatal occupational injuries in the United States. According to the Bureau of Labor Statistics Census of Fatal Occupational Injuries (CFOI), of the 5,147 fatal workplace injuries that occurred in the U.S. in 2017, 458 were cases of intentional injury by another person. However it manifests itself, workplace violence is a major concern for employers and employees nationwide.

Utility Workers at Risk

Unhappy customers who harass and intimidate utility workers, either in a company location or in the field, pose a threat to those workers. The Occupational Safety and Health Administration (OSHA)

singles out utility employees as being one of the categories most vulnerable to workplace violence. They are considered vulnerable because they deliver services, often work alone or in small groups, and may exchange money with the public.

The most at-risk workers are the billing service staff, meter readers, and field staff who make house calls to investigate customer complaints or install services. Those responsible for shutting off water services are perhaps the most likely to encounter customer hostility.

According to a survey conducted by Northwestern Mutual Life Insurance Company, 44 percent of workplace violence incidents are perpetrated by irate customers or clients. As noted by OSHA, workplace violence can occur anytime and anywhere; however, once risk factors are assessed, occurrences can be prevented or minimized by knowing and using suitable precautions.

Staying Safe

For utility workers, a potentially violent customer may catch a worker off guard. In this

situation, a cool head and violence-prevention training come into play. A utility worker who encounters an angry customer at a company facility should never become defensive, confrontational, or patronizing. Instead, talk to the person in a calm, soft voice. This helps the person realize the volume of their own voice and perhaps may prompt that person to respond in kind.

Other ways to diffuse the situation include:

S Listen closely to the complaint, smile pleasantly, and treat the customer with respect.

S Understand that the customer isn’t angry with you; he/she is just mad about the situation.

S Acknowledge how the person is feeling by saying things like “I understand why you are upset” or “I know that this is difficult…”

S Ask open-ended questions, such as “What happened?” or “What can we do to help you?”

By getting customers to talk, instead of yell, you can break their train of thought and even diffuse their anger. No matter what,

report the incident. Especially keep a record of volatile customers so other employees can be better prepared for future encounters.

In the field, all of these suggestions apply. If the situation becomes uncomfortable, leave the premises, go to a safe place, and call for help. If the customer shows a weapon or physically threatens the utility worker, the incident needs to be immediately reported to the police, as well as to utility management.

If a situation is potentially dangerous, such as shutting off service, OSHA recommends hiring an employee safety service or requesting police assistance. The organization also recommends that employees who carry money should not work alone.

Other ways to increase staff safety in the field include:

S Equip staff members with cell phones, handheld alarms, or noise devices.

S Require that staff members set check-in times to keep a contact person informed of their location throughout the day.

S Keep utility vehicles in good working condition (and with plenty of gas) to avoid a breakdown in unsafe areas.

S Provide drop safes to limit the amount of cash a bill-collection employee carries.

If any violent incident occurs, whether in the office or in the field, the employer should provide the affected employee(s) with emotional support, such as crisis intervention and counseling.

WHEN INNOVATION MEETS TRADITION

A workplace violence-prevention program is only as effective as top management is willing to make it, but it’s the responsibility of every employee to be aware, act on warning signs, and learn how to deal with threats.

For additional information, go to the OSHA safety and health topics website at https://www. osha.gov/SLTC/workplaceviolence/.

Annual Inflow and Infiltration Mitigation Planning Keeps the City of Altamonte Springs Poised to Handle Storm Events

The City of Altamonte Springs (city) owns and operates a 12-mil-gal-perday (mgd) regional water reclamation facility (WRF), shown in Figure 1, that treats and reclaims municipal wastewater for the city and several adjacent communities.

The city is an innovative water utility leader, from Project APRICOT (A Prototype Realistic Innovative Community of Today) in the 1980s developing a citywide reuse system, to the 2017 PureALTA project, which is a model for converting reclaimed water to potable water without reverse osmosis (RO) and is setting the standard for future water resource management.

In a similar vein, this project is a proactive effort to help renew private and public wastewater infrastructure by prioritizing and coordinating construction efforts with other city programs. This project is specifically focused on reducing rain and groundwater from entering the city’s wastewater system

as inflow and infiltration (I&I), maintaining the city’s capacity during storm events, and minimizing/eliminating wastewater overflows.

The I&I contributions to the city’s wastewater collection system during the high rainfall season create significant additional flow that consumes available capacity at the city’s WRF. More importantly, inflow contributions from large rainfall events have historically stressed the capacity of wastewater collection infrastructure for short periods of time. The unwanted I&I contributions incur increased annual operating expenses and potential discharges of highly treated effluent to the Little Wekiva River during major storm events.

The city’s approach to addressing I&I issues is to evaluate, prioritize, and mitigate I&I within the wastewater collection system, while dovetailing with other city

Eric Gassen, E.I., is a project engineer; Edward Talton, P.E., is vice president; and Christophe Robert, Ph.D., P.E., is a process engineer, with Reiss Engineering Inc. in Winter Springs. Ed Torres, P.E., is director of public works and utilities; and Kipton Lockcuff, P.E., is division director of water distribution, collection, and resource management, with City of Altamonte Springs.

efforts, including neighborhood restoration initiatives.

In prioritizing specific I&I projects, the city considered wastewater collection system infrastructure near the end of its useful life or in need of upgrade/improvement. A large portion of the city’s gravity piping is made of vitrified clay, which is now nearing the end of its life. Replacement or structural lining of the clay gravity pipe will accomplish both infrastructure renewal and I&I reduction objectives. Other key collection system components include manhole structures and customer lateral lines.

Wastewater pump station repair/ replacements are addressed by a different city program that also focuses on priority stations. The city uses investigations, including pump station run times, rainfall data, closed-circuit television (CCTV), smoke testing (defined later), and visual inspections, to prioritize I&I hotspots. The data analysis identifies the type of I&I and quantifies pump station basin I&I to determine the best mitigation solutions. Once the high-priority areas are determined, continuing contractors or other city construction initiatives are utilized to make necessary improvements. This article presents the data analysis and fieldwork performed for I&I mitigation that could be useful to other utilities addressing the issue.

Figure 1. Altamonte Springs Regional Water Reclamation Facility

Background

The city’s wastewater collection and transmission system (Figure 2) consists of nearly 150 mi of gravity sewer pipe, 72 active pump stations, over 3,600 manholes spread out over approximately 11 sq mi (28 sq mi, including wholesale sewer customers), and its 12-mgd WRF. With such a significant coverage area and potential for I&I, the city decided to act decisively in reducing its immediate I&I issues, as well as proactively planning to minimize future I&I with a more structured I&I mitigation program (program).

The city first needed to enhance its annual I&I budget in order to perform the more-structured and robust tasks associated with the I&I program. Costs for field work, pipe lining, engineering support, and infrastructure renewal were analyzed and compared to the cost of reactive emergency repairs, operating costs, Florida Department of Environmental Protection (FDEP) compliance regulatory costs, and costs associated with progress reporting, as well as previously established funds for sewer system repairs. Once the cost analysis was performed, the city allocated additional funding for the program.

The city and Reiss Engineering worked together to restructure the existing I&I program and establish a new base I&I program, which would regularly monitor the I&I data over a period of years and after major storm events. In addition to data analysis, field work would also be performed to further identify I&I contributions and a plan would be established annually to reduce I&I.

The program needed to be robust and rigid in mitigating I&I issues found within the system, yet flexible enough to be reviewed and updated annually based on new information found throughout the year.

Objective

The city’s goals for the program were to reduce operating costs, as well as significantly minimize the potential of overflows through aggressive I&I mitigation measures. One of the key components of the program is annual updates to I&I mitigation strategies and periodic performance assessments. The annual updates to the program use engineering analyses to identify “priority areas” within the collection systems that are vulnerable to I&I. Engineering analyses include gravity piping condition assessments, groundwater-level

comparisons to gravity sewer pipe elevations, and pump station operation comparisons during dry periods and rainfall events. The program developed strategic actions to costeffectively reduce I&I in the prioritized areas. Strategic actions involve investigative field work to identify and quantify I&I and corrective measures to reduce it. The investigative field work includes in-house

CCTV inspection of sanitary sewer lines, smoke testing, and flow monitoring targeted by the engineering analyses to identify specific sources of I&I more efficiently. The corrective measures to reduce I&I are both preventative and restorative, such as gravity sewer lining, gravity sewer point repairs, installation of manhole caps, cleanout repair,

Continued on page 46

Figure 3. Example of Pump Run Time Versus Rainfall
Figure 2. Altamonte Springs Collection and Transmission System

and notification to residents with damaged sewer components on private property. As I&I mitigation is an ongoing effort, the program is periodically evaluated for effectiveness based on wet weather flows and pump station operations, and adjusted accordingly.

Besides reducing I&I, the city wanted a more-structured way to breathe new life into its aging infrastructure and effectively deploy staff and resources to the sewer system. Some utilities may invest in I&I mitigation without

clearly establishing a solid basis on how to deploy their resources in the most costeffective manner. The city wanted to ensure that its annual I&I budget was used efficiently to keep costs down and effectively treat I&I.

Methodology

To develop the program, five years of supervisory control and data acquisition (SCADA) data, pump station run times, and CCTV inspections were reviewed. Current

rainfall data were also collected using the city’s local rainfall gauges. Next-generation radar (NexRAD) was provided by St. Johns River Water Management District (SJRWMD), and the National Oceanic and Atmospheric Administration (NOAA).

From the data, the following steps were performed to develop an I&I mitigation program:

S Correlate pump run times with rainfall.

S Determine a priority ranking based on strong or weak correlation between pump run time and rainfall. This priority ranking is established to determine which sub-basins should be prioritized for I&I mitigation.

S Perform CCTV inspections to qualify and quantify pipe defects in high-priority sub-basins.

S Determine a priority ranking based on type of defects and location of the pipes.

S In situations where CCTV cannot be performed in high-priority basins, smoke testing is performed.

S Based on smoke testing results, a priority ranking is established among the pipes tested in the high-priority areas.

S Evaluate the different alternatives to mitigate I&I on high-priority pipes, such as pipe lining, repair, or replacement.

S Hire a contractor to perform the work.

S Evaluate the data on an annual basis and adjust the program as necessary.

The next section presents in detail the different data analysis steps and results obtained for the city.

Data Analysis Results

Pump station pump run times were compared with rainfall data from the closest rainfall gauge to establish correlations, or lack thereof. Two separate methods were used to analyze the data to improve accuracy. The Q-versus-I method was used by graphically plotting pump station run time data versus rainfall data for the same period of time (Q) and comparing peaks in run times to peaks in rainfall (I), as presented in Figure 3. This example shows that the pump run times increased following a major rainfall, compared to run times during a relatively dry period. Rainfall data were also examined using the U.S. Environmental Protection Agency (EPA) sanitary sewer overflow analysis and planning (SSOAP) toolbox. This toolbox uses the RTK method to derive the sanitary sewer system rainfall-derived inflow and infiltration

Continued on page 48

Figure 4. Triangular Unit Hydrograph
Figure 5. Unit Hydrograph Example

(RDII) response using the associated rainfall and flow monitoring data. The RTK method compares the fraction of rainfall volume that enters the sewer system and equals the volume under the hydrograph (R), time from the onset of rainfall to the peak of the unit hydrograph (T), and the ratio of time to recession of the unit hydrograph to the time to peak (K). The RTK method also compares rainfall data to flow that comes from the pump station, but also considers the sub-basin area to establish unit I&I generation factors within each basin.

The following is an excerpt from the SSOAP toolbox manual:

“The RDII unit hydrograph method is similar to the Q versus I method in that it compares rainfall data to lift station run times. This method also takes into account the area of the sub-basin and estimates the amount of I&I that enters the sub-basin and how much of that flow is seen as inflow versus infiltration. The three primary factors looked at (inflow, infiltration, and volume entering the basin) are assigned values R, T, and K parameters (RTK method) and are estimated using a hydrograph combining all three parameters.”

Figure 4 depicts the triangular unit hydrograph in response to one unit of rainfall over one unit of time.

The unit hydrograph is described by the following parameters:

S R: The fraction of rainfall volume that enters the sewer system and equals the volume under the hydrograph.

S T: The time from the onset of rainfall to the peak of the unit hydrograph in hours.

S K: The ratio of time to recession of the unit hydrograph to the time to peak.

S A: The sub-basin area.

S P: Rainfall depth over one unit of time.

S Volume: Volume of RDII in unit hydrograph.

S Qp: Peak flow of unit hydrograph.

Figure 5 shows an example of one of the unit hydrographs.

Prioritizing the pump station sub-basins for repair or further investigation was then performed. By setting a priority to each of the sub-basins, a work plan could then be developed to establish regions within each sub-basin (or even an entire subbasin) to ensure that areas with highest I&I contributions were corrected first. Areas were

Table 2. Quantified Pipeline Defects by Pipe Segment
Table 3. Pipe Defect Point Values

given priority numbers based on the rainfall and pump run time correlation, as well as pipe defects.

Pump run times versus rainfall correlation was first prioritized. A priority 1 through 4 scale was used, with priority 1 being the highest I&I priority. The correlation between pump run time and rainfall was established by calculating the number of hours the pumps were operated by in. of rain after subtracting the estimated baseline flow; therefore, the higher the run time per in. of rain, the more impact the I&I has on the pump station.

S Priority 1: Pump station with a run time above five hours per in. of rain (significant correlation with rainfall).

S Priority 2: Pump station with a run time between three and five hours per in. of rain (some correlation to rainfall).

S Priority 3: Pump station with a run time between one-and-a-half and three hours per in. of rain (less correlation with rainfall).

S Priority 4: Pump station with a run time less than one-and-a-half hours per in. of rain (no clear correlation with rainfall).

Table 1 presents an example of the priority levels for each pump station area.

Once priorities were established for each sub-basin, the pipelines themselves were then prioritized. The CCTV inspection footage was reviewed, which allowed for the visual inspection and identification of damage within the gravity sewer network.

Defective sections of the pipe, such as root infiltration, cracks, joint separation, deposits, and damaged service laterals were identified. The damage type was noted and quantified for each pipe segment individually and summed for each pump station basin. Table 2 shows an example of pipeline defects.

Prioritization was then established based on the CCTV footage evaluation. The number of defects per pipe segment, the type of defect, the estimated relative amount of I&I associated with the specific defect, and the pipe proximity to groundwater/surface water were considered in the prioritization. For example, pipe segments with visible large cracks and separated joints could result in the most I&I, whereas leaking laterals and root infiltration would generate slightly less I&I and deposits (areas with slow leaks that build up minerals) and would yield no significant amount of I&I.

Point values were assigned to each defect based on the potential for I&I, as seen in Table 3. These values were then multiplied by the number of defects per pipe segment, with an additional 1.5 multiplier added to pipe segments near large bodies of water, high groundwater tables, and surface water bodies. The final values were then tabulated and placed into one of the four priorities. Deposits were not initially counted within the prioritization as the produced minimal inflow. Additionally, defects that showed substantial inflow upon visual inspection were automatically classified as priority 1.

S Priority 1: Pipe segments with point values greater than 7.

S Priority 2: Pipe segments with point values between 5 and 7.

S Priority 3: Pipe segments with point values between 2 and 5.

S Priority 4: Pipe segments with point values less than 2.

Priority maps for the pipe segments were then created for a visual representation of the priority areas, both for areas to be smoketested and the areas to be lined in cured-inplace pipe (CIPP). Work orders were then created based on the prioritization for smoke testing, flow monitoring, and CIPP lining, as well as additional visual checks, such as field assessment and CCTV inspection. Figure 6 shows an example of the prioritization map. Smoke testing is a method to detect defects in pipes, pump stations, and laterals that could result in I&I. It consists of blowing a nontoxic smoke into a gravity sewer system. The smoke travels through the pipe under very low pressure and escapes through any opening in the line. These openings can be broken or open cleanouts, stormwater cross connections, damage manhole structures, or any number of defects in the pipeline. The smoke testing performed included fixing cleanout-related defects and other defects not requiring significant excavation, and creating work orders for defects requiring significant excavations/repairs. Select pump station sub-basins were

Figure 6. Pipeline Prioritization Map
Figure 7. Smoke Testing Report Example Page Continued on page 50

smoke-tested based on the pump stations priority level. During the smoke testing, a field crew walked the pipeline being tested to look for smoke escaping the gravity sewer system. Each location where smoke was seen was noted using a global positioning system (GPS) mapping tool. The tool records the following attributes, as entered by the field crew:

S GPS X and Y coordinates

S Associated address

S Date recorded

S Type of deficiency

S The pump station sub-basin

S A priority level of 1 through 3 for repair

S Whether the defect was immediately repaired

The defects identified were also assigned a priority rating based on the estimated levels of I&I contribution as follows:

S Priority 1: Significant I&I contributions and requires immediate attention.

S Priority 2: Moderate I&I contributions and should be scheduled for repair and/or replacement as soon as possible.

S Priority 3: Low I&I contribution and should be scheduled for repair and/or replacement when resources are available.

The priority 1 defects were a mix of missing/damaged cleanout caps in low-lying areas or regions where direct water flow could take place, with damaged manhole structures, damaged laterals, and potential line blockages. The priority 2 defects included

missing/damaged cleanout caps outside of low-lying areas, manhole lids with significant smoke emergence and/or in low-lying areas, and smoke rising from the ground without an identifiable source. Priority 3 defects consisted primarily of manholes with small smoke emergence and cleanouts not expected to receive drainage.

A report was generated for any defect that could not be repaired after testing. The report was used to then create new work orders to repair the pipe defect which, in turn, minimizes the locations in which rainfall can enter the sewer system. Figure 7 displays an example page from the smoke testing report.

Inflow and Infiltration Mitigation Alternatives

Lining of defective pipes can be a valuable alternative to minimize I&I, as well as expanding life expectancy of gravity sewer infrastructure using an economically effective approach. The CIPP lining utilizes a specifically sized sleeve covered in resin, which is inserted into a pipeline. The sleeve is then inflated via water or air pressure, and the resin is then cured using heat. Once the resin sets the sleeve, it’s then structurally sound and has lined the interior of the pipe, thus covering pipe defects and reducing I&I.

During a period of time, several thousands of ft of gravity pipes were lined to reduce the I&I and renew aging infrastructure in the PS#11, PS#12, PS#13, and PS#14 areas. To help evaluate the effectiveness of the pipe

lining, pump station run times were provided by the city from early 2012 to early 2016. For the pump station service areas that were recently lined, the data indicates that I&I is still occurring; however, the pump run time analysis shows that the run times were significantly reduced following the lining and smoke testing efforts.

During dry periods, the pump run time was estimated to establish a baseline, and then the pump run time over the baseline was assumed to be due to I&I; it was then normalized per in. of rain. As shown in Table 4, the run time per in. of rain was reduced to a range of 35 to 73 percent, depending on pump station.

This analysis suggests that the gravity pipe lining is having a positive impact on I&I, while some I&I is still occurring in the unlined pipes in these pump station areas, as well as in manholes and service laterals.

Neighborhood Enhancement Program

The city has an ongoing neighborhood enhancement program to replace streets, sidewalks, and landscaping to help sustain a neighborhood’s value and customer approval. Prioritized areas that were inside planned neighborhood enhancement areas were included in these projects to increase program efficiency and minimize cost and customer disruptions. Project components included gravity sewer and service laterals, pump station replacement/rehabilitations, and neighborhood drainage improvements.

Conclusions

The city’s mitigation program is an example of a structured, pro-active, efficient, and cost-effective way to address I&I issues. Data compilation/review/analysis and strategic planning efficiently identify I&I budget requirements and opportunities to dovetail with other city programs. The creation of work plans based on I&I prioritization focuses on collection basins that will provide the most benefit to the city. Field data analysis before and after I&I mitigation efforts confirmed that targeted lining can significantly reduce I&I. The city demonstrated that regular review of new data, CCTV inspections, smoke testing, and field inspections, and following through on needed repairs and annual workplan updates, is an effective program for mitigating a utility’s I&I.

Table 4. Pump Run Time Comparison: Pre- and Post-Pipe Lining

Ready To Ship

SUBMERSIBLE WASTEWATER PUMPS & CONTROLS

Assembled, Tested & Ready For Your Application

Grundfos and our partners want to ensure you have what you need to continue facilitating and delivering essential water services. We have a large inventory of in stock SE/SL submersible wastewater pumps, LC controls, SEG grinders and competitor guide rail brackets that are ready for immediate shipping.

SE/SL Pumps

Ask about our 90-DAY TRY AND BUY PROGRAM

High performing, efficient and easy to maintain submersible wastewater pumps

SEG Grinders

Designed for pumping effluent and untreated sewage in small communities or sparsely populated areas.

LC Controls

Offer comprehensive features for control and monitoring of pumps in wastewater applications.

Should you require products or support while we face the COVID-19 crisis, Grundfos and our partners are here for you. For product questions, or to request immediate shipping, contact your Authorized Grundfos Distributor.

Central Florida: 407-936-1139

Florida Keys: 407-474-0026

South West Florida: 239-224-8422 nugentco.com

AWWA Section Services provides sections with content for their publications. These articles contain brand new information and will cover a variety of topics.

2020 Florida Section Education Winner: High School Academy Program

We’ve all heard about the “silver wave” of retirement in the water industry and the need to fill all of those entry-level positions that will be vacated by promotions, retirements, and attrition over the next five to 10 years.

Recognizing this quandary, the FSAWWA Operators and Maintenance Council created the Operators Initiative. The goals of this section initiative are to:

S Understand, communicate, and support the need for treatment plant operators.

S Cultivate the next generation for entry into our profession to provide “bench strength” for local water and wastewater systems.

S Expand the high school academy program.

The FSAWWA first became involved

with the Florida Department of Education (DOE) nine years ago and began discussions about integrating the Florida Department of Environmental Protection (FDEP) water and wastewater licensure education requirements into the existing DOE-approved and -funded high school academies.

Since the first academy class graduated in 2013, over 150 high school students have taken 200 Florida treatment plant operator exams, with a 25 percent pass rate. It’s important to note that no special exam is given to high school students; the seniors are given the exact same operator exam as everyone else.

Florida allows the academy students to take the exam prior to receiving their high school diploma. Once the diploma is earned, FDEP

releases the exam scores and issues the certificate of completion.

FSAWWA Support

The Florida Section provides the academies support in many different capacities. Local utility volunteers participate on advisory committees, provide guest speakers, and offer letters of support. As schools closed earlier this year due to COVID-19, several FSAWWA volunteers stepped up to tutor graduating students, helping them complete their academy coursework. The FSWWA also provides each academy financial support with a three-year cash grant of $3,000 a year. Schools can purchase textbooks, and laboratory and classroom supplies, and pay for expensive bus rentals needed for field trips. Scholarships of $100 each are available for any academy graduate to retake the operator exam, if necessary.

FSAWWA Fall Conference

Each year, at the section’s annual Fall Conference, a “High School Student Session” is presented. The 2019 session attracted over 70 students, teachers, and schools. Students break for lunch and sit with several section volunteers to talk about their career progression and expectations after graduation. Box lunches, provided by sponsors, are available to the attendees.

In the afternoon, students participate in a scavenger hunt in the exhibit hall, tailored after the scavenger hunt held by the Young Professionals Committee at the AWWA Annual Conference and Exposition (ACE), with a focus on exam questions.

Some Academy History

The longest-running academy is the Heritage High School Academy of Environmental Water Technology (AEWT) in Palm Bay. Students focus on a three-year environmental technology track beginning in grade 10. Students who complete the entire three-year program, earn a “C” average or better, and pass the FDEP operator exam can earn 12 hours of college credit at Florida Gateway College.

St. Johns Technical High School in St. Augustine is the home of the Academy of Coastal and Water Resources. Students participate in a valuable hands-on curriculum designed in partnership with St. Johns County Utilities, Florida Gateway College, City of St. Augustine, and University of Florida.

In addition, this academy partners with the City of Palm Bay Utilities Department by budgeting and hiring up to three students every summer for a five-week work/study program. Students earn $10 an hour, which gives them a feel for day-to-day work, and provides valuable experience for their resumé.

Two New Academies Started in 2019

Lake Brantley High School in the City of Altamonte Springs started Project H2O Transfer. This academy is a joint effort, with the school, City of Altamonte Springs, and Seminole County School Board participating. The academy spans the entire senior year of high school, with specific days and times scheduled for the students to work side by side with licensed operators at the City of Altamonte Springs Regional Water Reclamation Facility, providing the students with valuable actual treatment plant experience.

The second newest academy is now underway at Leto High School in Tampa. The Water Treatment Plant Operations Academy prepares participating high school seniors for the class C water plant operator exam. The Hillsborough County School District sponsors this academy.

So, What’s Next?

Seminole High School in the City of Seminole is starting a brand-new academy in the fall of 2020. Eight students are enrolled in the school’s new engineering academy water resource sustainability program.

This initiative is a proven opportunity to bring jobs into the communities, now and in the future, by building a strong local pool of operator trainees. Academy graduates can be hired as trainees and interns, training them at the plants

by providing the skills and the actual experience they need to get their licenses and become a part of the water community.

Then we get to start all over again with the next graduating class and help to prepare the new generation for a career as a licensed treatment plant operator.

Comments from Seminole High School Academy interns:

“Thank you for showing us around the different places, like the breaker room, and thank you for showing us a more indepth process of testing voltage. I picked up one of the cards you put down and the tour was very informative. I would like to work with you in the future, if possible.”

Dakota

“Thank you for showing me what you do at the plant, and for fixing my shoes with zip ties so they wouldn’t fall off.” Rachel

“Thank you for taking the time to teach me and the rest of the interns. The part of the tour that included checking the computers and seeing which pump may have a problem was my favorite part. I look forward to observing you as an operator.” Amberlyn

“Thank you for showing me around the plant and for talking about how you got into the job you do there.” Rachel

Joe Paterniti

City of Boynton Beach Utilities

Work title and years of service:

Over the past five years, I have worked for the City of Boynton Beach and am currently serving as utility director. My previous experience includes over 30 years working for private-sector firms, providing public-sector utility engineering and consulting.

What does your job entail?

My job as the utility director includes directing operations and activities of the utilities department. The department consists of several divisions, including administration, customer service, utility engineering, water treatment, water distribution, stormwater management, chilled water, wastewater collection, and water quality laboratory.

It’s my job to ensure departmental compliance with all regulatory requirements, applicable codes, laws, rules, standards, policies, and procedures; ensure adherence to established safety procedures; and initiate any actions necessary to correct deviations or violations.

Another part of my job is to develop,

FWRJ READER PROFILE

Badger Meter announces the availability of netAMP Enabled™ to significantly expedite end-to-end advanced metering deployments. The new product complements other smart water technologies from the company, including BEACON® Advanced Metering Analytics (AMA), ORION® Cellular LTE-M endpoints, and smart water meters, by providing customers a fixed, subscriptionbased metering-as-a-service program to receive all of their equipment, meters, software, and services to upgrade antiquated infrastructures.

The netAMP Enabled accelerates the implementation of the BEACON AMA,

implement, and monitor departmental operating budgets, including capital construction budgets. I authorize and monitor expenditures and determine appropriate workforce needs.

What education and training have you had?

I have obtained a bachelor of science degree from University of Central Florida and licenses as a professional engineer in several states. I have received several certifications: board-certified environmental engineer in 2000, certified floodplain manager in 2008, and Occupational Safety and Health Administration (OSHA) 10-hour safety certification in 2015.

What do you like best about your job?

I am fortunate to work with a group of professionals and technicians dedicated to providing the best service to our customers. I enjoy all aspects of running a utility, from managing the utility’s various operating divisions to managing the implementation of technologies related to asset management and capital planning. I am also involved with developing an automated tool to assist with managing utility rates to ensure that the utility’s finances are sustainable for years to come. My position also allows me to collaborate with and develop staff abilities to enable growth and career advancement. I am also fortunate to have opportunities to work with talented engineering and financial consultants.

What professional organizations do you belong to?

I’m honored and very proud to be the founding vice president of the Peace River Engineering Society in southwest Florida. I’m also currently an active member in FWEA,

NEW PRODUCTS

while simultaneously removing capital costs. It allows utilities to upgrade their aging infrastructure, as well as agile upgrades and maintenance cycles, with budget predictability.

“Badger Meter is excited to expand our product portfolio and provide customers with netAMP Enabled through UMS. Utilities now have a unique opportunity to upgrade their infrastructure to an AMI system without upfront capital costs,” said John Fillinger, the company’s director of utility marketing. “This is even more beneficial today, with the current economic conditions that municipalities are facing.”

serving as a director at large, and a member of the WEF Utility Management Committee. Additionally, I serve as a member of FSAWWA.

How have the organizations helped your career?

Being an active member in these professional associations has provided me a multitude of opportunities. Membership has allowed me to develop my professional network. I have formed great friendships by working with FWEA committees. My knowledge base has increased through attending workshops, seminars, and conferences, which allowed me to further advance in my career. These associations provide publications and information to keep me current on emerging technologies and provide insights on how other organizations are managing utility challenges.

What do you like best about the industry?

It’s amazing that everyone I am in contact with in this industry has the same spirit of service. These utility professionals, technicians, and administrative individuals, during the shutdown due to the pandemic, have continued to provide essential services to their communities. It’s a privilege for me to work alongside such dedicated men and women.

What do you do when you’re not working? I enjoy visiting with family and friends, playing an occasional round of golf, or going fishing. I’m an avid reader. I happily look forward to resume planning road trips again in the nottoo-distant future. A recent hobby I have also started, due to the pandemic, is assembling jigsaw puzzles. I find the challenge of organizing the different-shaped pieces to fit and work together to make a work of art very rewarding.

The metering-as-a-service program does the following:

• Eliminates upfront capital investments in upgrading existing metering.

• Provides an easy, fixed payment schedule to fit utility budgets.

• Delivers all the equipment, meters, software, and services for advanced metering deployments.

• Includes all planning, installation, integration, maintenance, support, and training.

• Provides future software upgrades and long-term service and support for the life of the contract.

Continued on page 56

FWPCOA TRAINING CALENDAR

Course registration forms are available at http://www.fwpcoa.org/forms.asp. For additional information on these courses or other training programs offered by the FWPCOA, please contact the FW&PCOA Training Office at (321) 383-9690 or training@fwpcoa.org.

Continued from page 54

“Badger Meter and UMS share a common vision that a smart city begins with a robust advanced metering program that is fully integrated within the city,” said Joey Mitchell, vice president at UMS. “The netAMP Enabled was created to give utilities a simplified path to this upgrade. We remove capital costs and complexity by giving utilities a flexible, subscription-based advanced metering program. We assume financial responsibility, and therefore, we only work with reliable, best-in-class manufacturers.” (www.badgermeter.com)

R

Aclara, a leading supplier of smart infrastructure solutions (SIS) to electric, gas, and water utilities worldwide, announces the first fully compliant and certified SMETS2 (smart metering equipment technical specifications) polyphase electricity meter series. The new series, which offers three variants, allows utilities to further automate the management of their meter assets at a total lower cost of ownership.

The release of the SGM1430 series polyphase smart electricity meters continues Aclara’s 100-year tradition of providing reliable and robust metering solutions to

utility companies and their customers. The new smart meter series permits utilities to cater to a full range of large residential and small-business-client configurations, allowing them to optimize and manage their energy usage.

The variants of the meter line include:

• SGM1431B: Intended for installation in larger residential premises with highenergy usage and businesses, such as small retail shops.

• SGM1432B: Developed for installation in larger residential premises and businesses, such as shops with high-energy usage, it includes a single auxiliary load control for applications that require automatic heating control.

• SGM1433B: Also designed for installation in larger residential premises and businesses, such as shops with high-energy usage, this meter offers two auxiliary load control outputs for automatic night storage heating control and control of water heating.

The addition of the polyphase SGM1430 line of electricity meters is an integral part of a dual-fuel smart metering solution. The full range of electricity meters, under a common platform, allows for optimized installation,

and easier testing, maintenance, and firmware updates.

The first-ever polyphase SMETS2 smart meter, an Aclara SGM1433B, was installed recently at a large residential property. Large residential and small-business customers that require polyphase meters because of the higher amount of electricity they draw could not previously take advantage of smart meters, which automatically log energy consumption to facilitate accurate billing. Smart meters are also an essential enabler of energy efficiency and green technologies, such as electric vehicles, that encourage flexible demand and help reduce carbon emissions and costs.

“Aclara today supplies most of the tier-one energy retail suppliers, including SSE Business Energy, which is now part of OVO Energy, as well as leading meter asset providers, such as SMS and National Grid,” said Jason Subirana, division vice president–meters. “The introduction of our new polyphase variant meter cements Aclara’s leadership in providing a complete suite of SMETS2 electricity smart meter variants that meet metering requirements.”

The smart meters have long been at the forefront of smart metering deployment programs. Its dual-energy solution consists

Continued on page 61

You focus on what you do best. We’ll take care of the rest.

Diversified Technology’s Managed Services group will run your entire billing operation, or any part of it, and save you money over an inhouse staff!

We’ll calculate and verify your bills. Work with field staff on re-reads. Generate, then mail and email your bills. We’ll receive payments, make deposits, and create late and shut off notices. We’ll even answer your customer service phone calls.

All while saving you money every month! For more information: Visit DiversifiedBilling.com or Call 877-202-0197

Water Research Foundation Announce New Projects

The Water Research Foundation (WRF) has released requests for proposals (RFPs) for 12 new projects funded through its research priority program.

Waters to Toxic Cyanobacterial Outbreaks (5080)

This strategic program enables WRF to address broadly relevant subscriber issues, challenges, and opportunities with targeted research that lasts three to five years.

Additionally, WRF is providing opportunities for utilities to participate in these new research projects through the utility participation in research (UPIR) process. Utilities can serve as a test facility, provide samples, respond to surveys, loan equipment, or share staff expertise on particular research projects of interest.

Proposals for the following RFPs are due by Thursday, Oct. 15, 2020, at 2 p.m., MT:

S Linking Nutrient Reductions to Receiving Water Responses (5078)

S Assessment of Vulnerability of Source

S Guidance for Using Pipe Loops to Inform Lead and Copper Corrosion Control Treatment Decisions (5081)

S Investigation of Alternative Management Strategies to Prevent PFAS From Entering Drinking Water Supplies and Wastewater (5082)

S Case Studies on Water Sector Interdependencies (5086)

S Implementation of Innovative Biological Nutrient Removal Processes Through Improvement of Control Systems and Online Analytical Measurement Reliability and Accuracy (5087)

Proposals for the following RFPs are due by Thursday, Oct. 29, 2020, at 2 p.m., MT:

S Water Reuse and Beyond: Water Quality Monitoring Methods, Data, and Interpretation (5079)

S Advancing Low-Energy Biological Nitrogen and Phosphorus Removal (5083)

S Holistic and Innovative Approaches

for Flood Mitigation Planning and Modeling Under Extreme Wet Weather Events and Climate Impacts (5084)

S Impact of a Haloacetic Acid Maximum Contaminant Level (MCL) Revision on Disinfection Byproduct (DBP) Exposure and Health Risk Reduction (5085)

S Defining Exposures of Microplastics/ Fibers (MPs) in All Waters: Occurrence, Monitoring, and Management Strategies (5088)

S Developing a Framework for Quantifying Energy Optimization Reporting (5091)

Specific questions about these RFPs should be directed to the WRF staff contact included on each RFP (go to www.waterrf. com). Proposals must follow the WRF guidelines for research priority program proposals.

To learn more about the WRF research approach and research programs contact Lexie Vean, communications and marketing manager, at lvean@waterrf.org or (303) 3476259.

Welcome to the FWEA Chapter Corner! The Member Relations Committee of the Florida Water Environment Association hosts this article to celebrate the success of recent association chapter activities and inform members of upcoming events. To have information included for your chapter, send details to Melody Gonzalez at gonzalezm@bv.com.

FWEA South Florida Chapter: A Success Story

Beginnings

Back in 2017, the FWEA board of directors approved the formation of the new FWEA South Chapter to serve the specific needs of our members in Miami-Dade and Monroe counties. On May 18, 2017, the first-ever 2017-2018 steering committee was elected, consisting of 15 members and led by Juan Oquendo.

From that day, the South Chapter has grown and consolidated a large group of active members. We have successfully hosted numerous events to engage our members, such as meetings, luncheons, technical presentations, networking events, and other programs..

First luncheon of the 2018-2019 fiscal year was presented in June 2018. The presentation, Puerto Rico Water and Sewer Program Delivery Experience (2005-2016), was made by

Looking Forward

This year arrived with a new set of challenges, and like everybody else, our young chapter had to adapt to the “new normal”: a world where COVID-19 impacts each and every one of our activities. The new steering committee has taken on the challenge of looking for innovative ways to serve our members and our community.

We started the fiscal year with our highly regarded “Woman in Engineering Panel,” which was hosted virtually on September 10 following the Centers for Disease Control and Prevention (CDC) recommendations. The panelists were very successful professional women working in the field of engineering. They offered a broad perspective of their experiences of working in different sectors of our industry.

We all understand that COVID-19 has come to disrupt our society as a whole, and like many of our members, we are tirelessly working to restore some sort of normalcy. In this regard, we are planning exciting events for our professionals. Please keep an eye out for our emails, or check the FWEA calendar of events at www.fwea.org for more details.

We want to be a source of support to our members, especially during this time. If there is any specific support the FWEA South Chapter can provide to you or your organization, please feel free to reach out to our Chapter chair, Layla Llewelyn, at LlewelynLL@cdmsmith.com. We will be happy to hear from you.

Arturo Burbano and Melody Gonzalez are vice chair and secretary, respectively, of the FWEA South Florida Chapter.

Melody Gonzalez and Arturo Burbano Humble
Alberto Lazaro.
The holiday toy drive was a joint event with FWEA South Florida Chapter, ASCE Miami-Dade Branch, and FES Miami Chapter. Pictured above (left to right) are Layla Llewelyn, chair; Arturo Burbano, vice chair; and Melody Gonzalez, secretary.
Chapter luncheon on Oct. 31, 2018. In photo above, Lynnette Ramirez gives an update on the Miami-Dade Water and Sewer consent decree program.

COVID-19 Pandemic is Wake-Up Call for Water Availability

Urgent action on water availability and security is essential to better prepare societies for future global health crises, say experts at the University of Birmingham in the United Kingdom and Northwestern University in the United States.

In a comment article published in Nature Sustainability, an online-only monthly journal, the researchers are urging policy makers around the world to focus on behavioral change, knowledge promotion, and investment in water infrastructure. The call follows studies revealing that nearly a quarter of households in low- and middle-income countries have been unable to follow basic guidelines on handwashing, which is recognized as critical for preventing the spread of the coronavirus pandemic.

According to Professor David Hannah, who holds the chair in water sciences at the United Nations Educational, Scientific, and Cultural Organization (UNESCO) and teaches at the University of Birmingham’s School of Geography, Earth, and Environmental Sciences, “The COVID-19 pandemic has laid bare the urgent need for global action on water security. This is a basic human right that is not being met in large sections of the world’s population, and COVID-19 has provided us with a wake-up call that we cannot afford to ignore.”

Call to Action

Specific areas that need to be addressed include:

Improving Water Infrastructure and Technologies

Protecting water sources is key to ensuring safe, clean water. Approaches should include adequate water treatment and distribution systems, as well as developing ways to recycle and reuse domestic wastewater and rainwater. These sorts of measures may be more costeffective than building expensive new infrastructures, such as dams, or purifying water after it has become polluted.

Promoting Behavioral Change

Local leaders and communities should seize the opportunities to promote and embed good hygiene behaviors in the wake of the COVID-19 pandemic. This includes rethinking the appreciation of the value of water and how to use it sustainably. This is important since future predictions on climate and population change mean that even communities with good access to water may face an uncertain future.

Promoting Alternatives

Predicting and planning for relief efforts, such as temporary taps or hand-sanitizer products will be increasingly important as climate change and population growth progress. Opportunities for handwashing vary widely across regions, and even within households, so hotspots (areas with insufficient clean water) and hot moments (periods of time when clean water is inaccessible) need to be adequately forecast and prepared for.

“The COVID-19 pandemic may serve as an opportunity to change behaviors,” says coauthor of the article, Professor Iseult Lynch. “For example, over-reliance on commercially bottled water can quickly become selfsustaining and disincentivize investment in sustainable water infrastructure. Rethinking the value of water as a multipurpose resource and how to use it sustainably is urgently required.”

“Both the World Health Organization (WHO) and the United Nations Children’s Fund (UNICEF) acknowledge the scale of this challenge,” adds co-author Professor Stefan Krause, in the University of Birmingham’s School of Geography, Earth, and Environmental Sciences. “Water insecurity has consequences for the well-being–both mental and physical–of billions of people. The costs of not preparing for future crises will be catastrophic.”

Sera L. Young, associate professor, anthropology and global health, at Northwestern University, notes, “This is a great example of how our household water insecurity experiences (HWISE) scale makes visible the often invisible crisis of water insecurity. Inequalities in access to a resource fundamental for existence, and for preventing transmission of COVID, must not continue. My co-authors and I lay out some key actions that can make the world more water secure, and safer for us all.”

The website for the publication is www. nature.com/natsustain/.

C L A S S I F I E D S

CLASSIFIED ADVERTISING RATES - Classified ads are $20 per line for a 60 character line (including spaces and punctuation), $60 minimum. The price includes publication in both the magazine and our Web site. Short positions wanted ads are run one time for no charge and are subject to editing. ads@fwrj.com

POSITONS AVAILABLE

Reiss Engineering delivers highly technical water and wastewater planning, design, and construction management services for public agencies throughout Florida.

Reiss Engineering is seeking top-notch talent to join our team!

Available Positions Include:

Client Services Manager

Water Process Discipline Leader

Senior Water/Wastewater Project Manager

Wastewater Process Senior Engineer

Project Engineer (Multiple Openings)

To view position details and submit your resume: www.reisseng.com

CITY OF WINTER GARDEN –POSITIONS AVAILABLE

The City of Winter Garden is currently accepting applications for the following positions:

EXPERIENCED & TRAINEES/LABORERS

- Collection Field Tech – I, II, & III

- Distribution Field Tech – I, II, & III

- Public Service Worker II - Stormwater

Please visit our website at www.cwgdn.com for complete job descriptions and to apply. Applications may be submitted online, in person or faxed to 407-877-2795.

City of New Port Richey Multiple Positions Available

Construction Engineering Inspection Manager, Water Production Plant Operator C, Utilities Mechanic. Apply at www.cityofnewportrichey.org/jobs

WATER AND WASTEWATER TREATMENT PLANT OPERATORS

U.S. Water Services Corporation is now accepting applications for state certified water and wastewater treatment plant operators. All applicants must hold at least minimum “C” operator’s certificate. Background check and drug screen required. –Apply at http://www.uswatercorp.com/careers or to obtain further information call (866) 753-8292. EOE/m/f/v/d

MAINTENANCE TECHNICIANS

U.S. Water Services Corporation is now accepting applications for maintenance technicians in the water and wastewater industry. All applicants must have 1+ years experience in performing mechanical, electrical, and/or plumbing abilities and a valid DL. Background check and drug screen required. -Apply at http://www.uswatercorp.com/careers or to obtain further information call (866) 753-8292. EOE/m/f/v/d

City of Titusville - Multiple Positions Available Laboratory Assistant, Industrial Electrician, Technical Services Foreman, Maintenance Mechanic, Crew Leader, Equipment Operator, Service Worker, Treatment Plant Operator. Apply at www.titusville.com

Utilities, Inc.

Water & Wastewater Operators

Utilities, Inc. of Florida, a Corix Company, is accepting applications for Water and Wastewater Operators. Applicants must possess a minimum Florida Class C Water or Wastewater license. Applicants must have a valid Florida driver’s license with a clean record. To view and apply for positions please visit our web site, www.myuiflorida.com. Under “Contact Us”, click on Employment Opportunities.

Treatment Plant Operators and Field Personnel

WANTED

Brevard County Utilities is seeking Treatment Plant Operators and field personnel to work in various locations throughout Brevard County, Florida. This position is for a County-owned public water and sewer Utility. For more information and to apply, go to the employment website of the Brevard County Board of County Commissioners at

https://career8.successfactors.com/career?company=brevardcou

Brevard County is an Equal Opportunity/Veterans Preference Employer

Electro Technician: $47,670.98 - $72,459.88/annually

Project Manager: $68,084.93 - $108,935.88/annually

Public Utilities Asset Manager: $78,194.03 - $125,110.45/ annually

Senior Engineer: $68,084.93 - $108,935.88/annually

Wastewater Maintenance Superintendent: $65,008.28$104,013.25/annually

For More Info and to Apply go to: http://agency.governmentjobs.com/hollywoodfl/default.cfm EOE M/F/D/V

News Beat

Continued from page 56

of SGM1400TM SMETS2 electricity meters, designed specifically for large-scale SMETS2 deployments, as well as SMET2 gas meters supplied through a strategic alliance with FLONIDAN. (www.alcara.com)

R

The Vogelsang RotaCut Inline Macerator is designed to remove heavy solids from the waste steam, while using a spinning blade assembly to reduce debris, such rags, wipes, hair, string, plastics, wood, and bone, into an acceptable size for the downstream equipment to pass. Instead of shredding hard objects, such as metal or stone, the units catch heavy debris in a collection pot for removal from the line. Not only will these units protect pumps and dewatering equipment, they are ideal for sludge conditioning based on the blades’ ability to create homogenized slurry.

City of Zephyrhills - Multiple Positions Available

The City of Zephyrhills is now hiring within the Utilities Department! To access job bulletins or to apply, visit our website at www.ci.zephyrhills.fl.us.

Utility Program Coordinator

Responsible for administrative and operational assignments and projects that will involve hands-on budget, administrative tasks, project planning, tracking performance, and financial management tasks. Researches, analyzes and evaluates assigned current programs or processes and identifies recommendations for program improvements and/or more effective service delivery. To apply and for more information, visit https://www.largo.com/jobs

Joan E. Stokes at 407-293-9465

RotaCut comes in numerous models designed for a range of flow rates and pressures. These units are ideal for numerous wastewater applications, such as:

S Primary sludge

S Sludge transfers

S Dewatering feed

S Digester feed, digester cleaning

S Septage/FOG receiving

The unit’s auto cut control design automatically maintains the proper tension between the blade and the cutting screen, ensuring a proper cutting action, even as the blades wear. Other features include:

S Auto Reverse: Should a piece of debris get lodged in the screen, the rotating blade system will automatically switch back and forth from forward to reverse until the piece of debris is severed and dislodges.

S Self-sharpening blades: The unit’s design allows the blades to maintain their edge through the natural course of operation

and the manner in which the blades pass over the screen.

S Easy inline maintenance: There are no cartridge-style parts that have to be sent out for reconditioning or factory refurbishment. All models feature a quickrelease door allowing access to the cutting head. All RotaCut screens are reversible to allow for a fresh cutting surface without buying a new spare part. Typical routine service such as changing blades or flipping the reversible cutting screen takes only a fraction of the time required to service a typical twin-shaft grinder.

S Adaptable to your operation: Available in several models and several cutting screen patterns, RotaCut macerators can be provided in a design that will produce a designated size solid. (www.vogalsang.info)

Test Yourself Answer Key

From page 19

1. D) 24 hours.

• What the water system is doing to correct the problem;

• Actions consumers can take;

June

July

August

September

October .........New Facilities, Expansions, and Upgrades

November

December

Technical articles are usually scheduled several months in advance and are due 60 days before the issue month (for example, January 1 for the March issue). The closing date for display ad and directory card reservations, notices, announcements, upcoming events, and everything else including classified ads, is 30 days before the issue month (for example, September 1 for the October issue).

For further information on submittal requirements, guidelines for writers, advertising rates and conditions, and ad dimensions, as well as the most recent notices, announcements, and classified advertisements, go to www.fwrj.com or call 352-241-6006.

Display Advertiser Index Editorial Calendar

Per the EPA Public Notification Rule website, per the chart titled, The Three Tiers of Public Notification, “Tier 1 – Required Distribution Time: Any time a situation occurs where there is the potential for human health to be immediately impacted, water suppliers have 24 hours to notify people who may drink the water about the situation.”

2. B) Radio and television broadcasts

Per FAC 62-560.410(1)(a), 1. Public Notification –Primary Standards, “For violations, exceedances, situations, or failures, that may pose an acute risk to human health, furnish a copy of the Tier 1 notice to the radio and television stations that broadcast in the area served by the public water system as soon as possible, but in no case later than 24 hours after the system learns of the violation, exceedance, situation, or failure, unless otherwise directed by the department to provide such public notice sooner because of the nature of the risk. The system shall also initiate consultation with the department as soon as possible, but in no case later than 24 hours after the system learns of the violation, exceedance, situation, or failure, as described in subparagraphs a. through g., to determine additional public notice requirements that may be necessary to protect public health.”

3. D) 30 days

Per FAC 62-560.410(1)(a) 2. and 3., “For violations of a nonacute maximum contaminant level, maximum residual disinfectant level, treatment technique requirement, and variance or exemption schedule that are not described in subparagraph (1)(a)1., of this rule, a Tier 2 notice shall be provided by mail delivery (by direct mail or with the water bill), or by hand delivery, as soon as possible, but not later than 30 days after the system learns of the violation, situation, or failure, to each customer receiving a bill and to other service connections to which water is delivered by the public water system; and . . . by publication in a daily newspaper of general circulation, other than a newspaper established primarily for the publication of legal notices, in the area served by the system as soon as possible, but in no case later than 30 days after the system learns of the violation, situation, or failure.”

4. A) Failure to perform monitoring for a secondary contaminant.

Per FAC 62-560.410(3), “Other Violations, Variances, or Exemptions. The owner or operator of a public water system that fails to perform monitoring required by Part V or Part VIII of Chapter 62-550… shall provide a Tier 3 notice to all customers served by the system.”

5. C) The amount of fines and penalties incurred by the water supplier.

Per EPA’s Public Notification Rule website, under the section, Compliance, “There are 10 required elements in a public notice. Notices must contain:

• A description of the violation that occurred, including the contaminant(s) of concern, and the contaminant level(s);

• When the violation or situation occurred;

• The potential health effects (including standard required language);

• The population at risk, including subpopulations vulnerable if exposed to the contaminant in their drinking water;

• Whether alternate water supplies need to be used;

• When the system expects a resolution to the problem;

• How to contact the water system for more information; and

• Language encouraging broader distribution of the notice.”

6. B) in the same manner as the initial public notice.

Per FAC-62-560.410(11), “The supplier of water shall issue a rescission of public notices provided to customers in accordance with subparagraph 62-560.410(1)(a)1., F.A.C., when the violation, exceedance, situation or failure has been resolved. The method of delivery of the rescission shall be in the same manner and address the same target audience as the initial public notice.”

7. A) advisory signs and public notification flyers.

Per the FDEP Public Notification Requirements for Public Access Reuse Systems website, “The sample flyer contains information that the permittee is required to provide to the reuse customers and others within the reclaimed water service area… advisory signs designating the nature of the reuse project must be posted in areas where reuse is practiced. Advisory signs may be posted at entrances to residential neighborhoods where reclaimed water is used for landscape irrigation, and at the entrance of golf courses and at the first and tenth tees.”

8. A) Annually

Per FAC 62-610.468(6), Access Control and Advisory Signs, “The permittee shall ensure that users of reclaimed water are informed about the origin, nature, and characteristics of reclaimed water; the manner in which reclaimed water can be safely used; and limitations on the use of reclaimed water. Notification is required at the time of initial connection to the reclaimed water distribution system and annually after the reuse system is placed into operation.”

9. C) 1,000 gallons.

Per FAC 62-604.550(2)(a), Abnormal Events,

“The owner/operator of the collection/ transmission system shall report to the department all unauthorized releases or spills of wastewater to surface or groundwaters from its collection/transmission system or any other abnormal events as described below: (a) Unauthorized releases or spills in excess of 1,000 gallons per incident, or other abnormal events where information indicates that public health or the environment will be endangered, shall be reported orally to the State Warning Point toll free number (800) 320-0519 as soon as practical, but no later than 24 hours from the time that the owner/operator becomes aware of the circumstances.”

10. A) FDEP.

Per the FDEP Public Notice of Pollution webpage, “FDEP began the public notification process. to ensure all Floridians and visitors, as well as local government officials and the media, are notified of pollution. This requirement is now codified into law and FDEP will continue to make available on its website all notices received, as well as offer an email subscription service for the public, including local governments, health departments, news media, and other interested persons to be automatically informed of notices submitted for their location(s) of interest.”

WORLD’S FIRST WASTEWATER PUMPING SYSTEM WITH INTEGRATED INTELLIGENCE

This revolutionary system delivers optimal performance while reducing your total cost of ownership. It also offers unparalleled flexibility and simplicity on a whole new level. You might even say it thinks for itself. We invite you to enter a new era in wastewater pumping with Flygt Concertor.

One powerful solution. Unlimited possibilities.

For more information contact your local Xylem product sales professional. Xylem Products

2152 Sprint Boulevard Apopka, FL 32703

407-880-2900 www.flygt.com

Turn static files into dynamic content formats.

Create a flipbook