RUUTISET 1/2024

Page 1


3 Pääkirjoitus

4 Kampin koeräjäytykset

8 Pyhäsalmi – kaikkien kaivosten isoäiti

9 Vuoden panostaja 2024 – Risto Valkeinen

14 Toimivia lisätarvikkeita räjäytysten optimointiin

16 Louhintakorneri Tuli räjäytystyömaalla

Työkohteen pelastusharjoittelu

20 Ecokorneri Emulsion hajotus ja ammoniumnitraatin kierrätys omaan tuotantoon

Auditoimalla varmistetaan toimitusketjujen läpinäkyvyys

Typettömän louhintaräjähdysaineen kehitystilanne

Kestävämpiä energiaratkaisuja Lapuan asemalle

24 Forcit Consulting Tavoitteena Suomen parhaat panostajakurssit

Consultingin uusin toimipiste Porissa

26 Turvallisuusympäristö muutoksessa

28 Ilmoitusasiat

30 Kurssit

31 Kesäristikko

toimitus: Forcitintie 37 10900 Hanko

Puh. 0207 440 400

Faksi: 0207 440 225

Vastaava julkaisija: Joakim Westerlund

Toimituspäällikkö: Oy Forcit Ab / Anu Seppälä Yhteydenotot: anu.seppala@forcit.fi / 040 7766082

Agency: BMAB Creative

Taitto: Days Agency Oy

Painopaikka: Newprint Oy

ISSN 1796-0193 (painettu)

ISSN 2737-1794 (verkkojulkaisu)

Kansikuva: Pyhäsalmi Mine Oy

OY FORCIT AB PL 19, 10901 Hanko www.forcit.fi

Tervehdys parahin Ruutisten lukija,

Kesä tuli ja meni ja tuli ja meni. Paljon on viime vuosina puhuttu ilmastonmuutoksesta. Täällä Suomen etelässä muutos on ollut sen suuntainen, että on tainnut kansakuntamme ilmastotalkoilla sittenkin olla positiivista vaikutusta. Kelien jatkuva lämpeneminen on nyt sitten vissiin kääntynyt kylmenemisen puolelle. Talviihmisenä pidän tätä toki hyvänä asiana, mutta kesällä saisi olla pikkuisen lämpimämpää, että saisi pikkuhiljaa vaihtaa pipon lippikseen.

Osana FORCITin ilmastotalkoita olemme kehittäneet teidän käyttöönne O-PitEco-ohjelmiston, jonka lanseeraus on parhaillaan meneillään, ja ohjelmiston käyttöönotto on monella yrityksellä ajankohtaista. Uskomme, että saatte OPitEcon kautta vähintään helpotusta vaadittujen raportointien tekemiseen tiettyjen toimintojen ja urakoiden kohdalla. O-PitEcosta on ollut puhetta Ruutisten palstoilla jo useaan otteeseen, ja tulemme jatkossakin kertomaan sen kehityksestä ja mahdollisuuksista.

Muistamme hyvin, kun Venäjä hyökkäsi Ukrainaan ja pääraaka-aineemme ammoniumnitraatin hinta hyökkäsi kaikkien aikojen korkeimmalle tasolleen ja jopa kyseisen välttämättömän tuotteen saatavuuden kanssa oli uhkia. Nyt nuo uhkat näyttävät jääneen taka-alalle, ja raaka-aineidemme hinnat ovat vakiintuneet tasolle, joka on perinteistä hieman korkeampi, mutta jonka katsomme olevan siedättävällä tasolla. Käsiin saamiemme ennusteiden mukaan tämä uusi taso tulee olemaan enemmän tai vähemmän normaalitaso tulevaisuudessa, ja aivan valtavia heittoja suuntaan tai toiseen ei enää pitäisi olla tulossa. Hyvä.

Toinen muutos, jonka Venäjän hyökkäys sai aikaiseksi, oli se, että useimpien valettujen räjäyttimien raaka-aineena käytetylle TNT:lle tuli saatavuushaasteita. Kaikki vapaasti hankittavissa ollut materiaali suuntasi Ukrainan suuntaan ja perinteisesti Euroopassa hyvin saatavilla ollutta kierrätettyä TNT:tä ei enää ollutkaan saatavilla. Ammusten purkamisen ja kierrättämisen sijaan ne käytetään rintamalla. Tämä on johtanut siihen, että monissa operaatioissa valetut räjäyttimet on jouduttu korvaamaan perinteisemmillä patruunoilla, joita on kehitetty edelleen toimimaan paremmin teidän operaatioissanne. Näiden uusien tuotteiden (Kemix A MP

ja Fordyn P) vastaanotto markkinoilla on ollut positiivista ja uudentyyppisten tuotteiden käyttöön on sopeuduttu varsin hyvin. Kiitos siitä teille.

FORCITin Defence-liiketoiminta jatkaa voittokulkuaan. Markkinat kasvavat ja kysyntä tuotteillemme on erittäin vilkasta. Tämä on hyvä, sillä kuten kaikki ennusteet meille kertoivat jo aikoja sitten, rakennusalalla ja rakentamiseen liittyvissä louhinnoissa aika on varsin hiljainen. Valoa näkyy tunnelin päässä ja näyttää siltä, että tunneleitakin ryhdytään pikkuhiljaa taas rakentamaan. Infralouhintojen volyymit kasvavat lähes varmasti loppuvuotta kohti mennessä, ja sehän on meille kaikille iloinen uutinen. Kaivosteollisuus porskuttaa vahvasti eteenpäin, ja toivon mukaan saamme taas jossain vaiheessa kuulla uusista investoinneista olemassa oleviin kaivoksiin, mutta myös uusien kaivosten avaamisesta. Valtiovalta tosin yrittää omalta osaltaan auttaa kaivosteollisuutta vihreän siirtymän mahdollistamisessa kiristämällä kaivosten verotusta. Tämä logiikka ei aivan tämmöiselle tavalliselle sedälle ole kaikilta osin selkeä, mutta kyllä siinä varmaan jokin logiikka täytyy olla. Euroopan kaivostuotantoa pyritään kasvattamaan huomattavasti ja nopeasti, mutta mitkä ovat ne konkreettiset keinot. Onneksi kaivosten sosiaalinen hyväksyttävyys sentään on hieman parantunut, ja kun mietitään missä maissa sitä malmipotentiaalia on? No Suomessa ja Ruotsissa tietenkin, muun Euroopan osuuden jäädessä varsin pieneksi.

Tässä lehdessä on juttuja monipuolisesti eri aiheista, joista mainittakoon alamme turvallisuus. Lukekaa lehti kannesta kanteen, ja antakaa meille palautetta, joko soittamalla tai sähköpostilla tai mieluiten alamme lukuisissa tapahtumissa, joihin kannustan teitä kaikkia osallistumaan. Seuraava tapahtuma on Jyväskylässä 6.–7.11. järjestettävät FinnMateriamessut. Laittakaahan kalentereihin!

Toivotan kaikille Ruutisten lukijoille oikein rauhallista kesää ja kiireistä syksyä.

KAMPIN KOERÄJÄYTYKSET

Teksti: Anu Seppälä, Henri Mattila, Lari Laine

Kuvat: PES-Arkkitehdit, YIT

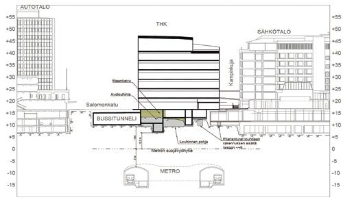
YIT:n työmaapäälliköllä Henri Mattilalla oli loppuvuodesta 2023 työpöydällään vaativa asutuskeskustyömaa keskellä Helsinkiä. Paikalle rakennettaisiin uusi terveys­ ja hyvinvointikeskus. Vaativan kohteesta teki sen keskeinen sijainti Kampissa sekä metrotunneleiden läheisyys. Työmaan keskeisen sijainnin takia louhinnat oli suunniteltu toteutettavaksi kiilaamalla.

Pian kävi selväksi, että louhintojen toteuttaminen kiilaamalla olisi liian hidasta, sillä kiilaus pitäisi tehdä useammassa kerroksessa kahdeksan metrin pengerkorkeuden vuoksi.

YIT:llä oltiin ennakkotutkielmien perusteella kuitenkin vakuuttuneita, että louhinnat pystyttäisiin toteuttamaan räjäyttämällä.

Myös geosuunnittelija piti ennakkotutkielmien perusteella räjäyttämistä varteenotettavana vaihtoehtona, mutta päätöksen tueksi tarvittiin kuitenkin vielä lisää tietoa. Esille nousi koeräjäytysten suorittaminen, mistä tilaaja innostui ja tilasi koeräjäytykset YIT:ltä.

Koeräjäytyksiä oli suunnittelemassa ja toteuttamassa myös Alvar Martiskainen FORCITin teknisestä palvelusta. Räjäytyksiä varten porattiin kolme reikää ja niistä mitattiin reikäsuoruudet. Koeräjäytyksiä suunniteltiin toteutettavaksi viisi kappaletta, joista ensimmäinen räjäytys tehtäisiin erittäin pienellä ja varmasti teoreettisesti lasketut tärinärajat alittavalla panoksella. Räjähdysainemäärää tultaisiin kasvattamaan räjäytysten edetessä, jos tärinät pysyisivät raja-arvojen sisällä. Tärinämittaukset suoritti Forcit Consulting Oy. Kaikki koeräjäytykset saatiin toteutettua, sillä tärinät eivät ylittyneet missään mittauskohteessa. Alvar Martiskainen kommentoi koeräjäytyksiä: ”Suunnittelu ja toteutus eivät juuri poikenneet normaalista asutuskeskustyömaalouhinnasta. Työ oli helppoa ja kivaa niin kuin aina!”

Louhintatiedot:

Koeräjäytysreikä työmaalla.

Suunnitelmakuva uudesta Kampin terveysja hyvinvointikeskuksesta.

Taulukko1 . Räjäytys 1 tuloksia 0,175 kg panoksella

ETÄISYYS [M] OHJEARVO [MM/S]

Taulukko 2. Räjäytys 4 tuloksia 0,525 kg panoksella

ETÄISYYS [M]

Taulukoissa 1 ja 2 on esitetty muutaman tärinämittauskohteen tulokset. Tuloksista voitiin päätellä seuraavia asioita: Mittauskohde MP02 oli tärinäherkin paikka metrossa, ja tärinät välittyivät eri sijanneista mittareille eri tavoin. Suurin heilahdusnopeus verrattuna heilahdusnopeuden ohjearvoon havaittiin yllättäen kauimpana olleissa mittareissa.

Koeräjäytyksien tuloksista tehtiin seuraavat johtopäätökset: Metro oli tärinöiden kannalta herkin kohde, ja tärinät välittyivät alla oleviin metrotunneleihin heikommin kuin teoreettisilla laskukaavoilla oli arvioitu eli K-arvo oli teoreettista pienempi. Tärinätulokset jäivät reilusti alle raja-arvon 0,525 kg panoksilla, joten koeräjäytystulosten perusteella tilaajalle voitiin esittää, että louhinnat on mahdollista toteuttaa poraus-räjäytysmenetelmällä. Tilaaja oli tyytyväinen tuloksiin ja hyväksyi louhintojen toteuttamisen räjäyttämällä. Kohteen louhinnat aloitettiin keväällä 2024, ja työt ovat edenneet aikataulun mukaisesti. Mitä koeräjäytyksistä sitten opittiin? Vaikka alustava suhtautuminen räjäytyksiä kohtaan olisi kielteinen, kannattaa koeräjäytysvaihtoehto nostaa esiin, koska tulokset saattavat yllättää varovaisimmankin suunnittelijan tai tilaajan. Koeräjäytysten tekeminen olisi lähtökohtaisesti suositeltavaa monen projektinjohtourakan ja allianssin kehitysvaiheessa. y

Koeräjäytysten tekeminen olisi lähtökohtaisesti suositeltavaa monen projektinjohtourakan ja allianssin kehitys vaiheessa.

Työmaan sivuleikkauskuva, josta näkee hyvin Kampin bussitunnelin sekä metron etäisyydet kohteeseen.

Kaivinkone nostamassa mattoja pois koeräjäytyksen jälkeen

PYHÄSALMI – KAIKKIEN KAIVOSTEN ISOÄITI

Teksti: Anu Seppälä ja Anja Pekkala-Mähönen, Aki Tuikka Kuvat: Pyhäsalmi Mine Oy

Pyhäsalmen kaivos eli ”kaikkien kaivosten äiti” (kuten Tekniikka&Talous -lehti kirjoitti supergraafissaan kaivoksen täyttäessä 50 vuotta) – kukapa kaivos- ja louhintatekniikan alalla ei olisi tästä nyt jo isoäidin ikään ehtineestä kaivoksesta joskus kuullut. Usea meistä on ollut jossain vaiheessa uraansa kaivoksella töissä, harjoittelussa, tutkimustoiminnassa yhteistyökumppanina tai on kenties jopa kotoisin kolmen tornin juurelta.

Kaivoksen malmi löytyi vuoden 1958 elokuussa paikallisen maanviljelijä tehdessä pihalleen kaivoa. Maanviljelijä toimitti löytämänsä mielenkiintoisen näköisen kiven silloiselle Outokumpu Oy:lle tutkittavaksi. Kivi osoittautui rikkikiisumalmiksi, ja Outokumpu aloitti välittömästi ympäristön perusteelliset geologiset tutkimukset. Vajaan vuoden kestäneiden tutkimusten jälkeen toukokuussa 1959 yhtiö teki päätöksen kaivoksen avaamisesta, ja vaikuttavasti jo 5.12.1959 vietettiin nostotornin harjannostajaisia. Rikasteiden tuotanto aloitettiin 1.3.1962. Nykypäivänä kaivosten perustaminen ei ihan tässä ajassa taida onnistua. Louhinta oli pelkästään avolouhintaa vuoteen 1967 asti, jolloin maanalainen louhinta alkoi. Vaikka tuotanto alkoi avolouhintana, niin malmi lastattiin kaatonousuihin, murskattiin maan alla (+210 tasolla) ja nostettiin kuilun kautta rikastamolle. Maanalaisen kaivoksen lisäksi tuotannossa oli satelliittimalmioita, joista Mullikköräme oli suurin. Alkuun kaivos ja rikastamo toimivat suhteellisen omina ja erillisinä yksikköinään, mutta 1980-luvulla kaivoksen johtajana toiminut Timo Välttilä mullisti asian järjestämällä rikastamon ja kaivoksen työntekijöille ”kurssipäiviä”, missä ihmiset tutustuivat ja suunnittelivat toimintaa yhdessä. Kurssipäivien jälkeen rikastamo alkoi pitää suunniteltuja huoltoseisakkeja, jos kaivoksesta ei noussutkaan tarpeeksi malmia viikonlopun varalle. Kaivoksen syventäminen lopulliseen syvyyteen tapahtui vaiheittain. Seuraava kaivoksen syvennys 730 metriin tapahtui vuonna 1985, kun päägeologi Olavi Helovuoren mukaan nimetty Ollinkuilu valmistui. Alkuperäinen suunniteltu pohjasyvyys, eli +840-taso, saavutettiin vuonna 1992. Tuotannon aikana tehtyjen tutkimuskairausten perusteella malmi jatkui kuitenkin syvemmälle, ja kilometrin syvyys saavutettiin keväällä 1996. Tällöin malmivarojen arvioitiin riittävän vuoteen 2000. Tutkimuksia jatkettiin, ja ehkä yllättäenkin yhdestä kairareiästä löytyi kaivoksen entisen päägeologin Timo Mäen mukaan ”merkittävästi erilaisia tuloksia”. Tulosten pohjalta tehtiin lisäkairauksia, ja näiden avulla löytyi linssimäinen malmin paksuuntuma, joka ulottui noin 1400 metrin syvyyteen. Mäen Timoa lainaten: ”Parasta tässä kaikessa oli se, että malmin määrä ja laatu riitti uuden nostokuilun rakentamiseen”. Tässä kohtaa Mullikkorämeen satelliittilouhos osoitti tärkeytensä,

FORCIT PYHÄSALMEN KAIVOKSELLA:

ß Räjähdetoimittaja koko kaivoksen 60-vuotisen historian ajan.

ß FORCIT käyttöönotti kaivoksella 90-luvun loppupuolella ensimmäisen maanalaisen bulk-emulsiopanostuslaitteen, jonka rakensi ja toimitti Normet perustuen FORCITin räjähdysainevalmistusprosessiin.

ß Emulsiopanostuksen myötä tunnelipanostuksen työvaiheen mekanisointi tehtiin letkukelan avulla ensimmäisenä Suomessa. Mekanisointi mahdollisti myös räjähdysaineen määrän optimoinnin tunnelilouhinnassa rantupanostusta käyttäen.

5.12.1959.

Pyhäsalmen kaivosalue Lepikon suunnasta katsottuna vuonna 2019.
Murskaamon tornin harjannostajaiset

koska sen tuotoilla rahoitettiin uuden kaivoksen löytyminen sekä kehitys.

1990-luvun loppupuolella kaivoksella siirryttiin käyttämään panostuksessa bulk-emulsiota. Ensin käytössä oli 1.1 luokiteltua räjähdysaine-emulsiota, ja vuonna 2003 siirryttiin käyttämään nykyaikaista 5.1 luokiteltua matriisia, johon lisätään kaasutusliuos reikään pumpattaessa.

UUSI KAIVOS -PROJEKTI

Uuden esiintymän ansiosta aloitettiin niin kutsuttu Uusi kaivos -projekti, jossa rakennettiin uusi päätaso huoltotiloineen 1410 metrin syvyyteen. Uusi kaivos aloitti toimintansa 1445 metriä syvän, entisen päägeologi Timo Mäen mukaan nimetyn Timonkuilun kautta 1.7.2001. Syvennyksen projektiinsinööri Sami Niiranen muistelee upeaa kokemustaan Uusi kaivos -projektista: ”Projekti valmistui aikataulun mukaisesti ja budjetissa (320 milj. markkaa/ 53,9 Me). Meillä oli fantastinen projektitiimi, joka puhalsi yhteen hiileen ja tuki toisiaan! Niihin aikoihin Pyhäsalmi oli maailman kaivosteollisuuden keskipiste ja maailma tehokkain kaivos, jossa kävi paljon kansainvälisiä vieraita.”

Samaan aikaan rikastamollakin tehtiin kehitystyötä, koska tuotantokapasiteetti piti saada uuden kaivoksen myötä nousemaan 1,2 miljoonasta tonnista 1,4 miljoonaan tonniin.

Monien keskustelujen ja suunnitelmapalavereiden jälkeen kapasiteetti saatiin nostettua muuttamalla autogeenijauhatus kuula-avusteisen jauhatuksen avulla semi-autogeeniseksi. Tämän lisäksi rikastamon ohjaamoa modernisoitiin ja käyttöön otettiin uusi Proscon 2100 -ohjausjärjestelmä. Sen aikainen rikastamon tutkimusinsinööri Aki Tuikka kertoi projektista seuraavaa: ”Uusi kaivos oli uskomaton projekti, sillä 1.7.2001 lähtien malmia nousi kaivoksesta täysin tuotantosuunnitelmien mukaisesti.

Uusi kaivos tarkoitti kaivoksellakin uusia tehokkaampia koneita, minkä vuoksi vain noin 50 % kaivoksen työntekijöistä sai jäädä. Rekrytoinneista vastannut entinen käyttöinsinööri Markku Tikkanen ei muistele mielellään tätä ajanjaksoa: ”Työporukan uudelleenjärjestelyistä jäi varmasti puolin ja toisin ikuisia traumoja. Aluksi myös epäiltiin, että onkohan mahdollista pärjätä niin pienellä työntekijämäärällä, mutta kuuden kuukauden koeajan jälkeen todettiin yhdessä, että tuotanto saatiin vastaamaan tavoitteita.”

Syvennysprojektien ja kaluston uudistamisen myötä kaivoksen tuotantotehokkuus (t/miestyötunti) viisinkertaistettiin vuosien 1980–2010 aikana. Kuinka moni kaivos on pystynyt tekemään saman? Kaivoksen entisen toimitusjohtajan Kimmo Luukkosen mukaan lopputulokseen päästiin, koska kaivoksella onnistuttiin synnyttämään ”omistajuutta”; oma työ,

Nostolinjan tarkistusta valvontakameroista 1.7.2001. Kuvan henkilöt vasemmalta alkaen: Kimmo Luukkonen, Erkki Kärkkäinen, Matti Hänninen, Asko Kamula, Sami Niiranen, Matti Haikara ja Markku Tikkanen. Rikastevaahtoa.

Pyhäsalmen kaivoksen historiaa

Kaivoksen johtajat:

Maanalainen louhinta alkaa Kaivoksen rikkipölyräjähdys

Proscon-tietokoneen käyttöönotto

saavutetaan sekä uusi malmi löydetään

KaTTi:n käyttöönotto

Uusi torni valmistuu ja VT:n pohja saavutettiin

Laatusertifikaattien myöntäminen

miljoonaa louhittua tonnia täyteen

Way lehden julkaisu aloitetaan

miljoonaa louhittua tonnia täyteen

Tuotanto alkaa

Ensimmäinen tietokone rikastamolle Avolouhinta päättyy Ollinkuilun käyttöönotto

Ensimmäinen kumipyöräinen lastauskone Wagner ST5

Työsuojelun organisaatio omaksi ryhmäksi

Kangasjärvi 1985 Ruostesuo 1988-1990 Mullikkoräme 1990-1993 ja 1996-2000 Uusi kaivosprojekti alkaa

Viimeisin kuolemaan johtanut työtapaturma

Omistajaksi Inmet Mining

Uusi kaivos käynnistetään ja Timonkuilun ja Retkan käyttöönotto

Omistajaksi First Quantum Minerals Maanalainen louhinta päättyy

Ensimmäinen vuosi ilman työtapaturmia

Kaivoksen sulkemistoimet ja suunnittelu aloitetaan

oma kaivoskone ja sitä kautta oma vastuualue. Tämän lisäksi Pyhäsalmi oli ”kaikkien työntekijöiden yhteinen kaivos”, jossa arvostus työntekijöiden ja johdon välillä toimi molempiin suuntiin. Näiden asioiden lisäksi yksi todella tärkeä osa tuotantotehokkuuden nostoa oli kunnossapito-organisaation saumaton sulauttaminen kaivosorganisaatioon. Saumattomassa sulautumisessa auttoi 2000-luvun alussa ensimmäisenä Euroopassa käyttöönotettu Leaky feeder -radiopuhelinjärjestelmä.

Jos kaivoksella saatiin vuosien aikana tehostettua tuotantotehokkuutta, niin myös rikastamolla pidettiin huoli, että kaikki malmit saatiin käsiteltyä aikataulun mukaisesti. Rikastamon käyntiaste pysyi aina noin 96 %:ssa ja ennätys oli 96,5 %:a vuonna 2015. Juuret käyntiasteen korkeana pysymiselle juontavat aina 1980-luvulle asti, jolloin sen aikaisen kaivoksenjohtajan Timo Välttilän johdolla luotiin yhteinen tuotantopalkkiojärjestelmä sekä rikastamon käyttömiehille että kunnossapitomiehille. Palkkiojärjestelmä perustui rikastamon käyntiasteeseen, koneiden käyttöasteeseen sekä rikastamon tulokseen. Kunnossapidon entisen työnjohtajan Pekka Tähkiö mukaan tämä muutti sen, että enää ei laiterikkojen kohdalla huudettu, että ”rikastamo seis”, vaan tehtiin ”purkkaa ja teippiä” -korjauksia seuraavaan seisakkiin asti. Tähkiön mukaan ”järjestelmä toimi työntekijöiden motivaattorina ja heiltä alkoi tulla itsestään kehitys- ja parannusehdotuksia laitteille.” Järkevästi luodun palkkiopalkkausjärjestelmän lisäksi rikastamon korkean käyntiasteen takasivat hyvin suunnitellut huoltoseisakit (neljä kertaa vuodessa), ennakoivat huoltotoimenpiteet sekä onnistunut osto- ja varastotoiminta.

Korkea käyntiaste tarkoitti myös tehokasta tuotantoa. Uuden kaivoksen aikana kaikki rikastamon keskeiset tuotantoennätykset lyötiin uusiksi moneen kertaan. Esimerkiksi kuparin ennätyssaanti 96,93 % saavutettiin vuonna 2017. Kaikki tämä oli mahdollista, koska myös rikastamolla tehtiin alusta lähtien pitkäjänteistä laitteiden ja teknologioiden kehitystyötä. Näistä mainittakoon jo 60-luvulla käyttöönotettu Courier-metallianalysaattori ja vuonna 2009 Pyhäsalmella kehitetty Machine vision -konenäköjärjestelmä, jolla pystyttiin analysoimaan uudella tavalla vaahdon ominaisuuksia ja toimivuutta.

LOPETUS JA JATKOSUUNNITELMAT

Pyhäsalmen kaivoksen malmin louhinta päättyi elokuussa 2022 malmivarojen ehdyttyä – kaivos ehti siis kypsään 60 vuoden ikään. Tällä hetkellä maanalaisessa kaivoksessa tehdään sulkemistöitä ja rikastamo jatkaa vielä toimintaansa rikastamalla aiempina vuosina rikastushiekka-alueelle varastoidusta rikkipitoisesta rikastushiekasta pyriittiä.

Kaivoksen sulkemisessa, aikataulussa ja etenkin sulkemisen vaatimissa toimenpiteissä on suuri merkitys kaivoksen mahdollisella jatkokäytöllä. Mahdollisia jatkohankkeita on kasattu CALLIO-brändin alle. Hankkeita on ollut monenlaisia, kuten kasviviljely, sirkkakasvatus, geoterminen energia, FutureMINE-hanke, pumppuvoimala, ja niin edelleen. Vuoden 2024 alussa julkaistiin yhteistyöhanke mahdollisesta gravitaatiovoimalaitoksesta. Nähtäväksi jää, mitkä näistä hienoista suunnitelmista toteutuvat.

löytyy Vanha torni valmistuu

Muistelmissa Pyhäsalmi

PEKKA TÄHKIÖ

Pyhäsalmi oli edelläkävijä monen asian suhteen ja se toimi uusien laitteiden ”koekenttänä” Outokummulle. Pyhäsalmella on pitkän ajan kuluessa kehitetty paljon uusia tekniikoita ja otettu käyttöön uutta. Jokainen kehitysvaihe mahdollisti seuraavan askeleen ja näin kehitystyöstä tuli jatkumo. Työntekijöillä oli hyvä asenne uutta teknologiaa kohtaan; he olivat ennakkoluulottomia ja avoimia, vaikka kaikki laitteet eivät heti toimineekaan täydellisesti.

SAKARI MONONEN

Urheilupuolelta on hienot muistot kaivosten välisistä jääkiekkoturnauksista railakkaine juhlineen ja rankemmalta puolelta kolme kertaa vinotunnelijuoksu pohjalta pintaan!

TUULIA HÄKKINEN

Uudelle ja vihreälle geologille Pyhäsalmen kaivos oli ammatillisesti aivan loistava ensimmäinen työpaikka. Pyhäsalmella oppi tehokkaasti asioita muutaman vuoden aikana, koska pienehkön ja tiiviin porukan ansiosta pääsi töitä tekemään laidasta laitaan.

KARI TALVITIE

Pyhäsalmen kaivos tarjosi Sandvikille yhteistyömahdollisuuden suunnitella, testata ja kehittää maanalaisia kaivoslaitteita ja niiden automatisointia todellisissa olosuhteissa. Kommunikointi oli aktiivista ja kehittävää palautetta tuli paljon kiitos aktiivisen ja ammattitaitoisen käyttö- ja huoltohenkilöstön.

PENTTI VIHANTO

Olin Pyhäsalmen kaivoksessa yhdeksänkymmentäluvun alussa, ensimmäisessä teekkariharjoittelussani. Kokemus oli väkevä, harjoittelijoita oli runsaasti sekä Suomesta, että Kanadasta, Irlannista ja Chilestä. Maanalaisen kaivoksen töihin ja kulttuuriin tutustuminen oli innostavaa ja porukassa oli rautaisia ammattilaisia sekä värikkäitä persoonia. Sittemmin valmistuttuani oli ilo palata yhteistyöhön Pyhäsalmen kaivoksen kanssa kaksituhattaluvun alussa FORCITin työroolissani. Vuosien varrelle mahtuu hienoja muistoja hyvästä ammatillisesta yhteistyöstä, mutta myös riemukkaista hetkistä Lepikon saunalla loistavien tyyppien kanssa. y

Vuoden panostaja 2024 –Risto Valkeinen

Vuoden panostajaksi 2024 on valittu ylipanostaja ja räjäytystyön vastuuhenkilö Risto Valkeinen Jämsän Längelmäeltä. Risto palkittiin INFRAn Louhintapäivillä Tampereella 13.3.2024. Perinteikkään Vuoden panostaja -palkinnon myöntää INFRA ry yhteistyössä FORCIT Groupin kanssa. Valinnan suoritti ehdotusten perusteella arvovaltainen raati INFRAn louhintajaostosta.

Valinnan perustelut kuuluivat seuraavasti: ”Risto Valkeisella on takana 30 vuotta kestänyt ura louhinta-alan ammatinharjoittajana sekä menestyneenä yrittäjänä poraus- ja panostustöissä. Panostajan lupakirjan hän sai vuonna 1994, vanhemman panostajan 1996, ylipanostajan 2006 ja räjäytystyön vastuuhenkilön lupakirjan vuonna 2018. Tinkimättömällä asenteella ja omaan liiketoimintamalliinsa perustuen Valkeinen yleensä poraa kaikki panostamansa kentät itse varmistuakseen louhinnan kokonaislaadusta ja turvallisuudesta. Riston erikoisosaamisalueina ovat Suomen korkeimpien pitkäreikämenetelmällä toteutettujen erittäin vaativien pystykuilujen louhinta useisiin tunnelirakennuskohteisiin pääkaupunkiseudulla sekä asutun alueen tärinäherkät ja erityistä varovaisuutta edellyttäneet louhintakohteet. Näistä kokemusta löytyy useista hankkeista eri puolilta Suomea.”

Kuvassa vasemmalta alkaen Risto Valkeinen ja INFRAn louhintajaostolaiset Janne Lehto (FORCIT), Simo Turunen (Rudus, louhintajaoston puheenjohtaja) ja Kati Kaskiala (INFRA).

Valkeinen oli toteuttamassa useita Helsingin yhteiskäyttötunneleiden pystykuiluja (45 m) 2000-luvulla sekä Espoon Blominmäen jätevesitunnelin kuilun (48 m) ja Länsimetron varikon kuilun (>40 m) 2010-luvun lopulla. Kuopion Neulamäen rautatietunnelin suuaukon (noin 5 000 m3) levityslouhinta räjäytettiin yhdellä kerralla juhannusaattona 2010, ja Pendolino-juna kulki onnistuneesti läpi jo parin päivän päästä sunnuntaina.

Kuilujen lisäksi vaativan kohteen esimerkkinä Valkeinen louhi vuonna 2012 Serlachius Kartanon laajennusosan

pohjan (6 000 m3). Avolouhinta tehtiin Serlachiuksen 1935 valmistuneen vanhan kartanon välittömässä läheisyydessä. Vanhan kartanon museon ja taidenäyttelyn tärinäherkin kohta oli viinikellarin katossa oleva fresko-maalaus, jonka lähellä louhintaa piti tehdä muutaman kymmenen sentin reikävälillä ja puolikkailla Fordyn-dynamiitti patruunoilla. Laajennusosan jälkeen vuonna 2021 Valkeinen oli louhimassa Serlachius-museoiden Taidesaunan pohjan (2 500 m3). Louhinnoissa piti ottaa kaiken edellisen lisäksi huomioon myös aikaisemmin rakennetun laajennusosan tiloissa oleva toinen taidenäyttely.

Valkeinen on osallistunut myös lukemattomiin kunnallistekniikkaan, kiviainestoimintaan ja teiden, eritasoliittymien sekä katujen rakentamiseen liittyneisiin hankkeisiin KeskiSuomessa ja erityisesti kotisedullaan Jämsän alueella.

Oy Forcit Ab onnittelee Ristoa valinnasta vuoden panostajaksi ja toivottaa työntäyteisiä vuosia sekä Riston juuri hankkiman uuden data-poravaunun että vanhemman poravaununsa kanssa! y

Teksi: Janne Lehto Kuva: Mari Halonen

TOIMIVIA LISÄTARVIKKEITA RÄJÄYTYSTEN OPTIMOINTIIN

Australialainen MTi Group on nykyään globaalin räjähdevalmistajan, Enaexin, omistama yhtiö, joka tutkii, kehittää ja valmistaa louhintatarvikkeita ja lisävarusteita kaikkiin louhinta-alan sovelluksiin 25 vuoden kokemuksella. Eniten tuotteita käytetään isoissa kaivosyhtiöissä, joissa tehokkuutta on saatu nostettua tarvikkeiden ominaisuuksia hyödyntäen.

FORCIT SPIDER -jarrujousi

Suunniteltu varta vasten FORCITille käytettäväksi yhdessä Forprime-räjäyttimen kanssa. Käytetään kaivoksilla yläkätisisssä rei’issä varmistamaan pohjapanoksena käytetyn Forprimen paikallaan pysyminen. Saatavilla olevat koot: 30–115 mm ja 40–115 mm.

Teimme vastikään MTi Groupin kanssa yhteistyösopimuksen, joka kattaa markkinat Suomessa ja Pohjoismaissa. Sopimuksen avulla tarvikkeiden saatavuus parani ja nyt haluammekin esitellä alan toimijoille muutaman tuotteen, joista uskomme olevan alan ammattilaisille hyötyä.

Lisätietoa tuotteista: forcitexplosives.fi/tuotteet

Lisätietoa MTi Groupista: mtigroup.com.au

BLASTBALLTM-reikätulppa

Käytetään läpi porattujen reikien tulppaamiseen pääasiallisesti kaivoksilla, mutta myös muissa pienen reikäkoon kohteissa varmistamaan räjäytyksen paineen kohdistuminen ympäröivään kallioon. Reikätulppa täytetään paineilmalla. Tuotetta on saatavissa kolmessa eri koossa, joista pienin saatavilla oleva koko on 64–115 mm.

Teksti: Anu Seppälä, Mari Halonen Kuvat: MTi Group

BLASTSHIELDTM-reikäsuoja

Käytetään pumpatuille emulsioräjähdysaineille (Kemiiteille) märissä tai rikkonaisissa rei’issä varmistamaan räjähdysaineen pysymistä reiässä ja toisaalta suojaamaan räjähdysainetta veden vaikutukselta, jolloin räjäytyskaasut ovat puhtaammat. HUOM: Pienin saatavilla oleva koko 203–230 mm.

BLASTBAGTM ACE -reikätulppa

Käytetään panoksen jakamiseen tai porareiän tulppaamiseen.

BLASTBAGTM ACE käyttää hyväkseen kemiallista reaktiota syttymättömän, myrkyttömän ja turvallisen täyttökaasun vapauttamiseksi. Tuote ei sisällä metallia, jolloin murskan tai rikastamon magneettierottimista johtuvat turhat pysähdykset vähenevät. BLASTBAGTM ACE ei ole luokiteltu vaaralliseksi aineeksi, joten sitä voidaan kuljettaa ja varastoida helposti.

AQUALINE-reikäsuoja

Käytetään BLASTSHIELDin tavoin märissä tai rikkonaisissa rei’issä varmistamaan räjähdysaineen pysyminen reiässä. Saatavilla eri kokoja muun muassa 64 mm ja 76 mm.

SLUMPSTOPPA-reikätulppa

Käytetään kaivoksilla yläkätisissä rei’issä varmistamaan räjähdysaineen pysyminen reiässä. Saatavilla kolmea eri kokoa, joista pienin koko on 64–76 mm. y

LOUHINTAKORNERI

Tuli räjäytystyömaalla

Louhintakohteissa joudutaan usein polttamaan avotulella räjähdelaatikoita, rättejä ja muuta räjähdysaineista kontaminoitunutta materiaalia. Samoilla työmailla on myös paljon palavaa materiaalia, kuten esimerkiksi räjäytysmattoja, työkoneita ja hetkittäin myös täysiä räjähdysainelaatikoita ja ladattuja räjäytyskenttiä. Edellä mainituista syistä on ensiarvoisen tärkeää, että työmaan riskienarviointi avotulen osalta on tehty huolellisesti, eikä tulen kanssa oteta turhia riskejä. Myös tuulen suunta ja voimakkuus vaikuttavat avotulen turvallisuuteen hyvin paljon. Kovalla tuulella täytyy harkita, onko avotulen teko ylipäätänsä turvallista. Vaikka tuuli olisi kova vain hetkittäin, saattaa navakka puuska napata palavan laatikon nuotiosta ja lennättää sen pitkällekin tulentekopaikalta.

Vuosien saatossa kumisia räjäytysmattoja on syttynyt useammallakin työmaalla. Niiden sammuttaminen on hyvin vaikeaa ja on silloin tällöin vaatinut pelastuslaitoksen apua. Myös räjähdysaineiden ja Kemiitti-panostusletkujen kanssa on sattunut vähintäänkin läheltä piti -tilanteita. Tulen levitessä räjähteisiin puhutaan selkeästi laajemmasta mahdollisen suoran vaikutuksen alueesta ja tarvittavat alueen eristystoimenpiteet ovat huomattavia. Lue lisää aiheesta tämän lehden artikkelista ”Työkohteen pelastusharjoittelu”.

Käsiteltäessä avotulta työmaalla, jolla on vielä räjähteitä, täytyy normaalien avotulen käsittelyyn liittyvien seikkojen lisäksi huomioon ottaa ainakin seuraavat asiat: räjähdekuljetuksia suorittavat autot ja perävaunut, panostusajoneuvot ja panostuspaikalla olevat räjähdelaatikot sekä Kemiitti-

panostuksen yhteydessä panostusajoneuvosta kentälle kulkeva panostusletku. Panostusletku voi olla hyvinkin pitkä, ja vaikka nuotio olisi kaukana sekä kentästä että panostusajoneuvosta, voi Kemiittiä täynnä oleva letku lähellä tulentekopaikkaa jäädä huomaamatta, jos paikan valintaan ei kiinnitetä erityistä huomiota.

Miten työmaan turvallisuutta voisi avotulen osalta sitten parantaa? Turvallisuutta voi parantaa huomattavasti jo sillä, että kontaminoitunut materiaali poltetaan vasta, kun panostus on kokonaan suoritettu, kenttä räjäytetty ja yli jääneet räjähdysaineet viety pois työmaalta tai ainakin polttopaikan läheisyydestä. Tässäkin asiassa ”kiire” tuntuu usein olevan syynä aikaiseen avotulen tekoon. Mutta onko kentällä usein oikeasti niin kova kiire, ettei kontaminoituneita materiaaleja ehtisi polttamaan vasta ammun jälkeen ja huomattavasti turvallisemmassa ympäristössä? Kuinka paljon aiemmin työpäivä päättyy, kun avotulen kanssa otetaan riskejä? Poltettavat laatikot itsessään on myös syytä tarkastaa huolella, ettei niiden mukana ei nuotioon päädy vahingossa räjähdysainepatruunoita tai nalleja.

Tärkeää on myös muistaa, että jos tuli joskus kaikesta varovaisuudesta huolimatta leviää räjähdysaineisiin, ei niitä saa enää yrittää sammuttaa, vaan alue on eristettävä riittävän suurella säteellä ja odotettava, että räjähteet ovat palaneet pois. Näitä asioita olisi hyvä miettiä työmaan turvallisuutta ja riskienarviointia tehdessä. Vaikka päävastuu työmaan turvallisuudesta on päätoteuttajalla, niin asioita voi silti suunnitella ja niihin voi varautua yhdessä. y

Teksi: Lari Laine Kuva: FORCIT Explosives

LOUHINTAKORNERI

Polttamista odottavia tyhjiä laatikoita työmaalla.

LOUHINTAKORNERI

Työkohteen pelastusharjoittelu

Kuva: Keski-Suomen pelastuslaitos

FORCIT harjoittelee säännöllisesti ja suunnitellusti sisäisissä pelastusharjoituksissaan erilaisten skenaarioiden mukaista toimintaa. Olemme harjoitelleet toimintaa muun muassa kolaritilanteissa, tulipaloissa toimipaikoillamme tai ajoneuvoissa, sekä erilaisiin turvallisuusuhkiin varautumista ja sellaisissa tilanteissa toimimista. Jotkut ovat päässeet osallistumaan yhteisharjoitukseen poliisin erikoisjoukkojen kanssa asiaankuuluvine tulitaisteluineen ja pommiansasta pelastumisineen. Myös johtajisto on osallistunut näihin harjoituksiin, sillä heillä on oma roolinsa ja vastuunsa eri tilanteissa. Harjoittelu saattaa joskus mennä aivan putkeen, tai toisinaan paljastaa puutteita suunnitelmissa ja toiminnassa, mutta usein toistettuna vahvistaa myös osaamista todellisessa kriisitilanteessa. Virheistä nimittäin oppii, ja mikä olisikaan parempi paikka tehdä virheitä kuin harjoitus.

Työkohteiden turvallisuussuunnittelusta olemme kirjoittaneet hieman laajemmin Ruutisten numerossa 1/2020.

Kyseisen Ruutiset-jutun oli tavoite herätellä toimijoita, minkä vuoksi oletan, että jokainen vastuullinen toimija on tehnyt tähän mennessä tarvittavat päivitykset turvallisuussuunnitelmiinsa. Hyvä. Seuraavaksi onkin sitten harjoittelun vuoro. Pelastusharjoitusten järjestämisestä on määrätty asetuksissa. Mutta jos lukijasta tuntuu, että on löytänyt määräyksistä valaan mentävän porsaanreiän, niin asiaa on ehkä syytä harkita uudelleen.

Työkohteen luonne, koko ja kesto ovat ymmärrettävästi harjoitteluun vaikuttavia tekijöitä. Jos työkohde on pitkäkestoinen ja se sijaitsee paikassa, jossa on muutakin toimintaa, kannattaa harkita harjoituksen järjestämistä, vaikka pakkoa ei olisikaan. Miksi?

Otetaan skenaarioksi tulipalo työkohteessa räjähdetoimittajan räjähdysaineita sisältävässä kuorma-autossa tai panostusajoneuvossa. FORCITilla on omat ohjeensa tilanteessa

toimimiseksi, entä työkohteella? Jo pelkän alkuvaiheessa olevan palon tulisi aikaansaada valmiuden nosto työkohteessa. Etenevä palo aiheuttaa evakuoinnin, sillä mahdolliseen räjähdykseen tulee varautua. Entä jos poikkeustilanteeseen jatkuvaa koulutusta saanut väki, eli FORCITin henkilökunta, onkin syystä tai toisesta toimintakyvyttömänä? Kuinka silloin toimitaan? Teitä pitäisi sulkea ja lähistöllä olevia ulkopuolisia varoittaa niillä resursseilla, jotka ovat käytössä siihen saakka, kunnes pelastusviranomainen ottaa toimintavastuun. Ei ole vaikeaa näin paperille kirjoitettuna, mutta käytännössä eteen saattaa ilmaantua yllättäviäkin haasteita.

Kun kaikki osapuolet toimivat vastuullisesti ja toimintaympäristön huomioiden, edellyttää se myös tilaajapuolelta varautumista. Turvallisuus- ja vastuumielessä kysymys on yhteisestä työpaikasta, jossa päävastuu turvallisuudesta on päätoteuttajalla.

FORCIT haastaa tässä yhteydessä alan toimijoita yhteisharjoitukseen kanssamme teidän kohteessanne. Jos teillä on esimerkiksi avolouhintakohde, jonka kesto on pitkä, ja joka sijaitsee turvallisuusmielessä hankalassa paikassa, on se juuri sopiva paikka harjoitella. Kohteen vaarallisuuden arvioinnissa saattaa olla hiuksenhienoja näkökantaeroja, mutta arviointia helpottamaan mainittakoon, että ajoneuvon räjähdykseen varautuminen edellyttää noin 700 metrin evakuointivyöhykettä. Alueen sisältä olisi (viranomaisen) saatava ihmiset pois tai varmistuttava, että ihmiset ovat turvallisessa paikassa koko vaaratilanteen ajan. Jos uhkana on ei-hallittu räjähdys ja tuon 700 metrin säteen sisäpuolella on esim. asutusta tai liiketoimintaa, on kohde tässä mielessä haastava ja ulkopuolisille mahdollista vaaraa aiheuttava.

Autamme tarvittaessa harjoituksen suunnittelussa, läpiviennissä ja onnistumisen arvioinnissa. Jos kiinnostuit harjoituksesta, ota suoraan yhteyttä myynnin asiakasvastaavaan! y

Teksti: Ari Rahkonen

OPIT ECO

OHJELMISTO YMPÄRISTÖPÄÄSTÖJEN HALLINTAAN

O-PitEco on digitaalinen työkalu, jonka avulla käyttäjä voi laskea, arvioida ja seurata poraus- ja räjäytystöiden ympäristövaikutuksia kussakin kohteessa ja jokaisesta räjäytyksestä.

TIETOKANTA PROJEKTI

Lisää räjähdysaineiden päästötietoja räjäyttimille, bulk-tuotteille, patruunoille tai sytytysvälineille. Dokumentoi ja raportoi porauksen ja louhinnan ympäristövaikutukset.

ELINKAAREN VAIHEET

Huomioi tuotteidesi elinkaarivaiheet: valmistus, kuljetus, panostus ja räjäytys.

Lisätiedot omalta asiakasvastaavaltanne

Luo projekteja ja räjäytyksiä, syötä niiden suunnittelutiedot porauksesta, panostuksesta ja valitusta sytytysjärjestelmästä. Vertaa eri tuotteiden ympäristövaikutuksia.

ECOKORNERI

Tervetuloa lukemaan Ruutisten uutta Ecokorneria! Idea uuteen osioon syntyi edellisen lehden ”FORCIT matkalla kohti hiilineutraaliutta” -jutun tiimoilta. FORCITin tavoitteena on olla alamme johtaja vastuullisuudessa sekä saavuttaa hiilineutraalius oman tuotantomme osalta vuoteen 2035 mennessä. Näiden tavoitteiden saavuttamiseksi toteutettuja toimia ja projekteja esitellään tässä ja tulevien lehtien Ecokornereissa. Lue ja inspiroidu kehitysaskelista, joita alallamme otetaan kestävämmän yhteiskunnan rakentamiseksi ja ilmastonmuutoksen pysäyttämiseksi.

Emulsion hajotus ja ammoniumnitraatin kierrätys omaan tuotantoon

Teksti: Laura Pitkäjärvi

Käyttöön soveltumaton emulsio on perinteisesti hävitetty kierrättämällä tai polttamalla. Tällaisen emulsion kierrättäminen on kuitenkin äärimmäisen haastavaa turvallisuusriskien takia, sillä emulsiossa voi olla epäpuhtauksia, jotka voivat aiheuttaa laadullisia ongelmiataijoparäjähdyksen.Polttaminenonturvallinen tapa, mutta siihen liittyy aina turvallisuusriskejä. Maailmalla on tapahtunut onnettomuuksia, jossa poltettava emulsio on syystä tai toisesta räjähtänyt. Emulsion avo-polttaminen kuormittaa lisäksi luontoa, ja vaatii runsaasti apupolttoainetta.

FORCITin tavoitteena on vähentää merkittävästi toiminnastamme aiheutuvaa ympäristökuormitusta. Etsimme jatkuvasti uusia raaka-aineita ja toimintatapoja, joiden hiilijalanjälkionpieni.Yhtenätällaisenatoimenpiteenäon tutkia emulsion kemiallista hajotusta ja saatujen jakeiden

hyötykäyttöä, joko omassa tuotannossa tai muuna sivuvirranhyödyntämisenä.

FORCIT on kehittänyt menetelmän, jolla hapettavaksi luokiteltu (5.1) puhdas emulsio voidaan hajottaa takaisin ammoniumnitraatiksi ja erilliseksi öljyseokseksi. FORCIT sai vuonna 2022 Business Finlandilta rahoituspäätöksen kehittääkseen tätä menetelmää edelleen yhteistyössä VTT:n kanssa. Hankkeen tavoitteena on ollut löytää optimaalinen hajotus- ja erotusmenetelmä, sekä keinot erotetun ammoniumnitraatin jatkokäsittelyyn siten, että se täyttää sille asetetut laatuvaatimukset mahdollistaen liuoksen kierrättämisen takaisin FORCITin tuotantoon. Laboratorio- ja pilotmittakoon tutkimukset on nyt suoritettu menestyksekkäästi, ja seuraavana tavoitteena on tehdä konseptisuunnitelma prosessimittakoon laitteistolle. Forcit jatkaa lisäksi tutkimustyötään myös 1.1 luokitellun emulsionhajottamiseksi. y

Auditoimalla varmistetaan toimitusketjujen läpinäkyvyys

Räjähdealan toimijoina olemme jokainen osa räjähteiden toimitusketjua. Toimitusketjujen läpinäkyvyys ja laadukkuus on tärkeää riskienhallinnan, laadunvarmistuksen ja vastuullisuuden näkökulmasta. EU:n säädösten ja OECD:n toimintaohjeiden mukaisesti jokaisen eurooppalaisen yrityksen on oltava tietoinen toimitusketjujensa riskitekijöistä, auditoitava niitä säännöllisesti ja raportoitava tuloksista.

FORCIT Group on viimeisen vuoden aikana auditoinut ahkerasti toimitusketjujaan. Jokaisesta toimittajasta on tehty alustava riskienarviointi perustuen muun muassa materiaalien vaarallisuuteen, volyymeihin, toimintamaahan ja kuljetustapaan. Toimintamaan arviointi on pohjautunut International Trade Union Confederationin (ITUC) Global Rights Index -analyysiin.

Tämän alustavan arvioinnin perusteella olemme auditoineet paikan päällä suurimpia raaka-ainetoimittajiamme.

Auditointeihin on osallistunut FORCITilta asiantuntijoita vastuullisuustiimistä, hankinnasta, tuotekehityksestä ja tuotannosta. Tavoitteena on ollut arvioida alihankkijoidemme toimintaa ympäristöasioiden, sosiaalisen vastuullisuuden ja hyvän hallintotavan ja läpinäkyvyyden näkökulmasta.

Tähän mennessä suoritettujen auditointien perusteella toimitusketjumme asiat ovat hyvällä tolalla. Aina löytyy kuitenkin joitain kehityskohteita ja mahdollisuuksia tehdä toiminnasta entistäkin laadukkaampaa. Niinpä jokaisen auditoinnin perusteella on laadittu pieniä ehdotuksia laadullisiin ja toiminnallisiin kehitystoimenpiteisiin. Sosiaalisia epäkohtia ei ole havaittu.

Voit lukea lisää FORCIT Groupin vastuullisuustoiminnasta Sustainability in Short 2023 -vastuullisuusraportistamme (englanniksi), jonka löydät konsernin verkkosivuilta: forcitgroup.com/sustainability y

Teksti: Saila Pesonen

ECOKORNERI

Typettömän louhintaräjähdysaineen kehitystilanne

FORCIT on tehnyt pitkäjänteistä tutkimus- ja kehitystyötä typettömän louhintaräjähdysaineen kehittämiseksi. Pääasiallinen kehityslinja on ollut emulsio, tuotenimellä Kemiitti HPE, jossa hapettimena toimii vetyperoksidiliuos.

Tällä hetkellä teemme koeajoja vetyperoksidiemulsion onsite valmistusmoduulilla. Vetyperoksidiemulsion valmistus toteutetaan suoraan käyttöpaikalla, sillä sen kuljetuksen ja varastoinnin riskejä ei tunneta riittävän perusteellisesti. Vetyperoksidiemulsiolle ei ole määritelty omaa UN-numeroa, joten riskien tuntemukseen perustuvat testimenetelmät ja vaatimukset puuttuvat. Täyden mittakaavan kuljetuksessa ja varastoinnissa käsitellään suuria ainemääriä, joihin liittyy suuren mittakaavan seurauksia mahdollisissa onnettomuustilanteissa. Vastuullisen toiminnan nimissä toiminnan volyymiä voidaan kasvattaa sitä mukaa, kun riskit tunnetaan ja niitä voidaan hallita.

Valmistusmoduulin testaamisen yhteydessä on kiinnitetty paljon huomiota työturvallisuuteen. Mittauksilla on havaittu, että vetyperoksidiliuoksen ja vetyperoksidiemulsion käsittelyssä työkohteen ilmassa esiintyy huomattavan korkeita vetyperoksidipitoisuuksia. Pitoisuusraja 8 tunnin altistukselle on 1 ppm ja 15 minuutin altistukselle 2 ppm. Testeissämme on havaittu 2–20 ppm pitoisuuksia. Huomioiden vetyperoksidin kemiallisen aggressiivisuuden on päädytty suojausratkaisuun, joka vaatii uudenlaista toimintakulttuuria. Merkittävin muutos on hengityksen suojaukseen tarvittava ABEK-P2-suodattimella varustettu moottoroitu kokokasvomaski. Maski suojaa kasvot kokonaisuudessaan mahdollisilta roiskeilta, jotka aiheuttavat silmissä pysyviä vaurioita ja iholla välittömästi kemiallisen palovamman. Toinen merkittävä muutos on nestettä läpäisemättömän kemikaalisuojapuvun käyttö. Normaalit työvaatteet eivät anna riittävää suojaa ja ovat syttymisalttiita vetyperoksidin vaikutuksesta.

Toinen työturvallisuuteen merkittävästi vaikuttava tekijä on vetyperoksidiemulsion voimakas reaktiivisuus mineraalien ja maaperässä esiintyvien aineiden kanssa. Käytännössä kaikki vieras materiaali on potentiaalinen reaktiivisuuden aiheuttaja. Reaktiossa vapautuu happea, vettä ja energiaa.

Vetyperoksidiemulsio on hyvin herkkä reagoimaan erityisesti rikkipitoisten metallimineraalien kanssa.

Teksti: Timo Halme Kuvat: Forcit Explosives

Merkittävimmät muutokset suojavarusteissa vetyperoksidiemulsiota käsiteltäessä: Moottoroidut kokokasvomaskit ABEK-P2-suodattimilla ja kemikaalisuojahaalarit.

Vapautuvan energian johdosta emulsio lämpenee, mikä puolestaan kiihdyttää reaktiota. Vapautuva happi ja vesihöyry kantavat mukanaan vetyperoksidia, mikä on havaittu rajaarvot moninkertaisesti ylittävinä vetyperoksidipitoisuuksina reaktiivisesta näytteestä nousevassa höyryssä. Mittausten mukaan malmin kanssa reagoiva vetyperoksidiemulsio saavuttaa noin 100�C lämpötilan lyhyessä ajassa.

Nämä merkittävät haasteet huomioiden FORCIT vie kehitystyötä eteenpäin kohti kenttäkokeita, joiden arvioidaan alkavan vielä tämän syksyn aikana. Ensimmäisten kenttäkokeiden keskeisimpänä tavoitteena on todentaa sekä tuotteen turvallinen käsiteltävyys huomioiden uudenlaiset henkilökohtaiset suojausratkaisut että riittävän tasoinen louhintatekninen suorituskyky. y

Kestävämpiä energiaratkaisuja Lapuan asemalle

OSANA TAVOITETTAMME SAAVUTTAA hiilineutraalius omassa tuotannossamme vuoteen 2035 mennessä olemme jatkaneet investointeja toimipaikkojemme energiaratkaisujen parantamiseksi.

FORCITin Lapuan varastolla tehtiin energiamuutostöitä kesän ja syksyn 2023 aikana. Muutostöiden avulla luovuttiin fossiilisen polttoaineen käytöstä. Tämän lisäksi alueen räjähdetuvallisuutta parannettiin suojaamalla sähkönjakelu salamaniskuilta ja uusimalla ukkosmaadoituksia. Uudistus vaati muutoksen aluesähköistykseen koko räjähdysainevaraston alueelle. Energianmuutostyöt koostuivat kahden öljylämmityslaitteiston korvaamisesta vesi-ilmalämpöpumpuilla. Aluesähköuudistus sisälsi ilmalinjojen korvaamisen maakaapeleilla, sähkönsyöttökapasiteetin noston ja valmiuden sähköautojen latauspaikalle. Myös sähkökeskukset, varastojen ukkosmaadoitukset ja aluevalaistus uusittiin. Sähköautojen latauspaikka toteutetaan kesän 2024 aikana. y

Teksti: Anu Seppälä, Teemu Salminen
Kuva: FORCIT Explosives

FORCIT CONSULTING

Tavoitteena Suomen parhaat panostajakurssit

Kouluttautumisen tavoitteet vaihtelevat yksilöittäin: joku haluaa oppia perusteita tai syventyä aiheeseen, toinen valmistua ammattiin, ja kolmas verkostoitua. Panostajakoulutuksissa myös lainsäädännölliset vaatimukset ohjaavat osallistumista ja pontimena on myös lainsäädännöllinen velvollisuus riittävään koulutukseen, tai kuten panostajalaissa sanotaan, hakijan on oltava koulutukseltaan pätevä.

Entä milloin koulutus on onnistunut ja hyödyllinen? Tarkastellaan tätä myöhemmin.

Pelkkä koulutus ei tee meistä ammattilaisia, vaan vahvaan ammattitaitoon tarvitaan lisäksi rutkasti ajansaatossa kertyvää kokemusta, jonka hankkimiseen ei oikein ole oikotietä. Panostajan työtehtävissä työkokemuksen merkitys korostuu. Parin vuosimiljardin aikana muodostunut ja muokkautunut luonnontuote, kallio, tuppaa olemaan erilaista eri paikoissa, joten teoriapohjan lisäksi käytännön panostajataitojen soveltaminen erilaisiin olosuhteisiin on ensiarvoisen tärkeää.

Koulutuksella ja kokemuksella pääsee jo pitkälle, mutta yhtälöstä puuttuu vielä kolmas palanen, joka on loppujen lopuksi kaikkein tärkein – motivaatio. Kaavan voisi muotoilla

seuraavasti: Pätevyys = (Koulutus + Kokemus) x Motivaatio. Koulutus- ja kokemuspohja tukevat ja jossain määrin kompensoivat toisiaan, mutta vuosien koulutus ja vuosikymmenten työkokemus eivät käytännössä tuo lisäarvoa, jos motivaatio on nolla. Ei kova motivaatiokaan yksinään riitä, mutta kiinnostus ja (sopiva) innokkuus omaa työtä kohtaan auttavat saamaan itsestä parhaan irti – ja tekevät samalla työelämästä pikkuisen mukavampaa.

Opiskelun perinteiset onnistumisen merkit eli uusien tietojen oppiminen ja taitojen omaksuminen sekä pätevöityminen tutkinnon muodossa ovat myös meidän panostajakurssiemme päätavoitteita. Käytännössä kurssimme keskittyvät louhinta- ja räjäytystöiden teknisiin perusteisiin sekä turvalliseen ja lainsäädännön mukaiseen työskentelyyn.

Vaikka työkokemusta ei voi opettaa, siihen voi rohkaista. Motivaatio on pitkälti henkilöstä itsestään kiinni, mutta sitäkin voidaan koulutusten aikana herätellä. Koulutuksissamme tämä filosofia näkyy niin, että pyrimme paketoimaan kurssimme innostavan ja osallistavan opetuksen sekä käytännön esimerkkien ympärille, jolloin mielipiteitä sekä näkemyksiä kuunnellaan ja niistä opitaan yhdessä. Lopulta

Tärinätarinat saavat jatkoa, kun tavoitteenamme on pitää Suomen parhaita panostajakursseja. Haluamme kehittää alaa yhdessä, joten rohkaisemme osallistujia antamaan kurssipalautetta niin sisällön kuin luennoitsijoidenkin näkökulmasta.

kaikin puolin turvallisen ja onnistuneen räjäytyksen voi usein toteuttaa monella eri tavalla.

Seuraavaksi hieman konkretiaa, eli mitä me olemme tehneet ja mitä suunnittelemme tekevämme, jotta aiemmat ajatukset eivät jäisi vain kauniiksi sanoiksi. Ensinnäkin panostajakursseillamme painottuu käytännönläheinen ja moderni lähestymiskulma. Opetuksemme perustana ovat nykypäivän työmaille soveltuvat turvalliset toimintamallit ja työtavat. Olemme kuluneen vuoden aikana uudistaneet opetusmateriaalejamme isolla kädellä ja kehittäneet aineistoihin muun muassa räjäytyssuunnittelun avuksi kaavoja ja nyrkkisääntöjä, jotka vastaavat nykyisten työmaiden tilanteita ja vaatimuksia. Käsittelemme kursseilla käytännön havaintoja ja kokemuksia elävästä elämästä. Käytämme opetuksessa videomateriaaleja sekä teemme monipuolisia käytännön harjoituksia nallien kytkemisestä räjäytysteknisiin mittauksiin ja analysointeihin. Pyrimme myös kehittämään alaamme sekä luomaan uutta räjäytys- ja louhintateknistä tutkimusta, jonka tuloksia käsittelemme kursseillamme soveltuvin osin. Ideatasolla mielessämme on entistäkin parempien koulutusmateriaalien ja havainnollisempien opetusmenetelmien aihioita. Tavoitteenamme on olla Suomen paras panostajakouluttaja.

Tarjoamme nykyisin kaiken tasoisia louhintateknisiä panostajakursseja sekä teemme yhteistyötä monen oppilaitoksen kanssa aikuisopistoista yliopistoihin. Olemme jo jonkin aikaa tarjonneet panostajakurssien lisäksi ADR-koulutuksia sekä työturvallisuuskorttikursseja. Tämä mahdollistaakin uudenlaisia yhteistyömuotoja, joista loppuun yksi esimerkki.

Viime vuonna tulleen muutoksen myötä Työturvallisuuskeskuksen myöntämän ja voimassa olevan työturvallisuuskortin voi uusia noin puolen päivän pituisella koulutuksella. Olemme lanseeraamassa ensi syksyksi kurssipäivän, jonka aikana voi suorittaa panostajan kertauskurssin sekä louhintateknisellä painotuksella toteutettavan työturvallisuuskorttikoulutuksen. Näin molempien korttien uusimiseen vaadittava koulutus onnistuu yhden ja saman, joskin vähän pidemmän päivän aikana. Lisätietoja edellä mainitusta kurssipäivästä ja muista koulutuksista julkaistaan Forcit Consulting Oy:n verkkosivuilla. Voit myös soittaa panostaja-asioissa Tuomo Hänniselle 040 776 8191 ja ADR-asioissa Harry Rantahakalalle 010 832 1309. y

FORCIT CONSULTING

Bergwerk ja FORCIT – yhteiset alkumetrit

BERGWERK OY:N TOIMINTOJEN liittyminen Forcit Consulting Oy:hyn on vahvistanut koulutus- ja räjäytyskonsultointiliiketoimintaamme sekä laajentanut palveluvalikoimaamme myös kaivossuunnittelussa ja valvonnassa. Nyt useamman kuukauden alkutaipaleen jälkeen voimme hyvillä mielin todeta, että yhteistyö alkanut sujuvasti ja molempien yritysten henkilöstö on ottanut uudet työkaverit mukavasti vastaan. Liiketoimintojen synergiaetujen lisäksi on ollut hienoa todeta, että jaamme pitkälti myös samat tavoitteet ja arvot. Toimintojemme yhdistyminen näkyy myös kumppaneillemme positiivisena asiana FORCITin laajemman palvelu- ja asiantuntemusvalikoiman ja helpomman palvelusaatavuuden osalta.

Consultingin uusin toimipiste Porissa

FORCIT CONSULTINGIN TOIMIPISTEITÄ on yli 20 paikkakunnalla Suomessa, Ruotsissa ja Norjassa. Pohjoismaiden laajin kattavuus parani entisestään, kun vuoden 2024 helmikuussa avasimme uuden toimipisteen Poriin. Olemme palvelleet aiemmin länsirannikon alueen toimijoita Turusta, Tampereelta ja Vaasasta käsin, mutta uusin toimipisteemme nopeuttaa ja parantaa asiakaspalvelua erityisesti Porin alueella.

Toimipisteessä asiakkaita palvelee Jouni Inkinen. Jounilla on pitkä ja laaja 32 vuoden kokemus Satakunnan alueella yrittäjänä maanrakentamisesta, teollisuuden kunnossapidosta sekä infra-alan rakentamisesta.

Siviilissä suurehkon perheen heimopäällikkönä ei tule tylsää hetkeä vaikkakin lapset ovat jo kasvaneet isoiksi. Jounin perheeseen kuuluu vaimo, 6 lasta, kissat ja koirat. Jounin mottona on ”jos en itse osaa tehdä niin opetellaan ja huomenna se jo onnistuu”.

Turvallisuusympäristö muutoksessa

Teksti: Mari Halonen

Suomessa turvallisuuskulttuuri on pitkään ollut hyvällä tasolla. Olemme tottuneet siihen, että voimme keskittyä rauhassa omiin asioihimme, eikä ihan jokaista ympärillämme tapahtuvaa seikkaa tarvitse huomioida. Lisäksi huolellisuus prosesseissa on varmistanut räjähdeturvallisen toiminnan. Totta kai tiedostamme erilaisten turvallisuusuhkien olemassaolon kansallisella ja kansainvälisellä tasolla, mutta isossa kuvassa uhat eivät ole kohdistuneet eivätkä liittyneet suuressa määrin alamme toimintaan.

Vuoden alussa vieraillessani naapurimaassamme Ruotsissa Bergsprängardagarna-tapahtumassa koin herätyksen liittyen pohjoismaisen turvallisuuskulttuurin muutokseen. Ruotsissa jengien väliset selvittelyt ovat valitettavasti olleet jo jonkin aikaa arkipäivää. Vaikka Suomen ja Ruotsin turvallisuustilanteet ovat tältä osin eriytyneet viime vuosina, on huomion arvoista kuitenkin se, että lähiaikoina jengiytymisessä kasvua on tapahtunut meilläkin ja kansainväliset jengit ovat myös löytäneet tiensä Suomeen. Globalisoituneessa maailmassa nimittäin ongelmat leviävät nopeasti rajojen yli. Ruotsin poliisin mukaan jengien väkivalta on levittäytynyt maassa yhä useampiin kaupunkeihin, joissa on päässyt syntymään niin sanottuja "vaikeita alueita". Yhä nuoremmat sekaantuvat rikolliseen toimintaan ja yhä useammin sivulliset joutuvat kärsimään. Lisäksi rikolliseen toimintaan liittyy entistä useammin räjähteiden käyttöä, ja räjähdeiskujen määrä onkin kasvanut naapurimaassamme huomattavasti. Jengien on todettu käyttäneen välien selvittelyyn ja pelotteluun siviiliräjähteitä kuten dynamiittia, kranaatteja, itsetehtyjä pommeja ja toisinaan raketteja. Ohessa kuva, joka havainnollistaa räjähdysten määrän viimeaikaista tilannetta Ruotsissa.

Räjähdeiskuista tekee erityisen vaarallisia niiden aiheuttama suuri tuho sekä rakenteille että henkilöille, mukaan lukien jengien jäsenet mutta myös sivulliset henkilöt. Räjähdeiskut

ovat myös vaikeita estää ja tutkia, koska räjähteet ovat usein varastettuja, salakuljetettuja tai itse tehtyjä, ja niiden jäljittäminen on haastavaa, joskaan ei anastettujen räjähteiden osalta mahdotonta. Vuonna 2014 voimaan tulleen räjähteiden seurantadirektiivin myötä saimme alalle järjestelmiä, joiden avulla räjähteiden seuranta on mahdollista yksikkötasolla aivan käyttökohteeseensa saakka, ja vieläpä aika helposti. Nyt naapurimaassa ala keskustelee kiivaasti vastuista, velvollisuuksista ja mahdollisista toimenpiteistä, joilla siviiliräjähteiden päätyminen vääriin käsiin saadaan alan toimesta katkaistua. Kuulemme keskustelujen tuloksista varmasti myöhemmin lisää. Myös Suomessa alamme toimijoiden etu on ennaltaehkäisevästi pyrkiä varmistamaan turvalliset käytännöt ja menettelytavat, jotta viranomaisten ei tarvitsisi tulevaisuudessa puuttua alan toimintaan rajoittaen tai lainsäädäntöä muuttamalla.

VINKKEJÄ TURVALLISUUSYMPÄRISTÖN HAVAINNOIMISEEN Räjähteiden kuljettaminen tapahtuu aina valvonnan alaisuudessa. Olemme myös Suomessa olleet tilanteessa, jossa kuljettajamme ovat epäilleet, että ajoneuvoamme seurataan. Lähtökohtaisesti kaikissa vaarallisten aineiden kuljetuksissa tällaiseen tilanteeseen tulisi olla mietittynä toimintatapa valmiiksi. Miten sinun tulee toimia, jos epäilet olevasi seurannan kohteena liikenteessä? Onko ADR/VAK-lainsäädännön mukainen turvasuunnitelma tehty ja sen vaatimat toimenpiteet selvät kuljettajille liikenteessä? Onko reittisuunnitelmassa huomioitu poikkeavat olosuhteet?

Myös työmaalla valvonta on tärkeää: silmät on hyvä pitää auki ja toimintaa ja ympäristöä arvioida jatkuvasti, sillä usein rikollinen toiminta on verhoutunut aivan arkipäiväisiin tekemisiin. Räjähteitä ei saa jättää vartioimatta, ja varastointiin on olemassa selvät raamit. Myös kirjanpidon ajan tasalla pitäminen työpäivän aikana auttaa huomaamaan poikkeamat

Rikolliseen toimintaan liittyneiden räjähdysten määrän viimeaikainen kehitys Ruotsissa. Vuoden 2023 luku sisältää tapahtumat välillä 1.1.-15.10.2023.

toiminnassa. Poikkeamista sekä epäilyttävästä toiminnasta työmaan ympäristössä tai kuljetuksen aikana on ilmoitettava matalalla kynnyksellä viranomaisille.

Sosiaalinen media on nykypäivänä hyvä tiedonlähde rikollisille, joten työntekijöitä kannattaa muistutella aika ajoin siitä, mitä sosiaaliseen mediaan ei ainakaan kannata laittaa. Lisäksi monen sovelluksen asetukset kannattaa valita siten, että esimerkiksi sijaintitiedot eivät ole kaikille näkyvillä eivätkä arkistoidu esimerkiksi somekanavien päivitysten yh-

teydessä. Kaksivaiheisella tunnistautumisella sekä asetusten optimoinnilla voi estää tilin kaappauksen ja samalla omien tietojen valumisen kolmansille osapuolille.

Ruotsi on monessa suhteessa mallioppilas, josta otamme mieluusti mallia, mutta tässä tilanteessa emme halua seurata samaa kehityskaarta. Pidetään siis huolta perusasioista, välitetään toisistamme ja jaetaan tietoa sekä hyviä käytäntöjä, jotta voimme toimia enemminkin mallioppilaana Ruotsin kehityksen kääntämiseksi. y

ILMOITUKSET

Menneet ja tulevat tapahtumat

INFRA LOUHINTAPÄIVÄT

Infran perinteisiä Louhintapäiviä vietettiin tänä vuonna jo maaliskuussa uudistetulla konseptilla Tampere-talon upeassa tunnelmassa. Louhintapäivät olivat osa Infra ry:n lanseeraamia Ammattipäiviä, jotka toivat yhteen infra-alan osaajia eri teemapäivien ympärille. Louhintateeman lisäksi päivien alatapahtumat käsittelivät mm. kiviaineksia, päällysteitä, infraurakointia ja HR-asioita.

Tilaisuus myytiin loppuun ja mukana oli yhteensä 530 alan huippuosaajaa. Tapahtuma tarjosi oppimisen ja verkostoitumisen lisäksi luentoja, tietoiskuja, keskustelua ja mikä tärkeintä - yhdessä viihtymistä! FORCITilta mukana oli iloien ja monipuolinen edustustiimi Explosives- ja Consulting-toimialueiden avainhenkilöistä.

WORLD BLASTING INNOVATORS

Kiinnostaisiko matka ulkomaille?

Syksyllä 7.–9.10.2024 Portossa Portugalissa järjestetään uusi kaivosalan tapahtuma nimeltä World Blasting Innovators. Tapahtuman teemana on ”innovoida poraus- ja panostusprosessia”. Lisätietoja tapahtuman kotisivuilta worldblastinginnovators.com.

FINNMATERIA-MESSUT

Tulevista tapahtumista mainittakoon perinteiset FinnMateria-messut Jyväskylän Palviljongissa 6.–7.11.2024. Tapahtuma kerää yhteen Pohjoismaiden johtavat kaivosteollisuuden, metallinjalostuksen, kiviainesteollisuuden, kiertotalouden ja maarakentamisen osaajat. Tule sinäkin mukaan! FORCITin löydät tapahtumasta ständipaikalta B-114. Lisätietoja tapahtumasta voit lukea messujen kotisivuilta finnmateria.fi

RISTEILYKURSSI

Forcit Consulting Oy järjestää perinteisen Risteilykurssin 20.–22.11.2024 ja kohteena on tällä kertaa Tukholma. Lisätietoja tapahtumasta saatavissa myöhemmin, mutta laittakaahan päivämäärät jo kalentereihinne!

Tuomo Hänninen pitää esitystä louhintatärinöistä vuoden 2023 risteilykurssilla.
INFRAn ammattipäivien yhteisissä avajaisissa Tampere-talon pääsalissa kuuntelijoita riitti.

Kalakisa kesälle 2024

KALAKISA TULEE JÄLLEEN ja tänä vuonna kilpaillaan kahdessa kategoriassa: aikuisten ja lasten sarjoissa. Nyt kaikki joukolla harrastamaan kalastusta, nauttimaan Suomen ihanasta luonnosta ja lähettämään siimoihin tarttuneiden vonkaleiden kuvia Ruutisten toimitukselle! Kalakisat on voitettu joskus isommilla ja joskus pienemmillä saalilla, joten osallistuminen kannattaa aina!

Kalakisaan saavat osallistua kaikki isot ja pienet Ruutisten lukijat seurueineen. Kalastusalueena toimivat kaikki Suomen vesistöt ja kalastusaikaa on koko kesä (1.6.–31.8.2024).

Lähetä kuva sekä tiedot (päivämäärä, paino, kilpailukategoria, kalastuspaikka ja kalastusmenetelmä) kesän isoimmasta kalasaaliistasi osoitteeseen anu.seppala@forcit.fi

Sarjojen voittajat sekä kuvat julkaistaan loppuvuoden Ruutisissa ja voittajille on luvassa palkkio!

Eppu ja metrotunneli -lastenkirja

KEVÄÄLLÄ JULKAISTIIN EPPU ja metrotunneli -lastenkirja, joka perustuu ruotsinkieliseen alkuteokseen (Bojan och tunnelbanan). Suomenkielisen version ovat toteuttaneet Vuoriteknikot ry, Vuorimiesyhdistys - Bergsmannaföreningen ry, INFRA ry ja MTR - Maanalaisten tilojen rakentamisyhdistys - FTA - Finnish Tunnelling Association.

Eppu ja metrotunneli - kirjan tarkoituksena on osoittaa lapsille, sekä heidän vanhemmilleen, kuinka kiinnostava ja jännittävä kallio- ja kaivosrakentamistoimialamme on, ja miten se hyödyttää yhteiskuntaa tulevaisuudessa. Projektissa mukana olevat yhdistykset hoitavat kirjojen jakelun.

RIL-253 ”Rakentamisen aiheuttamat tärinät” päivittyy

TUTTU RIL-253 -OHJE saa tänä keväänä uuden version. Ohjeen avulla pyritään edistämään ja varmistamaan hyvää rakennustapaa erilaisissa pohja-, maa- ja kalliorakennusprojekteissa ja niiden suunnittelussa. Ohje neuvoo, miten tulee huolehtia rakentamisen aiheuttaman tärinän, esimerkiksi louhinta- tai paalutustyön, turvallisesta hallinnasta rakennusaikana. Ohje kattaa mm. henkilö-, laite- ja rakenteiden turvallisuuden, mutta ei ota kantaa ihmisten häiriintymiseen tärinästä. Ohjeessa päivitetään erityisesti mm. ilma-aallonpaineen, tärinän ohjearvojen luokittelun ja sitoutuvan betonin tärinän kestävyyden osa-alueita.

HALUAMME JÄLLEEN MUISTUTTAA lukijoitamme, että päivitämme jatkuvasti tuotedokumentteja vastaamaan sekä käyttäjien tarpeita, että tuotekehityksen tekemiä kehitystoimia. Uusimmat tuotedokumentit löydät kätevästi verkkosivuiltamme osoitteesta: forcitexplosives.fi/tuotteet

Myös käyttöturvallisuustiedotteisiin tulee aika-ajoin muutoksia mm. lain vaatimusten muuttuessa, joten tarkistathan säännöllisin väliajoin, että työmaasi käytössä on aina ajantasaiset tiedotteet!

Kiitokset kaikille osallistujille!

Louhinta- ja räjäytystekniset koulutukset

KURSSIN NIMI JÄRJESTÄJÄ PUHELINNUMERO

Panostajan kertauskurssi JT–Koulutus

044 0556669 Rusko 15.7.2024

Panostajan kertauskurssi AEL Amiedu Oy Taitotalo 050 354 6885, 050 473 6405 Keuruu 19.8.2024

Panostajan kertauskurssi Forcit Consulting Oy 010 832 1353 Etäkurssi Teams 10.9.2024

Panostajan kertauskurssi JT–Koulutus

044 0556669 Rusko 16.9.2024

Panostajan kertauskurssi AEL Amiedu Oy Taitotalo 050 354 6885, 050 473 6405 Helsinki 30.9.2024

Panostajan kertauskurssi Forcit Consulting Oy 010 832 1353 Helsinki 29.10.2024

Panostajan kertauskurssi JT–Koulutus 044 0556669 Rusko 4.11.2024

Panostajan kertauskurssi Sedu 020 145800 Ilmajoki 25.11.2024

Panostajan kertauskurssi Forcit Consulting Oy 010 832 1353 Etäkurssi Teams 26.11.2024

Panostajan kertauskurssi JT–Koulutus 044 0556669 Rusko, 9.12.2024

Panostajan kertauskurssi AEL Amiedu Oy Taitotalo 050 354 6885, 050 473 6405 Helsinki 16.12.2024

Nuoremman panostajan kurssi AEL Amiedu Oy Taitotalo 050 354 6885, 050 473 6405 Keuruu 19.–23.8.2024

Nuoremman panostajan kurssi JT–Koulutus 044 0556669 Rusko 23.–27.9.2024

Vanhemman panostajan kurssi AEL Amiedu Oy Taitotalo 050 354 6885, 050 473 6405 Helsinki 30.–25.10.2024

Ylipanostajan kurssi AEL Amiedu Oy Taitotalo 050 354 6885, 050 473 6405 Helsinki 30.–25.10.2024

Räjäytystyön vastuuhenkilön kurssi AEL Amiedu Oy Taitotalo 050 354 6885, 050 473 6405 Keuruu 16.–20.9.2024

Räjäytystyön vastuuhenkilön kurssi Forcit Consulting Oy 010 832 1353 Helsinki 7.–11.10.2024

Räjäytystyön vastuuhenkilön kurssi AEL Amiedu Oy Taitotalo 050 354 6885, 050 473 6405 Helsinki 16.–20.12.2024

ADR-, TNA ja ammattipätevyyden koulutukset (järjestäjänä Forcit Consulting)

KURSSIN NIMI

ADR täydennyskoulutus 2020 lähi- ja valvottu verkko-opetus 010 832 1353 Helsinki 24.6.2024

Raskaan kaluston ennakoiva ajaminen ja ajovalmius

010 832 1353

ADR Peruskurssi P/YP 010 832 1353 Helsinki 1.–4.7.2024

Digitaalisen ajopiirturin käyttö sekä ajo- ja lepoajat kuljetusalalla

ADR täydennyskoulutus 2020 lähi- ja valvottu verkko-opetus

Raskaan kaluston ennakoiva ajaminen ja ajovalmius

Kuorman varmistaminen

ADR täydennyskoulutus 2020 lähi- ja valvottu verkko-opetus

Säiliökuljetusten erikoiskurssin (ES) koulutusohjelma

Raskaan kaluston ennakoiva ajaminen ja ajovalmius

Kuorman varmistaminen

ADR täydennyskoulutus 2020 lähi- ja valvottu verkko-opetus

TNA turvallisuusneuvonantajan koulutus

ADR Peruskurssi P/YP

Raskaan kaluston ennakoiva ajaminen ja ajovalmius

Kuljetusalan säädökset

Raskaan kaluston ennakoiva ajaminen ja ajovalmius

010 832 1353 Helsinki 5.7.2024

010 832 1353

010 832 1353

Tampere 8.7.2024

Tampere 9.7.2024

010 832 1353 Tampere 10.7.2024

010 832 1353 Helsinki 12.7.2024

010 832 1353

010 832 1353 Tuusula 20.7.2024

010 832 1353 Helsinki 24.7.2024

010 832 1353 Tuusula 27.7.2024

010 832 1353 Helsinki 29.–31.7.2024

010 832 1353 Helsinki 5.–8.8.2024

010 832 1353 Tuusula 10.8.2024

010 832 1353

Tampere 14.8.2024

010 832 1353 Tampere 15.8.2024

ADR täydennyskoulutus 2020 lähi- ja valvottu verkko-opetus 010 832 1353

Säiliökuljetusten erikoiskurssin (ES) koulutusohjelma

ADR täydennyskoulutus 2020 lähi- ja valvottu verkko-opetus

Raskaan kaluston ennakoiva ajaminen ja ajovalmius

Raskaan kaluston ennakoiva ajaminen ja ajovalmius

ADR Peruskurssi P/YP

ADR täydennyskoulutus 2020 lähi- ja valvottu verkko-opetus

ADR täydennyskoulutus 2020 lähi- ja valvottu verkko-opetus

ADR täydennyskoulutus 2020 lähi- ja valvottu verkko-opetus

Tampere 16.8.2024

010 832 1353 Helsinki 19.–20.8.2024

010 832 1353 Helsinki 26.8.2024

010 832 1353 Tampere 2.9.2024

010 832 1353

010 832 1353 Helsinki 9.–12.9.2024

010 832 1353 Tampere 20.9.2024

010 832 1353 Tuusula 28.9.2024

010 832 1353 Helsinki 30.9.2024

Loppuvuoden kurssit löytyvät osoitteesta: kuljettajaopetus.fi/forcitconsulting

Kesäristikko

KESÄRISTIKKO VIHJEET

Ristikossa käytetyt sanat liittyvät räjähdysaineisiin ja maanalaiseen tai maanpäälliseen louhintaan.

Pystyyn

1. Asetellaan hellästi reikään

2. FORCITin ällösöpöimmän värinen räjähdysaine

3. Junnun laulussa kylän suurin

4. Näitä löytyy maanalta ainakin Hiluxin, omakotitalon ja kerrostalon kokoisena

5. Voi muodostua monista eri asioista ja tätä löytyy usein tunnelista

8. Ei metallibändi vaan se tunneleissa käytetty aine

9. Näitä saa eri kokoisena ja paksuisena

10. Voidaan käyttää kampaamoissa tai räjähteissä

13. Rikkikiisua

15. Ääntäkin nopeampi

17. Kuplia muodostava lisäaine

18. Kaupunki Perämeren rannalla + itti

21. Kaikilla raoilla on tällainen

22. Kemiitti ja majoneesi ovat kumpikin näitä

Vaakaan

6. Määrää päällekkäisten nestemäisten aineiden järjestyksen

7. Uusinta uutta FORCITilta paineen keston osalta

11. Mikä mineraali on SiO2?

12. Lähes Fazerin karkkipussi

14. Kaivostyökalu ja Pyhäsalmen kaivoksen ruokala

16. Perunasalaatin kaverina Wappuna

19. Pullauttelee isoja munia

20. Porakoneiden oheistuote, voidaan käyttää analyysissä

21. Sattuu, jos lähtee irti, työmaalla näitä ei haluta nähdä

23. Reikien tulppauksessakin käytetty nuotiopaikan kuningas

24. Hampaissakin on tälläinen

Turn static files into dynamic content formats.

Create a flipbook
Issuu converts static files into: digital portfolios, online yearbooks, online catalogs, digital photo albums and more. Sign up and create your flipbook.