Fin James_Architecture Portfolio - 2023

Page 1

FIN JAMES Architectural Portfolio

2 Fin James

4

Gorden Rec Center

College Recreation center

Sandhills Community College - 2021

14

3 Piece set house

Residential 2 bedroom home

Appalachian State University - 2021

20

The LATERCULUS

Store front design - NCMCA Masonry competition 2022 winner

Appalachian State University - 2022

26

The Urban Rider

Mobile tiny house

Appalachian State University - 2022

32 2021-2023

Miscellaneous

Combined work of App state and Sandhills

40 Personal works

3 Table of contents
4 Fin James
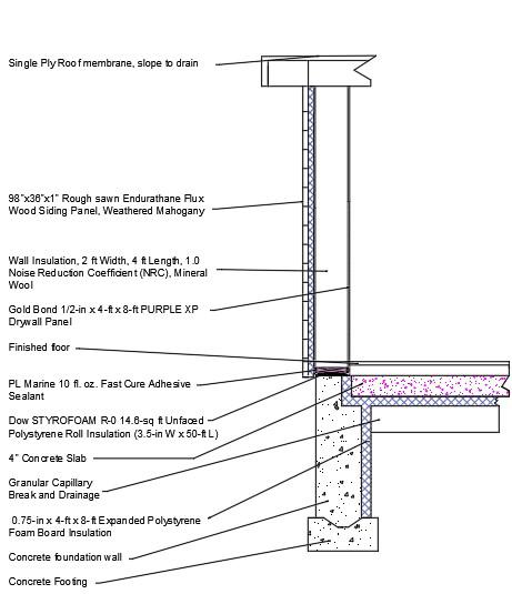
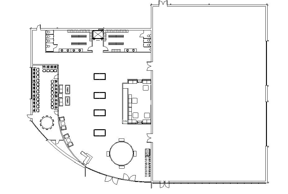
5 Gordon Recreation Center

Pinehurst, North Carolina - 2021

Professor - Lindsay McManamon

The Gorden Recreation Center was built for Sandhills Community College as a theoretical purposed building. It combines the style of the traditional Sandhills brick with accenting concrete with more of a International look. Following newer built buildings such as Little Hall the Gorden Rec Center utilizes a large curved glass curtain wall allowing it to match the style of Sandhills while remaining unique. Many of the buildings at Sandhills are named after someone who donated to the school or a significant member of the board of trustees, and I choses Vincent R. Gordon a member of the Sandhills Board of trustees

6 Fin James

Site analysis

Sandhills Has been trying to expand for sometime, but with owners of surrounding properties asking for high sums for their land the school has not been able to purchase it. During this project I looked into locations Sandhills owned already but wasn’t utilizing. I choose the land between the parking lot of the preforming art center and the main road along Sandhills. This location had very flat land and plenty of room, and its location allowed it it utilized the neighboring parking lot.

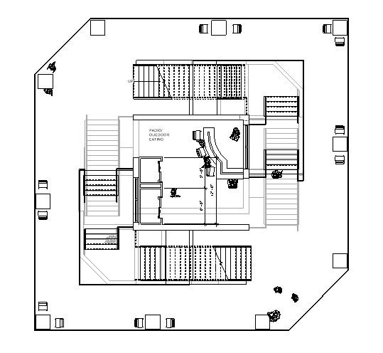
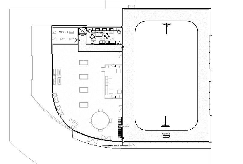
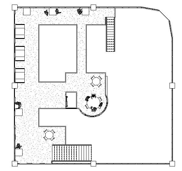
Gordon Recreation Center

Design Concepts

Concept 1 Uses a rounded backroom connected to the main curved glass curtain wall

Concept 2 removes the rounded room in favor of rectangle design to cut down on unnecessary corners and round walls

Concept 3 seeks to reduce excess space by lowering the Sq footage of the main lobby.

Concept 4 increases the Sq footage and brings down the computer lab rounding its closet to make room for a emergency

Concept 5 brings it all together adding on to concept 4 adding a second level study room along with a second story track above the basket ball court in the gym

8 Fin James
9 Gordon Recreation Center
10 Fin James
11 Gordon Recreation Center
12 Fin James
13 Gordon Recreation Center
14 Fin James
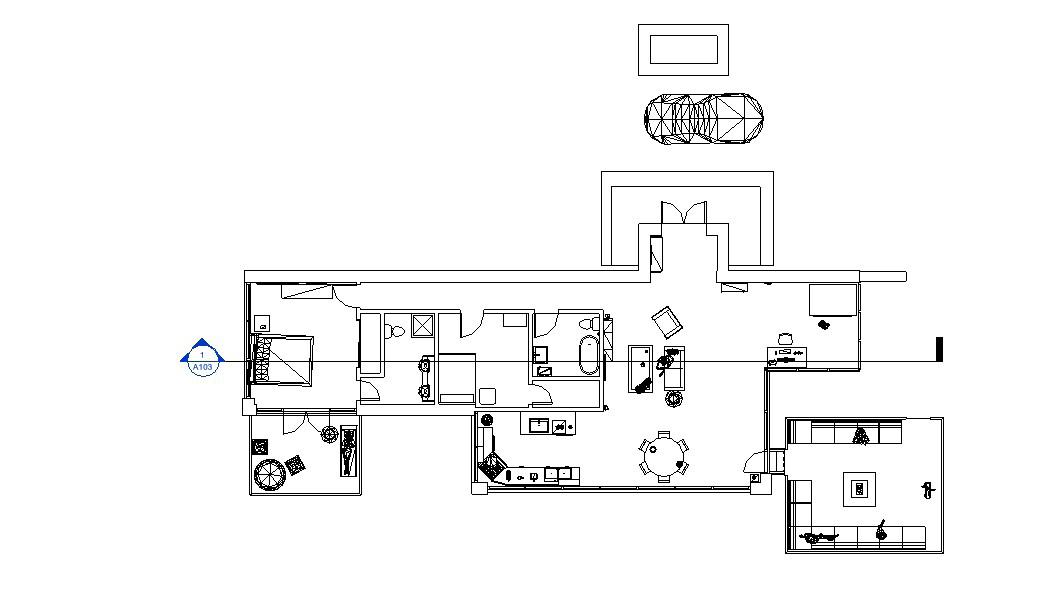
15 3 piece set house
16 Fin James

The 3 piece set house is an international style two bedroom design. Located on steep slope the large curtain wall system allows for beautiful views. The design is aimed for a young couple with a guest bedroom. The single story design allows for Live in place design as the occupants grow the home will allow for easy accessibility

The design aims to mix the flow from inside and out, making the Occupants feel more directly connected to the natural world outside. The large use of Curtain walls allow for much natural light and passive heating to reduce cost. The small solar system on the roof helps minimize power usage

17
3 piece set house
18 Fin James
19 3 piece set house
20 Fin James
21 The LATERCULUS

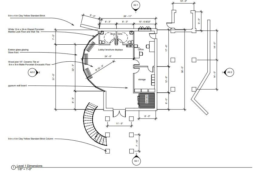
The LATERCULUS is a proposed store front design for the NCMCA 2022 Masonry Competition for App State and N.C. State. The name comes from the Latin term for brick Laterculus I choose the name after designing the intentional concept based off the roman Colosseum . The project was a group work, one of our other concepts was based of the traditional Gothic Architecture. The final design combined both the designs of the first two concepts.

22 Fin James
The LATERCULUS store front, Masonry museum Professor - Qingqing Sun
23 The LATERCULUS
24 Fin James
25
Early design concept The LATERCULUS
26 Fin James
27
The Urban Rider

Site drawing and analysis

Site was chosen for Secluded area

Next to a park for activities

Roads aren’t busy

28 Fin James
29 The Urban Rider
30 Fin James

Early design concepts

31
Urban Rider
The

Ranger HQ/ Visitor Center - 2022

Located in Arizona as a proposed visitor center and ranger HQ for a new national park. The design is based of the natural landscape of the park. The use of colored adobe brick helps to intimidate natural stone along with the ability to absorb heat during the day and release it at night. The environment of the proposed park has intense sun and heat the adobe helps reduce the load on the HVAC.

32 Fin James
Professor -Sean Krause

Site Analysis

The layout of this site has 8 individual camping grounds, 4 camping cabins, and 2 slacking sites. Slacking in a sense is tight rope walking on a less tight rope while connected to a harness, outside usually in rocky regions.

33
Miscellaneous

Tower sky bar - 2022

The Final Project for a design studio class, the teacher wanted us to explore our artistic and creative process and make something for fun. I based my idea on square design of minecraft a game I played as a kid and a sky bar from Bob’s Burgers called “Pie in the sky”

I really enjoyed designing this project we had much freedom, allowing us to try new ideas we might never have felt possible to try

34 Fin James
35 Miscellaneous
36 Fin James

Topographical maps made at Sandhills Community College. The top is our mid term project of Sandhills Baseball field

37 Miscellaneous Feet 0 30 60 Feet 0 20 40
38 Fin James
39 Miscellaneous
40 Fin James
41 Personal Works
42 Fin James
43

Traditional Viking Seax dagger - A utility dagger for everyday use. In their day a Viking would never go anywhere with out their Seax dagger

44 Fin James

The phrase on the blade is a saying from “Game Of Thrown s” In old Norse

45
Made with African black wood- Metal is high mid Carbon steel
46 Fin James
Ancestral Camping cooking knife - Designed after Viking style cooking blades.

Made with Cocobolo wood - Metal High carbon steel

The phrase on the blade is the ancestral origins of my last name.

Fifield - A place of five hides. In early Norse English

47
48 Fin James

Turn static files into dynamic content formats.

Create a flipbook
Issuu converts static files into: digital portfolios, online yearbooks, online catalogs, digital photo albums and more. Sign up and create your flipbook.