

MILL BARNS

Experience the epitome of country living in this enchanting stone-built home, where beautiful surroundings and timeless elegance converge. Situated in a stunning country location within the charming hamlet of Shotleyfield, this exceptional period property is set within approximately six acres of private gardens and paddocks.
Mill Barns provides exceptionally spacious and versatile accommodation, with four bedrooms, five reception rooms and a generously sized kitchen and breakfast room. Gorgeous views over the delightful gardens and the Shotley Burn running along the boundary create a magical setting. It’s perfect for the equestrian enthusiast or those wishing to enjoy spacious surroundings and the pleasure of country living. Mill Barns is a rare gem and provides the perfect balance of spacious living, country charm and privacy, all set in a beautiful location.
Approached via a private gravel driveway, with ample parking, two garages and a workshop, the delightful front walled garden provides a warm welcome. Spread over two light-filled floors, the generous and flexible accommodation is as follows:
Accommodation in brief
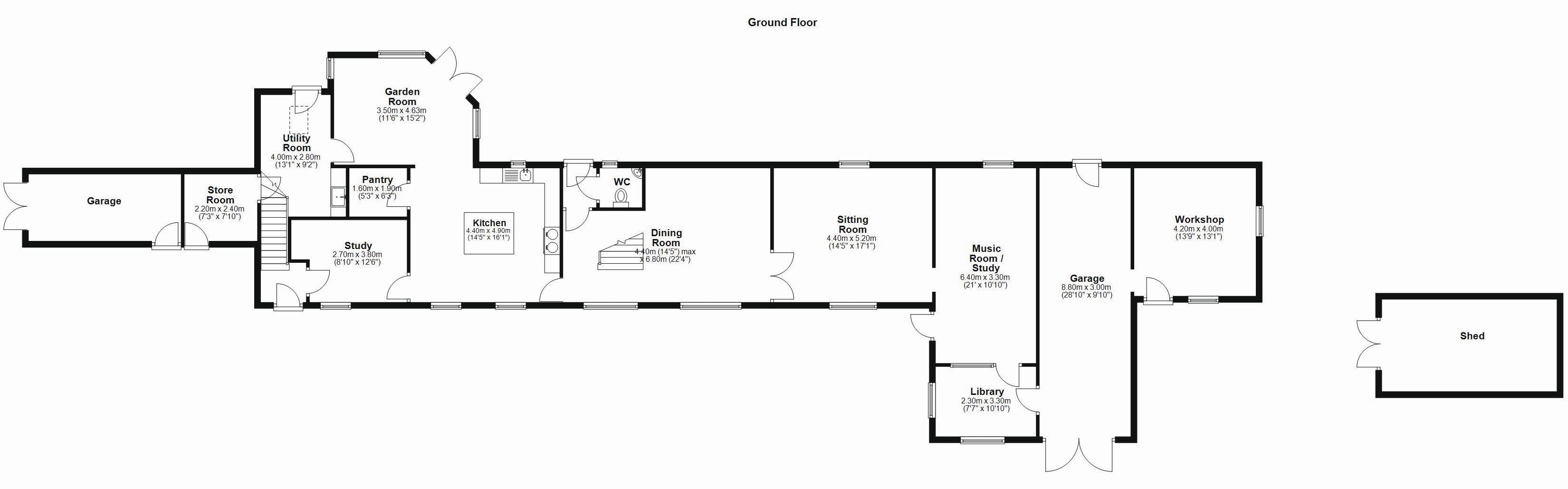
Ground Floor
Reception Hallway/Dining Hall | Sitting Room | Kitchen/Garden Room | Library | Music Room | Study | Pantry | Utility Room | WC/Cloakroom | Boot Room
First Floor
Principal Bedroom Suite with Dressing Area and Ensuite Bathroom | Three Further Bedrooms | Bathroom | Shower Room
Outside
Two Garages | Workshop | Steel Barn




Ground Floor
On stepping inside Mill Barns, you are welcomed by an impressive reception hall filled with character and charm. Currently used as a dining hall, this wonderful room has oak floors and dressed stone arched windows, setting the scene for entertaining in style. Imagine hosting Christmas in this fabulous room.
The charming sitting room exudes warmth and character. A wood-burning stove is perfect for cosy evenings, whilst dual-aspect windows frame picturesque views of the surrounding gardens. The music room offers a welcoming space to gather with family and friends and enjoy your favourite melodies or unwind with some peaceful solitude. It flows seamlessly into the adjoining library—a tranquil retreat ideal for reading or quiet relaxation.
The kitchen is beautifully appointed with an extensive range of fitted cabinetry, granite worktops and a central island, including the addition of a timeless Aga. The welcoming garden room and breakfast area transition effortlessly from the kitchen, where large windows frame captivating views of the surrounding woodland and gardens. French doors open directly onto the outdoor patio, creating a harmonious connection between indoor and outdoor living, perfect for relaxed family mornings enjoying a coffee. Completing the ground floor is a dedicated study, a practical pantry, a convenient WC, a boot room and a well-equipped utility room, offering functionality and flexibility for modern family life.
First Floor
Ascend the magnificent oak staircase to the first floor and the spacious landing, where we discover a further library area. The principal bedroom is complete with a dressing area and a stylish en-suite bathroom. Three further charming bedrooms, a bathroom and a shower room complete the first-floor accommodation.


















Outdoor Space
Situated in a stunning countryside location, this exceptional home offers beautiful outdoor space and total privacy. A pretty, walled front garden welcomes you, while the rear features mature gardens, woodland, an orchard and a charming burn along the boundary, creating a truly magical setting. The sheltered terrace is perfect for al fresco dining or relaxing with views over the gardens. With approximately six acres of grazing land, there’s plenty of space for livestock or equestrian use. There’s also a generous driveway, two garages, a workshop, a steel barn and a programmable electric vehicle charger.
Location
Mill Barns is centrally located between Corbridge, Hexham, Newcastle and Durham. In the nearby town of Consett, you’ll find a wide array of shopping and recreational services, whilst Corbridge and Hexham provide a wider selection of amenities. The historic cities of Durham and Newcastle are easily accessible from Shotleyfield, offering a wealth of professional, cultural, educational, and recreational amenities and excellent independent schools.
Within close proximity to the North Pennines Area of Outstanding Natural Beauty, including Derwent Reservoir, the location provides the opportunity for picturesque riverside strolls, cycling routes, outdoor adventures and nature-filled escapes.
Distances
Corbridge - 10 miles | Hexham – 13 miles | Newcastle City Centre - 18 miles | Consett – 4.5 miles
Nearest Stations: Stocksfield – 6 miles | Newcastle - 16 miles
Nearest Airport: Newcastle – 19 miles | Durham – 19 miles






Services
Mains Water and Electricity | Oil Central Heating & Hot Water | Water Treatment Plant Drainage
These services have not been tested and no warranty is given by the agents.
Tenure: Freehold
Local Authority: Northumberland County Council
Council Tax Band: G
EPC Rating: E
Mobile signal: O2, EE, Three Broadband: Download Speed 61 Mbps | Upload Speed 9 GB
Viewing Arrangements: Via the vendors’ agent: Sarah Tuer - Fine & Country Newcastle and Northumberland
The Estate Office, Rock, Alnwick, NE66 3SB
Tel: 01665 200080
Email: northumberland@fineandcountry.com
Agent’s Notes to Purchaser:
Although we endeavour to furnish precise information, it is strongly recommended that buyers undertake their own thorough due diligence. The onus for verifying critical details, including but not limited to floods, easements, covenants, and other property-related aspects, lies with the buyer. Our listing information is presented to the best of our knowledge and should not be the sole basis for making purchasing decisions. None of the services, systems, or appliances listed in the details have been tested by us, and we do not assure their operating ability or efficiency. Buyers are encouraged to independently assess and verify all relevant information before making any commitments.





Agents notes: All measurements are approximate and for general guidance only and whilst every attempt has been made to ensure accuracy, they must not be relied on. The fixtures, fittings and appliances referred to have not been tested and therefore no guarantee can be given that they are in working order. Internal photographs are reproduced for general information and it must not be inferred that any item shown is included with the property. For a free valuation, contact the numbers listed on the brochure. Printed 23.06.2025

FINE & COUNTRY
Fine & Country is a global network of estate agencies specialising in the marketing, sale and rental of luxury residential property. With offices in over 300 locations, spanning Europe, Australia, Africa and Asia, we combine widespread exposure of the international marketplace with the local expertise and knowledge of carefully selected independent property professionals.
Fine & Country appreciates the most exclusive properties require a more compelling, sophisticated and intelligent presentation –leading to a common, yet uniquely exercised and successful strategy emphasising the lifestyle qualities of the property.
This unique approach to luxury homes marketing delivers high quality, intelligent and creative concepts for property promotion combined with the latest technology and marketing techniques.
We understand moving home is one of the most important decisions you make; your home is both a financial and emotional investment. With Fine & Country you benefit from the local knowledge, experience, expertise and contacts of a well trained, educated and courteous team of professionals, working to make the sale or purchase of your property as stress free as possible.