2025 WORK SAMPLE NEW

Page 1


F E R N A N D O Z A V A L A

ARCHITECTURAL DESIGNER

SELECTED WORKS

2019 - 2024

1. ‘LA ISLA’ URBAN VILLAGE | 4

TPG Design Studio | Rejuvinating Community Shopping Complex

June 2022 - June 2023 | Cancun, MX

Alec Zaballero

2. 160 5TH AVE ROOFTOP COMP. | 12

TPG Design Studio | An Event Space Dedicated to Science

December 2021 - Present | New York, NY

Ray Gavargis

3. PALACIO DEPT. STORE FACADE | 20

TPG Design Studio | Engaging Mall Entrance

May 2023 - Present | Monterrey, MX

Vlad Zadneprianksi

A C A D E M I C P R O J E C T S

5. URBAN ECOSCAPE | 32

4. FOG OASIS | 26

Thesis Studio I: Arch 4020 | Mutable Architecture

January 2021 - May 2021| Lima, Peru

Professor Karen Van Lengan + Alex Yuen

Research Studio III: Arch 4010 | Non-Hierarchical Architecture

August 2020 - December 2020 | Philadelphia, PA

Professor: Robin Dripps

7. EVOLUTION | 44

6. NEXUS | 38

Research Studio II: Arch 3020 | Rethinking Residential Life at UVA

January 2020- May 2020 | Charlottesville, VA

Professor: Devin Dobrowolski

Housing Studio II: Arch 2020 | Radical Domesticities

January 2019 - May 2019 | Charlottesville, VA

Professor: Gonzalo Alonso

O T H E R P R O J E C T S

8. CAST-LESS: GENERATIVE

ORTHOSIS

| 50

Robotic Behavioural Fabrication: Arch 5500 | 3D Immobilization Systems

August 2020- December 2020 | Charlottesville, VA

Professor: Ehsan Baharlou

10.

9. ROCKITE

CASTING

LIGHT STUDY | 54

Independent Study | Material Exploration

December 2019| Charlottesville, VA

Personal

PRECEDENT STUDY INVESTIGATION | 58

Independent Study | Modeling Exercise

August 2019 | Charlottesville, VA

Personal

I N T R O D U C T I O N

I am an aspiring architect with a lifelong dream of using my perspective and passion for the universal language of design in order to not only generate compelling spatial experiences, but to foster a sense of place, belonging, wayfinding and ultimately enhance human health and wellbeing, addressing a number of critical issues at the forefront of the architectural discpline, such as water scarcity, food security, climate change, social and environmental equity, etc. The epitome of my design work has developed through thinking of architecture as a service, as a solution, or as an agent of change, through interdisciplinary, sustainable and human-centered design, at the intersection of nature, human biology, and the built environment in order to foster human health and wellbeing. Moreover, really looking at how certain factors in the built environment can have an effect on one’s physical and mental state. Within my experience in academia, I have become enriched by mew landscape urbanistic strategies that have berthed a wave of design thinking that prioritizes resilience and interdisciplinary, dynamic, process-based architecture within the public & private realm in order to garner community engagement and harmonious co-existence. Thus, I have tried to implement these strategies within my professional work as much as possible at multiple scales, creating transformative, sustainable and biophilic designs in order to shape an environment that embraces change and adaptation. Additionally, I believe my multiculural upbringing has served as a foundation for my designs, integrating lifelong economic, political and socio-cultural perspectives. After two years of real world professional experience following a four-year architectural bachelors degree, I have equipped numerous professional and academic experiences of different sizes, scopes and specializations (retail, commercial, residential, civic design, graphic design, visualization, 3D modeling, drafting, construction, research, etc.) that has helped solidify a certain proficiency along all design phases, manifesting a very diversified and fluid design ethos. My goal is to further expand my knowledge on these growing strategies and bound-less generative architectural systems, technologies and methods that are at the cutting edge of the architectural discipline (primarily focusing on human health, equity, and sustainability) to hopefully discover ways to har-

The core of this project revolves around the restoration and rejuvination of an existing urban shopping complex located on the hotel strip of Cancun, Mexico. This approximately 300,000 square foot, multi-scale undertaking consists of three different project scopes, exterior facade renovation, front green slow street/promenade renewal, and the ground-up development of the interior shopping plaza & interior courtyard. As a whole, we aimed to fully transform the shopping experience through a hierarchy of dynamic, high-end contemporary elements blending together to not only pay homage to the local Mexican climate tropical boime, but to berth an urban landscape in and of itself, an ‘upscale jungle oasis,’ if you will. The project team consisted of select members of the TPG retail design team, including managing executive Alec Zaballero, project manager Eladio Victoria, and senior architect Ana Misenas. My role consisted of contributing certain design opinions, as well as producing master 3D model, renderings, visualizations, CAD drawings and details. Every depiction shown henceforth, with the exception of existing base plans or column grids, is work of my own, that I have chiefly constructed, developed, and submitted.

FACADE DESIGN

The design strategy behind the facade restoration was centered around the development of a biomimetric language evoking the surrounding natural landscape while simultaniously guiding the user through a mix of angular and curvalinear elements, driven by a series of front-lit rhythmic, nested, polished metal verticals backed by perforated bronze panels. Effectively, this typology becomes the unified juxtaposition that not only draws a statement towards the facade of the urban complex, but acts as the connective tissue between the interior and exterior languages.

PROPOSED FACADE RENDER | FRONT ENTRANCE NIGHT VIEW

FACADE EAST ELEVATION

RENDER/DRAWING COLLAGE

1’ = 1/200”

- New four meter sidewalk

- Extended pedestrian walkway

- New three-lane transit streetway

- Enriched landscaping through planters, permeable pavers, & vegetation

- New three meter wide cobblestone roadway

- New green seating modules

1’ = 1/150”

SCALE:
SCALE:

GREEN SLOW-STREET DESIGN

For the restoration of the green slow street/promenade, we wnated to re-infornce the human scale, by adding certain pedestrian elements that eased the gradient or transition from automotive traffic to human traffic. This consisted of thoughtfully composed and placed planter modules, seating areas, green areas, and the integration of a slow cobblestone roadway that bleed into these green areas through the use of permeable pavers and material considerations. In a sense, these gestures create a visual threshold and balance between the on-foot vs transit experience (pickup-area, parking and valet).

PROPOSED GREEN SLOW-STREET RENDER | AERIAL VIEW
SLOW-STREET RENDER | STREET VIEW

INTERIOR PLAZA DESIGN

The genesis of the interior plaza design starts with building upon the exterior facade typology at a smaller, private scale, by establishing the more angular, aggressive visual forms through the harmonious implementation of neutral piers, a unified storefront fascia vocabulary, an island courtyard/lounge with a decorative stair, a moat, new orthogonal rooftop canopies with wooden slats/louvers, and more intentional, floor finishes (terrazo and herringbone tile pattern composition), as well as local flora and fauna.

PROPOSED INTERIOR SHOPPING COMPLEX FIRST FLOOR FINISH PLAN (SCALE: 1’ = 1/100”)

PROPOSED INTERIOR SHOPPING PLAZA RENDER | ENTRANCE VIEW

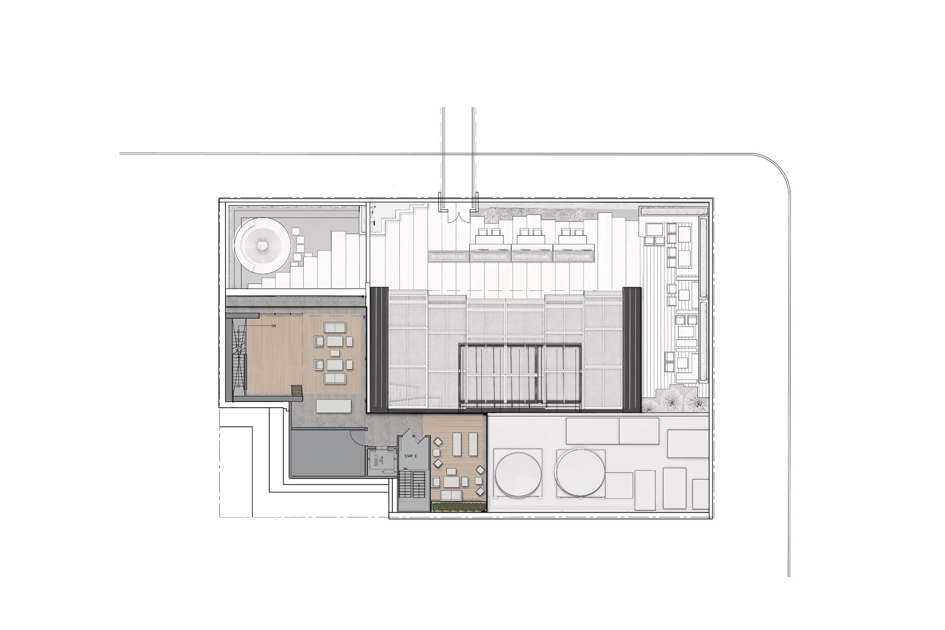
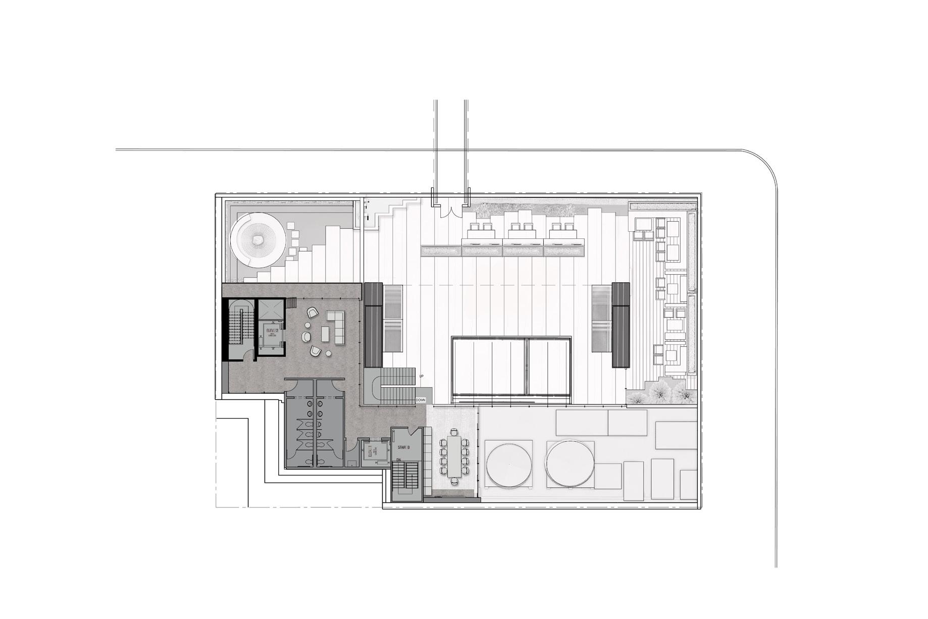
1 6 0 5 T H A V E R O O F T O P E V E N T S P A C E

As the team behind the winning design proposal for the Simons Foundation Rooftop Competition, our vision for the approximately 10,000 sq ft space began with the potential to cultivate, extend, and elevate the scientific values that the Simons organization (a large physics and mathematics research institute founded by Jim Simons himself) is built on. Taking inspiration from the Salk Institute by Louis Khan, we wanted to optimize programmatic function, social collaboration and public engagement opportunities, which are incredibly paramount within the scientific community, by establishing a flexible, transformative, and memorable ‘urban scientific campus in the sky,’ capable of seamlessly undertaking a multitude of different activities and users at different scales & types. Primarily, the site boasts a modular retractable roof pavilion as its centerpiece. Additionally, the transformative space is supported by various public & private services surrounding it, such as meeting spaces, lounge areas, gardens equipped with modular planters & retractable bleachers, and exterior terraces. In turn, the space serves as a microcosm of the guiding principles that are fundamental to the identity of the Simons Foundation, and the discipline of science overall. Lastly, all drawings, visualizations and renderings shown hereafter pertaining to this project have been chiefly produced and developed by myself, with the exception of the building location city base map & any existing elevations of the building.

Located in Manhattan’s central Flatiron neighborhood, the primary visual form of the site came as a result of the carved allowable volume and zoning study due to the building’s location within a historic district, and thus its inability to be seen from street level, and its legal obligation to abide by New York City’s setback rule so as to not block the sun’s path from sky to sidewalk. The winning team for the proposal included a select group from within TPG’s retail design team, including myself, along with managing executive Alec Zaballero, creative director Eladio Victoria, and project manager Ray Gavargis. My role within the team included voicing several important design decisions, as well as creating and developing master model, zoning and site studies, construction drawings, as well as coordinating several structural and MEP matters concerning the adjacent Perkins Eastman bridge & bridge landing project.

BUILDING LOCATION ZONING STUDIES: SKY EXPOSURE AND SIDEWALK SITELINE PLANES

ZONING STUDIES: ALLOWABLE BUILDABLE AREA PLAN DIAGRAM

(SCALE: 1’ = 1/50”)

MASSING STUDY: SKY EXPOSURE PLANE

MASSING STUDY: SITELINE

PLANES

MASSING STUDY: ALLOWABLE VOLUME

Back of house relocation & egress

Multi-purpose ‘campus’ space

Focal transformative space

Exterior zen gardens

Perkins Eastman sky bridge (out of scope)

4

3 MASSING STUDY: PROGRAMMATIC INTERVENTION

PROPOSED EVENT SPACE PERSPECTIVE SECTION RENDER ‘B’

MULTI-PURPOSE

PAVILION RENDER | ENCLOSED LOUNGE

MULTI-PURPOSE PAVILION RENDER | OPEN SEMINAR/SYMPOSIUM EVENING VIEW

EVENT SPACE RENDER | 12TH FLOOR CONFERENCE/MEETING ROOM VIEW

S T O R E F A C A D E

Located within the heart of Monterrey, Mexico, the narrative behind this interior department store facade project revolved around harkening back to the roots of this city’s rich history, recalling and celebrating the distingushed industrial and natural elements that define it, and really set it apart; mainly regarding the “canon de la huasteca,” a beautiful natural canyon and cliffside landscape that has become somewhat of an icon of industry and manufacturing for the city, characteristics that this city proudly hangs its hat on. Thus, as the scope of the project consited of a flat, blank vertical plane, the principal idea was to add depth through an extruded, sharp steel and perforated panel system that abstractly resemble the canyon’s cliffside, contrasted and grounded through a trim/champher frame that really defines an edge condition, and unites both the first and second floors and interior atrium. Furthermore, the frame was accentuated through the use of back and cove lighting following its spatial pattern, and adding another dynamic element to the facade system. Overall, the facade aims to evoke the special character and history of Monterrey at large, while also showcasing an elegant, elevated modern visual language that can co-exist with Palacio’s mandatory marketing elements (signage and display).

FACADE SECTION-ELEVATION RENDER | FRONT INTERIOR VIEW

The design team for this project included a select group from within TPG’s retail design team, including myself, along with managing executive Alec Zaballero, creative director Alejandro Gala, and project manager Vlad Zadneprianksi. My role within the team included voicing and experimenting with different design schemes, including the finalized scheme, as well as creating and developing master model, renders, material boards, client presentations, and construction drawings. Lastly, all drawings, visualizations and renderings shown hereafter pertaining to this project have been chiefly produced and developed by myself, with the exception of the whole deprartment store base civil plan below.

PROPOSED PALACIO FACADE/ENTRANCE COURTYARD

EXISTING MALL ‘PALACIO’ SCOPE

LARGE SCALE SITE/CIVIL PLAN

FACADE ENLARGED LONGITUDINAL SECTION ‘A’ SCALE: 1’ = 1/10”

FACADE MODULE PANEL DETAIL ‘A3’ & ‘B1’

FACADE MODULE PANEL DETAIL ‘D1’ & ‘D2’

FACADE TRIM & CHAMPHER DETAIL

Initially, the design conversation was driven by a more monolothic, rough, assymetrical language that screams heavy, industrial and geometric. However, due to structural changes and the addition of a fake, drop cieling for HVAC purposes behind the facade, the design newly called for a lightweight, self-sustaining scheme. Thus, a frame and grid system made up of low-weight stainless steel and bronze mesh panels was proposed. Moreover, a hierarchy of panel extrusion and indentation was developed to create a rhythmic gradient from frame to flatter panels, to more angular and perforated, lightweight central panels, manifesting a ‘metal curtain’ of sorts. Lastly, a great portion of the challenge with this project was the coordination in scopes with the adjacent mall renovation project by Gensler, right up to the facade plane. Thus, a concerted effort was made to also be mindful of how their design clashes, as well as the relationship between both visual languages.

BRONZE

1. INITIAL SKETCH: ASSYMMETRICAL INDUSTRIAL MODERN GRID

2. 3D AGGREGATION & ORTHOGONAL EXTRUSION

3. VERTICAL EXTENSION & EXTRACTION

4. GEOMETRICAL PERMEABLE

GEOMETRICAL & PERMEABLE INTEGRATION

5. SUBTLER & LIGHTER TYPOLOGY

6. ORGANIC & ANGULAR CONSIDERATION

INSPIRATION SKETCH: MONTERREY CAVESIDES

Our recent and ongoing pandemic has brought with it both pros and cons into our globalizing world. For Lima, Peru, it has widened the socioeconomic disparities among the lower income areas on the outskirts of the city and has highlighted the country’s lack of infrastructure, healthcare policies, proper eduction, and ecological consideratons. However, the pandemic has also springboarded and fostered an up-and-coming architectural discourse regarding resilient, adaptive and sustainable residential spaces that has taken off in other parts of the world. I am hoping to take those newly popularizing principles and apply it to the needs of the Peruvian people, creating a catalytic project in efforts to not only provide systemmatic change, but to uplift the Peruvian culture in a depraved and disconnected landscape. In effect, I am creating two distinct conditions that create a permanent hydro-infratructural process in response to the water scarcity issues of the city, an issue that has been exaxurbated by the Covid-19 pandemic. The first typology, the agro hub, looks to appropriate existing but rudimentary technology of the fog catcher mechanism at a larger scale within local dense ecological areas called ‘lomas,’ to maximize the amount of water captured and used for urban agricultural purposes, and create six distinct moments that activate and establish the periphery of the neighborhood. The second typology looks to focus on the social dimension of water, serving as a point of water collection, distribution and access to the majority of the neighborhood population, as well as providing potential spaces that address the more social issues of the city.

DISTRICTS W/MOST CONFIRMED CASES

DISTRICTS W/LEAST CONFIRMED CASES

CITY ‘LOMAS’ ECO LOCATIONS VS DISTRICT INFORMAL URBAN FABRIC PROXIMITY

1. LOCAL CONTEXT CITY

NEIGHBORHOOD HYDROLOGICAL HUBS | SYSTEMATIC CONFIGURATION

SCALE FOG-CATCHING

BLEED TO ‘AGRO HUB’

2. WATER COLLECTION & DISTRIBUTION 3. WATER PROCESSING & ACCESSIBILITY 4. MATERIALIZATION & HIERARCHY OF HYDRO HUBS

A: Agro Hub
B: Social Hub
HUB

LOCAL NEIGHBORHOOD SITE RENDER | WATER EVOLUTION FROM MOUNTAIN TO VALLEY AGRO

EDUCATIONAL SPACES

RECREATIONAL SERVICES

MEDICAL FACILITIES

CULTURAL RETAIL SPACES

LOCAL MARKET SPACES

SOCIAL HUB PERSPECTIVE SECTION & PLAN CUTS (ALL LEVELS)

The core of this project serves as a critique of normal city conventions within the context of a global pandemic, climate change, and an everchanging world, presenting a spatial proposition that highlights the hidden hydrology and ecological framework behind the modern metropolis of Philadelphia. In escence, nature acts as a model of performance, as the building itself becomes part of the hydrological cycle of the city, through a grand accessible green roofscape and permeable surfaces acting as retention gardens, cleaning, filtering and recycling water. In turn, hydrology, an element that is normally hidden in most projects, becomes the fundamental focal point of this intervention, acting as the essential driver of engagment and activity in the public realm, through permeable geometries that shape the flow of water into a spectacle, while also functionally serving as an infrastructural stormwater drainage management system. Additionally, the facade plays a critical role in the aesthetic and interactive qualities of the project, as the water flow occurs primarily on the perimeter, performing as an ambiguous, flexible and dynamic threshold, blurring the lines between interior and exterior. Furthermore, four atriums make up hybrid, flexible performance spaces that respond to the needs of the academic institution, while four subtractive pockets on the peripheries of the site create spaces for the city to organically flow in. Moreover, several interior mezzanines and half levels allow for a more private, individualized rehearsal spaces. Overall, the project serves as the connective tissue between the city’s civic and public amenities of the built environment and its constant, continuous natural environment. It is the culmination of the academic and the natural, and water acts as the guide for circulation, movement and congestion. U

CLEAN, FILTERED AND RECYCLED WATER FEEDING RESERVOIR OR STORMWATER DRAINAGE SYSTEM

DIAGRAMMATIC AXO COLLAGE 2ND LEVEL CUT

DIAGRAMMATIC AXO COLLAGE WATER FLOW

1. SITE EXTENSIONS

INTERIOR RENDER | THEATRE COLLAGE VIEW

EXTERIOR RENDER 2 | ATRIUM COLLAGE AERIAL VIEW

2. CARVING PEDESTRIAN ENTRY
3. PRIMARY SOLAR STUDY

STUDY

4.

SECONDARY SOLAR STUDY

EXTERIOR RENDER | ATRIUM COLLAGE VIEW

5.

EMBEDDED CIRCULATION

GREEN ROOFTOP RENDER| ROOFSCAPE COLLAGE VIEW

The thesis behind this project really begins with recognizing Lambeth as as area which sits on top of a potentially compelling path or circulatory walkway connecting two vastly different insitutions; the North Athletics area and the Academic/Greek Life area. Through an established, coherent and compelling elevated pathway promenade, not only does the Goodwin Bridge become engaged and two unique parts become blended together, but also, the Lambeth area becomes densified and urbanized, as the recreational fields act as an extention of the North Grounds area and in turn, define an edge logic in a formless space, creating two different established axis. In essence, through the manifestation of different scales of interactive spaces, the ‘circulation strategy’ becomes the commonspace, becomes the node and nexus ,a crossroads for the university.

The building logic really looks to play a part in the site strategy, as it becomes a catalyst of engagement along the Goodwin Bridge, activating an underused facility by essentially enveloping the core or atrium of the proposed student center through it. In turn, certain key elements like visual connectivity and student interaction become prioritized through a blend of interior vs exterior , and double heighted spaces on each floor and along the pathway connections, rethinking educational spaces and encouraging a dialogue between not just different types of students, but different types of users or demographcis as well. Thus, activity and engagment are optimized through different scales and varieties of commonspace.

1

SITE DIAGRAM: CONNECTIVE TISSUE

3

SITE DIAGRAM: ESTABLISHED & DEFINED AXES

SITE AXON (SCALE: 1’=1/64”)

2

SITE DIAGRAM: SHAPING RECREATIONAL EXPANSION

4

SITE PLAN | PROMENADE& BRIDGE CUT

EXPLODED AXON

GF Plan

Reception, Lobby & Rec Areas

4th Level Library & Flexible, Modular Study Spaces

2nd Level Commons, Corridors & Classrooms

5th Level Private Study Rooms

3rd Level Bridge Connection, Media Center & Private Tutor Rooms

Tempered Storefront Glass

Wooden Louvre Aperature System

Louvre Rotating Frame

Concrete Structure Shading Overhang/Cantilever

CUTAWAY SECTION VIEW (SCALE: 1’=1/12”)

3D
ATRIUM RENDER | OUTDOOR DINING AREA / BRIDGE COLLAGE

E V O L U T I O N

Evolution proposes a space with three main characteristics, green areas and gardens in response to the scarce green spaces within the urban surroundings of Charlottesville and its rigid orthogonal form of the city’s structures and buildings (an iconographic call to the underwhelming skyline of Charlottesville) and a blending of public and private spaces. In a sense, it is not only portaying the evolution and gradual increase and manifestation from public to private spaces, but also the evolution of the typography and architectural promenade of Charlottesville itself as the circular, curvalinear forms maximizes views, access and public engagement. Essentially, the building is poetically acting as an ‘eye in the sky’ of sorts that responds to many critical conditions and needs within this small college town.

RESIDENTIAL TOWER LOCATION STUDY | MAXIMIZING SITE CONDITIONS

1. Site Topography
Transit Noise Pollution
Framing Site Views
Optimizing Daylight
PATHS PARTI DIAGRAMS
SITE URBAN BLOCK PLAN (SCALE: 1’=1/250”)
SITE URBAN BLOCK AXONOMETRIC VIEW (SCALE: 1’=1/250”)

2ND

LEVEL COLLAGE | OPEN COMMONSPACE VIEW
PARK COLLAGE | PUBLIC PATHWAY VIEW

GROUNDFLOOR LOBBY PLAN (SCALE: 1’=1/10”)

AND

(SCALE: 1’=1/20”)

SECOND LEVEL PUBLIC COMMONSPACE (SCALE: 1’=1/10”)

C A S T - L E S S | G E N E R A T I V E O R T H O S I S

For our project, we wanted to rethink the everyday orthotic and immobilization systems, with a specific focus on redesigning the traditional arm or wrist cast. The conventional cast has been around since the 19th century and has seen little to no variation at all throughout its introduction into the medical and orthotic world. The basic scheme consists of a plastic or fiberglass band wrapped around the affected limb, encased and hardened until the broken bone has healed. However, as seen through our research, the design of the everyday cast inherently exhibits several major issues. For injuries that require an extended period of time to heal, the impermeability and solidity of the cast causes not only discomfort and lack of mobility, but presents the potential for various health and hygiene hazards, such as the buildup of putrid bacteria, sweat, mold, etc, itching and irritation of the skin, and the loss of muscle mass up until the point of removal. Thus, we wanted to tackle this problem by introducing the use of generative design to improve the quality of life for the injured user, and optimize the principles of convenience and customization of the immobilization system, while simultaneously keeping its performance intact. Firstly, we investigated relevant precedents and examples that looked to modernize the everyday cast. Then, based on that research, we looked to create a personalized cast that integrated these principles of comfort, ventilation, modularity, removability, permeability, porosity, material, texture weight, and form in direct response to the issues identified above. Essentially, our goal was to create a cast that maintained its functionality, but is seamlessly integrated into everyday life, it is not a burden on the user. An orthotic system that goes unnoticed, or, even further, is sought after, is attractive and wearable by those experiencing limb injuries. A cast that is cast-less.

Through the use of a 3D arm scanner, grasshopper and the weaverbird plug-in, we were able to create a optimal form-fitting enveloping surface mesh with organic pockets or openings that allowed for air flow, monitoring and overseeing of the affected area as well as providing stability and reinforcement to speed up the healing process. Lastly, the development of this project was a dual effort between myself and my group member, fellow student Esteban Morinigo. While he was cheifly behind the organizational and logistical aspects of the project, as well as the presentation prep and creation, my main roles included sketching, modeling, iterating, printing & creating visualization slides/drawings for the presentations. Every drawing depicted here has been primarily developed and finalized by myself, with the exception of the photo taken by Esteban of myself with the ‘castless’ prototype on my arm.

PROGRAMMING ORGANIC & PARAMETRIC MORPHOLOGY | GRASSHOPPER SCRIPTS

INITIAL IDEA/DRAWING

FINAL ITERATION

FIRST ITERATION | GRADIENT INTRODUCTION

DENSITY AROUND AFFECTED AREA (ULNA OR RADIUS BONE)

POROSITY

IN GENERAL AREA

3D PRINTED IMMOBILIZATION

Through an exploration of different light conditions within a Rockite casting/ modelmaking workshop, I was able to understand how a space can be defined and transformed through a visual representation of various light forms (ambient, indirect, filtered, visible, direct light, etc), and how voids and negative spaces can be just as important if not more than additive spaces. Each model investigation has been divided by row across the spread, manifesting an evolution of thinking in terms of architectural strategies, gestures and forms as well as eliciting diverse spatial qualities: in order, strategies explore the front facade element of a structure and how it performs as an invitation into the architectural promenade through direct sunlight and angled light, the urban context of a space, potential geometrical visual and physical rhythms and patterns through space, and the transformative nature of the site’s previous natural conditions.

MODEL
MODEL
MODEL 2
MODEL 3
MODEL 4

AMERICAN

The American Folk Museum was an idea based on manifesting a building that reflects the actions inside, the value of the program. Tod Williams, one of the chief architects, said it himself; “the structure is an ideosyncratic building for ideosyncratic art.” Primarily, the outer skin itself, made of a metal panels and a bronze alloy that has never been used before in architectural structure, has reflective, minute properties that make it stand alone as an art installment in it of itself, as it aims to symbolize the abstracted human hand. In effect, the facade acts as a statement of independence from its uniform immediate surrounding context.

VOLUMETRIC VOID MODEL
FACADE SCULPTURAL GEOMETRY MODEL
STRUCTURAL & CIRCULATION MODEL

YALE SCHOOL OF ART & ARCHITECTURE PRECEDENT ANALYSIS

Designed chiefly by Paul Rudolph, although heavily critiziced and not well recieved at its opening, has developed very prominent appraisal in the current day as being a staple of the 1960’s brutalist movement, and as an embodiment of that decade’s rise in reconsiderations for modernist design principles. Located at a key, congested intersection of the university, Rudolph adpoted monolithic, rigid and bare qualities for the building’s composition and materiality, metaphotically portraying the school as a highly visible bastion for the University campus, through its sheer verticality. Furthermore, its programmatic organization and qualities presents a heavy juxtaposition between exterior and interior, as the multistory atria, mezzanines, skylights, varying levels, and light, soft atmosphere of mystifying complexity provide a strong contrast from the minimal, bare, almost violent exterior elements.

VERTICAL CIRCULATORY CORES & OVERLAPPING LEVELS

CONTEXT & STRUCTURAL COMPOSITION MODEL

EXTERIOR VS INTERIOR MATERIALITY MODEL

Architectural Designer & New York, NY | Lima, Peru | faz5ze@virginia.edu

O B J E C T I V E

The epitome of my design work has developed through thinking of architecture as a service, as a solution, or as an agent of change, through interdisciplinary, sustainable and human-centered design, at the intersection of nature, human biology, and the built environment in order to foster human health and wellbeing. Moreover, really looking at how certain factors in the built environment can have an effect on one’s physical and mental state. Within my experience in academia, I have become enriched by new landscape urbanistic strategies that have berthed a wave of design thinking that prioritizes resilience and interdisciplinary, dynamic, process-based architecture within the public & private realm in order to garner community engagement and harmonious co-existence. I believe my multiculural upbringing has served as a foundation for my designs, integrating lifelong economic, political and socio-cultural perspectives. After two years of real world professional experience following a four-year architectural bachelors degree, I have equipped numerous professional and academic experiences of different sizes, scopes and specializations (retail, commercial, residential, civic design, graphic design, visualization, 3D modeling, drafting, construction, research, etc.) that has helped solidify a certain proficiency along all design phases, manifesting a very diversified and fluid design ethos. My goal is to further expand my knowledge on these growing strategies and bound-less generative architectural systems, technologies and methods that are at the cutting edge of the architectural discipline (primarily focusing on human health, equity, and sustainability) to hopefully discover a way to harmoniously and realistically integrate them into the built environment.

N

University of Virginia, School of Architecture Charlottesville, VA

- Undergraduate Bachelors of Science in Architecture | August 2017- May 2021

- Minor in Urban Planning and Development

- AIAS member, National Organization of Minority Architecture Students (NOMAS) member, UVA Architecture Alumni Mentorship Program member, IFC Diversity and Outreach Committee Graphic Designer, MSS Latinx Leadership Institute Presenter

- GPA: 3.5/4

Colegio Franklin D. Roosevelt, American School of Lima Lima, Peru

High school I.B. Diploma Class of 2017 | September 2013 - June 2017

- Activities and societies: IGEM Synthetic Biology Competition, Science National Honors Society, Jazz band, Techo Community and Service, Varsity Basketball

- Honor Student, Principal’s list, received A on the IB Extended Essay requirement (Subject: Architecture)

- GPA: 6.1/7

R E C O G N I T I O N S

Simons Foundation Rooftop Competition

Winning Candidate | January 2022- Present

New York, NY

- Our TPG retail studio team received the most votes from Simons Foundation ownership on our design proposal, amongst six other competing top NYC based architecture firms, for a new event space on the roof of Simons Foundation building (160 5th avenue).

-Primarily developed and presented 3D model and detailed proposal drawings, plans and sections, as well as site and zoninf analysis diagrams & documents and rendered views

UVA School of Arch: Intro to Design Thinking Course Charlottesville, VA

Student Instructor | January 2021- May 2021

- Asked to TA for the School of Architecture’s well known ‘Intro to Design Thinking’ course and tasked with leading a team of twelve students into the world of design through numerous illustrator and photoshop exercises and design explorations; offering several design tutorials, reflections and constructive sessions, practicing pertinent leadership and communicative abilities, learning organizational, logistical, as well as pedagogical/didactic skills

UVA School of Arch: Barcelona Study Abroad

Program Finalist | March 2020

Program Charlottesville, VA

- Member of the select group of students accepted into the School’s distinguished and select semester-long 4th years and Masters study abroad program at the UIC Barcelona School of Architecture

Metcalf Dorm Design Competition Winner Charlottesville, VA

1st Place for Shirt Graphic Design| November 2018

Composed winning illustrations for this residential building’s merchandise

TPG Architecture

New York, NY

Project Professional & Intermediate Designer | December 2021 - September 2024

-Developed and documented several retail, commercial, multi-purpose and civic projects across a spectrum of scales, phases and scopes, including rigorous site & zoning analysis, code compliance, project coordination/scheduling, material sampling and design development of certain projects such as the ground-up flagship store for ‘El Palacio De Hierro’ high-end department store in Mexico.

Sargenti Architects

Junior Designer & Architectural Drafter | September 2021 - December 2021

Paramus, NJ

- Developed shop drawings, reports and submittals for several upcoming renovated Target test-fits, stores and locations, and coordinating architectural, mechanical, electrical and plumbing drawings

- Annotating, detailing and dimensioning sheets and sets for these new retail spaces in Revit and CAD primarily

PAD Architects

Junior Designer | June 2021 - Present

Parsippany, NJ

- Chiefly in charge of assisting in development of various residential and commercial projects; responsibilities ranged from site surveys, schematic design production and renderings/visualizations to construction documentation, permit drawings, and redlinings predominantly in CAD, Revit, Rhino, Lumion and Sketchup & created, curated and finalized client presentations in Indesign and Illustrator

University of Virginia Architecture Department Charlottesville, VA Research Assistant| January 2021- August 2021

- Member of mostly graduate WBYA research team focused on producing and organizing literature reviews & panels on the topic of fair human labor rights & conditions, as well as designing a school campaign exhibition focusing on raising issues of the disconnect between architects and the labor force/construction industry, thus becoming very familiar with real world construction methods

KUBE Architects

Architectural Extern | January 2021

Washington, DC

- Partook in UVA’s shadowing program, assisting in the firm’s daily duties, sitting in on meetings with contractors, engineers, and learning critical realistic operational skills, from building a network to managing the day-to-day of an architecture firm

Pfizer Inc

Digital Team Graphic Design Specialist | June 2019 - August 2020

New York, NY

-Primary researcher behind market investigations regarding digital vaccination decisions in Argentina for the adult pneumococcal vaccine, utilizing SEO tools, online digital analytics and visualizing findings to form coherent, graphically rich presentations.

- Head of new-hire graphic team responible for creating an action plan in order to implement iterative, collaborative design thinking aspects into the daily operations of this corporate workflow environment

Laura Heim Architect Queens, NY

Architectural Intern | January 2020- February 2020

- Measured and developed accurate site plans for the Phipps Apartment Complex within the Sunnyside Gardens Historic District in Queen in order to analyze the urban context for an upcoming revitalization projects

Elgin Cleckley

Turn static files into dynamic content formats.

Create a flipbook
Issuu converts static files into: digital portfolios, online yearbooks, online catalogs, digital photo albums and more. Sign up and create your flipbook.