oficinas coworking

Page 1

Integrantes: Jorge Mamani

Piero Condor

Lucia Palomino

Giuliana Mateo

Fernando Felix Aracely Anaya

TVI
Docentes: Orlando Pacheco Paulo Osorio Oficinas COWORKING

OFICINAS COWORKING COWORKING

QUE ES EL COWORKING?

Son ambientes que pueden ser usados para reuniones de empresas o tambien para personas que desean un espacio para poder trabajar

ESPACIOS

Los espacios de coworking son ambientes de trabajo colaborativos y flexibles equipados con servicios de oficina. Son ideales para aquellos que buscan un lugar de trabajo compartido y cómodo.

Ventajas :

Flexibilidad

Comunidad y Networking

Infraestructura y Servicios Compartidos

Costos Reducidos

Desventajas:

Menor Privacidad

Distracciones

Dependencia de la Comunidad

Limitaciones de Espacio

OFICINAS COWORKING
OFICINAS COWORKING ESPACIOS
MESA DE OFICINA MULTIPUESTO

OFICINAS VIRTUALES

ESPACIO DE OFICINA Y CABINAS

( COMPARTIDOS Y PRIVADOS)

SALAS DE CONFERENCIA

ESPACIO COMPARTIDO DE OCIO

Y RELAX

OFICINAS

1 2 3 4 1 2 3 4
COWORKING ESPACIOS

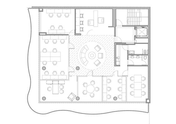
ESPACIOS DISTRIBUCIÓN GENERAL

OFICINAS COWORKING

Oficinas privadas

Sala de conferencia

Sala de trabajo

Trabajo de escritorio

Cubículos

Kit de café

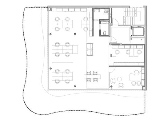
OFICINAS COWORKING ESPACIOS
Vistas a frentes comerciales Grandes luces 9m

formas, plantas regulares

OFICINAS COWORKING ESPACIOS
OFICINAS COWORKING REFERENTES
Edificio Lloyd -Richard Rogers Edificio Gherkin - Norman Foster
OFICINAS COWORKING REFERENTES
Leadenhall - Richard Rogers Seagram - Mies van der Rohe

Centro Integral del Transporte de Metro de Madrid

COWORKING
OFICINAS
REFERENTES
PLANTA
OFICINAS COWORKING REFERENTES

OFICINAS COWORKING REFERENTES

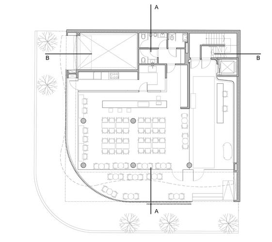
LA MAQUINITA CO

DOWNTOWN

Arquitectos: Estudio Montevideo, Pablo Dellatorre

Ubicación: San Nicolas (Buenos Aires), Argentina

Área: 1300m2

Año: 2018

REFERENTES LA MAQUINITA CO

OFICINAS COWORKING

Características:

Espacios de conceptos abiertos

Estilo rústico y acogedor

Espacios flexibles

Oficinas corporativas: privadas y comunes

Espacios con dobles alturas

Espacios:

Salas de reuniones

Salas comunes

Oficinas privadas y comunes

Cocina comedor

Espacios de relax

SS.HH.

Almacenes
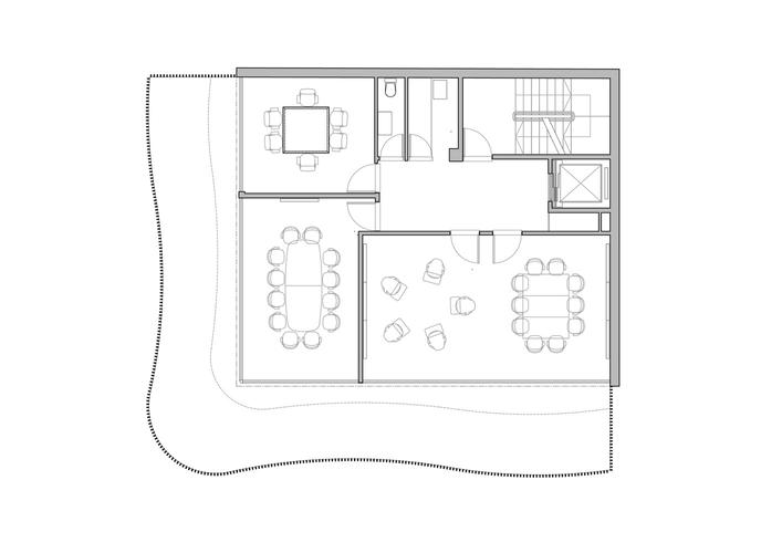
MAQUINITA CO BOX
OFICINAS LIVING ESPACIO DE RELAX
SALA DE
CAPA
OFICINAS COWORKING REFERENTES LA
COCINA COMEDOR

REFERENTES

HIT3 PAMPA

Arquitectos: Alejandro Gawianski

Ubicación: Buenos Aires, Argentina

Área: 2300m2

Año: 2015

OFICINAS COWORKING

REFERENTES

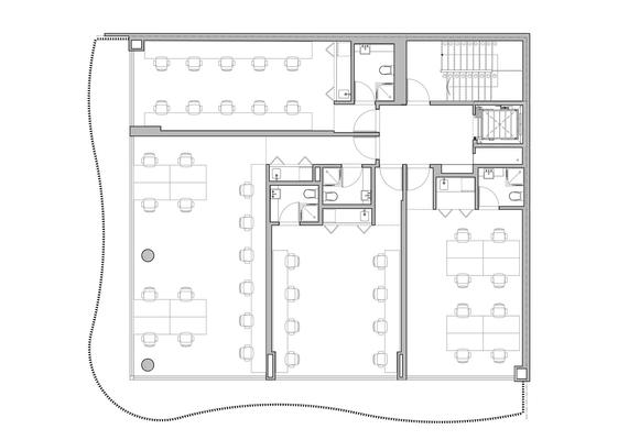
OFICINAS COWORKING HIT3 PAMPA

Características:

Espacios de conceptos abiertos

Estilo rústico y acogedor

Espacios flexibles

Oficinas corporativas: privadas y comunes

Espacios:

Salas de reuniones

Salas comunes

Oficinas privadas y comunes

Cocina comedor

Espacios de relax

SS.HH. Almacenes

REFERENTES OFICINAS COWORKING HIT3 PAMPA

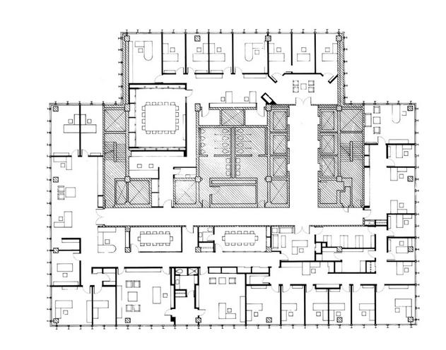
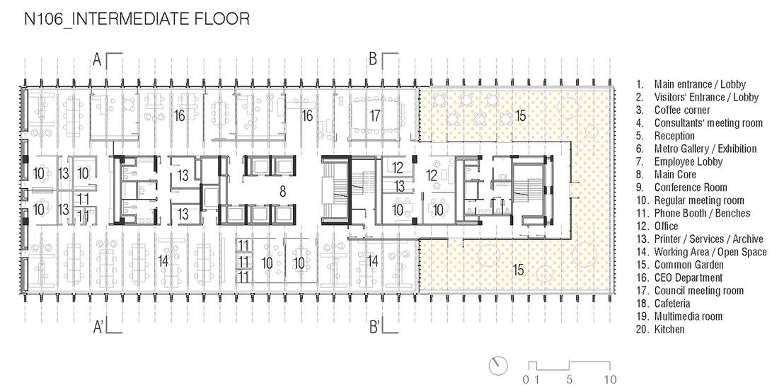
PISO 1

SS.HH. Recepción Circulacion vertical Oficinas comunes Oficinas privadas Cafeteria

PISO 2

PISO 3-6 PISO 7

PISO 8

Artículo 6 : El número de ocupantes de una edificación de oficinas se calculará a razón de una persona cada 9.5 m2.

A tí

Edificio con pocas instalaciones. Sin falso techo suspendido. Tubos de calefacción en paredes exteriores. Suministro eléctrico por debajo de la ventana o conductos en el suelo. Luminarias cenitales alimentadas a través de tubos vistos o desde los tabiques de separación. Zona de pasillos acondicionada para el paso de instalaciones.

Edificio con un grado medio de instalaciones, sin aire acondicionado. Debajo del forjado (h=22 cm) conducciones para la calefacción, electricidad y agua. Zona de pasillos acondicionada para el paso de instalaciones.

Edificio con salas de oficinas equipadas con aire acondicionado. Para estas salas se recomienda un cuarto de instalaciones de al menos 50 cm. Conducción longitudinal por los pasillos.

Grandes salas de oficinas. Debido al cruce de conductos de climatización, altura entre plantas de aprox. 4,2 m.

OFICINAS COWORKING NORMATIVA

OFICINAS COWORKING NORMATIVA

SERVICIOS SANITARIOS

Los edificios de oficinas estarán provistos de servicios sanitarios para empleados, según el número de ocupantes:

L: Lavatorio U: Urinario I: Inodoro

El recorrido no debe superar los 40 m. desde el punto más lejano.

Los servicios higiénicos para personas con discapacidad serán obligatorios a partir de la exigencia de contar con tres artefactos por servicio, siendo uno de ellos accesible para personas con discapacidad. En caso se proponga un servicio separado deberá ser adicional al número de aparatos exigibles.

A) Distancia de evacuación para oficinas con una escalera de evacuación

B) Distancia de evacuación para oficinas con dos accesos al hall y dos escaleras de evacuación

El vestíbulo de distribución de cada piso recibe a los ascensores

COWORKING
OFICINAS
NORMATIVA

Equipamiento contra incendios

Equipos de climatización

Mobiliario de oficinas

OFICINAS COWORKING EQUIPAMIENTO

Bibliografias

La Maquinita / Estudio Montevideo + Pablo Dellatorre" 14 sep 2018. ArchDaily Perú. Accedido el 14 May 2023. <https://www.archdaily.pe/pe/902064/la-maquinita-estudio-montevideo-plus-pablo-dellatorre>

HIT3 / Alejandro Gawianski" [HIT3 / Alejandro Gawianski] 01 jun 2015. ArchDaily Perú. Accedido el 15 May 2023. <https://www.archdaily.pe/pe/767660/hit3-alejandro-gawianski>

OFICINAS COWORKING

Turn static files into dynamic content formats.

Create a flipbook
Issuu converts static files into: digital portfolios, online yearbooks, online catalogs, digital photo albums and more. Sign up and create your flipbook.