MEADOWS THERAPARK : Ruang Healing Therapeutic Untuk Trauma Psikis

Page 1

PORTFOLIO

STUDIO PERANCANGAN 7

SEMESTER GENAP TAHUN AKADEMIK 2022/2023

MEADOWS THERAPARK : RUANG HEALING THERAPEUTIC

DOSEN KOORDINATOR : Ir Rudy Surya, MM, MArs

DOSEN KELAS : Ir Agustinus Sutanto, MArch, PhD

DOSEN PEMBIMBING: Indra Mulyana, S.T., M.Ars.

Fergie Christabelle Tandanu 315200038

Program Studi Sarjana Arsitektur Jurusan Arsitektur dan Perencanaan Universitas Tarumanagara

F E R G I E

CHRISTABELLE TANDANU

ARCHITECTURE STUDENT

PENDIDIKAN

Universitas Tarumanagara

Program Studi Arsitektur dan Perancangan | 2020 - Sekarang

SMA Kristen Kasih Kemuliaan

IPA | 2017 - 2020

KONTAK

085886151081

fergie 315200038@stu untar ac id

315200038

1

PENGALAMAN

Panitia Besar

IMARTA-SKETSA | 2022/2023 (Sekarang)

Divisi Pelayanan - Akademik

Membantu dan mewadahi mahasiswa/i Arsitektur

UNTAR dalam bidang akademik dengan menyelenggarakan workshop dan memberikan informasi seputar akademik

Panitia Kecil

IMARTA-SKETSA | 2021/2022

Divisi Pelayanan - Akademik

Membantu dan mewadahi mahasiswa/i Arsitektur

UNTAR dalam bidang akademik dengan menyelenggarakan workshop dan memberikan informasi seputar akademik

Wakil Ketua Bidang

Architectural Design Week | 2021/2022

Divisi Acara - Workshop

Mewadahi peserta untuk saling berdiskusi memecahkan suatu masalah dengan menghasilkan suatu output berupa desain yang tentunya berdampak positif bagi sekitar

Panitia Kecil

Architectural Design Week | 2020/2021

Divisi Acara - Workshop

Mewadahi peserta untuk saling berdiskusi memecahkan suatu masalah dengan menghasilkan suatu output berupa desain yang tentunya berdampak positif bagi sekitar

SKILLS

Languange Profiency

English | Fluent

Korean | Basic

Mandarin | Basic

Software

Adobe Illustrator

Sketchup

AutoCAD

Ms. Office

Lumion

Vray

Enscape

Photoshop

Revit

2
3 DAFTAR ISI 01 Latar Belakang 5-6 02 Lokasi 7-9 03 Program Ruang 10 04 Gubahan Massa 11 05 Deskripsi Proyek 12 06 Gambar Kerja 13-22 Fergie Christabelle Tandanu 315200038
4 Fergie Christabelle Tandanu 315200038

LATAR BELAKANG 01

THERAPEUTIC, JAKARTA, INDONESIA

Kutub yang mencair, lempeng tektonik yang bergerak atau bergeser, curah hujan yang tinggi, suhu air laut di wilayah tropis sangat tinggi, semua hal ini dapat memicu fenomena yang disebabkan oleh kekuatan alam dan dapat menimbulkan kerusakan pada kehidupan manusia Bencana alam adalah peristiwa alam yang terjadi secara tiba-tiba atau lambat dan dapat menimbulkan kerusakan lingkungan, kerusakan harta benda, hingga bahkan dapat membahayakan manusia secara fisik maupun non-fisik

Dampak utama pada bencana alam merupakan trauma secara mental pada manusia, seperti gangguan kecemasan, depresi, stres pasca-trauma, dan kesulitan tidur Hal ini dapat disebabkan oleh kehilangan rumah, properti, atau orang yang dicintai, serta oleh ketidakpastian tentang masa depan. Trauma yang dihasilkan dari bencana alam ini mempengaruhi kesehatan mental dan fisik individu secara signifikan, dan berdampak pada kemampuan individu untuk memulihkan diri. Oleh karena itu, penting untuk memberikan dukungan emosional dan bantuan kesehatan mental bagi mereka yang mengalami trauma akibat bencana alam.

Dilihat dari program yang diresmikan sidang umum

PBB mengenai Sustainable Development Goals, isu hidup sehat dan mempromosikan kesejahteraan bagi semua usia dianggap sebagai masalah mendesak di seluruh dunia. Oleh karena itu, WHO mengharapkan adanya upaya peningkatan akses terhadap pelayanan kesehatan dalam mendukung realisasi pemenuhan hak-hak masyarakat akan kesehatan

5
Fergie Christabelle Tandanu 315200038

TEMA

HEALING THERAPEUTIC

HEALING ARCHITECTURE

THERAPEUTIC ARCHITECTURE

HEALING THERAPEUTIC

Arsitektur dapat memainkan peran penting dalam membantu

penyembuhan trauma akibat

bencana alam Bangunan yang

dirancang dengan

mempertimbangkan keamanan dan

kebutuhan individu yang mengalami

trauma dapat membantu

menyediakan ruang yang aman dan

mendukung, yang dapat

memfasilitasi proses penyembuhan

Terapi psikis sebagai metode dalam

Trauma Healing dapat berupa

banyaknya area hijau yang

diwujudkan melalui keberadaan

healing garden atau taman

penyembuh

Design Scheme

Fokus rancangan memanfaatkan dan memaksimalkan elemenelemen alami dari tapak dan sekitarnya. Penerapan dengan menggunakan bentuk-bentuk organik dan dinamis untuk memberi kesan berbaur dengan alam dan mengurangi kesan kaku, memperbanyak penggunaan taman untuk membantu mempercepat proses treatment serta menggunakan material alam untuk memperkuat kesan alami.

6
= Fergie Christabelle Tandanu 315200038
DIAGRAM HUBUNGAN ANTARA HEALING ENVIRONMENT, ARCHITECTURE DAN THERAPEUTIC

TEMUAN

Tidak ada ruang parkir yang tersedia

Kawasan didominasi oleh aktivitas perkantoran dan hunian padat

Banyak bangunan terbengkalai yang tidak diurus

Rata-rata bangunan lebih didominasi oleh gedung perkantoran dan pemerintahan

Furnitur jalan cukup banyak namun tidak diurus

Banyak penghijauan disepanjang jalan

7
L I
1. 2 3. 4. 5.
Fergie Christabelle Tandanu 315200038
6.

ANALISIS TAPAK

DATA TAPAK

ALAMAT

Jl Angkasa, RT 10/RW 3, Gn Sahari Sel , Kec

Kemayoran, Kota

Jakarta Pusat, Daerah

Khusus Ibukota Jakarta 10610

LUAS

1 854 m²

ATURAN TATA KOTA

Zona Perdagangan dan Jasa Skala

Kota

Kode Blok 4

KDB 55

KLB 3.25

KB 8

KDH 20

KTB 50

GSB 10/2 = 5 meter

8
Christabelle Tandanu 315200038
Fergie

RADIUS DAN AKTIVITAS

SARANA KESEHATAN :

BIDAN YUNITA

Radius : 250 m

RUMAH SAKIT HERMINA APOTIK DE NATURE

SARANA LAIN

BANK BRI KC JAKARTA KEMAYORAN

MANDIRI KCP JAKARTA ANGKASA

RUMAH MAKAN CIGANEA

SAINATH TOWER PT PELNI

SARANA BENCANA ALAM:

BASARNAS SPECIAL GROUP

KANTOR PUSAT BADAN SAR NASIONAL GEDUNG BMKG

BADAN METEOROLOGI KLIMATOLOGI DAN GEOFISIKA INDONESIA

KODIM JAKARTA PUSAT

BADAN PERTANAHAN NASIONAL

AKSESIBILITAS:

SARANAPENDIDIKAN: Radius : 0 m

AKPERPELNIJAKARTA(KAMPUS KEMAYORAN)

PERMUKIMAN/PENGINAPAN: Radius : 350 m

ANGKASAINN HOTELDRAGONINN

9
Jl Angkasa Jl
Motik Jalur Kereta
HBR
LAPANGANASPOLKEMAYORAN GANTANGANBURUNGANGKASA ENTERPRISE TAMANSILANGIT AREAHIJAU: 3 2 2 1 3 1 250 meter 400 meter
Fergie Christabelle Tandanu 315200038

PROGRAM RUANG 03

RUANG TERAPI PSIKOLOGIS

TAMAN TEURAPETHIC

RUANG TERAPI FISIK

PROGRAM UTAMA : TERAPI (INDOOR)

RUANG KONSULTASI

ADMINISTRASI

MEDIS (KLINIK)

PLAYGROUND (OLAHRAGA)

MUSIKALISASI

PROGRAM UTAMA : PEMULIHAN ANAK (INDOOR)

PROGRAM PENGHUBUNG : MEMORI (RUANG TEURAPETIK)BERUPA PERJALANAN RUANG

PENUNJANG (BENCANA)

TEATER

BIMBINGAN BENCANA ALAM

WORKSHOP PELATIHAN EMERGENCY

STORY-TELLING

PENUNJANG : KOMERSIL DAN ENTERTAINMENT RETAIL

PENGUNJUNG TERAPI

10
GUDANG TOILET GUDANG TOILET GUDANG TOILET TOILET FARMASI
T
K P T G PENGUNJUNG UMUM A Fergie Christabelle Tandanu 315200038

GUBAHAN MASSA

DESIGN SCHEME

Memotong ukuran tapak sesuai dengan peraturan KDB, KLB, KTB dan GSB.

Pembentukkan gubahan massa awal berdasarkan analisis tapak.

Memberikan tinggi-rendah bangunan sebagai hasil analisis program ruang yang dibutuhkan.

Penambahan massa sebagai hasil analisis program ruang dan melambangkan konsep

Pemisahan jarak pada kedua massa untuk memberikan ruang khusus terapetik dan ruang berjalan user

Pemberian material fasad dan jendela sebagai sirkulasi matahari dan udara

11 Zona Perdagangan dan Jasa KDB 55 55% x 1 854 1 019 7 m² KLB 3 25 3 25 x 1 854 6 025 5 m² KB 8 = maksimal 8 lanta KDH 20 20% x 1 854 = 370 8 m KTB 50 50% x 854 = 927 m GSB 10/2 5 meter
04
Fergie Christabelle Tandanu 315200038

05 DESKRIPSI PROYEK

Dengan menggabungkan atmosfer dan konstruksi sebagai tema utama, tujuan utama perancangan program bangunan adalah untuk penurunan angka

kecemasan akibat trauma psikis bencana alam Selain itu, program yang nantinya akan dirancang berkaitan dengan informasi terkait bencana alam yang sedang terjadi di Indonesia

Penggunaan kedua kata "Meadows" dan Therapark" diharapkan dapat menciptakan lingkungan yang

memungkinkan individu untuk merasakan kedamaian, ketenangan, dan kekuatan penyembuhan yang berasal dari alam. Meadows therapark juga diambil sebagai judul sebagai harapan agar bangunan ini dapat membantu masyarakat dalam mengurangi trauma akibat bencana alam dengan memberikan terapi dan pengalaman kepada individu.

Secara keseluruhan, konsep gubahan massa memiliki arti simbolik yang dapat digunakan untuk mewakili proses penyembuhan dan pemulihan dari trauma

Seperti kapal yang berlayar melintasi lautan yang berubah-ubah, proses penyembuhan trauma juga melibatkan perjalanan emosional yang berliku-liku Massa bangunan berbentuk kapal dapat menyajikan ruang yang memfasilitasi eksplorasi dan pemahaman diri, serta memberikan dukungan bagi individu untuk menavigasi perasaan dan emosi yang terkait dengan pengalaman traumatis

12
Fergie Christabelle Tandanu 315200038

BLOK PLAN, SITE PLAN

13
Fergie Christabelle Tandanu 315200038

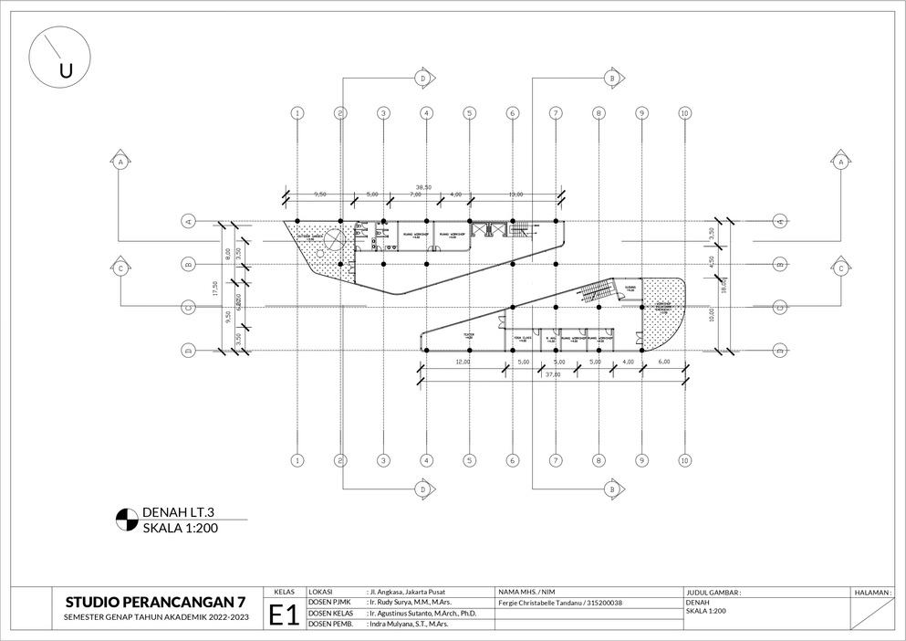
DENAH

14
Fergie Christabelle Tandanu 315200038
15 Fergie Christabelle Tandanu 315200038
16 Fergie Christabelle Tandanu 315200038
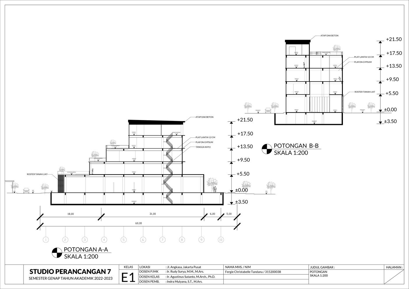
POTONGAN D-D Fergie Christabelle Tandanu 315200038
POTONGAN
18 TAMPAK SAMPING TIMUR Fergie Christabelle Tandanu 315200038

DETAIL ROSTER

Fergie Christabelle Tandanu 315200038
20 Fergie Christabelle Tandanu 315200038
21 Fergie Christabelle Tandanu 315200038
22
Fergie Christabelle Tandanu 315200038
INTERIOR
STUDIO PERANCANGAN 7 2023

Turn static files into dynamic content formats.

Create a flipbook
Issuu converts static files into: digital portfolios, online yearbooks, online catalogs, digital photo albums and more. Sign up and create your flipbook.
MEADOWS THERAPARK : Ruang Healing Therapeutic Untuk Trauma Psikis by Fergie Christabelle Tandanu - Issuu