

![]()


TALLER DE DISEÑO
ARQUITECTÓNICO VIII






ASPECTOSGENERALES
ASPECTOHISTÓRICO
ASPECTOAMBIENTAL
ASPECTOURBANO
ASPECTOSOCIAL
REQUERIMIENTOS URBANOS
1)Localización – Ubicación
2)Delimitación del sector
3)Datos del sector
4)Antecedentes del sector.
5)Mapa de Altitud
6)Topografía
7)Peligros potenciales
8)Peligros sísmicos
9)Susceptibilidad a huaicos e inundación pluvial
10)Impacto ambiental.
11)Trama urbana
12)Congestionamiento vehicular
13)Secciones de vías.
14)Clasificación de vías.
15)Flujo vial - transporte urbano.
16)Usos de suelo
17)Densidad poblacional
18)Características de la población
19)Definición del proyecto
20) Condiciones para habitabilidad
21)Reglamento Nacional de Administración de Transporte
22)Reglamento Nacional de Edificaciones
23)Caracterización de la situación problemática
24)Caracterización de los usuarios según tipología
25)Empresas oferta y demanda
26) Principales necesidades
27)Proyección
28)Casos análogos
29)Programación


Terreno
Av Sanches Cerro

Calles adyacentes

UBICADO


En el distrito de PIURA, provincia y departamento de PIURA.
Terreno ubicado en la Av. Sánchez Cerro, al lado del grifo San José, Por el puente peatonal de Enace
PERFIL URBANO












EQUIPAMIENTO

COMERCIO:
En la avenida principal, hay algunos negocios independientes, el comercio no esta tan desarrollado.


VIVIENDA:
Predominan viviendas de densidad media, la mayoría con 1 o 2 pisos y algunos multifamiliares.

INDUSTRIA:
La zona oeste del distrito predomina lo industrial, teniendo en mayor medida en la Av. Sanchez Cerro.

AREA VERDE: cuenta con área verde pública alrededor del terreno que permite el confort de la población.


DATOS SOBRE EL TERRENO
• Cuenta con un área de 14 hectáreas.
• Tiene un perímetro de 1 516 metros.
• La avenida principal adyacente al terreno es la Av. Sánchez Cerro.

ASPECTOS GENERALES
ZONIFICACIÓN




TOPOGRAFIA











PELIGROS POTENCIALES NIV E L M I CRO








Presencial de una vía nacional cerca la cual es la Av. Sánchez Cerro, Asimismo a los alrededores del terreno existen vías no asfaltadas y 1 futura vía a espaldas .
VÍAS NO ASFALTADAS


Vía colectora Oeste
Trébol

MAPEO FLUJO VEHICULAR

Flujo vehicular alto
Flujo vehicular medio
Flujo vehicular bajo
Trochas carrozables
Vías futuras
Terreno


Público 68%

Vía colectora
VÍAS ASFALTADAS

V SANCHEZ CERR

La población de zonas aledañas como Hermosa, Enace ( I, II , III etapa), Micaela Bastidas, entre otros tienen mayor cercanía terreno y a los proyectos a realizarse en lugar, respondiendo y satisfaciendo de esta manera a sus necesidades.




CERRO A V. PANAMERIICANAN RT E





Flujo peatonal bajo
Flujo peatonal medio
Flujo peatonal alto
MAPEO FLUJO PEATONAL






TRANSPORTE PÚBLICO


UNIVERSIDAD CESAR VALLEJO







































INSEGURIDAD Y DELINCUENCIA
TERMINAL PESQUERO DE PIURA









POCA PRESENCIA PEATONAL

CARECE DE ÁREAS VERDES PÚBLICAS
Parque Victor Raúl Haya de la Torre
CONTAMINACIÓN
AMBIENTAL

TERRENO PROPUESTO
Pertenece a uso de suelos INDUSTRIAL
DISTANCIAS Y TIEMPO MÁXIMO
Educativo 0.75 Kilómetros – 2 minutos
Comercial 0.73 Kilómetros – 2 minutos
Recreacional 0.80 Kilómetros – 3 minutos
Salud 0.70 Kilómetros – 2 minutos









ZONA DE DENSIDAD ALTA
ZONA DE DENSIDAD MEDIA

DISTANCIAS Y TIEMPO MINÍMO
Educativo 2.28 Kilómetros – 15 minutos
Comercial 1.80 Kilómetros – 10 minutos
Recreacional 2.00 Kilómetros – 12 minutos
Salud 2. 35 Kilómetros – 15 minutos







UNIVERSIDAD CESAR – SEDE PIURA






UNIVERSIDAD CESAR VALLEJO
MACRO- TOTTUS- UNO
ZONA COMERCIAL
ZONA DEPORTIVA

AREA VERDE
PNP 26 DE OCTUBRE
PUENTE PEATONAL
CENTRO DE SALUD

















799 321Habitantes ANÁLISIS POBLACIONAL






TERMINAL TERRESTRE TURISTICO
Un Terminal Terrestre es una edificación complementaria del servicio de transporte terrestre, que cuenta con instalaciones y equipamiento para el embarque y desembarque de pasajeros y/o carga, de acuerdo con sus funciones

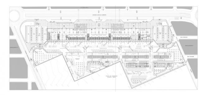
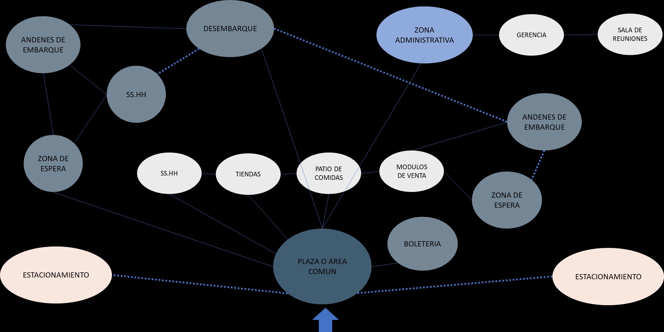
CONDICIONES PARA HABITALIDAD
• Patio de maniobras y operaciones
• Andenes de embarque y desembarque de pasajeros
• Salas de espera
• Locales comerciales
• Área de recibo de equipajes
• Oficinas
REGLAMENTO NACIONAL DE ADMINISTRACIÓN DE TRANSPORTE – DECRETO
SUPREMO Nº 017-2009-MTC
Capítulo III
infraestructura complementaria del transporte
a) Condiciones generales
infraestructura física; la misma que, según corresponda, comprende: las oficinas, los terminales terrestres de personas o mercancías, las estaciones de ruta, los paraderos de ruta, toda otra infraestructura empleada como lugar de carga, descarga y almacenaje de mercancías, los talleres de mantenimiento y cualquier otra que sea necesaria para la prestación del servicio.
b) AUTORIZACIONES Y HABILITACIONES EN EL SERVICIO DE TRANSPORTE
REGLAMENTO NACIONAL DE EDIFICACIONES
NORMA A 110
TRANSPORTES Y COMUNICACIONES
Capitulo 1 Aspectos generales
Terminal Terrestre.
Interurbanos
Interprovinciales
Internacionales
CAPITULO II CONDICIONES DE HABITABILIDAD
a) Circulación de pasajeros y personal
b) pisos antideslizantes
c) Ancho mínimo de vanos 1.80
d) Ancho mínimo de pasajes 1.20
e) Puertas con barras de acción
Articulo 6 dotación de servicios

NORMA A 0.10
CONDICIONES GENERALES DE DISEÑO
Título III: edificaciones
Articulo 8

NORMA A 120
ACCESIBILIDAD UNIVERSAL EN EDIFICACIONES
Condiciones generales

ARTICULO 16

NORMA A 080
OFICINAS
Características de los componentes

Dotación de servicios

NORMA A 070 COMERCIO
Condiciones de habitalidad

NORMA A 0.30
REQUISITOS MINIMOS OBLIGATIRIOS


CARACTERIZACIÓN DE LA SITUACIÓN PROBLEMÁTICA:
• Población en crecimiento
• Accidentes de tráfico
• Elevados niveles de aglomeración
• Empresas informales
• Infraestructura de terminales deteriorada
• Congestión vehicular
EMPRESAS
E.T Cruz del Sur S.A.C.
E.T Tepsa S.A.C
E.T Oltursa S.
E.T Flores Hnos. S.R.L
E.T Expreso Cial
E.T Ronco Perú S. A
E.T Sullana Express
E.T Pasajeros y Carga
Cavassa S.A.C
E.T Turismo
S.A
E.T Pullman Bus E.I.R. L
E.T Turismo el Sol
E.T Ave Fénix S.A.C - Entrafesa
E.T Turismo Expreso Latinoamericano
E.T Y Serv. Turístico
S.R.L ITTSA.
E.T Línea S. A
E.T Chiclayo S.



















ESTUDIANTES


TRABAJADORES

15 und salidas 6:00pm llegadas 9:00pm 12 und

N° de salidas y llegadas por día
Pasajeros movilizados por día Buses ½ hora puntasalidad y llegada
COMERCIANTES

FAMILIAS



• Se puede aproximar una flota de origen y destino donde operan alrededor de 155 buses, con una capacidad |

< 3 SALIDAS
• Los principales destinos se encuentran en el sur, en donde sus destinos son : Chiclayo –Chimbote - Trujillo y Lima.
FLUJO DIARIO DE PASAJEROS (Nacional)

3 a 6 SLIDAS
> 6 SALIDAS


R. Norte
R. Sur
R. Este
FLUJO DIARIO DE PASAJEROS (Regional)

R. Norte R. Sur R. Este R. Oeste

• Al toque
• Tu gusto Piura
• DJAVIS


• Rico Sabor

Est. Servicio
• San José II
• ONERGY
• PRIMAX







Parque Enace
Parque Ecológico
• Divino Niño Jesús
U Cesar Vallejo
• Los secretos
• Dulce Luna
• Hospedaje Sol









DIARIO DE PASAJEROS (Interurbano)

• Interconexión vial terrestre con centros de producción y consumo dentro de Piura
• Relativa oferta adecuada de equipamientos y servicios en la ciudad

R. Norte
R. Sur
R. Este
R. Oeste
• Incremento de habilitaciones formales
• Existencia de mercados para la colocación de la producción local
• Interés privado en la proyección de inversión mobiliaria

• Pocas áreas que contribuyen a la conservación del medio ambiente
• Deterioro de vías secundarias y veredas peatonales
• La aglomeración de tiraderos clandestinos

• Niveles de pobreza y desempleo en la región
• Inseguridad ciudadana
• Mal estado de vías aledañas








Invasiones

Botaderos
Informales



Inundaciones


Erradicar la informalidad


Orden en la salida y llegadas


Oferta laboral


Mejoramiento de la calidad del terreno
Contaminación del ambiente
Inseguridad en el usuario








ESTACIÓN DE BUSES, SUSTENTABILIDAD
•SANTIAGO DE COMPOSTELA, ESPAÑA
•Arquitectos: IDOM
•Área: 8870 m²
•Año: 2021
La estructura se concentra en la zona central del edificio para evitar interferencias facilitando el movimiento de vehículos y personas


La geometría se reproduce en la cubrición de la planta superior, el plano superior se inclina para ayudar a adaptar su escala





La terminal de autobuses se organiza en dos plantas superpuestas, en la inferior se sitúan el área de las dársenas y los viales de circulación y maniobra de vehículos, en la superior el edificio que acoge los servicios necesarios para atender a los viajeros.






TERMINAL EL ALTO, LA PAZ BOLIVIA
• arquitectos; Arquitectónica estudio
•Área: 155550 m²
•Año: 2021 a partir del primer nivel, el edificio, aporta a su propia sostenibilidad y promueve la integración entre grupos foráneos y locales, desde un programa de usos diversos: ocio, desarrollo cultural, productivo y medioambiental; logrando además de una terminal, un centro de encuentro.




adaptado a la topografía del lugar, dentro del irregular predio, se acomoda en bandas paralelas, siguiendo una lógica de transición desde espacios y circulaciones peatonales públicas hacia áreas restringidas y de tráfico rodado.












ROBO HURTO DE VEHICULO 1040 casos
2681 casos
ROBO AGRAVADO A MANO ARMADA
2120 casos
BOTADEROS INFORMALES
22 Botaderos de basura
Recolectores de basura

AGLOMERACION DE VEHICULOS
Aglomeración de animales 1 2 3
Empresas informales
Accidentes de tráficos
Alza de precios de pasajes


ESTRATEGIAS
ESTRATEGIAS
Fortalecimiento comunitario
Trabajo Voluntario
ESTRATEGIAS
CONGESTIÓN VEHICULAR
Pistas sin asfaltar
Bajo mantenimiento en semáforos
Establecer tiempos llegada y salida
ESTRATEGIAS

Ubicación en 4
ESTRATEGIAS
• Generar Recorrido pasivo por la estructura
Fortalecimiento comunitario
Seguridad puntos estratégicos
Voluntario
Ubicación de tachos puntos estratégicos
• Vía auxiliar tiempos de salida


Implementar vegetación para mejorar las visuales y el control de olores
Ambientes con espacios para turismo, comercio y recreación

Mejorar el servicio de embrague y desembargue de pasajeros
TERMINAL TERRESTRE TURÍSTICO
es un diseño integral que abarca todas las funciones necesarias para facilitar el tránsito de pasajeros y mercancías en un entorno terrestre. La esencia de un terminal terrestre es servir como un punto de conexión y un centro de servicios donde los viajeros puedan embarcar, desembarcar, y gestionar sus necesidades de transporte y servicios adicionales.
• CENTRO DE INTERCAMBIO
• PUNTO DE ENLACE
• ESPACIO FUNCIONAL
• ESPACIO ACCESIBLE
• SEGURIDAD
• SERVICIO AL PASAJERO
• SERVICIO COMPEMENTARIO
• TECNOLOGÍA
• DISEÑO ECOLÓGICO
• COMODIDAD Y EFICIENCIA
• INFORMACIÓN Y EFICIENCIA
• DESARROLLO URBANO
• BENEFICIOS ECONÓMICOS
Mostradores de Información y Atención:

Taquillas y Quioscos


Lounge VIP










Información en Tiempo Real

Wi-Fi y Carga de Dispositivos

Control de Accesos y Seguridad

Sistemas de emergencia

Baños y áreas de higiene



Áreas de Carga y Descarga

Andenes y Plataformas









TECNOLOGÍA SOSTENIBILIDAD



USUARIOS PERMANENTES
• PERSONAL ADMINISTRATIVO
• PERSONAL DE TRANSPORTE
• PERSONAL DE SERVICIOS Y MANTENIMIENTO
• PERSONAL COMERCIAL
• PERSONAL DE ENCOMIENDAS














• USUARIO DE COMERCIO

• USUARIO OCASIONAL
• PASAJEROS











VEHÍCULO DE LLEGADA NACIONAL

INGRESO DEL BUS AL TERMINAL
DESCENSO DE PASAJEROS
ESTACIONA EN DESEMBARQUE
VEHÍCULO DE LLEGADA REGIONAL

SALE DEL EST.
OPERACIONAL
DESCARGA DE EQUIPAJE
SALE DE DESEMBARQUE
ASENSO DE PASAJEROS
ESTACIONA EN DESEMBARQUE
VEHÍCULO DE SALIDA NACIONAL

SALE DEL EST. OPERACIONAL
CARGA EQUIPAJE
CARGA ENCOMIENDAS
ESTACIONA EN ENCOMIENDAS
VEHÍCULO DE SALIDA REGIONAL

DESCARGA ENCOMIENDAS
MANIOBRA DE SALIDA
CARGA ENCOMIENDAS
SALE DE ENCOMIENDAS
DESCENSO DE PASAJEROS
ESTACIONA EN BAHÍA DE EMBARQUE
CARGA
EQUIPAJES
SE DIRIGE AL ESTACIONAMIENTO
OPERACIONAL
INGRESO DEL BUS AL TERMINAL
ESTACIONA EN DESEMBARQUE
DESCARGA EQUIPAJE
SALE DE DESEMBARQUE
ASENSO DE PASAJEROS
SALE DEL TERMINAL
SALE DEL TERMINAL
SE DIRIGE AL ESTACIONAMIENTO OPERACIONAL
DESCARGA ENCOMIENDAS

LLEGA AL TERMINAL BAJA DEL OMNIBUS
PASAJERO DE SALIDA

VEHÍCULO PRIVADO
INGRESA AL TERMINAL
-TAXI -MOTOTAXI
LLEGA A SALA DE DESEMBARQUE
BUSCA INFORMACIÓN
PERSONAL DEL TERMINAL
SUBE AL BUS

VEHÍCULO PRIVADO
INGRESA AL TERMINAL
-TAXI -MOTOTAXI
PERSONAL DEL TERMINAL

VEHÍCULO PRIVADO
INGRESA AL TERMINAL
-TAXI -MOTOTAXI
RECOGE EL EQUIPAJE
-GUARDA EQUIPAJE -USOS DE SERV. COMPLEMENTARIOS -USO DE SS.HH
CIRCULA EN EL TERMINAL
ACT.BANCARIAS COMPRAR BOLETOS OTRO VIAJE
COMPRA PASAJE
ENTREGA EL EQUIPAJE
CONTROLADOR
-GUARDA EQUIPAJE -USOS DE SERV. COMPLEMENTARIOS -USO DE SS.HH
-RECOGE -ENTREGA
ACT.BANCARIAS COMPRAR BOLETOS OTRO VIAJE
VEHÍCULO PRIVADO -TAXI -MOTOTAXI
SALE DEL TERMINAL
CIRCULAR EN TERMINAL
INGRESA SALA DE EMBARQUE
VEHÍCULO PRIVADO
CIRCULA EN TERMINAL SALE DEL TERMINAL
-TAXI -MOTOTAXI
REGISTRARSE DEJAR PERTENENCIAS ALMUERZO SALE DEL TERMINAL PERSONAL DEL COMEDOR
Actualmente se encontró 27
empresas de buses para el servicio de ámbito nacional, brindando el servicio de manera diaria, cubriendo las siguientes rutas


Los principales destinos del servicio nacional se encuentran en el sur. donde, sus destinos, son ChiclayoChimbote-Trujillo, y Lima predominan los siguientes. En la ruta internacional, la mayoría de las salidas importantes se encuentran en Guayaquil.




Este tipo de servicio tiene un método de transporte de pasajeros entre la salida y el destino, la hora de salida de estos servicios es aproximadamente una vez cada 15 minutos (1/4 hora pico)


Son diversos los destinos de servicio Regional donde las salidas son hacia el norte, sur, este y oeste. Teniendo una mayor demanda las salidas en servicio hacia el Norte con destino a Sullana. Y, en segundo lugar, la ruta sur con destino hacia Sechura.





NACIONAL
LLEGADA SALIDA
INTERNACIONAL
REGIONAL
ALA INTERNACIONAL
ALA REGIONAL
ANTROPOMETRIA DE BUSES
NACIONALES, INTERPROVINCIAL, REGIONAL




ANTROPOMETRIA DE PASAJEROS

RADIOS DE GIRO


ANDENES

















• https://es.scribd.com/doc/307250956/FAUA-UPAO-Expo-TesisTerminal-Terrestre-Interprovincial-de-Piura
• https://cdn.www.gob.pe/uploads/document/file/3925755/PLANO_0 8-C_PLANO_SISTEMA_VIAL_AREA_METROPOLITANASISTEMA%20VIAL.pdf?v=1673640552
• https://cdn.www.gob.pe/uploads/document/file/6754325/3724274plano-09i-plano-de-zonificacion-general-de-uso-del-suelo-del-areametropolitana.pdf?v=1723160423
• https://es.scribd.com/document/725533034/Rep-Inci-Jackelineborrero-Roberto-farfan-Analisis-congestionamiento-vehicularpropuesta-mejora-vial-Interseccion-avenidas-sanchez-cerro-vicePiura
• https://repositorioacademico.upc.edu.pe/handle/10757/625273?sh ow=full
• https://www.google.com.pe/maps
• https://ww3.vivienda.gob.pe/ejes/vivienda-yurbanismo/documentos/Reglamento%20Nacional%20de%20Edifica ciones.pdf
• https://www.gob.pe/inei
• https://www.gob.pe/es/institucion/inei/informespublicaciones/5813689-peru-departmental-economic-outlook-n-07july-2024
• https://www.undp.org/es/latin-america/informe-regional-dedesarrollo-humano-2021