TF57

Page 1


DOOR STYLE

Door Profile
Door Design
Plain Sawn
Wood Grain
Primary Suite Double Door

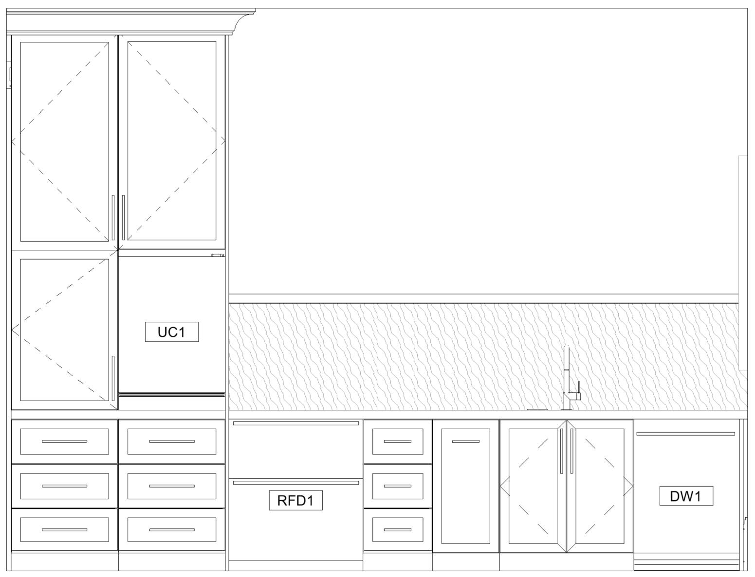
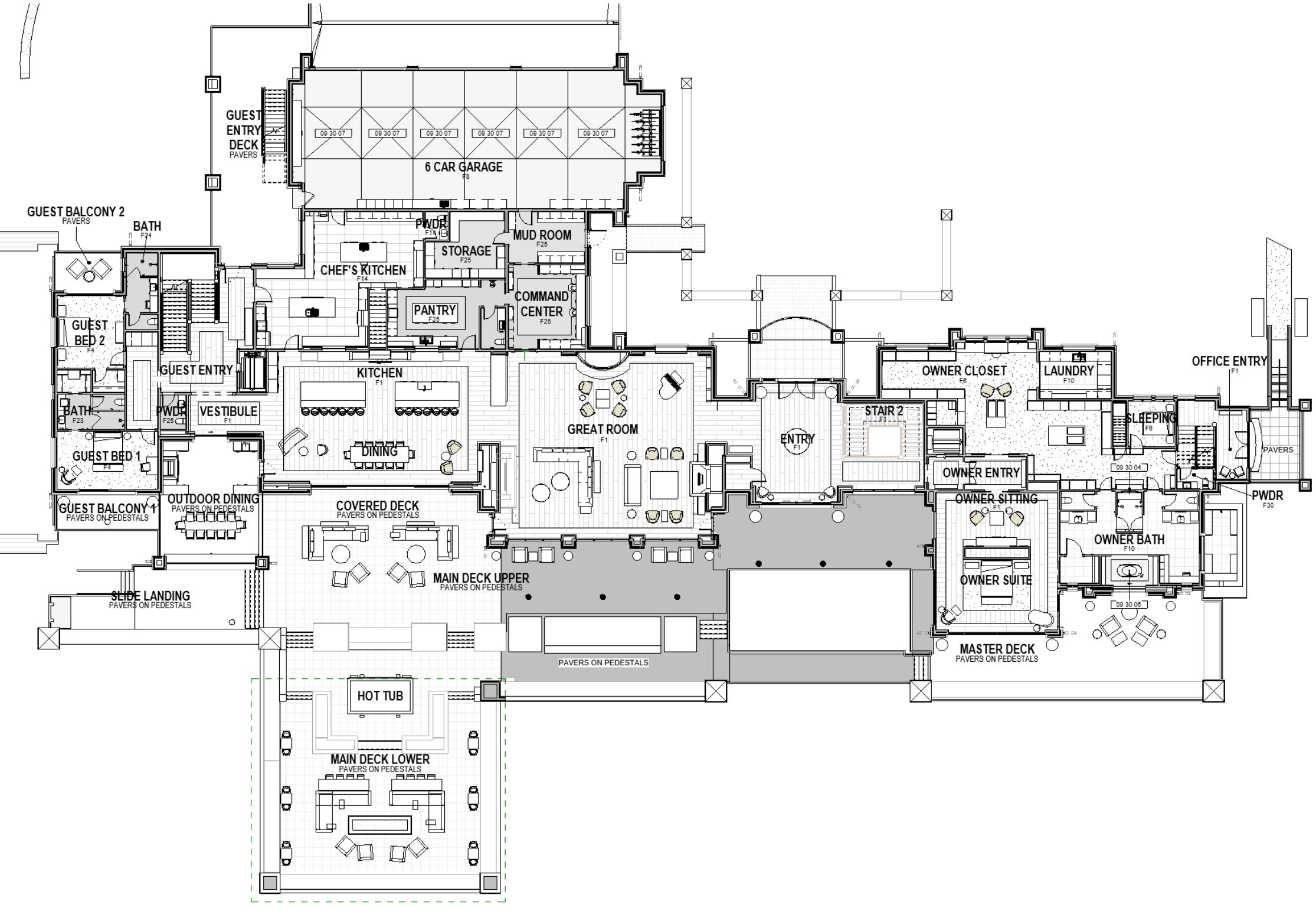
Serving Kitchen | Material Selections

Cabinetry
Floor Tile
Countertop

Three

Powder Bath 1 | Material Selections

Powder Bath 2 | Material Selections

Entry | Material Selections

Gala Space | Material Selections

Columns

Countertop

Intentionally

SPORTS COURT MOOD BOARD

Active Biophilic Energetic Acoustics

Competition

Gym | Material Selections

Acoustical Panels

View

GYM Perspective

Sports Court | Material Selections

Flooring Wall Panels

Gym Kitchen | Material Selections

Cabinetry Countertop + Backsplash
Floor Tile

Gym Powder | Material Selections

Cabinetry Countertop
Floor Tile

Pool Laundry | Material Selections

Cabinetry
Floor Tile

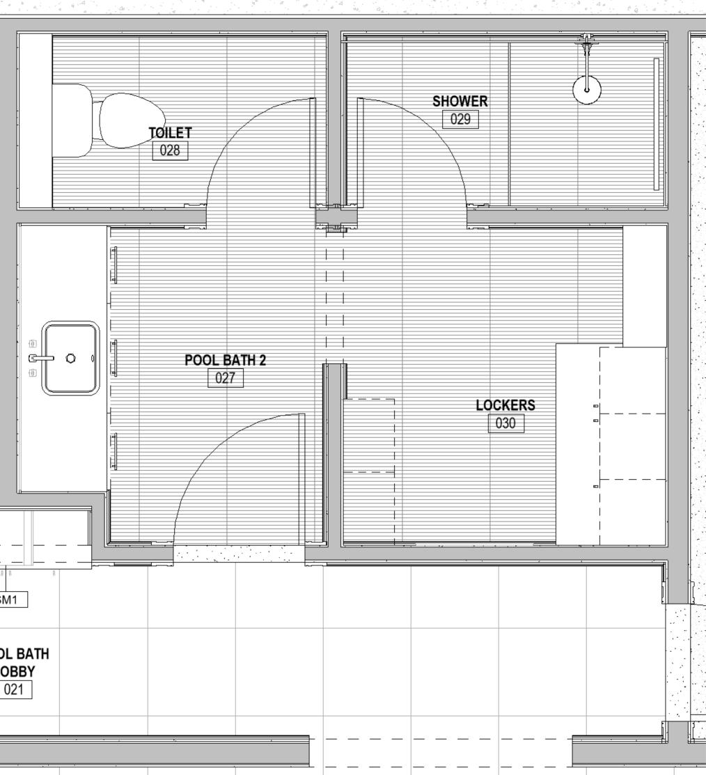
Lockers + Pool Bath 1 | Material Selections

Flooring + Backsplash
Countertop
Cabinet Color
Shower Tile

Lockers + Pool Bath 2 | Material Selections

Flooring + Backsplash
Countertop
Cabinet Color Shower Tile

Indoor Pool | Floor Plan

Indoor Pool | Material Selections

Paver Flooring
Ceiling Accent
Wood Ceiling Treatment
Walls

INDOOR POOL

Serving Area | Material Selections

Cabinetry
Countertop
Paver Flooring

SPA MOOD BOARD

Serene Organic Intimate Calming Relaxing

Spa Entry | Material Selections

Plaster
Countertop + Backsplash
Floor Tile
Cabinetry

Spa | Material Selections

Wall Accent Tile Plaster
Countertop
Floor + Wall Tile
Cabinetry
Wall Accent

View

View

View

View

Steam Room | Material Selections

Sauna | Material Selections

Massage Room | Material Selections

Carpet
Cabinets
Countertop
Plaster
Backsplash
Shelving

Massage Room | Material Selections

THEATER MOOD BOARD

Theater | Material Selections

Acoustic Panels
Tile Flooring
Carpet
Plaster

THEATER

THEATER

THEATER

FAMILY ROOM MOOD BOARD

Family Room | Material Selections

Carpet Countertop Cabinets Fabrics
Wallpaper
Plaster
Tile Floor

FAMILY ROOM

Perspective View

FAMILY ROOM

Perspective View

Candy Bar | Material Selections

Candy Bar Tile
ART
Barn Door Style

CANDY BAR

Perspective View

Suite 1 | Material Selections

Suite 1 | Material Selections

Carpet Wallcovering Wainscoting

Suite 1 Bath | Material Selections

Suite 1 Bath | Material Selections

Shower, Floor, + Backsplash
Cabinetry Countertop

Suite 2 | Material Selections

Suite 2 | Material Selections

Carpet Plaster
Shelving / Cabinetry

Suite 2 Bath | Material Selections

Suite 2 Bath | Material Selections

Cabinetry
Shower/Tub
Floor Tile

Suite 3 | Material Selections

Carpet Plaster Accent Paint Color

Suite 3 Bath | Material Selections

Countertop
Shower Tile
Cabinetry
Floor Tile

Bunks | Material Selections

Bunks | Material Selections

Carpet Wallcovering

Mudroom | Material Selections

Floor Tile
Upper Cabinetry
Lower Cabinetry
Bench

Powder Bath | Material Selections

Floor Tile
Wall Color
Wall Tile
Cabinetry

Laundry | Material Selections

Floor Tile
Backsplash Cabinetry
Countertop

Storage + Powder | Material Selections

Cabinetry

Epoxy
Pwdr Floor Tile
Pwdr Countertop

Guest Bed 1 | Material Selections

Carpet
Wallpaper

Guest Bath 1 | Material Selections

Countertop
Backsplash
Cabinetry
Flooring

Guest Bed 2 | Material Selections

Carpet
Wall Color

Guest Bath 2 | Material Selections

Countertop

Guest Entry Powder | Material Selections

Guest Laundry | Material Selections

Cabinet Color
Floor Tile

Garage | Material Selections

Epoxy
Cabinet Color
Countertop

Mudroom | Material Selections

Cabinets
Bench
Flooring

Storage | Material Selections

Cabinets
Countertop
Flooring

Command Center | Material Selections

Cabinetry Color Brick Flooring

COMMAND CENTER

Perspective View

COMMAND CENTER

Perspective View

KITCHEN MOOD BOARD

Kitchen | Material Selections

Cabinetry Color
Tile Backsplash
Brick Accent
Countertop
Main Wood Flooring
Wood Beams

KITCHEN ISLAND

Perspective View

KITCHEN ISLAND

Perspective View

Perspective View

KITCHEN ISLAND

Perspective View

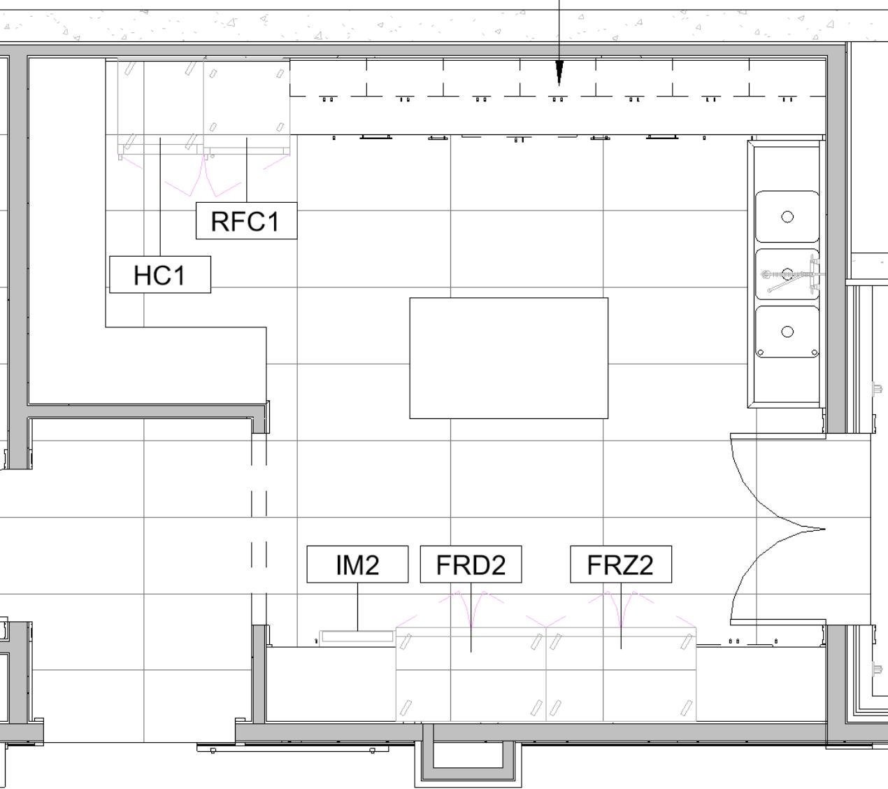
Pantry | Material Selections

View

PANTRY Perspective

Pantry Powder | Material Selections

Cabinetry

Countertop

Tile Backsplash

Chef’s Kitchen | Material Selections

Cabinetry Color Countertop

Floor Tile

Chef’s Kitchen Powder | Material Selections

Floor Tile Countertop
Cabinets

GREAT ROOM MOOD BOARD

Great Room | Material Selections

Plaster Wood Beams
Fireplace Stone Flooring Cabinets

GREAT ROOM

GREAT ROOM

GREAT ROOM

Entry | Material Selections

Main Wood Flooring
Plaster
Stair Runner

ENTRY

Owner Suite | Floor Plan

Owner Suite | Material Selections

Owner Suite | Material Selections

OWNER

OWNER

OWNER SUITE

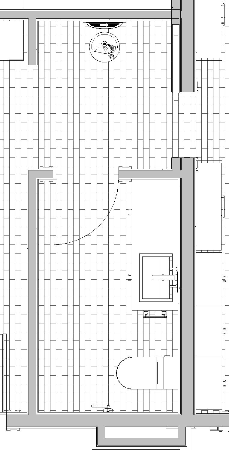
Owner Bath | Floor Plan

Owner Bath | Material Selections

Plaster
Paver Flooring
Cabinetry Countertop

Owner Bath | Vanities

Owner Bath | Makeup Vanity

Cabinetry

Makeup Vanity | Inspiration + Organization

Owner Bath | Bathtub

Owner Bath | Shower Details

OWNER

OWNER

OWNER

OWNER

OWNER

OWNER

OUTDOOR SHOWER

OWNER CLOSET MOOD BOARD

His Closet | Inspiration

His Closet | Material Selections

HIS CLOSET

HIS CLOSET

Her Closet | Material Selections

HER CLOSET

Perspective Views

HER CLOSET

Perspective Views

Laundry | Material Selections

Cabinetry
Paver
Flooring
Tile Backsplash

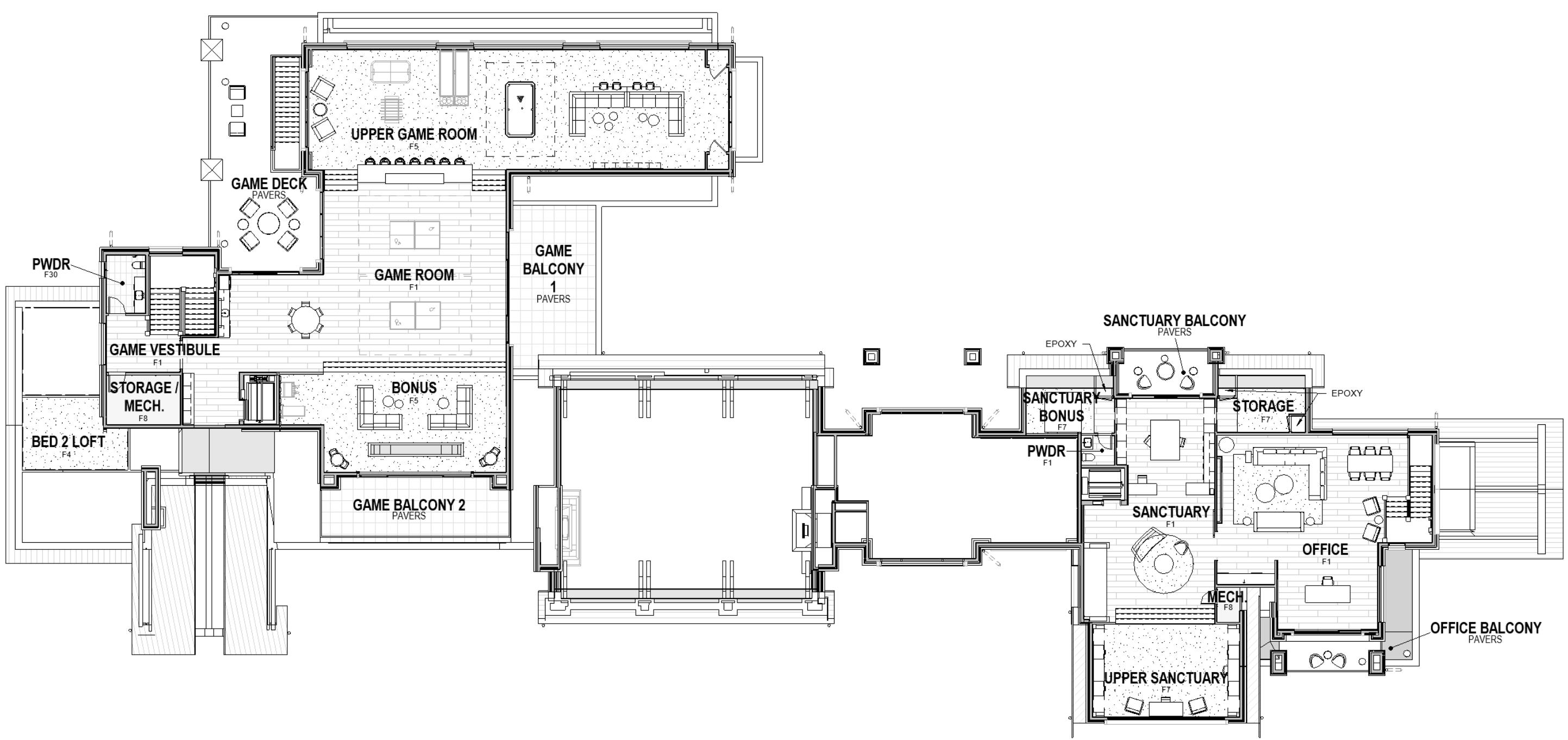
GAME ROOM MOOD BOARD

Game Room Powder | Material Selections

Countertop
Floor + Wall Tile

Three Falls 57 Residence

Game Room Wet Bar | Material Selections

Cabinetry Countertop
Flooring

GAME ROOM

View

Perspective

Game Room Bonus | Material Selections

Carpet

Game Room | Material Selections

Hardwood Ceiling Cabinetry Countertop + Bench

GAME ROOM

View

Perspective

Upper Game Room | Material Selections

Carpet Cabinetry
Brick Accent

GAME ROOM

View

Perspective

GAME ROOM

View

Perspective

SANCTUARY + OFFICE MOOD BOARD

SANCTUARY + OFFICE INSPIRATION

Sanctuary | Material Selections

Hardwood
Cabinet Color Ceiling Countertop
Plaster Carpet
Fabrics

Sanctuary – Powder Bath | Material Selections

Flooring
Cabinet Color Countertop
Plaster
Backsplash

Office | Material Selections

PLASTER
Accent Wall Fabrics
Plaster Cabinet Color Hardware
Wet Bar Backsplash
Hardwood
Countertop
Ceiling

Office | Material Selections

PLASTER
Plaster
Hardwood
Ceiling

Office – Wet Bar | Material Selections

PLASTER
Plaster Cabinet Color Hardware Wet Bar Backsplash
Hardwood Countertop Ceiling

Office Entry Powder | Material Selections

Plaster
Cabinet Color
Countertop
Flooring

THANK YOU!

Turn static files into dynamic content formats.

Create a flipbook
Issuu converts static files into: digital portfolios, online yearbooks, online catalogs, digital photo albums and more. Sign up and create your flipbook.