
漢柏府邸「綠園居」: 卑詩省建築與社交傳承的地標
3838 CYPRESS STREET | VANCOUVER, BC

位於 3838 Cypress Street 的「綠園居」,是溫哥華建築與社交傳承的地標。該宅邸建於 1912 年,由卑詩省二十世 紀初最具影響力的建築師之一 Thomas Hooper 設計,他以融合傳統歐洲風格與鮮明的加拿大特色而聞名。
綠園居 為 Hooper 最卓越的作品之一,與 Hycroft 府邸、維多利亞皇家銀行大樓 以及溫哥華首座鋼骨商業建築 Winch 大樓(Sinclair Centre)並列,皆展現其精湛工藝與對本地建築的持久影響。
3838 Cypress Street 宅邸最初由 副總督 Eric W. Hamber 及工業家 John Hendry 的女兒 Aldyen Hendry 擁
有,後者於 1913 年 將宅邸命名為「綠園居」。在他們的居住期間,宅邸曾接待多位名流,包括 加拿大總理 Louis St. Laurent、美國總統 Franklin D. Roosevelt 以及 喬治六世國王與伊麗莎白皇后。
建築上,綠園居 是 都鐸式 與 哥德復興式 風格的精湛融合,並融入 工藝美術運動(Arts and Crafts)的細節設計, 內部設有橡木鑲板、彩色玻璃窗及獨特的門廊。原有舞廳經建築師 Ross Lort 巧妙改造成日光室,將歷史宏偉與現 代實用性完美結合。
2003 年,綠園居 進行了細緻修復,既保留其歷史風貌,又融入現代設施。此項復新工程為宅邸贏得 Heritage A 歷 史建築認證及 溫哥華文化遺產獎,彰顯其建築與歷史的重要價值。






綠園居現況
2003 年,綠園居 進行了細緻的修復與翻新工程,在保護建築完整性的同時,融入現代設施。此次復新不僅使該宅邸 獲得 Heritage A 歷史建築認證,亦榮獲 溫哥華文化遺產獎,彰顯其歷史與建築價值,以及修復工程的卓越品質。
在修復期間,宅邸被改造成 並排雙併住宅,並在物業內新建兩棟獨立住宅,使整個 位於 First Shaughnessy 1.1 英 畝的街角地塊 擁有四個獨立法定產權、共三個住宅單位。
從外觀上看,3838 Cypress Street
仍展現其作為宏偉單一家庭宅邸的氣勢;而內部則設計為兩個獨立單位,各自
擁有法定產權,並提供多個內部連通選項。這種巧妙配置使物業既可作為獨立住宅使用,也可作為完整整合的宅邸 運作,為尋求兼具歷史風貌與現代功能的屋主或投資者提供無與倫比的靈活性。
今日的 綠園居 將歷史宏偉、現代更新與靈活居住完美融合,成為溫哥華最獨特且引人矚目的物業之一。


售價:
$7,890,000
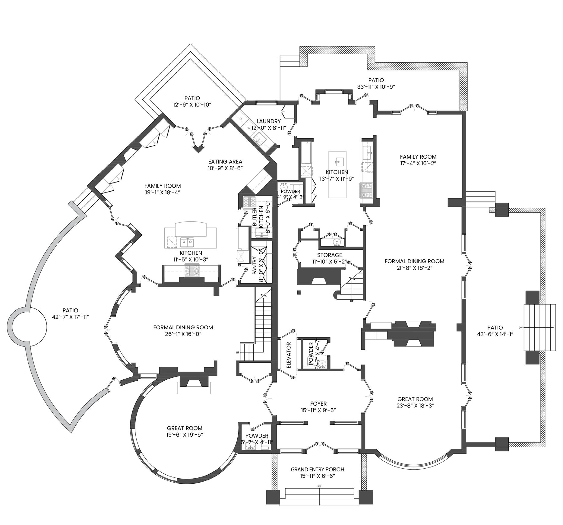
室內面積:
6,565 平方英呎
私人車位:
6
卑詩省評估局 (2025): 管理費:
$8,951,000
臥室數 / 浴室數:
5 臥室 / 7 浴室
管理費:
$0.00
永久業權分契
廚房:
附加設施: 2
電梯;地下停車場
主層 - 2,495 平方英呎
二樓 - 2,107 平方英呎
三樓 - 1,624 平方英呎
四樓 - 339 平方英呎
總計 - 6,565 平方英呎
附加空間
陽台總面積 - 741 平方英呎
露台總面積 - 868 平方英呎
爬行空間總面積 - 1,091 平方英呎
儲藏空間 - 439 平方英呎
門廊 - 157 平方英呎
雜項 / 洗衣房 - 523 平方英呎
車庫 - 2,883 平方英呎






單位 2 | 2 - 3838 Cypress Street


售價:
室內面積: 4,959 平方英呎
卑詩省評估局 (2025): 產權:
永久業權分契
臥室數 / 浴室數:
4 臥室 / 6 浴室
管理費: 附加特色:
主層 - 2,089 平方英呎
二樓 - 1,656 平方英呎
三樓 - 1,214 平方英呎
總計 - 4,959 平方英呎
附加空間
陽台總面積 - 218 平方英呎
露台總面積- 688 平方英呎
爬行空間 - 898 平方英呎
儲藏空間 - 439 平方英呎
門廊 - 157 平方英呎
雜項 / 洗衣房 - 523 平方英呎
車庫 - 2,883 平方英呎




Street


售價:
綜合卑詩省評估 (2025) 產權:
$15,228,000 $19,535,000
臥室 / 浴室:
室內面積: 11,796 平方英呎 9 臥室 / 13 浴室
私人車位:
永久業權分契
管理費: 附加特色:
主層 - 2,089 平方英呎 主層
附加空間
門廊 - 157 平方英呎
露台 - 688 平方英呎

二樓 - 1,656 平方英呎
附加空間
陽台總面積 - 218 平方英呎

三樓
三樓 - 1,214 平方英呎
附加空間
陽台 - 74 平方英呎

四樓 - 339 平方英呎

停車場
車庫 - 2,883 平方英呎
雜項 / 洗衣房 - 523 平方英呎
儲藏空間 - 439 平方英呎
爬行空間 - 898 平方英呎
地下空間總計 - 4,743 平方英呎






LINDSEY VERMETTE 地產顧問 行動:604.603.6031 | 辦公: 778.374.3100 電郵:lindsey.vermette@evrealestate.com 網站:lindseyvermette.evrealestate.com

MICHAEL MILLER 地產顧問 行動:778.242.6356 | 辦公:778.374.3100 電郵:michael@michaelmiller.homes 網站:michaelmiller.evrealestate.com
©2025 Engel & Völkers。版權所有。各加盟經紀公司獨立擁有並獨立營運。所載資料被認為可靠,但不作任何保證,買方應自行核實。如閣下之物業目前已與其他地產公司簽訂代理合約,則本文件並非意圖招攬該物業之上市。Lindsey Vermette 與 Michael Miller 並非團隊成員,其於本宣傳資料之參與僅屬合作性質。