Evita Kangchun Sun Portfolio 2025.1

Page 1


Selected works from 2022-2024

Furniture Design, 2023 Spring
Kangchun Sun, Evita
Portfolio

Collaborative Living Renovation Project Community Planning

Pioneer Homes Rehabilitation

Program

· Housing · Individual+Group · Fall 2024

Public Transition Blurred Boundaries

· Studio Complex · Individual · Spring 2024

Shimokitazawa Fashion Complex · Studio Complex · Individual · Spring 2024

Tectonic Accessibility Openness

Flow through Landscape Multiplanar Spaces

Performing Art Colony

Boundary of Public & Private CommunIty Integration

· Mix-Use Complex

· Individual

· Fall 2023

· Hostel

· Individual

· Spring 2023

· Representation

· Sketches

· Photography

· 2022 - 2024

Pioneer Homes Rehabilitation Program

Architecture Project |

Phase 1: 2024.9-2024.10 | 4 weeks | Individual

Phase 2: 2024.10-2024.11 | 7 weeks | Group

Site: Syracuse, New York, The USA

Total Property Area (Phase 1) : 180,000 sqf

Total Property Area (Phase 2) : 1,380,000 sqf

Pioneer Homes, one of Syracuse's first public housing projects, was established in 1939 as part of a New Deal initiative, replacing an eight-block stretch of homes and displacing 2,500 residents. While initially envisioned as a modern, temporary housing solution for upwardly mobile families, the development faced long-term neglect due to substandard materials and poor planning.

With the imminent removal of the I-81 viaduct and the East Adams Transformation Plan proposing complete demolition and reconstruction, the future of Pioneer Homes hangs in the balance.

The goal of The Pioneer Homes Rehabilitation Program is to create a community-driven housing model that prioritizes the dignity and needs of its working-class residents. It aims to create an equitable, inclusive, and diverse community space for local residents and the broader Syracuse population. By integrating multi-level privacy needs with public spaces that blend indoor and outdoor environments, the design aspires to foster vibrant social interactions and shared experiences, ensuring that Pioneer Homes remains a thriving and dignified space for future generations.

Current Site
Renovated Site Model
Long Elevations of renovated plan
Renovated Plan _ Axon

Phase 1_ Single Block Renovation

As part of the larger redevelopment project, we began by redesigning individual blocks, and I chose Stewart Court, which serves as a central and pivotal area for the entire project. My design for this block emphasizes creating a balance between public and private spaces while thoughtfully responding to the site’s unique conditions.

Stewart Court is bordered by a small park to the south, the current I-81 to the east, and residential areas to the north and west. This arrangement naturally defines a transition from public to private spaces, which is reflected in the placement of the residential buildings. In the southeastern section, apartments are positioned closer to the external environment, leveraging indoor corridors and elevated floor levels to enhance privacy.

Meanwhile, the block's interior features two large green spaces and smaller outdoor areas created through building setbacks. These green spaces form a gradient of public-toprivate use, with the largest connecting directly to the park, extending it into a potential linear park concept. The central green space is more enclosed, serving as a hub for residentspecific activities and fostering community interaction.

Section & Elevations
Current SIte
Zoning Diagram
Site Plan

A small commercial space is integrated into the southeastern corner, adjacent to the large green space. This area is envisioned to include cafes and shops, primarily for daytime use, potentially operated by residents, adding vibrancy and a sense of ownership to the community.

Architecturally, the design introduces a rotated layout for roads and buildings, along with balconies for every unit. These balconies, semi-enclosed and set back, enhance privacy, improve sunlight access, and provide residents with personal green spaces in the form of indoor gardens. The diagonal orientation and staggered arrangement of buildings minimize mutual shading, ensuring natural light reaches each unit. For the apartments, communal indoor spaces are included to further promote resident interaction and community building.

This redesign of Stewart Court integrates thoughtful spatial transitions, residentfocused amenities, and architectural solutions that balance density with privacy and green space, ensuring the block becomes a vibrant and sustainable part of the larger redevelopment vision.

Site Axon

Phase 2 _ Design Principles and Innovations

The project adopts a decentralized design principle. Instead of a single dominant center, multiple smaller hubs are strategically distributed throughout the community at the intersections of main roads, creating active social nodes. These hubs vary in size and function but are uniformly accessible. Each serves different interests and social needs, such as pet parks, sports fields, small art studios, or versatile green spaces for multipurpose use.

For the implementation of the project, the construction process begins at the edges of the community, gradually replacing existing structures with newly designed buildings. This phased approach ensures the systematic transformation of the entire neighborhood.

Renovated Site Plan
Construction Timeline
Current Site
Early Sketches

Centered around these new hubs, the community expands outward into a series of interconnected blocks, featuring three primary types of residential buildings:

Mixed-Use Buildings: Designed to support co-living and short-term rentals, with other floors allocated for commercial and community functions.

Apartments: Offering one- and two-bedroom units with semi-outdoor and indoor communal spaces to accommodate individuals and small households.

Townhouses: Catering to larger families, these units offer three or more bedrooms and are interconnected by skywalks to provide both privacy and convenience.

The distribution of buildings reflects their intended roles: Mixed-use buildings are positioned along the I-81 highway to maximize public accssibility, while apartments are strategically located near multiple hubs for ease of access. Townhouses, with their emphasis on privacy, are situated in quieter areas of the community.

Zoning Diagram

The apartment building also includes a physical therapy rehabilitation center, offering facilities for residents recovering from physical injuries.

Balcony doors will feature varied materials and designs, further emphasizing individual preferences and personalized living experiences.

Circulation Diagram
Interior Rendering
Exploeded Axon
Program Diagram

Apartment

The apartment design focuses on high-density living with one- and two-bedroom units, the most in-demand configurations. Modular layouts include four unit types—two with one bedroom and two with two bedrooms—offering options for open or closed kitchens.

To balance density with privacy, every unit features a balcony as a semi-outdoor personal retreat. Angled entryways enhance privacy and align with staggered balconies, allowing residents to personalize their doorways and adding warmth to shared corridors.

Two communal spaces enrich the design: a double-height, sunlit interior near the circulation core for private social interactions, and a semi-outdoor corner space connected to community hubs, opening toward the main path to welcome gatherings. Above, terraces combine with functional spaces like meeting rooms, gyms, and laundry facilities, fostering both convenience and vibrancy for residents.

Semi-outdoor and indoor social spaces connected to community hubs are designed to support diverse uses, allowing customization based on the unique needs and preferences of each building’s residents.

Exterior Rendering
Detail Chunk Model (Apartment)

Shimokitazawa Fashion Complex

Architecture Project | 2024.2 | 2.5 weeks | Individual

Site: Shimokitazawa Daiichi Parking Lot, Setagaya City, Tokyo, Japan

Footprint: 7,500 sqf

Total Property Area: 9,000 sqf

Early conceptual researches & practice

This project is a small educational and activity space designed for Syracuse University fashion design students during their study-abroad semester in Tokyo. The site is located in the Shimokitazawa district, a vibrant and laid-back neighborhood with a unique character that contrasts the typical high-density image of Tokyo. Shimokitazawa is renowned for its vintage clothing stores, cozy cafés on every corner, diverse ethnic restaurants, music shops, and bookstores.

Inspired by preliminary studies of architectural precedents and the unique qualities of fashion design, the project features a highly open and flexible space. The design is composed of modular elements following a consistent logic, formed by continuous, curved steel plates and their supporting vertical structures. These modular components create a cohesive and adaptable environment for education and creative exchange.

Axon

Robust steel plates, arranged in vertical arrays and linear forms, are combined with translucent fabrics to create a composition of weight and texture. Together, they define the interior and exterior spatial forms of the project, achieving a sense of layering. As perspectives shift, the incidental overlaps of these materials produce a semi-transparent façade effect, blurring the boundaries between interior and exterior spaces. The fabric draped over the structure further softens the presence of the structural columns, enhancing the interplay between transparency and solidity.

The asymmetry of these modular elements creates a dynamic variation in density throughout the project. The ground floor, designed as a semi-open activity space, integrates seamlessly with the street, inviting pedestrians to pass through the building and access another street while engaging with displayed artworks. This design fosters interaction between the public realm and the creative interior, making the project a natural extension of the vibrant urban fabric.

Sections

Bas-relief Model

One-Love Prosthetics Workshop

Architecture Project | 2024.3-2024.4 | 7 weeks | Individual

Site: Kigali, Rwanda

Net Total Area: 15000 sqf

Buildable Area: 5800 sqf

developed from Shimokitazawa Fashion Complex and its previous researches

“The type of a house we live in, and the type of clothes we wear, allow or deny us a social status, therefore access to resources and respect. This means that, as architects, we are involved in determining who belongs where and who does not. ”

This project is designed for One Love Project, a nonprofit organization based in Kigali, Rwanda, to create an orthopedic clinic and a prosthetics workshop. The organization and its facility serve individuals in Rwanda in need of prosthetic limbs, including survivors of the 1994 genocide and people with disabilities, such as children with physical impairments. In addition to providing medical and prosthetic services, the workshop also offers educational support, recreational opportunities, and care for individuals with disabilities, fostering a comprehensive approach to rehabilitation and community integration.

During the initial design phase, the studio conducted a comprehensive site analysis of Kigali, Rwanda, focusing on three key aspects: People, Material, and Infrastructure. This analysis revealed insights into local cultural practices, including the social tradition of milk bars, the relatively limited infrastructure, and the conservative linguistic environment. Additionally, it highlighted the potential of using mycelium as a sustainable and locally sourced building material, aligning the project with the context and resources of the area.

In my project, as a one-love project service center especially for the disabled, I wanted to emphasize their presence. Thus, I want to create spaces that first have full accessibility, secondly instead of hiding the imperfections of the disabled, normalizing their deficiencies, and third show a warm welcome as well as provide enough protections.

I envision this studio as a space that prioritizes accessibility for individuals with disabilities while ensuring openness to create a strong sense of welcoming. The goal is for One Love to function not just as a service-oriented project for an “invited” group, but as a public space that unites the entire community. It should be a place where even passersby feel compelled to stop by, fostering inclusivity and connection among all members of the community.

The goal of the project is to “design a set of architectural tectonics that enhance sensory experiences”.

The ramp is the central element of the project, functioning as both circulation and a spatial organizer. At the heart of the design, the prosthetics workshop connects indoor and outdoor spaces and remains open to the public, fostering community interaction.

From the street entrance, the design transitions from a twostory semi-open space, defined by an elongated ramp, to a more enclosed three-story section with a circular ramp. The outdoor space at the entrance is fully public, and the ramp splits into three pathways: one leading to the canteen and outdoor gym, another connecting the milk bar, prosthetics workshop, and therapy spaces, and a third providing access to therapy, classrooms, offices, and other areas.

The ramps, metal shelters, and tensile cables create a strong linear flow, shaping circulation and fostering a welcoming atmosphere. Within the three-story section, the ramp guides users through spaces with varying privacy levels, with misaligned floors following its trajectory to meet the needs of each program.

In the core, the ramp becomes circular, wrapping around two steel shelters and layering the interior spaces. This shift creates a sense of enclosure while maintaining openness. The steel shelters, composed of weathered steel plates, structural columns, and a mycelium insulation core, enhance functionality and sustainability. Select areas expose the mycelium, adding translucency and allowing more natural light, blending material innovation with spatial and environmental design.

Physical Model
Narrative Drawing
Sectional Perspective Rendering

Performing Art Colony

Architecture Project | 2023.10-2023.11 | 7 weeks | Individual

Site: Stone Quarry Hill Art Park, Cazenovia, The USA

Net Total Area: 15,000 sqf

Total Property Area: 40,000 sqf

Buildable Area: 9,000 sqf

Stone Quarry Hill Art Park, established in 1991, is a nonprofit outdoor art space. The concept of Art Colonies originated in the 19th century, when artists began to retreat from industrialized cities in search of tranquility in nature. These colonies were small, exclusive communities where artists worked in close proximity, fostering a sense of belonging for a select group of “elites” and “talents.”

This project reimagines the art colony typology within the sociocultural context of New York State by introducing a new cluster of service buildings at Stone Quarry Hill Art Park. The design aims to foster artistic creativity, support the collection of artworks, and establish a community-oriented collective, bringing art to a broader audience.

In my project, the previously overlooked realm of "performing arts" becomes the centerpiece. By interpreting the relationships between indoor and outdoor spaces, as well as private and public realms, the design creates interactive environments that bridge the connection between people and art.

Rendering

By analyzing the existing buildings, key focal points, and the spatial relationships of various installation artworks within the site, this project seeks to reconstruct visitors' pathways through the strategic alignment of sightlines. Leveraging the site's sloped terrain, the design enhances the visitor experience by shaping broader vistas and offering more immersive spatial engagements.

Section

Rendring

The entire architectural complex is connected through three "theaters" of varying sizes and degrees of enclosure, bringing together diverse performance styles. The varying levels of enclosure accommodate a wide range of artistic expressions and performance formats, fostering inclusivity and versatility in the artistic experiences offered.

Oblique Drawing

The overall circulation of the project adopts a C-shaped layout, utilizing the slope to create a "second ground level" that links the three buildings. This design provides visitors with dynamic perspectives of the central plaza within the architectural complex, enhancing spatial connectivity and visual engagement.

Rendering
Sectional Model
Site Conceptual Model

The project emphasizes a strong linear composition, with the architectural complex, low walls surrounding the central courtyard, and the sloped "second ground level" defining the boundaries. The roofs, ramps, and natural slopes work together to create visual guidance, enhancing spatial orientation and flow throughout the site.

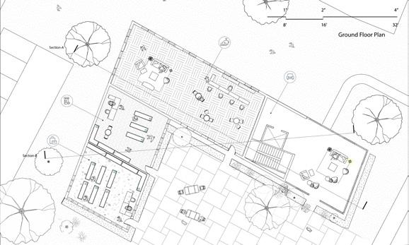
Westcott Hostel

Architecture Project | 2023.3-2023.4 | 4.5 weeks | Individual

Site: Westcott Community, Syracuse, The USA

Footprint: 10,300 sqf

Total Property Area: 14,600 sqf

The design began with four simple volumes, which were connected to form a central garden. Through slight offsets and edge refinements, the current layout was developed. The sloped roofs, with their angles and cuts, echo the geometry of the volumes while blending harmoniously with the surrounding residential architecture. The four smaller units frame the central courtyard while leaving a passage that maintains the site’s original circulation, allowing pedestrians to move directly from the road to the parking area.

Situated within a culturally rich and artistic neighborhood, the project focuses on providing ample public spaces for art exchange and community interaction. The two buildings on the left are primarily dedicated to public functions, while the two on the right focus on residential uses. The ground floor opens almost entirely to the central courtyard, facilitating spatial connections and serving as a venue for small performances. Internally, the four buildings are linked by a circular circulation path around the courtyard, ensuring seamless connectivity to the central space and between all units.

Ground Floor Plan
Physical Model
Physical Model

Other Work

Representation

Photography

Kangchun(Evita) Sun

Email: ksun16@syr.edu

Phone: +1 315 418 1209

+86 157 2060 0415

Of the Everyday (Collage, 2022)

Resume Kangchun Sun (Evita)

Contact Education

315 418 1209

ksun16@syr.edu

Currently studying in Florence (2025.1-2025.4)

Syracuse University

Bachelor of Architecture (B.Arch.)

Syracuse University Florence

Skill Experience

3D Modeling: Rhinoceros | SketchUp | AutoCAD | V-Ray | Revit | Blender

Microsoft Office: Word | PowerPoint | Excel

Adobe: InDesign | Illustrator | Photoshop | Premiere Pro

Fbrication: Laser Cutting | CNC | 3D

Printing | Wood | Acrylic | Paper | Chipboard | Foam Core | Hand

Sketching | Manual Drafting

Digital Photography

Video Production

Audio Production (Logic Pro)

Awards

2022 | Syracuse University

Scholarship

2022-Present | Syracuse University

Dean’s List (4 semesters)

2024 Spring | Syracuse University Sliver Prize_Top Voted

GPA 3.98 2022-2027 Spring 2025

Architectural Intern

AZL Architects

Research and Design Assistance

Case studies research; help construct initial design models; assist with physical model production

Club Coordinator Flow Music Club

Assisting with music performances activities Editor of the club's journal

Volunteer Leader

Aranya Theater Festival

Outstanding Volunteer in the Public Arts Section. Volunteer Coordinator, Theater Parade Props Production

Editor Intern

ArchiDogs

Internship in the media department

Writing construction-related information journals and producing videos

Chief Producer

High School Media Team

Video production, member management 10th anniversary program planning and directing

Housing

Individual + Group

Fall 2024

Studio Complex

Individual

Spring 2024 · Mix-Use Complex · Individual

Studio Complex

Individual

Spring 2024

· Fall 2023 · Hostel · Individual · Spring 2023

· Representation · Sketches · Photography · 2022 - 2024

Group · Fall 2024

Link

Turn static files into dynamic content formats.

Create a flipbook
Issuu converts static files into: digital portfolios, online yearbooks, online catalogs, digital photo albums and more. Sign up and create your flipbook.