PRE ENTREGA

Page 1

PRE - ENTREGA

PROYECTO INTEGRAL I

PONTIFICIA

EDIFICIO CORPORATIVO - ECO TOWER ESTEBAN CORTEZ OCAMPO UNIVERSIDAD JAVERIANA CALI

Universidad

Eco Tower 2024-1

Esteban Cortez Ocampo Proyecto Integral Bioclimático I Pontificia Javeriana Cali
02
03
CAPITULO 1 LOCALIZACIÓN CAPITULO 4 TÉCNICA CAPITULO 2 DISEÑO ARQUITECTÓNICO CAPITULO 3 ESTRATEGIAS BIOCLIMÁTICAS 9 33 37 5
ÍNDICE
04

CAPITULO 1 LOCALIZACIÓN

05

LOCALIZACIÓN

1. Supermercado Cañaveral

2. Alto Pance mall

3. Centro comercial Pance 122

Proyecto situado en la ciudad de Cali dentro de la comuna 22, más específicamente en Pance.

El lote esta ubicado sobre la Cra 122 y entre las cl. 17 y 16A.

Esta zona se caracteriza por el uso educativo, comercial, residencial y su alto tráfico vehicular.

Localización 06
1 2 3

NORMATIVA

Área lote: 2542.96 m2

Normativa de ocupación: Requerido Planteado

Índice de ocupación (0.6):

1339.71 m2

Índice de construcción base (1.6): 3572.56 m2

Índice de construcción adicional (2.5): 5582.12 m2

Índice de construcción total (4.1): 9154.68 m2

ESQUEMA BÁSICO CRA 122

1327.59m2 (0.59)

AISLAMIENTOS POSTERIORES

7707m2(3.45)

AISLAMIENTOS LATERALES

Aislamientos laterales y posteriores que aplican para el lote de acuerdo a las normas volumétricas.

Se aplica el Esquema Básico que corresponde a la ampliación víal de la Cra 122.

Proyecto Integral Bioclimático I - Edificio Mixto
07
08

CAPITULO 2 DISEÑO ARQUITECTÓNICO

09

ESTRATEGIAS DE IMPLANTACIÓN

1.Volúmen comercio: Se ubica el volúmen del primer piso retranqueado, con los aislamientos correspondientes y el uso comercial

USOPÚBLICO USOPRIVADO

ENTRADAVEHICULAR

2.Jerarquización accesos: Se jerarquizan los accesos peatonales que correspondan con el uso público o privado. Además se aprovecha el punto mas bajo del lote para ubicar el ingreso vehicular.

5.Réplica: Se replica un mismo volúmen añadiendo el uso corporativo al edificio.

3.Aislamientos laterales: Se eleva el segundo piso comercial, retrocediendo el volúmen para mantener el aislamiento en altura.

5.Dilatar: Se dilata la altura de algunos niveles con el fin de generar diferencia en los usos que contienen.

6.Dinamismo: Se generan sustracciones y adiciones en los volúmenes del uso corporativo para crear protección solar y dinamismo a las oficinas.

Diseño Arquitectónico 10

PROGRAMA

REQUERIMIENTOS PROGRAMA

Oficinas: unidades 40 a 50.

Locales comerciales: con vitrina a vía principal, de 3 a 4 unidades.

Local Ancla: una unidad entre 400 y 500m2 con zona de descargue y bodega.

Planta Gastrobar: Cocina

Baños

Área de mesas

Puntos fijos

Planta tipo (piso 4,6 y 8): 6 oficinas

Sala de juntas

Zona gastronómica: 2 a 4 unidades de restaurantes con zona de mesas y cocina.

Gastrobar: una unidad como remate del edificio.

GASTROBAR

CORPORATIVO

RESTAURANTES

COMERCIAL

Baños

Punto fijo

Planta tipo (piso 3,5,7 y 9): 6 oficinas

Sala de juntas

Baños

Puntos fijo

Planta restaurantes:

3 restaurantes

Área de mesas

Baños

Puntos fijos

Casino

Planta pública: 3 locales comerciales

Local ancla

Bodega local ancla

Lobby oficinas

Punto fijos

Se ubican los usos requeridos en el programa de acuerdo a su grado de privacidad con el fin de generar una transición adecuada.

Proyecto Integral Bioclimático I - Edificio Mixto
11

PLANTA PÚBLICA ESC 1:200

Diseño Arquitectónico 12
Proyecto Integral Bioclimático I - Edificio Mixto 13

PLANTA RESTAURANTES ESC 1:200

Diseño Arquitectónico 14
Proyecto Integral Bioclimático I - Edificio Mixto 15

PLANTA TIPO 1 PISOS

3, 5, 7 Y 9 ESC 1:200

Diseño Arquitectónico 16

PLANTA

TIPO 2

PISOS

4, 6 Y 8 ESC 1:200

Proyecto Integral Bioclimático I - Edificio Mixto
17

PLANTA GASTROBAR ESC 1:200

Diseño Arquitectónico 18
Proyecto Integral Bioclimático I - Edificio Mixto 19

PLANTA CUBIERTAS ESC 1:200

Diseño Arquitectónico 20
Proyecto Integral Bioclimático I - Edificio Mixto 21

Carros: 44

Motos: 13

Bicicletas: 39

Zona de carga y descarga: 2 de 6 x 10 metros

Diseño Arquitectónico 22
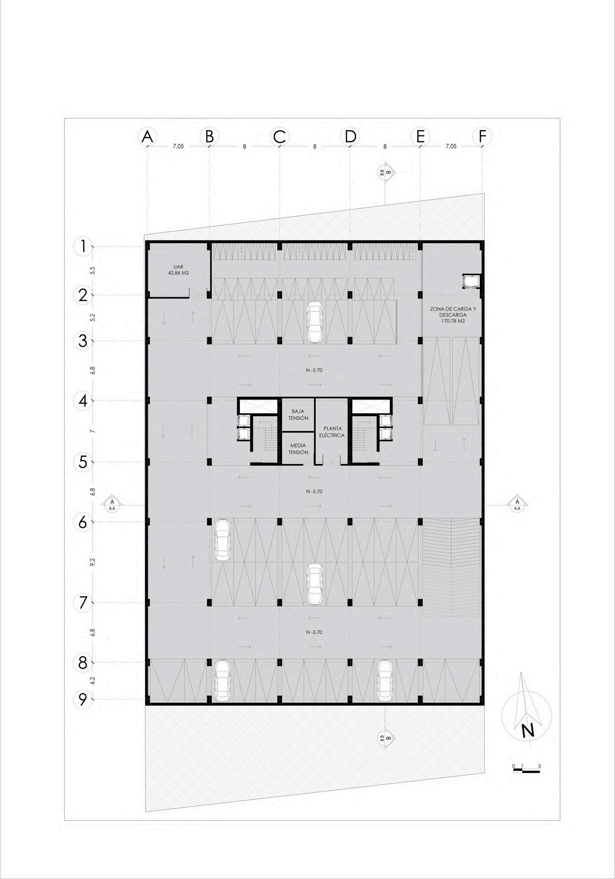
PLANTA SEMISÓTANO ESC 1:200

Carros: 44

Motos: 22

Bicicletas: 48

Proyecto Integral Bioclimático I - Edificio Mixto 23

CORTES ESC 1:200

CORTE TRANSVERSAL A-A

CORTE LONGITUDINAL B-B

Diseño Arquitectonico 24
Proyecto Integral Bioclimático I - Edificio Mixto 25

FACHADAS

FACHADA SUR FACHADA ESTE

Diseño Arquitectónico 26

FACHADAS

Proyecto Integral Bioclimático I - Edificio Mixto
27
FACHADA NORTE FACHADA OESTE

VISTAS

Diseño Arquitectónico 28
Proyecto Integral Bioclimático I - Edificio Mixto 29

VISTAS

Diseño Arquitectónico 30

VISTAS

Proyecto Integral Bioclimático I - Edificio Mixto
31
32

CAPITULO 3

ESTRATEGIAS BIOCLIMÁTICAS

33

VARIABLES BIOCLIMÁTICAS

Clasificación climática: El proyecto se encuentra en una clasificación de templado semihúmedo (Tsh).

Precipitación: La precipitación anual en la zona del proyecto esta entre los 1500 y 1600 mm al año.

Temperatura: La temperatura media anual varía entre los 24°C en la zona del proyecto. vientos: Vientos predominantes del noreste.

Estrategias Bioclimáticas 34

BIOCLIMÁTICA

RECORRIDO SOLAR

Recorrido solar de este a oeste. Se direccionan las oficinas hacia las fachadas norte y sur.

VENTILACIÓN

Se genera ventilación curuzada en el edificio por medio de celosías y ventanas.

Concreto: Estructura, muros y pisos.

Fibrocemento equitone: Recubrimiento puntos fijos

MATERIALIDAD

Vidrío: Ventanas.

Adoquin: Planta pública.

VEGETACIÓN

Panelex: Acabados en madera.

Aluminio: Carpintería metálica.

Proyecto Integral Bioclimático I - Edificio Mixto AM
35
Monstera deliciosa Palma real Alocasía Palma areca Helecho costeño Uva rusa
36

CAPITULO 4 TÉCNICA

El proyecto se compone de un sistema aporticado en concreto compuesto por columnas, vigas y viguetas.

El núcleo central del proyecto lo componen los puntos fijos que contienen toda la circulación vertical del edificio, que a su vez sirven como refuerzo estructural para el edificio.

Se busca que los buitrones que contienen los sistemas del edificio esten en estos puntos fijos ya que necesitan una continuidad a través de todos los pisos.

Técnica 38
TÉCNICA

CUADRO DE FACTIBILIDAD

CUADRO DE PARQUEADEROS

Proyecto Integral Bioclimático I - Edificio Mixto
39
40
41

Turn static files into dynamic content formats.

Create a flipbook
Issuu converts static files into: digital portfolios, online yearbooks, online catalogs, digital photo albums and more. Sign up and create your flipbook.