Skip to main content

PORTFOLIO: Inst. Interiores

Page 9

UNJBG-FIAG-ESCUELA DE ARQUITECTURA

PORTFOLIO

INSTALACIONES SANITARIAS

UNJBG-FIAG-ESCUELA DE ARQUITECTURA

ERICK RAY HUANACUNI ZAPANA

ESTUDIANTEDEARQUITECTURA,21AÑOS

Estudiante de la carrera de Arquitectura en la universidad Jorge Basadre Grohmann, Tacna, Perú.

ehuanacuniz@unjbg.edu.pe

Estudiante que continua aprendiendo de la Arquitectura analizando las grandes obras que nos dejo como legado los maestros y aprender de ellos mismos para tener mi propia percepción de la Arquitectura. Un Arquitecto tiene que usar su creatividad, arriesgarse y aprender a innovar para crear una Arquitectura nueva y diferente. El saber representar a mano y digitalmente nos acompañará en nuestra vida profesional para expresar nuestras ideas y darle forma a nuestra Arquitectura

UNJBG-FIAG-ESCUELA DE ARQUITECTURA PERFIL DEL CURSO

CURSO: Instalaciones Sanitarias

SECCIÓN: Grupo B

DOCENTE: Arquitecta Esther Chambe Vega

SUMILLA: Asignatura del área de formación tecnología profesional; de carácter teórico - práctico; cuyo propósito es comprender el proceso de diseño de las instalaciones eléctricas y sanitarias en las edificaciones. Su contenido temático comprende: Unidad 1 simbología y representación gráfica, trazo de redes agua, desagüe, ubicación física de componentes, aparatos sanitarios y equipos eléctricos; nociones Básicas de cálculo hidráulico; Unidad 2 diseño eléctrico y lumínico, redes sistemas circuitos eléctricos, nociones básicas de cálculo, otros sistemas.

UNJBG-FIAG-ESCUELA DE ARQUITECTURA PERFIL DEL CURSO

COMPETENCIAS

Competencia Genéricas Institucionales:

CG-2 DEMUESTRA habilidad en el manejo ético y responsable de las tecnologías de la información y comunicación.

Competencias del Perfil de Egreso:

CE-2 CONSTRUYE obras urbanas y arquitectónicas de calidad, para dotar de espacios seguros a la comunidad con ética y de acuerdo a los estándares normativos.

UNJBG-FIAG-ESCUELA DE ARQUITECTURA

“De la fuerza creativa de cada individuo dependerá su sensibilidad y su capacidad para dar una expresión visible a sus sentimientos. ”

ERNST NEUFERT

UNIDAD I

EXPERIMENTO (PRESIÓN)

INSTALACIONES SANITARIAS NORMA IS.010

LOCALES DE ALIMENTACIÓN COLECTIVA

VENTAJAS Y DESVENTAJAS DEL TANQUE

SÍMBOLOS GRÁFICOS DEL AGUA

CÁLCULO DE MI VIVIENDA

CÁLCULO DE VIVIENDA

PLANOS DE INSTALACIÓN DE AGUA

SÍMBOLOS GRÁFICOS DE DESAGUE

PLANOS DE INSTALACIÓN DE DESAGUE

Í N D I C E

UNJBG-FIAG-ESCUELA DE ARQUITECTURA EXPERIMENTO (PRESIÓN)

VALORACIÓN REFLEXIÓN

El trabajo tiene como objetivo hacer un experimento didáctico en donde apreciamos como se comporta el agua en una manguera de esa forma y como empieza ha desnivelarse el agua cuando elevas uno de sus lados.

UNJBG-FIAG-ESCUELA DE ARQUITECTURA EXPERIMENTO (PRESIÓN)

UNJBG-FIAG-ESCUELA DE ARQUITECTURA

INSTALACIONES SANITARIAS NORMA IS.010

VALORACIÓN REFLEXIÓN GENERALIDADES

Esta Norma contiene los requisitos mínimos para el diseño de las instalaciones sanitarias para edificaciones en general Para los casos no contemplados en la presente Norma, el ingeniero sanitario fijará los requisitos necesarios para el proyecto específico, incluyendo en la memoria descriptivo.

CONDICIONES GENERALES

a) Para efectos de la presente norma, la instalación sanitaria comprende las instalaciones de agua, agua contra incendio, aguas residuales y ventilación.

b) El diseño de las instalaciones sanitarias debe ser elaborado y autorizado por un ingeniero sanitario colegiado.

c) El diseño de las instalaciones sanitarias debe ser elaborado en coordinación con el proyectista de arquitectura, para que se considere oportunamente las condiciones mas adecuadas de ubicación de los servicios sanitarios.

DOCUMENTOS DE TRABAJO

Todo proyecto de instalaciones sanitarias para una edificación, deberá llevar la firma del Ingeniero Sanitario Colegiado. La documentación del proyecto que deberá presentar para su aprobación constará de:

a) Memoria descriptiva que incluirá:

Ubicación.

Solución adoptada para la fuente de abastecimiento de agua y evacuación de desagüe y descripción de cada uno de los sistemas.

b) Planos de

Sistema de abastecimiento de agua potable: instalaciones interiores, instalaciones exteriores y detalles a escalas convenientes y esquemas isométricos cuando sea necesario.

Sistema de desagües; instalaciones interiores, instalaciones exteriores y detalles a escalas convenientes y esquemas isométricos, cuando sea necesario.

Sistema de agua contra incendio, riego, evacuación pluvial etc., cuando las condiciones así lo exijan.

El trabajo tiene como objetivo brindarnos la normativa necesaria para instalaciones sanitarias y como se rigen los parámetros de la cantidad de los aparatos sanitarios en cada equipamiento y analizar el porque esta configurado de esa manera

UNJBG-FIAG-ESCUELA DE ARQUITECTURA NÚMERO DE APARATOS SANITARIOS

Todo núcleo básico de vivienda unifamiliar, estará dotado, por lo menos de: un inodoro, una ducha y un lavadero

En locales con área mayor de 60 m2 se dispondrá de servicios sanitarios separados para hombres y mujeres, dotados como mínimo de los aparatos sanitarios que indica la tabla N°1

LOCALES INDUSTRIAS

Los locales con capacidad de atención simultánea hasta de 15 personas, dispondrán por lo menos de un servicio sanitario dotado de un inodoro y un lavatorio. Cuando la capacidad sobrepase de 15 personas, dispondrán de servicios separados para hombres y mujeres de acuerdo con la Tabla Nº 3

CENTROS COMERCIALES

En los centros comerciales, supermercados y complejos dedicados al comercio, se proveerá para el público, servicios sanitarios separados para hombres y mujeres en la siguiente proporción indicada en la Tabla Nº 2

En las plantas industriales, todo lugar de trabajo debe estar provisto de servicios sanitarios adecuados y separados para cada sexo La relación mínima que debe existir entre el número de trabajadores y el de servicios sanitarios se señala en la Tabla Nº 4.

EDUCACION HOSPEDAJES

En los locales educacionales, se proveerán servicios sanitarios según lo especificado en la Tabla Nº 5, de conformidad con lo estipulado en la Resolución Jefatural Nº 338-INIED83 (09.12 83).

HOSPEDAJES

En todos los locales de hospedaje se instalarán servicios sanitarios en las proximidades a los lugares de reunión, independientes para hombres y mujeres, tal como se señala en la Tabla Nº 7.

LOCALES DE COMIDA

Los locales destinados para servicios de alimentación colectiva, deberán estar dotadas de servicios sanitarios independientes para hombres y mujeres, tal como se señala en la Tabla Nº 8.

Para locales de hospedaje, se proveerá de servicios sanitarios, de conformidad con el Reglamento de Establecimientos de Hospedaje DS Nº 006-73-IC/ DS según como sigue

HOSPITALES

En hospitales, clínicas y similares se considerará el tipo y servicios sanitarios que se señalan a continuación:

UnidaddeAdmnistracón

UNJBG-FIAG-ESCUELA DE ARQUITECTURA INSTALACIONES SANITARIAS NORMA IS.010

UnidaddeConsultaExterna

LOCALES DEPORTIVOS

En los locales deportivos, se proveerá servicios sanitarios para deportistas y personal conexo, de acuerdo a la Tabla Nº 9

BAÑOS PUBLICOS

LOCALES PARA ESPECTACULOS

MERCADOS

UnidaddeHospitalzacón

PLAYAS

OBRAS

EXPENDIO DE COMBUSTIBLE

UNJBG-FIAG-ESCUELA DE ARQUITECTURA

LOCALES DE ALIMENTACIÓN COLECTIVA VALORACIÓN

REFLEXIÓN

En este trabajo es importante ir a los locales de alimentación colectiva para realizar un análisis real de los aparatos sanitarios y si cumplen o no con lo establecido en la normativa, además de el mantenimiento que se les da y si son óptimos los ambientes para los usuarios

UNJBG-FIAG-ESCUELA DE ARQUITECTURA

LOCALES DE ALIMENTACIÓN COLECTIVA

UNJBG-FIAG-ESCUELA DE ARQUITECTURA

LOCALES DE ALIMENTACIÓN COLECTIVA

UNJBG-FIAG-ESCUELA DE ARQUITECTURA

LOCALES DE ALIMENTACIÓN COLECTIVA

UNJBG-FIAG-ESCUELA DE ARQUITECTURA VENTAJAS Y DESVENTAJAS DE TANQUE VALORACIÓN

REFLEXIÓN

Con este trabajo se analizó el uso del tanque prefabricado y el de concreto, que ventajas y desventajas tiene el uno del otro, y cual es la mejor elección para el tipo de equipamiento, además de la importancia de su normativa y su cumplimiento

UNJBG-FIAG-ESCUELA DE ARQUITECTURA VENTAJAS Y DESVENTAJAS DE TANQUE

UNJBG-FIAG-ESCUELA DE ARQUITECTURA

SIMBOLOS GRAFICOS DE AGUA

VALORACIÓN

REFLEXIÓN En este trabajo se aprendió la simbología de las instalaciones sanitarias de agua y como hay que representarlos en los planos, esto nos ayudará en nuestra formación profesional al hacer planos de tuberías

UNJBG-FIAG-ESCUELA DE ARQUITECTURA SIMBOLOS GRÁFICOS DE AGUA

UNJBG-FIAG-ESCUELA DE ARQUITECTURA SIMBOLOS GRAFICOS DE AGUA

UNJBG-FIAG-ESCUELA DE ARQUITECTURA CÁLCULO DE MI VIVIENDA

REFLEXIÓN

Este trabajo fue muy útil e interesante porque se pudo realizar el gasto probable que se debe tomar de mi vivienda y también la capacidad de tanque que se debe considerar en mi vivienda

UNJBG-FIAG-ESCUELA DE ARQUITECTURA CÁLCULO DE MI VIVIENDA

UNJBG-FIAG-ESCUELA DE ARQUITECTURA CÁLCULO DE MI VIVIENDA

UNJBG-FIAG-ESCUELA DE ARQUITECTURA CÁLCULO DE VIVIENDA

REFLEXIÓN

En este trabajo grupal se identificó los cálculos de la vivienda para identificar la capacidad del tanque cisterna y elevado, también del gasto probable de la vivienda.

UNJBG-FIAG-ESCUELA DE ARQUITECTURA CÁLCULO DE VIVIENDA

UNJBG-FIAG-ESCUELA DE ARQUITECTURA

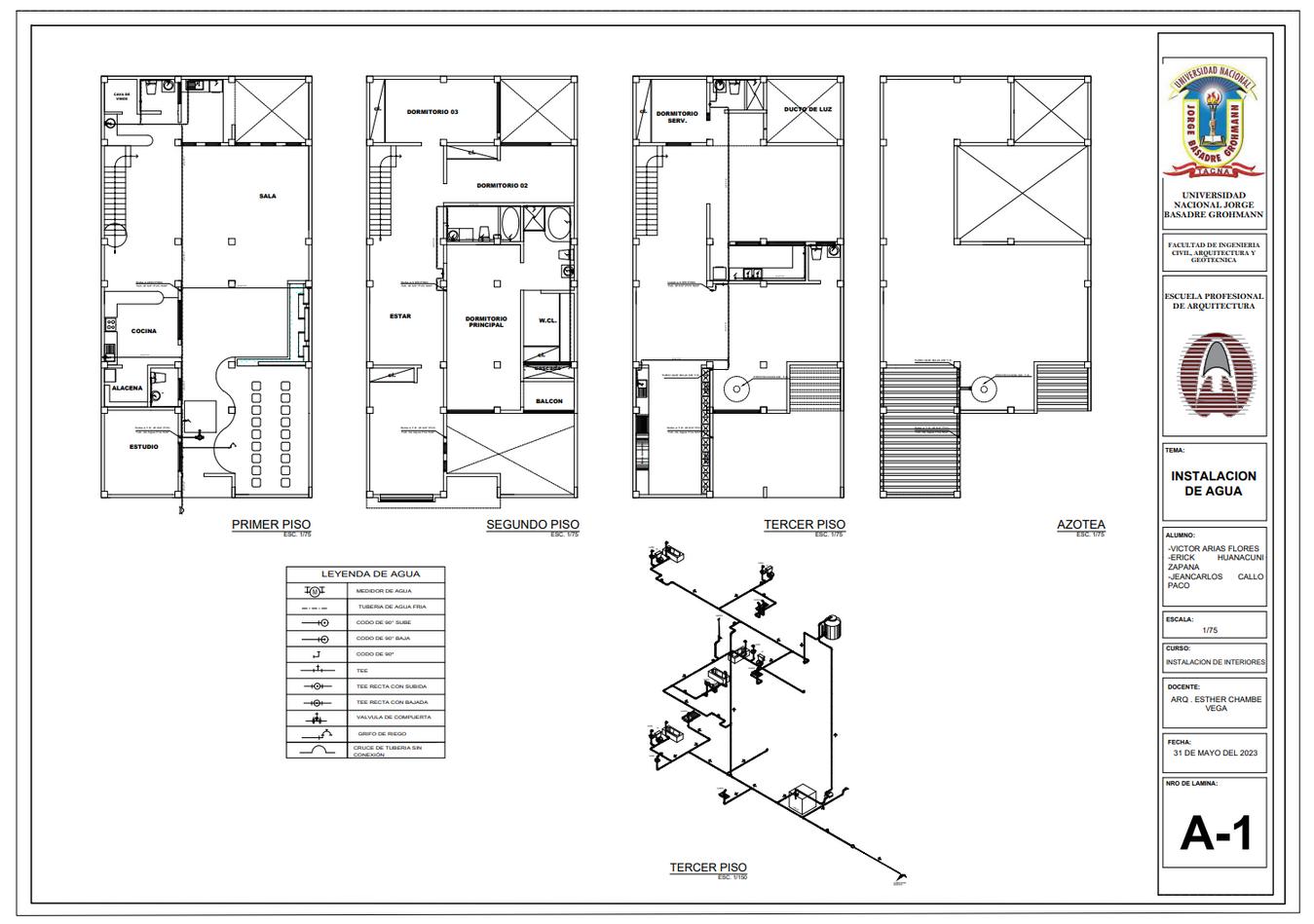
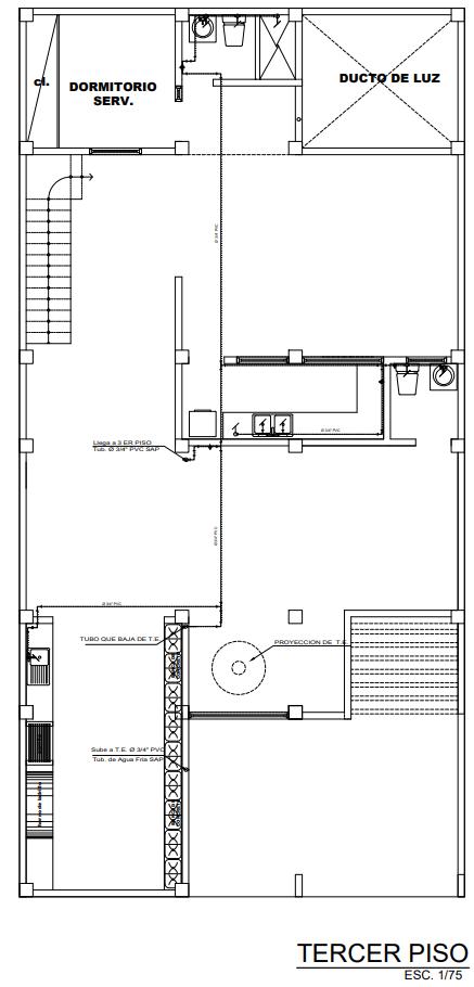
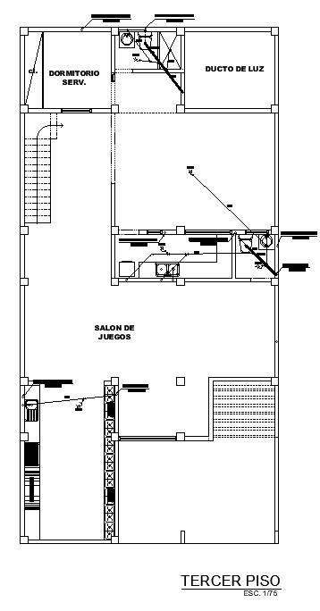
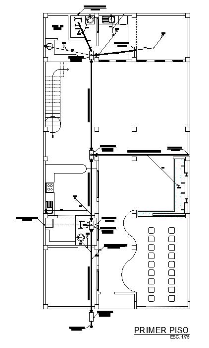
PLANOS DE INSTALACIÓN DE AGUA

UNJBG-FIAG-ESCUELA DE ARQUITECTURA PLANO DE INSTALACIÓN DE AGUA

REFLEXIÓN

En el planteamiento de instalaciones de agua, en la critica nos fue bien pero nos faltaba completar detalles de representación, posteriormente se corrigieron todos las observaciones dadas y agregamos lo que faltaba para la presentación final.

UNJBG-FIAG-ESCUELA DE ARQUITECTURA

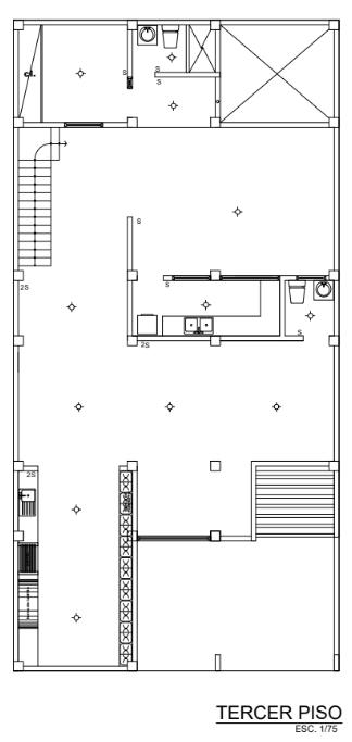
SIMBOLOS GRÁFICOS DE DESAGUE

UNJBG-FIAG-ESCUELA DE ARQUITECTURA SIMBOLOS GRÁFICOS DE DESAGUE

UNJBG-FIAG-ESCUELA DE ARQUITECTURA SIMBOLOS GRÁFICOS DE DESAGUE

REFLEXIÓN

En este trabajo se aprendió la simbología de las instalaciones sanitarias de desague y como hay que representarlos en los planos, esto nos ayudará en nuestra formación profesional al hacer planos de tuberías de desague.

UNJBG-FIAG-ESCUELA DE ARQUITECTURA

PLANOS DE INSTALACIÓN DE DESAGUE

UNJBG-FIAG-ESCUELA DE ARQUITECTURA

PLANOS DE INSTALACIÓN DE DESAGUE

REFLEXIÓN

Para la realización de la propuesta de instalación de desague la crítica fue un poco mas complicada porque había que considerar la pendiente, las montantes, sumideros, etc. Y su instalación es complicada porque debe estar todo correcto para que no genere complicaciones

UNJBG-FIAG-ESCUELA DE ARQUITECTURA

VIDEO DE EXPLICACIÓN

https://www.youtube.com/watch?v=UlfVoUC2PhE

REFLEXIÓN

CORDINACION

BUSCAMOS LA FORMA DE REALIZAR LAS INSTALAC ONES DE AGUA Y DESAGUE CORDINANDO PARA REAL ZAR LA COMPRA DE LOS MATERIALES PERO EN EL TRANSCURSO DE LA CORNIANC ON NOS LLEGO LA NOT CIA QUE EL PAPA DE UNA DE NUESTRAS COMPAÑERAS

NOS PODRIA BRINDAR EL MATER AL Y LAS HERRAM ENTAS QUE SE NECESITAN PARA PODER REALIZAR LAS INSTALCIONES DE FORMA REAL DE UN BAÑO YA QUE EL ESTABA

A CARGO DE LA CONSTRUCCION DE UNA VIVIENDA

TODOS LOS GRUPO ESTABAN DEACUERDO

PARA REALIZAR LAS INSTALACIONES ADEMAS

QUE NOS GUIAR A UNA PERSONA CON EXPERIENC

INSTALACION DE AGUA Y DESAGUE

SE FUE AL LUGAR DE ESTUDIO QUE ERA UNA VIV ENDA EN LA PLAYA LA V VIENDA NO ESTABA TERMINADA DE HECHO SE ESTABA AMPL ANDO EL SEGUNDO P SO DONDE SE UB CABA EL BAÑO DONDE REAL ZAMOS LAS INSTALACIONES DE AGUA Y DESAGUE

EMPEZAMOS CON LAS NSTALACIONES DE DESAGUE CONSIDERANDO LA PENDIENTE DE 1 % EMPEZANDO CON EL TUBO DONDE SE VA UB CAR EL INODORO , EL TUBO DEBE ESTAR A 33 CM DEL MURO RESPECTO ASU EJE DESPUES CONECTAMOS LOS SUMIDEROS PARA LA DUCHA EL LAVABO Y UNO GENERAL TODOS ESTOS EMPALMADOS CON PEGAMENTO PARA LA NSTALACION DE AGUA SE TUBO QUE UT LIZAR EL FLEXOMETRO PARA MEDIR LAS DISTANC AS PARA CORTAR LOS TUBOS Y PODER SACAR ROSCAS CON EL TARRUGO PARA QUE SE CONECTEN CON LOS CODOS CONSIDERAMOS LA LLAVE DE PASO PARA QUE CONTROLE EL AGUA EN EL ESPAC O PASAMOS HACER LAS NSTALAC ONES PARA LA DUCHA Y EL LAVABO LA DUCHA DEBIA CONTAR CON AGUA CALIENTE AS QUE TUVIMOS QUE REALIZAR UNA MEZACLADORA PARA DESPUES INSTALAR LOS TUBOS LOS EMPALMES DE TUBO DE AGUA SE UTILIZO LA CINTA TEFLON Y DESPUES APLICAMOS EL SELLADOR PARA EV TAR LAS FUGAS DE AGUA

EVIDENCIAS

PARTICIPACION

MATERIAL HERRAMIENTAS

100 %
A
TUBODEAGUA CAL ENTE TUBODEAGUA FRIA SELLADOR PEGAMENTO CODODE90° LLAVEDEPASO TUBODEDESAGGUE CODODE90 FLEXOMETRO LLAVEDEPRESION TARRUGO C NTA TEFLON HERRAM ENTAF COMBO CINCEL CAL ENTATUBOS S ERRA CUTER
DESCRIPCION
CAMILA PUERTAS CARLOS GABRIELA VIDAL MAMANI DAVID ANAHUA GAMERO ERICK HUANACUNI ZAPANA VICTOR ARIAS FLORES JEANCARLOS CALLO PACO 100 % 100 % 100 % 100 % 100 %
Al realizar una instalación de agua y desague de manera real nos sirvió a entender mejor el proceso y como actúan todos los materiales que se utilizaron. Fue muy productivo y de gran aprendizaje para mi formación

UNIDAD II

EXPERIMENTO ELECTRICIDAD ESTÁTICA

SIMBOLOGÍA: INST. ELÉCTRICAS

RIESGOS ELÉCTRICOS

CUESTIONARIO

UBICACIÓN DE ILUMINACIÓN Y

TOMACORRIENTES

CUADRO DE CARGAS

TUTORÍAS

ENTREGA FINAL DE INST. ELÉCTRICAS

MEMORIA DESCRIPTIVA

Í N D I C E

UNJBG-FIAG-ESCUELA

DE ARQUITECTURA

EXPERIMENTO: ELECTRICIDAD ESTÁTICA REFLEXIÓN

Al realizar este experimento se entendió como es que reacciona la energía estática en distintos objetos siendo atraídos y otras veces se repelen dependiendo de la carga que presentan los objetos

UNJBG-FIAG-ESCUELA DE ARQUITECTURA

SIMBOLOGÍA: INST. ELÉCTRICAS

REFLEXIÓN

Para realizar instalaciones eléctricas es importante conocer las simbologías de los objetos que se utilizarán, por ello este trabajo fue de mucha ayuda para saber como se representan cada objetos y su imagen respectiva.

UNJBG-FIAG-ESCUELA DE ARQUITECTURA

UNJBG-FIAG-ESCUELA DE ARQUITECTURA RIESGOS ELÉCTRICOS REFLEXIÓN

Este trabajo se aprendió a analizar como está la vivienda con respecto a si hay riesgos eléctricos, Identificar los objetos de cada ambiente y diagnosticar el estado de cada uno para saber si la vivienda es segura ante riesgos

UNJBG-FIAG-ESCUELA DE ARQUITECTURA

UNJBG-FIAG-ESCUELA DE ARQUITECTURA

UNJBG-FIAG-ESCUELA DE ARQUITECTURA CUESTIONARIO REFLEXIÓN

Este cuestionario nos sirvió para conocer significa cuanto a las instalaciones eléctricas para saber act

UNJBG-FIAG-ESCUELA DE ARQUITECTURA

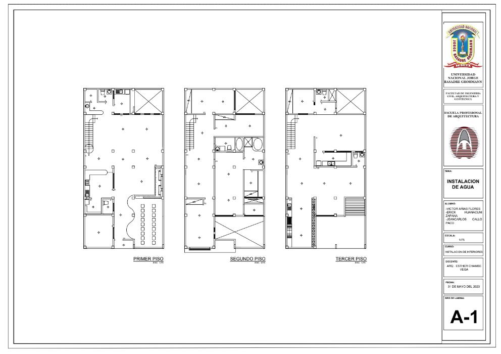
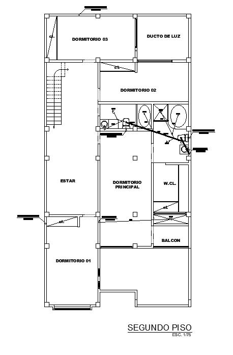
UBICACIÓN DE ILUMINACIÓN Y TOMACORRIENTES

REFLEXIÓN Este trabajo nos encargamos de ubicar la iluminación y tomacorrientes en una vivienda partiéndonos por criterios básicos y generales que puedan cubrir cada ambiente.

También se pudo representar bien gracias a los conocimientos iniciales de simbología Siendo muy útil para mi carrera profesional.

UNJBG-FIAG-ESCUELA DE ARQUITECTURA

UNJBG-FIAG-ESCUELA DE ARQUITECTURA CUADRO DE CARGAS REFLEXIÓN

Realizamos el cuadro de cargas según los equipos que vamos a considerar en la vivienda, realizándolo en un inicio con otra área ,además que no consideramos la puerta levadiza, realizando la corrección para la entrega con la guía de la critica de la arquitecta .

UNJBG-FIAG-ESCUELA DE ARQUITECTURA TUTORÍAS REFLEXIÓN

En las tutorías son muy importantes porque con la ayuda de la Arquitecta se pudo saber que le faltaba a nuestros planos o que elementos no están bien representados ya se las conexiones que van por techo o por piso, la importancia del uso de una caja de paso, las comunicaciones y errores que no nos fijábamos, que nos sirvió de mucha ayuda.

UNJBG-FIAG-ESCUELA DE ARQUITECTURA

UNJBG-FIAG-ESCUELA DE ARQUITECTURA

ENTREGA FINAL DE INST. ELÉCTRICAS

REFLEXIÓN

Como trabajo final puedo solucionar todos los errores que indicaban en las tutorías previas, siendo un plano mas completo y bien representado con la información necesaria y como se distribuye los circuitos y su importancia en el diagrama unifilar.

Este trabajo fue de mucha ayuda para mi formación profesional porque aprendí muchas cosas respecto a hacer y leer planos de instalaciones eléctricas

UNJBG-FIAG-ESCUELA DE ARQUITECTURA

UNJBG-FIAG-ESCUELA DE ARQUITECTURA

MEMORIA DESCRIPTIVA DE INST ELÉCTRICAS REFLEXIÓN

ue muy agradable realizar las indicaciones de esta vivienda considerando los elementos y equipos necesarios ,me sirvió como experiencia para un futuro saber como es el funcionamiento y que cosas considerar en un plano de instalaciones eléctricas.

Considerando que un arquitecto debe estar siempre capacitado para todo lo que relacione con la carrera.

UNJBG-FIAG-ESCUELA DE ARQUITECTURA

Turn static files into dynamic content formats.

Create a flipbook