Winter Scribe 2024

Page 1

Scribe Scribe

FAITH FAITH KNOWLEDGE KNOWLEDGE

CULTURE CULTURE

INSIDE: 3RD SECTION OF KINDERGARTEN | MASTER CAMPUS PLAN | SHARK TANK

DearESKFamiliesandfriends,

Howmanyofyouallcanrememberyourvery firstdayofschool?Butterfliesinthestomach,a worldofnewpeople,theunknownofwhat schoolingwasallabout-it’salifeeventandan excitingdayoffirstsIhavenodoubtthatthe 23studentsandahandfulofteachersfeltjustas anxious,ifnotmore,whentheywalked throughthethresholdofabrand-newschool calledESKashort25yearsago

WhatstartedasasmallsaplingforEpiscopal educationinthosesmall“learningcottages”has quicklysproutedintobeautifulandburgeoning facilitiesnowservingover400studentswitha top-notcheducationalexperienceItwastruly anhonortoseesomanyofourfounding familiesandfriendsreturntocampusto celebrateESK’ssilveranniversarythisfallLike mostdaysattheschool,theeveningwas magical-perfectweather,deliciousfoodfrom theLowCountry,greatfellowship,sheer happiness,andmanywonderfultributestothe school’sincrediblejourney

Wenowturnthepageandlooktoseewhat’sin storefortheschoolinthenext25yearsFor one,weareburstingattheseamswithstudents andwillneedmoreclassroomspace.Our campuscontinuestoprovideamazing opportunitiesforenvironmentallearning,and we’dliketotapdeeperintoour45acresof greenspaceProgramtraditionsincharacter development,performingandvisualarts,and Episcopalidentityarealsopriorities,asisour climateofsupportwherekidscandiscovertheir confidenceinwhotheyare

ItisindeedanexcitingtimetobeatThe EpiscopalSchoolofKnoxvilleOurtrajectoryof growthanddevelopmentcontinuestosoar,as weembracetheessenceofaJK-8programI thankallwhohaveplayedaroleintheschool’s success,andwhatablessingitistobeapartof thiswonderfulfamilyHappybirthday,ESK! Mayyoucontinuetotouchmanymorelives withyournurturingspiritofcommunity.

1 | E S K S C R I B E / W I N T E R 2 0 2 4
Table of 09 E S K S C R I B E / W I N T E R 2 0 2 4 | 2 03 03 Celebrating 25 Years of Academic Excellence 04 ESK Milestones: A Timeline 05 The Next Chapter 08 Lateral Expansion: Third Section of Kindergarten 09 Strengthening Emotional Wellness 11 Curriculum Enhancement 12 Math Lab and Shark Tank 13 Middle School Student Art Showcase 14 Saint Life Highlights 15 2022/2023 Annual Giving Report 20 Alumni Spotlight 21 Alumni Updates 23 20th Annual Saints’ Gala: Save The Date 25 Lower School Art Preview 26 Scribe Puzzles 21 11 11 11

25Years of

Veteran and rookie Saints alike drove eagerly up the hill this fall to celebrate the school they love. The Episcopal School of Knoxville has officially thrived for 25 years of operation in independent school education in Knoxville, TN. With starting roots at St. Elizabeth’s Episcopal Church in Farragut, the school has transitioned from modest modular classrooms in a parking lot to a beautiful academic campus on a 98-acre farm that dates back to the late 1700s.

The school now serves just over 400 students from ages 3 to 8th grade and delivers a collegepreparatory education enriched with environmental studies, studio and performing arts, and a faith-centered approach to academic confidence.

As part of the 25th Celebration, the school hosted a Low Country shrimp boil for its current and alumni families, faculty, board, and patrons. Catered by The Shrimp Dock, the dinner was a reimagining of an event the school held annually to raise money for the school’s facilities and operations. As an extra treat, entertainment was provided by ESK alumnus, Eli Fox, who got his start as a professional musician through ESK’s string band program years ago.

Head of School, Dr. Jack Talmadge, and his predecessor, Mr. Jay Secor, toasted the many wonderful friends and families of the school who helped build the amazing culture and academic program students continue to enjoy at The Episcopal School of Knoxville.

3 | E S K S C R I B E / W I N T E R 2 0 2 4
celebrating
1993 2008 2003 2000 2017 2011 1998 2001 2023 2016 2010 2005 An Idea is Born from a group at St John’s Episcopal Cathedral and members of the extended Episcopal community in Knoxville, TN The Brewington Lower School opens its doors to K-5 students The building includes 12 classrooms as well as a library, art studio, and music spaces A Sustainable Garden is added to our campus as well as our beloved chicken coup, now cared for by our 3rd grade chicken tenders A New Wing is added to the middle school building and the chapel is converted to a full-time library ESK’s 1st Graduates walk across the stage and make history as our first graduating 8th grade class ESK Moves to its permanent location at 950 Episcopal School Way to start the new millenium The 1st Permanent Structure is completed on the new campus The Bishop Center housed Kline Gymnasium, administrative offices, and our 1st dining hall ESK Opens Its Doors to 23 students K-4 at a temporary site at St Elizabeth’s Episcopal Church, and Jay Secor is hired as founding headmaster. The Bell Tower is completed and becomes a landmark of ESK. The Rt Rev Von Rosenburg blesses Googe Hall A New Headmaster joins the ESK family when Dr Jack Talmadge moves to Knoxville with his family Secor Hall is constructed on the west end of ESK’s campus to include Siler Gymnasium, our Innovation Lab, an additional art studio, and music classrooms A Quarter Century of ESK is in the books and friends, alumni, families, and faculty gather for a milestone celebration! ESK MILESTONES: a timeline E S K S C R I B E / W I N T E R 2 0 2 4 | 4

ESKtak

With25yearsunderthebelt,ESKhas securedmanywonderfultraditionsand adeepfoundationforacademicsuccess acrosstheformativeyearsofchildhood Nowfacingaworldofeducational changetoincludeartificialintelligence, onlineplatforms,andarenewedpostpandemicoutlookonlife,theschoolhas developedastrategicroadmaptohelp navigateitsstrongmissionintothenext 25-yearchapter.

ESKengagedTheEducationGroup (TEG),anationalconsultingfirm,to guidetheschoolthroughastrategic processThroughdemographicstudies, surveydata,interviews,andfocusgroup meetingswithconstituentsacrossthe schoolcommunity,TEGidentified numeroustrendsandgoalsfortheboard oftrusteestoconsiderforESK’sfiveyearplanFollowingahealthyboard andfacultyretreat,theschoolnarrowed thescopetothesefiveimportant initiativestotakeonintheopening pagesofESK’snextchapter:

STUDENT EXPERIENCE - ESKwill puthighschoolexpansiondiscussions onholdforawhileandcapitalizeonthe studentexperiencesattheJK-8grade levels.Withacontinuedfocusonlow student/faculty:facultyratios,academic mastery,andcreativityduringthe developmentalyears,theschoolwill laterallyincreasethenumberofsections ateachgradelevelandexpand opportunitiesforacademicenrichment, learningdifferences,andthefinearts.

SIGNATURE PROGRAMS - While keepingatop-qualitycollege preparatoryprogramattheforefront, ESKwillbroadenitssignatureprogram offeringsinoutdoor-environmental education,characterdevelopment, servicelearning,andEpiscopalidentity

MARKETING, ADMISSIONS, AND COMMUNICATION - ESK willbroadentheadvancement departmentandinvestinmarketing, communications,andstudent recruitmenttoallowforarobust enrollmentandlateralexpansioninall gradelevelsJK-8

CAMPUS AND FACILITIES - ESK willembraceitsattractiveandspacious campusasagrowthandlearning opportunityforallstudents.

Anupdatedcampusmasterplanand expandedresourcesforfutureplant maintenancewillallowtheschoolto expanditscurrentfacilitiestosupport itsgrowingenrollment,signature programs,andthestudentexperience

FINANCES - ESKwillcontinueits pathforstrengtheningitssolidfinancial

positiontoguaranteetheschool’svitalityin thefuture,prepareforcapitalexpansions,and secureastrongfacultyandstaffthrough competitivesalariesandbenefits

Excitedtoembarkonitsnewstrategic pathway,ESKhaswastednotimeatallin developingitsactionplansforthefuture. ProgramexpansionsinAcornstoOaks(the school-wideenvironmentalscience curriculum),designthinking,lowerschool technology,SharkTank(amiddleschool entrepreneurialclass),andoccupational therapyinthelearningcenterwereall launchedthis2023-2024schoolyear.

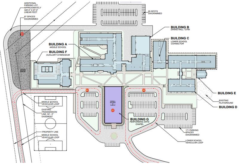
Therecentexpansiontothreesectionsof Kindergarten(readmorein“Lateral Expansion:ThirdSectionofKindergarten”) addsadditionalmomentumtoourcampus planning,andtheboardoftrustees reconnectedwithBarberMcMurray Architects(BMA)todesignanewmaster planforfuturefacilitiesatESK.Keeping security,JK-8experiences,Episcopalidentity, andperformingartsopportunitiesinthe prioritycircle,BMAdraftedathree-phased expansionplanthatwillallowtheschoolto growitsenrollmentto630studentsand thriveinitsmissionofferingoverthenextten years

5 | E S K S C R I B E / W I N T E R 2 0 2 4
mastercampusplanningforthefuture

Phase 1: Security & Lower School Growth

Ourcampusgrowthbeginswithanincreasein securitymeasurestoinclude:

Amainentrancegateequippedwithsmart technology(installedJanuary2024)

Additionalfacilityandperimetervideo surveillance

Restructuredentrancewaysintothelower andmiddleschools

Inaddition,ESKwilldevelopthenorthendofthe campustoinclude:

Newserviceroad

Additionalparking

Tenniscomplex

6-classroomadditiontothelowerschool

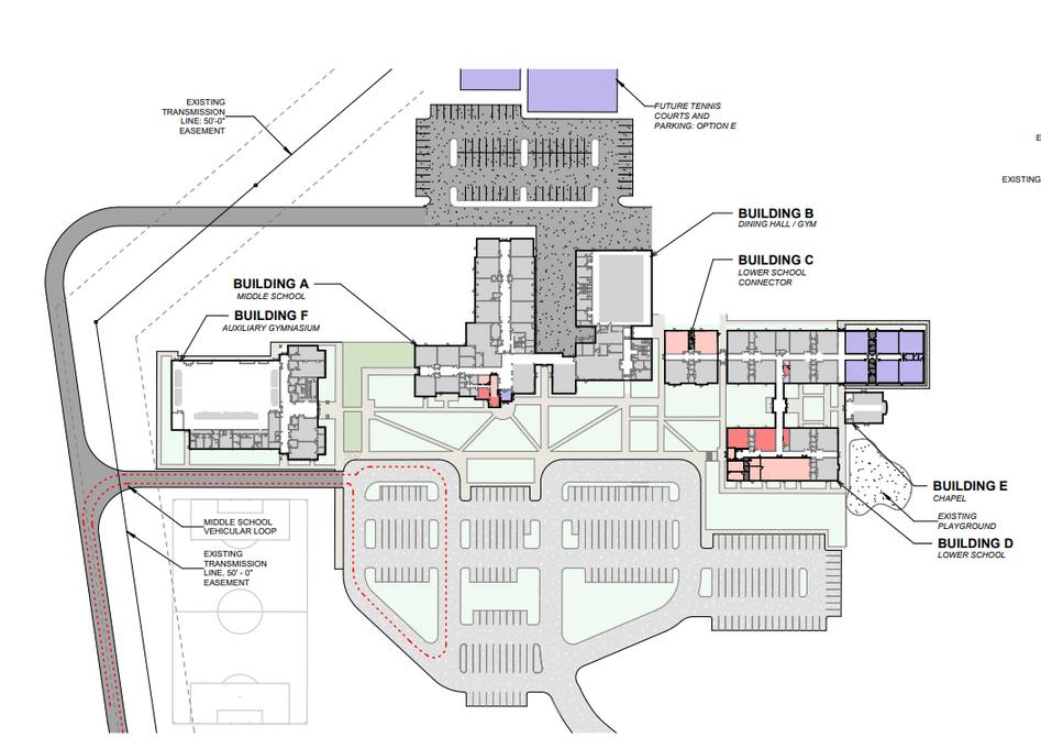
FutureTennisCourts

DiningHall/KlineGym

LowerSchoolConnector

MiddleSchool

SilerGymnasium

MiddleSchool

VehicularLoop

Chapel

LowerSch

Playground

LowerSchool

Kindergarten Kindergarten Kindergarten 1st Grade World Language Music Art ExistingChapel LowerSchool Existing Playground Learning Center Media/ Tech Lab Library/ Multi-Purpose Space Clinic Guidance LSDirector Reception 1st Grade 1st Grade 3rd Grade 3rd Grade 3rd Grade 2nd Grade 2nd Grade 2nd Grade 4th Grade 4th Grade 4th Grade
E S K S C R I B E / W I N T E R 2 0 2 4 | 6

Performing Arts Building

Thefinalphasedeliversanewbuilding tothecampusskylinethatwillhouse:

Chapelandperformancevenue Administrationoffices

Phase 2: Dining, Admissions, & M.S. Growth

Thenextphasesupportstheprogressionof growthinthestudentbodyandincludes:

Dininghalladditions

Advancement/Admissionssuite

8-classroomadditiontothemiddle school

Middleschoolcourtyard

Withtheabilityto reachandserve morefamiliesin theKnoxvillearea withtime treasured traditionsand excellenceinJK-8 academics,ESKis wellpositionedfor anamazingand excitingnext chapter.

Chapel andPerforming Arts KlineGym/DiningHall LowerSchoolConnector ExistingChapel, Playgroundand LowerSchool MiddleSchool SilerGym Auxiliary Parking AuxiliaryParking LowerSchoolVehicularLoop AuxiliaryParkin MiddleSchoolVehicularLoop PropertyLine Multi-purposeOpen LearningSpace PreviousPhase
Stage Lobby ConferenceSpace WaitingReception Head ofSchool Head ofFinance ChaplainOffice 8th Grade 7th Grade LearningCenter Library 5th Grade Student Flex Space Chemistry Biology Misc. Language
Restrooms
ClassroomZone Single-fixtureRestroom
andBiology Classroomswith Storage/PrepSpaces 8th Grade 8th Grade 8th Grade 7th Grade 7th Grade 7th Grade 6th Grade 6th Grade 6th Grade 6th Grade 5th Grade 5th Grade 5th Grade MiddleSchool LearningCenter Conference Space 7 | E S K S C R I B E / W I N T E R 2 0 2 4 Auxiliary Parking
Multi-fixture
Outdoor
Chemistry

LATERAL EXPANSION:

3RD SECTION OF KINDERGARTEN

Mrs. Saliba’s Class

Mrs. Saliba is a veteran teacher with extensive training in language and phonics. The structure and routines established in Mrs. Saliba’s class help the students’ performance in reading, writing, and mathematical skills.

Mrs. Chermely’s Class

Mrs. Chermely, who you may know from 4th grade, is now a Kindergarten lead teacher She has a firm grasp of blending structure and play. Student centers include all curriculum areas, while incorporating hands-on learning.

Ms. Blount’s Class

While Ms Blount is new to ESK, she brings a wealth of experience and has jumped right into our ESK routines. Students are working on thes ame Kindergarten curriculum with a focus on learning through play. A smaller class size ensures students receive support and increased confidence as they gain new skills.

MEETING OUR STUDENTS WHERE THEY ARE

This year we have revamped the structure of the kindergarten classes to offer three different sections - each one offering a slightly different approach to learning based on the needs of our students. All kindergarten students study the same curriculum, while each teacher brings their own style and varies the approach to learning.

In this first year, we can already see that our students are thriving and love coming to school. Our kindergarten program will continue to incorporate more purposeful play in all classes while covering the skills needed for a successful transition to first grade.

E S K S C R I B E / W I N T E R 2 0 2 4 | 8

school counseling program expansion

5 Tips for talking to your children about their mental health :

Althoughinmanywaysthedisruption-filled"lifestyle"ofthepandemic yearsarebehindus,thelongtermeffectsonthementalhealthand wellbeingofourchildrenarebecomingmoreandmoreevidentWe recognizetheneedforadditionalqualitymentalhealthservicesforour studentsof all ages.Withtheretirementofourlongtimeschoolcounselor, LoisRoss,wehavebroughtontwonewschoolcounselors,CindyDaniels andAnnieCaulder,whocontinueherworkbuildingacomprehensiveK8schoolcounselingprogramCindyDaniels,wholeadsthechargeasour LowerSchoolCounselor,facilitatesguidanceclassesintheLoisRoss CounselingCenterforstudentsK-4,exploringtopicssuchasemotional recognitionandregulation,bullying,growthmindset,socialskillsand more.Thiscurriculumutilizesstorytelling,openconversations,and activitiesthatbuildthestrongfoundationalknowledgeandskillsetsthat ourstudentsneedtodevelophealthyrelationships.Mrs.Danielsisalso availableforindividualmeetingseachdayforstudents,faculty,orfamilies whomayneedadditionalsupportorasimplefriendlyrapport.

1Considertheirworldview. . Helpthemdeterminewhatemotionthey arefeeling 2. 3Validatetheiremotions. . 4Normalizehowtheyarefeeling. . 5Brainstormpossiblesolutionswiththem 9 | E S K S C R I B E / W I N T E R 2 0 2 4

MIDDLE SCHOOL MIDDLE SCHOOL

Middleschoolstudentsnowtakeguidance twiceaweekaspartoftheenrichment rotation.Inguidance,studentsexpandupon theknowledgetheygainedinthelower schoolandexploretopicssuchasself-esteem, bullyingprevention,self-care,conflict resolution,collegeandcareers,andhealthy relationshipsTheselessonsreinforcethe TribesAgreementsthathelptocreateour ESKcommunity

INDIVIDUAL COUNSELING CLASSES

Studentshavetheopportunitytomake counselingappointmentswithMrs.Caulder throughemailorverbalrequestTeachers andparentsmayalsomakereferralsfortheir studentiftheyhaveanyconcerns.Accessto individualorsmallgroupcounselingisa wonderfulwaywecansupportourstudents inmeetingtheirgrowingmentalhealth needsandgoals.

COLLABORATION

BuildingupontheworkofMrs.LoisRoss, Mrs.Caulderisforgingconnectionswith surroundinghighschoolsandcommunity resourcestoprovideourstudentswithmore educationalopportunities.Thispast trimester,theeighthgradeguidancestudents participatedinaQ&Awithstudentsfrom KnoxvilleCatholicHighSchoolandWebb SchoolofKnoxvilletolearnmoreabouttheir highschoolexperiences.

Students pose in morning carline to show off their comfy clothes for Cozy Day which raised funds for Laundry Love: Knoxville. This local organization aims to ease the burden of laundry care for struggling families. NJHS students along with faculty sponsor, Brandi Guerry, will help during the February Laundry Love night as well to provide a meal to the families. National

“My favorite part of my job is that “My favorite part of my job is that every day is different When I teach every day is different When I teach classes, I love how engaged the kids classes, I love how engaged the kids

-Cindy Daniels -Cindy Daniels are, and how eager they are to learn about social are, and how eager they are to learn about social emotional learning, or meditation For me, it is just emotional learning, or meditation For me, it is just watching the kids, seeing their excitement, and watching the kids, seeing their excitement, and knowing a child has retained a skill ” knowing a child has retained a skill.”

“The beautiful thing about being a school

“The beautiful thing about being a school counselor at ESK is that our community is counselor at ESK is that our community is truly so closely knit. I am able to see my truly so closely knit. I am able to see my students from multiple perspectives and students from multiple perspectives and spend the time to understand them as spend the time to understand them as individuals. I believe this connection has individuals. I believe this connection has allowed me to create a space where allowed me to create a space where students can go to feel truly understood students can go to feel truly understood and process the tougher parts of their and process the tougher parts of their experiences.” experiences.”

Cindy Daniels MAFamilyand ConsumerScience Lower School Counselor
E S K S C R I B E / W I N T E R 2 0 2 4 | 1 0
Annie Caulder MASchoolCounseling Middle School Counselor -Annie Caulder -Annie Caulder
Junior Honor Society Cozy Day

ACORNS TO OAKS: Curriculum Enhancement

MIDDLE SCHOOL

Ourstudent-reveredenvironmentalliteracyprogramhasexpandedforourMiddleSchoolers!Ourlead instructorandecoliteracyguru,MrsMaggieWhitt,ishelpingourstudentsunderstand,appreciate,and takeownershipofourEarth,byhoninginonconservationstudies.Asourstudentsmoveupfromtheir lowerschoolAcornstoOakscurriculum,whichprimarilyfocusesonoutdoorplayspaceeducation theoriesthatencouragelearning,engagement,andactiveplayoutdoors,ourmiddleschoolstudentsbegin thepracticalapplicationofconceptsthey’veonlyobservedfromadistance--untilnow.Whileour Kindergartenerswillplantandwaterthegardens,our5thgradewillgoastepfurthertotheorizeandtest thesoilstodecidewhichtypeisbestforeachplantspeciesOurstudentsaretakingtheirstudiestothe nextlevelastheydevelopskillsinunderstandingtheessenceofnaturalphenomenarighthereonour outdooreducation-friendlycampus.

OurFifthGradeisfocusedonour gardens,waterquality, watersheds,andwetlands.They begintheyearinthegarden, harvestingoursummercrops,and learningaboutthenutrientsinour gardensoil.Theythenwillplantfall crops,spendtimediscussingourown ESKwatershed,andtestthewater qualityofournaturalspringThisfall ourfifthgraders’realworld applicationofthesenewskillswere puttothetestwhenwelcoming specialguestsfromUTKFisheries andWildlife,wholedanexciting invertebrateinvestigationatour spring

SeventhGradespendstimeexploringecosystems,classifyingspecies, identifyingtrees,andstudyinglocalanimaladaptationsThey’resure tokeeptheirbinocularshandytopinpointcampusbirdsandstudy theirdifferentfeetandbeakadaptations.Astheynavigatethrough theESKwildernessidentifyingareasaseitherahabitatorecosystem, theythenclassifytheanimalsandplantslivingthereUtilizing dichotomouskeystoidentifyvarioustrees, thisyear’sseventhgraderswereabletoleave theirpermanentmarkbylabelingthespecies locatedaroundouroutdoorchapel

Soilclassification,rock identification,andcreekbed mapping,OHMY!OurSixth Gradestudentsbecomeyoung topographersastheyscalethe dimensionsofourESKcreek beds.Theyalsostaybusy distinguishingrocktypes, collectingandidentifyingsoil samples,andnotingtheeffects oferosion,weathering,and depositionrightinour backyard

ThisfallourEighthGradestudents hadahands-onopportunitytolearn abouttheimportanceoftrail

maintenance,whichbeganwithexplorationofourown campustrailsinsearchofareasofneededattention. Onceidentified,ourstudentsthenreroutedthetrailsas necessaryusingflags,logs,rakes,andaddedswitchbacks tomaketheirtraildescenteasier.Afterthenecessarytrail contortion,theyusedastencilandspraypainttoadd blazes,ortrailmarkers,totheirnewlydefinedpaths. Theirsecondareaoffocusthissemesterwassurvival skills,whichincludedinvestigationsintopotential survivalscenariosandtheever-importantRuleof Threes.Theypracticedusingsignalingmirrorsand waterfiltrationsystemsbeforelearningtobuildtwo differenttypesoftentsandcompletingtheirtraining withafeastoffreezedriedbackpackingmeals.

1 1 | E S K S C R I B E / W I N T E R 2 0 2 4
5TH GRADE 7TH GRADE 8TH GRADE 6TH GRADE
were laser printed by
Innovation Lab!
All tree markers
students in ESK’s

MATH LAB:

LOWER SCHOOL

Ourlowerschooliskeepingthethrillofacademicchallengeatanalltimehighwiththe additionofournewMathLab.Forour1-4gradestudentswhoalreadyexcelintheirgradelevel,coremathematicsandwanttopushthemselvesevenfurther,wenowhaveanother opportunitytodoso.Whenastudentshowstruemasteryofaconceptwithintheirmath curriculum,theyarenowabletomeetwithMrs.ConnieNoland,aveteraneducatoratESK, who’sabletoexpandontheskillstheyalreadypossess

MathLabenrichmentsessionsarearrangedthroughouttheschoolday,withMrsNoland stayinginconstantcontactwithboththecoreandenrichmentteacherstobesurenothingis missedwhileastudentispulledfromclass.Thissemester,Mrs.Nolandhasnoticedaneedfor improvedreadingcomprehensionwithinmathematicalwordproblemsSheisabletobreak downtheworkandwalkstudentsthroughtheentireprocessofproblemsolvingatalevelof appropriatechallenge.

Doingsoincludesidentifyingwhen theymakemistakes,aimingtohelp thechildrenbecomestronger learnersandmoreself-motivatedIn turn,ourstudentshavegrownto understandthatmathismorethan justcrunchingnumbersOur overallgoalforMathLabisto providenewopportunitiesfor advancedstudentstokeepthem stimulated,engaged,andalways fallingdeeperintotheirloveof learning

SHARK TANK:

MIDDLE SCHOOL

We’reequippingourstudentswiththetoolstobecomethenextgreat generationofentrepreneurswithournewestenrichmentcourse,Shark Tank.Muchlikethepopulartelevisionseries,thiscoursecallsforcritic andcreativethinkingOurstudentswilldesignauniqueproduct,deve andexecuteamarketingplan,andholdagallerywalktoshowcaseit.T ideaistoseewhichoftheirproductswouldinterestreal“investors”to supporttheirvision.

Further,traversingtheSharkTankprocessdoublesasanopportunityfor ourstudentstosharpentheirexecutivefunctioningskillsastheyfamiliari themselveswiththeirownlearningstyle,becomemoreproductivestudie engagewiththedesignprocess,andpracticeorganizationoftheirgoalsa materials.Astheycontinuetopursuehigheracademia,thiscourse’sbene aresuretoproveindispensable

SharkTankoffersstudentsanopenspacetocreateandproblemsolveina smallgroupsetting.UtilizingthetoolswithinourInnovationLaband invigoratingpeerbrainstormingsessionshavealreadycreatedsomeofour fondestandwildestmemoriestodate!

E S K S C R I B E / W I N T E R 2 0 2 4 | 1 2

The Art of ESK

1 3 | E S K S C R I B E / W I N T E R 2 0 2 4
Emma Palmer, 1st place in 6th Grade at “Cheshire”, Clay Austin Baker, Honorable Mention in 8th Grade “Radial Madness”, Linoleum Print Lizzy Aljadir, 6th Grade “My Portrait”, Mixed Media Anderson Palmer, Honorable Mention in 7th Grade “Me with Blue Hair”, Mixed Media Lily Bostick, 8th Grade “Georgia”, Mixed Media Tennessee Valley Fair Student Art Show East Tennessee Regional Student Art Exhibition Lily Bostick, 8th Grade “Sabine”, Drawing Emma Kuhn, 8th Grade “Self Portrait”, Drawing Chloé NicolasShelton, 3rd place in 7th Grade “Charlotte”, Photograph Vincent Urdal, 8th Grade “Different Shades of Me”, Drawing Abe Eaton, 1st place in 6th Grade “Geometric and Fantasy Collision”, Drawing Charles Mealor, 7th grade “Johnny’s Revenge at 3AM”, Sculpture
ESK Celebration of the Arts ESK Celebration of the Arts April 30th, 2024 April 30th, 2024 A schoolwide, year-end showcase of all student artwork!
Dogwood Arts Synergy Student Exhibition

Studentsandbigfansposewithauthor andillustratorRaúltheThird,best knownforhis ¡Vamos! series.Heisa NewYorkTimesbestsellingandthreetimePuraBelpreaward-winning illustrator,author,andartist

where the saints march to next Boarding and high school fair

ESKisfortunatetohostmanyboardingand highschoolseachfall,bothlocalandfrom aroundthecountry.Ourstudentsandlocal middleschoolersgetapersonalviewintothe potentialoftheirfuturesastheyquizand learnfromeachvisitingschool’s representatives.

2nd annual saint strut

Onceagainthisyearourfacultyand familiesputontheirrunningshoesand aheftyloadofsunscreenforthe2nd annualSaintStrut!Thisfunrunwitha sillysurpriseatnearlyeveryturnisjust oneofthemanyhealthinitiativesESK partakesintopromotehealthybodies andcommunity.

E S K S C R I B E / W I N T E R 2 0 2 4 | 1 4
Author visits
Author,JerryCraft,wowsourstudentsasheexplains justwhatitwasthatgothimsointerestedinbecoming bothanauthorandillustratorCraftisbestknownforhis syndicatednewspapercomicstrip Mama's Boyz andhisgraphicnovels New Kid, Class Act,and School Trip.
Fall 2023 Saint Life

2022-2023 ANNUAL GIVING REPORT

THANK YOU FOR YOUR GENEROUS SUPPORT!

ST. BART'S SOCIETY $25K+

Anonymous

The Clayton Family Foundation

The Lantry Family Foundation

Mr. & Mrs. Edward Rottmann

Stowers Machinery Foundation

FOUNDERS' SOCIETY

$10,000-$24,999

Mr & Mrs Jonathan Braatvedt

Mr. & Mrs. Ryan Clearman

Mr. & Mrs. Joseph Fielden, Jr.

Garza Law Firm

Dr. Hesamm Gharavi

Mr. & Mrs. Robert Gilbertson

Mr & Mrs Steve Hall

Mr. & Mrs. Walter Hershey

Dr. & Mrs. Josh Ladd

Mr & Mrs Fred Langley

Jane L. Pettway Foundation

Dr. & Mrs. David Schumaker

Mr & Mrs James J Secor, III

Volunteer Pediatric Dentistry, PC

TRUSTEES' SOCIETY

$5,000-$9,999

Dr & Mrs Dan Baker

Mr & Mrs Joshua Bishop

Dr. David Chapman & Dr. Kimberly Kim

Mr Henry E Christenberry III

Mr. & Mrs. James Ethier

Mr & Mrs David Fiser

Veronica Fitzgerald & Larry Jones

Mr & Mrs Scott Harrop

The Haslam Family Foundation

The Lantry Family Foundation

Dr & Mrs Ailee Laham

Mr & Mrs Troy Lockhart

Pilot Company

Mr & Mrs Samuel Shieh

Mrs Anne Sprouse

Ms. Beth Sterchi

Stella & Bob Sudderth

Dr. & Mrs. Jack Talmadge

Mr & Mrs Daniel Taylor-Roman

Mr. & Mrs. Bennie Underwood

Mr. Chad Vander Wert

Mr & Mrs Steve Ward

Mr. & Mrs. Jim Zarchin

HEADMASTER'S SOCIETY

$2,500-$4,999

Mr & Mrs Steve Bailey

Mr. & Mrs. Brian Balest

Mr & Mrs Tyler Congleton

Mr & Mrs John Dix

Dominion Group

Dr Ben Egner and Dr Dani

Egner

Erosion Supply

Mr & Mrs Joseph Fielden, Sr

FirstBank

Mr. Kevin Kerchner & Dr. Katie

Kerchner

Knoxville Pediatric Associates

Dr Keri Lattimore & Mr Harry King

Mr. Mark & Joanne McKinnon

Mr & Mrs Andrew McRee

Ms. Townes Osborn & Mr. Robert Marquis

Mrs Margie Parrott

Pinnacle Bank

Mr. & Mrs. Robert Samples

Mr & Mrs Alwyn Staley

Mr. & Mrs. George Sterchi

Mr. & Mrs. James Travis

BISHOP'S SOCIETY

$1,500-$2,499

Mr PeeJay Alexander & Mrs

Allison Easterday Alexander

Rev. Dr. & Mrs. Jerry Askew

Mr Scott Atchley & Dr Kate

Atchley

Mr. & Mrs. Mark Bishop

Dr Patrick Bolt & The Rev

Canon Michelle Warriner Bolt

Mr. & Mrs. Adolphus Brown

Mr & Mrs Greg Carlson

Mr & Mrs Andy Chadwell

Mr. & Mrs. James Cogdill

Mr & Mrs Jon Cope

Mr Ryan Dobbs & Dr Mary

Ellen Dobbs

Mrs Nancy Esker

FLIK Independent School Dining

Mr. & Mrs. Stephenson Guffey

Mr Mark Hacker & Mrs Rachel

Hacker

Mr. & Mrs. Steven Hill

Ms Barbara Lee

Mr & Mrs Bryan Ridgway

Mr. & Mrs. Culver Schmid

Mr & Mrs Greg Simpson

The Staley Family

Ms. Susan Sterchi

Mrs April Taylor & Mrs Nicole

Taylor

Mr. & Mrs. Brian Welch

These 4th Grade students are all smiles during morning flag duty!
1 5 | E S K S C R I B E / W I N T E R 2 0 2 4

CHAPLAIN'S SOCIETY

$855-$1,499

Ms Kara Ashburn

Dr. & Mrs. George Baddour

Mr. Chris Bishop & Mrs. Eden

McNabb Bishop

Mr. & Mrs. Blake Bookstaff

Dr. & Mrs. Steven Brewington

Mr & Mrs Tony Cappiello

Mr. & Ms. Patrick Clark

Jim & Rhonda Rice Clayton

Dermatology Associates of Oak Ridge, P.C.

Dr. & Mrs. Matthew Doppelt

Mr & Mrs Brian Eckhart

Mrs. Jeannie Ensign

Mr. & Mrs. Jim Ethier

Mr Michael Grabman & Dr Tracy Grabman

Ms. Season Guffey

The Howell Family

Mr. & Mrs. Hugh Jarnagin

Mr. Kevin Kerchner & Dr. Katie

Kerchner

Mr. & Mrs. Jon Leonard

Mr. & Mrs. Justin Maierhofer

Mr & Mrs Al Massey

Mr. & Mrs. Matthew McClellan

Mr. & Mrs. Nicholas McCook

Mr & Mrs Steve McGlothin

Becca Montgomery

Dr. Corinne Nicolas & Ms. Suzanne Shelton

Mr. Anthony Palmer & Dr.

Michelle Hall Palmer

Mr & Mrs Joey Parker

Dr. & Mrs. Dustin Patterson

Mr. & Mrs. Keith Raby

Mr & Ms Mike Roberts

Dr. & Mrs. Gary Rogers

The Very Rev. & Mrs. John Ross

Mr Hector Santos Villalobos & Mrs. Mrs. Janyre Santiago Rios

Mr. & Mrs. Richard Wolfinger

Mr. & Mrs. Max Zarchin

SAINT'S SOCIETY $351-$884

Dr & Mrs David Aljadir

AmazonSmile

Mr & Mrs William Ambrose

American Online Giving

Foundation

Barber McMurry Architects

Benevity Community Impact

Fund

Mr & Mrs Steven Brewington

Dr & Mrs Sam Carnes

Mr. & Mrs. Jon Clark

Ms Valerie Clift

The Right Rev Brian Cole & Mrs. Susan Weatherford

Mr & Mrs Kevin Cox

Mr Will Cunningham & Dr

Lauren Cunningham

Mr & Mrs Kevin Daugherty

Mr & Ms John Downing

Ms. Cindi Ellison

Rev Matthew Farr & Rev

Elizabeth Farr

Mr. & Mrs. John R. Foust

Mr & Mrs Mack Gentry

Mr & Mrs Jeff Gerdes

Dr. & Mrs. Charles Gouffon

Fr & Mrs Christopher Hackett

Mr Jack Harvie & Dr Linley

Harvie

Dr & Mrs Kirk Haun

Ms Kristen Herbert

Dr. Megan Jack Hoar & Dr. Scott Hoar

Rev & Mrs Christopher Hogin

Mr. Nicholas Hymer & Dr.

Christina Hymer

Dr. Michael Todd Montgomery

Rev & Mrs Bailey Norman

Oak Ridge National Laboratory

Mr. & Mrs. Charles D.

Overstreet

Ms. Julie Padgett

Dr. and Mrs. Chad Parish

Ms Venice Peek

Mr. & Mrs. Dirk Pohlmann

Mr. Alan Rutenberg & Dr. Pat

Brake

Mr. & Mrs. Paul Siler

Mr & Mrs James Smith

Mr. & Mrs. Robbie Toole

Dr. & Mrs. Ron Turner

Mr & Mrs Christopher

Underwood

Mr Larsen Jay & Mrs Adrian

Jay

Mr & Mrs Jordan Knight

Mr & Mrs Robby Lockett

Dr. & Mrs. Dan Lovely

Dr & Mrs Patrick Mastin

Mr & Mrs John Mayo

Dr. & Mrs. Patrick McConville

Drs. Brandon & Angela Smithey

Dr. Deborah Sousa

Dr Eric Speckner & Dr Lauren

Speckner

Mr. & Mrs. Caesar Stair

Mrs Sarah Stevenson

Mr. & Mrs. Mitch Taylor

Mr. & Mrs. Perry Taylor

Mr & Mrs Doug Traver

Mr. & Mrs. Lee Wrinkle

PURPLE AND WHITE

SOCIETY GIFTS UP TO $350

Mr & Mrs Dondricus Anderson

Mr. & Mrs. Joel Adcock

Mr. Pop & Ms. Jene Alexander

Mrs Jessica Allen

Mr. Keith Alley

Mr. & Mrs. Peter Alliman

Ms Nancy Allison

Mr. & Mrs. Carey Archer

Mr. & Mrs. Rick Armbrister

Mr & Mrs Tom Blanchard

Mr. & Mrs. Chris Bombardo

Ms. Penny Bond

Mr & Mrs Robert Branch

Dr. & Mrs. Daniel Branham

Mr. Percy Brewington

Mr & Mrs Peter Buitenhek

Mr. & Mrs. Weaver Caudill

Mr & Mrs Alexander Winston

Mr & Mrs Patrick McInerney

Mr & Mrs Stephen McLean

We are grateful to our generous ESK Donors. This 2022-2023 Annual Report on Giving includes gifts received between July 1, 2022 to June 30, 2023 in support of Annual Fund, Scholarship, Gala, and Special Projects.

E S K S C R I B E / W I N T E R 2 0 2 4 | 1 6

Ms. Jean Burr

Mr. & Mrs. Christopher Byrne

Mrs Anna Calhoun

Mr. Bill Cameron

Mr. & Mrs. Greer Carlisle

Ms Alyson Carr

Mr. & Mrs. Wayne Chermely

Mr. & Mrs. Lindsey Chesnutt

Mr & Mrs Jeff Christensen

Mr. & Mrs. Justin Church

Theresa Clotfelter

Coca-Cola Give

Joseph & Rose Congleton

Mr. & Mrs. Chris Cook

Molly Cronin

Dr. Sherry Cui

Ms. Becky Cutshaw

Mrs Melissa Daniel

Mrs. Donna Daugherty

Ms. Laura Davis

Mr & Mrs Jonathan Dunaway

Mrs. Robert Esker

Mr. & Mrs. Steve Evans

Ms Barbara Fairclough

Ms. Erica Fitzgerald

Kathy Fitzgerald

Ms Jenny Fogarty

Mr. & Mrs. James Fowler

Mrs. Ashton Gallagher

Mrs Linda Garza

Mrs. Claire Gentry

Mrs. Ginger Browning Gibbons

Mr & Mrs Cal Gray

Kelley Griffin

Mr. & Mrs. Richard Grover

Mr & Mrs Kyle Guerry

Mr. & Mrs. Bruce Guyton

Mrs. Ginger Hall

Ms Virginia Hall

Dr. Nicole Hamonic

Mr. & Mrs. Jason Hardy

Ms. Angela Hill

Ms. Beverly Hogin

Mrs Evelyn Homan

Ms. Rebecca Hutton

Mr. & Mrs. Hugh Jarnagin

Mr & Mrs Aaron Jenkins

Mr. & Mrs. Jeff Johnson

Ms. Susie Justice

Yoo Keun & Hwa Kim

Marlene Kinney

Mr. & Mrs. Jerry Kizer

Mr & Mrs Dennis Koontz

Dr. & Mrs. Joe Koren

The Kubiak Family

Mr & Mrs Tim Kuhn

Mr. & Mrs. Dennis Landfather

Skip Ladd

Mr & Mrs Kevin Lamb

Mr. & Mrs. Frank Lancaster

Shirley Lattimore

Mrs Elizabeth Leinart

Mr. & Mrs. Cole Massey

Mr. & Mrs. Kevin Mattern

Mr & Mrs Charles Mattern

Mr. & Mrs. John Mayo

Mr. & Mrs. John McCook

Mr & Mrs Kevin McGlothin

Ms. Katie McHargue

Ms. Stephanie McIntosh

Mrs Stacy McLemore

Mr. & Mrs. Larry McPherson

Dr. & Mrs. W.T. Mealor

Cynthia Medlock

Mr. & Mrs. James Medlock

Mr. & Mrs. Pedro Mendoza

Mr & Mrs Mike Mercer

Mr. & Mrs. Geri Mewett

Mr. & Mrs. Andrew Moon

Mr & Mrs Richard Neill

Ms. Connie Noland

Mr. Tim Norrod

Mr & Mrs Max Phillips

Mr. Carlos Pinilla & Ms. Anabel

Lino

Dr & Mrs Reggie Raman

Rev. & Mrs. Thomas Rasnick

Ms. Sally Riley

Mr & Mrs Billy Roberts

Ms. Susannah Rogers

Mr. & Mrs. Chris Ryg

Safe Splash

ESK Saints Circle

Mr. & Mrs. Carlos Salman

Mr & Mrs Philip Schmidt

Mr. Carl Schmitt

Mr. Nathaniel Shelso

Mr & Mrs Paul Siler

Mr. & Mrs. James Slaughter

Mr. Jim Smelcher

Mr & Mrs Jeff Smith

Neil & Linda Smith

Mr. Ken Smith

Mr & Mrs David Spates

Mr & Mrs Sanchez Harley

Mr. & Mrs. John Hartong

Mr. & Mrs. Chad Hatala

Mr & Mrs Kelly Headden

Mr. & Mrs. Travis Henegar

Mr. & Rev. Davin Henrik

Donnie Henry

Mr. & Mrs. Jay Herbert

Ms. Connie Hershey

Mr Jason Overall & Dr Edie Johnson

Dr. & Mrs. Clint Palmer

Lori Palmer

Mr. Thomas Papenbrock

Mr. & Mrs. Wayne Parker

Danny Patterson

Ms. Page Peek-Miller

Ms. Janna Perry

Mrs. Kaylee Bickford Stivers

Mr. David Strange

Melissa Sykes

Elizabeth Talmadge

Wayne Tannhauser

Mr & Mrs Brett Tannhauser

Mr. & Mrs. Dennis Tyrell

United Way of Greater Knoxville

Nancy Vanlandingham

Mr. & Ms. James Wallace

Mr & Mrs Phil Walpole

Tracy Ward

Ms. Martha Weeks

Mr & Ms John Weldon

Mr. & Mrs. Lyle West

Mr. & Mrs. Justin Whitt

Mr & Mrs Jason Williams

Mr. & Mrs. Barry Winston

Mr. & Mrs. Adam Wolf

1 7 | E S K S C R I B E / W I N T E R 2 0 2 4 |

THANK YOU TO THOSE WHO SUPPORT THE SCHOLARSHIP FUND.

Mr. & Mrs. Joel Adcock

Anonymous

Rev Dr & Mrs Jerry Askew

Dr. & Mrs. George Baddour

Mr & Mrs Brian Balest

Mr & Mrs Joshua Bishop

Mr. & Mrs. Tom Blanchard

Mr & Mrs Jonathan Braatvedt

Mr & Mrs Adolphus Brown

Ms. Alyson Carr

Mr & Mrs &y Chadwell

Mr & Mrs James Cogdill

The Right Rev. Brian Cole &

Susan Weatherford

Mr & Mrs Jon Cope

Laura Davis

Mr & Mrs John Dix

Dr & Mrs Matthew Doppelt

Mr. & Mrs. Brian Eckhart

Dr Ben Egner & Dr Dani Egner

Mrs Jeannie Ensign

Rev. Elizabeth Farr & Rev.

Matthew Farr

Mr & Mrs Joseph Fielden, Jr

Mr. & Mrs. David Fiser

Mr & Mrs James Fowler

Dr Hesamm Gharavi

Mr. Michael Grabman & Dr. Tracy Grabman

Mr & Mrs Scott Harrop

Mr. & Mrs. Walter Hershey

Jane L Pettway Foundation

Adrian & Larsen Jay

Mr. Harry King & Dr. Keri

Lattimore

Dr & Mrs Josh Ladd

Mr. & Mrs. Frank Lancaster

Mr & Mrs Jon Leonard

Mr & Mrs RobbyLockett

Mr. & Mrs. Cole Massey

Mr & Mrs John Mayo

Ms Stephanie McIntosh

Mr. & Mrs. &rew McRee

Dr Corinne Nicolas & Ms

Suzanne Shelton

Rev. & Mrs. Bailey Norman

Mr & Thomas Papenbrock

Page Peek-Miller

Mr & Mrs Bryan Ridgway

The Very Rev. & Mrs. John Ross

Mr. & Mrs. Edward Rottmann

Mr & Mrs Robert Samples

Mr. Carl Schmitt

Mr. & Mrs. James J. Secor, III

Mr & Mrs Samuel Shieh

Dr. Deborah Sousa

Mr. & Mrs. Alwyn Staley

Ms Beth Sterchi

Mr. & Mrs. George Sterchi

Stowers Machinery Foundation Inc.

Mr & Mrs Daniel Taylor-Roman

Mr. & Mrs. Bennie Underwood

Mr. & Mrs. Christopher Underwood

Ms Martha Weeks

Mr. & Mrs. Brian Welch

Mr. & Mrs. Alexander Winston

Mr & Mrs Max Zarchin

SPECIAL THANKS TO OUR 19TH

ANNUAL SAINTS'

GALA SPONSORS AND TABLE HOSTS

Mr. PeeJay Alexander & Mrs.

Allison Easterday Alexander

Rev Dr & Mrs Jerry Askew

BarberMcMurry Architects

Mr. & Mrs. Joshua Bishop

Mr & Mrs Jonathan Braatvedt

Bradley Arant Boult Cummings LLP

Dermatology Associates of Oak

Ridge, P C

Dominion Group

Dr. Ben Egner & Dr. Dani Egner

Erosion Supply

Mr. & Mrs. Joseph Fielden, Jr.

FirstBank

Mr & Mrs David Fiser

Flik Independent School Dining

Garza Law Firm

Mr & Mrs Mack Gentry

Mr. & Mrs. Stephenson Guffey

Fr. & Mrs. Christopher Hackett

Mr Kevin Kerchner & Dr Katie

Kerchner

Knoxville Pediatric Associates, P.C.

Lipman Brothers

Mckinnon Construction Co.

Ms. Townes Lavidge Osborn & Mr Bob Marquis

Pilot Corporation

Pinnacle Financial Partners

Portraits, Inc

Mr. & Mrs. Edward Rottmann

Mr. & Mrs. Samuel Shieh

Stowers Machinery

Stella & Bob Sudderth

Volunteer Pediatric Dentistry, PC

Mr & Mrs Brian Welch

Z Media Ventures

MATCHING GIFT COMPANIES

American Online Giving Foundation

The Benevity Community Impact Fund

Coca-Cola Give

Oak Ridge National Laboratory

Even with our utmost care to be accurate, errors can occur. If you made a gift during the past fiscal year and your name has been omitted, misspelled, or listed incorrectly, please accept our sincere apologies and let us know by contacting Corinne Mattern, Director of Advancement, at 865-777-4212 or cmattern@esknoxville.org.

THANK YOU FOR YOUR SUPPORT FOR ESK!

E S K S C R I B E / W I N T E R 2 0 2 4 | 1 8

HONOR & MEMORIAL GIFTS

Ms. Nancy Allison In honor of William Bagley

Mr. & Ms. Mark Bishop In Honor of Juliette & Brady Zarchin

Dr. Patrick M. & Rev. Michelle Warriner Bolt

In Honor of Lois Ross: Thank you for being such a wonderful teacher & guide. Love, Team Bolt,NFG

Ms. Penny Bond In Honor of Simon Fowler

Mr & Ms Mark Cade In Honor of Fleur & Arden Jones

Mr. & Mrs. Alan Cheney In Honor of Elsa Cheney

Ms Becky Cutshaw In Honor of Georgina Guffey

Ms. Erica Fitzgerald In Memory of Molly

Dr. & Mrs. Charles Gouffon In Honor of our grandchildren Ben Gouffon & Sarah Morton, graduates of ESK

Ms Season P Guffey In Honor of Georgina Guffey

r. & Ms. Stephenson Guffey In Honor of Georgina Guffey

Ms Connie Hershey In Memory of Leroy Hershey

Mr. Jimmy Jeffreys In Honor of Hunter Rowlett

Mr. & Mrs. Frank Lancaster In Honor of Stephanie McIntosh

Mr & Mrs Frank Lancaster In Memory Marie Gibson

Mr. & Mrs. Frank Lancaster In Honor of Stephanie McIntosh

Mr. & Mrs. Frank Lancaster In Memory Marie Gibson

Ms Barbara Lee In Honor of grandchildren: Dylan, Kaylie, and Myles

Dr. & Mrs. W.T Mealor

In Honor of Charlie & Max Mealor

We are so proud of both of you. Love, Gator & Gannie

Ms Anita Medlock In Honor of Mark Medlock & In Memory of Trish Groves

Mr. & Mrs. Joey Parker In Honor of Grayson Parker

Mr & Ms Danny Patterson In Honor of Jude Chandler Patterson

Mr. & Mrs. Bob F. Samples In Honor of Teagan & Maggie Mewett

Mr. & Mrs. Bob F. Samples In Honor of Teagan & Maggie Mewett

Mr & Mrs James J Secor In Loving Memory of Marie Gibson

Mr. & Mrs. Jeff Smith In Honor of Evelyn & Leon Smith

Mr & Mrs Neal Smith In Honor of Caroline & Hadley Lovegrove

Drs. Brandon E. & Angela H. Smithey In Honor of Anna Smithey

Mrs. Anne L. Sprouse

Ms Susan Sterchi In Honor of Lois Ross

In Honor of the Bird Sanctuary

Stowers Machinery Foundation, Inc Stowers Memorial Cross Garden in Memory of Sarah Stowers

Ms Elizabeth Talmadge In Memory of John Talmadge

Mr. & Mrs. James D. Travis In Honor of Jacob Travis, Class of 2023

Ms Nancy Vanlandingham In Honor of Lily & Sabine Bostick

Mr. & Mrs. Steve Ward In Honor of Sarah Grace Friedrich

1 9 | E S K S C R I B E / W I N T E R 2 0 2 4

ThechildrenoftheKodoadistrictinTanzaniaaregrowing theirlibrariesthankstorecentESKclassof‘22alum,Sophia Timmerman-Pelensky.Inthefallof2023,Sophiaand membersofChurchoftheGoodShepherdandGirlScout Troop22140,traveledtoKondoa,Tanzaniatovisitour EpiscopalcompanionsintheDioceseofKondoa.There,she andhermothergotthechancetoexperienceTanzanian cultureandmeetpeopleofthesamefaithfromacrossthe worldSherecallsthetripstrengthenedherfaith,asshe watchedinaweoftheirhappinessdespitehavingsolittle ThislackofresourceswasnotlostonSophiaasshe witnessedthechallengesthatKondoanchildrenface.

Afterobservingtheirstrugglefirsthand,shefeltshe’dbeen calledtoactionanddecidedtogivebackaspartofherGirl ScoutGoldAwardproject.Beinganavidreaderherself, shedecidedthebestwayforhertocontributewastoshare herdeepestpassion,booksOnOctober20,2023,she launchedherKondoaKnowledgefundraisertopurchase booksforthechildrenshe’dgrownsoclosetoTheinitial phasehasalreadyraisedover$3,500,whichisequivalentto roughly700textbooks!ForthechildrenofSt.PeterandSt. Paul’sPreandPrimarySchool,thisshouldmakeamassive impact,astheyweresharingbutonetextbookduring Sophia’srecentvisit.

Sophiatellsusherloveofreadinggoesbacktoherdaysat ESKandoneofherfavoritesbookswasintroducedtoher byMrs.Clark, The House of the Scorpion.GoingtoESKdid morethanhelpfosteraloveforbooksthough,italsohelped Sophiacontinueinherfaithandunderstandingofwhatit meanstobeacommunityAllofwhichhelpedhertobuild relationshipswiththechildrenandfamiliesshewasableto workwithwhileonhermission.

Sophiaadmitsshehadafewworriesandreservationsbefore goingacrosstoworld,butshesurprisedherselfwithhow muchsheenjoyedthecuisine,theculture,andofcourse, thepeopleInfact,herfavoritepartoftheexperiencewas thewayshehadtopushherselfoutofhercomfortzonein ordertohelpothers

SophiawasamazedandfelttheloveofGodasshetraveled acrosstheworldandsharedinfaithwiththoseinaworldso differentfromherown.Shecontinuestocollectbooksand donationsforthechildrenofKondoatodayandwouldbe happytohearfromyou!

ALUMNI SPOTLIGHT - CLASS OF 2022 E S K S C R I B E / W I N T E R 2 0 2 4 | 2 0
SophiaTimmerman-Pelensky

CLASSOF2005

Margaret Googe wouldliketointroduce ThomasSmith,bornMarch17,2023,to Margaretandherhusband,MichaelSmith Thomasis10monthsoldandlovestocrawl, babble,andlaugh

CLASSOF2013

Eli Fox performedmelodicblissattheESK’s 25thAnniversaryCelebrationthisfall,bringing smilesandfondmemoriestoalumni,faculty,and otherhonoredguestsinattendanceoftheevent.

Nick Lovely TheLovelyfamilyispleasedto announcetheengagementofNickLovelyto CarlyUpchurch.NickandCarlyaremedical studentsatTheUniversityofKentuckyBoth NickandCarly’sfamiliesarethrilledtocelebrate thismarriageofbestfriendsandlookforwardto theirsummernuptials.Cheerstoalifetimeof loveandhappiness!

CLASSOF2014

Peter Cooper graduatedfromUTinDecember 2023withadegreeinChemicalEngineeringHe startedanewengineeringjobatY-12inJanuary 2024.HealsogotengagedinNovember2023to aformerWebbstudent,buttellsustheyboth preferpurpletogreen!

Tristan Stouffer graduatedfromKnoxville CatholicHighSchoolin2018.Hethen graduatedfromTennesseeWesleyanUniversity in2022withaBSinMarketingadcurrently residesinKnoxvillewhereheisanEstimatorfor StoufferGeneralContractors

CLASSOF2016

Gabrielle Stouffer iscurrentlyattendingAuburn UniversitywheresheismajoringinAerospace EngineeringSheisaStudentManagerforAuburn EquestrianandamemberoftheIHSAHuntSeat EquestrianTeam.

Lucinda Warnke willgraduatefromtheUniversity ofGeorgiainMay2024withadoublemajorBAin JournalismandEnglishLiterature.Shehasinterned fortheAtlantaJournal-ConstitutionandAtlanta MagazineandisanenterprisereporteratUGA'sRed andBlacknewspaper

CLASSOF2018

Natalie Carr iscurrentlyinDCatTheGeorge WashingtonUniversitywheresheparticipatesin theirsoundingrocketteam.Theteamcompetesin aninternationalcompetitioncalledSpaceport America

ALUMNI 2 1 | E S K S C R I B E / W I N T E R 2 0 2 4
MargaretGooge,‘05andsonThomasSmith NickLovely,‘13takesengagement photoswithhissoontobebride TristanStoffer,‘14celebrates theholidayswithmom GabrielleStouffer‘16isamemberoftheIHSA HuntSeatEquestrianTeam LucindaWarnke,‘16works asreporterforUGANewspaper NatalieCarr,‘18competes inSpaceportAmerica EliFox,‘13withJaySecorathisESKgraduation andatthe25thAnniversaryCelebration PeterCooper,‘14announcesengagement

UPDATES

CLASSOF2019

Emma Yount graduatedwithhonorsfrom BeardenHighSchoolin2023andnowattendsthe UniversityofSouthCarolina,ColumbiaSheis majoringinPoliticalSciencewithaconcentration inpre-law.ShelovesbeingaUSCGamecock!

CLASSOF2020

Colin

CLASSOF2022

Brooklyn Bombardo andherfamilytraveledover theirChristmasbreaktoGuatemalatovisitJimena Leal,whomtheyhousedasanexchangestudentat ESKin2019.Jimenagraduatedfromhighschoolin GuatemalaCitythisyearandplansonattendinglaw schoolinGuatemala

CLASSOF2023

Porter Kennedy ishavinganexcellent experienceatClayton-BradleyAcademyHe sharesthathehasgottenreallygoodatping pong,andhassold40copiesofhisbook.

Kris Ezold isthoroughlyenjoyingL&NSTEM Academy,wherehehelpedestablishtheGerman ClubThisOctoberhestartedtrainingwithanew horse,Oliver,atIconEquestrianCenter

Pip Vogel wasjustappointedasafreshmanstudent ambassadoroutofover60applicants.Whenasked whyshethoughtshewaschosenshesaid,"Ithink becauseIhavehadexperienceatbothWestValley andESK,soIhaveagoodunderstandingofwhat it'sliketobeatabiggerschoolandasmaller school,soI'llbeabletohelpnewstudentsfeel comfortableandtransitionin."

Bennett Cruze isafreshmanatKnoxville CatholicHighSchoolHebelievesESKhas preparedhimextremelywellforthetrialsand tribulationsthathighschoolbrings.Hejust wrappeduphisfreshmanseasonoffootballand wantsallhisteachersandfacultytoknowheis eternallygratefulforallthethingstheydidfor himatESK

ESk Grads, share what you’ve been up to here!
ColinCook,‘20isreadytoexplorehisnext academicjourneyincollegethisfall BrooklynBombardo,‘22visitsexchangestudentandfriendJimenaLeal KrisEzold,‘23lovesattending L&NSTEMAcademy PorterKennedy,‘23hassold40 copiesofhisbook PipVogel,‘23wasjustappointed asafreshmanstudentambassadorat KCHS BennettCruze,‘23justfinishedhisfirst seasonofhighschoolfootballatKCHS EmmaYount,‘19loves beingaUSCGamecock!
E S K S C R I B E / W I N T E R 2 0 2 4 | 2 2
Cook isasenioratKCHSandplanstostudy mechanicaloroceanengineeringnextyear!
Give now to support ESK’s Annual Fund! 2 3 | E S K S C R I B E / W I N T E R 2 0 2 4

Make this year’s gala as memorable asthe last!

E S K S C R I B E / W I N T E R 2 0 2 4 | 2 4

ART

Lower School art preview

Lower School art preview

CollaborativeWork

LowerandMiddleSchoolersFashionTogether ThisYear’sBlackHistoryMonthArtInstallation

IsaiahUnger

Eachyearourstudentswork togethertobuildauniqueart installationthatrepresentsusasa groupofdiverseindividualswith onecommongoal,tobegoodto oneanother.Fromourtiniest JuniorKindergartenertoourtallest 8thGrader,eachESKstudenttook partindecorating,handweaving, andgraduallybuildingthiswoven masterpiecetoexpressaunique reflectionofeachofus.The celebrationofourdifferencesis exerciseddailyasweencourageour studentstoapproachour differenceswithdeepened understandingandwelcome.

“I made vertical lines and straight lines. I used big lines.”

“The Northern Lights are diagonal lines and one line is flying into a bird’s eye.”

“Thick and curvy lines are showing me snow and sky where it is cold. Polar bears live in the snow.”

“Swirly lines show the snow and the cold. Polar bears live in the snow and they walk on top.”

AdelinaSiegert 4thGrade TeoYunsan 2ndGrade NoraReagan 3rdGrade CaiCompton 1stGrade NatalieRottmann 4thGrade JulietteZarchin 4thGrade AbbyRidgway 3rdGrade IslaWalker JK3 AlexanderRogers 1stGrade RylanDiggs JK3 JK3 DaphneOtt JK3
2 5 | E S K S C R I B E / W I N T E R 2 0 2 4
Help Bernie find his bowl! ESK Crossword E S K S C R I B E / W I N T E R 2 0 2 4 | 2 6

Scribe Scribe

E P I S C O P A L S C H O O L O F K N O X V I L L E 9 5 0 E P I S C O P A L S C H O O L W A Y K N O X V I L L E , T N 3 7 9 3 2 8 6 5 - 7 7 7 - 9 0 3 2 W W W . E S K N O X V I L L E . O R G

Turn static files into dynamic content formats.

Create a flipbook
Issuu converts static files into: digital portfolios, online yearbooks, online catalogs, digital photo albums and more. Sign up and create your flipbook.