École nationale
supérieure d’architecture de Versailles
![]()
École nationale
supérieure d’architecture de Versailles
P45 2022 - 2023
Sous la direction de : Susanne Stacher & Luciano Aletta
Un transect analytique entre Rio et son arrière-pays « Construire les mondes des coexistences »
Universités impliquées : ÉNSA Versailles, Universidade Federal do Rio de Janeiro (UFRJ)
Enseignants :
Susanne Stacher (ÉNSA Versailles), Luciano Aletta (ÉNSA Versailles), Cauê Capillé (UFRJ), Thiago Soveral (UFRJ)

INFRASTRURES
Gaëtan Bourrouet
Gaston Delplanque
Baptiste Chassang
EQUIPEMENTS
EQUIPEMENTS SPORTIF
HABITAT
Camille Munoz
Thibaud Salaun
Sarah Bocquet
Soumaya Rais
Dory Soulage
Matéo Bouton
Alessia Calzeto
Carmen Meza Palomino
Sarah Clerget
Les infrastructures de mobilité matérialisent et déterminent le quotidien de centaines de millions de personnes qui habitent dans les zones périurbaines d’Amérique Latine. Elles articulent la micro et la macropolitique d’un point de vue économique, culturel et social. Dans ce workshop, la notion de « biens communs »(tels que le sol, l’eau, les forêts, les zones humides, etc.) a été abordée à travers les infrastructures. En partant de la situation urbaine complexe entre Rio de Janeiro et son arrière-pays, nous avons questionné deux modèles généralement employés en Amérique latine, l’« hyper-mobilité » et l’« hyper-immobilité », qui impliquent une dépendance économique dans le premier cas et un désenchantement de la vie politique pour le second. Nous avons ensuite abordé la notion de « bonne urbanité », une référence incontournable en Amérique Latine. Comment introduire de contredynamiques dans ce processus de métropolisation incessant, qui implique des trajets de plus en plus longs ? Quelles dynamiques devraient être davantage décélérées ou accélérées afin d’améliorer les conditions de vie des plus démunis tout en instaurant un rapport plus respectueux avec l’environnement ?
Séminaire et conférences :
Une journée de conférences à introduit un séminaire de réflexion sur les enjeux urbains, sociaux et écologiques. Après le mot de bienvenue de Guilherme Lassance, doyen de la faculté d’architecture, Cauê Capillé a introduit la thématique du workshop. Il a exposé les enjeux territoriaux entre la ville de Rio et son arrière-pays d’un point de vue économique, écologique et social : les personnes le plus défavorisées habitent loin de Rio, mais les transports publics ne correspondent pas aux flux de circulation ; l’expansion urbaine de Rio atteint au fur et à mesure l’arrière-pays et risque de le gentrifier et de créer une « ville continue », sans respecter le rôle crucial des zones humides, indispensables pour l’absorption des eaux de pluie afin d’empêcher des inondations.
Priscilla Coli, doctorante brésilienne à l’UC Berkeley (États-Unis), a présenté sa recherche sur les quartiers précaires actuellement construits de manière sauvage par la milice brésilienne dans les zones humides autour de Rio, ce qui entraîne non seulement une catastrophe écologique mais aussi un désastre social, tant du point de vue des risques d’inondation que de la gouvernance, exercée par la terreur et fondée sur l’exploitation des plus démunis.
Luciano Aletta, doctorant à l’ENSA Versailles et enseignant dans cet atelier de projet, a présenté son sujet de thèse qui porte sur la notion des « Commons »d’un point de vue théorique et historique, tout en
ouvrant le regard sur les défis actuels face aux crises écologiques et sociales.
Susanne Stacher, professeure à l’ENSA Versailles, a donné une conférence sur le sujet de son dernier livre “In Times of Crises Architects Designing ‚New Worlds’” qui traite des projets urbains et des visions de société en temps de crise, tâchant de construire d’autres formes de villes et d’autres manières de vivre ensemble.
Après le séminaire théorique, nous avons visité le site du workshop, la périphérie entre Rio et Xerèm, une commune située dans l’arrière-pays. Bien que cette région soit mal reliée à Rio par des transports en commun, des Gated Communities commencent à y surgir, notamment dans les zones humides, avec des ensembles de gratte-ciels semblables à ceux de la Ville radieuse de Le Corbusier. Comment esquisser des alternatives à cette dynamique incessante qui met en péril l’écosystème ? Comment placer les systèmes écologiques au centre d’une nouvelle vie politique et sociale ? Prenant appui sur les théories des « biens communs », le workshop a questionné la spécialisation et la rationalisation de l’espace imposées par la modernité, tout en cherchant à réactiver cette région d’un point de vue économique et social.
Les thématiques sur lesquelles les étudiants ont travaillé étaient la gentrification, les infrastructures et le transport en commun, la réactivation de cette zone périurbaine économiquement délaissée, la construction de logements sociaux et d’équipements éducatifs et sportifs, la protection des zones humides et la gestion de l’eau, ainsi que la préservation des forêts, considérés comme des biens communs à prendre soin. Les étudiants brésiliens et français ont conçu ensemble des projets qui esquissent des potentielles alternatives dans ce contexte périurbain désenchanté.

La première observation faite sur la ville de Xerèm est que malgré sa proximité avec Rio de Janeiro, il s’agit d’une ville très enclavée, plutôt déconnectée de ses alentours.
La ville est découpée en multiples zones: la zone industrielle, la zone résidentielle avec quelques commerces, le centre météorologique et la gated community. La topographie impose une séparation marquée entre les différentes zones et par conséquent très peu d’échanges entre ces dernières.
Ce projet s’inscrit dans un scénario de forte accélération du développement de Xerèm. Il s’agit d’une part, de créer une liaison entre la ville de Pétropolis et de Rio de Janeiro et d’autre part de relier les différentes zones de la ville de Xerem. L’accès simplifié aux différents pôles de la région et de la ville permettrait d’augmenter l’attractivité de la ville ainsi que son développement économique.
Cette infrastructure est une passerelle de 1 km de diamètre, sur laquelle est implanté un système de transport rapide, une voie piétonne et une piste cyclable, le tout dans un cadre verdoyant.
Ce projet est également un espace de loisir et de rencontre entre les différents utilisateurs, il est un connecteur social et économique permettant de créer un commun.
Aujourd’hui Xerèm ne possède que très peu d’entreprises, et celles-ci sont majoritairement des micro-sociétés ne permettant pas l’attractivité économique de la zone.
Le développement de Xerèm permettrait l’implantation de multiples sociétés de plus grande taille. L’augmentation des échanges économiques et sociaux inciterait les populations à emménager ou travailler à Xerèm.
Dans ce scénario, la ville pourrait se développer horizontalement et verticalement, elle s’étalerait sur le temps sur les zones plates, en laissant la topographie créer des espaces verts nonconstructibles, afin de protéger et de créer des espaces naturels.




CENTRE DE RIO DE JANEIRO
35 KM
HEURE CREUSE
35 MIN - 55 MIN
HEURE DE POINTE
50 MIN - 1h40 MIN
KM
HEURE CREUSE
35 MIN - 45 MIN
HEURE DE POINTE
40 MIN - 1h15 MIN

ZONE INDUSTRIELLE
GATED COMMUNITY
ZONE RESIDENTIELLE + COMMERCES
CENTRE METEOROLOGIQUE

PORTION CONSTRUITE SUR L’AUTOROUTE
TRANSPORT ( TRAIN + PISTE CYCLABLE )










carte du territoire infrastructurel étudié, Luis Washington Road, Rio de Janeiro Xerem, et moments infrastructurels
L’infrastructure comme commun
L’analyse s’est portée sur la relation entre le Brésil et son infrastructure, son échelle, ses dynamiques et ses formes urbaines. Par une série de moments choisis le long de Washington Road, une ligne autoroutière connectant l’hypercentre de Rio à la petite ville de Xerem, nous avons dessiné et mis en exergue l’expression infrastructurel d’un pays en voie de développement, aux plus de 200 M d’habitants.
L’infrastructure s’est imposée comme un thème majeur du territoire étudié et de l’articulation du studio, la compréhension de son omniprésence dans la ville de Rio nous a paru indispensable.

Taille réelle du Brésil comparé à l’Europe et non déformée par le planisfère


principaux aéroports répartis sur le territoire brésilien
autoroutes et routes officielles, reconnues par le gouvernement brésilien



Tension between infrastructure and strong topography, isolated situation or global global reading of the urban territory?



Impressive quantity of infrastructure on the territory, was it necessary to implement so much of it? Is such a scale possible to hack, despite its urban disconnection?





highway interchange, Rio de Janeiro
The infrastructure blends into the city, is it possible to think of infrastructure as a common? Urban-hacking is difficult to identify without being in situ, but its presence is very likely.



040 highway, Rio de Janeiro, Xerem
Typological element of Rio’s infrastructure, higway platform, both for cars and pedestrians. Cars on the concrete bridge, pedestrians on the steel platform. Appropriated by merchants and locals, a starting point for urban-hacking ?

PRODUCTION LORS DU WORKSHOP IN SITU, A RIO DE JANEIRO masterplan hypothétique d’un scénario accélération décélération de la ligne infrastructurel étudiée


collages des scénarios
3 OBJETS SEPARES OU UN COMMUN: INFRASTRUCTURES, NOEUDS, LA STRATEGIE D’UNE ACCELERATION D’UN TERRITOIRE COMPLEX.
Nous sommes revenus en France avec la volonté de développer un projet capitalisant sur la décomplexion du Brésil quant à l’infrastructure. Son omniprésence, la domesticité se développant tout autour d’elle, la capacité du peuple à l’utiliser et à se l’approprier.
Le projet s’organise autour d’un immense vide urbain fabriquant un territoire complexe : no-go zone militaire, industrie pétrochimique, ancienne décharge à ciel ouvert, dizaines de kilomètres de marais extrêmement pollués autrefois place forte du commerce triangulaire.
Trois objets modulaires sont placés à deux points stratégiques du territoire : un premier au niveau d’un noeud infrastructurel regroupant la ligne infrastructurel étudiée lors de l’analyse, des plateformes autoroutières privées appartenant à des industries, et une ligne de train de commuting active. Un deuxième objet se place sur le littoral en convalescence, autrefois immense wasteland, et organise une nouvelle ligne de ferry reliant le territoire du projet et l’île de Jardim Carioca, enclavée et immobile.
Un troisième objet s’organise à la rencontre entre deux zones qui commencent à s’urbaniser et dont on peut prévoir le développement, en raison d’un accroissement instoppable de la ville de Duque de Caxias et de dizaines de lots immobiliers déjà prédécoupés.
Les trois objets sont reliés par une ligne infrastructurelle grande vitesse, sous la forme d’une simple plateforme autoroutière surélevée.
Les objets s’organisent sur un socle infrastructurel dur, gérant et redirigeant les flux, et de programmes diverses empilés sur les niveaux supérieurs.






















Cohabiter avec l’industrie
En 1945, Otto Da Rocha e Silva présente le projet de la Motorcity pour la ville de Xerém. Le projet était composé d’une zone industrielle ainsi que d’une zone d’habitation. En 2023, cette zone industrielle est dépourvue de sa zone d’habitation car cette dernière n’a jamais été construite. Une question importante est donc soulevée; comment hacker cette industrie afin d’habiter avec ces big box? Ce projet est une hypothèse d’évolution de la zone industrielle de Xerém grâce à une intervention qui a pour but de dynamiser l’économie et la vie dans cette zone.
Les premières recherches se sont dirigées vers la relation entre le logement et le lieu de travail ainsi que la notion d’auto-construction déjà présente dans le centre-ville de Xerém. En second lieu, la réflexion du site nous a montré que la zone industrielle de Xerém est située à un endroit stratégique de la ville, entre le centre-ville, la «gated community» et l’arrêt de bus en liaison direct avec le centre de Rio de Janeiro.
L’élément déclencheur du changement et de l’évolution de cette zone industrielle est la mise en place en 2028 de La Colonne; un module tout en longueur qui traverse la zone industrielle et permet la circulation entre les différentes industries grâce à des passerelles. La colonne abrite aussi différents programmes qui permettent d’accélérer le développement de l’industrie comme des bureaux, des espaces de coworking et des ateliers.
À travers le temps, la zone industrielle va accueillir de nouvelles industries ainsi que des logements et des espaces communs. Ces espaces sont agencés en suivant un masterplan qui mets en avant le bien-être des utilisateurs et des habitants de cette zone au quotidien. En effet, entre la rue et l’industrie, un espace tampon est créé et devient une bande de communs accuillant parcs, musées, restaurants, complexes sportifs, magasins, places de marchés, écoles, etc... Cette bande de communs est reliée à l’industrie grâce à La Colonne. Les logements quant à eux sont de forme circulaire et placés entre un espace vert et la forêt pour permettre une meilleure vu à partir de ces logements.
Pour ce qui est de l’avenir de l’industrie à Xerém, elle persistera à travers le temps tout en se transformant. Elle évoluera en passant de la grosse industrie à une industrie numérique qui nécessitera moins d’espace et on aura donc une dispersion de l’industrie qui créera de nouveaux espaces verts.

scracity + demand + criativity
Diagramme Learning from autoconstruction




























Diagramme

50min - 1h50min
Zone industrielle

Arrêt de bus
Gated community



Plan zone industrielle 2023
Plan zone industrielle 2033 - Nouvelle industrie
Plan zone industrielle 2038 - La place
Plan zone industrielle 2043 - Dispersion de l’industrie
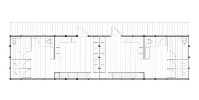
PLAN RDC 1:200
PLAN R+1 1:200




Nous avons concentré notre analyse sur les équipements présents dans la ville de Rio de Janeiro et sa banlieue (notamment la ville de Xerem, située au Nord de Rio de Janeiro). Nous nous sommes principalement intéressés aux équipements essentiels et fortement ancrés dans la vie quotidienne des brésiliens, avec les écoles (excluant les écoles supérieures), les supermarchés (alimentaires) et les loisirs (terrains de foot).
En localisant chacun de ces équipements et en s’appuyant sur les temps de trajet en voiture, en vélo et en tant que piéton, nous avons pu déterminer quelles étaient les zones en manque d’équipements.
Certains quartiers nous ont également interpellés de par leur forte concentration en équipements. C’est le cas de Xerem, quartier où l’on retrouve un grand nombre de terrains de football et centres d’entrainements (notamment celui de Fluminense). Cependant, malgré le fait qu’il y ait beaucoup de terrains de foot, les logements et équipements nécessaires à un fonctionnement optimal d’un centre de formations ne sont pas présents. Les joueurs n’habitant pas dans le quartier pour la plupart, sont contraints de subir des temps de transports extrêmement longs chaque jour pour rallier Xerem depuis leur domicile.
Mis à part les terrains de football, les équipements culturels sont très peu nombreux à Xerem et il est donc difficile pour les enfants de se développer dans de bonnes conditions. Ils n’ont pas la possibilité de sortir souvent de leur quartier. Ils habitent à quelques dizaines de kilomètres de la mer et ne savent pas nager pour la plupart… L’accès à une bibliothèque est compliqué car on n’en trouve pas dans Xerem…
Temps de trajet:
Ecole, Supermarché, Loisirs

TEMPS DE TRAJETS SUPERMARCHES
TEMPS DE TRAJETS LOISIRS


DE XEREM ET L'UFRJ
CENTRES D'ENTRAINEMENTS /
voitures ( 15 / 30 min )
piétons ( 15 / 30 min )
faible densité
faible densité forte densité
voiture piéton forte densité

centres d’entrainement
XEREM écoles
gymnase
salle de sport
médiathèque
logements
terrainsdefoot/tennis/multisports
terrains de foot
équipements àcréer équipements àréhabiliter existant
voiture piéton forte densité faible densité
écoles
école type STAPS
piscine
UFRJ
habitants
écoles centres d’entrainement de football




voiture
piéton
faible
forte
place urbaine
terrain de football
passerelle piétonne
passerelle routière
En partant de l’analyse et du fait qu’il est difficile de circuler entre Rio et Xerem quotidiennement mais aussi du manque d’équipements culturels dans Xerem, je me suis penché sur la conception d’un centre culturel et sportif.
Ce projet prend place sur un campus de l’UFRJ (Université Fédérale de Rio de Janeiro) en majeure partie désaffecté et sur lequel seul une école de chimie y possède encore ses locaux. Ce campus est situé à l’entrée du quartier de Xerem, le long de l’autoroute menant à Rio. Cette autoroute est responsable de l’éclatement entre 3 quartiers entre lesquels il est difficile de circuler que ce soit en voiture ou en tant que piéton.
Aujourd’hui, seules d’étroites passerelles existent, ce qui peut rendre ces espaces de circulation obsolète, particulièrement lorsqu’il fait nuit car leurs caractéristiques en font des lieux d’insécurité.
Le projet a pour objectif d’être utile aussi bien à l’échelle locale plus grande échelle. Les logements créés permettront aux joueurs des centres d’entrainements de Xerem mais aussi des villes alentours de pouvoir habiter à proximité des stades de football. Ils pourront également bénéficier des équipements sportifs sur place.
Certains seront réhabilités comme la piscine et ses vestiaires ou encore les terrains multisports, tennis et de foot. D’autres seront créés comme le gymnase ou la salle de sport. Certains terrains de foot présents dans les quartiers alentours seront réhabilités et agrémentés de tribunes et vestiaires, leur permettant ainsi d’accueillir certains matchs.
Le projet consiste en la création d’une passerelle principale reliant les 2 rives de l’autoroutes. Des passerelles secondaires viennent ensuite s’accrocher à la passerelle principale desservant ainsi chacun des quartiers et Les multiples équipements sportifs et culturels qui leurs sont accolés.
La passerelle principale, située à 10m de hauteur, permet une circulation piétonne et une piste cyclable. Ces circulations sont protégées des orages et des fortes chaleurs grâce à un auvent. Ce dernier recouvre également des assises où il est possible de s’arrêter. On retrouve le long de cette passerelle des places regroupant des équipements et activités pouvant évoquer pour certaines le programme d’un bâtiment proche.
C’est le cas de la salle de sports, devant laquelle se trouve des coursives abritant des activités en lien avec les espaces intérieurs.
Le but de ces coursives étant d’être accessible à tout le monde et de pouvoir profiter des installations (matériel de sport…) sans avoir à prendre un abonnement quelconque.
Les débords de toiture sur les bâtiments jouent un rôle de protection solaire aussi bien pour les personnes présentes dans le bâtiment que pour celles à l’extérieur du bâtiment.
La passerelle et les multiples toitures se superposant sous la forme d’éléments horizontaux massifs contrastent avec de fins poteaux verticaux porteurs. Ils se différencient également par leur matérialité ( du bois pour les toitures accentuant l’aspect massif et de l’acier pour les poteaux).
vestiaires + tribunes

terrain de foot















vestiaires + tribunes
vestiaires + caféteria piscine
tribunes
école STAPS
vestiaires + caféteria piscine
tribunes
logements logements
logements
école STAPS
logements





















































école de chimie
salle de sport
gymnase
terrains de tennis
terrain de foot















existant
réhabilitation






terrains de tennis
terrain de foot
vestiaires + tribunes
terrain de foot





nouvelle construction
projet transport ferroviaire








circulations piétonnes au sol

terrain multisports












école de chimie










salle de sport














gares routières passerelle médiathèque
terrain de foot
centre d'expositions
vestiaires + tribunes
terrain multisports gymnase









































vestiaires + tribunes



existant
réhabilitation
nouvelle construction






vestiaires + tribunes













circulations piétonnes au sol

































projet transport ferroviaire 1/4000
zone d'activités sous la forme d'une place avec des terrains multisports, skatepark , bars
Plan schematique du site 1/4000
zone d'activités sous la forme d'une place avec des terrains multisports, skatepark , bars
1/4000






Plan de la paserelle 1/1000
Plan RDC de la salle de sport 1/200

Plan R+1 de la salle de sport 1/200














platellage en bois de frêne
poutrelles en acier en I
poutre en bois
poteau creux en acier Ø 20 cm
câble en acier
poutres en acier en T
poutres en acier en U
poteau creux en acier Ø 20 cm
couverture en tôle bac acier
platine de pré scellement
fondations
Détail technique de la passerelle 1/200
bande de végétation
piste cyclable
circulation piétonne partiellement couverte assises couvertes
baies vitrées
COMPOSITION PASSERELLE
VUE EN PLAN
air neuf ( frais )
VENTILATION BATIMENT
VUE EN COUPE
EXTERIEUR circulation COURSIVE prolongement du programme du bâtiment ( installations ouvertes à tous )
air vicié ( chaud )
jalousies (régulation de la température et de la ventilation intérieur )
INTERIEUR équipement sportif ou culturel
CONNEXION BATIMENT / PASSERELLE
VUE EN PLAN


BOCQUET Sarah

Le club de football de Fluminense - un des clubs les plus célèbres de la ville de Rio de Janeiro – a ouvert une section professionnelle pour les jeunes joueurs en formation. Ce centre a été déplacé dans la ville de Xerém, à une cinquantaine de kilomètres au Nord de Rio. Aujourd’hui, 400 jeunes y évoluent. Cependant, environ 50 logements ont été prévu pour eux. On compte donc presque 350 joueurs qui doivent faire des allers-retours quotidiennement entre Xerém et leur ville d’habitation (souvent Rio ou Petropólis), situées à plus d’une heure et demi de route.
Il a donc fallu trouver une solution pour les loger mais, toutefois, en ne les séparant pas du reste de la ville. Et, dans le cadre du thème des communs, ce projet doit aussi permettre de faire évoluer la ville de Xerém avec ses habitants permanents.
Pour cela, après avoir localisé le centre d’entrainement de Fluminense comprenant sept terrains de football, il a fallu en sélectionner deux d’entre eux, disposant d’assez d’espace pour y édifier des logements. Le but n’étant pas de séparer les terrains mais plutôt de les mettre en lien, de les associer afin qu’ils répondent ensemble aux problématiques actuelles.
On retrouve alors sur la moitié Sud-Est des terrains des unités d’habitation pour les joueurs bénéficiant d’une bonne orientation solaire et sur l’autre moitié Nord-Ouest, des grands espaces communs aux joueurs et au reste des habitants de Xerém, surplombés de gradins sur toute leur longueur afin d’accueillir les supporters lors des jours de matchs.
Toute l’infrastructure est desservie en transport par un métro aérien, projet de Gaëtan, un autre élève du master.

carte 1/20 000

plan de contexte 1/8 000
zone commerciale
cafétéria espace de repos
espace de travail
hôtel

logements
plan masse 1/1 000
FLUX
habitants de Xerém
joueurs de football
joueurs de football
supporters et spectateurs
travailleurs
voyageurs
ENSOLEILLEMENT
ENSOLEILLEMENT
VENTILATION


diagrammes explicatifs

plan - organisation des logements 1/200
rez-de-chaussée
premier étage
plans logement 1/100
















élévation et coupe logement 1/100






plan - organisation des espaces publics 1/200

plans zone commerciale/cafétéria et espaces de repos 1/100




coupes zone commerciale/cafétéria et espaces de repos 1/100
plans espaces de travail/hôtel 1/100


coupes espaces de travail/hôtel 1/100








Comment participer à la décélération de l’urbanisation à Xerem ?
C’est une problématique à laquelle ce projet essaye de répondre. En effet, en partant de l’observation d’un ter-rain de football présent depuis 2004 qui a vu s’établir aut-our de lui des habitations, qu’un début de réponse se dessine.
Partir du vide pour créer la ville. Le projet projette le de-venir d’une partie de Xerem visant à offrir des solutions durables et à favoriser le bien-être de la communauté.
Un archipel végétal s’établit autour de lignes d’extension de route présente aujourd’hui. On assiste à la naissance d’une trame nous suggérant les futurs centres de regroupement de cette parcelle.
L’un des objectifs majeurs de l’Archipel est de créer des espaces verts en implantant des forêts d’arbres. Cette initiative vise à atténuer les effets des températures élevées de la ville en procurant une source naturelle de fraîcheur. Les arbres jouent un rôle essentiel dans la régulation thermique et la création d’îlots de fraîcheur, offrant ain-si aux habitants un environnement plus agréable et confortable.
En intégrant des forêts d’arbres, des bassins d’aquaculture, des marchés, un centre d’art et des aires de jeux, ce projet souhaite rassembler la communauté autour de programmes centrés sur les biens communs. Il engage une réflexion plus globale sur la manière dont nous pouvons repenser nos villes et mettre à dis-position les ressources disponibles pour le bien-être collectif.




















































Un autre volet essentiel de l’Archipel du Vide est l’inclusion d’un centre d’art. Ce centre vise à cultiver l’esprit de la communauté en offrant des espaces dédiés à l’apprentissage, à l’expression artistique et à la créativité. Il permettra aux habitants de se familiariser avec les différentes formes d’art, de participer à des ateliers et d’interagir avec des artistes locaux et internationaux. Cette intégration du vide dans un centre d’art contribue à créer un lieu inspirant et stimulant pour tous.
En plus des forets, le projet exploite les espaces vides pour développer des bassins dédiés à l’aquaculture. Ces bassins servent à cultiver des ressources alimentaires de manière durable, offrant ainsi une source locale de produits frais tout en renforçant la résilience alimentaire de la communautés. Cette approche innovante de l’aquaculture urbaine favorise la production responsable et la consommation locale.l’archipel du vide est également conçu comme comme un lieu de recontre et d’échange.
En intégrant des marchés dans les espaces vacants, le pro-jet encourage la convivialité et la communication entre les habitants. mais constitueront également un espace dynamique où se côtoient différentes communautés et cultures.
L’Archipel prévoit également des aires de jeux pour les habitants de tous les âges. Ces espaces ludiques offrent des opportunités de divertisse-ment et de détente, encourageant les rencontres et l’interaction sociale.


























Sacralisation du vide
a première visite de Xérem, nous a montré et enseigné une façon de construire et d’habiter complétement opposée à notre vision européenne. Les habitants sont leurs propres architectes et urbanistes, construise avec leurs matériaux locaux et leur techniques entre voisins et générations. Cependant, romantiser ces techniques constructives reste naïve et dangereux. De nombreuses personnes meurent dans leurs maisons à causes de malfaçons mais également les enjeux du terrain subissant séchéresses et inondations.
De plus, la ville manque cruellement d’îlot de fraîcheur, d’ombre et il est très difficile de circuler à pied en pleine chaleur. Chaques vides est rapidemment planifier pour acceuillir de nouvelles habitations. La ville de Xérem connaît une forte accélération de sa densité urbaine mais très peu de parcelles restent inceploitées très longtemps. Lors de notre analyse historique à partir de 2004, une parcelle laissée vide pendant 20 ans a attiré notre attention.
En effet, le terrain n’a pas bougé d’emplacement au contraire c’est même devenu un lieu attractif où des habitations se sont construisent autour. Une des mannières de préserver ce vide est dans ce cas le sacraliser. Le sacré est le dérivé de sacer en latin signifie qu’il ne peut être touché ou souillé à l’aide d’un rituel lié au domaine. Réfléchir à la notion de limite protectrice du vide serait une solution pour lutter contre l’accélération de l’urbanisation. Ce projet dessinne 3 propositions à la préservation du vide. Le premier site n’est actuellement que du vide mais sera prochainnement sujet à des offres de projets et d’habitations à grande échelle.
La contre proposition serait d’en faire une terre d’agriculture afin de développer une activité économique et à l’intérieur des terres un marché protégés par des estrades et des assises non mobiles. Le programme pourrait évolué ou radicalement changer en fonction des besoins de la population. La deuxième proposition se situe sur un site de parcelles d’habitations en pleine croissance. L’idée serait de préserver une parcelle dans le but qu’elle devienne un îlot de fraîcheur aved un espace vert et d’eau pour les habitants. Cela participerai à leur confort et pourrait devenir un lieu de rendez vous. Enfin, le troisième lieu et une parcelle complétement vide où serait installé un skate park ferant office de limite afin de planter une forét et revitaliser l’écosystème. Autour du skate Park, l’installation d’habitations se ferait mais l’espace forêt sera entièrement préserver de toutes constructions.

Hypothèse accélération de l’urbanisation à Xérem






Diagramme accélération autour du terrain de football



Plan echelle 1:500
Axonométrie echelle 1:500

Plan echelle 1:500
Axonométrie echelle 1:250

Plan echelle 1:500





à Rio - Bâtiments sur les berges après 2013









Nous avons relevé dans cette analyse les éléments montrant le rapport entre l’Homme et la rivière, son impact sur cet élément naturel, via six types d’interventions. D’abord comment il franchit cette limite physique, avec des ponts, certains piétons, certains réservés aux véhicules. Ensuite, comment l’infrastructure rencontre l’eau, avec des autoroutes très proches de la rivière. Nous avons également repéré les différents bâtiments installés sur les berges de la rivière, ceux qui ont résisté à la catastrophe, mais aussi les espaces qui ont été dévastés transformés en espaces publics. Nous avons également repéré les espaces en cours de transformation sur les berges qui faisait écho à la nouvelle politique d’aménagement des bords de la rivière. Enfin, nous avons aussi relevé les zones ou l’homme ne s’est pas installé, des espaces plus sauvages, ou la forêt peut s’étendre ville jusqu’aux montagnes.
Plusieurs communautés privées sortent de terre après avoir rasé ce qui se trouvait sur place. C’est un endroit à enjeux majeurs, avec les risques d’inondations, l’urbanisation qui s’étend de plus en plus et la construction de communautés fermées au détriment de la nature et de son développement.







































































Key
Building edge
Bridges
Public spaces
Transforming river banks
Highway interactions
High density vegetation






Nous avons relevé dans cette analyse les éléments montrant le rapport entre l’Homme et la rivière, son impact sur cet élément naturel, via six types d’interventions. D’abord comment il franchit cette limite physique, avec des ponts, certains piétons, certains réservés aux véhicules. Ensuite, comment l’infrastructure rencontre l’eau, avec des autoroutes très proches de la rivière. Nous avons également repéré les différents bâtiments installés sur les berges de la rivière, ceux qui ont résisté à la catastrophe, mais aussi les espaces qui ont été dévastés transformés en espaces publics. Nous avons également repéré les espaces en cours de transformation sur les berges qui faisait écho à la nouvelle politique d’aménagement des bords de la rivière. Enfin, nous avons aussi relevé les zones ou l’homme ne s’est pas installé, des espaces plus sauvages, ou la forêt peut s’étendre.

Légendes:
Zones inondables
Zones construites
Entre la rivière et la ville : Ce projet questionne le futur de la rivière Saracuruna et ses alentours à Rio de Janeiro. Le district de Duque de Caxias et plus précisément Xerèm souffre d’inondations lors de période de fortes pluies. L’urbanisation massive est aussi en train de s’étendre, et des zones industrielles avec des ensembles de logements privés fermés s’élèvent dans la région.
Le projet tente de préserver et protéger a rivière, de la garder comme un bien commun, une ressource pour le futur. Nous avons appris de la rivière Capivari qui coule dans le centre-ville de Xerèm, avec ces nouveaux aménagements et ses points de baignade lorsque l’eau est encore propre. Ce sont des espaces de rassemblements pour la population, avec des constructions alternatives faites par la communauté.
Nous avons pensé qu’un moyen de prévenir de cette urbanisation massive et des inondations était de concevoir une passerelle piétonne qui suit le cours de la rivière. Son chemin crée des zones non constructibles aux abords de la rivière permettant à la nature de se déployer. Cette passerelle en béton forme une grande ligne dans le paysage montagneux de Rio de Janeiro. Pour prévenir des inondations possibles de cette rivière, des bassins de rétentions sont conçus le long de la rivière en différents
points, liés à la passerelle, pour garder l’eau pendant les fortes pluies et empêcher l’urbanisation dans ces zones. Pour permettre aux habitants d’interagir avec la rivière, des petits programmes construits en bois viennent, comme des artefacts, activer ces bassins en lieux baignades.Le cours de la rivière permet aussi de créer des réseaux de drainage pour alimenter en eau des champs le long de la rivière, un autre moyen d’empêcher l’urbanisation proche de la rivière. Les paysans peuvent ainsi stocker leurs récoltes leurs machines dans les nouveaux bâtiments en bois.
La barrière physique entre la rivière et la ville permet de donner à nouveau du sens à la rivière Saracuruna, c’est une manière de ramener les habitants à l’utiliser, à la garder, et les programmes tout autour sont un moyen de la surveiller et de respecter cet espace naturel pour qu’il reste un bien commun.
ferramentas projetuais leitura do território
termo "roça", proveniente do latim "ruptiare" derivado de "ruptus/ rumpere", significa "fazer uma brecha, partir, quebrar”. Em português brasileiro, se refere ao processo da "limpeza" da terra para plantação alimentos. Baseado em práticas indígenas, o princípio da roça se primeiramente pela quebra dos galhos e vegetação rasteira, para que então o fogo prepare o solo para plantio.13
No vocabulário popular, geralmente roça pode se referir tanto como uma pequena propriedade rural para cultivo, geralmente de aipim, milho ou feijão, como também uma zona inteira onde se exerce atividade agrícola e pecuária, similar à ideia de “campo”.
Existe uma condição particular importante de ser citada e entendida para Xerém, que por ausência de uma terminologia específica, o conceito de roça se mostra adequado, além de já ser usualmente utilizado para se referir ao distrito. Portanto, considerando esse espaço de produção que acompanha a história de Xerém, é essa condição que dará parte do nome ao projeto para a margem do rio.
"ruptiare" derivado de "ruptus/ quebrar”. Em português da terra para plantação o princípio da roça se vegetação rasteira, para pode se referir tanto como geralmente de aipim, inteira onde se exerce de “campo”. ser citada e entendida terminologia específica, o de já ser usualmente considerando esse história de Xerém, é essa para a margem do rio. TUPINAMBÁ, KAYAPÓ E KUIKURO E AS
Cultura Material e Patrimônio de C&T, Rio de











































La forêt atlantique partage des portions de son territoire avec la ville de Xerém, ce qui crée un enchevêtrement intrinsèque entre les deux entités et comment, d’autre part, les gens les perçoivent séparément. Même avec l’existence de la forêt si proche, les relations établies sont souvent destructrices pour l’acquisition de terres ou simplement une posture passive d’appréciation et de loisirs, comme avec les sentiers menant à la cascade. Les relations de soins et de protection sont rares, voire inexistantes.
Les limites de la forêt et la façon dont elle touche la ville offrent cependant des situations intéressantes. Cette frontière est diffuse et pas très cohérente, car parfois c’est juste un mur construit tandis que d’autres c’est une pente raide ou des maisons auto-construites entourant une montagne déboisée. Dans tous les cas, il y a des points où cette frontière est déjà utilisée comme infrastructure pour la population locale, par exemple avec le mur à côté de l’entrée de la cascade, qui est utilisé comme
une extension du restaurant juste en face. Ces situations pointent vers le potentiel d’utiliser les limites de la forêt comme une zone tampon - en d’autres termes, une ceinture infrastructurelle qui agira comme un pont entre le monde créé par l’homme et celui façonné par la nature.
En tenant compte de cela, l’argument de ce projet est que ne pas agir sur la forêt et la laisser sans aucune utilisation axée sur la communauté représente un point de vulnérabilité pour l’accaparement illégal des terres et l’expansion de la déforestation. L’objectif est donc de proposer différents programmes le long de la lisière de la forêt qui invitent et offrent à la communauté locale une chance de devenir des acteurs actifs de cet espace, avec l’établissement de relations distinctes entre les hommes et la forêt, divergentes de la destructif standardisé.











EMPLACEMENT ARCHITECTURAL Urban
L’importance d’avoir un lien avec un contexte important tel que la forêt, nous amène à chercher à générer une architecture participative communautaire, en tenant compte du fait qu’elle est typique de la culture brésilienne, le lien avec son contexte naturel, avec des activités récréatives, les maisons connecter avec la nature (précaire) avec de petites cultures à l’intérieur.
Dans ce contexte, il est proposé dans cette limite de créer une architecture qui permette la participation de la communauté avec le contexte naturel : une cuisine communautaire permettra le lien avec les produits agri-
coles permanents et temporaires qui sont produits à Xérem, et d’autre part un parc agricole, dans lequel les habitants peuvent vendre leurs produits, car en tant que stratégie individuelle, un plan de permaculture est inséré qui aidera à renforcer les cultures de chaque maison, et sera exposé et vendu dans le parc agricole.
De plus, compte tenu du fait que la ville se transforme constamment, en tant que conception architecturale, elle cherche à générer un espace polyvalent pouvant être utilisé pour d’autres activités communes.
Stratégie de conception


Panneau solaire
Couverture translucide
Structure en bois


Panneaux modulaires
Plate-forme en bois
Des pieux conformes à la topographie





L’importance d’avoir un lien avec un contexte important tel La cuisine commune est un espace de partage, les femmes des villes comme Xerem ont un rôle important dans le développement des familles, et les cuisines communes sont un espace non seulement pour cuisiner et manger, mais aussi un espace dans lequel cela peut être transformé en espaces communs pour les activités communes entre les membres de la famille, car ils seront considérés comme un espace libre et sûr à développer. L’architecture propose de suivre le module polyvalent qui peut être ouvert vers l’extérieur en suivant le principe de NÉGATIF ET POSITIF avec la limite de la ville et de la forêt


Le parc agricole est un espace de vente des produits fabriqués à Xérem. Étant donné que les produits sont sélectionnés comme permanents et temporaires, il est proposé de créer 4 modules pouvant être utilisés par la communauté qui pratique la permaculture et peut vendre la récolte de son jardin, ainsi que l’espace pour la vente de produits agricoles dans une plus grande vente . . En tant qu’espace polyvalent, l’espace peut être utilisé comme centre d’exposition de produits agricoles, grandes foires alimentaires et autres activités de plus grande capacité. Le volume s’intègre à la topographie et la végétation maintient le concept de négatif et de positif









CLERGET Sarah FORÊT

A Xerem, la forêt partage des portions de son territoire avec la ville de Xerem, ce qui crée un enchevêtrement entre les deux entités qui sont pourtant vu par la population comme deux éléments distincts.
Cette proximité avec la forêt entraine des comportements destructeurs pour l’acquisition de terre et donc l’expension de la ville ou juste une posture plus passive avec des sentiers pedestres. Pour autant, les limites de la forêt et comment elles touchent la ville offre des sitations intéressantes. Cette frontière est diffuse et pas très cohérente car il s’agit parfois d’un mur construit alors qu’à d’autres endroits, c’est une pente raide ou des maisons auto-construites.
Cependant, il existe aussi des points où la frontière est utilisée comme une infrastructure et sert d’outil de protection contre l’accaparement des terres. Ces situations montrent la possibilité d’utiliser les limites de la forêt comme une zone tampon qui agira comme un pont entre le monde créé par l’homme et celui façonné par la nature.
L’argument de ce projet est que ne pas agir sur la forêt et la laisser sans aucun intérêt communautaire représente un point de vulnérabilité pour l’accaparement illégal des terres et l’expension de la déforestation.
Le but est donc de créer une ceinture d’infrastructures le long d’un chemin qui reprend le tracé de la limite.
Ainsi, la limite devient plus homogène et la population peut se l’approprier dans le respect de la forêt, c’est-à-dire sans conquérir de nouvelles terres. Le long de ce chemin, de l’agroforesterie occupe les terrains du côté de la ville afin de faire une dégradation dans la densité de végétation qui va de la forêt à la ville.
De plus, cela permet de voir la forêt également productrice et nouricière. Les infrastructures mises sur tout le chemin ont des programmes qui s’associe à cette notion d’agroforesterie en proposant des lieux où l’on peut transformer ces produits.
Par exemple une cuisine commune, où l’on peut les vendre avec un marché ou encore un lieu où l’on apprend à les cultiver avec un learning center.
Ainsi, le projet permet une intéraction respectueuse avec la forêt, ce qui la met en avant et donc la protège.












Forêts naturelles dont réserve biologique


Plan local et marché echelle 1/500

Plan communal et cuisine echelle 1/500

Plan learning center echelle 1/500




P45 2022 - 2023
BRÉSIL - Territoires du commun
Universités impliquées : ÉNSA Versailles, Universidade Federal do Rio de Janeiro (UFRJ)
Enseignants : Susanne Stacher (ÉNSA Versailles), Luciano Aletta (ÉNSA Versailles), Cauê Capillé (UFRJ), Thiago Soveral (UFRJ)