
Fra drøm til virkelighet
![]()

Fra drøm til virkelighet
Folk som tar kontakt med oss, har som regel gått og kvernet en stund. Jeg har lyst på ei drømmehytte, men hvor skal jeg begynne? De er opptatt av norsk kvalitet fra kledning til innvendige paneler og belistning, og å få ei hytte som utnytter hver bidige kvadratmeter til det fulle. Og det er her vi kommer inn i bildet.
Ved foten av Hekkfjell, her fra hovedkvarteret vårt i Eiken på Sørlandet, har vi jobbet med hus, hytter og trelastproduksjon i ulike sammenhenger siden 1985. Det begynner å bli en hel stund siden, og den erfaringen er det du som hyttekunde får dra nytte av. Hyttekos har nærmest blitt en del av vårt DNA, og det har vi lyst å videreføre til deg.
En av kundene våre, Kristen Gislefoss, kan du lese om i hyttekatalogen. Den pensjonerte værmelderen ble allemannseie i NRKs storhetstid, og han tok kontakt med Eiken Hytter for at vi skulle hjelpe ham med å bygge hytte på Hovden.
– Jeg vil absolutt anbefale Eiken Hytter. Ser du på kvalitet og punktlighet, tror jeg du skal lete en stund før du finner noen som leverer bedre, sier han.
Og det er dette det handler om: Når du velger oss, skal du være trygg på at du slår følge med en profesjonell leverandør med kompetanse og erfaring til å reise drømmehytta di. Du får prosjektledere i ryggen som hjelper deg med valgene som gjør hytta di spesiell, og tegnerne får hver kvadratmeter til å telle.
Ta kontakt for å lufte hyttedrømmen med oss. Vi ser frem til å høre fra deg!

Noen av våre ansatte
Eiken Hytter har utarbeidet et konsept der du bestemmer både innhold og utseendet på hytta du liker best.
Hyttene du kan velge mellom, kommer i fire serier: Eiken, Hovden, Lindesnes og Strand. Du bestemmer selv om du ønsker hytta slik den er, eller om du ønsker å kombinere elementer fra de forskjellige seriene.
Samtlige hytter kan leveres i alle serier, og sammen med våre talentfulle arkitekter og skarpskodde samarbeidspartnere legger vi oss i selen for at du skal få det unike uttrykket du ønsker på hytta di.
For å forenkle prosessen tilbyr vi en grunnpakke som kan forandres etter eget ønske. Shingel er standard takdekking på alle hyttene, men du kan også velge mellom torvtak, takstein, tretak eller andre varianter du måtte ønske.
Med vinduer fra NorDan, Norges største vindusprodusent, kan du velge og vrake mellom tallrike variasjoner av farger og fasonger.
Innvendig får du ubehandlet sprekkpanel fra Moelven som standard, men du kan også velge mellom en rekke forskjellige produkter – både behandlet og ubehandlet.
Hos oss er valgmulighetene dine fundamentale, og de dyktige medarbeiderne våre brenner for å gjøre hyttedrømmen akkurat slik du hadde tenkt deg – og mer til.
Fordi den perfekte hytta for deg finnes ikke i en mal.


Eiken Hytter har på lik linje med andre produsenter levert hus av alle stilarter og størrelser hovedsakelig til nærområdet, som ett resultat av henvendelser kommet vår vei, ofte via andre vi har bygget for.
Vi har siste tiden opplevd en økt etterspørsel etter helårsboliger og vi velger derfor å ta steget videre å synligjøre dette mer utad.
Som en produsent som sitter inne med en komplett kompetanse på tegning og prosjektering kan vi også levere skreddersydde hus etter kunders ønske hvor som helst, slik som vi gjør med våre hytter.

Prosessen starter ofte med ett ønske fra kunder som kan komme ut av hyttemodeller, tidligere tegnede hus, eller ut fra egne skisser. Sammen finner vi løsninger tilpasset kundenes ønsker og behov, slik som vi alltid har gjort.
Ta gjerne kontakt med oss om tanker rundt boligdrømmen!


I dagens verden, der bærekraft er blitt en sentral del av vårt kollektive ansvar, ønsker Eiken Hytter å legge ekstra vekt på bærekraft i vår virksomhet.
Vi forstår at bygging av fremtidsrettede løsninger må ta hensyn til miljøet.
Derfor vil vi strekke oss langt for å skape hytter og hus på naturens premisser.
Klassiske fjellhytter med et eksklusivt stilrent førsteinntrykk. Leveres med ferdig grunnet falset stående kledning. Vinduer og terrassedører fra NorDan med store valgmuligheter for omramming og utsmykning rundt disse. Hyttene bygges med impregnert «bunnstokk» og «magebelte» som skille mellom etasjene.

Med sin brede tømmerkledning og røffe belistning fremstår hyttene i Eikenserien som veldig eksklusive. Kledningen har en grov dimensjon på 22x223 mm og leveres ferdig grunnet. Leveres selvfølgelig med solide vinduer og terrassedør fra NorDan.

Til tross for navnet passer denne serien like godt på fjellet som ved sjøen. Med stående falset kledning og vinduer uten belistning gir denne serien det mest stilrene uttrykket.
Sammen med vinduer og terrassedør fra NorDan er du sikret et moderne uttrykk.

Hytter med rene og enkle linjer. Liggende utvendig kledning ferdig impregnert. Uansett innhold vil denne hytta fremstå som stilren og tidløs. Vinduer og terrassedører fra NorDanferdig malte med stort utvalg i farger.


Vil du vite mer om denne hytta?
Scan QR-koden eller besøk
www.eikenhytter.no


Hyttekos er så mangt. Vinteren lokker med feiende flotte skiturer, og høsten frister med multer til juledesserten. For andre er det peiskosen som trekker. Ofte er det kombinasjonen av hvile og aktivitet som gir full klaff på hyttekosen.

Fra en kundetilpasset modell 1275. Se








1250

Vil du vite mer om denne hytta?
Scan QR-koden eller besøk www.eikenhytter.no

Her presentert i Eiken-serien . Kan også leveres i alle seriene, etter dine ønsker.
W-TakstolerFlathimling

Alle trenger et lite pusterom innimellom. Det kan være et øyeblikks stillhet foran utsikten, eller fullstendig latterkrampe når bestefar forsøker å jukse i kortspillet… igjen.
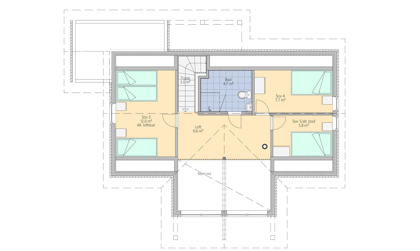
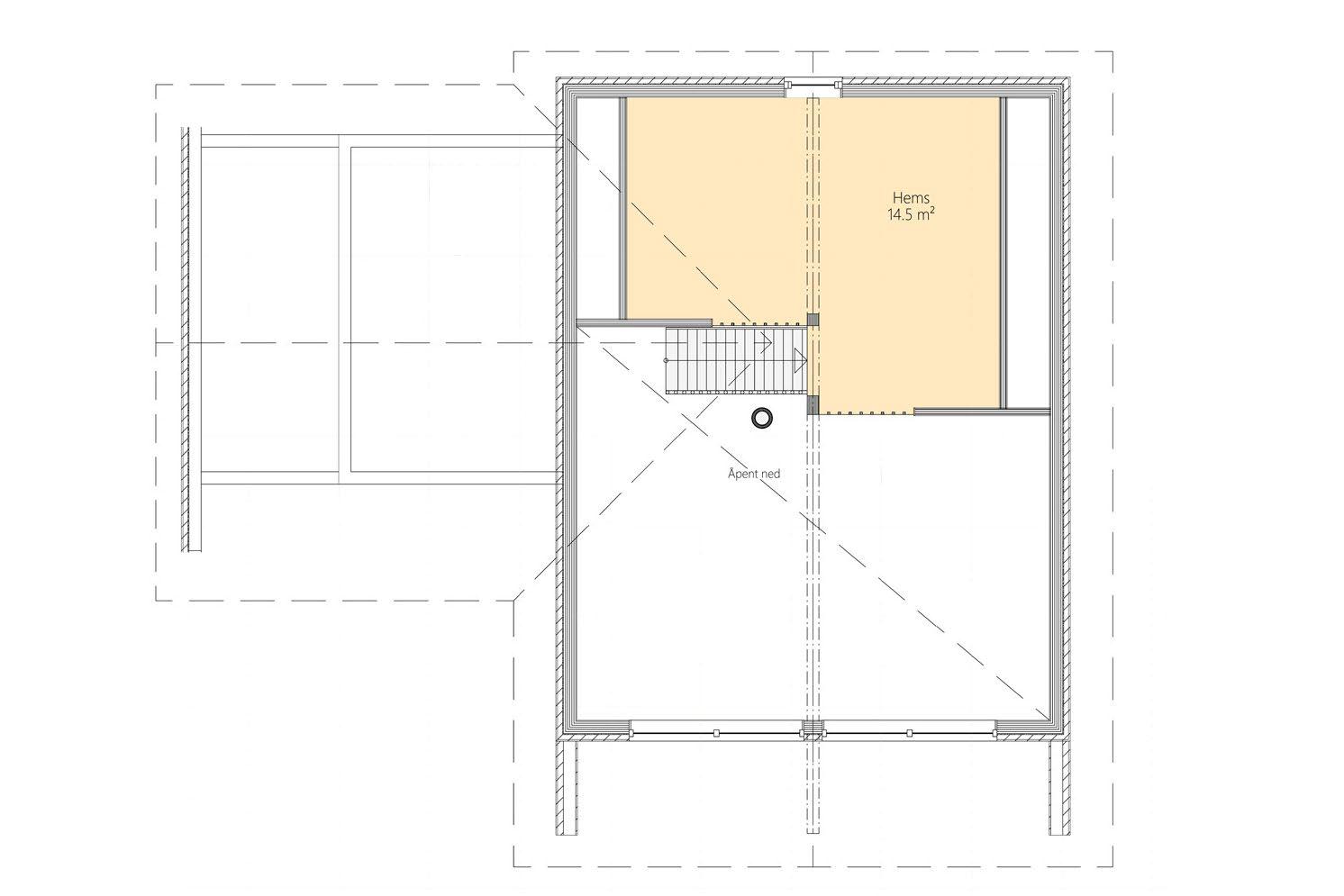
Golvareal 2 etg./ hems golv Største lengde/bredde Mønehøyde fra topp golv

Vil du vite mer om denne hytta?
Scan QR-koden eller besøk www.eikenhytter.no




Sommerfest med friske blomster, plukket rett utenfor døra. Eller pledd, gløgg og pepperkaker nærmere jul?
Det finnes alltid en anledning til å samle en god gjeng av folk du er glad i på hytta.
Golvareal 2 etg./ hems golv Største lengde/bredde Mønehøyde fra topp golv

Vil du vite mer om denne hytta?
Scan QR-koden eller besøk www.eikenhytter.no

Her presentert i Eiken-serien. Kan også leveres i alle seriene, etter dine ønsker.

Hva er hyttemorgen for deg? Litt for tidlig sammen med raske små føtter, før resten av gjengen har så mye som tenkt på å strekke på tærne? Eller en morgen som er litt mer sånn midt på dagen, der alle venter på alle før frokosten finner veien ut av kjøleskapet?

Vil du vite mer om denne hytta?
Scan QR-koden eller besøk www.eikenhytter.no

Her presentert i Strand-serien. Kan også leveres i alle seriene, etter dine ønsker.































































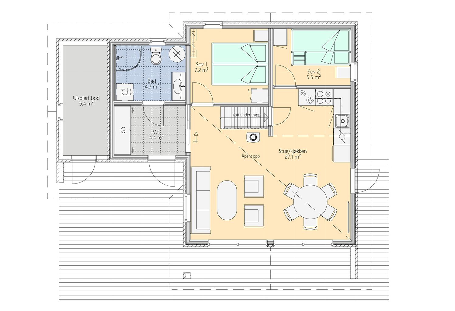
Innholdsrik hytte på ett plan med 4 soverom, 2 bad, stor åpen stue med gode utsikts muligheter. Her unngår man bratte trapper og er godt egnet for alle generasjoner.
Hytten passer like godt ved sjøen som den gjør på fjellet




Største lengde/bredde Mønehøyde fra topp golv
15,7 m/12,9 m 4,55 m
1227

Vil du vite mer om denne hytta?
Scan QR-koden eller besøk www.eikenhytter.no

Her presentert i Strand-serien. Kan også leveres i alle seriene, etter dine ønsker.


Trives du når alle du er glad i er på samme sted, og skrikene fra måkene drukner i lyden av stinn brakke? Eller foretrekker du når bølgene akkompagnerer god eller dårlig fiskelykke, sammen med en venn uten så mange ord?
15 m/12 m 4,2 m Største lengde/bredde Mønehøyde fra topp golv







1225

Vil du vite mer om denne hytta?
Scan QR-koden eller besøk www.eikenhytter.no

Her presentert i Hovden-serien. Kan også leveres i alle seriene, etter dine ønsker.



Man har gjerne forskjellige meninger om hva hyttelivet skal innebære, enten det er båten eller skiene som vekker størst assosiasjoner. Men for veldig, veldig mange, er nok likevel en fellesnevner at det er fint å ha noen å dele det sammen med.


m2
m2
m2
Golvareal 2 etg./ hems golv Største lengde/bredde Mønehøyde fra topp golv
31,2 m2 15,8 m/6,75 m 5,0 m

Vil du vite mer om denne hytta?
Scan QR-koden eller besøk www.eikenhytter.no

Her presentert i Strand-serien. Kan også leveres i alle seriene, etter dine ønsker.



Skarpe stråler gjennom store vinduer, som varmer langt inn i ryggmargen. De dagene det er lettere å finne en positiv innstilling. Men så er det vel sånn at så lenge man er sammen med sine, er det også rom for regnværsdagene og selve livet?
2 etg./ hems golv


Vil du vite mer om denne hytta?
Scan QR-koden eller besøk www.eikenhytter.no Her presentert i Strand-serien. Kan også leveres i alle seriene, etter dine ønsker.



Hyttelivet handler om å ha tid til hverandre. Å lage minner sammen på et sted som er tegnet og bygget med én ting i fokus: Å nyte livet.




m2
m2
Golvareal 2 etg./ hems golv Største lengde/bredde
m2 37,5 m2
m/9 m
fra topp golv
m

Vil du vite mer om denne hytta?
Scan QR-koden eller besøk www.eikenhytter.no

Her presentert i Strand-serien. Kan også leveres i alle seriene, etter dine ønsker.




En hytte for deg som ønsker alt på et plan. Stilren hytte uten takutstikk og moderne stil. Meget innholdsrik med 2 bad, 4 soverom og bod med egen inngang.




m2
m2
m2
Største lengde/bredde Mønehøyde fra topp golv
15,0 m/9,7 m 4,4 m

Vil du vite mer om denne hytta?
Scan QR-koden eller besøk www.eikenhytter.no

presentert i Hovden-serien. Kan også leveres i alle seriene, etter dine ønsker.


Appelsiner og kakao for store og små i solveggen, eller lange gåturer med din kjære og alle de krokete trærne.
Høyfjellet har sin sjarme uansett årstid. Her ligger det til rette for lange frokoster og peiskos etter opplevelsesrik dag ute.
m2
Største lengde/bredde
m2
m2 15,7 m/7,8 m 4,7 m
Mønehøyde fra topp golv









1055

Vil du vite mer om denne hytta?
Scan QR-koden eller besøk www.eikenhytter.no

Her presentert i Strand-serien. Kan også leveres i alle seriene, etter dine ønsker.



Det å bygge hytte handler om så mye mer enn å bare få materialer til å henge sammen. Det handler om å skape rom for blant annet minner, følelser og kvalitetstid.

1043

Vil du vite mer om denne hytta?
Scan QR-koden eller besøk www.eikenhytter.no

















Begeistrelsen er til å ta å føle på. Minstemann har skjønt at han er midtpunktet en hel uke. Uten at noen bare skal fikse noe her, eller en svipptur innom der. Alt er satt på vent. Nå er det hytteferie.
2 etg./ hems golv Største lengde/bredde
fra topp golv



Vil du vite mer om denne hytta? Scan QR-koden eller besøk www.eikenhytter.no






Familietrær har en tendens til å vokse seg store. Kanskje er det et mål i seg selv, å kunne samle hele treet under samme tak? Gamle og krokete greiner tett ved siden av de helt ferske, bittesmå skuddene.




m/10,5 m 5,75 m Golvareal 2 etg./ hems golv Største lengde/bredde
Mønehøyde fra topp golv
1030

Vil du vite mer om denne hytta?
Scan QR-koden eller besøk www.eikenhytter.no

Her presentert i Strand-serien. Kan også leveres i alle seriene, etter dine ønsker.



Lyset strømmer inn gjennom de store vinduene og gjør at naturen blir en del av rommet. Her er det lett å senke skuldrene og finne roen – enten det er med lange frokoster, rolige kvelder foran peisen eller gode samtaler som varer til langt på natt. En moderne hytte som gir rom for både nærhet og pusterom.




Største lengde/bredde Mønehøyde fra topp golv
14,0 m/8,2 m 4,25 m

Vil du vite mer om denne hytta?
Scan QR-koden eller besøk www.eikenhytter.no

Her presentert i Strand-serien. Kan også leveres i alle seriene, etter dine ønsker.

















































Det finnes ulike former for kvalitet. For eksempel livskvalitet og kvalitetsarbeid. Noen er kvalitetsbevisste og trenger kvalitetskontroller. Men hva med å by på litt oktoberkvalitet? Sammen med kvalitetsfolk og kvalitetstid?
Golvareal 2 etg./ hems golv Største lengde/bredde Mønehøyde fra topp golv

Vil du vite mer om denne hytta?
Scan QR-koden eller besøk www.eikenhytter.no

Her presentert i Strand-serien. Kan også leveres i alle seriene, etter dine ønsker.



Av og til vil man bare labbe inn på kjøkkenet. Hente seg en kopp med noe varmt. Labbe tilbake til noe mykt. Og så bare være.


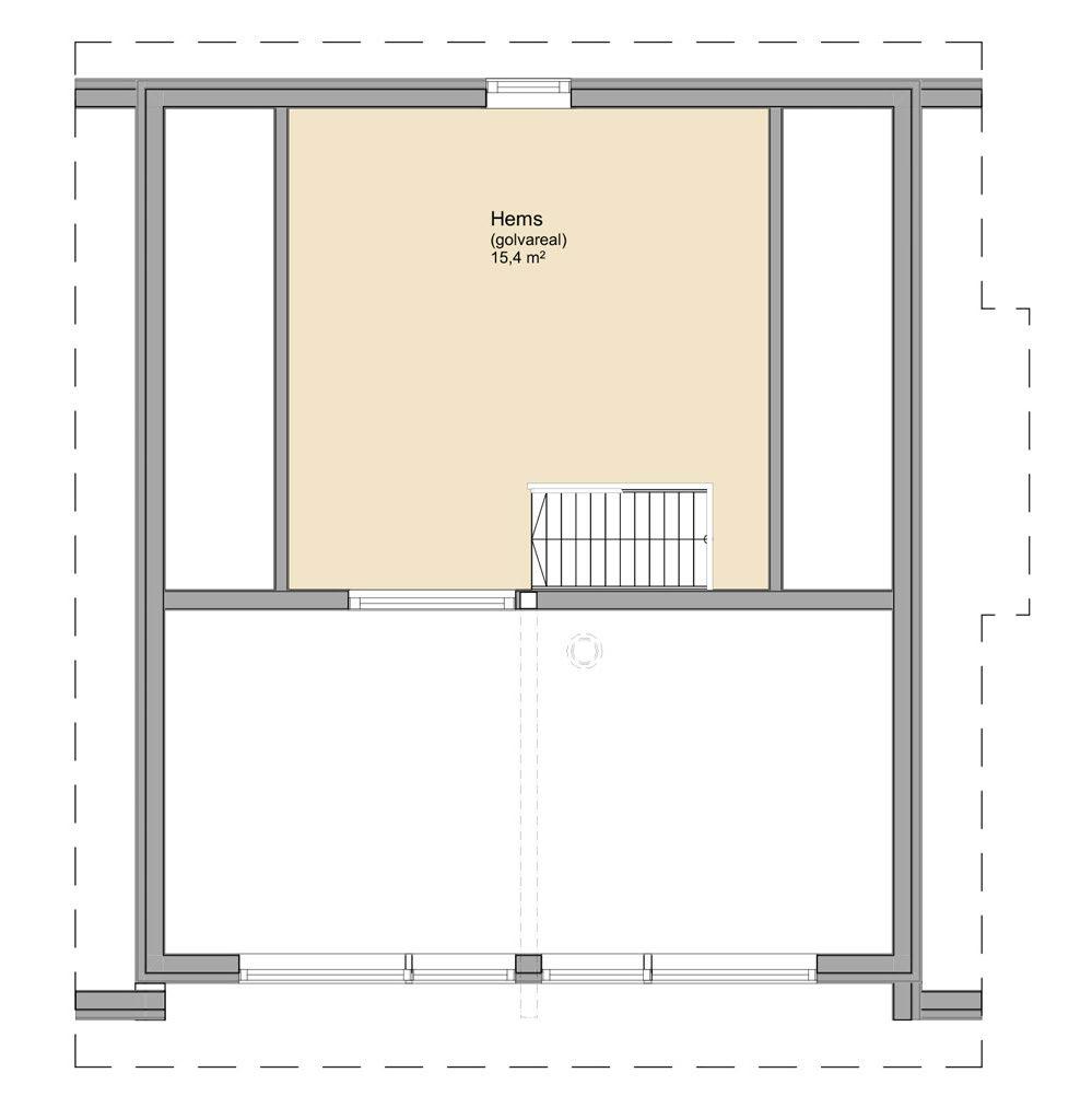
areal
79,3 m2
Golvareal 2 etg./ hems golv


m2
m2 14,5 m2 10,5 m/9,0 m 4,85 m
Største lengde/bredde
Mønehøyde fra topp golv

Vil du vite mer om denne hytta?
Scan QR-koden eller besøk www.eikenhytter.no

i



Det er bare sånn at noen steder legger bedre til rette for gode samtaler enn andre. Du vet, de samtalene der mennesker kommer skikkelig nær hverandre. Der tiden forsvinner, uten at du helt vet hvor.





Vil du vite mer om denne hytta?
Scan QR-koden eller besøk www.eikenhytter.no





Ikke alle hytter trenger å være store for å romme de store øyeblikkene. Denne hytta tar lite plass, men gir desto mer tilbake – i form av ro, nærhet og en enkel hverdag tett på naturen. Et lunt tilfluktssted for både korte helgeturer og lange sommerdager.




9,0 m/6,6 m 4,2 m Største lengde/bredde Mønehøyde fra topp golv
Helt siden Eiken Hytter ble startet i ´94, har vi hatt egne lokaler for produksjon av veggelementer til våre hytter.
Dette har vært ønskelig for å få god kontroll og kvalitet på leveransen, og kortere byggetid på byggeplass.
Vi synes også det er viktig å lytte til snekkerne ute i feltet som setter sammen elementene våre, om eventuelle ønsker de måtte ha. Denne erfaringen gjør at vi har utviklet et godt kvalitetsprodukt vi er stolte av.
I tillegg synes vi det er flott å kunne være med å bidra med lokal videreforedling av materialer som blir saget i vårt nærmiljø.

Kortreist materialer

På bildet over ser man litt ifra produksjonslokalet. Birkeland Bruk er vår hovedleverandør av materialer og byggevarer.
Den korte avstanden fra sagbruket gjør at vi sparer transportkostnader og det er enkelt å supplere varer ved behov.
Mye av treverket i elementprouksjonen er særdeles kortreist, da skogen blir hogget i dalførene på Sørlandet, tilvirket på sagbruket og kjørt noen få kilometer til produksjonslokalene.
Miljøvennlig
Ved å produsere veggene ferdig i store vegg-seksjoner, blir det kortere byggetid, høyere effektivitet og mer miljøvennlig sammenlignet med å bygge alt sammen på byggeplass.
Veggene blir også bygget i et tørt miljø, som minker faren for sopp og andre fuktrelaterte problemer og vanligvis brukes mindre energi på å tørke ut bygget på byggeplass.
Det blir både mindre søppel, svinn og kapp på byggeplass, noe som er bra for miljøet.

Vil du lese mer? Les hele artikkelen på www.eikenhytter.no
Å bygge hytte handler om mer enn å peke ut et masseprodusert bygg fra en katalog. Hytta skal kle livet til menneskene som skal bruke den. Selv om påstander fort blir subjektive, drister vi oss til å påstå følgende: Hytter som glir inn i sine omgivelser, er de vakreste.
Hyttelivet handler om avslapping og lave skuldre. Derfor gjør vi alt vi kan for at din opplevelse, fra jakten på den perfekte tomta og de første søknadene til nøkkelen står i døra, skal oppleves så enkel som mulig. Med mindre du er av typen som finner terapi i å bygge selv, da. I så fall skal du selvfølgelig få gleden av å sette opp hytta helt på egen hånd. Vi vil likevel hjelpe deg ved å levere ferdige veggelementer. På den måten gjør vi byggeprosessen enklere og mer effektiv for deg.
Vi bruker norske produkter av norsk kvalitet, enten det gjelder materialer fra Birkeland Bruk, vinduer fra NorDan, panel fra Moelven eller kjøkken fra Strai. Ved å bruke kortreiste kvalitetsmaterialer kan vi levere solide hytter som tåler både sjøsprøyt langs kysten og snøstorm på fjellet.
I likhet med hytta som glir inn i sine naturlige omgivelser, ønsker vi i Eiken Hytter å tilpasse oss dine behov. Det har vært målet vårt siden begynnelsen i 1994. Ikke fordi vi er opptatt av å flotte oss med store og fine ord, men fordi fornøyde kunder er det som gjør at vi får holde på med det vi brenner for.





Jeg vil absolutt anbefale Eiken Hytter. Ser du på kvalitet og punktlighet, tror jeg du skal lete en stund før du finner noen som leverer bedre.
KRISTEN GISLEFOSS


Husk at modellene våre kun er et utgangspunkt. Vi skreddersyr hyttene for at du som kunde kan tilpasse hver minste detalj og realisere din egen unike drømmehytte, med fleksibiliteten til arkitekttegnede løsninger og allikevel til konkurransedyktige priser.


















