Egrets Landing | Katy

Page 1

EGRETS LANDING KATY 514 Cobia Drive | Katy, Texas Developed By:

UPSCALE & CUSTOMIZABLE OFFICE CONDOS

Egrets Landing Katy is a condominium project that features offices designed for scalability and customization. Choose from predetermined plans ranging from 1,500 to 8,350 SF, or build a purpose-built facility on our vacant land. You are in charge of shaping the space to fit your business’ needs. As a design build project, our condos offer you the ability to choose materials and finishes to project your company’s image.

FLEXIBLE CONCEPTS
MODERN DESIGN

YOUR VISION

OUR DESTINATION LOCATION

We are here to make your vision a reality. Located near Grand Parkway and I-10, these offices are ideal to serve the Katy and West Houston areas. The contemporary aesthetics of the buildings with single and two-story options, give this location a destination feel for the end user to enjoy. Own, lease or lease-to-own. The choice on financing is also yours to make.

Your Office. Designed Your Way.

FLEXIBLE DESIGNS AND FEATURES

Office sizes range from 1,500 – 8,350 SF

Standard conference room, kitchen, restroom, and reception area

Contemporary single or two-story design options

Maximized use of glass for natural light

Private front-door entrance leading to high ceiling reception area

Choice of materials, finishes and customization

Individual HVAC and separately metered electricity

Katy Mills Mall

Villagio Town Center

Katy Ranch Crossing

Encompass Health Rehabilitation Katy

Houston Methodist Continuing Care

Michael E. DeBakey VA Medical Center

Kelsey-Seybold Clinic

Memorial Hermann Katy

Houston Methodist West

Texas Children’s West Campus

Memorial Hermann Rehabilitation Katy

Encompass Health Rehabilitation Katy

Houston Methodist Continuing Care

Michael E. DeBakey VA Medical Center

Kelsey-Seybold Clinic

Memorial Hermann Katy

Houston Methodist West

Texas Children’s West Campus

Memorial Hermann Rehabilitation Katy

Encompass Health Rehabilitation Katy

Houston Methodist Continuing Care

Michael E. DeBakey VA Medical Center

Kelsey-Seybold Clinic

DINING

Memorial Hermann Katy

Houston Methodist West

Texas Children’s West Campus

Memorial Hermann Rehabilitation Katy

Encompass Health Rehabilitation Katy

Houston Methodist Continuing Care

Michael E. DeBakey VA Medical Center

Kelsey-Seybold Clinic

Memorial Hermann Katy

Houston Methodist West

Texas Children’s West Campus

Memorial Hermann Rehabilitation Katy

Encompass Health Rehabilitation Katy

Houston Methodist Continuing Care

Michael E. DeBakey VA Medical Center

Kelsey-Seybold Clinic

Memorial Hermann Katy

Houston Methodist West

Texas Children’s West Campus

Memorial Hermann Rehabilitation Katy

Encompass Health Rehabilitation Katy

Houston Methodist Continuing Care

Michael E. DeBakey VA Medical Center

Kelsey-Seybold Clinic

LaCenterra
HOSPITALS FACILITIES SHOPPING GROCERY FINE
???? FITNESS/GYM

LOCATION, LOCATION, LOCATION.

Ideally located near hospitals, shopping and industrial centers

Perfect location for your office needs

Half a mile from the intersection of I-10 and Grand Parkway

Accessible from various points including Kingsland Blvd, the I-10 feeder, as well as the Grand Parkway feeder

Approximately 30 minutes from downtown Houston

 

Pre-designed

of

fully finished

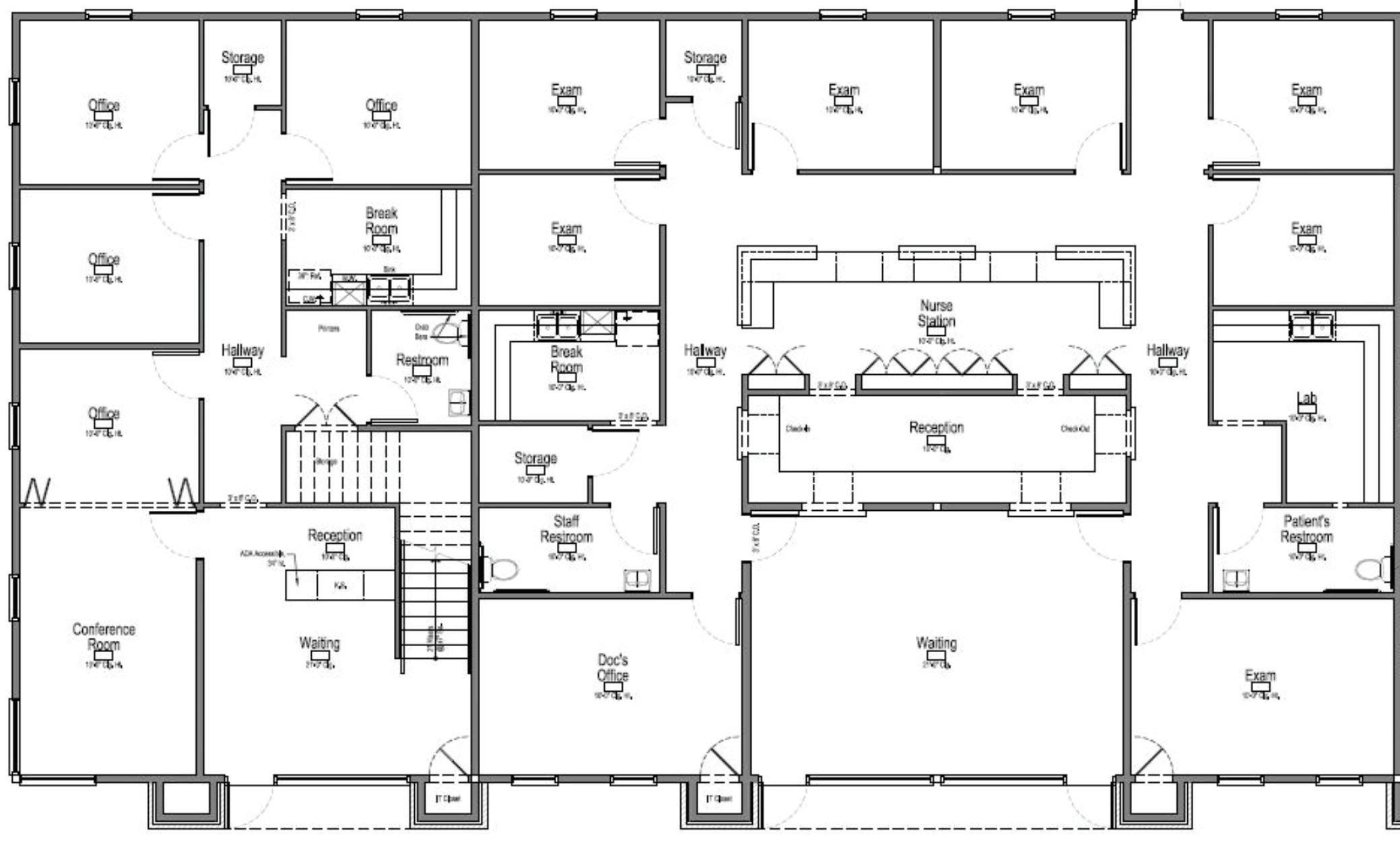
First Floor Layout

Landscaped areas for

Managed by

Your office, designed

energy efficient

SITE FEATURES TWO STORY 2,675 SF ONE STORY 1,500 SF ONE STORY 1,500 SF
units configured as fourplexes  Contemporary modern design  Flexibility
designing your own building  Available
or build to suit  Convenient surface parking 
visual appeal 
a Community Management Association 
your way  State-of-the-art
construction technologies

TWO

FOR SALE OR LEASE

Freedom to choose between leasing or owning

Lease now and buy later

Assistance with financing available

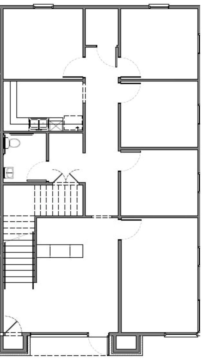
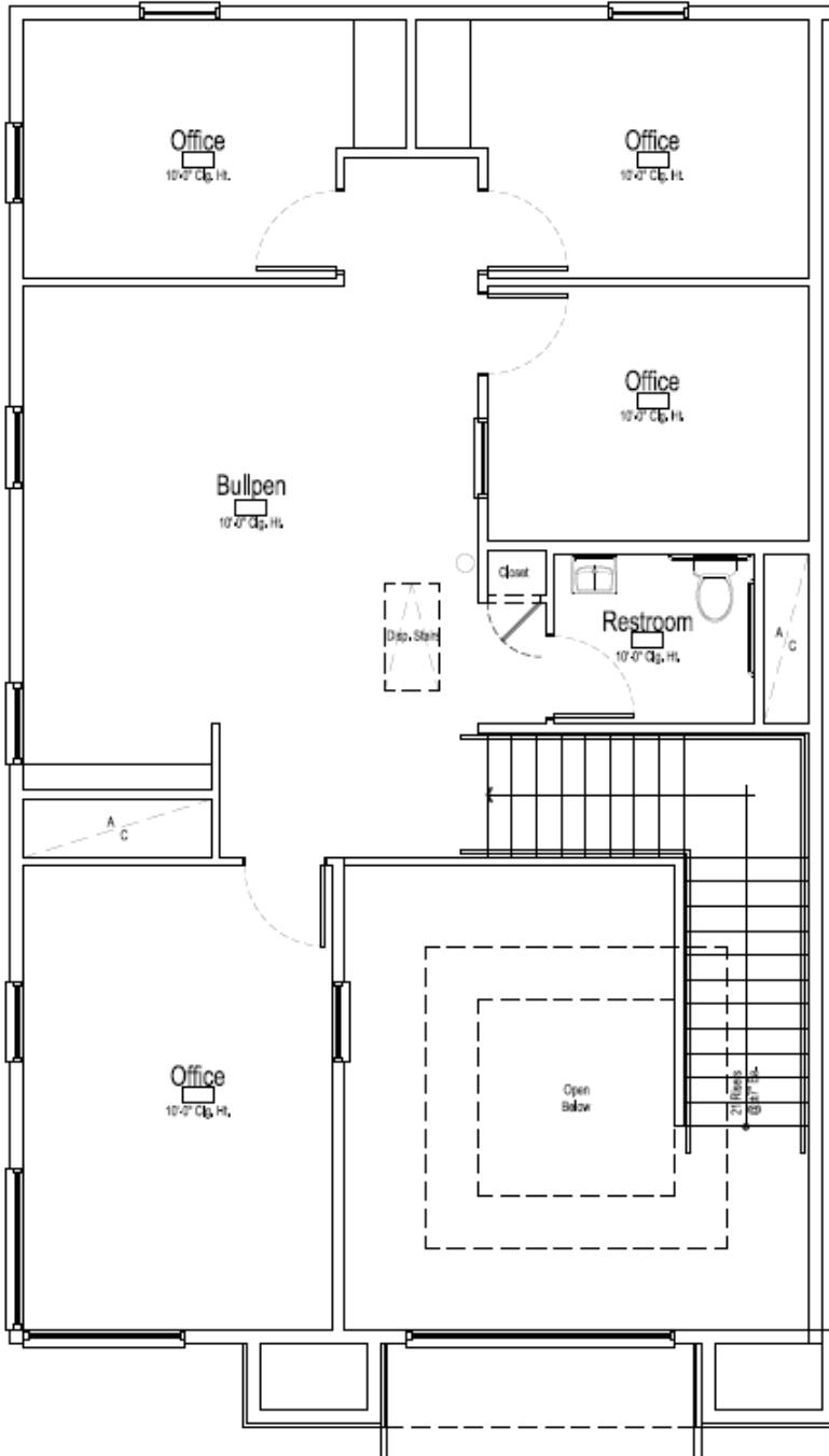
Second Floor Layout

TWO

STORY 2,675 SF
STORY 2,675 SF

KATY ONE OF THE MOST DESIRED MARKETS IN THE GREATER HOUSTON AREA

The economy in the Katy area accounts for over $21 billion in sales and includes roughly 11,000 companies with over 200 corporations headquartered here.

The Katy Area is ideally suited to meet the needs of energy companies seeking location opportunities in the Greater Houston Area, the energy Capital of the world.

Healthcare is keeping up with the growth of our community with five (5) regional hospitals serving a population of 17,265 people in an area of 12 square miles. There is 1 Hospital per 3,453 people, and 1 Hospital per two square miles.

Cost of living 5% below national average.

Excellent transportation opportunities with the expansion of Interstate 10, contra-flow commuting advantages, and access to Bush Intercontinental, Hobby, and regional airports.

Located just a short drive from Houston, the economy in the Katy area has been ranked as one of the most recession-resistant location in the United States – for good reason.

Roughly 55,000 people are employed in the Energy (Oil & Gas) employment cluster with strong growth continuing in the healthcare and tech sectors.

With an affordable cost of living, the area is home to abundant housing options, as well as many shopping and dining options.

There is no shortage of activities for professionals and families alike as the area features many entertainment options, ranging from beautiful parks to energetic festivals to athletic activities.

In recent decades, the Katy area has emerged as one of Greater Houston’s prime suburban areas based on its excellent school district, award-winning residential neighborhoods and access to major employers along the Energy Corridor.

The area is where energy works and lives! We draw from a civilian labor pool of over 2.0 million that is predominately white collar, but diverse enough to handle any type of work. An estimated 40% of all engineers in the Greater Houston area live in the Katy area.

Source: Katy Area Economic Development Council

The

Egrets
egretsgroup.com
information provided herein was obtained from sources believed reliable, however, Egrets Group makes no guarantees, warranties or representations as to the completeness of accuracy thereof, the presentation of this property is submitted subject to errors, omissions, change of price or conditions, prior to sale or lease, or withdrawal without notice. Copyright © 2022
Group

Turn static files into dynamic content formats.

Create a flipbook
Issuu converts static files into: digital portfolios, online yearbooks, online catalogs, digital photo albums and more. Sign up and create your flipbook.