Lakefront Property in Athens, TX
8572 BLUE BIRD LANE
Office Exclusive

8572 BLUE BIRD LANE
Lot: 45B-48, Zueler Hawley Sub, Henderson County
Acreage: 1.563 AC with approximately 2.0 AC of AMWA property, totaling 3.5 AC
Lake Front: Approximately 440 ft. | Builder: Kevin Jackson - Train Custom Homes
Year Built/Remodeled: 2022-2023 | House Size: Approximately 3,800 SQ FT
Listed for $3,400,000
GROUNDS
• 1.563 AC with approx 2.0 AC of AMWA property - 3.5 AC in total.
• Approx 440 ft of lake front property.
• Full retaining wall.
• Stone Gated entrance with custom metal gate, key pad entry and security cameras.
• Entire property cover by WIFI from Gate to Boat Dock.
• Privacy LopLolly Pine trees to hide neighbors houses.
• Cedar Split Rail fence around property.
• Winding lighted driveway to house.
• Automated uplighting on all structures at night.
• 16 Camera whole property Security System.
• Underground LP Gas tank.
• Septic system.
• 24 station automatic sprinkler system with WIFI remote covers the entire property.
• 2HP irrigation pump at lake (no city water used for irrigation).
• Outdoor circular wood burning Fire Pit.
• Gas Fire Pit on patio.
• Flag Pole.
• 3 Mist-a-way misting systems (House, Barn and Boat Dock).
• Approx 1650 sqft.
• 3 Bay Barn with Full Bath and Bedroom.
• R-35+ insulation in entire ceiling and R-20 in walls.
• Fully sheet rocked and painted in Bays 1 and 2 and OSB in Bay 3.
• Bay 1 Fully Air Conditioned with vinyl wood and Race Deck Flooring.
• Bay 2 Fully Air Conditioned with Epoxy Showroom Floors.
• Storage room with Epoxy floors. (Non AC) with Garage door opener.
• Option that Bay 1 and 2 could be instantly turned into a large “Barnominium”, quest suites, mother in-law unit, play room, bunk rooms, office.

• Approx 3,800 sqft.
• Totally remodeled in 2022-23.
• 4 Bedrooms (3 of which a full suites - with separate shower and tubs) and 4-1/2 baths.
• Private Casita suite separate from main house with wood beam.
• 3-Car Garage with epoxy floors and storage room.
• 2 stone Fireplaces with wood mantels.
• Whole House Franklin Battery Backup System -switches instantly in a power outage (no need for a noise outside gas generator system).
• Gourmet Kitchen with a Viking 6 burner gas range with griddle, 2 ovens and hood, 2 KitchenAid dishwashers with wine glass rack, separate 3rd electric oven and microwave, Frigidaire Professional 65” side by side Frig/Freezer, SS Sink, marble countertops.
• Vinyl Wood floors though out with carpet in 2 bedrooms.
• Tile laundry room.
• Wall Paper in guest bathroom 3 and in Laundry Room.
• Automatic shades in Casita and Bed Room 2 Suites.
• Automatic shades across back patio.
• Whole house Sonos sound system.
• Whole house video security system (External only).
• Whole house WIFI.
• Wired for alarm system.
• 3 Brilliant Audio/video control panels thought out house.
• Full outside kitchen with built-in SS DCS Bar-B-Q and sink.
• Approx 370 Bottle refrigerated Wine Cellar with redwood racks and full glass windows and door.
• Full marble top bar with ice maker, beverage frig, SS sink and 120 Bottle Wine frig.
• Large Patio Windows to the lake view.
• Full stone patio.
• Austin Stone mason walls on the outside of house.
• Outside automatic retractable TV mount on patio.
• Outside stereo speakers across the full back patio and front porch.
• Metal roof 2023. HOUSE
8572 BLUE BIRD LANE
Experience the ultimate in luxury lakefront living at this meticulously designed Lake Athens gated estate, offering over 440 feet of premier shoreline on expansive beautifully landscaped property. This 2022–2023 residence combines sophisticated design, advanced technology, and natural beauty in one of East Texas’ most desirable settings. Inside, the 4,000 sq ft main residence features wide lake views, and seamless indoor-outdoor flow. The gourmet kitchen includes a Viking 6-burner range with griddle and dual ovens, double KitchenAid dishwashers, Frigidaire Professional 65” refrigerator/freezer, marble countertops, and an oversized island. Entertain with ease in the open living and dining areas featuring stone fireplaces, a 370-bottle glass wine cellar and full marble bar. The primary suite offers a serene retreat with wood beams, lake views, and spa-like bath. Additional features include a whole-house Sonos system, Brilliant A/V control panels, Franklin battery backup, and smart security with 16 cameras. Outdoors, enjoy a stone patio with builtin DCS grill, gas and wood fire pits, misting systems, flagpole, and full property Wi-Fi—from gate to dock. The three-bay barn (approx. 1,650 sq ft) provides finished, air-conditioned space ideal for hobby, guest, or office conversion. Located just minutes from downtown Athens, this property offers privacy, panoramic lake views, and modern amenities rarely found together. Approximately 70 miles from Dallas. Buyer and Buyer’s Agent to verify all MLS information and schools. Please see MLS supplements for amenities, exclusions, and items available for separate purchase.
GOOGLE MAP

8572 BLUE BIRD LANE
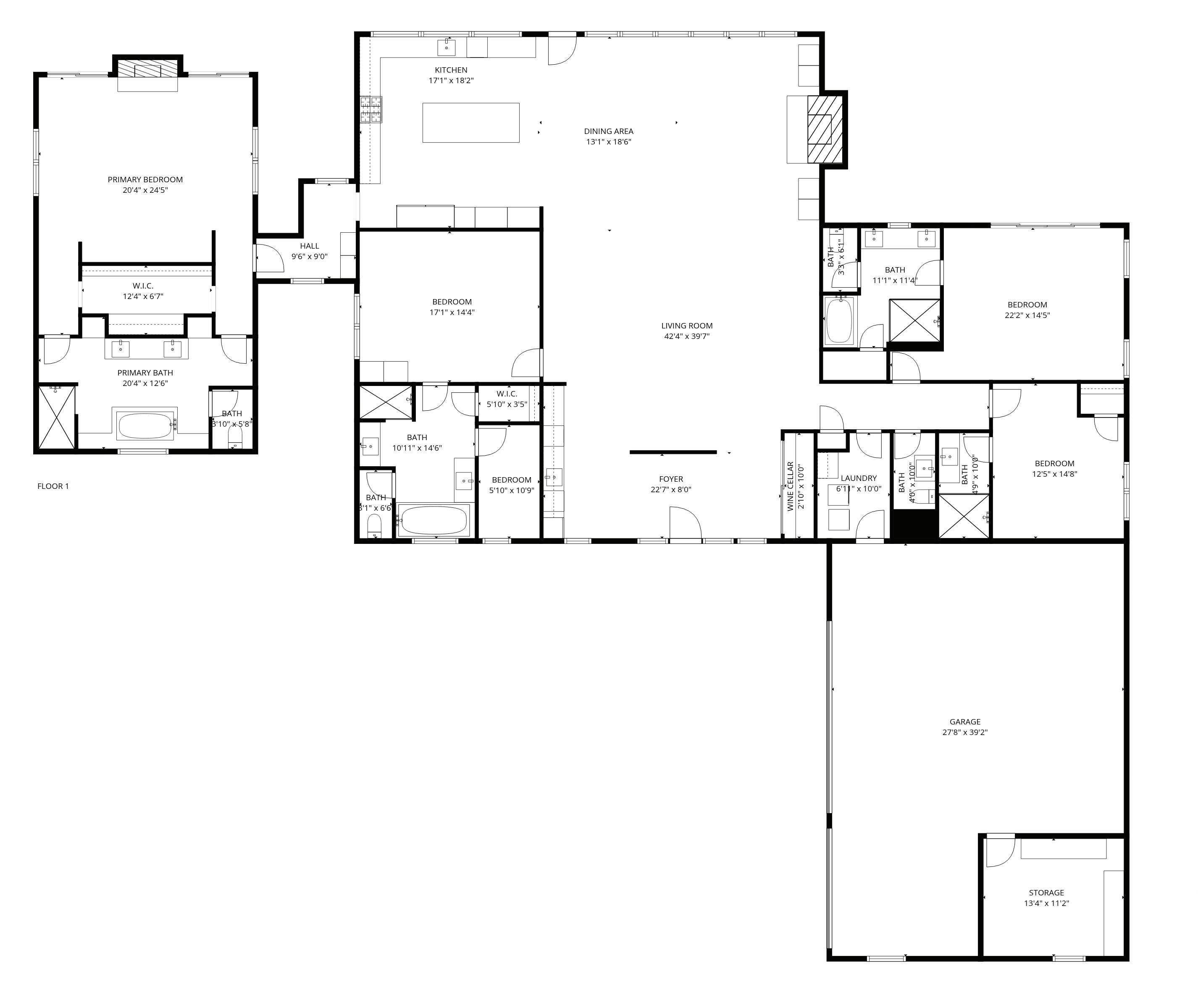
FLOORPLAN


8572 BLUE BIRD LANE
SURVEY
