Anjelica Soesanto, '24

Page 1


ARCHITECTURE

Portfolio Curated by Anjelica Soesanto

6th Year Architecture Student at Drexel University 2+4 Architecture Program

2023

01

Ethiopian Preschool

Module Classroom Layout to allow for education expansion in developing countries.

Cobbs Creek Gallery Hub

Can we design community gathering space to embed within existing nature?

SMART House

Integrating Living Building Challenge Design Principles into a Adpative Reuse Building.

03 05 08 09

Market & Landscape

How can a food market respond to food security on a site with challenging topography?

CoLiving Neighborhood

Can we re-think the Philadelphia Rowhouse? SOHO (Small Office Home Office) Housing Concept.

02 04 06

Uluru Desert Garden & Pavilion

How can we respond to the climatic desert conditions through architecture?

Plaza at the Navy Yard A School for Muse

How can we push the boundaries of improving the quality of life in our neighborhood? What are alternative ways to bring “play” into existing traditional school buildings?

Travel Sketches

Spain Intensive Course Study Abroad 2022 Gilman Scholarship Recipient Trip 07 On the Boards

Research - Climate AnalysisModels - Collages

Anjelica Soesanto

Halo!

I

am

Anjel—think “Angel” just with a twist, spelled with a “j.”

I am an Ethnic Chinese Indonesian American, born in Philadelphia and partly raised in Surabaya, Indonesia. Having experienced the distinctive urban environments of these two historic cities, I have gained a profound appreciation for effective housing modules, exemplified by the Philadelphia Rowhouse, and the significance of passive cooling design prevalent in Indonesian vernacular architecture. These diverse experiences have shaped me into the architectural designer I am today, driven by a wealth of passion and perseverance. My personal focus centers on designing innovative learning spaces, enhancing housing experiences, and crafting human-centered public spaces conducive to cultural and communal gatherings.

Currently engaged as a thesis student, my research explores the revitalization of the old commercial historic district in Surabaya, with a simultaneous examination of strategies for fostering a more sustainable city through passive, hybrid, and district cooling approaches. In my role as an architectural designer at Wallace Robert & Todd, LLC, my primary focus lies in education campus master planning. Beyond my professional commitments, I am actively involved in community service, contributing my time and expertise to teach architecture to K-12 public schools across Philadelphia through the AIA-initiated program called Architecture Design in Education. This endeavor is my way of giving back to the community and nurturing a passion for architecture among the younger generation.

ANJELICA SOESANTO

Ethiopian Satellite Preschool

This modular school design is the future for achieving affordable and healthy learning environments in developing countries.

ANJELICA SOESANTO
ANJELICA SOESANTO

SMART HOUSE

Adaptive Reuse project using the Living Building Challenge as a Basis of Design.

This project consist of an addition of a green house garden, an interior renovation for a cafe that uses the produce grown in the green house, and a flex space that can host small neighborhood farmers market, workshops, a tool library and more as a gathering space. Residential rooms are available above.

ANJELICA SOESANTO

Cobbs Creek Gallery Hub

Through research, I learned that galleries and social gathering spaces were not presence in local low-income neighborhood parks in Philadelphia. This design is to show how we can design access to art spaces for everyone, regardless of background, age, or class.

Where are all the galleries in this local neighborhood?

Art galleries, as cultural institutions, should be inclusive spaces that cater to people of all ages, backgrounds, and socioeconomic classes. Art has the power to transcend barriers, evoke emotions, and stimulate thought, making it a universal language that should be accessible to everyone.

ANJELICA SOESANTO

OVERHANGING EAVES

CROSS VENTiLATiON
CENTRAL COURTYARD
PRESERVING TREE
ELEVATED PATIO
SAVING LIGHT ENERGY
CONCRETE FOUNDATION
WiSSAHiCKON SCHIST BASE

A courtyard was natural carved out around an existing tree. This shows how we can embed spaces without harming nature.

ENTRY

A wide and welcoming path for children and families to experience as they approach the gallery for after school art classes.

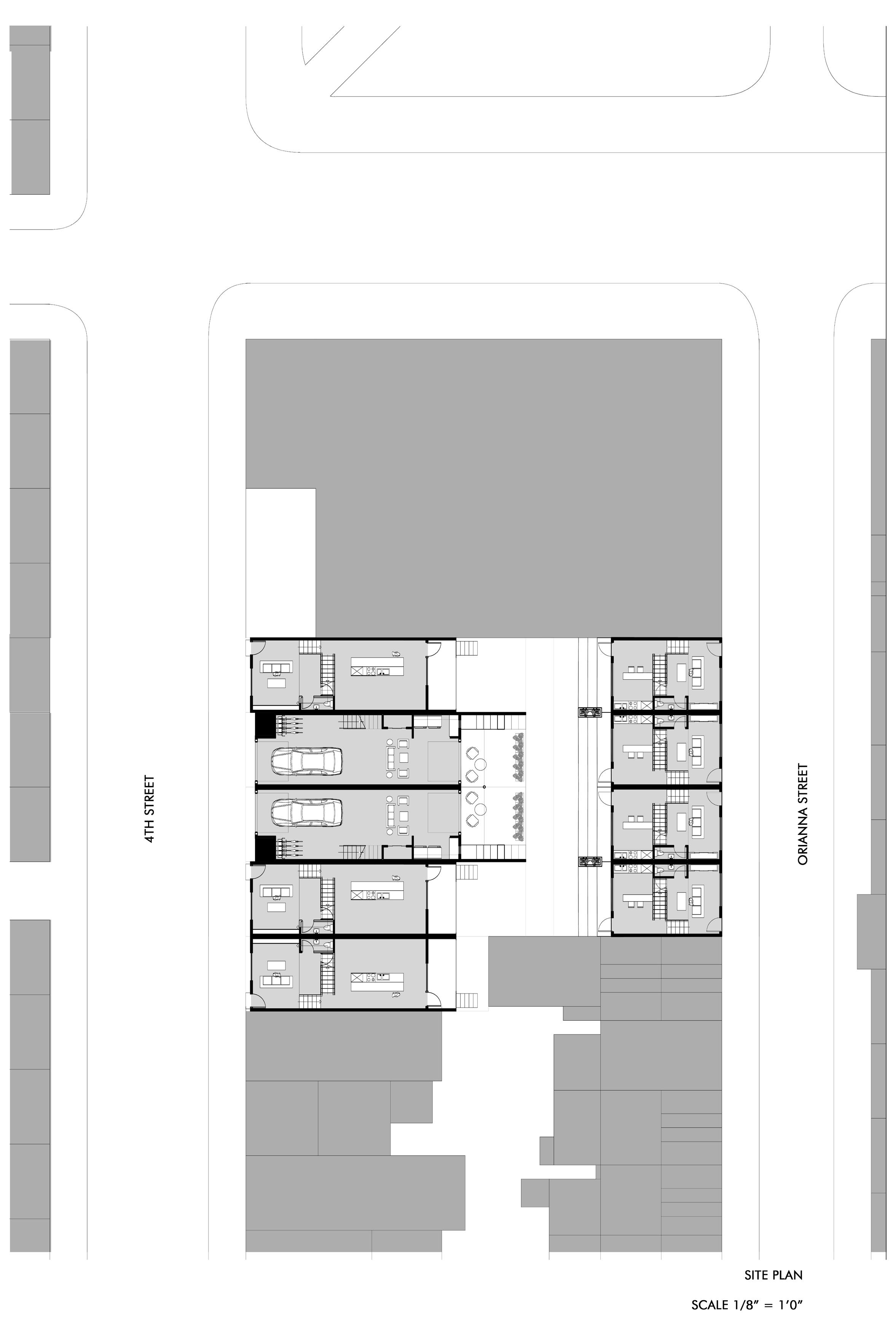
COLIVING

Community, Connection, and Unity in a Philadelphia Rowhouse.

The Co-housing rowhouse is an engaging and multifunctional home for residents and their guests. The concept of the design is derived from two verbs, “balance” and “carve” with goals to fuse together interactions that foster a community. The verb “balance” originated a precedent study from the Live-Work unit design that had an issue of the insufficient light entering the mid spaces of the rowhouse. This resulted in the idea of balancing light and dark spaces as well with public and private spaces within each floor to ensure privacy for the residents.

ANJELICA SOESANTO

A safe and centralized backyard between rowhouses allows for a back-to-back spatial connection between neighboring homes.

Elevation
Partial Plan
Wall Section
Red Brick
Concrete
C- Channel
Aluminium
ANJELICA SOESANTO

Bartram Market & Landscape

The Bartram’s Park Implementation project’s main goal is to mend the disconnect at the park, revitalize, and celebrate its natural site amenities. This proposed masterplan consist of an age-friendly art park, treehouse on the wetland, an event pavilion, welcome center, mussel hatchery, visitor inn and a market place. The market became my focus as a response to the community’s urgent need of food security in the neighborhood.

The challenge was to create a market on a sloped terrain.As a result, a symbiotic relationship was formed between the hilltop market and Bartram Garden’s fertile land. This not only provides a picturesque setting but also fosters sustainable agricultural practices. This elevated marketplace offers a diverse array of fresh produce, locally sourced goods, and artisanal products

Lindbergh Blvd.

Uluru Desert Garden & Pavilion

This project focuses on creating conversations through story telling within circular gathering spaces. Each circular gathering space has multiple options of seating to promote comfort. The envelope, materiality, and layout of the building is to resepct the ancestoral land of Tjukurpa in Australia. Privacy is defined by the dynamic rooflines and tensial enclosure. This open-to-nature relationship of spaces allows one to listen to the

CULTURE
ANJELICA SOESANTO
ANJELICA SOESANTO

The Plaza at the Navy Yard

How can planners design well-engaged communities? What are ways we can ensure neighborhoods promote walkablility? What measures are in place to mitigate noise and air pollution within the neighborhood?

ANJELICA SOESANTO HOME & NEIGHBORHOOD

The Plaza at the Navy Yard represents a careful design with integration of mixed-use development, natural terrain, rivers, green spaces, and private courtyard. All of which creates a model neighborhood where residents enjoy a high quality of life, surrounded by the beauty of nature and the warmth of a tight-knit community.

ANJELICA SOESANTO

Central gathering spaces and community centers are strategically placed. Wide sidewalks, bike lanes, and pedestrian-friendly zones encourage residents to embrace a healthier, more active lifestyle. The layout minimizes reliance on cars, promoting sustainable transportation alternatives.

& NEIGHBORHOOD
ANJELICA SOESANTO

A School for Muse 08

Light is essential to playspaces. Growing up, interior spaces of traditional old school buildings felt like being inside a cardboard box. So I thought - how can we use these walls to angle and refract light? The proposed School of Muse design allows light to bounce and play with students creating a rejuvenating indoor class experience.

Travel Sketches - Spain

ANJELICA SOESANTO
ANJELICA SOESANTO
ANJELICA SOESANTO

On The Boards

Jalan Kembang Jepun Surabaya is historically known to be a red light district. My thesis research project aims to search for answers on how we can revitalize this neighborhood and celebrate its urban heritage.

The visual collage above shows snapshots of the Red Bridge (Jembatan Merah) and entrance into Jalan Kembang Jepun (Japanese flower street) from multiple decades. This neighborhood holds history.

ANJELICA SOESANTO
CULTURE

before - vehicular heavy street

after - pedestrian friendly street with centralized public space

These images show the existing conditions of this historical site and proposed design of what it could be. The intent is to convert the abandoned vacant structure along with the street into a social gathering space where people, food, conversation all happen together.

Local Music School

A design that sings around the envelope. Windows, stairs, vertical elements all come together to play an orchestrated architectural song.

The windows express a sense of rhythm.

Hiroshi Nakamura Inspired Japanese Teahouse
ANJELICA SOESANTO

Turn static files into dynamic content formats.

Create a flipbook
Issuu converts static files into: digital portfolios, online yearbooks, online catalogs, digital photo albums and more. Sign up and create your flipbook.