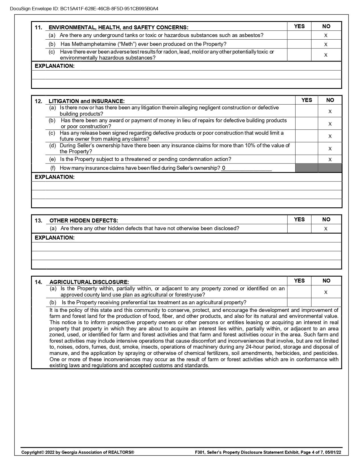
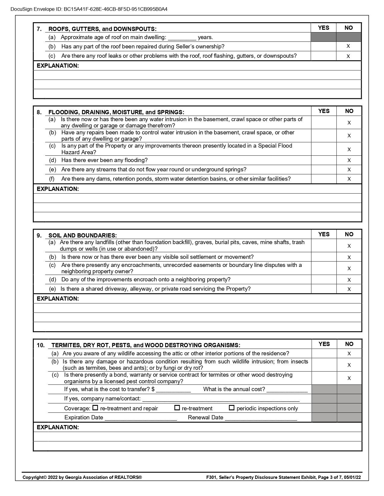
86 Elba Ct Ellijay, GA 30540

Page 1

Welcometo:

86 Elba Court Ellijay, Georgia 30540

THANK YOU FOR VIEWING OUR

PROPERTY

Turn static files into dynamic content formats.

Create a flipbook
Issuu converts static files into: digital portfolios, online yearbooks, online catalogs, digital photo albums and more. Sign up and create your flipbook.