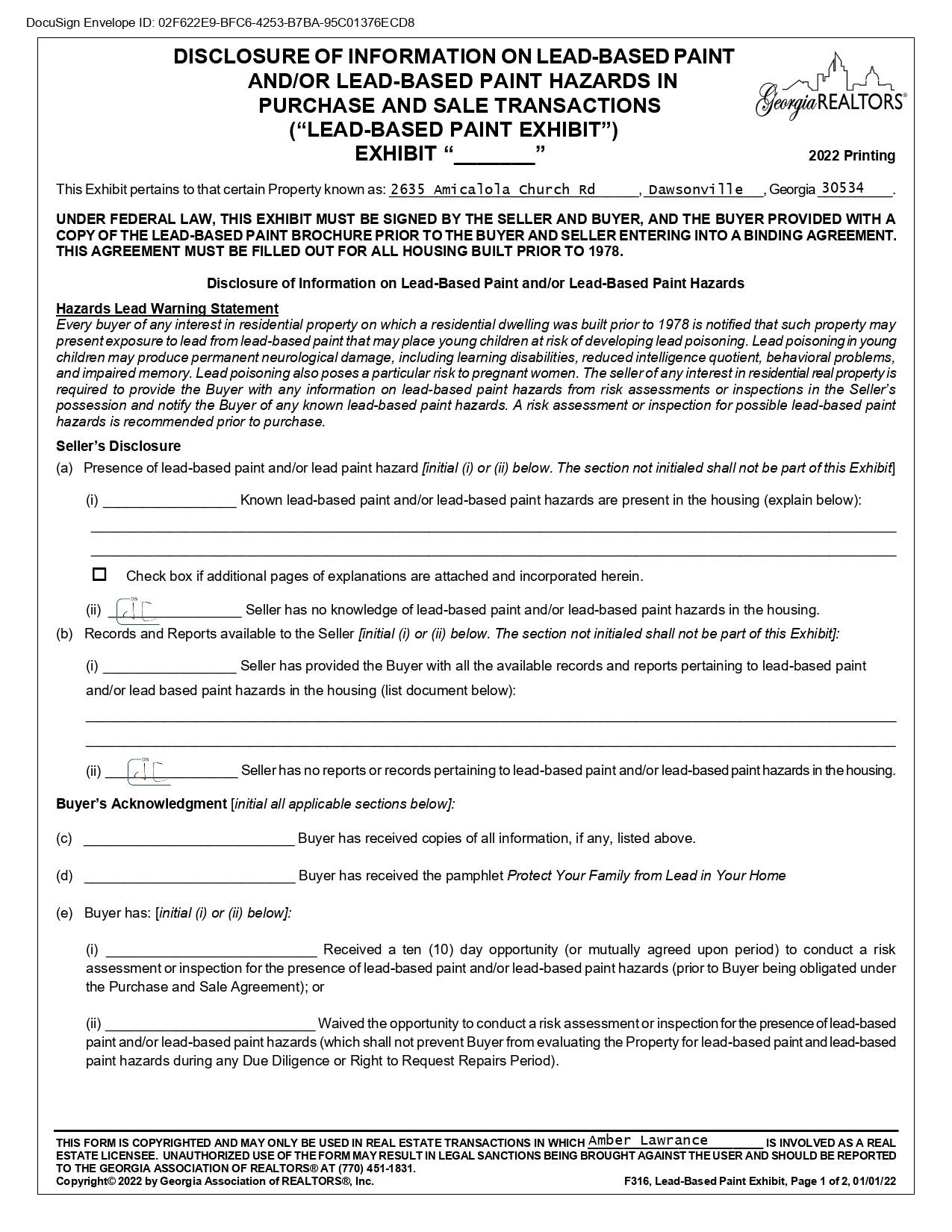
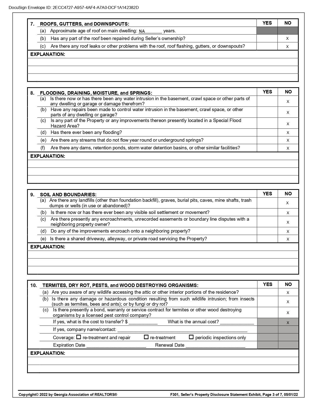
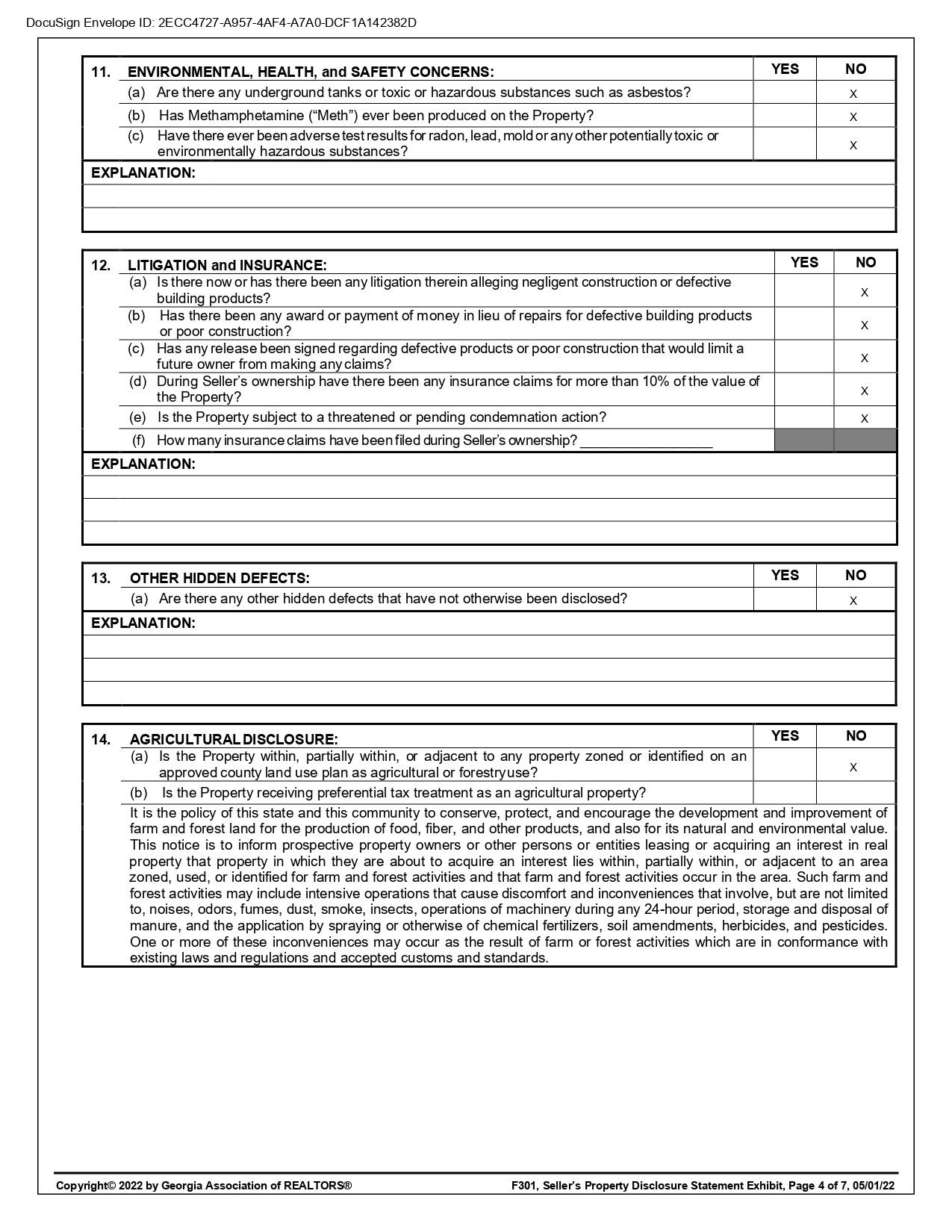
2635 Amicalola Church Road, Dawsonville, Georgia 30534

Page 1

Welcometo:

2635 Amicalola Church Road Dawsonville, Georgia 30534

THANK YOU FOR VIEWING OUR PROPERTY

Turn static files into dynamic content formats.

Create a flipbook
Issuu converts static files into: digital portfolios, online yearbooks, online catalogs, digital photo albums and more. Sign up and create your flipbook.