Spring 2023 Chicago

Page 1

The Forest

CHICAGO INTEGRATIVE STUDIO

Spring 2023

DANIELLA NORONHA + ZIXUAN LIU

Instructor Chip von Weise

Mentor Perkins + Will

Table of Contents

Analysis Project Overview Research Site Analysis Precedent Research Concept Massing Forest Floor Site plan and Program Elevation Canopy Residential plan MEP Structure Material Specification Sustainability Accessibility Appendix Code Matrix Process Work 2 CHICAGO STUDIO SPRING 2023 3-4 5 6-7 8-10 11-15 14-15 16-28 17-25 26-28 29-48 30-34 35-40 41-42 43-44 46 3-10 48-49 50-53 54-58 50-62

Project Overview

These mixed-use affordable housing units and Chicago philharmonic respond to the social needs of the surrounding community, which primarily consists of single parent households; it acts as a place of cultural fusion and exchange for these families. The green space that occupies almost the entire site ensures a visually continuous activity space, and provides active areas for children, parents, and community members.

Inspired by the forest floor, the all-age playground and the philharmonic concert hall are interspersed together to provide an open space for activities. The project also includes a daycare center that is open to the public. All public spaces are concentrated on the florest floor and linked through the central green garden to gather the community to accompany the growth of the children in the neighborhood.

Affordable housing, as the resident’s nest, is placed above the forest, wrapping Central Park in a safe posture. The overlapping public roof garden and unit make the interior of the resident full of communication opportunities.

3 CHICAGO STUDIO SPRING 2023

Site and Project Information

Project Address: 6830 S Stony Island Ave.

Neighborhood: South Shore

Propose Zoning: B3-5

Site Area: 57,000 SF (1.31 Acres)

Chicago Philharmonic Center: Philharmonic Rehearsal and Performance

Spaces: 22,300 SF

Outdoor Space: 13000 SF

Affordable Housing: 50 residential units include 24 Studio, 14 2 bedroom duplex, 7 3 bedroom duplex, and 3 bedroom apartment

Parking: 60 Parking Spaces - 40 (Philharmonic)+ 20 (housing)

4 CHICAGO STUDIO SPRING 2023

Research

Our research focuses on the demographics of single-parent families. There are 4300 families with kids in South Shore, of which 75% are single parents. Out of dependents, 30% are under five years old.

4300*.75*.3=900 .

More than 90% residents in South Shore work outside of the neighborhood.

This shows in this neighbourhood, more than 900 families might need childcare. A lot of these families depend on their parents, friends, and daycares for childcare.

5 CHICAGO STUDIO SPRING 2023

Site Analysis

There are upwards of 16 childcare centers within a 15 minute driving radius of our site. Green space is mainly located in the Northern portion of our neighborhood.

Our site is within walking distance of two nearby public Spaces: The Music Box and The Stony Island Art Bank. S. Stony Island Ave is a busy eight-lane road that connects north Chicago.

6 CHICAGO STUDIO SPRING 2023
Site S Stony Is Ave E 69th Street
Daycare Center
Site
Public Green Space

Design Strategy

What can we do for the Single Parent Families in South Shore?

Offer Support through…

Active Community

Increasing outdoor interaction in open space

All-age playground

Small village for residents to activate community

Creating Homes with Identity

7 CHICAGO STUDIO SPRING 2023

Precedent Research

Frauen-Werk-Stadt 1990-1995

Eva Kail created Fraun Werk Stadt with the philosophy of “Gender mainstreaming”-equity in policy, legislation, resource allocation Pram storage, wide stairwells, flexible floorplans, and high quality secondary rooms. She wanted to design with the average woman’s foot traffic in mind, considering childcare and safety.

The principles of her design we are prioritizing in our own projec are:

Street visibility

Central greenspace

Views from the street

Convenient Access to Transportation

8 CHICAGO STUDIO SPRING 2023

Precedent Research

From Mondrian’s understanding of trees, branches, light, and shadows intertwine to form a complex space. We also use the elements of this painting to interlace different architectural elements, which allow us to obtain changeable light and shadow spaces.

Brock commons tallwood house located at the University of British Columbia. The foundation, ground floor, and stair/elevator cores are reinforced concrete, while the superstructure is composed of cross-laminated timber (CLT), floor panels supported on parallel strand lumber (PSL), and glue-laminated timber (GLT) columns with steel connections. The construction details and the concept of sustainability are used in our design.

9 CHICAGO STUDIO SPRING 2023
Piet Mondrian Compositie XIV

Sustainability Precedent Research

Project GOMILA utilizes rain collection, green roof, and cross ventalation to achieve sustainability goals and adapt to the local environment. The sunroof and shading also ensure adequate light while keeping the temperature right.

10 CHICAGO STUDIO SPRING 2023

Forest Floor

The Forest

Canopy

Nest Roots

Tree Trunks

Leaves

Forests are places where tens of thousands of different species breed. In the woods, the birth of a cub comes with joy, growth, and danger. They need to interact with their friends, learn from adult animals, and learn how to deal with different environments, just as humans do.

Forests can be divided into forest floors and canopy levels. In the forest floor, different plant roots blend together to form a complex surface environment, providing space for animals to play and interact with other species.

The Canopy level usually serves as a home and shelter, with distance from the ground providing privacy but yet a visualawareness to the surrounding.

11 CHICAGO STUDIO SPRING 2023
Concept

Forest Floor

Roots

Inspired by the forest floor, the all-age playground and the philharmonic concert hall are interspersed together to provide an open space for activities. The project also includes a daycare center that is open to the public. All public spaces are concentrated on the florest floor and linked by the central green space to gather the community in fostering the growth of the children.

Tree Trunks

12 CHICAGO STUDIO SPRING 2023

Canopy

Affordable housing, as the resident’s nest, is placed above the forest, wrapping the central greenspace in the inside. The overlapping public roof garden and units make the interior of the residence full of communication opportunities. The nest is wrapped in layers to become a warm space, with leaves shading to provide a suitable space for lingering.

Nest Leaves

13 CHICAGO STUDIO SPRING 2023

Massing

Having U-shaped apartments hugging the central green space and a single loaded corridor creates the opportunity for community engagement

Lifting up the forest floor creates a more open, public amenity space on the ground floor

Pulling the greenspace out from the tree trunk creates the root layer.

Lifting up the roots creates the philharmonic space, from which extends the green space.

Stepping the apartments creates the canopy layer and creates a stronger connection between the apartments and the philharmonic

Creating the Apartment Surrounded by the Forest Lifting up the Forest Floor
14 CHICAGO STUDIO SPRING 2023
Roots Create Green Space Lifting the Philharmonic Stepping Creates the Canopy

Render Overview of Green Space

15 CHICAGO STUDIO SPRING 2023

Forest Floor

Roots Tree Trunks

16 CHICAGO STUDIO SPRING 2023

Site Plan

Loading Dock For Philharmonic

Loading Dock and Trash for Residents Underground Parking Lot Entrance Street Parking

Bus Stop

The central green space is the focal point of the site. The public space and its entrance are wrapped around it to create a more private and open activity space.

17 CHICAGO STUDIO SPRING 2023

Site Plan and Program

The open space on the ground floor includes access to a number of different amenities, ensuring that public and private remain seperate. The entrance surrounding the central green space also increases the opportunity for people to join the public space.

in for Daycare
Lobby Entrance
Side Entrance
Front Entrance
Ground Floor Program Check
Resident
Phiharmonic
Phiharmonic
Entrance
Cafeteria
18 CHICAGO STUDIO SPRING 2023

Transportation and Site Entrance

Sidewalks were added in order to connect the main neighborhood nearby, the Music box foundation, the Stony Island Art Bank, and our philharmonic together. The bike lane is located between the sidewalk, landscape, and street parking, providing a safer space for the sidewalk and isolating the site from noisy car lanes.

19 CHICAGO STUDIO SPRING 2023
Resident Entrance South Pathway Bike Path Pedestrian Path

Program Section and Site Entrance

20 CHICAGO STUDIO SPRING 2023
Section Program

Philharmonic Entrance

The entrance to the philharmonic extends from the central courtyard to the ground, and the roof on the right is gradually raised, linking the three spaces in the way roots tend to overlap each other.

21 CHICAGO STUDIO SPRING 2023

Ground Floor Plan

The Back of house and office are far from the residential portion in order to provide privacy. Between the walkable green roof and playground is outdoor performance space. The circulation lines within the site are all around the central courtyard with the focus of gathering people.

22 CHICAGO STUDIO SPRING 2023

Greenspace

The Playground is surrounded by apartments, allowing residents to watch their children from their homes. The topography, which runs from 3ft to 6ft, provides space for children of different ages to have fun and run about.

23 CHICAGO STUDIO SPRING 2023

Basement Plan

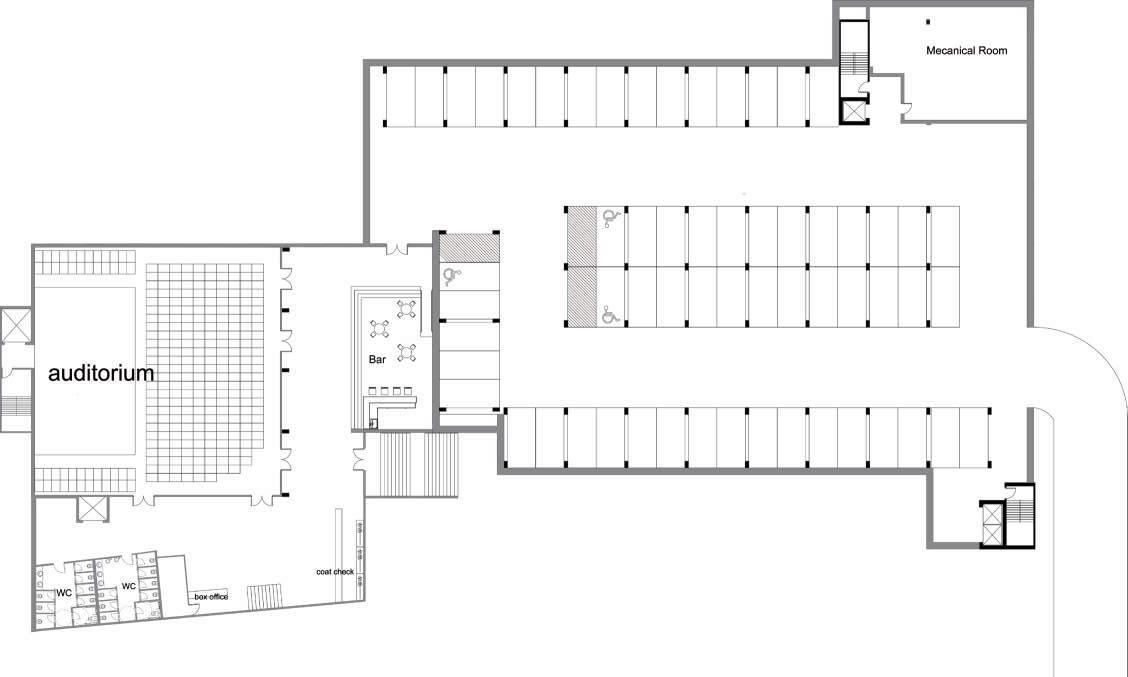
60 parking Spaces for visitors are connected to the underground philharmonic, as well as the lobby. All prefunctions space is on this floor. The ground floor and the public Spaces on the second floor are also connected by a large continuous staircase. The whole space is visually open.

24 CHICAGO STUDIO SPRING 2023

Philharmonic Interior

25 CHICAGO STUDIO SPRING 2023
Lobby View Auditorium
auditorium bar coat check box office wc auditorium bar coat check box office wc auditorium bar coat check box office
Step Down Entrance

Elevation

26 CHICAGO STUDIO SPRING 2023
East Elevation
64 ft 14 ft 34 ft
South Elevation
64 ft 14 ft 36 ft 24 ft 54 ft 27 CHICAGO STUDIO SPRING 2023
Elevation

Longitudinal Section

64 ft 14 ft 36 ft 24 ft 54 ft -10 ft 28 CHICAGO STUDIO SPRING 2023
29 CHICAGO STUDIO SPRING 2023 Canopy Leaves Nest

Residential and Phiharmonic Second Floor Plan

10 Feets single loaded corridor provide the oppotunity as public space for each unit.

30 CHICAGO STUDIO SPRING 2023
wc print phone coat workstations small office small office small office mid office mid office mid office

Residential and Phiharmonic Third Floor Plan

Big Office Big Office Director’s Office Conference 31 CHICAGO STUDIO SPRING 2023

Residential Plan

Fourth Floor Residential

Fifth Floor Residential

32 CHICAGO STUDIO SPRING 2023 N E S
h Floor dential

Residential Plan

33 CHICAGO STUDIO SPRING 2023
Sixth Floor Residential

Roof Plan

The roof garden with pergola provides a better environment for plants to grow, while also providing shading for the residents’ public space.

34 CHICAGO STUDIO SPRING 2023

Plumbing plans

35 CHICAGO STUDIO SPRING 2023
Legend cold water hot water vent waste trash room low voltage room electric closet
MEP Plan
36 CHICAGO STUDIO SPRING 2023
S Legend Makeup Air Shaft Return Air Duct Ceiling Air Vent Heat Pump Dryer Exhaust Vent Bathroom Exhaust Vent trash room low voltage room electric closet
MEP Plan
HVAC plans

MEP Plan

Electrical plans

Legend

Recessed Light

Surface Mounted Light

Wall Mounted Light

LED Rail Light

Single Switch

Double Switch

Duplex Wall Receptacle

GFCI Receptable

Electrical Switchbox

Exhaust Fan

37 CHICAGO STUDIO SPRING 2023
trash room low voltage room electric closet

Sprinkler plans

38 CHICAGO STUDIO SPRING 2023
MEP Plan
Legend Upright Sprinkler Water Line Pendent Sprinkler
trash room low voltage room electric closet
Sidewall Sprinkler
39 CHICAGO STUDIO SPRING 2023
Legend Fire Protection 1 hour 2 hour
Fire Safety Plan

Egress Plan

Egress Plans

40 CHICAGO STUDIO SPRING 2023
109’ 114’ 130’ 135’ 144’ 131’ UP DN 5" 1.5” 3’3” 1.5” 3’6” 2’

Structure Plan

41 CHICAGO STUDIO SPRING 2023 A 1 2 3 4 5 6 7 8 9 10 11 B C D E F G H I J K L 18’ 30‘

Structure and Material Specifications

Cast-in-place reinforced concrete foundation

CLT can store carbon during the building’s lifetime and even capture additional carbon. CLT buildings provide a 15-26% reduction in global warming potential, requires less water and energy to produce than concrete or steel as sustanaianbility strategy

Wood structure components Cast in place reinforced concretec core Polycarbonate CLT balcony CLT Floor Single loaded corridor CLT Floor and Roof Glulam column with slab

Wall Section

Balconies and Windows of different sizes allow residents to better identify their nest.

Balcony Assembly and Deep Dive

CLT Floor and Glulam Column

Prefabricated Panel Wall

CLT Balcony and Glulam Column

Aluminum Frame

2 Layers Cellular Polycarbonate Panels

Balcony Render

44 CHICAGO STUDIO SPRING 2023

Sustainability

Cross Ventilation is created through the singleloaded corridor, which allows air to flow from the balcony to the corridor. Each of the windows is operable, which allows the inhabitant greater control of their unit’s ventilation.

The layered green roofs create a canopy for our community which activates different levels of engagement amongst our residents. They also reduce energy use, cool roofs and provide shading, thermal mass, and insulation.

PV cells reduce carbon emissions and serve as a source of renewable enrgy for our community

45 CHICAGO STUDIO SPRING 2023
Corridor Render
46 CHICAGO STUDIO SPRING 2023
Experiential
Pergola Green Roof View Out Door Performance Space Daycare Playground View All-age Playground View
47 CHICAGO STUDIO SPRING 2023 64 ft 14 ft

Accessibility Unit

Duplex Accessibility

Units

Duplex Accessibility

Units

Studio Accessibility

Units

Studio Accessibility Units

48 CHICAGO STUDIO SPRING 2023 N E S W
N E S W
49 CHICAGO STUDIO SPRING 2023
N 3-Bedroom Accessibility Units Townhome Accessibility Units N E S W Duplex Accessibility Units Studio Accessibility Units N E S W 3-Bedroom Accessibility Units Townhome Accessibility Units
Accessibility Unit

Physical Models

54 CHICAGO STUDIO SPRING 2023

Turn static files into dynamic content formats.

Create a flipbook
Issuu converts static files into: digital portfolios, online yearbooks, online catalogs, digital photo albums and more. Sign up and create your flipbook.