DESIGN PORTFOLIO
DANIEL FORD
![]()
DANIEL FORD
I am originally from Lilburn, a small city situated just outside of Atlanta, Georgia. Currently, I am pursuing a degree in Interior Design at The University of Georgia, with a graduation date of May 2025. My interest in interior design was sparked during the remodeling of my childhood home, where I was captivated by the profound impact that design can have on the atmosphere of a space. Since that pivotal moment, I have dedicated myself to exploring and immersing myself in the field of desig n.


Nestled in the heart of Tokyo, the Shinjuku Grand Hotel offers an immersive experience that blends Japanese authenticity, harmony, and tradition with the refined elegance expected of a five-star experience. Inspired by the principles of Zen and wabisabi, the hotel provides a tranquil retreat within the vibrant city, where simplicity meets luxury in an ambiance of understated sophistication.
This rendering was produced by the professor and distributed to the students.







Upon entering the Lobby, guests are greeted by a tranquil ambiance that establishes a peaceful atmosphere for their stay. The warm color scheme and the soothing sound of a gently cascading waterfall instantly relax visitors as they cross the threshold. Every aspect of the hotel has been thoughtfully crafted to provide not just comfort, but also a connection to Tokyo’s rich cultural heritage, reimagining luxury as a harmonious balance. A charming bridge crosses a small pond, guiding guests to the reception area adorned with an elegant brass overhang.
Throughout the lobby, there are various inviting spaces where guests can unwind, such as enjoying a cup of tea beside the dual-sided fireplace.
This rendering was produced by converting a Revit model into an FBX file, which was subsequently imported into 3DS Max for rendering using V-Ray.





Location on Floorplan




Tuscana offers a contemporary take on traditional Italian dining. The atmosphere is bright and airy, featuring a delicate color scheme with gentle green tones that flow throughout the venue. Abundant windows illuminate the main dining area by day, while pendant lighting casts a warm, intimate glow in the evening, perfect for a romantic setting. The design draws inspiration from the hues found in Italy’s olive vineyards, infused with a mid-century modern touch for an elevated minimalist aesthetic.
This rendering was produced by converting a Revit model into an FBX file, which was subsequently imported into 3DS Max for rendering using V-Ray.



Location on Floorplan Floor Location




Inspired by the sophistication of Japanese architecture, the room boasts sleek lines and a well-considered layout. The broad white oak flooring provides warmth, while the carefully chosen neutral palette fosters a calming and serene atmosphere for guests to relax after their journeys. The bathroom resembles a luxurious spa, featuring an oversized bathtub that offers stunning views of the city. The finishes in the bathroom combine white oak with light-colored marble, creating a soft and soothing aesthetic. This rendering was produced by converting a Revit model into an FBX file, which was subsequently imported into 3DS Max for rendering using V-Ray.









During my internship, I was tasked by a client to create renderings that would help visualize the potential appearance of a new building. This initiative aimed to generate excitement within the community that the school serves. I custom-modeled the majority of the furniture featured in the scene. This rendering was produced by converting a Revit model toan FBX file, which was subsequently imported into 3DS Max for rendering using V Ray.



John Doe Design Portfolio
Enlarged Staff Restroom

Enlarged Student Restroom






The architect and I agreed to assign a distinct paint color to each classroom. Additionally, the sconces in the student restrooms will complement the accent colors used in the corresponding classrooms.




In accordance with the client’s request, I selected muted colors that would create a calm and unobtrusive environment.
The tile in the restrooms extends up to a height of 4 feet on the wall.




This rendering highlights a property that has been innovatively transformed from its original single living space zoning into two separate yet interconnected living areas. The shared porch serves as a unifying feature, allowing the two spaces to function cohesively as a single property. This design maximizes the property’s utility and enhances its visual appeal, providing versatility that can cater to a variety of potential occupants.
This rendering was produced by converting a Revit model into an FBX file, which was subsequently imported into 3DS Max for rendering using V-Ray.




3D View





Wall paint color


The tile in the shower extends up to ceiling height
The client requsted green vertical tile
tile


The architect specified the use of Ipe wood for the concealed doors within the wood siding.



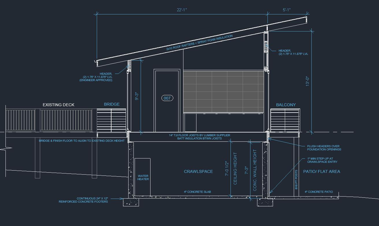
This project was constructed adjacent to the client’s existing residence. It was specifically designed as a music editing studio, intended for use during guest visits. The facility includes one bedroom with an en-suite bathroom, as well as a dedicated laundry room.
This rendering was produced by converting a Revit model into an FBX file, which was subsequently imported into 3DS Max for rendering using V-Ray.
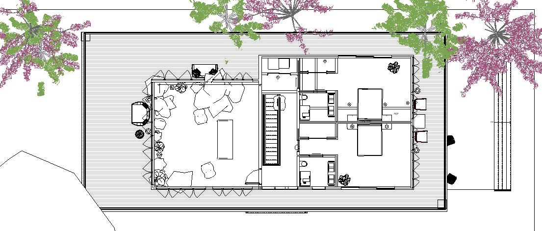
Proposed Floorplan


Foundation / Basement Plan

Ceiling Plan


Doe Design Portfolio










This project was completed as part of my Studio 2 coursework. It is a spec house located in Bend, Oregon, featuring three bedrooms, three bathrooms, and an attached two-car garage. The first floor showcases an open-concept layout, complemented by outdoor space that offers picturesque river views, making it ideal for entertaining. The second floor consists of two bedrooms, a laundry room, and a wraparound patio suitable for gatherings, as well as a sunroom that enhances the living space with natural light and scenic vistas.

This project was developed using Autodesk Revit and rendered utilizing Enscape for high-quality visualizations.
I have been assigned the project of designing a tiny home from the ground up. The design concept is centered around the principle of flat-packing all components, which enables efficient shipping of the individual pieces to the client. The client will be responsible for the assembly and construction of the home. This prefabricated residence includes a loft that can serve as both an office and a storage area. The proposed foundation for the tiny home is a pour-in-place concrete slab. Furthermore, I have been tasked with developing two distinct mood boards to present to the

This project was initially modeled in Revit and was rendered in real-time using Enscape.




