Skip to main content

Residencial las terrazas

Page 1

CAJAMARCA T A L L E R D E D I S E Ñ O 4 2 0 2 2 VIVIENDAMULTIFAMILIARHÍBRIDA

CHÁVEZ

KARLAAMPAROVARGAS BRIONES

ESTUDIANTES: CARRANZARAMOSANNY PAOLA

FALCONIMUÑOZANGELICA DANIELA

ARMASALVARADODARLINJAIR

1. 2. 3. 4. 5. 6. 7. 8. 9. 10.

ÍNDICE

Introducción Lineamientos PlanodeUbicación Maquetadeentorno planosgeneralesdelasección Cortesyelevaciones Detallesarquitectónicos Interiores Exteriores LaminaSíntesis

1.INTRODUCCIÓN

El apogeo de la economía en el Perú en los últimosaños, se ha impulsado en gran medida por el sector construcción, esto ha traído como consecuencia una transformación del paisaje urbano en Cajamarca. El edificio de vivienda multifamiliar viene siendo la principal herramientaarquitectónico urbanaparaeste cambio.Sinembargo,siendomáscomuneslos edificios de vivienda multifamiliares, es muy escasaladiscusióninformadayobjetivasobre este fenómeno, sus causas y consecuencias. Si las áreas urbanas pueden ser descritas y conceptualizadas a través de su arquitectura dominante, el edificio de vivienda multifamiliar es un tipo de edificio que cualifica muchos entornos urbanos pero carece de una conceptualización profunda y correcta edificación

Este análisis pretende entender un contexto enCajamarcaylaproblemáticaentornoaun terrenoenelqueposteriormenteseedificará unedificiomultifamiliardeusohíbrido.Sondos los objetivos principales: entender cuáles han sido las consecuencias de la multiplicación de este tipo de edificio en la ciudad y, a partir de ello, plantear cuáles deberían ser los cambios en los parámetros actuales de edificación municipales.

Para este análisis se han propuesto distintos parámetros prar poder entener a cabalidad el por qué de la elección del terrano y la importancia de su contexto tal como lo es Cajamarca orientando una propuesta hacia el desarrollo urbano, potenciando áreas que sean escasas dentro de esta, a travez de una vista por hitos y sevicios que ofrece el contextoinmediato

PREEXISTENCIAS

Elterrenoelegidonopresentapreexistencias degranaltura(árboles),perosidecésped

VÍASDEACCESO

Tiene3accesosparallegaralterrenoestosse conectanlavíaprincipal(VíaEvitamiento Norte)teniendotambiéncomovíadeacceso lacalleelIncalacualesunhito

Elproyectopermiteuncorrectopasede vientosyasoleamentoportodalaestructura

COLINDANTES
Se puede observar que tiene varios
PRESENCIA DE ÁREAS VERDES PARA ILUMINACIÓN Y VENTILACIÓNAMANERADEPARQUESYTERRAZAS ZONAS SOCIALES PARA RESIDENTES A MODO DE TERRAZAS ENTRETERRAZAGENERALYZONAPARRILLERA MULTIPLES ACCESOS EXTERIORES E INTERIORES PARA RESIDENTES,COLINDANTES,PEATONESYCLIENTELA ZONAS SOCIALES COMUNES DE USO HÍBRIDO PARA RESIDENTES,COLINDANTES,PEATONESYCLIENTELA
ASOLEAMIENTOYVIENTOS ZONAiNDUSTRIALELEMENTALYCOMPLEMENTARIA 2.LINEAMIENTOS
3.PLANODEUBICACIÓN 9982,07 m² UBICACIÓN ÁREA ZONIFICACIÓN Prol. San Luis 06002 IndustriaElementaly Complementaria VíaUrbanaprincipal AvVíaDeEvitamientoSur AvElinca ProlongaciónSanLuis VíasUrbanasSecundarias

4.MAQUETADEENTORNO

5.ISOMETRIAS

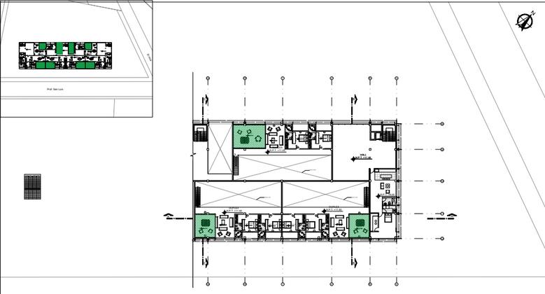
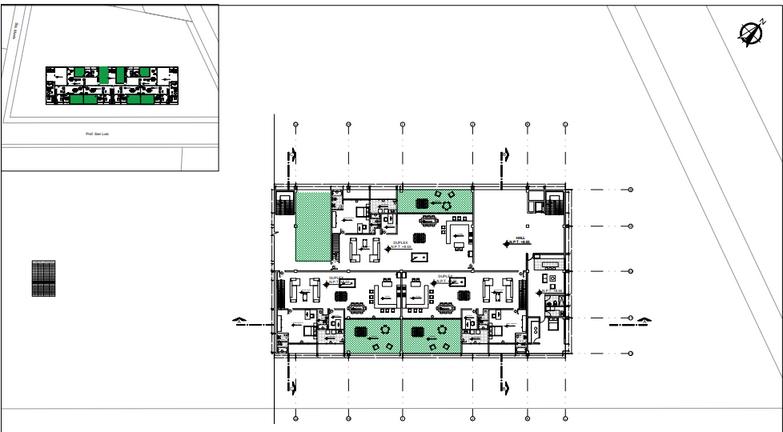
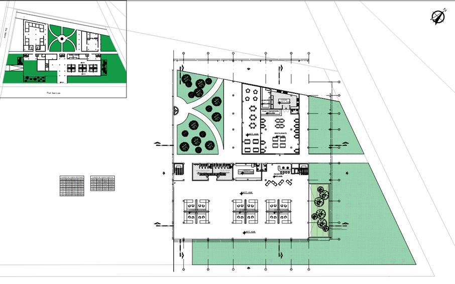
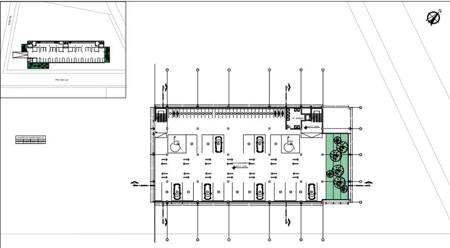
6.PLANIMETRÍA

PLANTA4
PLANTA3
PLANTA6
PLANTA5
PLANTA7 PLANTA8
PLANTA10
PLANTA9
CORTEB-B
CORTED-D
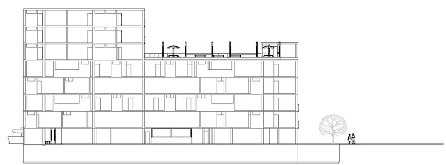
7.CORTES CORTEA-A
CORTEC-C

ELEVACIONOESTE

8.ELEVACIONES
ELEVACIONESTE
ELEVACIONNORTE
ELEVACIONSUR
9.DETALLEARQUITECTÓNICO

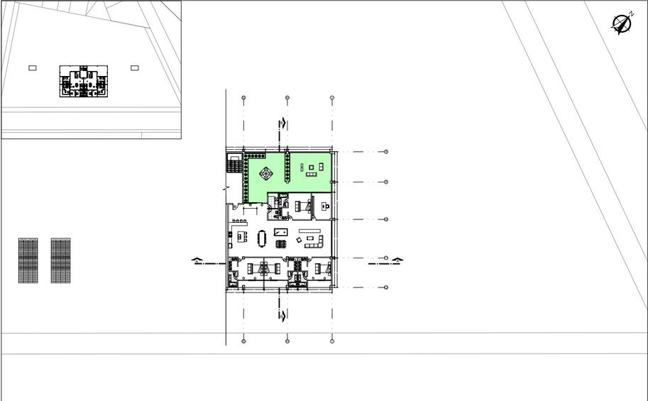
10.INTERIORES

11.EXTERIORES

LÁMINASÍNTESIS

12

Residencial las Terrazas es un proyecto innovador que se centra en el desarrollo de espacios con alta calidad de vida y confort, a travésdeestrategiasproyectualesqueestán plasmadas en los distintos ambientes, viendo más reflejado este concepto desde la creación de sus terrazas en todas las tipologías de ambientes, así como en áreas comunes promoviendo a su vez el uso de áreas verdes viéndose una escasez de vegetaciónpróximaasuubicación. Además este edificio se vuelve híbrido y complementario a la estructura y la ubicación como tal, logrado desde el primer piso que sirve como un área comercial y social común quesirvetantopararesidentes,vecinosdelas colindantes, peatones y clientela del espacio comercial como tal y por tanto del centro comercial colindante "Maestro" brindando tanto una mixtura dentro del público y fin dirigidodeestapropuesta.

Turn static files into dynamic content formats.

Create a flipbook
Residencial las terrazas by Danny Falconi - Issuu