Skip to main content

Dossier parte 2

Page 1


19. Vegetación

Árboles

Grande: Guayacán rosado

Mediano: Pechiche

Pequeño: Cascol

Arbustos:

Adelfa

Para separar los lotes de vivienda y en las jardineras de las circulaciones.

Plantas medicinales y ornamentales

Menta, flor de muyuyo, ruda, manzanilla, valeriana y el llantén.

Calle peatonal y en las jardineras que recorren todo el proyecto.

20. Caracterización de las aceras

Circulación que conecta a las tres manzana

Carril de doble sentido que termina en una cuchara

Ciclovía en doble sentido que llega hasta el remate final del terreno Acera peatonal

Pasos cebra a nivel de calzada Intersecciones

Reductores de velocidad

21. Tratamiento de pisos

Circulación dentro de cada supermanzana

Circulación supermanzana

Circulaciones franjas de vivienda

Tratamiento de pisos

Permeable

Césped en áreas de recreación, jardineras y parques.

Duro

22. Organización PROPUESTA ARQUITECTÓNICA

Se amplio las losas de las viviendas conectando toda la franja

Diferenciar los espacios

23. Geometrización

Ventilación

Viviendas adosadas en las fachadas este, oeste

Ubicación de ventanas en las fachadas mas largas

A nivel urbano el proyecto está en dirección al viento

Forma rectangular (aprovechamiento del viento)

Definición ingreso Ubicación de curtos en fachada más larga

Condiciones climáticas

Volumen (alto en el espacio social, bajo en el espacio privado)

Agrupamiento de viviendas

Elección de cubiertas inclinadas (precipitación)

Cálculo de aleros para cubierta (sol)

Ventanas enfrentadas (viento)

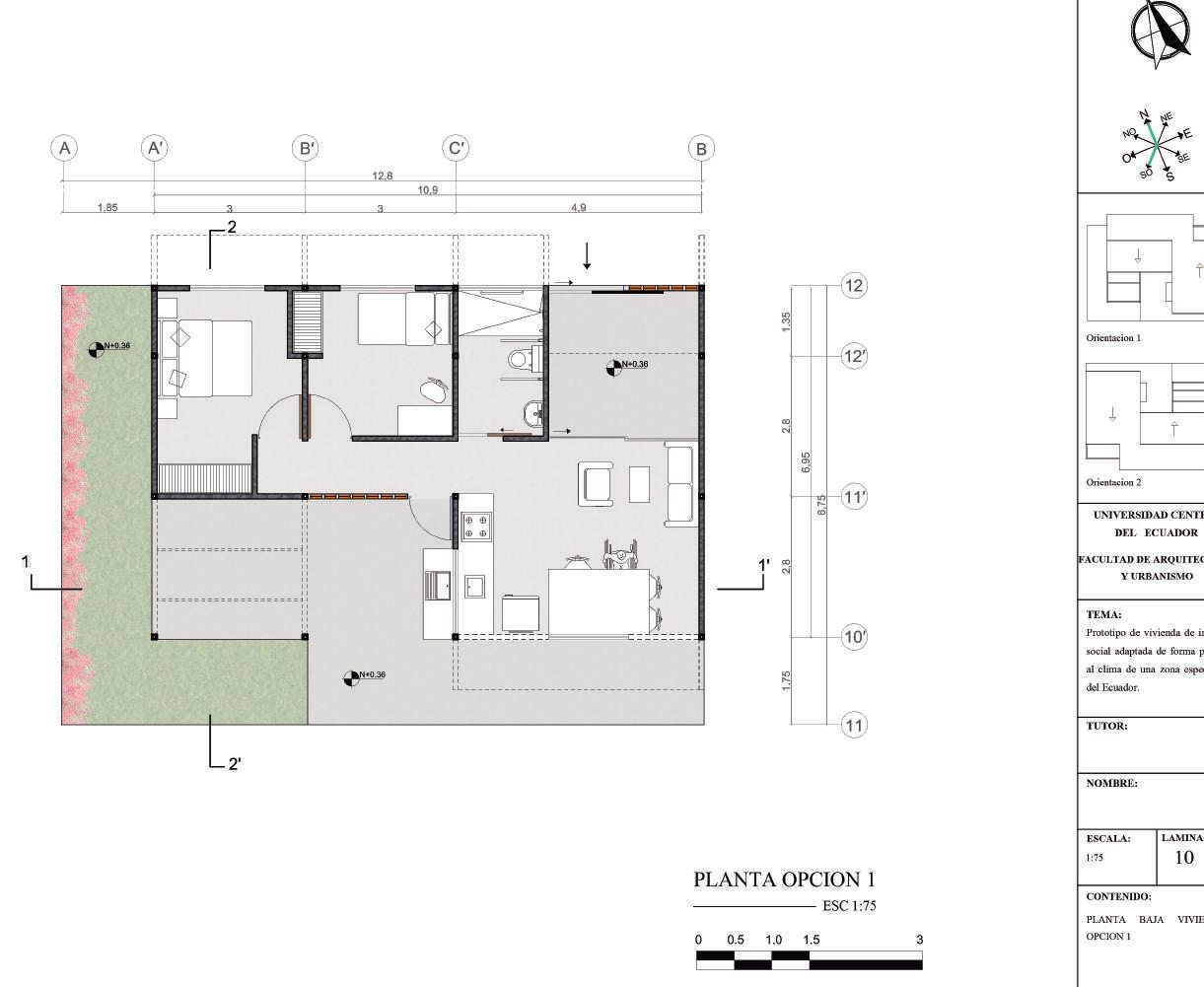
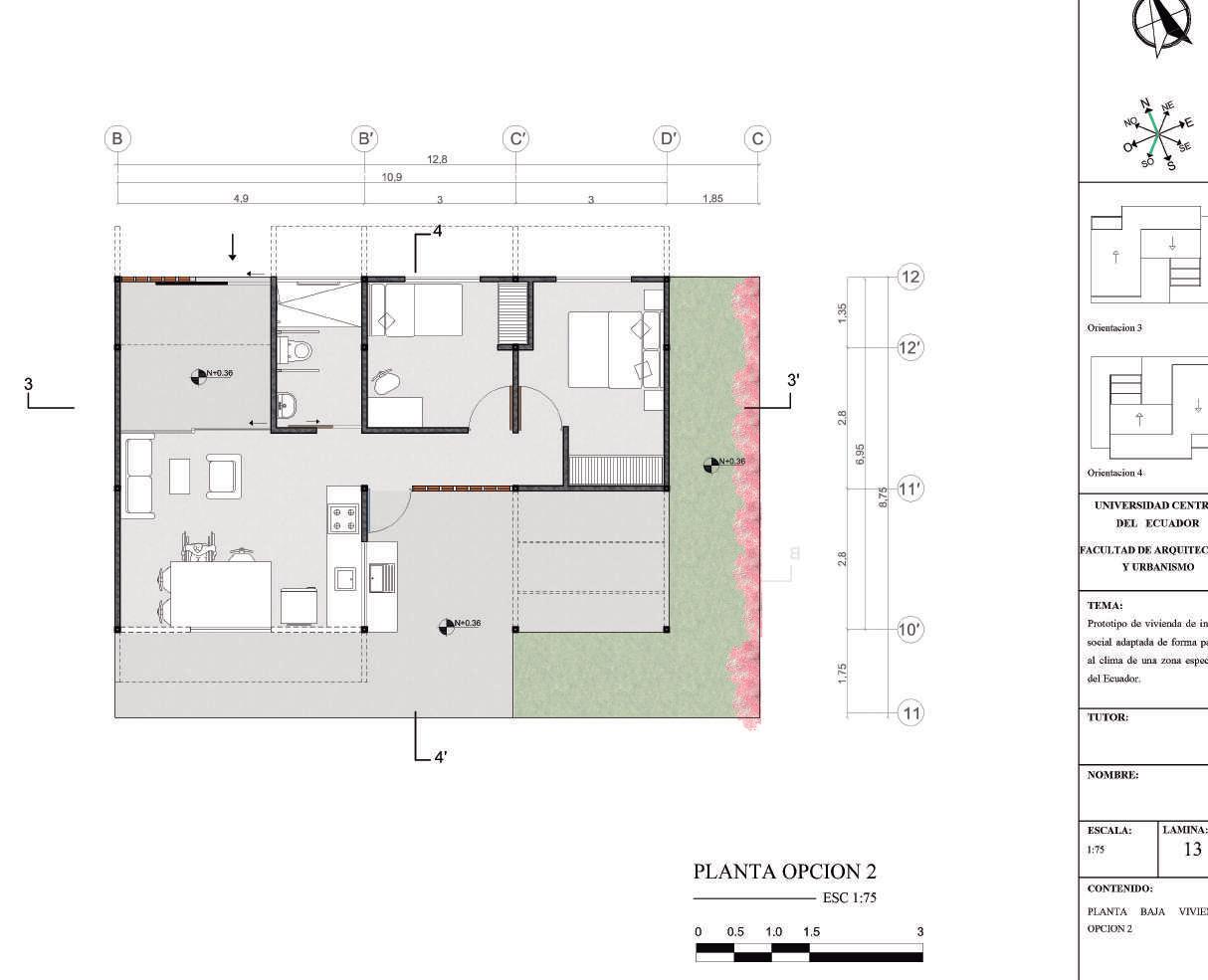
24. Planta

Porche distribuye los espa cios de la casa

Opciones de crecimien to a partir del porche de ingreso y patio trasero (losa de crecimiento)

Área 51 m2, la losa de creci miento 30.20 m2, porche 8.70 m2, y jardín 21 m2

Opciones de crecimiento

4 alternativas de organiza ción en planta

Es la mejor opción, ya que ofrece menos cambios al momento de realizar las ampliaciones y además la mesa de comedor que esta contemplada en la construc ción sirve hasta la tercera ampliación

Opción 4

Orientación 1 (33 viviendas)

Orientación 2 (13 viviendas)

Orientación 1

Orientación 3 (32 viviendas)

Orientación 4 (12 viviendas)

Orientación 2

Orientación 4

Orientación 3

Sujeta a la condición de Espacios flexibles que permiten el crecimiento

La primera opción de crecimiento está enmarcada por

La segunda está pensada para completar la cubierta

Ampliación sala

La tercera es una ampliación de una parte de la cocina y el comedor.

COCCION

COCCIÓN PREPARACION

PREPARACIÓN

SIMBOLOGIA: Indicada

COCCION

PREPARACION

SIMBOLOGIA: Indicada

DESPENSA

ALMACENAJE

UNIVERSIDAD CENTRAL DEL ECUADOR

FACULTAD DE ARQUITECTURA

COCCION

PREPARACION

SIMBOLOGIA: Indicada

DESPENSA

ALMACENAJE

UNIVERSIDAD CENTRAL DEL ECUADOR

FACULTAD DE ARQUITECTURA Y URBANISMO

TEMA:

Prototipo de vivienda de interés social adaptada de forma pasiva al clima de una zona específica del Ecuador.

TUTOR:

SIMBOLOGIA: Indicada

UNIVERSIDAD CENTRAL DEL ECUADOR

FACULTAD DE ARQUITECTURA Y URBANISMO

TEMA:

Prototipo de vivienda de interés social adaptada de forma pasiva al clima de una zona específica del Ecuador.

TUTOR:

NOMBRE:

ESCALA: LAMINA:

CONTENIDO:

26. Sistema constructivo

Cimentación y estructura

En primer lugar se debe considerar que el costo de la vivienda no debe sobrepasar los 20 mil dólares

Para la cimentación se propone losa de cimentación.

social adaptada de forma pasiva al clima de una zona específica del Ecuador.

TUTOR:

Con estructura metálica ya que optimiza el tiempo de construcción y facilita el armado de la vivienda.

NOMBRE:

ESCALA: LAMINA:

CONTENIDO: 9 Sin escala

Paredes

Para abaratar costos se utiliza Hormi2 que son planchas de hormigón hechas con malla electrosoldada y rellenas de poliestireno con un recubrimiento de hormigón, este material pese a que es barato presenta grandes ventajas

Fácil manejo, transporte y rápido de instalar

Apto para ser utilizado con los sistemas tradicionales.

Paneles dimensionados en diferentes longitudes y espesores

La plancha continua de poliestireno actúa como barrera a la humedad y evita que se formen puentes térmicos.

Todos sus componentes son ecológicos.

Eficiencia energética

Clima

Para el clima se considero las mejores combinaciones de materiales según la macrozona climática propuestas por el INER (Instituto Nacional de Eficiencia Energética) por lo que en la cubierta se decide utilizar galvalumen

En el piso un acabado de cemento pulido.

Finalmente, la construcción de cada vivienda demoraría 2 meses aproximadamente y al realizar el presupuesto referencial se obtuvo un costo de 18 mil dólares por cada una.

CUBIERTA

Galvalumen

VENTANAS

Mosquitera

MAMPOSTERIA

HORMI2 (blanco)

MOBILIARIO

Meson y desayunador de cemento

Vidrio y mosquitera PISOS

Metálica

Cesped Cemento pulido PUERTAS

Ladrillo decora�vo
Madera Vidrio

27. Resultados

Propuesta

Estrategias

bioclimáticas

Asoleamiento

Simulación

La ventilación cruzada resulto ser la estrategia de diseño a partir de la información climática

Ventilación

El mes de abril resulto ser en el que ingresa menos sol, lo que es positivo ya que este mes en la isoterma era el más caliente.

Precipitación

La ventilación a nivel urbano se resolvió calculando las sombras de viento y colocando las viviendas de manera que exista mejor movimiento, mientras que a nivel arquitectónico se aprovechó el viento en las fachadas más largas y asegurando que tengan opción de salida para que funcione la ventilación cruzada

Se utilizo cubiertas inclinadas para asegurar el funcionamiento de la vivienda en los meses que tienen precipitaciones elevadas y se ocupó vegetación nativa

DESPENSA

PLANOS

ALMACENAJE

UNIVERSIDAD CENTRAL DEL ECUADOR

28. Implantación

FACULTAD DE ARQUITECTURA Y URBANISMO

ALMACENAJE

TEMA:

Prototipo de vivienda de interés social adaptada de forma pasiva al clima de una zona específica del Ecuador.

TUTOR:

TEMA:

Prototipo de vivienda de interés social adaptada de forma pasiva al clima de una zona específica del Ecuador.

TUTOR:

NOMBRE:

NOMBRE:

ESCALA: LAMINA:

CONTENIDO: 9 Sin escala

ISOMETRIA COCINA

NOMBRE:

ESCALA: LAMINA:

CONTENIDO: 9 Sin escala

ISOMETRIA COCINA

31. Opciones de crecimiento

32. Comercios

33. Casa comunal

Conclusiones

El diseño de las viviendas planteadas por el MIDUVI cumple con la condición de cubiertas inclinadas, lo que funciona para ambos casos, sin embargo, para Ceibo Renacer el diseño de las aberturas y la orientación de las viviendas no favorece la ventilación en ninguna de las opciones simuladas.

Para los casos de estudio las orientaciones que resultaron mejores para ambos no son las óptimas ya que se podría proponer mejores orientaciones tomando en cuenta todas los factores climáticos y estrategias de diseño.

Los dos casos analizados en este trabajo solo contemplan una tipología de vivienda, sin embargo, existen otras 3 bastante comunes que no han sido estudiadas.

Existen innumerables proyectos de vivienda social en el país, sin mencionar que los proyectos se encuentran en diferentes regiones del Ecuador y como se ha podido evidenciar a lo largo de este trabajo cada una tiene sus propias condiciones climáticas, por lo que se podría continuar con más trabajos relacionados a este tema

En la propuesta se obtuvo 2 opciones de plantas con 4 orientaciones de vivienda, que al momento de ser simuladas mostraron menor intensidad de ingreso de sol que en los casos de estudio, además el mes de abril se registró menos horas de sol.

Para la definición del sistema constructivo se contempló varias opciones para reducir costos, sin embargo, la vivienda propuesta llego a ser más costosa que la vivienda planteada por el MIDUVI, no obstante, se debe rescatar que el diseño propuesto ofrece opciones de crecimiento además de generar espacios de calidad en un área reducida.

Se podría estudiar otros materiales para conseguir un sistema constructivo más económico y que mantenga las características de confort dentro de la vivienda

Para los proyectos de vivienda de interés social se debería considerar el porcentaje de discapacidad de la población, para que en función de eso se diseñe un número adecuado de viviendas adaptadas.

Referencias

Araujo, J. (2017). Diseño arquitectónico de viviendas progresivas de interés social para el barrio “Menfis bajo”, en la ciudad de Loja. Universidad Internacional del Ecuador.

Asamblea constituyente. Constitución de la República del Ecuador. , Incluye Reformas § (2008).

Barragán, A. E., & Ochoa, P. E. (2014). Diseño de viviendas ambientales de bajo costo. Maskana, Vol. 5, pp. 81–98. Retrieved from http://dspace.ucuenca.edu.ec/handle/123456789/5587

Bolivar, H. (2017). Análisis paisajístico del sistema de parques urbanos del casco central de la ciudad de Portoviejo. Universidad de Cuneca.

Centro de Investigación Hábitat y Energía, Facultad de Arquitectura, D. y U., & Aires, U. de B. (n.d.). Tecnicas de diseño bioclimático (p. 12). p. 12. Buenos Aires.

Olgyay, V. (1988). Arquitectura y clima. Barcelona: Gustavo Gili, SL.

trabajo de titulación

Secretaría Técnica Plan Toda una Vida. (n.d.). Misión casa para todos. Retrieved August 30, 2019, from https://www.todaunavida.gob.ec/11192-2/

Zúñiga Godoy, M. E., & Gándara, J. (2018). La vivienda social bioclimática sostenible en México, Chile y Ecuador. Revista DELOS Desarrollo Local Sostenible n.31. Retrieved from https://www.eumed.net/rev/delos/31/maria-

Evans, J. M., & Schiller, S. (1988). Diseño bioambiental y arquitectura solar (numero nue). Secretaria de extension universitaria de la facultad de arquitectura y urbanismo de la ciudad de buenos aires.

Gobierno Autónomo Descentralizado Portoviejo. (2014). Diagnóstico. Plan De Desarrollo Y Ordenamiento Territorial, 254.

facultad de arquitectura universidad central

Turn static files into dynamic content formats.

Create a flipbook