JM Tier 1 Example 1

Page 1


As Melbourne’s leading independent commercial property agency, we take pride in creating worth across all four points of this city.

Point of Interest

Point of View

Property Features

Tenancy Schedule 05. Property Particulars 06. Location 07. Sales Process

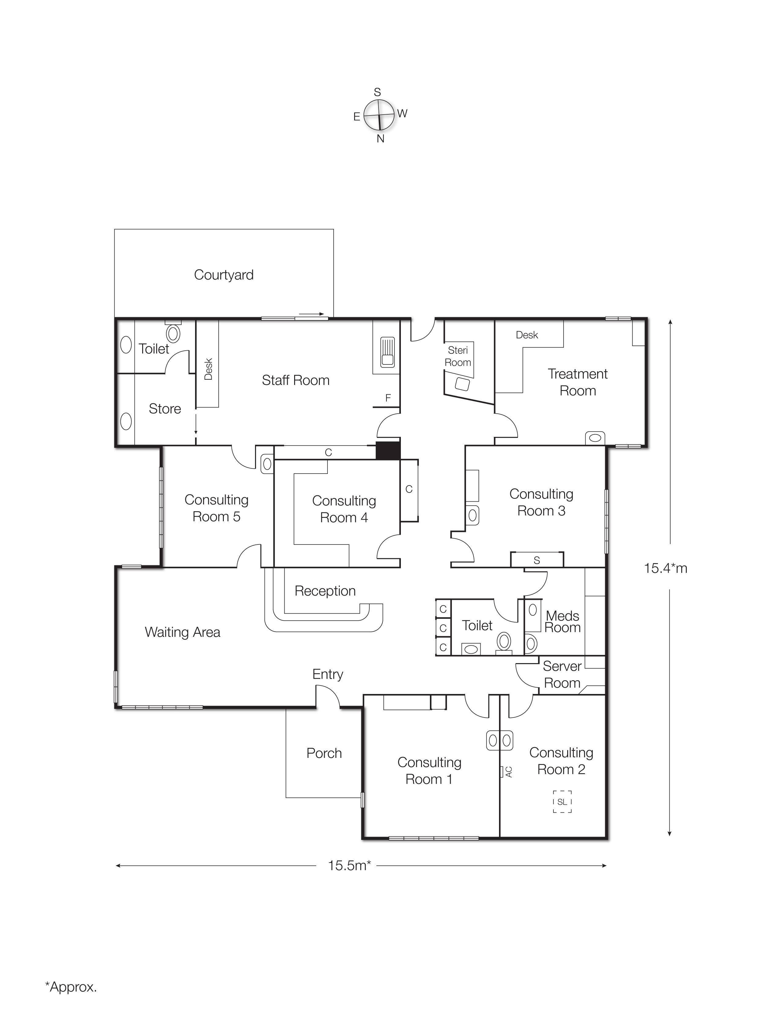
08. Appendices Floor Plan

PRIVATE SALE

BY

CLOSING

DATE: THURSDAY 12TH DECEMBER 2024 AT 3PM

Woven into the Ivanhoe fabric for over 70 years, this established medical clinic has been integral to the health of the community it serves — and it will do the same for your portfolio. For the first time in 45 years, this recently renovated clinic is coming to market with one of Australia’s leading health providers managing the practice. A freehold title with rear access to boot, the asset is carefully designed with five fully-equipped consulting rooms catering to various healthcare and professional service needs.

There’s convenience and exposure being tucked behind Ivanhoe East’s retail precinct, and with a public car park next door, every patient won’t have to walk far. The current tenant has been in place longterm, providing strong rental security and reliability. They have recently extended their current term until 2029, bringing in a steady income and reinforcing the property’s clear USP: a secure medical investment opportunity.

Recently extended lease until 30th April 2029.

561 sqm*

200 sqm*

Street parking and public parking next door.

to Ivanhoe East Medical Clinic, an established clinic for over 70 years.
per annum plus GST and outgoings.

POINT OF VIEW

A legacy investment. You can buy a beautifully renovated clinic with a recently renewed lease, but it’s not every day that over 70 years’ worth of community trust and service is on the market.

Jarrod Moran | 0413 251 621 jarrod.moran@cva melbourne

“Ivanhoe’s medical investment legacy engrained into the community for over 70 years”

The key word you’re looking for is knowledge. It’s Jarrod’s established market understanding, extensive business experience and strong work ethic defined by motivation and dedication, that makes him a seasoned asset not just to CVA but to your day to day. And it’s this energy that amplifies opportunity — in Melbourne, in the market and in the minds of his clients.

Charlie Hicks | 0420 643 202 charlie.hicks@cva.melbourne

“Steady income, rich history - this clinic’s got it both in spades!”

Naturally business and strategy minded, but with the credentials to back it up — Charlie has a Bachelor of Business and Arts that keeps his processes sharp and campaigns organised. In saying that, his intuition has driven a large part of his success, from his relationship-building to the trust he fosters between colleagues and clients alike. It’s why CVA knew they had a leading Property Executive on their hands, and why Charlie channelled his media experience into creating worth across all points of Melbourne. Hardworking. Organised. Reliable. But those around him for more than a moment would say that he has a way of getting along with everyone. And while the saying ‘fail to plan, plan to fail’ is used by many, they’re words Charlie lives by — and it’s exactly

3 Beauview Parade, Ivanhoe East, is a premium medical clinic nestled in the heart of this vibrant Melbourne suburb. Occupying a spacious 200 sqm* building on a 561 sqm* landholding, this exceptional property offers five well-appointed consulting rooms, perfect for healthcare professionals.

The clinic’s prime location, adjacent to Ivanhoe East’s retail precinct, ensures excellent visibility and easy patient access. Ample parking options, including street parking and a nearby public car park, further enhance the property’s appeal. With a long-term lease to a reputable medical tenant, this investment opportunity promises stable returns.

Key features include an established medical clinic, a prime location, ample parking, a long-term lease, and strong potential for capital growth.

A 70-YEAR MEDICAL INVESTMENT WITH COMMUNITY LEGACY.

For Health managed practice with 75 centres Australia wide.

First time offered to market in 45 years.

TENANCY SCHEDULE

Tenant

Current rental

Lease terms

Commencement date

Further terms

Rental reviews

Outgoings

Sidameno (No.456) Pty Ltd Trading as East Ivanhoe Medical Clinic

$107,136.68 per annum plus GST & outgoings

Six (6) Years

1st May 2023

Three (3) Years + Three (3) Years

3% Annual Reviews

Payable by Tenant as per lease

The East Ivanhoe Medical Clinic is a general practice clinic that serves the local community with comprehensive primary healthcare services. Operating Monday to Saturday, the clinic provides both in-person and telehealth consultations, with a focus on accessible healthcare through a convenient mixed billing model.

Patients can book appointments via the ForHealth HaloGP app, which allows for easy scheduling and management of healthcare needs from mobile devices. This app-based system supports a streamlined approach to healthcare access, enabling patients to manage appointments for standard consultations and follow-ups, including telehealth, without needing to call the clinic directly.

Principle Outgoings

Site Details

Title particulars

Zoning

Planning Overlays

Council Rates:

Building Insurance:

Water Rates:

Land Tax:

Frontage to street

$6,048 p.a* (2024)

$3,731 p.a* (2024)

$750 p.a* (2024)

$6,270 p.a* (2024)* (Single Holding)

metres Western side boundary

Eastern side boundary

Rear laneway

Total site area

Certificate of Title — Volume 06433 Folio 565

Lot 46 on Plan of Subdivision 015499

Neighbourhood Residential Zone (NRZ3)

metres

metres

sqm*

Development Contributions Plan Overlay — Schedule 1 (DCP01)

Heritage Overlay (HO91)

Special Building Overlay — Schedule 2 (SBO2)

Vegetation Protection Overlay — Schedule 3 (VPO3)

All signs point to: East Ivanhoe Village

3 Beauview Parade offers not only a peaceful and highly desirable residential setting but also a strategic position just 270 meters from the bustling Lower Heidelberg Road shopping precinct, a key asset for potential investors. This vibrant hub, known as East Ivanhoe Village, is an appealing draw for both locals and visitors, making it an ideal location for long-term growth.

Boutique Retail and Dining:

The nearby East Ivanhoe Village features a curated collection of boutique shops and eateries, from fashion and homewares to artisanal gifts and gourmet food. This attractive mix of businesses is a magnet for foot traffic and offers an ideal environment for future retail or hospitality ventures.

Culinary and Lifestyle Hub:

With a variety of dining options, from casual cafés to upscale restaurants, East Ivanhoe Village caters to a diverse range of tastes. This consistent foot traffic presents an opportunity for increased demand and potential for commercial investment in food and beverage businesses, contributing to a dynamic local economy.

Comprehensive Professional Services:

The precinct offers essential services including banks, hair and beauty salons, and health professionals, creating a convenient one-stop destination for residents and visitors alike. The accessibility of such services adds to the attractiveness of the area, ensuring a steady flow of customers and contributing to the overall vibrancy of the locality.

Beyond the Local Amenities:

Public Transport Accessibility:

Lower Heidelberg Road is well-served by regular bus and tram services, offering seamless connectivity to surrounding suburbs and the Melbourne CBD. This ease of access enhances the appeal of the location for both residential tenants and businesses, positioning it as a high-demand area for investors seeking convenience and connectivity.

Family-Friendly Community:

The East Ivanhoe Village area is renowned for its family-friendly atmosphere, with parks, schools, and recreational facilities just moments away. This sense of community makes it a highly attractive area for both residential buyers and renters, ensuring a stable and growing demand for property in the region.

AND THE POINT?

Strategic. Connected. In summary, 3 Beauview Parade offers an exceptional opportunity for investors seeking a prime location with high demand, strong community engagement, and excellent future growth prospects. The proximity to East Ivanhoe Village, coupled with outstanding transport links and family-oriented amenities, makes this property a smart investment for those looking to capitalize on an area with strong potential for both residential and commercial development.

All signs point to: Ivanhoe East

Ivanhoe East is a highly sought-after suburb in Melbourne’s north-east, renowned for its tranquil residential streets, lush greenery, and proximity to a range of amenities. Located approximately 10 kms* northeast of Melbourne’s CBD.

Key features of Ivanhoe East include its prime location, providing easy access to major arterial roads and public transport options. The suburb is also home to highly regarded schools, ensuring quality education for families. Numerous parks and reserves offer ample opportunities for outdoor activities and relaxation, while the strong sense of community fosters a welcoming environment.

And the point?

The combination of peaceful living, quality education, and convenient location makes Ivanhoe East an attractive choice for families and professionals alike.

SALES PROCESS

PRIVATE SALE BY CLOSING DATE

At CVA, we provide prospective purchasers full transparency, fairness, and respect during the Private Sale process. To make our point, we’ve defined and outlined the process below so you’re across it prior to submitting an offer.

1. Submitting Offers:

Offers are due no later than the date and time advertised for the Private Sale campaign. They must be submitted through this form with every section completed, signed and emailed to the relevant contact persons by campaign closure. Any offers submitted after this time will be deemed as non-compliant and rejected.

Our point of view: we strongly encourage all interested parties to submit their best offer, as the vendor reserves the right to accept an initial offer or to deal exclusively with certain offers in a second round.

Our point of view: we recommend all interested parties submit their best offer, as the vendor reserves the right to accept an initial offer or to deal exclusively with certain offers in a second round. If you are in a position to do so, we strongly encourage submitting an offer signed on a Contract of Sale as this may influence the vendors feedback and/or decision.

2. Review Process:

All offers will be compiled and presented to the vendor for their consideration after the closing of the Private Sale campaign. Upon feedback, we will contact all parties promptly to communicate the vendors instructions relating to their offer.

In the event of a second round, we will request all offers to be provided on a contract of sale with a deposit to CVA for the vedors consideration.

For more information, contact

Jarrod Moran

0413 251 621

jarrod.moran@cva melbourne

Charilie Hicks

0420 643 202

charlie.hicks@cva.melbourne

Turn static files into dynamic content formats.

Create a flipbook
Issuu converts static files into: digital portfolios, online yearbooks, online catalogs, digital photo albums and more. Sign up and create your flipbook.
JM Tier 1 Example 1 by CVA Property Consultants - Issuu