Portfolio Shaoyu Chen MArch 2025

Page 1


SHAOYU CHEN

Architectural Designer

Phone: +1 3479082385

Email: sc5133@columbia.edu

linkedln: https://www.linkedin.com/in/shaoyu-chen-b70814261/

portfolio link: https://issuu.com/csyyy/docs/portfolio_shaoyu_chen_2025_

WORK EXPERIENCE

May-Aug 2024

DLR Group. in LA

Architectural Intern (Higher Education)

· LBCC Stadium - Created clear, analytical diagrams to support design decisions and presentations

· West Valley College wellness building- Conceptual & Schematic Design – AI tools to help with design.Developed massing strategies, created renderings for design visualization, and built a physical model.

May-Aug 2023

HDR, inc. in New York

Architectural Intern (Civic and Transportation)

· Penn Station - Built detailed digital models using Revit to support design development and documentation.

· Liberty State Park Public Restroom – Assisted in Design Development and Construction Documents; updated the model based on revised plans and sections.

· PHL (Philadelphia International Airport) restrooms- produced renderings to support design updates and presentations.

· Baltimore/Washington International Airport – Collaborated on Conceptual and Schematic Design phases;

Aug-Nov 2021

Zhejiang Tianhe Arch Design

Architectural Intern (Construction Drawing)

· Zhenxi Village – supported construction planning and detailing.

· Daxi Middle School Dorm – assisted in the development of design drawings.

· Cultural Pedestrian Street – Conducted research and analysis to inform early design strategies.

May-July 2020

Studio Zephyrus

Architectural Intern

· Future ShanShui City Master Planning Competition –Creative Future ShanShui City Proposal Awards Collaborated across Conceptual, Schematic, and Design Development phases. Responsible for the hotel part of the design.

EDUCATION

Sep 2022-May2025

Master of Architecture, Columbia University

Sep 2017-June 2022

Bachelor of Architecture, Wuhan University of Technology (WHUT)

AWARDS AND HONORS

July 2025

Honorable mention, Hospice Competition - Home for the Terminally Ill- organized by Buildner

May 2025

Life Time and Space, Mawangdui Book pulished (Harvard Camlab)

Nov 2022

Third prize, Yuanye Awards International Competition

Mar 2021

Excellence Award (twice), Exhibition of Architectural Design in Developing Countries 2020

Nov 2020

Merit Awards, Accelerate The City Competition, organized by Bubble Futures Platform

Nov 2020

Creative Future ShanShui City Proposal Awards, Future ShanShui City • International Urban Design Competition

SKILLS

SketchUp (proficient)

(proficient) Revit (mastered) Blender (mastered)

LANGUAGE

English

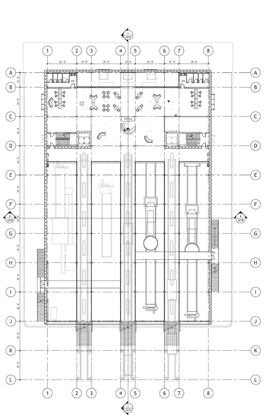
01 DESIGN PROJECT

Location: Sunset Park, New York

Project type: Urban design/ Farm

Time Line: Sept-Dec 2024

FARMING FRAGMENTED

It's based in Sunset Park, New York. An urban farm project transforms the unused fragmented spaces in the city. Our vision positions agroecological practices—and the family farmers implementing them—as pivotal actors in managing and transforming fragmented land-use.

These temples not only serve as religious places to help Chinese immigrants form identities, but also act as community hubs, offering things like vegetarian restaurants, food drives, festivals, and street blessings, connecting the community at multiple scales.

Our proposal introduces a circular food model: compost food waste, turned into fertilizer, and used to grow crops locally, in our site creating a self-sustaining system.

produce Asian vegetables locally for other temples and process food waste onsite

EDUCATION & COMPOSTING

FRAM
SOLAR FRAM

The inactive church remains a focal structure, with temple programs surrounding and integrating into its interior. Residential blocks are designed as two-level units: ground floors cater to families, while second floors accommodate couples. The education and composting centers are located underground to optimize space usage and minimize visual disruption.

Water elements and plants are integrated to create a microclimate. Also, water retention ponds along the fragmented farm's slope, improving water distribution efficiency

Slanted roofs with openings, and pitched CLT wood structure not only allows natural ventilation and light. Wood material also absorb the energy to keep the place warm

02 DESIGN PROJECT

Location: Bronx, New York

Project type: Layered Urbanism

Time Line: Feb-April 2025

TRACEY PLINTH HOUSING

“Reviving the Unbuilt Ground of Tracey Towers”

Tracey Towers were built in 1972 as part of a big plan to improve housing in the Bronx.

Architect Paul Rudolph designed the towers with a "plinth," that was supposed to include 36 low-rise townhouses. These townhouses connect the tall towers to the street and make it more human and community-friendly.

But this important part of the design was never built. As a result, the plinth became an empty, unused space, and the towers feel disconnected from the neighborhood.

Our project brings new life to the plinth. We reimagined the unused plinth a community with vibrant housing and public spaces. By adding medium-rise buildings that connect the towers to the street, complete Paul Rudolph’s original vision and respond to today’s needs of affordable housing and stronger neighborhood connections in the Bronx

Paul Rudolph Vision
Our Vision
Paul Ave
Jerome Ave

The ground level flexible use as either a garden or private parking. The upper two floors are bedrooms and home offices—catering to intergenerational families and work-from-home needs.

Ground floors are semi-public space. A split slab system to separate community amenities from residential floors — including daycare centers, co-working spaces and rooftop gardens.

1B1B: 4

STUDIO: 16

1B1B: 24

STUDIO: 32

CONDO

The project provides 360 new units, accommodating approximately 600 residents.

The layout distributes density efficiently and maintains generous public and landscaped areas.

These buildings primarily house studios and one-bedroom units. community amenities— daycare centers, co-working spaces, laundry rooms, and rooftop gardens.

Our intervention weaves new circulation routes into the existing Tracey Towers, creating stronger connections between old and new structures. A new elevated tram line acts as a central spine, linking the towers, Mosholu Parkway, and nearby streets.

Transform the original tracy towers 6th floor’s part of the residential to public space. Integrate with the tram station and become public programs including library, learning spaces and rooftop gardens. supported by a clear vertical circulation system.

+57

Location: New Jersey

Project type: Culture Center

Time Line: Feb-May 2024

WILL RECREATE WILD

Due to the severe local ecological environment and the need for the protection of endangered birds, this is a culture center aims to raise people's awareness of bird protection.

Original train shed plan only some structure retained

On the left is the current state of the station, with weeds and phragmatics as the main feature. On the right is the spartina plant, which uses the original structure and track height difference to collect water and cultivate spartina

MAKING STUDIO

WAITING AREA FOR TRAIN STOREFRONT

SPARTINA FACTORY

BIRD TOWER

WILD LIFE EDUCATION CENTER

BIRD OBSERVATION

BIRD CARE CENTER

04 DESIGN PROJECT

Location: Harlem, New York

Project type: Housing

Time Line: Sept-Dec 2023

HOUSING AS THEATER

Housing as theater, Life as performance. Extract fundamental theatrical experience and implement them into housing as a mean to explore a new co-living experience.

Lying on the bay window in the bedroom, you can see people talking and eating across the stairs.

The staggered staircases are planted with various flowers, provide a space for people to rest in their spare time, and become a theater in the eyes of people on both sides of the stairs.

Housing itself is already theatrical.

Performance activities are not concerts and actual theater plays. Pedestrians walking along the hallway, the sound and smell of resident’s cooking, the voice from your neighbor’s arguing and laughing, these are all elements that sort of compose a large play with the space of living as a backdrop, and all the diverse daily activities will be perceived as performances, viewed by the community collectively.

As our title says, HOUSING AS THEATER, LIFE AS PERFORMANCE

05 TECH REVIT PROJECT

Location: Mahatten, New York

Project type: Factory

Time Line: Sept-Dec 2023

PIER 0

A material construction waste recycling plant with the primary aim of repurposing construction debris and reintegrating them into the construction market.

Sustainability

Our design's sustainability features encompass various elements, such as cross ventilation for natural cooling using operable windows and louvers, passive solar shading to optimize sunlight, geothermal water heat pumps powered by rainwater collection, and pv panels installed on the roof. Furthermore, the building's very structure incorporates the recycling of construction waste, effectively counterbalancing its own carbon footprint.

LV2 PLAN

the building's program encompasses an art exhibition area, a public indoor plaza, and a window that links the public to the recycling factory floor. Within the industrial program, materials are separated and sorted, aggregates are processed

1.White Rhino model
2.Lookx Ai Cloud material test
3.Final Rendering

07 PROFESSIONAL PROJECT

Location: Lishui, Zhejiang

Project type: Hotel

Time Line: May-July 2020

We aim to build upon Lishui’s identity as a “traditional Chinese ShanShui city” by integrating the essence of ShanShui culture with contemporary concepts of waterfront urban development. Our goal is to foster a new ShanShui-inspired lifestyle, and exploring innovative, sustainable strategies for urban planning. This vision encompasses hotels, art training centers, artist communities, themed museums, theaters, and docks.

Design Statement

It aims and features to build a hotel that goes well with their surrounding landscapes and is extended on gardens, with a theme on hills and waters. This hotel is built into an architecture of new Chinese style, whose pitched roofs and bracket system carries forward traditional Chinese building styles, as well as wood-imitation materials blend with natural sceneries surrounded it. The whole architecture there is enclosed by dotted buildings, connected by corridors, stitched together by flowing water in the center, and accompanied by natural plants.

Liberty State Park

Public Restroom

Assisted in Design Development and Construction Documents; updated the model based on revised plans and sections.

New Study on Mawangdui Han Tomb. Mawangdui Book pulished (Harvard Camlab)

Penn Station

Built detailed digital models using Revit to support design development and documentation.

RED FUTURISM

Excellence Award, Exhibition of Architectural Design in Developing Countries 2020

PHL (Philadelphia International Airport) restrooms

produced renderings to support design updates and presentations.

The Shelter above Sea

Participate in EVOLO Competition. The project was built on the basis of the gradual submersion of land cities and the needs of creation of new cities on the sea

Mahābhūta Garden — ”Four Realms Garden”

Hospice Competition-Home for the Terminally Ill

-organized by Buildner

Drawing on the Buddhist concept of the four elements, we developed a concept of the “Four Realms Garden”_a space where Buddhists nearing the end of life can replenish their missing elements and find spiritual comfort.

This design integrates scientific principles of natural therapy, using the four elements-earth, water, fire, and windto create four distinct healing gardens with immersive natural experiences.

Recall of Sea

Merit Awards, Accelerate The City Competition -organized by Bubble Futures Platform

Urban planning competition on the newly filled ground in Macau, I won the Merit Awards of this competition. I think about How to Create Resilient and Sustainable Cities?

Combine the waterfront's ecosystem and architecture to create resilience and sustainability. I want to attract more tourists to activate this abandoned space

CAT'S PLUG IN CITY

The cat wakes up in its own plug-in dwelling unit, and the movable device has spread its wings to fly to the plug-in office. At the office the cat struggles to draw from day to night, and after work it can quickly reach the entertainment places through the transportation pipeline to play with its’ friends, and finally it returns home exhausted and falls asleep. The last picture of the cat sleeping peacefully at the owner's feet, found that this day's life is just a dream of the cat.

Animation: https://youtu.be/OJTm5B48F7Y

Turn static files into dynamic content formats.

Create a flipbook
Issuu converts static files into: digital portfolios, online yearbooks, online catalogs, digital photo albums and more. Sign up and create your flipbook.
Portfolio Shaoyu Chen MArch 2025 by Shaoyu Chen - Issuu