Portfolio Shaoyu Chen 2025

Page 1


SHAOYU CHEN

Master of architecture student at Columbia University

Phone: +1 3479082385

Email: sc5133@columbia.edu

linkedln: https://www.linkedin.com/in/shaoyu-chen-b70814261/ portfolio link: https://issuu.com/csyyy/docs/portfolio_shaoyu_chen_2025_

WORK EXPERIENCE

May-Aug 2024

DLR Group. in LA

Architectural Intern (Higher Education)

· LBCC Stadium - Conceptual Design: visualize digrams

· West Valley College wellness building- team of 9.

Conceptual Design, Schematic Design, Design Development

May-Aug 2023

HDR, inc. in New York

Architectural Intern (Civic and Transportation)

· Penn Station - team of 2. digital model making

· Liberty State Park, public restroom - team of 6. Design Development, Construction Documents

· PHL (Philadelphia International Airport) restrooms-team of 3. model revised and render ing.

· BWI (Baltimore/Washington International Airport)

team of 4. Conceptual Design, Schematic Design

Aug-Nov 2021

Zhejiang Tianhe Arch Design

Architectural Intern (Construction Drawing)

· Zhenxi Village – team of 2. Construction plan and detailing help.

· Daxi Middle School Dorm – team of 3. Design drawing development.

· Cultural Pedestrian Street – team of 3. Research & analysis.

May-July 2020

Studio Zephyrus

Architectural Intern

· Future ShanShui City Master Planning Competi tion- team of 3. Conceptual Design, Schematic Design, Design Development

EDUCATION

Sep 2022-May 2025

Master of Architecture, Columbia University

Sep 2017-June 2022

Bachelor of Architecture, Wuhan University of Technology (WHUT)

AWARDS AND HONORS

Nov 2022

Third prize, Yuanye Awards International Competition

Mar 2021

Excellence Award (twice), Exhibition of Architectural Design in Developing Countries 2020

Nov 2020

Merit Awards, Accelerate The City Competition, organized by Bubble Futures Platform Nov 2020

Creative Future ShanShui City Proposal Awards, Future ShanShui City • Dwellings in Lishui Mountains International Urban Design Competition

SKILLS

CAD (proficient), SketchUp (proficient), Rhino (proficient), Enscape (proficient), Revit (mastered), PhotoShop (proficient), Vray (proficient), Ai model (Tripo), InDesign, Adobe Illustrator, Bluebeam

LANGUAGE

English Full professional proficiency

Mandarin Native

Location: New Jersey

Project type: Culture Center

Time Line: Feb-May 2024

WILL RECREATE WILD

Due to the severe local ecological environment and the need for the protection of endangered birds, this is a culture center aims to raise people's awareness of bird protection.

Original train shed plan only some structure retained

On the left is the current state of the station, with weeds and phragmatics as the main feature. On the right is the spartina plant, which uses the original structure and track height difference to collect water and cultivate spartina

MAKING STUDIO

WAITING AREA FOR TRAIN STOREFRONT

SPARTINA FACTORY

BIRD TOWER

BIRD OBESERVATION

WILD LIFE EDUCATION CENTER

BIRD CARE CENTER

02 DESIGN PROJECT

Location: Sunset Park, New York

Project type: Urban design/ Farm

Time Line: Sept-Dec 2024

FARMING FRAGMENTED

Calls for new agro-ecological imaginaries that empower distinctive forms of food growing to thrive in heavily fragmented territories. Our vision positions agroecological practices—and the family farmers implementing them—as pivotal actors in managing and transforming fragmented land-use.

These temples serve as anti-types, mapping the diaspora, identity, and borders of Chinese immigrants. Acting as community anchors within a broader mobile network, they support activities like vegetarian restaurants, food drives, festival celebrations, and street blessings, connecting the community at multiple scales.

Our proposal introduces an experimental food model emphasizing self-reliance through a circular cycle: food waste is composted onsite, transformed into fertilizer, used to grow crops locally, and harvested to serve the neighborhood. This creates an inclusive, selfsustaining ecosystem

The inactive church remains a focal structure, with temple programs surrounding and integrating into its interior. Residential blocks are designed as two-level units: ground floors cater to families, while second floors accommodate couples. The education and composting centers are located underground to optimize space usage and minimize visual disruption.

Water elements and plants are integrated to create a microclimate. Also, water retention ponds along the fragmented farm's slope, improving water distribution efficiency

Slanted roofs with openings, and pitched CLT wood structure not only allows natural ventilation and light. Wood material also absorb the energy to keep the place warm

03 DESIGN PROJECT

Location: Bronx, New York

Project type: Layered Urbanism

Time Line: Feb-April 2025

TRACEY PLINTH HOUSING

“Reviving the Unbuilt Ground of Tracey Towers”

Our project returns to the plinth not as a blank base, but as a site of architectural memory and urban potential. We propose a new interpretation of the original townhouse concept, one that responds to today’s Bronx: a borough shaped by resilience, intergenerational living, and shifting housing needs. In reviving Rudolph’s unbuilt vision, the project becomes both a continuation and a critique, a dialogue between past ambitions and present conditions.

Staggered staircases planted with flowers offer resting spots, while the open ground level serves as a garden or parking. The first floor contains living and dining areas with a balcony, and upper floors hold bedrooms and home offices.

1B1B: 4

STUDIO: 16

1B1B: 24

STUDIO: 32

CONDO

These towers primarily contain studio and one-bedroom units, catering to singles and couples.

The ground floors remain open, while the split lab separates residential space from integrated community programs, such as laundry, co-working spaces, a daycare center, and rooftop gardens.

An elevated platform with a tram station links the towers, adding community spaces like a library, classrooms, and rooftop gardens, with separate elevators for public and private access.

04 DESIGN PROJECT

Location: Harlem, New York

Project type: Housing

Time Line: Sept-Dec 2023

HOUSING AS THEATER

Housing as theater, Life as performance. Extract fundamental theatrical experience and implement them into housing as a mean to explore a new co-living experience.

Lying on the bay window in the bedroom, you can see people talking and eating across the stairs.

The staggered staircases are planted with various flowers, provide a space for people to rest in their spare time, and become a theater in the eyes of people on both sides of the stairs.

Housing itself is already theatrical.

Performance activities are not concerts and actual theater plays. Pedestrians walking along the hallway, the sound and smell of resident’s cooking, the voice from your neighbor’s arguing and laughing, these are all elements that sort of compose a large play with the space of living as a backdrop, and all the diverse daily activities will be perceived as performances, viewed by the community collectively.

As our title says, HOUSING AS THEATER, LIFE AS PERFORMANCE

05 DESIGN PROJECT

Location: Lishui, Zhejiang

Project type: Hotel

Time Line: May-July 2020

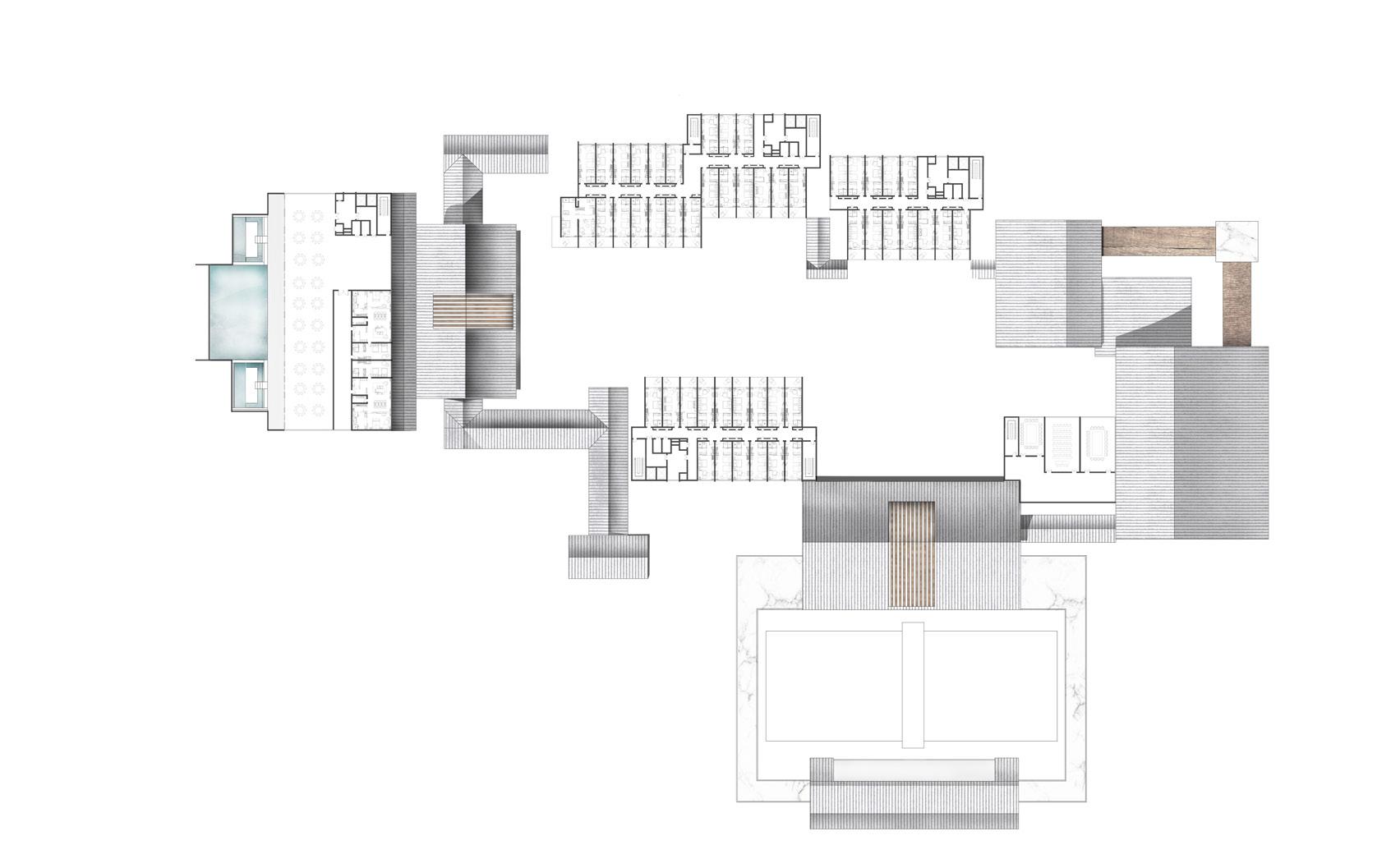
FUTURE SHANSHUI CITY

This project is designed for Lishui County, based on the its unique location and cultures, it aims to build a hotel that goes well with their surrounding landscapes and is extended on gardens, with a theme on hills and waters.

Design Statement

This project is designed for a scenic city located by Ou River, Lishui County, Zhejiang Province.Based on the county's unique location and cultures, the design introduces the concept of a scenic city, to spread China's landscape culture that sticks to people's minds and serves as their spiritual shelter. Meanwhile, it also tries to power local tourism culture along the Ou River, fueling the economic development in neighboring regions.

It aims and features to build a hotel that goes well with their surrounding landscapes and is extended on gardens, with a theme on hills and waters. This hotel is built into an architecture of new Chinese style, whose pitched roofs and bracket system carries forward traditional Chinese building styles, as well as woodimitation materials blend with natural sceneries surrounded it. The whole architecture there is enclosed by dotted buildings, connected by corridors, stitched together by flowing water in the center, and accompanied by natural plants.

Perspective Section

The entrance
The pond at the entrance houses cranes, which represent good fortune.
Meditation Chamber someone is chanting and playing music
Second floor Hot springs can see the surrounding scenery

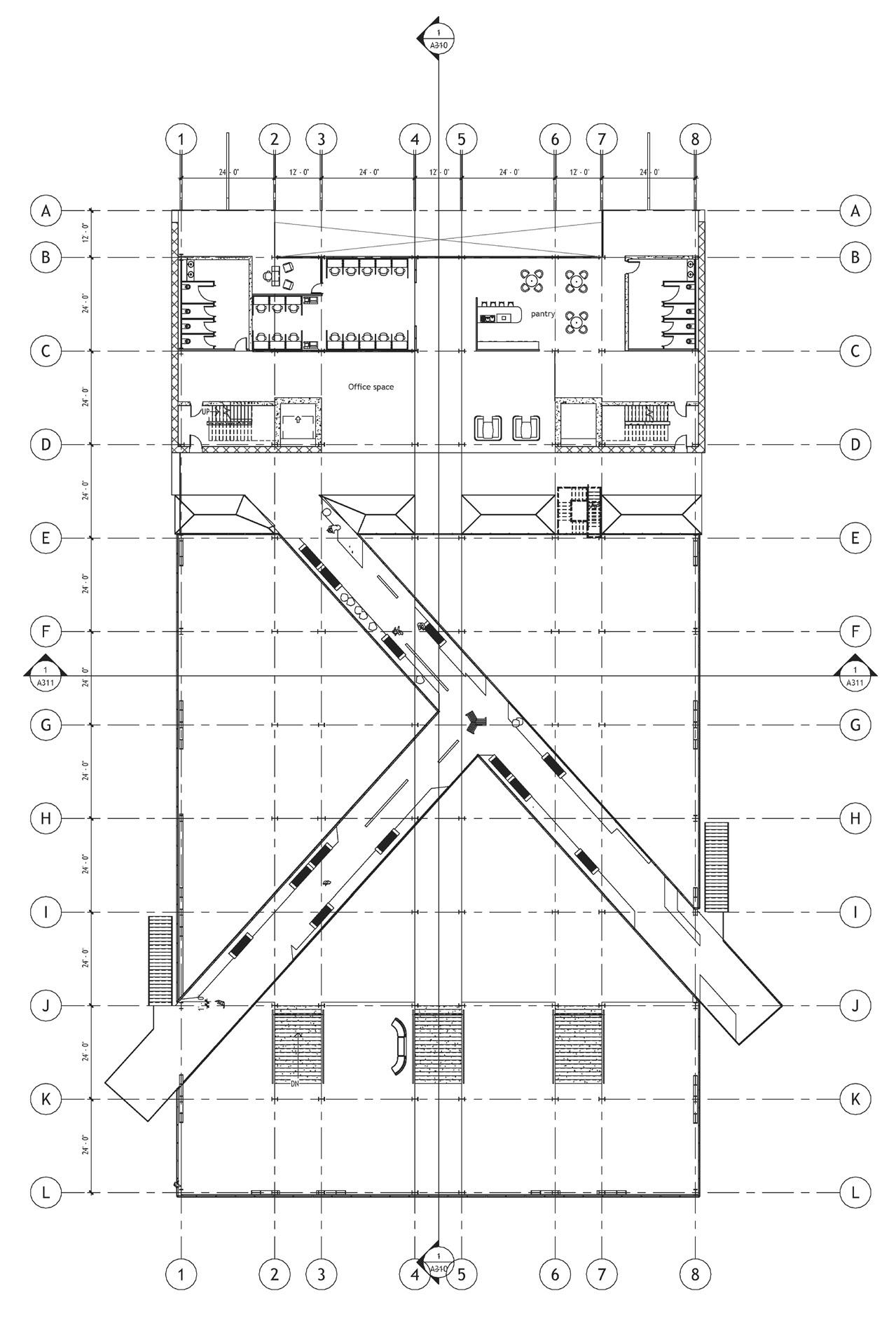
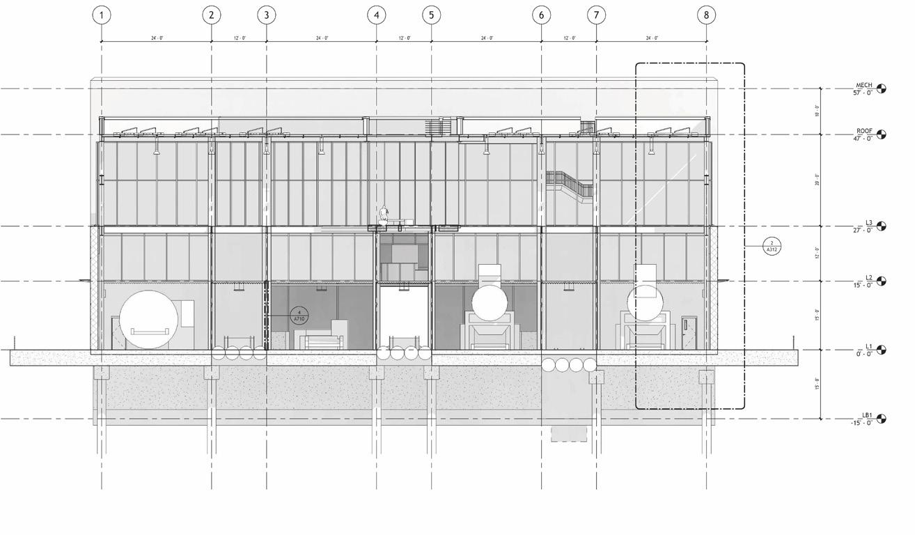
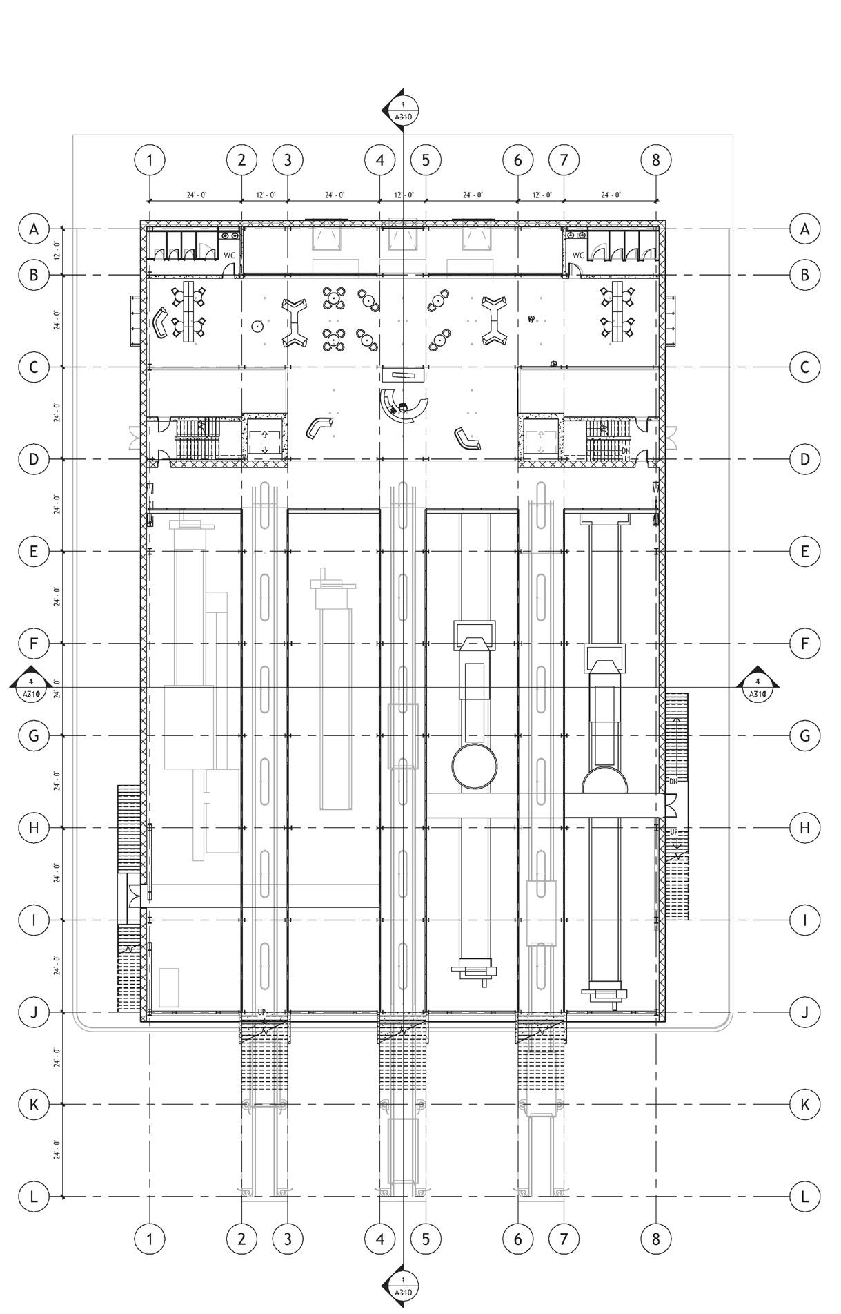
06 TECH PROJECT

Location: Mahatten, New York

Project type: Factory

Time Line: Sept-Dec 2023

PIER 0

A material construction waste recycling plant with the primary aim of repurposing construction debris and reintegrating them into the construction market.

Design Statement

Pier 0 is located at the end of Maiden Lane, adjacent to pier 15. It has been conceived as a material construction waste recycling plant with the primary aim of repurposing construction debris and reintegrating them into the construction market. This project also has a dual mission: to raise public awareness about the concerning issue of unused materials after construction and demolition in a time of escalating consumption rates.

LV2 PLAN

the building's program encompasses an art exhibition area, a public indoor plaza, and a window that links the public to the recycling factory floor. Within the industrial program, materials are separated and sorted, aggregates are processed

LV3 PLAN

serving as a public exhibition and performance space that highlights the industrial character of the environment. The hanging corridors are lined with glazed walls, symbolizing transparency in the material's journey within the urban landscape.

Sustainability

Our design's sustainability features encompass various elements, such as cross ventilation for natural cooling using operable windows and louvers, passive solar shading to optimize sunlight, geothermal water heat pumps powered by rainwater collection, and pv panels installed on the roof. Furthermore, the building's very structure incorporates the recycling of construction waste, effectively counterbalancing its own carbon footprint.

OTHER WORKS

RECALL OF SEA

Urban Design

sustainability

The work is a waterfront built on the newly filled ground in Macau. In order to attract more tourists, the left part of the base is mainly designed to be commercial area with a swimming pool deep underwater, the right part is mainly occupied by casinos and amusement parks, and the far right part is the corresponding area, which is mainly used to build monomer of underwater theater.

OTHER WORKS

THE SHELTER ABOVE SEA

Skyscraper sustainability

Due to global warming, the rising sea level has caused a large number of natural disasters and cities been flooded. Based on this trend, it is predicted that in the future we will have to move out of the land and live on the sea. The project was built on the basis of the gradual submersion of land cities and the needs of creation of new cities on the sea.

The main function of the offshore part of the building is housing so as to meet the living needs of a large number of people, and it is placed on the water to meet the lighting needs. The top platform is a sky farm.

OTHER WORKS

RECALL OF THE MINE

M useum interior

Re-use

This project is designed based on Lavadia. The region once flourished for its mineral resources, but it is gradually decaying due to over-exploitation. To develop and promote the local declining mining culture, the building will be transformed into a comprehensive building with an ore museum as the main body and an entertainment function as the supplement.

Mandara Spa

Turn static files into dynamic content formats.

Create a flipbook
Issuu converts static files into: digital portfolios, online yearbooks, online catalogs, digital photo albums and more. Sign up and create your flipbook.
Portfolio Shaoyu Chen 2025 by Shaoyu Chen - Issuu