Casual Dining and Kitchen Renovation Project

Page 1


THE MERION CRICKET CLUB

CASUAL DINING & KITCHEN RENOVATION PROJECT

INTRODUCTION

The Board of Government is pleased to present the comprehensive $18.5 million Casual Dining & Kitchen Renovation Project for member consideration and approval. This transformative investment will modernize our aging kitchen infrastructure, enhance our dining facilities, and position the Club for continued growth and success over the next 15 years.

This project requires membership approval as it exceeds 15% ($5.7 million) of the total members’ equity of the Club. A formal vote will be held on January 18, 2026.

WHY THIS PROJECT IS NEEDED

Aging Infrastructure

Our kitchens were last renovated in 2007 when the Cricket Room was relocated upstairs. After nearly 20 years of service, these kitchens will have produced approximately 2.5 million meals and have reached end of life. The equipment is failing and requires replacement. Currently, our kitchens produce 125,000+ meals annually across three separate kitchen facilities on three different levels, a configuration that creates operational inefficiencies and storage challenges.

Member Priorities

In our most recent member survey, 97% of the membership identified casual dining as the most important aspect of

their club experience. This project directly addresses that priority.

Over the past 10-15 years, we have witnessed a dramatic shift in dining patterns:

• Cricket Room: Declined by 20,000 meals annually

• Cricket Bar and Courtside Café: Experienced a combined increase of 20,000 meals annually

• Courtside Café: The only restaurant showing year-overyear growth for 15 consecutive years

This project responds to these trends by significantly expanding our casual dining capacity and modernizing our infrastructure to support the way members use the Club today.

We thank you for reviewing this information and invite you to connect with any Board members or members of the management team. And, if you have not had the chance, we encourage you to take one of the Behind The Scenes Tours.

Finally, we ask for your support of this plan. It is vital to member engagement and our continued success.

Sincerely,

Board of Government

STRATEGIC OVERSIGHT

PLANNING COMMITTEE AND TEAM

Long-Range Planning Committee

PRIORITIZING CAMPUS NEEDS

• Steve Kelly, Chair

• Lin Buck

• Thomas Carr

• Beverly Carroll

• Dawn Crowder

• Doug DiSesa

• Ali Farrell

• Jim Greenfield

• Tracy Greer

• Jennifer Kinkead

• Lauren Royer

• Lisa Stokes

• Carter Williams

Dining Steering Committee

PROJECT SPECIFIC GUIDANCE

• Tracy Greer, Chair

• Beverly Carroll

• Steve Kelly

• Jennie Seward

• Carter Williams

MCC Staff

PROJECT DETAILS

• Caleb Tindall, GM/COO

• Danny Profita, Executive Chef

• Michael Collins, Assistant GM

• Jennifer Swney, Director of Clubhouse Operations

• Michelle Gloviak, CFO

Planning Team

• Rogers McCagg Architects

• Christopher M. McCagg, Owner, and Michael G. Tierney, Principal

• McMahon Group

• Frank Vain, Chairman

• Sub-consultants

• Foodservice Consulting: Clevenger Frable & LaVallee

• Mechanical, Electrical & Plumbing Engineers: IMEG

• Structural Engineers: Keast & Hood

• W.S. Cumby

• Construction & Budgeting

MISSION & VISION, STRATEGIC CONTEXT

MISSION

The primary reasons why the Club exists:

The Merion Cricket Club is a forward-looking, family-oriented club established in 1865 to provide its members with excellent facilities and programs. The Club encourages all levels of participation in sports and other activities, while at the same time enabling its members to socialize in an attractive environment with exceptional food and beverage service. Merion conducts itself with honor and integrity in all its endeavors and is proud of its history and tradition.

VISION

What the Club strives to become:

“…to be a pre-eminent family-focused club meeting the multi-generational desires of our membership, including excellent dining, socializing, health and wellness opportunities and an array of athletic activities for all ages and skill levels; highlighted by our nationally recognized tennis and squash programs.”

Strategic Context

This renovation aligns with the strategic plan developed with the McMahon Group beginning in 2012, which has successfully guided the Club through a period of significant growth and vitality. The plan emphasizes:

• Blending tradition with modern, relevant member experiences

• Continuous investment to maintain and enhance facilities

• Expanding programs and activities that drive member engagement

• Meeting the evolving needs of current and future generations

Following successful investments in fitness and wellness, aquatics, and racquet sports facilities, we are returning—after 20 years—to address our dining and social spaces, which impact every member.

RESULTS OF STRATEGIC PLAN & TAILWINDS SUPPORTING PRIVATE

Results of Strategic Plan

Tailwinds Supporting Private Clubs

Private clubs are currently enjoying record demand and activity, buoyed by several powerful societal trends. The desire for places where families can gather has never been stronger, complemented by a broader preference for membership organizations that offer community and belonging. There’s also heightened interest in personal well-being and outdoor recreation, making clubs with diverse amenities particularly attractive. The continued wealth concentration in the upper income strata provides a robust pool of

prospective members who can afford and value the club experience. Additionally, increased utilization stems from flexible work policies that allow members to visit during previously unavailable hours, effectively extending the club’s prime time throughout the week. Finally, favorable demographics—including aging baby boomers seeking social connections and younger families looking for multigenerational gathering spaces—create a strong foundation for sustained membership interest in the years ahead.

THE RETURN ON EXPERIENCE CYCLE

Increasing Net Worth & Relevance

If you build the right things, they will come

MEMBERS Must constantly INVEST in the Club to Drive the Cycle of Growth

Private clubs that commit to continual capital investment create a powerful virtuous cycle that strengthens their position and financial health. When clubs invest in broader amenities and attractive facilities, they directly enhance the member experience, leading to increased member satisfaction and heightened interest among prospective members. This elevated demand allows clubs to command higher initiation fees without dampening interest in joining—a clear market signal of the club’s value proposition. The result is increased capital income from both joining fees and capital dues, which generates a higher return on invested

Decreasing Net Worth & Relevance

If you don’t build it, they will never come

capital than clubs that defer or minimize improvements. Most importantly, this cycle ensures the club remains relevant and attractive to current and future generations of members, creating a sustainable model where strategic investment doesn’t merely preserve value but actively creates it. Clubs that embrace this approach position themselves not as legacy institutions struggling to maintain relevance, but as dynamic organizations that evolve with their membership while maintaining the traditions and community that make private clubs uniquely valuable.

The Value of Continual Capital Investment

THE POWERFUL IMPACT OF DINING ON MEMBER SATISFACTION AND ENGAGEMENT

In the Club Industry, Facility Investments Are At An All-Time High

Dining stands as the most important contributor to member satisfaction across the private club industry, primarily because it is the most universal amenity in its appeal and use. Unlike tennis or fitness facilities that attract specific segments of the membership, nearly every member dines at the club, making it a shared touchpoint that shapes perceptions of quality and value.

However, this universality also makes dining the most challenging aspect to get right, as confirmed by McMahon Group’s extensive research across more than 1,600 member satisfaction surveys. The data consistently reveals that dining programs generate both the highest praise and the sharpest criticism, often within the same club.

Compounding this challenge is the fact that dining preferences are rapidly evolving, driven by broader cultural shifts toward casual experiences, healthconscious choices, and authentic, locally-sourced ingredients. These changing expectations present clubs with both challenges and opportunities — challenges in meeting diverse and evolving tastes, but opportunities to differentiate themselves by delivering exceptional dining experiences that keep members engaged, satisfied, and eager to return again and again.

THE DATA ON DINING

McMahon

Group’s Pulse Survey Data Is Clear: Members Want Good Dining…

Dining’s importance is even higher for subsets (younger members, new members, families, females) that are critical for continuing to attract and stay relevant for the next generation of membership.

FOOD & BEVERAGE TRENDS, OVERARCHING OBJECTIVES

Food & Beverage Trends The Evolution of Club Dining: Embracing Modern Trends

Club dining has long been associated with formality and tradition, often carrying connotations of stuffiness that defined the exclusive dining experience of previous generations. However, as contemporary life has embraced a declining attitude toward rigid formality, private clubs are responding by reimagining their dining programs with more relaxed styles and innovative concepts.

Today’s club members seek a different kind of dining experience—one that balances casual comfort with exceptional quality. There’s a growing desire for food and service that feels fast and easy without compromising excellence. Clubs are meeting this demand by creating versatile spaces that blur the boundaries between indoors and outdoors, with bars and dining areas that adapt to different moods and occasions.

The focus on ingredients has also shifted dramatically. Fresh, sustainable sourcing has become paramount, with clubs prioritizing local and regional purveyors to deliver authentic flavors while supporting their communities. This farm-to-table approach aligns naturally with another significant trend: the increased demand for healthy menu options that allow members to maintain their wellness goals without sacrificing the pleasure of dining out.

These changes reflect a broader transformation in how clubs view their role in members’ lives—not as bastions of unchanging tradition, but as dynamic spaces that honor heritage while embracing the values and lifestyles of modern membership.

Overarching Goals for the Casual Dining & Kitchen Renovation

This project is designed to best position our food and beverage programs for the next 15 years, with full anticipation that member interest in casual dining preferences will continue to grow and evolve. By investing strategically now, we ensure our facilities and operations remain relevant and responsive to changing expectations well into the future.

Central to this initiative is our commitment to provide a more timely, consistent, and high-quality dining experience for all members, regardless of their dining preference. Whether members choose formal or casual settings, they should encounter the same excellence in cuisine, service, and ambiance that defines our club’s standards.

Finally, this project addresses critical operational needs by improving flow and processes throughout our kitchen and service areas. These enhancements will not only create a better working environment for our culinary and service teams but will also achieve meaningful operational efficiencies that support long-term sustainability. By streamlining systems and modernizing infrastructure, we can deliver superior experiences while operating more effectively and economically.

SETTING THE TABLE

SETTING THE TABLE

Shift in Dining Patterns

Over the past 10-15 years, we have witnessed a dramatic shift in dining patterns:

• Cricket Room: Declined by 20,000 meals annually

• Cricket Bar and Courtside Café: Experienced a combined increase of 20,000 meals annually

• Courtside Café: The only restaurant showing year-over-year growth for 15 consecutive years

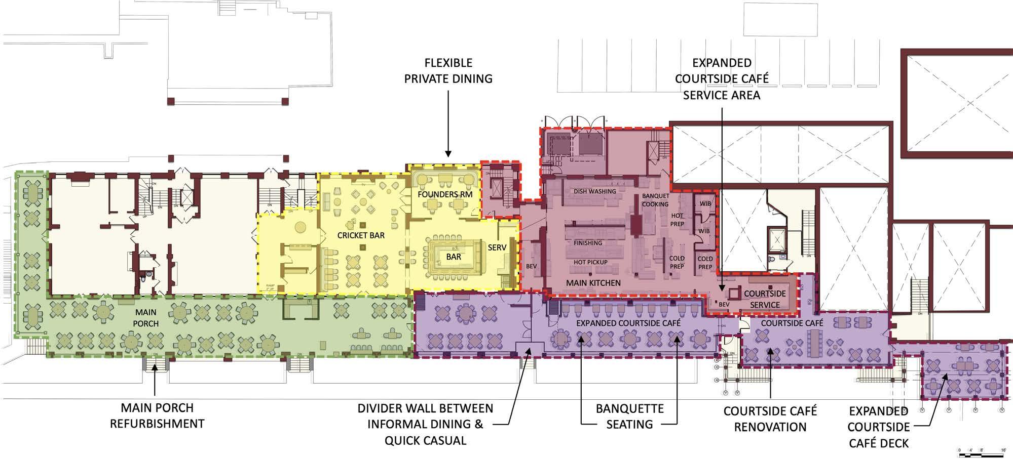
PROJECT SCOPE AND DESIGN PRINCIPLES

Project Scope

CORE AREAS OF FOCUS

• Multi-Kitchen Renovation

• Banquet Kitchen

• Main Kitchen

• Production Kitchen

• Cricket Room

• Bar

• Founders’ Room

• Porch

• Courtside Cafe

• Service Area

• Deck

ADDITIONAL AREAS

• Main Porch

• Aesthetic upgrades

• Integrated Heat

• Trash/Compactor

• Reception Desk

Design Principles

Flexibility as Foundation

The design prioritizes operational flexibility to accommodate the Club’s diverse and changing daily activities. Our Architects Rogers McCagg’s 30 years of experience specializing in club kitchens has taught them that flexibility is essential to exceptional member experiences. This renovation is designed to best position our Club’s Food & Beverage programs for the next 15 years.

Operations Drive Design

While many firms can create beautiful spaces, this project starts with solving operational challenges first. By developing infrastructure and support systems that give staff the tools they need to excel and processes to improve operational efficiencies, we ensure the best possible member experience.

Timeless Integration

The design draws from Club history, incorporating details and patterns that create solutions feeling as though they’ve always been part of the Club. The rich millwork, wood tones, and architectural character that define The Merion Cricket Club will be preserved and enhanced.

Capacity with Intimacy

Expansions carefully balance increased capacity with the intimate, welcoming character that members value. The Cricket Bar, for example, doubles in size while maintaining the charm that makes it special.

MAIN KITCHEN

MAIN KITCHEN TRANSFORMATION

The centerpiece of this project involves a complete reconfiguration of the Main Kitchen, including:

• Structural Modification: Removing the lower portion of a core structural wall to enable a more efficient layout

• Kitchen Consolidation: Relocating the Production Kitchen function from the basement into the Main Kitchen, concentrating equipment and labor where needed during peak service times

• Optimized Workflow: Rotating the cooking line 90 degrees to align with staff traffic flow, dramatically improving efficiency

• Modern Equipment: Complete replacement with state-ofthe-art kitchen technology that offers significantly enhanced capabilities compared to 20-year-old equipment

• Enhanced Storage: Strategic placement of storage where it’s needed most, eliminating the need for staff to constantly travel between floors

CASUAL DINING

• Reimagine Cricket Bar seating & new bar location while keeping flexibility, increasing capacity and improving the member experience

• Replace NanaWall

• Expand Courtside Café service and interior dining areas to enhance the member experience

• Transform Courtside Café Deck into a covered convertible weather protected outdoor space

• Refurbish Main Porch /aesthetic upgrades, integrate wait stations and infrared heating

CRICKET AND FOUNDERS’ ROOMS

CRICKET BAR / DINING:

• Relocated & expanded bar

• New seating arrangement

• Visual access to Founders’ Room from bar, Fireplace Lounge area & dining

• Addition of glazed trophy case

• Extension of existing wood aesthetic to new bar

• Enhanced bar service with larger layout

• Addition of wine display/storage

FOUNDERS’ ROOM:

• New seating / additional dining

• Visual & open connection to bar dining and Lounge area

• Flexibility for private dining by continuing to have the ability to separate from bar area & have direct access to kitchen

• Extension of existing wood aesthetic to the Founders’ Room

VIEW TOWARDS FOUNDERS’ ROOM/BAR

VIEW TOWARDS ENTRY

COURTSIDE CAFÉ

• Bar Area Redesign: Upgrading the space that evolved from a simple snack bar into one of our most popular restaurants, but was never designed for that purpose

• Increased Capacity: Expanding service capabilities and improving connection to the main kitchen

• Expanded Deck: Extending the outdoor deck toward the grass courts to add another row of tables

• Season Extension: Adding retractable protective panels and integrated heaters to extend use into shoulder seasons

PORCH/COURTSIDE DETAILS

EXTENDED COURTSIDE VIEW TOWARDS COURTSIDE CAFÉ DECK

COURTSIDE CAFÉ CONVERTIBLE DECK

• A full interior demolition and reconstruction of existing Banquet Kitchen

BANQUET KITCHEN

• Introduction of a pastry / bakeshop component

• Total modernization with proper ventilation, plumbing, electrical infrastructure, and new equipment

ADDITIONAL RENOVATION AREAS

Production Kitchen, Staff Lounge, & Support Facility

• Interior demolition and rebuild renovation of existing Production Kitchen and Staff Pantry/Lounge including new equipment and improved layout

• New kitchen equipment & Staff Pantry equipment

• Addition of production kitchen cooler

• Replacement of existing cooler(s) / freezer(s) including beer cooler & soda system in dry storage

• New finishes throughout

• Back of house improvements: doubled dumpster area capacity, enhanced Staff Lounge, and strategically located storage

FINANCIAL PLAN

PROJECT BUDGET: $18.5 MILLION

This comprehensive budget includes:

• Complete design development with detailed drawings

• All kitchen equipment and renovation work

• Structural modifications

• MEP (mechanical, electrical, plumbing) systems

• $1 million construction contingency

• $1 million owner contingency

WHY WE HAVE CONFIDENCE IN THIS BUDGET

1. Experienced Design Team: Rogers McCagg Architects specialize in private club kitchen renovations and offer extensive industry expertise

2. Knowledgeable Consultants: Our MEP and structural engineers worked on the 2007 renovation—they understand the building’s infrastructure and have minimized unexpected challenges

3. Proven Construction Partner: W.S. Cumby served as the construction management firm for our Campus Master Plan and Men’s Locker Room building. They understand historic structures and our expectations

4. Design Development Complete: We have reached a level of detail that provides accurate cost estimates, not preliminary

FUNDING MECHANISM: SMOOTH TRANSITION

The Approach

All members currently pay a special assessment that was implemented eight years ago to fund the Campus Master Plan. This assessment expires December 31, 2026.

The Transition

• December 31, 2026: Current special assessment ends

• January 1, 2027: Permanent capital dues begin at similar levels

This permanent capital dues structure will fund:

• Outstanding debt on the Club’s balance sheet

• Debt service for this kitchen and dining project

• All future capital needs of the Club Example: Athletic Family 40 - 69, highest dues category

• Current monthly special assessment: $121

• Proposed monthly capital dues (January 1, 2027): $125

• Net change in total annual cost of membership: Minimal—the transition is designed to be smooth with no step increases or separate assessments

This “smoothing” approach ensures predictable, consistent dues without surprises.

FINANCIAL PLAN

FINANCIAL MODEL APPENDIX

Financial Model Appendix

End Special Assessment December 31, 2026, as originally communicated to Membership

Introduce ongoing Capital Dues* January 1, 2027

• 2025 6.5% dues increase

• 2026 7% dues increase

• 2027 Dues adjusted to meet operational needs, Special Assessment Ends, Introduce Annual Capital Dues

*Capital Dues would be designated funds shown separately on member statements and would be evaluated annually based on capital needs

Financial Overview

The Club currently carries a total debt of $14.5 million, structured across two separate obligations. The first is a $1.3 million loan at 4.25% interest, which will be paid off in 2026. The second and larger portion consists of $13.2 million at a 3.89% SWAP rate, with a balloon payment of $8 million due in 2035.

Looking ahead, our projected debt position shows $12.7 million in January 2027, rising to $29 million by January 2028 as we execute this capital project. Despite this increase, the Club maintains a strong financial foundation with a debt-to-equity ratio of .699:1. This balanced capital structure—with a ratio of less than 1:1— is a clear sign of financial stability and demonstrates that the Club’s assets comfortably exceed its liabilities. This conservative financial position provides both the capacity and flexibility to undertake strategic investments while preserving our long-term fiscal health.

FINANCIAL MODEL APPENDIX & TIMELINE FOR APPROVAL

Project Financing Assumptions

• Finance Committee is having active discussions at their meetings and with our bank

• 18-month interest only period during construction

• Combination of two types of financing

• Conventional debt allows for additional principal payments when excess cash is available

• SWAP agreement does not allow for pre-payment, but does reduce the artificially fixed interest rate

• 15-year amortization

• Amortization period in alignment of useful life of the asset

• 6.5% interest rate

• Rate assumed in preliminary conversations with our bank

• Subject to change

• We are in “replenishment mode” not growth mode

• This means the current membership needs to fund the project – not funded through entrance fee capital by growing the membership

• We lose (on average) 65 memberships each year and need to replenish a similar amount just to remain equal

Membership Assumptions

It’s important to understand that we are currently operating in “replenishment mode” rather than growth mode. This distinction has significant implications for how we approach this capital project. In replenishment mode, the current membership base needs to fund the project through dues, assessments, or financing—not through entrance fee capital generated by expanding our membership roster.

The reality of our membership dynamics is straightforward: we lose an average of 65 memberships each year through natural attrition, relocations, and lifestyle changes. To maintain our current membership level, we need to replenish a similar number annually just to remain equal. This steady-state approach means we cannot rely on membership growth as a funding strategy for capital improvements. Instead, we must plan with the understanding that our existing members are both the beneficiaries of these enhancements and the financial foundation that makes them possible.

Timeline for Approval

CONSTRUCTION SEQUENCING & TIMELINE AND IMPACT

Construction Sequencing

Timeline and Impact

14-MONTH PROJECT DURATION

The project is structured to minimize disruption to member activities while allowing efficient construction:

• Months 1-4 (Winter/Early Spring)

• Renovate lower level production kitchen and upstairs banquet kitchen

• Maintain normal dining operations on main level

• Months 5-10 (Late Spring through Fall)

• Close main level dining (day after Mother’s Day through day before Thanksgiving)

• Renovate main kitchen, Cricket Bar, Cricket Porch, and Courtside Café

• Months 11-14 (Late Fall/Winter)

• Final phases and completion

MAINTAINING CLUB OPERATIONS

We are committed to keeping the Club open and operational throughout construction:

• During Summer Closure (6 months)

• Bistro available for dining

• Main Porch and Furness Room maintained for member service

• All major Club member programming continues (Lobsters on the Lawn, Summer Celebration, Easter Bunny Brunch, Mother’s Day, etc.)

• No private events or catering (weddings, private parties) during this year

MEMBER ENGAGEMENT & CONCLUSION

Member Engagement

• Behind-the-Scenes Tours: Continuing twice weekly through January to help members understand the scope and need for this project (over 300 members have already participated)

• Project Booklet: Comprehensive information package to be distributed in December 2025

• Final Town Hall Recording: Available on the Club website

• Formal Approval Process

• Board Approval: Unanimously approved October 2, 2025

• Member Vote: January 18, 2026

• Project Commencement: Upon member approval, targeting construction start to align with optimal timing

Conclusion

This $18.5 million investment represents a once-in-a-generation opportunity to transform our dining program while addressing critical infrastructure needs. By replacing end-of-life kitchens that will have served 2.5 million meals, expanding our most popular casual dining venues, and implementing modern, efficient operational systems, we position The Merion Cricket Club for another 15-20 years of excellence.

The project directly responds to member priorities, supports our strategic vision, and provides the financial structure to proceed without assessments or step increases in dues. Most importantly, it enhances the club experience that 97% of our members identified as their top priority: exceptional dining.

We look forward to your questions, feedback, and support as we move toward the January vote.

Turn static files into dynamic content formats.

Create a flipbook
Issuu converts static files into: digital portfolios, online yearbooks, online catalogs, digital photo albums and more. Sign up and create your flipbook.