Exhibition Boards Spring 2025

Page 1


Introduction: Shaping the future of Buckskin & South Ham together

Whether it’s a comfortable and affordable home, a safe place to play, relax, grow, and be healthy, a place to learn, to build a business, or simply connect with your neighbours, Sovereign Network Group, in partnership with placemaking house builder Hill Group, want to invest to bring meaningful change to the area and increase opportunities for everyone in Buckskin and South Ham.

We want to talk to you about changes that impact where you live. This includes:

• Improvements to existing housing

• The introduction of new housing

• Changes to the layout of roads, footpaths and cycle lanes

• Introduction of new green spaces

• The introduction of new community facilities, shops and amenities.

Developing a place vision with you:

In this exhibition you will view the latest ideas on how to improve the neighbourhoods of South Ham and Buckskin, you will be able to see how your ideas and feedback has shaped these ideas and the potential process for change.

From your feedback over the last year, we created four shared ambitions for the area. These ambitions were born out of your aspirations along with our aims to improve the area. Together, this has informed a place vision for the future of South Ham and Buckskin.

Look at how your feedback has directly shaped our place vision:

We

New and improved homes

The future vision will mean changes to how people experience the area but may also mean changes to people’s homes. As part of the plan, we have identified areas within South Ham and Buckskin where existing homes would benefit from improvements, but also areas where it might make more sense to replace existing homes with new ones.

As part of any redevelopment plans we’d assist any individuals affected to understand their needs and

Rented Sovereign Network Group Customers

Home Loss payment

Reasonable relocation costs

Removals arranged and paid for by Sovereign Network Group

Aids and adaptations arranged and paid for by Sovereign Network Group

A replacement home

Current rent structure (e.g., social rent) retained

One move only where feasible

One to one personalised housing needs support

A staged approach:

circumstances and support them to find a suitable new home. This would happen in stages, not all at once, and we will make sure these residents have plenty of advance notice.

We will make sure residents are fully supported through this process. The below sets out our principles for the Resident Offer. Conditions and eligibility criteria apply:

Homeowners

Home Loss payment

Reasonable relocation costs

Legal fees, stamp duty and costs paid

Professional independent valuation

Shared equity model with rent free share

Shared ownership or rental option

One to one personalised financial advice paid

Any potential regeneration of Buckskin and South Ham could take many years, and is likely to be completed in stages. Support with costs and compensation would be offered to residents at the point at which they are asked to move due to redevelopment. Some criteria around the type of tenure you hold and length of time you’ve lived in your home will apply.

If you choose to move home before your home is within an active rehousing area then the resident offer would not normally apply to you. We will consider purchasing a limited

Non-resident Home Owners

Basic loss payment

Legal fees, stamp duty and costs paid

Professional independent valuation

One-to-one personalised financial advice paid

number of homes in specific locations at market value, please speak to us if you’re considering selling.

If you’re an SNG customer then you still have the option to apply for a move through Basingstoke HomeBid or find an exchange partner through HomeSwapper or other means.

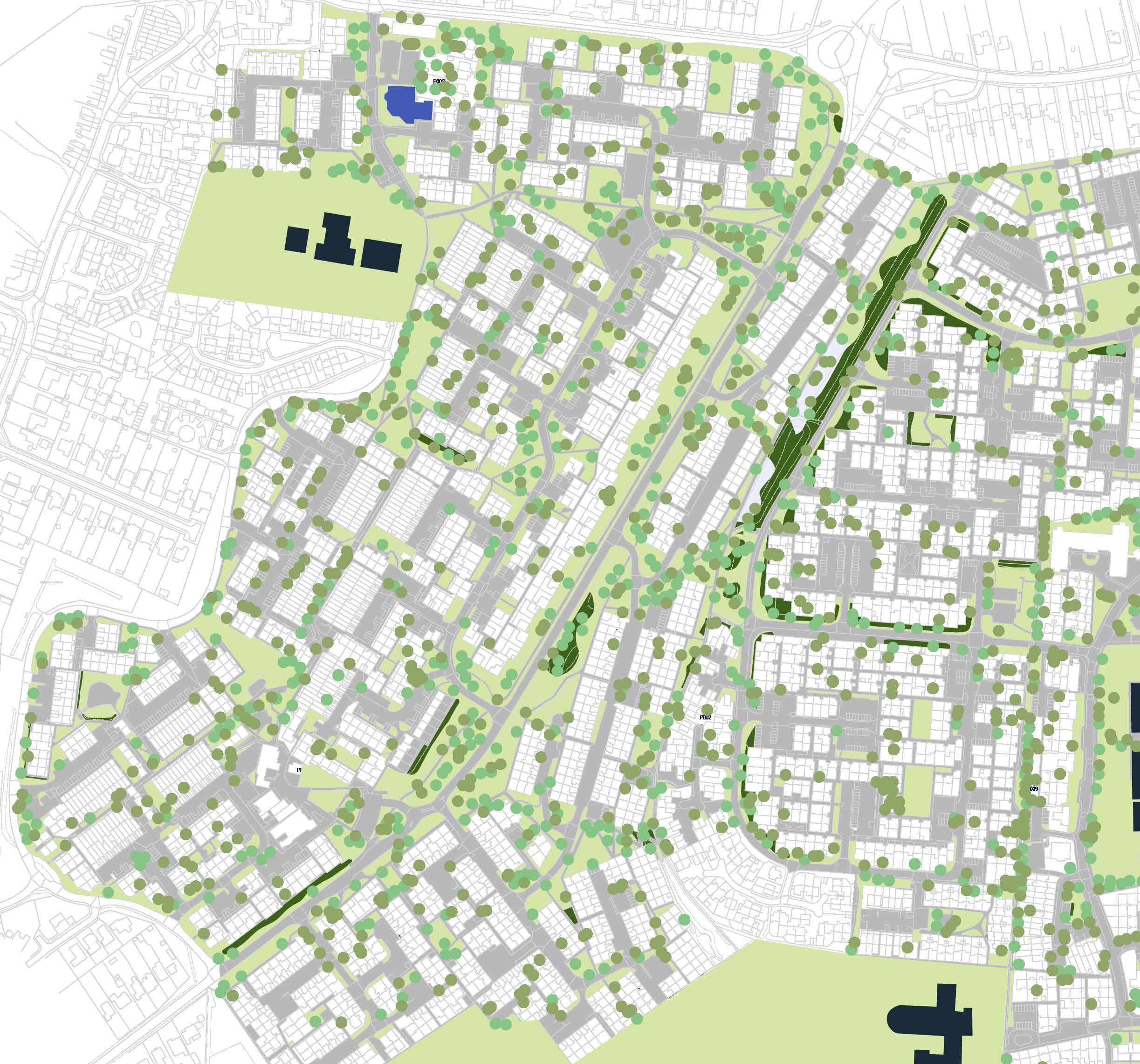
Different neighbourhoods, one community

Masterplan Place Vision

We have listened and created ideas for great places to live, set within lots of green space, with key services and shops on your doorstep- just as South Ham and Buckskin were originally imagined.

The following boards look at the area in neighbourhoods, recognising what you’ve said and what could be improved, ensuring that changes reflect and enhance local identities, values and communities’ needs.

Understanding density:

We are proposing denser housing close to our local centres and along a central route that connects Buckskin and South Ham.

By denser housing we are referring to apartments and maisonettes/town houses within mixed height buildings up to 5 storeys. This would provide a mutually beneficial layout. Commercial tenants would benefit from an increase in local customers to sustain their businesses.

Residents would have easy access to shops and services that meet their needs, close to their homes. This is part of our vision to build a neighbourhood where everything you need for day-to-day life is accessible within a 15 minute walk.

Buckskin

You have told us...

Buckskin has a strong sense of community with the Ridgeway, Evangelical church and Chiltern Primary school.

There are issues with maintaining some properties in the area such as the bungalows off Buckskin Lane

Buckskin Lane can feel dangerous and local walking routes are not maintained well

There could be better public transport routes to the area

The area is lacking a pharmacy or healthcare facilities

You would

Many of the homes in Buckskin are expensive to maintain. This particularly true in the Southern part of Buckskin around Berwyn Close

The bungalows between Grampian Way and Buckskin Lane are very energy inefficient and would be difficult to improve due to the construction method and pitch of the roofs. This area has also been subject to flooding in the past

The area has a complicated layout which lacks clear, safe streets. The links out to the wider area for walking, cycling and by bus could also be much clearer and safer

There is a good quantity of green space, but it is fragmented and much of it doesn’t offer

or

Buckskin

Ideas for change:

Introduction:

In Buckskin we want to celebrate the nearby countryside with a new nature park, create more housing for local people including families who attend the local primary schools and improve connections to Manydown and Kempshott, South Ham and further afield to the town centre.

Renewed homes and streets where people feel safe:

• A mixture of private and affordable homes

• Apartments and 5/6 storey buildings creating onlooking over the park

• Larger family style homes with plenty of parking

• Improved access to the Buckskin Evangelical Church and Chiltern Primary School and Star day nursery

• Plenty of parking

• Improved access to South Ham over Buckskin Lane

• Improved access to local parks from all homes

A prosperous community with strong links to a growing economy:

• The area will be well served by a bus stop within a ten minute walk from everyone’s home, making convenient access to town and the wider area for work

• Well-stocked small shops

• A community space will also provide a more informal meeting point and hang out space

Ambition 1
Ambition 2

Buckskin

Ideas for change:

A sustainable, healthy and resilient neighbourhood:

Ambition 4

Ambition 3 A proud and empowered community:

• Improved paths incorporating green verges, flood prevention measures such as swales (see picture), trees and seating

• Improved walking and cycling routes to Manydown and countryside to the west of the neighbourhood

• Improved walking and cycling routes to Stratton Park

• Pedestrianised zone outside Chiltern Primary School making it safer and easier for children to get to school

• A brand new eco park ‘Buckskin Park’ focusing on nature and wildlife with new habitats and areas for discovery and environmental learning:

• Introduction of new flood prevention measures such as ponds to hold flood water

• New discovery trails with information about different birds, animals, insects and plants in the area

• Community facilities within the park

• A multi-use community space with a focus on community activities, wellbeing and green discovery & learning. The buildings would be in a green setting and link closely to a new Buckskin Park

• A celebration of existing provision by Westside Community Association, the Buckskin Evangelical Church and the community garden at Stratton Park by Inspero

South Ham Extension

You have told us...

The many back alleys and small paths are confusing to navigate and can make it feel unsafe at night

The area around Burnaby shops can feel unwelcoming and that some avoid it

You would like better connections to the rest of South Ham and Buckskin and to the wider area

Stratton Park is well loved and should be better connected to the area

There are some good pedestrian routes through the area but these could be made more appealing by creating trails or things to do on the route

That the Westside Centre is greatly missed and there is a lack of things to do locally

That there is a lack of things to do locally for young people

Some buildings are in a reasonable structural condition, but the cost of planned maintenance over the next 60 years is expensive

Studio flats on Pinkerton and St Michaels Road do not meet modern living standards

The area west of St Michael’s Road lacks clear safe streets and links to either Buckskin or South Ham centres are poor. The design of the area means that this is difficult to improve without substantial change

The existing shops are hidden away and could relate better to major routes and to Bishop Challoner School

The Paddock Road area could be improved to address the issues around the parking courts and the pedestrian lanes. This could help to improve links between South Ham and Buckskin

South Ham Extension

Ideas for change:

Introduction:

In South Ham Extension, we will celebrate the quietness of neighbourhood living with tree lined avenues for walking and cycling, close to nearby parks and schools and great connectivity to nearby shops and leisure.

Ambition 1

Renewed homes and streets where people feel safe:

• A mixture of private and affordable homes

• 3 to 4 storey buildings along a new central walkway/ avenue connecting Buckskin and South Ham

• A simplified systems of paths removing numerous alleyways to improve safety

• Better layout to buildings with houses looking on to streets and parking at the front and private gardens at the back

• Improved layout of properties to the west of Russell Howard Park creating a more accessible system of streets

• Improved access to local parks from all homes

Ambition 2

A prosperous community with strong links to a growing economy:

• Well served by multiple bus stops within a ten minute walk, making convenient access to town and the wider area for work

• Burnaby will continue to provide a community-based convenience store

• Support for existing facilities such as the charity shops which also serves as a signposting and mutual aid hub for people living nearby

• A stop-over between Buckskin and South Ham local centres with shops and services to meet daily needs

Concept sketch for Burnaby Stopover
Views illustrating long-term vision over 20 years in the future

South Ham Extension

Ideas for change:

Ambition 3

A sustainable, healthy and resilient neighbourhood:

• 2 new small green spaces, one close to Bishop Challoner School and one close to St Peter’s Road

• Improvements to Stratton Park, building upon existing sports provision:

• new tracks for exercise

• new sports surfaces

• improved benches, seating and facilities

• Improved walking and cycling routes east/west that extend directly east to Ringway West crossover and all the way west to Chiltern Way

• Improved walking and cycling routes north/south that extend directly south to Pinkerton Way and north to Old Worting Road

• Pedestrianised zone outside Bishop Challoner School making it safer and easier for children to get to school

Ambition 4

A proud and empowered community:

In the heart of the area, with better connections. Centred between community facilities in Buckskin to the west and South Ham to the east.

South Ham

You

Our technical research has told us:

The maisonettes in this area have the highest average costs to rectify issues identified as needing attention through the stock condition surveys that were carried out

The loss of the pub represents the loss of a community facility and you would like to see a new community meeting point

That the provision of shops and things to do could be improved

That some areas feel unsafe

That the housing quality is not consistent with some feeling run-down That

EPC ratings in this neighbourhood are generally better than elsewhere in Buckskin and South Ham but there is a complicated mix of building types to deal with. Some of the homes and flats in the area are likely to be very hard to bring up to suitable long-term standards

The existing street network is clearer and safer than in other areas, but can be improved with some more focussed changes to create a clearer network

The Kings Road shops are hidden away and separated from other important community assets including the medical centre and church on Western Way

South Ham

Introduction:

In the centre of South Ham we want to enhance the close connection to Basingstoke town centre, a vibrant area that is used and visited by everyone locally, with shops and services that meet your daily needs.

Ideas for change:

Ambition 1

Renewed homes and streets where people feel safe:

• A mixture of low and medium density housing both affordable and private

• Apartment and mixed use building along a new high street on Western Way

• Retaining of street layout to the east of neighbourhood

• Improved access to Russell Howard Park and South Ham local centre

Ambition 2

A prosperous community with strong links to a growing economy:

• A new high street on Western Way creating a vibrant hub of activity serving local residents and drawing in visitors from the surrounding area

• Spaces for work and business

• Spaces for convenience shopping, leisure, culture, community

• Developed to complement the town centre and the Leisure Park

• Well served by multiple bus stops within a ten minute walk, making convenient access to town and the wider area for work

South Ham

Ideas for change:

Ambition 3

A sustainable, healthy and resilient neighbourhood:

• Green streets throughout with integrated trees, parallel parking, cycle parking and bus stops

• Improved walking and cycling to the town centre, leisure park and local retail parks

• New pedestrianised zones outside the Blue Coat School and St Anne’s primary school

• A new gateway park connecting South Ham to Basingstoke

• A series of new allotments and energy centre.

• Russell Howard Park will be greatly improved with a greater diversity of uses to better serve local people:

• Community gardens and allotments

• Play with exciting equipment

• An improved pavilion with space and facilities for events both inside and outside on the park

Ambition 4

A proud and empowered community:

A new community hub in the heart of the South Ham

Turn static files into dynamic content formats.

Create a flipbook
Issuu converts static files into: digital portfolios, online yearbooks, online catalogs, digital photo albums and more. Sign up and create your flipbook.
Exhibition Boards Spring 2025 by commonplace.is - Issuu