

Floorplan Literature


Introduction
About Beacon Prestige
Discover homes designed for exceptional value β where modern style meets a unique look and thoughtful design.
Each home showcases a family of versatile floorplans tailored to fit your lifestyle, blending comfort, character, and contemporary living.
14β X 56β
APPROX. 747 SQ. FT.
Prestige
Biloxi Light - BP14562A
(DS1007P)
Juniper Island - BP14602A (DS1008P)
2 2
14β X 60β
APPROX. 800 SQ. FT.
Fire Island - BP14643A
(DS1009P)
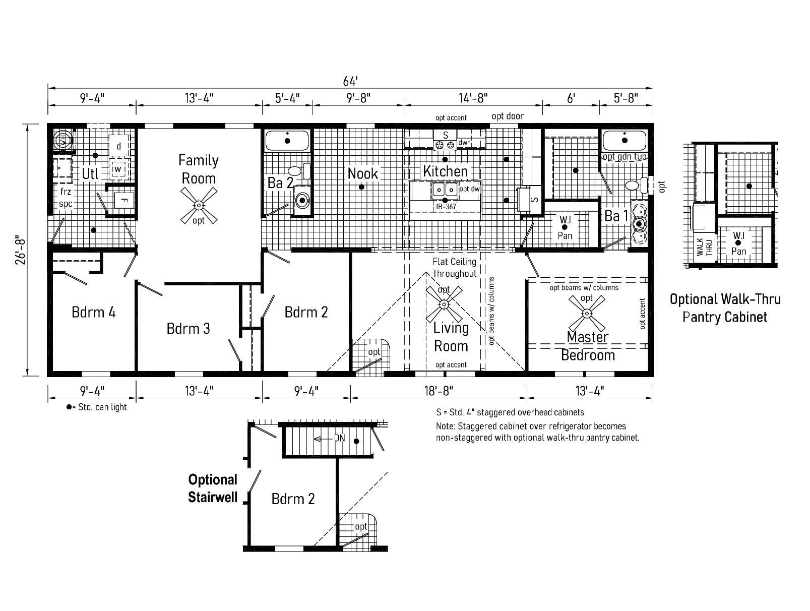
14β X 64β
APPROX. 853 SQ. FT.
Single Section
Cape Vincent - BP14663A (DS1014P) 3 2
14β X 66β
APPROX. 880 SQ. FT.
14β X 68β
APPROX. 907 SQ. FT.
Prestige
Cape Charles - BP14682A (DS1001P)

Presque Isle - BP14682B (DS1003P)
2 2
APPROX. 907 SQ. FT.
14β X 68β
Scan to Watch Video!
Erie Harbor - BP14683A (DS1010P)
Single Section
14β X 68β
APPROX. 907 SQ. FT.
Cherry Island - BP14723B (DS1005P)
3 2
APPROX. 960 SQ. FT.
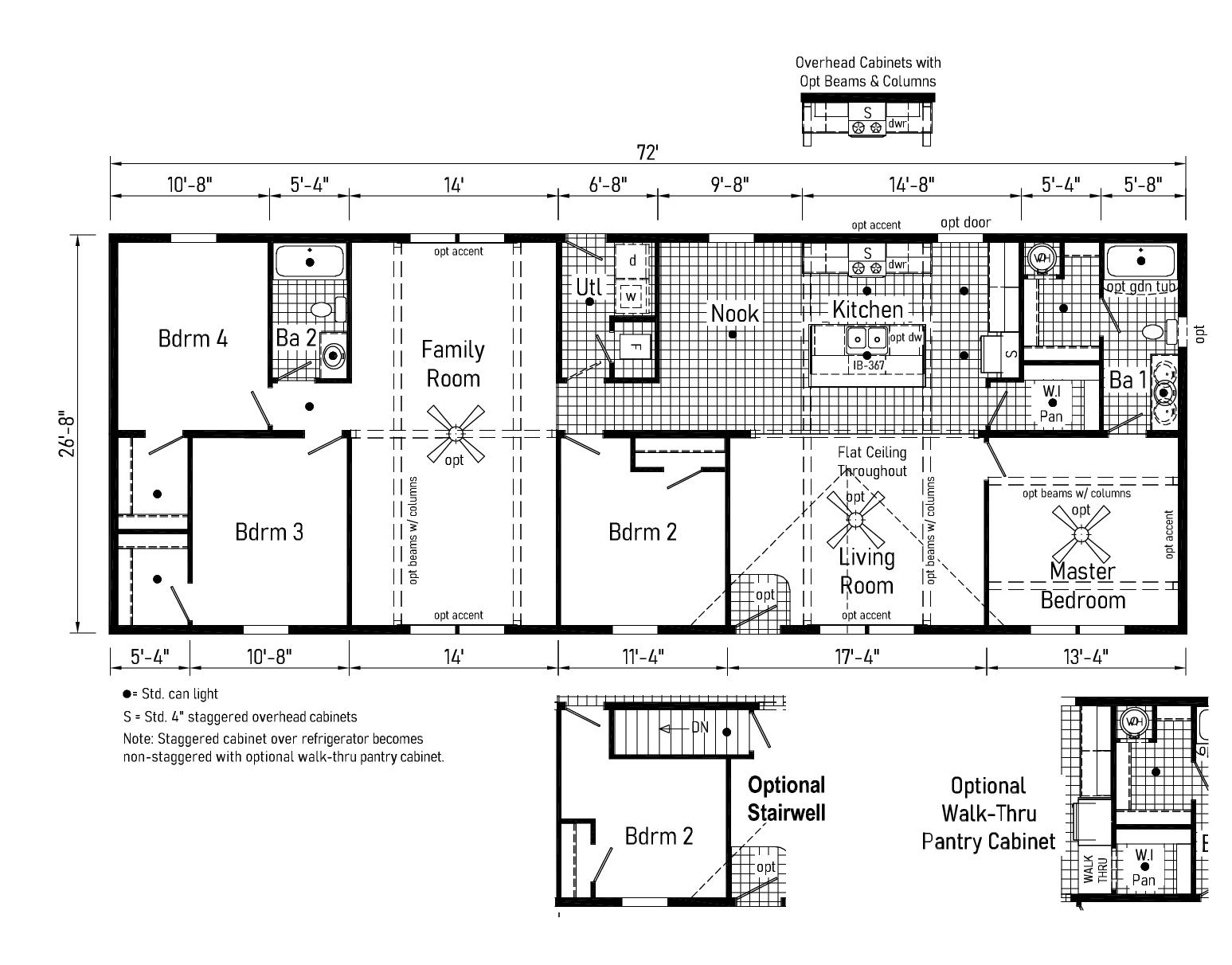
14β X 72β
14β X 76β
APPROX. 1013 SQ. FT.
Cape Hatteras - BP14763A (DS1002P)
Single Section
Grosse Point - BP14763B
3 2
14β X 76β
APPROX. 1013 SQ. FT.

Scan to Watch Video!





GROSSE POINT PHOTOS
*Please use pictures for floorplan vision only. Decors and materials used are constantly changed and improved.
APPROX. 1280 SQ. FT.
Prestige
White Shoal - BP28483C
28β X 48β

Scan to Watch Video!





WHITE SHOAL PHOTOS
*Please use pictures for floorplan vision only. Decors and materials used are constantly changed and improved.
28β X 56β
APPROX. 1493 SQ. FT.
Prestige
Port Clinton - BP28563A (DT1038P)
APPROX. 1920 SQ. FT.

28β X 72β
APPROX. 1707 SQ. FT.
Baileys Harbor - BP28644A (DT1039P)

28β X 64β

Scan to Watch Video!




BAILEYS HARBOR PHOTOS

*Please use pictures for floorplan vision only. Decors and materials used are constantly changed and improved.
APPROX. 1173 SQ. FT.
Prestige
Warrior Rock - BP28443A (DT1041P)
28β X 44β
28β X48β
APPROX. 1280 SQ. FT.
Cedar Key - BP28483B (DT1029P)

to Watch Video!



*Please use pictures for floorplan vision only. Decors and materials used are constantly changed and improved.
APPROX. 1600 SQ. FT.

28β X 60β

Scan to Watch Video!




AMELIA ISLAND PHOTOS

*Please use pictures for floorplan vision only. Decors and materials used are constantly changed and improved.
APPROX. 1387 SQ. FT.
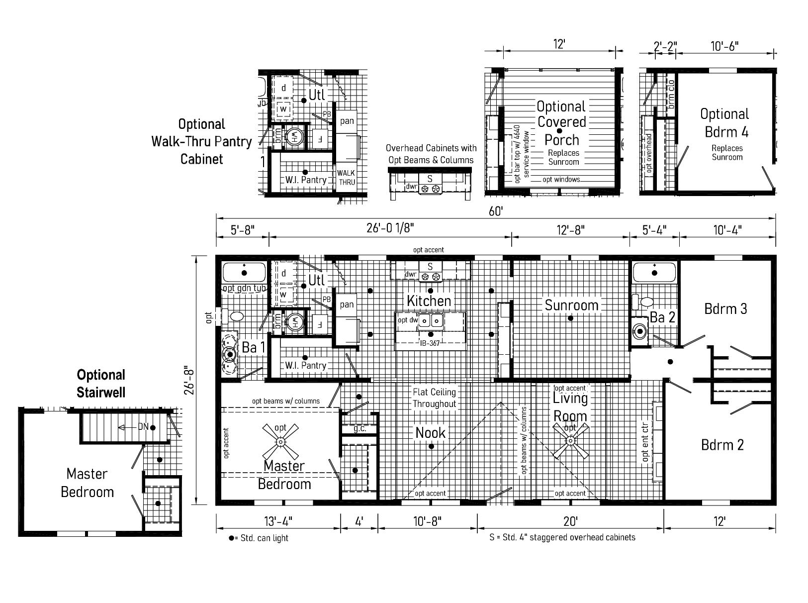
Prestige
28β X 52β
APPROX. 1813 SQ. FT.
Prestige
Boon Island - BP28684A (DT1034P)
28β X 68β
APPROX. 2027 SQ. FT.
28β X 76β
INTERIOR
Flat Ceiling Throughout
Stipple Ceiling
8β Sidewall Height
Vinyl Wall Coverings on Gypsum
LED Flush Mount Ceiling Lights
Pre-Hung Door Jambs
Mortise Hinges
Metal Interior Passage Sets
Floor Mount Door Stops
Smoke Detectors With Battery Back-Up
Wire Shelving in Guest Closet
2β Mini Blinds Throughout
White 2-Panel Passage Doors
EXTERIOR
Patina Square Light at Front Door
Seeded Glass Light at Rear Door
One GFI-Protected Exterior Receptacle
Vinyl Dutch Lap Siding
OSB with Wind Wrap
Architectural Shingle Roof with:
4β Eaves β Single Section (14/16)
10β Eaves β Ranch Homes (28/32)
12β Gable End Overhang
Ridgevent Roof Ventilation System
38x82 Fiberglass 6-Panel Front Door
34x82 Fiberglass 6-Panel Rear Door
Schlage Exterior Locksets Keyed Alike
Vinyl Insulated Windows with Grids
15β Raised Panel Shutters on Front
Door Side
CONSTRUCTION
2x6 Transverse Floor β 12/14 wide
2x8 Transverse Floor β 16 wide
2x6 Exterior Walls on 16β Centers**
ΒΎβ T&G OSB Floor Decking
20# Roof Load
Recessed Frame Design
OSB with Wind Wrap
**NOTE: Spacing for Framing Members may vary due to Design Requirements
KITCHEN
30β Deluxe Black Gas Range
Power Range Hood with Light
18 Cubic Foot Black, No-Frost Refrigerator
Stainless Steel Sink - 33x22x8
Structure Flow Single Lever w/ Sprayer
1 USB Receptacle
BATHS
60β Fiberglass Tub/Showers
1.6 Gallon Per Flush Elongated Toilets
China Stool, Tank and Lid
Lighted Vent Fan in Each Bath
Structure Flow Faucets
Anti-Scald Faucets in Tub/Shower
Shower Drain w/ Removable Strainer
CABINETRY
KCMA Evermore Custom Cabinetry
MDF Mission Style Cabinet Doors
Brushed Nickel Cabinet Hardware
Lined Overhead Cabinets
30β Staggered Overhead Cabinets
Dovetail Drawers
Laminate Countertops
Laminate Backsplashes
Concealed Cabinet Hinges
Soft Close Drawer Guides
Base Shelves in Base Cabinets
Base Shelf in Vanities
36β High Bath Vanities

UTILITIES
Plumbed and Wired for Washer
Vented and Wired for Dryer
100 AMP Electrical Service
30 Gallon Electric Water Heater with Pan
Gas Furnace - White 2-Panel Door w/Grill
Air Exchanger System for Furnace
Aluminum Heat Ducts
In-Floor Cross-Over Heating System
Copper Wiring Throughout
Main Water Line Shut-Off Valve
8-Wire Thermostat
FLOORING
Choice of Various Styles of Textured Carpet:
-Standard Shaw Edgewater
-Upgrade Styles Available
Rebond Carpet Pad with Tackstrip
Carpet Installation
Shaw Fortress β Vinyl Floor Coverings
BEDROOMS
Switched Receptacles
Vinyl Wall Coverings in all Bedrooms
Egress Window Each Bedroom
Wire Shelving in Wardrobes
Switched Light in All Walk-In Closets
Drape Package in Secondary Bedrooms
INSULATION
R-14 Fiberglass in Floor
R-19 Fiberglass in Walls
R-25 Avg. Blown in Ceiling -Single
R-28 Avg. Blown in Ceiling β Ranch
