Cogentrix

Page 1


HARLOTTE, North Carolina

LX — Cogentrix Inc. is growing ^ at full steam.

■ J After starting with $100,000 in capital a decade age, the company that wants to build a $525 million coal-fired cogeneration plant in Mayaguez now boasts annual revenues of cióse to $300 million.

Its10 plantsin North Carolina,Virgin ia and Pennsylvania generate not only steam and electricity, but also produced $13.33 million in net income last year, up 46.6 percent from the previous year.

The burgeoning growth of Charlotte's largest privately held company has not gone unnoticed.

Theindependentpowerproducertwice topped Inc.magazine'slistofthenation's 500 fastest-growing prívate corporations, oncein 1989and again in 1990,a firstfor any company.

Cogentrix also is remarkable for the clean trail it leaves in a notoriously dirty industry.

The plant slated for Mayaguez has sparked controversy in Puerto Rico over environmental concerns.

But in an industry closely monitored by environmental groups and regulatory agencies, Cogentrix enjoys a good record. It apparently is marred only by a lawsuit against one of its plants (see story page Bll)and an accidental job-related death.

In fact, the stifif opposition to the Mayaguez plant has become the biggest test yet to Cogentrix's ambitious plans for overseas expansión.

"If it continúes to be a political situation, we will pulí out," said George Lewis Jr.,chairman of Cogentrix,a company he owns with his sons.

The company has seen other deals go sour.In 1991,Cogentrix dropped plans to build a 220-megawatt cogeneration plant in the Philippines,fearing politicalinstability and the complexity of financing with a foreign currency.

Still, it is not ready to give up on Puerto Rico. The firm has invested $15 million in the de^l, more than double the $7 million spent in preparation for its last big plant construction.

But the potential payback is substan-

Cogentrix Inc. Chairman George T. Lewis Jr. stands in front of the $2 million Cogentrix building in Charlotte,N.C.,thatfeatures a serpentina glass-wailfront.

g Profits

tial. Cogentrix estimates that the Mayaguez plant would generate $100 million in annual revenues, more than a third of what it now takes in a year.

The 326-megawatt plant would be Congentrix's largest in the United States and pave the way for further overseas incursions.

Moving abroad is a way for small, independent power producers to sidestep the fierce competition stateside, as giant utilities move into their market.

Also,demand for energy is leveling off in the states, while developing countries should average about 6 percent annual growth through the 1990s, the Edison Electric Institute estimates.

But overseas ventures mean that Co gentrix has to think big. Developing coun tries need bigger plants than those being built in the states.

To tap Latin América, the company has paired up with Empresa Nacional de Electricidad SA, Endesa, the Spanish electric utility which is Cogentrix's partner in Puerto Rico.

In México, the partnership is working on five proposals, and several more are pending in Venezuela. Plans are to share proñt and risk equally.

Cogentrix is reaching out even farther. Last year,it announced plans to build two 500-megawatt coal-fired plants in India, worth $1.2 billion.

The partnerships are crucial for the small company, which needs more capi tal to keep growing.

Cogentrix also is contemplating a public stock offering or even selling a stake in the company,following a trend in the power generating industry.

"We have the development skills and the reputation in the industry; they have the money," said Lewis.

Resideslooking overseas,thecompany is thinking about diversifying. It is designing a garbage-burning cogeneration plantwithSwisstechnology,forinstance, andis negotiating to build them insever al stateside communities.

Lewis,a mechanicalengineerandlawyer,saysheisasreadyforthatchallenge as he was10 years ago,when atage55 he started Cogentrix.

At the time, he had worked for more than 30 years in the power producing field, and was in charge of corporate

marketing and sales for Charles T. Main Co., one of the nation's largest utility consulting firms.

Following the oil crunch, he tried to convince his company that cogeneration would be a growing area in the coming decade.

"I got 16 reasons why it wouldn't work,"said Lewis."Itwassiblingrivalry in the executive suite."

He left the company and started Co gentrix with$100,000ofhisown moneyin 1983. A month later, a key federal law, the Public Utilities Regulatory Policy Act, was upheld by the U.S. Supreme Court.

That 1978 law, enacted to encourage energy diversification, requires public utilities to buy surplus power produced by cogenerators at a rate equal to the utilities' cost to produce the power.

Before that, public utilities could set any price for excess power and so bought it at a bargain.

Cogeneration means producing two forms of energy from a single source. Cogentrix uses coal-fired, high pressure generators to produce steam and electricity. The steam is sold at cost to a nearby industry, while the electricity wheretheprofitsare—issoldtoutilities.

Cogentrix, for instance, earns 93 percent of its revenues from the sale of electricity to public utilities.

In Puerto Rico, tuna canneries would buy Cogentrix's steam, while the Puerto Rico Electric Power Authority would take the electricity under a 25-year contract.

It's considered a good deal for both sides, with utilities avoiding investment in new plants.

"We have a very positive relationship and mutualrespectfor each other,"said Denise Wimberley, spokeswoman for Carolina Power & Light,Cogentrix's larg est utility customer. "Over the years, we worked together very well."

The Edison Electric Institute estimates the states have 1,650 cogeneration plants, creating 7 percent of U.S. electricity. About 11 percent of the cogeneration plants are coalfired,while,overall,coal produces 55 percent of the nation's electricity.

"The trend is to stay awayfrom the big Please see COGENTRIX, Page B10

STAR photobyDiedra Laird

Planning Board reaffirms^' rejection of Cogentrix permit

The Planning Board reaffirmed Wednesday its rejection of a permit for the proposed construction of a coal-burning plant in Mayaguez.

After reviewing testimony from the Department of Natural Resources, the Aqueduct and Sewer Authority and the Department of Education, the board decided there was no need to comment further on why it denied the CogentrixEndesa partnership a permit.

The company wants to build the 300 megawatt plant at a cost of $525 million on a 38,000 acre plot of land by the Mayaguez Bay.

The company presentad more information to the board after the first rejection, but to no avail.

"The Planning Board based this rejec

tion on the same premisas for which it rejected the permit on May 27," said Norma Burgos, president of the Plannir? Board.

Cogentrixspokesman MáximoCarama Vivas or spokesman at the Cogentrix headquarters in North Carolina could not bereachedforcommentlateWednesday.

The company also appealed a decisión by the Environmental Quality Board, which denied it a water discharge permit. The appeal is under review.

Recentlythe projectreceived damning reports from two committees that deal with infrastructure and energy in the House and the Senate.

Amongthereasonscitadintheoriginal Planning Board denial and citad again: Theplantcouldcausethedeteriorationof the environment as well as the harm the health of nearby residents.

8 Senate panel blasts ex-EQB head approval of Cogentrix permit

A Senate committee report harshly criticized formar Environmental Quality Board chairman Pe droMaldonadofor havingapprovedacriticalpermit for Cogentrix-ENDESA just two days after public hearings ánd two days before a changa in administration.

The water quality certificate would have permitted Cogentrix to discharge waste water into the Mayaguez Bay. It has since been revoked by the current administration. Cogentrix wants to build a 300 megawatt coal-fired energy plant there.

Sen. Freddy Valentín Acevedo, president of the Natural Resources and Environmental Issues Com mittee,said Wedensday Cogentrix received that and other government permits from the Puerto Rico Planning Board and the Puerto Rico Industrial Development Company in a "fraudulent" manner.

Maldonado told The STAR Wednesday that he recommended approving the certificate based on evaluations by his agency technicians.He added that there was another evaluation stage before the final certificate was to be granted.

"I was committed not to leave any pending issue to the new governing board if I had all the elements to make a decisión. And at that moment I did haye all the elements. Also, I left them the opportunity to review our decisión," said Maldonado.

The administration offormer Gov.Rafael Hernán dez Colón supported the Cogentrix proposal.

Otro no a la Cogentrix

LA JUNTA de Planificación reafirmó por segunda vez consecutiva su decisión de denegarle a la empresa Cogentrix-ENDESA su permiso para establecer una planta cogeneradora de energía a base de carbón en Mayagüez.

Fi#me Planificación en su negativa dei permiso a Cogentrix

Norma Burgos, presidenta de la Junta de Planificación(JP),anunció ayer su decisión basándose en los criterios señalados por el Departamento de Reeursos Naturales (DRN),la Autoridad de Acueductos y Al cantarillados(AAA)y el Departamento de Educación (DE).

La JP declaró no lugar a la petición de reconsideración que le hiciera esta compa

ñía, que propone construir su proyecto en un solar de 38.6 cuerdas en el Barrio Alga rrobo de Mayagüez.

LaJP basósu determinación enlos mis mos señalamientos que utilizó para negar el permiso el pasado 27 de mayo.

Estosseñalamientosespecificaban quela actividad dela plantacogeneradora afecta ría adversamente la calidad de agua y cau saría el deterioro de los sistemas naturales del lugar.

Otrodelosseñalamientos planteabaque losterrenos dela empresa Congentrix-ENDESA se encuentran en una zona altamen te susceptible a la licuación y a la amplia ción de ondas sísmicas,además de que la propuesta"noestáen armoníacon lasdis posiciones del Reglamento Sobre Zonas Susceptibles a Inundaciones (Ley 3)".

ASIMISMO, LAS emisiones que po dríansergeneradasporelproyectópondría en peligro la calidad del aire del sector,* causandode esta forma un efecto negativo sobre las vías de aeceso.

Vista dsl sitio propuesto para la planta de carb<^sus a inundaciones.

EL NUEVO DIA-MIERCOLES 3 DE MARZO DE 1993

Paralizan los permisos a la planta Cogentrix

LA JUNTA de Calidad Ambiental dejará sin efecto la resoluciónquehubieraautorizadoelCertificadodeCalidad de Agua para la planta de Cogentrix que fue firmada, pero no notificada, por el pasado presidente de la agencia minu tos antes de que saliera de su cargo. La información fue adelantada ayer por el licenciado Miguel Morales, director de la división legal de la JCA, durante el primer día de vistas públicas que celebra la comi sión senatorial que investiga el proceso administrativo que ha regido el controversial caso.

Con toda probabilidad la Junta de Gobierno de la JCA se reúna hoy y notifique su cambio de opinión dejando no sólo en suspenso la resolución firmada por el licenciado Pedro Maldonado Ojeda, sino que redacte una nueva resolución que puede abrir la puerta para otro proceso de vistas públi cas en tomo al Certificado de Calidad de Agua. Morales dijo que la decisión de la Junta de Gobierno está basada en la preocupación de que no se hayan tomado en consideración y que no se le haya dado el valor adecuado a toda la información presentada a favor o en contra del

proyecto y su impacto a la Bahía de Mayagúez.

POR SU PARTE, el senador

Freddie Valentín, presidente de la Comisión de Recursos Natu rales, Asuntos Ambientales y Energía, aplaudió la decisión i de la JCA.

"Felicitamos a la JCA por su posición ya que la firma de la resolución fue en un momento donde había un cambio de gobiemo,enunmomentodonde el gobierno se encontraba en plena transición. La decisión de la JCA había dejado un muy mal sabor en el pueblo", dijo Valentín.

La decisión de la JCA afecta adversamente al proyecto pues to que sm el Certificado de Calidad de Agua, el Gobierno Federal no puede emitir su permiso de descarga de aguas de ^^^«"■entía y de aguas tratadas a la Bahía de Mayagúez. De Maldonado Ojeda haber notificado a las partes sobre

la intención de otorgar el certificado, entonces habría conti nuado el proceso administrativo, pero como sólo la firmó y no notificó la intención de laJCA para otorgarel certificado, el mismo quedó prácticamente en el limbo hasta que la nueva administración se encontró con la controversia cuan do asumió las riendas de la JCA.

LA DECISION de la JCA no fue del agrado de los fúncionanosde laCogentrix, algunosdeloscuales se encon traban en la vista pública.

indica es que la politiquería es más impor- nte que el bien económico y el progreso de Puerto Rico" di^o^James Peedin, representante de la Cogentrix en Puerto

Peedin añadió que la decisión de la JCA parecía indicar

nnl - Pedro Rosselló estaba asumiendo una posición de wait and see" o de postergación de decisiones en torno al controversial caso.

I ocurre en momentos en que la .-unta de Planificación ha archivado temporeramente el caso en espera de que vanas agencias, entre ellas el Departamento de Recursos Naturales y la Autoridad de Acueductos v Alcantanllados, contestaran algunas interrogantes.

Valentín

Niegan permiso a la Cogentrix

LA JUNTA de Planificación denegó su permiso a la compañía Cogentrix para instalar una planta cogeneradora de energía mediante la quema de carbón en Mayagüez a un costo de $525 millones, anunció ayer la presidenta de la agencia, Norma Burgos.

LOS peligros o

Las razones para la de negación fueron, princi palmente, los peligros que representa para la lo salud y el salud de la población y el medio ambiente del llieOlO área.

conciusiones, se destaca la confir-

maclón de la advertencia pública que hiciera hace varios años el sismólogo William McCann, por lo cual luego fue despedido de su trabajo en la Red Sísmica y recientemente restituido tras ganar una demanda civil en la Corte Federal.

McCann había advertido sobre la peligrosidad de esta planta debido a que estaría ubicada en una falla geológica que;de activarse, un terremoto tendría consecuencias fatales para la población.

La compañía había intentando por los pasados tres años obtener todos los permisos necesarios para poder iniciar la construcción de la planta en el Barrio Algarrobo,e invirtió en una controvertible campaña para contrarrestar la fuerte oposición de los residentes de la zona oeste de la Isla.

INDICO QUE LLEGO a la decisión tras analizar la información suministrada porla compañía,lasleyes,regla mentos y normas vigentes de planificación, y se tomaron en cuenta las proyecciones poblacionales, disponibilidad de te rrenos para viviendas y otros usos en esa zona.

Cogentrix y su socia española Endesa podrán solicitar una reconsideración a la Junta,según dispone la ley,y la Junta deberácontestarladentrode unlímitedetiempo,explicóla agencia.Dedenegarsenuevamentelapeticióndepermiso,la compañía podría recurrir a los tribunales.

Las razones expuestas para denegar el permiso de la Junta fueron:

• La planta "afectaría adversamente la calidad de las aguas de la Bahía de Mayagüez".

•Puede causar deterioro o la destrucción de sistemas naturales críticos para la preservación del medio ambiente y la salud pública.

•Los terrenos donde se ubicaría la planta están en "una zona altamente susceptible a la licuación y a la amplifica ción de ondas sísmicas, lo cual hace el área una susceptible a desastres naturales".

•La propuesta no cumple con el Reglamento de Zonas Susceptibles a Inundaciones.

•Las emisiones que generaría la planta "agravarían la condición sobre la calidad del aire, creando un efecto acumulativo sobre el ambiente".

•Y"causaríaunefectonegativosobrelasvíasdeaccesoa servir el proyecto".

La Agenciafederal deProtección Ambiental(EPA)había expedido un permiso provisional de calidad de aire a Coeentrix-Endesa.

La planta cogeneradora, según propuesta, generaría 300 megavatios de energía que vendería a la Autoridad de Ener gía Eléctrica, para suplir la creciente demanda de energía en esa zona.

COGENTRIX, cuyas oficinas centrales están instaladas en Carolina del Norte, opera otras plantas similares a la propuesta en Estados Unidos.

La operación de la planta hubiera requerido la utilización de 466 millones de galones de agua de la Bahía de Mayagüez diariamente para enfriar el sistema. Cogentrix se proponía también vender parte de la gran cantidad de vapor que genera este tipo de operación a las industrias atuneras del Puerto de Mayagüez.

Cogentrix technology becoming obsolete

1 Chemical engineering specialist at UPR Mayaguez

During the second week of March,I wasfortúnate to par ticípate in a symposium on Integrated Energy and Environment Management sponsored by the Air and Waste Management AssociaI tion and the Electric Power Research > Institute.

! This activity, held in New Orleans, f served as a forum for professionals in the I field of electric power production from ! theUnitedStatesandEuropetoexchange information on the most recent and significant developments in this field.

The opening remarks by the conference chairman — Jason Makansi of Pow er Magazine — emphasized the worldwide trend toward the use of natu ral gas, a trend spurred by ever more stringent regulations on atmospheric pollutant emissions. Another tendency that he mentioned, which was later discussed in great detail by many speákers, was toward zero wastewater discharge from power plants.

Theemphasis ofthe technical program was on serious efforts undertaken by the electric power companies to generate electricity from fossil fuels with the mínimum negative impact on the envi ronment.

Presently,thestandardforcomparison in that respect is the natural gas-fired combined cycle turbine. This type of power plant is:

■ extremelyefficientinconvertingthe enÉE^ in the fuel to electricity; ■ produces much lower emissions of

air pollutants with a mínimum of pollution control equipment; Iproduces no solid or liquid waste" and

■ requires less cooling water than a conventional coal-fired power plant.

An example of this technology — in service since early 1992 — is the Korea Electric Power's Seoinchon Combined Cycle Power Plant,which burns natural gas with a cycle efficiency of 55 percent. This compares very favorably with con ventional pulverized coal power plants such as the one in Cogentrix's proposal that are limited to cycle efficiencies of about 35 percent.

Existing pulverized coal plants with fluegasdesulfurization retrofitswillcon tinué to play an important role in countries with vast coal reservessuch as the United States. However, the utilization of flue gas scrubbing adds cost and reduces the cycle efficiency.

Inaddition,controllingtheemissionsof nitrogen oxides, greenhouse gases and solid waste has become increasingly critical when siting new plants. Integrated Gasification Combined-Cycle (IGCC) plantsseem tó be an attractive alternative for countries willing to use their coal reserves in new, more environmentally fnendly power plants.

The IGCC process relies on two-stage combustión with cleanup occurring between the stages. The first stage is called a gasifier, where partial oxidation of the coal occurs. The second stage utilizes a combinedcyclegasturbinecombustorto

complete the process. Cycle efficiencies as high as 45 percent have been achieved, which is much better than conventional pulverized coal plants, although not as a good as natural gas combined cycles.

IGCCtechnologynow recovers98to99 percent of the sulfur in the fuel as a saleable by-product. During the IGCC process, coal ash melts at the high operating temperature of the gasifier, such that the resultant slag product encapsulates the heavy metáis originally present in the coal into a non-leachable solid residuo, thus making it much less threatening to water supplies.

This solid residuo is safer to handle and

Berry's Worid

A/ie (¡Qi IM Füll of

dispose of than the fly ash captured by baghouses or electrostatic precipitators in pulverized coal facilities. Nitrogen oxides emissions as low as natural gas have been achieved. Reductions in green house gases emissions — compared to pulverized coal — comefrom thesuperi or cycle efficiencies that result in lower fuel requirements.

Many descriptions of flue gas scrub bing systems in operation in Europe and the United States were presented at the symposium. Most of them emphasized integrated simultaneóoscontrolofsulfur dioxide, nitrous oxides,fine partióles, and air toxics.

Seawater scrubbing, as proposed by Cogentrix for Mayaguez,was never even mentioned in the technical sessions. Answering myquestionsaboutthistechnol ogy,engineers from the Electric Power Research Instituto and the Air and Waste Management Association assessed it as PTímitive and unlikely to ever receive a permit to opérate in the continental United States.

Evidently, the electric power industry is in the middle of a sweeping transition, trying to harmonizo the need for electric ity generation with the need to preserve our environment.

Technologies that until recently were considered appropriate — such as the pulverized coal power plant — are rapidly becoming obsolete. Combined cycles using natural gas or gasified coal are presently the most attractive alterna tivos for new generating capacity.

EL NUEVO D\A-VIERNES 22 DE ENERO DE 1993

'Marcha de pueblo' en contra de la Cogentnx

será encabezada por el alcalde de Mayagüez,José Guillermo

„„„U,ca><ie de Mwez,José G„,Ue™o ^.''-"rd'f^S'ortra e^^^^

o lé, Asamblea Municip

al

Por LUIS A. FERRE RANGEL

De El Nuevo Día ___^_

'^HorS'la noche y mañana todo el día en d Centro Cultural de Mayag^z bs unaonan^^^ MINUTOS ANTES de que la Agencia FederaldeProte^^^ Sudando riorparticipTntes"qS^sSíicitaron los turnos de

SlSolfeSS?a.fzaSr;S

•BañeraPesadaAmericanStandard2390.202con mezcladoraDK9906Aydesagüedebronce 932

•lavamanosAmerican Standard IHodeloAqualyn, #0476.028 con mezcladora DK 4487WLy sus ñltings

•Inodoro American Standard #2312.038 Tapa y Iflings No aplica en color Negro

•Bañera Pesada Princeton American Standard#2390.202 con mezcladora DK 9906A y desagüe en bronce #932

•Lavamanos American Standard modelo Aqualyn #0476.028 con mezcladora#DK 4487WL y sus fittings

■ Inodoro Porctier modelo Venetto #9712 con tapa y fittings colores:bone,gris o blanco. No aplicaen color Negro

• BañeraWtiirpool American Standard modelo Lexington #2715.014

Lavamanos American Standard modelo Aqualyn #0476.028 con mezcladora # DK 4487WL

• Inodoro Porcher modelo Venetto #9712 con tapa y fittings colores: bone, gris, blanco

reg. $2,799

• venta combinaciones de baño válida por 15 días

• material recogido

■ venta castiotarjeta de crWlto •financlamiento bancarlo si cualifica

lunesaviernesde8:00-5:00p.m sábados de 8:00 -4:00 p.m. Carr. 1761 1 Cupey (entre Sears y Banco Popular de Cupey) tel.767-4458

Ave.Rooseveit#128HatoRey(allado delRest.Nletropol)tel.765-0093

aceptamos

• No aplica en color Negro

SET DE ACCESORIOS DE SEIS PIEZAS: DOS JABONERAS, UNA CERILLERA PAPELERA,"HOOK"Y TOALLERO DE 24 VALORADO EN $60.00 CON LA COMPRA DE CUALQUIERA DE LAS OFERTAS DEEQUIPOCOMPLETODEBAÑO. MODELO D-9500 BLANCO, GRIS, NEGRO Y AMARILLO

• Inodoro Sadosa SA2210 redondo,con tapayfittings

reg. $130. 'Lavabo Pedestal Sadosa modelo Lorentina#SA1324 con fittings y mezcladora DK4487WL

\áQ.Í,Z2.6.

• Bañera Liviana American Slandard #0135-137 con mezcladora DK9906A ydesagüe PVC

rdh. $285.

Precio Total:

AccesoriosdeBaño modelo Baltic 6piezasDoradosyCromados 1(5624)Towel Bar 1(5656) PaperHolder 1(5657)ToottibrustiHolder 2(5659)Soap Dish 1(5660)Towel Ring

Fregadero Doble American Standard de Porcelana #7022-013 colores: Bone, Blanco, Silver

rég.$395 tAezcladora de fregadero cromada American Standard Modelo Reliant #4205-441

Mezcladora Cromeada, mangoscon detalle en acrílico Dragón Gollection # DK4487WL-AG

Por otro lado, este diario resolución en contra de esa ciudad está presta ^ energía que proporciode este proyecto cogenerac ^ ^ naría 300 megavatios en la Bahía de Mayapara la industria del atún

™anires,aci6„. nalcercadelaóiOOp.m.de hoy^seria Ambiente en el grupo Mayagüezanos P°; a un costo de $300 contra de la planta, que sen financiero de la empre- millones por Cogentnx con el apoyo iman sa española „i.. cuarta que se celebra en La sesión de vistas " ,a primera que realiza torno a este conuovertible presididas por el una agencia federal. Las , nivisión Legal de la Ledo. Douglas Blazey. director de la Uivisio Región 11 de la EPA. en Nueva York.

LAS VISTAS se celebran como parte del proceso de ley oue obliga a la celebración de las mismas, una vez la agencia federal manifiestasuintencióndeotorgarel permiso,locual hizo el pasado 8 diciembre.

De acuerdo con la EPA. los consultores ambientales de la Cogentrix han presentado suficiente evidencia y han rplizado suficientes estudios como para satisfacer los requisitos de esa agencia federal que son necesarios antes de emitir un permiso para emisiones atmosféricas.

Según los documentos ambientales sometidos por la Co gentrix. la producción de energía generaría varios contpuestos Que serían emitidos al aire y paia los cuales la Ley Federal de Aire Limpio establece límites.

En el caso de la planta, la EPA ha determinado que la operación puede emitir al año las siguientes cantidades sin afectar negativamente el medio ambiente: 2.343 toneladas de óxido de nitrógeno: 2.756 y 2.343 toneladas de monóxido v bióxido de carbono, respectivamente. -34 toneladas de materia particulada y cantidades especificas de amonia. compuestos volátiles orgánicos y bioxido de azufre.

Sin embargo,los opositores al proyecto argumentan que la tecnología disponible actualmente para purificar los gases que son producto de la combustión del carbón que se utili?ará como combustible no ha evolucionado lo suficiente como para garantizar la protección de la calidad de aire y pr^enir enfermedades en las vías respiratorias e inelusive del sistema nervioso. / en PARTICULAR,los opositores señalan que^Mayg^gr de gases que utilizará agua de mar para eliminar gran parte del azufre en la emisión y lo neutralizaría antesde descar earloala bahíaes un mecanismoque noesta adaptadoala calidad de agua de la Bahía de Mayaguez y que ha sido utilizado en pocos lugarcsT

Asimismo, grupos ambientalistas están presionando par^ que se abandone la allcrnaliva del uso del carbón y cotnb'-*^' tibies fósiles como medida de corto y mediano pla^^ para diversificar la producción de energía en Puerto Rico, princi palmente por los efectos de calentamiento global y u, des trucción de recursos naturales provocada por la minería de estos combustibles.

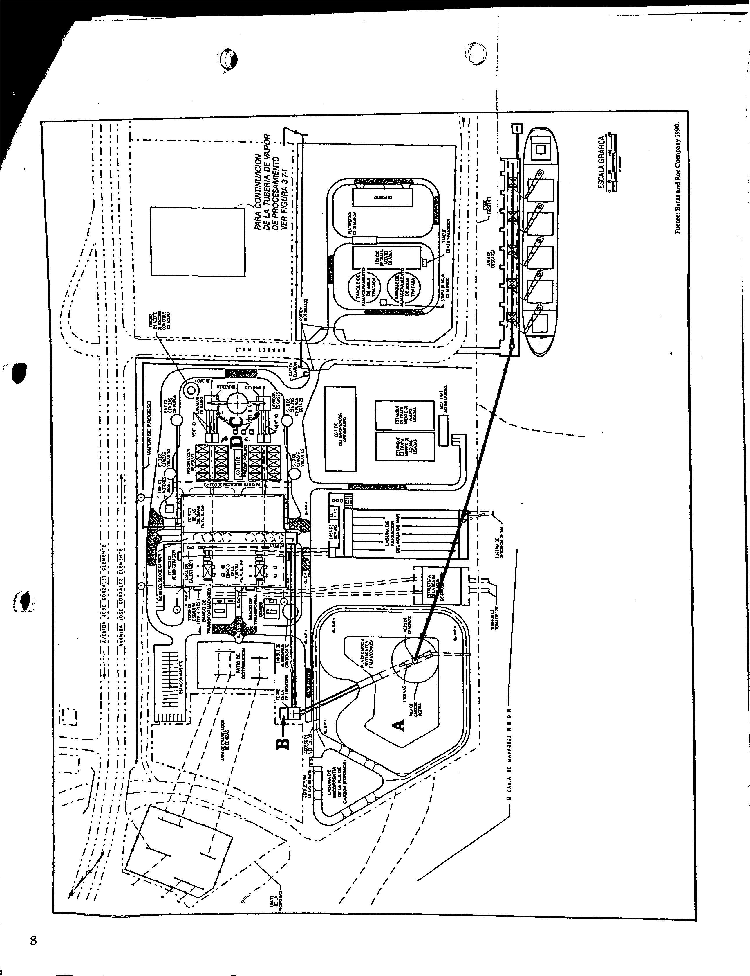
¿Qué es la Cogentrix y qué quieren construir en Mayagüez?

Víadarnos qué es la Cogentrix y qué quieren cohstruir en Mayagüez. Cogentrix Inc. es unacompañíadeCarolinadelNorte,fundada en 1983.Poseen cinco plantas en ese estado ydosen Virginia:3plantasde35 megavatios (Mw),3de 1lOMw y una de55Mw.En total generan 490Mw de electricidad a base de carbón.Su capacidad mayor,como dijimos, es hasta ahora plantas de 1lOMw.'

Cogentrix quiere construir y operar en PuertoRicoimaplantade300Mw.Osea,qué no sólo construirían su planta más grande aquí(tres veces mayor que las que tienen allá);sino que ésta generaría61% de toda la capacidad actual de esta empresa. Han cal culado que les costaría $500 millones y es peran tenerla operandoen 1994.^

Laelectricidad generadasería vendidaala

AEE y el vaporresultante a las atuneras de Mayagüez para sus propias necesidades (básicamente,cocinar pescado))( Resulta curioso señalar que la Cogentrix no tiene exención contributiva en los estados deVirginiayCarolinadelNortedondeope ran.Allí,pagansuscontribucioneseimpues toscomocualquiercompañía.Sinembargo, han señalado que si el gobierno de Puerto Riconolesconcedeestetipodeprivilegio para su planta aquí, su operación no sería económicamente viable.'O sea,que no sólo nos quieren envenenar, sino que tampoco quierenpagarcontribuciones(quealalarga se usarían para atender la salud de muchas personas que se afectarán por la contamina ción dela planta).

En la página siguiente encontrarán un

dibujo esquemático de la planta de carbón que se pretende establecer en Mayagíiez.*

Eu 'n este diagrama vemosen primerlugarel área de almacenaje de carbón(A).

Semanalmente, o quizás más frecuente mente,llegarán al puerto de Mayagüezenor mes barcos con capacidad de hasta 40,000 toneladas(80,000,000 Ibs.)d^carbón.Para desembarcarlo,dragarán parte de la bahía,y construirán una correa de transportación de cercade150pies.Estaoperaciónaumentalas posibilidades de accidentes y derrames en la bahía. El carbón descargado se almacenará en(A).

La Cogentrix tendrá en todo momento 140,000 toneladas o 280 millones de libras decarbón,formandoima montaña de 36 pies de altura, almacenadas a la intemperie y expuestasalviento.Conlasintensaslluvias que ocurren en el área,junto a los vientos costaneros,podremos esperar polvos fugiti vos de carbón en los alrededores y agua de lluvia que ha arrastrado carbón en la bahía. De lugar de almacenaje se moverá hacia la torre de molido(B)donde lo pulverizarán.

Cogentrix vaaquemar6,300,000librasde carbón diariamente.Esta quema va a generar unas 150,000libras decompuestos de azufre y nitrógeno, y 720,000 libras de cenizas diariamente. Estas cifias son basadas en la utilización de carbón con 1.5% de azufre (según anunciaron que van a usar aquí) y 12%decontenidodecenizas.Deaumentarel contenido de azufre (el carbón venezolano tiene hasta 5% azufre) y/o el contenido de ceniza,estos números van a aumentar.

La Cogentrix plantea que va acontrolarel 93% de las emisiones de SO,con un lavador de gases de agua de mar("sea water scrubber")(C).'Estatecnologíaineficiente,quelo quehaceescambiarellugardedisposición del contaminante del aire al mar, utilizará 70,000,000(setenta millones)de galones de aguadelabahíadiarios.Elresultadodelavar los gases ácidos con agua de mar será la producción de más de 100,000 (cien mil) libras desulfatosquelanzarán alabahía.Esta alteración de las concentraciones naturales úeesta sustanciaenel martieneimplicaciones negativas parala vida marina enla bahía, además de añadir turbidez y otros contami

nantes que también son resultado del lavado de gases. Para colmo,la acción de organis mos marinos resultará en el cambio de sul fatos a sulfuro de hidrógeno(HS),que irá al aire, finalmente convirtiéndose en dióxido de azufre nuevamente, que era lo que se estaba tratando de controlarenim comienzo. Peroaúnasiuniendoquecontrolenel93%de emisiones de SO,con esta tecnología (cOsa que dudamos),tendrñunos 18,000 libras diarias de SOj en el aire diariamente..De todos modos, esta tecnología no resuelve el pro blemadelos NO,queestaríanemitiéndose al aire a razón de 46,000 libras diarias.

En cuanto al particulado (D), aún asu miendo que controlen el 99.98% con filtros de saco,(lo cuales poco probable,ya que los mismosgasesácidosque pasan primero por los sacos antes de ser lavados, tienden a deteriorarlos); tendríamos cientos de libras diarias de partículas en el aire srunamente pequeñas,que son las más peligrosas ya que pueden llegarfácilmente a nuestros pulmo nes. En otras palabras, las partículas que la Cogentrix va a controlar son las que menos daño nos hacen,mientras que las que saldrán por la chimenea son las que nos van a matar. Ninguno de los sistemas que están plan teados para controlar las emisiones de la planta decarbón van acontrolarlas bioxinas, furanos,mercurio,flúor,etc. Esto tiene que ser sumado a los contaminantes emitidos diariamente.Además,no hemos menciona dolas milesde libras diarias de CO^(bióxido de carbono),uno de los contribuyentes prin cipalesalefectodeinvernadero.Laquemade carbón,porejemplo,genera 11%másdeCOj que la quema de igual contenido calórico de petróleo.

CENIZAS

¿DóndepretendelaCogentrixdisponerlas

722,000 libras de cenizas que producirían diariamente? En promedio,durante la vida útil de ima planta de carbón (35 años) se generan suficientes cenizas para llenar un área de 1 milla cuadrada y 30pies de profun didad.Esto eslo mismo que unafinca de630 cuerdas cubiertas de cenizas a xma altura equivalente a un edificio de tres pisos. Como señalábamos anteriormente,la ce-

''S'•'""vi ^>:a'"' -M-

1^"^'»»ww'#«'¥ >i/' -- ;«. ■%■ mm..-. *:'■

niza del carbón contiene varios isótopos radiactivos-queestarán alamercedde los vientos y la lluvia, mientras son almacena dos, transportados y depositados en im ver tedero. La lixiviación de estos elementos, metales pesados y otras sustancias es muy probable entonces, lo cual conlleva im serio riesgo a las fuentes de agua, agricultura y el ambiente en general. La Cogentrix plantea quevaavenderlascenizasparalaconfección de materiales de construcción o si no puede, se la lleva para otro país. En cuanto a la primera alternativa, cabedestacar que enlos Estados Unidos se utiliza sólo el 5% de este tipo de cenizas para pavimentación, etc., y asumimos que allá hay mucho más mercado queenPuertoRico paraeste tipo de materia les. De cualquier forma, el utihzar estos desperdicios en la construcción puede ser peligroso, ya que raramente se le hacen aná lisis de toxicidad antes de emplearlos, resul tando que los materiales puedan ser poten-

Foto aérea de la localización de la planta.

cialmentepeligrosos. Lasegimda alternativa es risible. La Cogentrix dice que si no le dan exención oontributiva, su operación no es rentable; siia embargo, va a costear el trans porte de medio millón de libras de cenizas diarias —ainén de quién se las acepte. Probablemente tendremos ima exigencia de la AEE y Cogentrix, luego de ésta estar establecida, para construir un vertedero de desperdicios tóxicos para depositar las ceni-

RIESGO SISMICO

^egúnelDr.WilliamMcCann,sismólogo del RUM, esta planta se pretende construir sobre ima falla sísmica activa. De ocurrir im temblor de 6.5 o más (en la Escala Richter) como se espera, el mismo podría destruir la planta o por lo menos afectarla seriamente.® ElDr. McCannplantea queconstruirlaplan ta a "prueba" de terremotos implicaría ima inversión mayor de dinero, cosa que, añadi mos nosotros, la Cogentrix no quiere hacer.

AGUA

L.a planta ocuparía el último espacio dis ponibleparaunafuturaexpansióndelpuerto de Mayagüez. En otras palabras, cualquier proyección turística quedaría invalidada no sólo por falta de espacio, sino por el efecto antiestético del proyecto.

La planta también recogería y devolvería tmos470millonesdegalonesdiariosdeagua de mar, tanto para enfriamiento como para los lavadores de agua de mar. Estas aguas, devueltasalmaraaltastemperaturas,produ cen contaminación termal (contaminación por calor). Si, además de estar calientes, consideramos que estas aguas contendrán suLfitos, metales y compuestos químicos provenientes del lavado, entonces encontra remos en la bahía mayor turbidez, muerte de microorganismos esenciales para la cadena alimenticia deespeciesmarinas yotros pro blemas causados por desequilibrios quími cos y biológicos en el agua.

LINEAS DE ALTO VOLTAJE

Alo basta con producir electricidad. Esta tiene que ser distribuida. De la planta de carbón propuesta, la Autoridad de Energía Eléctrica sacará una red de líneas de alto voltaje para distribuir la electricidad. Hasta ahora, la AEE ha anunciado que construirá tres troncales de230,000voltioscadaima. Las mismas pasarán por áreas residenciales dealtadensidadpoblacional.Unadeellasirá hacia Miradero (este), otra hacia Cabo Rojo (sm-sureste)ylatercerahacia Manatí(nor este). De una forma u otra, los sectores y barriosManí,AlturasdeMayagüez,Sabane ras,Miradero,Mayagüez pueblo,Guanajibo yLasMínimassepodríanverafectadospor estas líneas.Existe bastante evidencia cientí fica que señala que las líneas de alto voltaje generan un campo electromagnético de gran magnitud el cual es peijudicial a la salud humana.Estudios en la Universidad Johns Hopkinsindicanqueexisteunarelaciónentre el cáncer y la exposición a los campos elec tromagnéticos del tendido eléctrico. Tam biénseconocequelaexposición prolongada a campos electromagnéticos interfiere con el sistema dedefensas de nuestrocuerpo(sis tema inmimológico). A estas alturas, no sabemos cuáles sectores residenciales ten dránlas líneas cruzando porencimadesus residencias.Desdenoviembrede1989,sele está solicitando a la AEEcopias de los planos de las mismas, y a febrero de 1991 la Auto ridad todavía no ha satisfecho estos recla mos.

NOTAS

'Cogentrix, Mayagüez Cogeneraüon Project, 21denoviembrede 1989.

'Ibid.

^ElNuevoDía,3dejuÜode1990,pág.22.

Cogentrix,op.cit.

'Cogentrix,MayagüezCogenerationProject Technical Description, 1990, pág.6.

'El Nuevo Día,22 de octubre de 1989.

Conoce tu Comité Mayagüezanos por la Salud y el Ambiente

En marzo de 1989,el gobierno de Puerto Rico y la Autoridad de Energía Eléctrica anuncian la construcción de una central generatriz deenergíaeléctricadonde,entreotros,seutilizaríacarbón pulverizadocomocombustible.

Preocupadosporlaamenazaambientalquerepresentalaquema de carbón,un grupo de ciudadanos se dieron a la tarea de buscar información que les ayudase a definir las posturas que habrían de asumir.Pronto se dieron cuenta de los altos riesgos de contaminación alos que estarían expuestos y procedieron a crear una oposiciónpopularaesteproyecto.MisiónIndustriallesbrindaayuda mediante el organizador comunal del área suroeste, Jorge Fernández.

Secitaronreunionescomunitariasenlasáreasaledañas,loqueal final dio como resultado la creación del Comité Mayagüezanos por la Salud y el Ambiente.Elcomité aglutinó distintossectores: estudiantes,vecinosdeláreadondeseubicaríalaplanta, comerciantesdeláreadeMayagüez,profesionales ytrabajadoresen general. De ahí en adelante mantuvo una presencia pública constante.

Como parte de los procesos informativos y educativos de este comité se realizaron másde 100charlas yforos sobre el impacto de la planta de carbón, también se creó el boletín Aguas Puras,órgano oficial del comité.

Lograron que la Asamblea Municipal pusiera en agenda el im pacto de esta planta. Se logró,también,que la Asociación Médica y la Cámara de Comercio del Oeste hicieran prommciamientos en : contrarié la plant4decíubón,iEn:fin han puesto a discutir el tema en todaeláreaoestey hanobligadoalospolíticosaasumirposiciones,

Entre los logros de este comité podemos decir que han traído a ; discusión pública fuentes alternativas de energía basadas enfücntes renovables no contaminantes.Entre susactividades masivas más exitosas fue una marcha ante el gobernador con la participación de másde3,000personas.

Elcomitéconünúaactivo,seretinetodoslosmartesalas7:00 p.m. en el local de la Unión Independiente de Trabajadores de la Ceivecería India.Estás cordiahnente invitado a participar de estas reuniones.

Cargado de incógnitas el visto bueno

LAJUNTAdeCalidadAmbiental(JCA)ledioelvisto bueno a la documentación ambiental sometida por la Cogentrix,perodejasincontestarvariasinterrogantesclavesen la controversia.

En una concurrida conferencia de prensa, el Ledo. Pedro

Maldonado Ojeda, presidente de la JCA, indicó que esas interrogantes serían atendidas en su debido momento cuan do la Cogentrix solicite permisos de emisión al aire y de descarga a la Bahía de Mayagüez en los que intervendrán la propiaJuntayagenciasfederales,particularmente,laAgen cia Federal de Protección Ambiental.

Asimismo,MaldonadoOjedaindicóqueladecisióndela agencia no es la única que se producirá en torno al proyecto.

í-íf/iik-;

ni autoriza tampoco la construcción del mismo. "Definitivamente tendrán que obtener los permisos co rrespondientes de las diversas agencias que regulan a dicna empresa y sus propuestas actividades antes de iniciar cumquier construcción u operación", dijo Maldonado Ojeda. "Ha habido confusión acerca de si la Junta está en e^e momento autorizando la construcción. Lo que la Junta ha estado resolviendo es que no anticipa impactos ambientales de la decisión de establecer dicha planta en su construc ción", añadió Maldonado Ojeda.

ESTE ES el primer obstáculo que supera la Cogentrix para la instalación de una planta de cogeneración de energía por medio de la quema de carbón que produciría 300 megavatios de electricidad.

Pordosanoselgrupo MayagüezanosporlaSaludyel Ambienteyotrasorganizacionesambientalessehanopuesto alproyectoaduciendocontaminaciónambiental,mientras que el sector privado de la industria puertorriqueña y la Autoridad de Energía Eléctrica apoyan el mismo citando una deficiencia proyectada en la generación de electricidad. Entérminosgenerales,especialmenteentomoalasemi siones al aire y las descargas a la Bahía de Mayagüez, la JCA se mostró satisfecha con las garantías de protección ambien tal que presentara la Cogentrix.

Pero enumeró una serie de solicitudes de información, condiciones y advertencias que han sido objeto de crítica por los ambientalistas e inclusive los candidatos a la goberna ción.

Entre la información que debe rendir la Cogentrix en los próximos 15 días figura;

■ Descripción específica del sistema de cedazo que se empleará para proteger las especies marinas de la toma del sistema de succión, a tenor con las preocupaciones expresa das por el Departamento de Recursos Naturales.

■ Descripción específica del sistema a utilizarse para re ducir la temperatura del efluente antes de ser descargado. Y entre las condiciones que estipula la JCA, figuran:

■ LA REALIZACION de un estudio de especies marinas en el lugar de ubicación de la planta, de su efluente y demás alrededores, en coordinación con el Recinto Universitario de Mayagüez.

Además, la JCA hace la siguiente advertencia:

■ "Las emisiones de materia particulada (polvo fino) PM10 esperadas conforme a lo informado, colocan al área demasiado cerca de los estándares nacionales de calidad de aire permitidos".

Por lo tanto, el área estaría cerca de clasificarse como "zona de logro", por lo que estaría prácticamente congelada para el desarrollo de cualquier otra actividad que genere emisiones de particulado fino.

La JCA está exigiendo que, dada la proximidad a una escuela y comunidades aledañas, es necesario que "se realice un muestreo continuo de las emisiones a la atmósfera".

La resolución, por lo tanto, aprueba la documentación ambiental sometida por la Cogentrix, pero indica que aún quedan varias interrogantes por contestar y que las mismas deberán ser atendidas en el proceso normal de obtención de permisos.

LOS PERMISOS más importantes que aún tiene que obtener la Cogentrix son: los de ubicación de la Junta de Planificación, el de construcción de la Administración de Reglamentos y Permisos, el de fuente de emisión atmosféri ca de la JCA y de la EPA, el perniiso de prevención de deterioro significativo del aire de la EPA, el certificado de calidad de agua de la JCA y el permiso federal de descarga de efluentes de la EPA.

Pedro Maldonado Ojeda: la Junta no anticipa impactos ambientales.

En breve el fallo sobre Cogentrix

LA JUNTA de Calidad Ambiental podría dar a conocer estemartessuopiniónsobrelosposiblesimpactosambienta les de la planta de cogeneración de energía Cogentrix.

Ayer, el Ledo. Pedro Maldonado Ojeda indicó a este diario que desde el martes pasado la Junta de Gobierno "está acuartelada" deliberando, en sesión permanente, si la Compañía de Fomento Industrial -agencia proponente- ha satisfecho las interrogantes que originalmente plagaron la Declaración deImpacto Ambiental preliminarquesometió la Cogentrix.

Asimismo, Maldonado Ojeda negó rotundamente que se haya reunido porseparadocon los proponentesen La Forta leza, como han indicado los opositores al proyecto. "Esa es una acusación injusta porque estamos en un estado en que no podemos defendernos y arriesgarnos a entraren un careo con las personasque hicieron esasdeclar aciones", dijo Maldonado Ojeda.

El funcionario especificó "que la decisión se tomará en sus méritos; poniendo en una balanza la salud y el ambiente y el desarrollo socioeconómico de Puerto Rico".

El funcionario indicó que con probabilidad la Junta de Gobierno de la JCA termine el proceso deliberativo hoy y que den a la publicidad el martes la resolución en tomo al posible impacto ambiental del proyecto.

'La decisión se tomará en sus méritos;poniendo en uno taalanzolasalud yei

socioeconómico de Puerto Rico'

LOS OPOSITORES al proyecto, liderados por la organi zación ambientalista Mayagüezanos por la Salud y el Am biente,argumentan que la tecnología no es lo suficientemen te confiable para garantizar la calidad del aire en la combustión del carbón y además han expresado dudas sobre lacalidad ytemperatura delefluente que desembocaríaen la bahía de Mayagüez como producto del proceso de enfria miento.

Los proponentes de la planta indican que Puerto Rico necesita la capacidad de 300 megavatios que va a producir la Cogentrix y aseguran que la tecnología es 99 por ciento eficiente y que la descarga marina no afectará significativa mente la ecología marina.

Por su parte, Maldonado Ojeda indicó que las partes pueden recurrir al Tribunal Superior de San Juan a pedir una reconsideración una vez la JCA emita su opinión.

De resultar favorable la decisión -o sea que la Junta de Gobierno de la JCA quedó convencida con las medidas que tomará la Cogentrix para proteger el ambiente-,entonces el proyecto pasaría por otras etapas de permisos como el de ubicación dela Junta dePlanificación y losdescargasfedera les de la EPA, entre otros.

"Hay varios otros foros donde aún pueden recurrir", indi có el funcionario.

Pide pareceres en torno de la planta

EL SENADOR Fernando Martín em plazó ayer a los candidatos a la goberna ción por el Partido Popular Democrático y el Partido Nuevo Progresista, Victoria Mu ñoz Mendoza y Pedro Rosselló, para que sin mayor dilación expresen su parecer so bre la planta de carbón que tiene proyec ciones de establecerse en Mayagüez.

"Hago un llamado urgente al doctor Pe dro Rosselló y a la senadora Muñoz Men doza para que expresen pública y solemne mente, ahora, que de resultar electos a la gobernación en las próximas elecciones no permitirán la construcción de la planta de carbón en Mayagüez", dijo el también can didato a la gobernación por el Partido Independentista Puertorriqueño.

Todavía está ante la Junta de Calidad Ambiental la solicitud de permisos de ope ración de la Cogentrix, una planta cogeneradora de energía mediante la quema de carbón.

AUN SE ESPERA sobre la decisión de la Junta de Calidad Ambiental, aunque ayer el Secretario de Recursos Naturales, Santos Rohena, expresó su insatisfacción sobre el documento que le entregó la Co

gentrix relativo a la declaración de impacto ambiental.

"Ante esta coyuntura de consecuencias potencialmente desastrosas para el ambien te y la ecología de la zona oeste de Puerto Rico y la amenaza que una aprobación de la Junta representaría como precedente para otras plantas similares ha llegado el momento en que los candidatos a la gober nación por los tres partidos políticos se ex presen con meridiana claridad sobre este asunto", sostuvo Martín, quien indicó que el momento de expresarse es ahora y el no hacerlo"es sentar las bases para luego utili zar como excusa el que se ha hecho tarde para detener la planta de carbón.

Al parecer, el documento que suministró Cogentrix al Departamento de Recursos Naturales no dilucidó las preocupaciones que tenía Rohena sobre la ubicación de esta planta en una falla geológica que existe en el lugar y en terrenos cercanos al mar, que pueden afectar las especies de pesca comercial y el hábitat de especies en peligro de extinción.

"Los exhorto", continuó Martín,"a que no se hagan cómplices con su silencio de este atropello ambiental y económico con tra el ár^ oeste, y a la larga, contra todo Puerto Rico.

Encendida la en torno a la polémica Cogentrix

REPRESENTANTES DEL sector pú blico y privadocontinúan expresándoseen torno a la controversia! planta de cogeneración de energía Cogentrix,a medida que se acerca la hora en que la Junta de Calidad Ambiental se pronuncie a favor o en contra de las garantías de protección ambiental que ha presentado la Cogentrix.

Ayer el liderato de la Unión de la Indus triaEléctrica yRiego(UTIER)exhortóasu matrícula a que participaran en la marcha del próximo sábado,en Mayagúez,que or ganizan las comunidades y sectores opues tos al proyecto.

Por otro lado, representantes del sector privadode Mayagúezseexpresaron afavor del proyecto,segúnsusdeclaracionesdivul gadas por una agencia de relaciones públi cas.

Mientrastanto,la Junta deGobiernode la JCA continuaba deliberando ayer a pesar deque el presidente de la JCA,Lic. Pedro Maldonado Ojeda,esperaba que la agencia tuviera lista su decisión para el día de ayer.

PROBABLEMENTE el pronuncia

miento público de la agencia no ocurra hasta el jueves.

Por su parte, Samuel Trujillo Rebollo, presidente de la UTIER, que reúne a unos6,000empleadosde la Autoridad de Ener gía Eléctrica,calificó el proyecto de la.Co gentrix como una "cabeza de playa para iniciar un proceso de privatización de la generación de la energía eléctrica".

"Hacemos claro que la UTIER no se opone a la construcción de otrascentrales generatrices, siempre y cuando estén en manos del pueblo",agregó el líder sindical, quien asumió la presidencia del gremio a principios de año.

Trujillo Rebollo expresó también la pre ocupación de la UTIER en torno a las ga rantíasde protección ambiental y desalud que ofrece la Cogentrix.

Por otro lado, Ralph A. Ward, vicepresi dentedelaoperacionesdeStarKistSeafood Co. de Long Beach, California, apoyó la construcción de la planta que generaría va por que aprovecharían las atuneras del Puerto de Mayagúez.

"NOSOTROS ENTENDEMOS que oponerse a la planta de la Cogentrix es oponerse al desarrollo económico de Maya-

El presidente de la UTIER,Samuel Trujillo Rebollo,se opone al proyecto de la CoaentriT porqueentiendequeeseliniciode"laprivatizacióndelageneracióndelaenergíaeléctrica".

gúez y poner en riesgo miles de empleos que no podrán sergarantizados por ningu na otra industriaen el área",indicó Ward, según sus declaraciones divulgadas por una agencia de relaciones públicas local.

Ward añadió que el proyecto haría a las atuneras más competitivas con relación a lasestablecidas en otros países,como Tai landia e Indonesia.

Las dos atuneras del área emplean a cer ca de 4,000 personas.

Por otro lado, el Ledo. Ramón A. Díaz Tacoronte,ex presidente de la Cámara de

Comercio del Oeste y actual presidente de la Asosiación Interamericana de Hombres de Empresa, advirtió que la oposición esta ba repitiendo la historia de las atuneras.

La rnisma inmadurez con que nos opu simos a las atuneras es la misma inmadurez queyo veoaquíahora.Cuandolasatuneras empezaron a demostrarqueeran fuentede ingreso y vida, entonces empezamos a cam biar , dijo el empresario,según sus declara ciones divulgadas por una agencia de rela ciones públicas local.

Súbito viaje a las oficinas de Cogentrix

ALTOS FUNCIONARIOS de la Junta de Calidad Ambiental (JCA) partieron sor presivamente ayer rumbo a las oficinas centrales de la Cogentrix en Charlotte, Ca rolina del Norte, en medio de las críticas de los opositores del proyecto y posponiendo una decisión sobre el controvertible caso.

La Dra. Julia Mignucci, portavoz del grupo Mayagüezanos por la Salud y el Am biente, calificó la acción de la JCA como "unagran pérdida de tiempo".

Mientras, el Ledo. Pedro Maldonado Ojeda, presidente de la JCA, defendió la acción de la Junta de Gobierno indicando que se trataba de una "visita a algunas de las plantas generadoras de electricidad a base de carbón, para observar el funciona miento y la tecnología utilizadas en plantas similares a la propuesta".

"Están comparando chinas con bote llas", ripostó Mignucci.

LA ACTIVISTA ambiental indicó en

Militancia de \os opositores a fa planta

CERCA DE 20 organizaciones sindicales, ecologistas, y comunales marcharán mañana sábado en Mayagüez en pro testa por el establecimiento de la planta para generar energía Cogentrix, en esa ciudad.

Enunaconferenciadeprensaconjunta,representantesde algunas de las entidades que protestarán establecieron que esperan del gobierno una decisión favorable al proyecto, que a su juicio es un primer paso hacia la privatización de la producción de energía en Puerto Rico.

La marcha discurrirá desde la Escuela Superior Vocacional de Mayagüez hasta la Plaza de Recreo y dará inicio a las 6:00 de la tarde. Desde San Juan, saldrá a las 3:00 de la tarde una delegación desde la Universidad de Puerto Rico, Recinto de Río Piedras rumbo a la manifestación.

La Dra. Julia Mignucci, portavoz de Mayagüezanos por la Salud y el Ambiente, uno de los grupos participantes en la marcha, indicó que probablemente se presenten hasta 5,000 personas para la actividad.

Igualmente ayer los portavoces de los organismos involu crados denunciaron una campaña "de engaño" al país. "Aquí sobra la electricidad", dijo Jorge Fernández Porto, de Misión Industrial.

Sostuvo que en mayo de 1992, se sometió a la AEE una propuesta del Consorcio de Energía del Caribe, compuesto por inversionistas europeos y estadounidenses, operadores y fabricantes de equipo eléctrico, dirigida a construir y operar dos plantas para generar energía eléctrica.

UNA DE ellas, de 150 megavatios, sería construida en Rincón y la otra, con la misma capacidad, sería construida en La Romana, República Dominicana. Entre las dos plan tas, se propone tirar un cable submarino para interconectar el sistema eléctrico de ambos países.

Según las cartas entre la AEE y el proponente, mostradas ayer, el combustible a usarse sería Orimulsión, que es un petróleo sumamente denso y pesado proveniente de la re gión del Orinoco en Venezuela.

"La AEE y la Cogentrix han estado durante tres años tratando de convencernos de que la plpta de carbón es necesaria porque nos vamos a quedar sin electricidad, sin

entrevista con este diario que las plantas quevisitaránlostresmiembrosdelaJunta de Gobierno de la JCA son más pequeñas quelapropuesta,quemanuncarbón más "limpio" que el que se pretende utilizar aquí y no utilizan un cuerpo de agua, como es la Bahía de Mayagüez, que ya se encuen tra bajo presión ambiental.

Por su parte, Maldonado Ojeda indicó que ninguno de los miembros de la JCA se dejará "presionar" por "ninguna de las par tes envueltas en el caso de Cogentrix".

Los funcionarios públicos visitarán las facilidades de la Cogentrix en Portsmouth, Virginia, y de Rocky Mount en Carolina del Norte y estarán ausentes hasta el lunes, cuando se espera ya estén de regreso.

Mientras, el Dr. Máximo Cerame Vivas, consultor ambiental de la Cogentrix, indicó que la gerencia de esa corporación le daba la bienvenida a la visita de los funcionarios. "DE ESTA forma podrán comprobar so

bre el terreno que

ogentrix esunacompa ñía competente y para usar zalas másavanzadastecnob^paracarbón sin afectar el ambiente , rame Vivas.

ElconocidocientíficoPf^Sfián' dicóque losmiembrosde laJ por ellos mismos, cuál sera la visitay lasáreasespecificasquedesean tar.

Desde hace casi dos semanas la Gobierno, delibera sobre los mentos de las garantías ambientales que presento la gentrix para la protección de los recureos naturales y la salud del área de Mayaguez.

MALDONADO OJEDA negó que los miembros de la Junta de Gobierno esten divididos, como ha salido a relucir en la Prensa; pero el viaje de los funcionarios públicos en este momento no ha ayudado a calmar los ya caldeados ánimos en torno a esta planta de cogeneración de energía.

La Dra. Julia Mignucci con ia ciudad mayagüezana de trasfondo. embargo, la propuesta "Puerto Rico-Dominican Republic Power Generation and Interconnection Project" señala que el propósito principal es venderle energía eléctrica a la Repú blica Dominicana. De hecho, señalan que podrían vender hasta 2,100 millones de kilovatios a la Corporación Domini cana de Electricidad, aún antes de construir la planta en Rincón", dice el comunicado.

"No sólo se confirma que la AEE tiene energía sobrante para vender, sino que también confiamos lo que veníamos denunciandodesdehacetiempo:laCogentrixvenderáelec tricidad a la República Dominicana", agrega.

SEGUN EXPLICARON los presentes en la conferencia de Prensa "la prioridad es las plantas gemelas (cuyas matri ces son las 936 en Puerto Rico) en la República Dominicana".

Se esperaba que ayer se produjera la decisión de la JCA, sobre los documentos ambientales de la Cogentrix, acción que ajuicio de los representantes de la marcha es equivalen te a "un amarre" para el próximo gobierno.

No obstante, se han expresado objeciones de los candida tos a la gobernación a la planta, al igual que de los candida tos a la alcaldía mayagüezana.

"Una propuesta rutinaria"

Por su parte, José A. del Valle, director ejecutivo de la AEE, lo calificó como "una propuesta más, de las muchas que regularmente recibe" esa empresa pública de las compa ñías privadas.

Asimismo descartó que la AEE proyecte vender la electri cidad a la República Dominicana.

"ESTA GESTION es casi una rutina en esta corporación pública, las cuales la AEE tiene la obligación ministerial de atender", dijo el funcionario público en un comunicado de prensa.

Del Valle indicó que la propuesta -proveniente de una corporación privada- se estaba sacando fuera de contexto y que se estaba dando ia impresión que la misma era ya un hecho.

Pedro Maldonado Ojeda: visita a algunas de las plantas generadoras de electricidad.
W&

Ira ciudadana hacia Cogentrix

MAYAGUEZ - Miles de personas participaron ayer en una marcha para expresar su repudio al proyecto de la empresa Cogentrix, que desea establecer planta cogeneradora de vapor y energía mediante la quema de cflrbón

Losmanifestantesconsideranquela'"stalaciónpropuesta por Cogentrix afectará la salud de los residentes de la zon oeste, asi como la ecología de la región y reclamaron que el gobierno descarte ese proyecto. .,„:prr,n p Grupos ambientalistas, religiosos y sindicales se unieron a la entidad comunitaria "Mayaguezanos por la Salud y el Anibiente" para demostrar su rechazo al proyecto de la Cogentrix, el cual es apoyado por la Autondad de Energía Droyecto de la Cogentrix, empresa a la cual planifica unirse la entidad española ENDESA, que financiana parte del polémicoproyecto,esrespaldadopor establecidas en Mayagüez, operación de la instalación, si finalmente se construye Sin embargo, empleados de las atuneras «f manifestantes y repudiaron el proyecto pn el acto al corear pnnsisnss como cflrbón es muerte ^ j i

La marcha también fue encabezada por P°'djCos de^^^ tres partidos inscritos que aspiran a ocupar la poltrona mu "'los PREsYdENTES de los partidos PoPular Democrá tico y Nuevo Progresista, Victona Muñoz Mendoza y Pedro Rnsselló resoectivamente no asistieron a la marcha.

■'Ita^bXéia,nd,datoyobem»do,ddPamgtadependentista Puertorriqueño, Femando Martín, a^stio a 1 "Marcha contra el Carbón", que culmino en la Plaza Colón ^^"Vktonfy Rosselló debieron estar aquí", manifestó a periodistas el representante fué quien viajó a Mayagüez para participar en la marcha que recorrió una ruta de unos tres kilómetros.

Por su parte, Carlos Gallisá, secretano general del Parta «Socialista Puertorriqueño, al ser preguntado sobre la ausen cia detsSSidTtSs a gobernador de los partidos Popular Democrático y Nuevo Progresista en el acto, concluyo que "no hicieron falta".

Negro el panorarna productodelcarbón

Por THE ASSOCIATED PRESS

EL REPRESENTANTE popular Alfonso López Chaar calificó de "engañoso" un anuncio de la compañía Co gentrix que describe al carbón como la fuente de enernía del futuro en Puerto Rico. ,. « • El Presidente de la Comisión de Desarrollo Socioeco nómico V Planificación de la Cámara de Representantes diio aue "el futuro que nos presenta la Cogentrix es Sbrío y nos llevarla al desastre de someternos a su '"Tñííóqueestaempresa"tieneensuPOderestudios í'iontiflros donde se muestra que la energía solar y el 'fÜÍ son las verdaderas alternativas para obtener viento son las y los seres humanos . energía se producen acLopez Chaar d^ q vatios por 500 XaSbs ® adicionales de enerva g¡ ggso de Minnesota, También puso corn^ proyecto, firmó los contra que después de p megavatios de energía utili- v^río prPmariaparaoManararar-

Cogentrix pushing for plant approval Firm wants to wean island frotn oil

Cogentrix Inc. has discovered existencial angst isn't just for Shakespeare's Hamlet.

For three years now the Charlotte, N.C.-basedcompanyhasbeennegotiating with the Commonwealth to build a $520 million coal-fired power plant in Mayaguez.

It's the first concrete effort to wean Puerto Rico from its 98 percent oil dependence. Whether the project will see the light of day remains a burning issue. Last week, the Environmental Quality Board postponed until Mayalong awaited decisión on the project.

Company officials believe it's haunted more by political spectres than environ mental ones.

"Yon have to leam to be a politician" to do businessin Puerto Rico,saysJames F. Peedin, sénior vice president,

But the fact is few people in Puerto Rico know much about Cogentrix, its financial health, or its environmental reputation in the states, where it operates six co-generation facilities in North Caro lina, Virginia and Pennsylvania.

Company documenta show Cogentrix had 1990revenue of$209.5 million,up61.5 percent from 1988.

One reason revenue is growing astronomicaWy is that since late 1985 Cogentrix y>as loeen opeiúng co-generation plants at the rate of more than one a year.

ThispushedCogentrixtothetopofInc.

magazine's 1990 list of the U.S.'s 500 fastest-growing companies for the second consecutive yeéir.

Valué Line Investment Survey reporta that the outlook for coal related compa nies is rosy,owing to federal environmen tal pressure on electric utilities to cut certain emissions this decade. Many elec tric utilities will be tuming to low-sulfur coal, the report predicts.

Cogentrix apparently has been riding ¡ thistrend.Itsplants burnlow-sulfurcoal to produce steam, which then is used for ' electricity.Some ofthe steam also issold to private industry,such as chemical and pharmaceutical companies,for manufacturing purposes.

Thusfar,the company's environmental record is clean.

"We haven't had any problema with them that l'm aware of," says Michael Aldridge, compliance supervisor at the North Carolina División of Environmen tal Management.

Since 1986, some of the Cogentrix plants have registered "relatively minor" violations of environmental compliance, state officials indicated.

Such violations include exceeding met al and acidity emissions in water. No fines were levied against Cogentrix and the problem areas are now in compliance.

The worst recorded violation — a 10,000 gallón acid spill — occurred four years ago, during the startup of the Portmouth,Va.,plant.Nomajorenviron mental damage was reported, Virginia officials indicated.

"The violations are so scattered there's no real pattem of improper operation," says Robert McEachern, compliance manager at the Virginia State Water Control Board.

COGENTRIX

Still, there is pending litigation involving two of Cogentrix's 10 power plants. Company ofñcials have said one North Carolina suit involved dust problems dur ing plant construction. Another suit, filed in Virginia, relates to noise disturbances that occur at a rate of once a year, they said.

The federal Environmental Protection Agency now is reviewing Cogentrix's Prevention of Significant Deterioration of Air Quality permit for the Mayaguezsite.

EPA officials declined to comment, saying a final decisión hasn't been made.

In Puerto Rico, environmental groups are nervous about Cogentrix's use of coal.

a cheap and widely available fossil fuel.

Coal generales such pollutants such as sulfur dioxide, fly ash, and carbón diox ide, which have been Úamed for permanent lung damage.

But the fact is electric utilities genér ate some of these pollutants as well, including sulfur dioxide. This is why the federal government has tightened pollution standards for such utilities.

Some experts say coal, under cpntrolled circumstances,is a better alternative than natural gas, which can cause explosions. It's also superior to nuclear energy, which can result in radioactiva leaks and to oil.

"If you have an oilfire you have a very dangerous fire. If you have a coal fire, you have a barbecue," quips environmentalist Máximo Cerame Vivas, consultant to Cogentrix.

The federal Clean Air Act Amendmentsof 1990 mandato coal-power plants tosécurethe bestavailabletechnologyto reduce toxic emmissions.

"The plants we have in operation just could not be built today," Cogentrix's Peedin explains.

Cogentrix expects the proposed Maya guez plant to be the company's most modern and efficientfacility.Italso will be the cleanest and most expensive, Peedin noted.

The $500 million plant is so costly that the cash-strapped Commonwealth gov ernment cannot afford to build the plant

itself. The Puerto Rico Electric Power Authority had earlierselected the Maya guez site for a $300 million oil-powered plant, Mayaguez's first.

The proposed coal plant would supply energy to the entire west coast. It's estimated Cogentrix wouldsave the gov ernment up to $106 million in electricity costs over a 25-year period.

"This is a great altemative to introducing another source of energy in Puerto Rico," says José Del Valle, PREPA director.

Cogentrix has promised PREPA the plant would be available for operation 85 percent of the time, which is higher than PREPA's own 65 percent availability record.

Cogentrix's has sought a 50 percent partner for this venturo: Empresa Na cional de EHectricidad S.A. The Spanish firm,known as ENDESA,is Spain's largest elecricity generator, producing 32 percent of total electricity m 1990.

By next October, Cogentrix expects to have spent about $30 million in environ mental monitoring, consulting and nego tiating contracts for the Mayaguez project.

"That's more than we expected," savs Peedin.

He, nonetheless, is optimistic that Puerto Rico can "reduce the government political burden of doing business here without impacting the environment negatively."

Artist's renderíng of proposed Mayaguez coai-burning power plant. At left is Cogentrix official James F. Peedin.

Dudas sobre el efecto ambiental de Cogentrix

EL DEPARTAMENTO de Recursos Naturales(DRN)y el Servicio Federal de Pesca y Vida Silvestre (FWS por sus

lunfa de Dirigentes

La Junta de Dirigentes convocada para el día 6deagostode1992,hasidocanceladaanteel

sensible fallecimiento del padre de nuestra compañera Lilliam González Pumarejo.

Federación de Maestros de Puerto Rico

¡LuchandoUnidos!

wsiglas en inglés)aún albergan seriasdudassobre el efecto que tendría la planta dela Cogentrix en la bahía de Mayagüez. Luego de un aflo de intercambiar correspondencia y so meter contestaciones,la Cogentrix no ha satisfecho varias interrogantes sobre el impacto que tendrá la planta en las especies en peligro de extinción (manatí antillano, pelícano marrón,tortugasmarinas),losorganismosclavesenlacade naalimenticia yenlasáreasdealimentación yanidajeenla bahía mayagüezana.

Esta correspondencia de las agencias fue divulgada ayer en conferencia de prensa por Neftalí García, veterano ambien talista y candidato independiente a un escaño por acumula ción en el Senado en las próximas elecciones.

En 1991, estas dos agencias emitieron sendas cartas cues tionando varios aspectos del proyecto,luego de evaluar la Declaración de Impacto Ambiental(DIA)preliminar pre sentada por Cogentrix.

Variosmesesdespuéslascontestacionesaesasinquietudes fueron vertidasporlaCogentrixensu SuplementoalaDIA preliminar, sobre el cual actualmente delibera la Junta de Calidad Ambiental (JCA).

PEROEN los mesesdejunio yjuliodeesteaño,elDRN y el FWS manifestaron que aún existen serias dudassobre ios efectos al medio ambiente, en particular a la ecología de la bahía de Mayagúez.

"El Departamento no puede aceptar categóricamente la conclusióndeque nohabráimpactosobrelasespeciesmari nas sin tener el beneficio de evaluar en detalle la técnica y el sistema propuesto para la protección de estosorganismos", indica una carta de siete páginas que le envió Santos Rohena Betancourt,«ex presidente de la JCA y actual secretario del DRN a Pedro Maldonado Ojeda, titular de la JCA.

"El proponente deberá presentarle a la Junta esta infor mación antes de que se acepte la DIA preliminar como final", concluyó Rohena Betancourt.

Mientras, el FWS, en una carta más detallada y extensa

insatisfechas dosagencias con las garantios de protección ai ambiente presentadas por la empresa

Neftalí García (10páginas)queladelDRN,citó hastasiete razonesprinci palesporlascualesaún esaagenciafederalnoestásatisfecha con las garantías de protección ambiental que hasta el mo mento ha presentado la Cogentrix. Entre éstas se eneuentran la eficiencia del "sea water scrubber",queescuestionadaalolargode variaspáginasde lacartacomo unatecnología queapenasse hacomprobado y que ha sido adoptada por una planta en la India, con prioridadeseconómicasdiferentes a lasde Puerto Rico y que no necesariamente son cónsonas con la protección del me dio ambiente.

EL NUEVO DIA-MIERCOLES 5 DE AGOSTO DE 1992

Paralizado el permiso a Cogentrix

PONCE- El Cuerpo de Ingenieros de Estados Unidos detuvo el proceso de otorgamiento de los permisos para el establecimiento de la planta de carbón cogeneradora de energía eléctrica de la empresa "Cogentrix".

Carmelo Cáez,director del área de permisos del Cuerpo de Ingenieros, indicó ayer a EFE que la determinación del organismo estuvo basada en que la compañía no les ha presentado los documentos pertinentes para obtener el permiso.

• •

Cáez explicó Que la "Cogentrix" no ha realizado bioensayos para someterlos antes de que la solicitud de permiso pueda considerarse completa".

Además, dijo que tiene una solicitud de permiso de la "Cogentrix", pero que la compañía no ha completado el estudiodelimpactodeldragadodelaBahíade Mayagüez y la disposición del material dragado en el océano.

"HASTAESTE momentolasolicitud estáincompleta y por lo tanto no se está procesando la solicitud de permiso poicfue ellos tienen que Ivacex unos bioensayos y someter los resulUdosaquí antes de quelasolicitud se pueda considerar txf/37p/e£3 sostuvo e/ ñinc/bnan'o /édera/.

La "Cogentrix" intenta establecer en el municipio de Mayagüez una planta de carbón cogeneradora de energía eléctrica y espera por la aprobación de la declaración de impacto ambiental por parte de la Junta de Calidad Am biental (JCA).

Se espera que la JCA anuncie su determinación hoy.

"Ellos(Cogentrix)han estado coordinando con nosotros los parámetros para los bioensayos", apuntó.

Cáez dijo que en los bioensayos"Cogentrix" tendría que indentificar los organismos marinos que serían objeto de esas pruebas.

Indicó que le comunicó a la"Cogentrix" que el Cuerpo de Ingenieros estuvo de acuerdo con el protocolo para los bioensayos, y que podía proceder con los análisis, pero que aún no lo ha hecho.

"Mientrasellosnosometanesolasolicitudestáincomple ta. Una vez se someta, se evalúa, para luego sacar un aviso público", añadió Cáez.

Cáezsostuvoqueelanunciopúblicoalquesereferíaesun "documento que describiría el proyecto de 'Cogentrix'" , que son enviados para comentarios a todaslas partes intere sadas en el asunto".

DE OTRA PARTE,el presidente de la Cámara de Repre sentantes,José Ronaldo Jarabo,anunció la creación de una comisión especial para evaluar el caso de la planta de carbón de la empresa Cogentrix.

Jaraboindicó quelosintegrantesdeesa comisión,incluso, viajarían a Estados Unidos para examinar en funciones a plantas de carbón como la que propone la Cogentrix para el municipio de Mayagúez.

El Presidente de la Cámara dijo que la comisión sería presidida por el representante mayagúezano José Guillermo Rodríguez.

Sin embargo.Rodríguezadelantó que noaceptará presidir dichacomisión porqueestáconvencidodequela plantade carbón no es la solución al problema energético de Puerto Rico.

Pensando en el costo y en el beneficio yo no creo que el área oeste pueda ser el patito feo de Puerto Rico,afirmó Rodríguez.

Jarabo,que se opone a la planta,opinó que se le debe dar una oportunidad al nuevo gobernador y a su administración a evaluar con más tiempo el proyecto de la Cogentrix.

Se lava las manos el Gobemador

Por NILKA ESTRADA RESTO

De El Nuevo Día

EL GOBERNADOR Rafael Hernández Colón no apoyó ni rechazó la construcción de una planta cogeneradora de energía en Mayagúez, y dejó en manos de los técnicos de la Junta de Calidad Ambiental la decisión sobre el futuro de la Cogentrix.

Elsábado,milesde mayagúezanosmarcharoiien protesta por la ubicación de la Cogentrix en su municipio y precisa mente ayer el Cuerpo de Ingenieros de Estados Unidos detuvo el proceso de otorgamiento de permisos aduciendo que la solicitud de la planta está incompleta.

Mientrastanto,el presidentedelaJCA,Pedro Maldonado, pospuso la semana pasada la decisión de autorizar o no laconstruccióndelaplantapararealizarvisitasainstalaciones similares en Virginia y Carolina del Norte. Se espera que el organismo tenga lista su decisión hoy.

"La directriz que tiene la Junta de Calidad Ambiental y que yo personalmente se la di al presidente(Pedro Maldonado) es que descarguen su responsabilidad con el pueblo de PuertoRicoporellibro",manifestóayerHernándezColón. Esto quiere decir, explicó, "díganlo como es. Si hay proble maambientaldiganquehayproblemaambiental.Sinohay problema ambiental digan que no hay problema ambien tal".

"Entonces,vamos para adelante con la decisión que uste des hagan porque en el aspecto técnico ustedes son los que tienen el conocimiento y los recursos para resolver este problema al pueblo de Puerto Rico",añadió,al explicar sus instrucciones a Maldonado.

La oposición a la planta en Mayagüez se fundamenta en la contaminación ambiental que se cree que produciría la operación allí de la Cogentrix. Los tres candidatos a la alcaldía de Mayagúez se oponen a la construcción de la plantaasícomoelcandidatoalagobernación porelPartido Independentista,Femando Martín.Los otros doscandida tos,VictoriaMuñozporelPartidoPopularyPedroRosselló porelPartidoNuevoProgresista,nohan fijadosu posición.

LA OPOSICION a la planta de carbón se fundamenta eii lacontaminación ambientalquesecreetraería unainstala ción de este tipo en Mayagüez. Allí se rumora que Hernán dezColón y la Autoridad de Energía Eléctrica respaldan el proyecto y que uno de susobjetivoses vender energía a la República Dominicana. Pero ayer el Gobernador ni apoyó ni rechazó la planta,aunque dejó la puerta abierta para el establecimiento de la misma.

"Puerto Rico tiene un problema de capacidad energética un problema que se va a agudizar en los próximos años"' manifestó Hernández Colón al señalar que el gobierno pro yectaqueabasedelcrecimientoenlademandadeelectrici dadPuertoRiconecesitacapacidadgeneratrizadicional."O de lo contrario de aquí a dos o tres años nosotros vamos a tener problemasdeapagonesmuyserios,muydistintoalos apagones que tradicionalmente hemos sufrido porque sería un problema estructural de capacidad generatriz",indicó. Lasplantasdecarbón plantean problemasambientalesal igual que las nucleares y las que funcionan con petróleo o gasnaturalyentodosloscasosserequiereelusodetecnolo gía para lidiar con el problema ambiental, dijo el goberna dor. Los problemas ambiental,de seguridad y de salud se tienen que enfocarcomo asuntostécnicos y los profesionales en ese campo son los que pueden opinar, añadió.

Una niña en hombros de su padre participa de la marcha de"no al carbón",celebrada en Mayagüez el sábado pa sado.

■ L ® J nuevo DIA-MARTES 11 DE AGOSTO DE 1992 ^

La Cogentrix, sobre el tapete legislativo

LA CAMARA de Representantes dejó sobre la mesa en la sesión de anoche una resolución paraexpresarelrechazo alesta blecimiento de la planta cogeneradora de energía eléctrica mediante el uso de carbón de la empresa Cogentrix.

Tras un intenso debate se resolvió no aprobar la misma de la autoría del repre sentante popular, Alfonso López Chaar,de bido a que dos comisiones no han rendido un informe relacionado con la investiga ción sobre el impacto ambiental y los ries gos de salud, a pesar de que la investigación hace dos años fue comisionada.

El25 deJuniode 1990,la Cámaraapro bó la resolución 1561, presentada por los legisladores Víctor Rodríguez Rodríguez y Víctor Negrón Padilla, que ordenó a las comisionesdeSalud yBienestaryRecursos Naturales y Calidad Arribiental, la investi gación sobre la Cogentrix. Las comisionp tenían 60 días para radicar el informe, lo cual dos años después no han radicado.

Mientrasse debatía la resolución de Ló pezChaarselevantólainterrogantedeque esas comisiones no habían bajado dicho informe necesario para la Cámara anticipar o no su rechazo al establecimiento de la planta y se optó por dar oportunidad a dichas comisiones a informarle al Cuerpo sus gestiones sobre Cogentrix.

ASI,se votó a viva voz para que la reso lución de rechazo quedara sobre la mesa. La medida señala que los esfuerzos deben ir dirigidos, al igual que en otros países del mundo a buscar fuentes de energía alternas al petróleo y sus derivados y que no tengan un impacto ambiental adverso.

Mientras que la resolución que lleva dos añosencomisiones,proponecelebrarvistas públicas en Mayagüez para recoger los da tos suficientes para evaluar responsable mente la situación, especialmente sobre d impacto que en el ambiente y en la salud del pueblo pueda tener la operación del proyecto.

Además, sugiere que se detengan en la etapa en que se encuentran actualmente cualquier transacción o acuerdos que se es tén realizando en las agencias de gobierno sobre los permisos correspondientes para el inicio de construcción del proyecto, hasta tanto se ausculte el sentir de la comunidad. Por otro lado, la Cámara Baja debatía una resolución de felicitación a la tenista puertorriqueña Beatriz "Gigi" Fernández con motivo a la medalla de oro obtenida en los Juegos Olímpicos de Barcelona.

Tras un intenso debate queda sobre lo mesa el rechazo cameral a la planta cogentrix

Los representantes independentistas Da vid Noriega, Hiram Meléndez y el popular, Héctor LópezGalarza,se opusieron tenaz mente a la aprobación de la medida. Norie ga hizo un llamado a los "compañeros na cionalistas" que defendieron el idiorna y la autonomíaolímpica,paraque noleimpar tieran su aprobación. "En lo único que tenemos personalidad nacional, es en el de porte, en la medida que se debilite, nos acercamosalos EstadosUnidos',dijo Noriega.

AUNQUE ENTENDIO la posición de aprobación que dio la delegación novoprogresista por su pensamiento estadista. Noriega reclamó de los populares el voto en contra."Notenemos nada en contra de la señorita Fernández,se ha destacado, pero tenemos que ver esto dentro del contexto que se desarrolla la política nacional y el deporte internacional".

López Galarza se expresó "totalmente de acuerdo" con las expresiones de Noriega. "Yo soy autonomista, pero no puedo, aplaudir a una persona que se ha negado a representar al país por urias posiciones per sonales que respetamos", dijo.

impact statement last week by unanimous vote.

The second declaration by the association came after a review of the 5,000-page supplement to the plant's original environmental impact statement by an ad hoc committee.

The president of the Engineers Association decried as "premature" the recent endorsement of a 300 megawatt coal-fired plant by the Commonwealth's environmental watchdog agency, saying vital information about its impact is still missing.

The criticism was aired at a newsconference Thursday at which the professional guild reaffirmed its earlier opposition to the plant.

According to association president Miguel Roa Vargas, the Environmental Quality Board's endorsement was "not only premature," but lacked "basic guarantees" to protect the well-being of area residents.

The $525 million plant is a joint venture between North Carolina-based Cogentrix Inc., and Spanish utility giant ENDESA.

The EQB endorsed the proposed plant's environmental

Roa Vargas said the association asked the EQB to delayitsdecisión untilitsad hoccommittee had timeto examine the"voluminous"supplement,as had the plant's opponents.

The supplement. Roa Vargas said, left too many importantquestionsunanswered."Therearen'telements in the supplement for us to be able to evalúate (the testing of pollution controls), and the Environmental Quality Board didn't have that either.

"That is what we are worried about."

Rather than addressing the more difficult questions hea4-on, the EQB delegated those responsibilities to federal and local permit-issuing agencies. Among the unresolved issues listed by the committee were:

■ The reliability of the saltwater scrubber technology. The scrubber system is the linchpin of the pollution,controlsystem,and hasnotbeensubjecttorigorouslongterm testing.

■ The plant's effects on marine Ufe in Mayaguez Bay. The plantwould raisetemperaturesand aciditylevelsin the bay,the effects of which on surrounding Ufe forms has not been subject to rigid analysis.

■ How large amounts of incinerated coal ash would be disposed of. The plant would generate 140,000 tons of ash per year,and the plantfacility hasonlya15-daystorage capacity.

In the plant's favor, association did say that the supplementsatisfied theirconcernsabout mufflingnoise pollution.

EQB Cogentrix decisión called 'premature' Engineers Association says endorsement lacks some 'basic guarantees'

Roa Vargas also reiterated the association's support for the use of coal as an energy source on the island, and lamented what he considered a case of"mass hysteria' on the part of some of the plant's opponents.

"We've been using coal here for 10 years,and until Cogentrix came along,nobody had complained," he said, in reference to a Poncecoal-fired plantoperated bythe Puerto Rico Cement Company.

ThelocationóftheproposedCogentrix-ENDESA plant, however,near densly-populated settlements and across the streetfrom a newly builtschool continued to bethe association's foremost objection.

Stateside Cogentrix plants,several members pointed out, were on much larger properties that acted as a buffer zone between the plant and the surrounding population.

Onasepárate matter,theassociationstatedits"grave concern" over the island's imminent landfill crisis, and called for public officialsto reconsider the buildingofa trash-to-energy incinerator in San Juan.

Nearly three-quartersofthe island'sexistinglandfills are in violation offederal guidelines.In San Juan,only five years of utility remain for area's largest facility on Kennedy Avenue.

Failuretotake promptaction,the association warned, would aggravate the island's environmental woes. A trash-to-energy facility would kill two birds with one stone, members argued, by alleviating the solid-waste problem while satisfying increasing energy demands.

lii: ÍÜÍí- -U -T,lí- i í ■<'-I' ^

EL NUEVO DIA-JUEVES 20 DE AGOSTO DE 1992

Romero califica a la "Cogentrix" de inne^rá

HllO

*-» i _ r» de esas plantas", dijo en entrevista con The As

Por LAURA CANDELAS

De The Associated Press

PiTiriíTO RICO no necesita construir otra planta de .eS düo ayer «1 » gobernadorCarlos Ronrero Barceló quien opinó que el país «ene la capacidad para "'^rde™ ¿S,íxSrdSararNo"1.?cefalra",di^ Romero Ba?cel6quien, sin embargo, no se opone a la gene^deSd??utntSS'«ro«& ^ Sn=™» ou" SsSS? S^-rsíSfefa^^ JS^^

Prcss. Dijo que se canceló un contrato que habla con la compa ñía Georgia Power Company que supervisaba el programa de mantenimiento preventivo. "Se debandaron las bngadas que llevaban a cabo el programa de mantenimiento, se han deteriorado las plantas al punto en que estaban detenoradas en 1977 cuando yo comencé, que escasamente están produ ciendo 200 ó 300 megavatios en exceso de la demanda, y con esa situación se va una planta y hay apagones' , dijo.

ROMERO Barceló dijo que si se estableciera nuevamente el programade mantenimiento preventivo, que dijo desarro lló durante su administración, seria innecesario la construc ción de plantas para generar más energía.

mero Barceló dejó entrever que podnan haber intereses imernameme, económicamente sociated

r programa de enfermedades INFECCIOIíac

Rechazo al establecimiento de la Cogentrix

A PESAR de la oposición generalizada de grupos ambientalistas y de ciudadanos del área oeste, la Junta de Calidad Ambiental acaba de darle su permiso a la planta de carbón Cogentrix para establecerse en Mayagüez. El Nuevo Día le preguntó a los candidatos a la gobernación:

¿Trataría de revocarle los permisos ya otorgados a la Cogentrix? ¿Cuán real es la posibilidad de que esta planta de carbón no se establezca si ha recibido el endoso del actual gobierno?

Candidata del PPD

ME OPONGO al establecimiento de la planta Cogen trix La determinación de la Junta de Calidad Ambiental en el caso de la planta Cogentrix no constituye un permiso para la construcción del proyecto sino una de terminación de que se cumplieron los requisitos proce sales y de contenido sobre el impacito ambiental de dicha propuesta. Aunque la determinación no constituye un permiso, viabiliza el continuar con las etapas subsi-

La decisión de la Junta de Calidad Ambiental ado(11^ ISSUE lece de deficiencias serias y no garantiza el cumpli miento con la política públi ca del medio ambiente, de la salud y la seguridad de los ciudadanos.

La Resolución que expi dió dicha agenciaguberna mental no satisface las ga rantías de protección ambíentaí \nd\spensab\es pasaaaVa daatíáM"\da.d. , Los estudios adicionales VaefgmgggTA Cregueridos al proponente por la Junta al momento de aprobarse el documento ambiental deberían haberse requerido y evaluado antes de que la Junta de Calidad Ambiental emitiera su deci sión Dichos estudios adicionales están relacionadcjs con asuntostalescomolatecnología a utilizarse porla Cogentrix hasta los impactos del proyecto sobre la ecologia marina y la calidad del aire.

La decisión de la Junta sera impugnada en los tribu nales,segúnse haanunciado.Estodetendrálosproce dimientos.Aliniciarse la próxima administración dego bierno la Cogentrix no tendrá los permisos necesarios. Estoy comprometida con el estricto cumplimiento de laLeysobrePolíticaPúblicaAmbiental-basadoeneyaluaciones objetivas, competentes y en una amplia parti cipación pública-, al igual que con el cum^imiento del debido procedimiento de ley que nuestra Constitución garantiza a toda persona.

A tal fin, denegaremos cualquier solicitud de permiso que no cumpla con los requisitos legales y reglamentar ios aplicables.

Candidato del PNP

ELPASADO3defebrero,anunciamosen Mayaguez quenosoponíamosalproyectoCogentrix.Presentamos nuestra posición muchoantesdeque la Junta de Cali dad Ambiental emitiera uno de los varios permisos que se.requieren para comenzar la construcción de la pro puesta planta cogeneradora de energía.

En aquel momento indicamos, y hoy nos reafirmamos, que variosinformescientíficos de grupos médicosres ponsables opuestos a la planta, presentan serias dudas sobre riesgos a la salud de los habitantes en la zona donde se propone el proyecto.

Faltan aún varios permisos de agencias federales y estatales paraque el proyectocuentecon unaaproba ción final. Informalmente nos hemos enterado que las agencias gubernamentales federales tienen reservas de bidoala posibilidad dedisminuirlacapacidad deadap tación del ambiente en el área donde la empresa Cogen-

Los ciudadanos del área Oeste han manifestado su repudio cogeneradora de carbón,Cogentrix.

trix propone el establecimiento de la planta. Estamos estudiando las alternativas viables que ten dría una nueva administración para lidiar cori una situa ción de permisos ya otorgados por el gobierno saliente, si ese fuera el caso de la Cogentrix y nuestro gobierno a partir de enero de 1993.

Nuestra posición sobreeste proyecto no hacambia do: Nos oponemos por entender que existen dudas razonables sobre la posibilidad de daños a la salud de los habitantes en la región donde se propone la planta. No obstante, responsablemente el gobierno tiene que establecer un efectivo programa de conservación de eneraia mejorar la eficiencia del sistema actual para disminuir la pérdida de un 10% en la generación de energía en Puerto Rico, como también iniciar a búsque dadefuentesdegeneración deenergía viablesque no afecten la salud y el ambiente, permitiendo nuestro de sarrollo económico.

Fernando Martín

Candidato del PIP

LA MANERA más efectiva y más rapida para detener la planta de carbón de la Cogentrix en Mayagüez es que lostrescandidatosalagobernación expresemos publi camente -ahora- sin ambigüedades ni condicionamien-

M

uñoz: 'LO decisión de lo JCA adoiece de seriosfolios'

Rosseiió: 'Existen dudas sobre posibles daños a la salud en el área'

Martín: 'Apoyo los esfuerzos de los ciudadanos encontrade la planta'

ai establecimiento de la planta

tos,que de ser electos no permitiremos la construcción de esta planta. No le quepa duda a nadie de que si asi se expresaran la senadora Muñoz y el doctor Rosselló, como lo he hecho yo, la Cogentrix detendría su proyecto aunque tuviera los permisos necesarios. "En guerra avisada no muere gente".

Es motivo de profunda decepción para mi y para el pueblo de Puerto Rico el que los candidatos a la gober nación del PNP y el PPD no hayan asumido una posición claraeinequívocacomolaquepropongoapesardeque les hiceesereclamoaambos públicamenteantesdela funesta decisión de la Junta de Calidad Ambiental. No hanestadoalaalturaquerequierenlostiemposylehan fallado a los intereses de nuestro pueblo y a nuestro ya deteriorado balance ecológico y ambiental. Reiteromiapoyoincondicionaly militantealosesfuer zos tanto jurídicos como cívicos que están llevando a cabo los ciudadanos de todos los partidos en el área oestecontraeste proyectotan adverso alinterés públi co, y los exhorto a que no cedan en su empeño por proteger a Puerto Rico aunque para ello tengan que darle una lección política a los candidatos a la goberna ción del PNP y el PPD. Sólo el repudio del pueblo a Ir Cogentrix yaloscandidatosquenolacombaten podn salvar al país de este desastre.

EPA convinced Cogentrix plant safe

Agency will hold public hearings on controversial plan

A top U.S. Environmental Protection Agencyofficialsaid Fridaytheagencyis convinced Cogentrix Inc.'s proposed 300megawatt coal-fired power plant won't contaminate the air around Mayaguez Bay.

But the federal agency nonetheless plans to hold public hearings into the matter, which has mushroomed into one of the biggest environmental controversies in Puerto Rican history.

"We at EPA have reviewed Cogentrix's application for a prevention ofsignificant deterioration [PSD] permit, and have found the application satisfactory," Con stantino Sidamon-Eristoff, administrator of EPA's Región II, told members of the Puerto Rico Manufacturers Association gathered in Dorado for their annual

convention.

"Weplantoholdpublichearingsonthe issue later this fall."

He added;"This has been the source of a good deal of controversy among local citizens, but let me assure you, as far as EPA's involvement in this issue goes, those citizens' voices will be heard and responded to."

Eristoff's announcement would appear to be encouraging news for Charlotte, N.C.-based Cogentrix, which along with Spanish utility giant Endosa, says the $540^millioh plant will reduce Puerto Rico s near-total dependence on imported oil.

Officials for Cogentrix could not be reached Friday.

But NeftalíGarcía,an environmentalist and Cogentrix opponent, immediately questioned the EPA's methods, claiming much of the statistical data used by the agency comes from Aguada, not Mayaguez.

"Why didn't they use data from El ManíAirportin Mayaguez?The meteorological conditions in Mayaguez are not equivalent to meteorological conditions in Aguada,"said García,who is running

for the Senate as an independent candidato.

"The EPA isn't exactly subtle in its analysis of this issue. They don't have enough personnel, and they do not necessarily know the tropical conditions present in Puerto Rico," García said. "They also depend too much on mathematical models ... I think a project like this requires data and empirical information obtained over a number of years in the area where the project is going to be built."

Yet Eristoff — whose jurisdiction includes New York, New Jersey, Puerto Rico and the U.S.Virgin Islands — said in an interview that Cogentrix"has satisfied from the air quality point-of-view all that is necessary to have the PSD permit deemed satisfactory."

Eristoff said that most likely, public hearings wouldn't be held until after the Nov. 3 elections.

In a Friday morning panel discussion on environmental issues, the PRMA which backs the Cogentrix project urged its members to "edúcate the pub lic" on the feasibility of using coal for power generation.

"The technology exists for using coal as a fuel without affecting the environment. We'll be committing a grave error if this alternative is eliminated," said PRMA President Daniel Lebrón. We must avoid emotion or collective hysteria, which in the case of Cogentrix tends to take away confidence in the regulatory agencies. When we disagree, we must use appropriate channels and present our argumenta in an objective and scientific way,and not use them to create hostility in the community."

On Aug. 1,some 10,000 Mayaguez residents marched in opposition to the Cogentrix facility, urging the Commonwealth's

But he added:"This is not the end of the road for Cogentrix as far as we're con cerned. They also need an NPDES[National Pollution Discharge Elimination System] permit. This requires the issuance of an EQB water quality certifícate. It also involves the question of whether or not there are endangered species affected, and whether or not we'll require a federal environmental impact statement."

Please see EPA, Page 8

Se intensifican las protestas en Mayagüez

Por RAFAEL SUAREZ

De La Agencia EFE

MAYAGUEZ - Las protestas de los opositores a la planta de carbón propuesta para Mayagüez continuó ayer cuando me dio centenar de quejosos piquetearon la emisora en que se entrevistaba al ingeniero Joaquín Calvo, miembro del Consejo Eje cutivo del proyecto Cogentrix-ENDESA.

Los piquetes se montaron frente a la emisora WORA(La Gran Cadena)en mo mentos en que Calvo se aprestaba a ser entrevistado por el mantenedor de un pro gramadeasuntospúblicos,elprofesorJosé

Elias Torres.

Laentrevista y la transmisiónseefectua ronsinincidentealguno,noempecelarui dosa protesta que incluyó pancartas y estri billos alusivos a la planta de carbón.

El piquete fue organizado por el juez superior Ramón Febus Bemardini, quien se opone tenazmente al establecimiento de la planta.

Al concluir el programa,el mantenedor

Torres restó importancia a la protesta y explicóquelaemisoraintenta quesu públi co obtenga la versión de los proponentes del controvertible proyecto, al cual se opo ne una gran parte del público del oeste.

MIENTRAS TANTO, Julia S. Mignucci, presidenta del grupo Mayagúezanos por la Salud y el Ambiente, expresó que los opositores incrementarán su activismo con tra el proyecto, máxime ahora que ENDESA se ha integrado de lleno.

La protesta es parte de una campaña iniciada recientemente, la cual va encami nada a neutralizar la iniciada por Cogen trix-ENDESA.

Los opositores piquetean toda actividad auspiciada por los proponentes, como me dio para enfatizar el repudio a la quema de carbón en la isla.

Lasemana pasadaseefectuóotro pique te, esta vez frente a un restaurante en el cual Cogentrix-ENDESA efectuó una de mostración de la técnica del lavador de gasescon agua de mar(-i-Sea WaterScrubber+),eje de una de las controversias.

Comienzan las vistas públicas de Cogentrix

ASVISTASpúblicasde consultasobrela ubicación de la planta cogeneradora de energía Cogentrix comenzarán este jueves en el terminal marítimo de la Autoridad de PuertosdeMayagüez,apesardelaprotestadelosopositores al proyecto.

Ayer venció el plazo para someter una reconsideración al respecto y ningunadelasparteshabíasometidoalguna,dijo a este diario un miembro asociado de la Junta de Planifica ción.

Por lo tanto, las vistas se celebrarán según lo acordado, comenzando mañana y continuando la semana entrante durante los días 8, 9 y 10 de septiembre.

Sin embargo,porlo menos un representante legal de un grupo de ciudadanos de Mayagüez y, por otro lado, la entidad Asistencia Legal, han solicitado a la Junta de Plani ficación -dentro de ese período de tiempo- que detenga las vistas públicas por varias razones.

El Ledo. Ramón Febus Bernardini, en representación de un grupo de ciudadanos de Mayagüez, entregó el pasado 27 de agosto a la oficina regional de la Junta de Planificación una solicitud para que se suspendieran las vistas públicas aduciendo conflictos de intereses dentro de la propia Junta ^ Planificación, conflicto de itinerario y de lugar en la Mebración de las vistas.

Febus Bernardini entregó personalmente al día siguiente, el viernes 28 de agosto, copia de la solicitud a la Ing. Patria

...Fas Alzamora )as objeta

Por LUIS A. FERRE RANGEL

De El Nuevo Día

UN LEGISLADOR delárea oestequierequelaJuntade Planificación detenga las vistas públicas de ubicación de la planta Cogentrix a causa de una nueva controversia en el caso, esta vez en torno a la titularidad de los terrenos. "Para evitar que continúen trámites burocráticos innece sariosen estecaso y en ánimode aclararestasituación que vaala médula del proyecto,le solicito citen a vista pública a la Compañía de Fomento Industrial para que produzca la evidencia sobre la titularidad de los terrenos en cuestión", lee parte de la carta que enviara ayer el senador Antonio Fas Alzamora a la comisión senatorial presidida por Ana Nisi Goyco que rindió un informe cuestionando las garantías ambientales del proyecto.

Según Fas Alzamora y los opositores al proyecto,la Com pañía de Fomento Industrial (CFI), agencia proponente del proyecto, no posee la debida titularidad de los terrenos puesto que éstos fueron ganados al mar y pertenecen al dominio público.

ELLEGISLADORdijoqueenla DeclaracióndeImpac to Ambiental Preliminar la CFI indica que parte de los terrenos fueron rellenados por la agencia en 1962 para ex tenderelbordedela playaconelpropósitodeusarla parael desarrollo industrial.

Fas Alzamora también hace referencia a una carta envia da por Santos Rohena Betancourt, secretario del Departa mento de Recursos Naturales a la Junta de Calidad Ambien tal, fechada el 21 de julio de 1992 donde especifica que "el terreno ocupa la zona marítimo terrestre, aguas navegables y los terrenos sumergidos bajo éstas".

"De resultar que esta información es la correcta...la CFI se vería impedida de conceder el uso de los mismos o disponer de ellos, pues los mismos serían de dominio público", dijo Fas Alzamora.

"En este caso la CFI no ha solicitado y menos obtenido de la Asamblea Legislativa la aprobación de una ley que con viertaen patrimoniodelaCFIlosbienesdedominio públi coqueconstituyen todoo parte substancialdel proyectoen cuestión", dijo Fas Alzamora.

El legislador anticipó que en la Legislatura no existían "los votos necesarios para aprobar" la legislación habilitadora que haría el traspaso de titularidad.

Custodio, informó una fuente a este diario. Por otro lado, el Ledo. Cardona, de Asistencia Legal, sometió el viernes una solicitud de desestimación de las vistas públicas aduciendo que la Junta de Calidad Ambien tal, a pesar de haber emitido su resolución, aún no había completado su proceso deliberativo, porque quedaban aún pendientes varias condiciones que debió haber sometido la Compañía de Fomento Industrial.

ENSU solicitud FebusBernardiniargumentaquelaIng. Patria Custodio, presidenta de la Junta de Planificación, es hermana de uno de los asesores de ingeniería del proyecto.

Custodio le indicó el lunes a El Nuevo Día durante una breve entrevista que se "abstendrá" de emitir comentario alguno con respecto al caso de la Cogentrix y refirió la llamada al Ing. Rodríguez, quien le indicó a este diario que ese día (lunes) se vencía el plazo para recibir peticiones. "Al día de hoy no hemos recibido nada", dijo Rodríguez. Febus Bernardini indicó también en su moción que para garantizar el mayor acceso a las vistas públicas, las mismas deberían llevarse a cabo no durante los días de semana, sino los fines de semana, y deberían celebrarse en otro lugar que no sea en el muelle de Mayagüez. "Mucha gente asocia el edificio de Mayagüez como un arma de intimidación", dijo la Dra. Julia Mignucci, de Mayagüezanos por la Salud y el Ambiente. Mignucci dijo que en esas facilidades no existen comodi dades como aire acondicionado y cafetería; y añadió que en el pasado el acceso al público fue restringido por el fácil control de la entrada gracias a la veija y portón en la misma.

Cuestionan ios muéstreos de la EPA

LOSPORTAVOCESde unos2,000residentesde Cataño que asistieron el lunes en la noche al Coliseo Municipal cuestionaron el Plan de Estudio sobre la calidad del ambien te de ese municipio sometido por la Agencia Federal de Protección Ambiental.

Enprimertérmino,algunosportavocespidieronquenose dependiera solamente en la red de estaciones de muestras de airequetienelaJuntadeCalidad Ambientalpararealizarel estudio de aire.

De hecho, varios residentes expresaron interés en conocer dónde físicamente se iban a colocar las estaciones de maes treo y qué exactamente iban a medir esas estaciones.

Aunque el Plan de Estudio preparado por la EPA preten deexaminarlacontaminación generaldelárea,losresiden tes están más preocupados por la calidad de aire de la Cuenca de Cataño, especialmente en el renglón de particula dos finos, donde se ha violado ya una vez el nivel federal.

EN SEGUNDO término, una de las portavoces de la comunidad,Rosa Hilda Ramos,pidió porque la Región II de Nueva York mantenga una relación másestrecha con su

oficina del Caribe y que le otorgue más poder decisional "A 2,000 millas de distancia ellos no huelen, ni sienten ei humo, ni la contaminación de Cataño", dijo Ramos "La petición quele hemos hecho esquela Región ílde Nueva York delegue más poder decisional a la EPA del Caribe para actuar como una fiscalizadora de la Junta de Calidad Ambiental",añadió la coordinadora comunal Ramos dijo que muchos residentes no confian de la cana cidad de la JCA para medircon efectividad la contamina ción atmosférica sobre Cataño.

Ayer durante todo el día personal de la EPA se reunió con toda aquella persona que acudiera a las oficinas de esa agencia para continuar con el diálogo público en torno al Plan de Estudio.

Ramos dijo que el Plan "adolece de serias deficienciasde las cuales destaco la dependencia de estaciones de mués' treo de la red existente administrada por la JCA

LA EPA ha indicado que instalará 19 estaciones He treo de aire, de las cuales 13 serán nuevas y el resto serán fa¡ pistentes. Aunque la agencia se ha mosLirrecen iva a ínteres de os residentes de participar en la selección y localt

El grupo opositor a la Cogentrix entregó una carta expresando sus puntos de vista a Patria Custodio, presidenta de la Junta de Planificación.
El legislador Antonio Fas Alzamora llamó a la Junta de Planificación a que detenga las vistas sobre la Cogentrixtoda vezque surgió otra controversia.

Pugnan por las tierras destinadas a Cogentrix

MAYAGUEZ - La Compañía de Fomento Industrial tendrá que demostrar con evidencia que los terrenos pro puestos para la ubicación de una planta generatriz con car bón en Mayagüez le pertenecen y no son de dominio públi co como alegan opositores a los planes de la firma Cogentrix-ENDESA. ,

La licenciada Nydia Rodríguez, presidenta del Comité Examinador de la Junta de Planificación,impartió órdenes a laCompañíadeFomentoIndustri^asícomoalosoposito res a la planta a presentar evidencia que sustente sus alega ciones.

El licenciado Angel M.Landrón,vicepresidente auxiliar a cargo de planificación y asuntos ambientales de la Compa-

EN UN ABRIR

Y

¡Ojo con tus oíos!aY3CENTER te garantiza; •Lentes estéricostransparentes por 45dias,iSomosios únicos!

• Garantizamos tus monturas por 1 año en caso de oxidación, desoldadurasen monturasde metalo puentes rotosen monturas plásticas.

•Encasodeerroren3Y3CENTER io corregimos en 48 twras, si no, te devolvemos tu dinero (excepto el costo del exámen y la mercancía consucorrecciónGRATIS.

2 ESPEJUELOS

en PLAZA del CARIBE MALL

2 ESPEJUELOS PARA NIÑOS Y ADULTOS DESDE

ñíade FomentoIndustrial,sostiene queesa agenciaes pro pietaria delosterrenos"seleccionados porla Autoridad de Energía Eléctrica para la ubiación del proyecto de la Cogen trix".

Sin embargo, asesores de la organización Mayagüezanos por la Salud y el Ambiente, presidida por Julia Mignucci, alegan que losterrenosfueron ganadosal mar y deben serde uso público.

Elsenadorpopular,AntonioFasAlzamora,tambiénoponente a la planta, alega lo mismo y sostiene que esto evita

que la planta se establezca. continúan EJECUTIVOS de la Cogentnx _¿er que la con los planes solicitando los permisos por Compañía de Fomento Industnal sostiene q problemascon losterrenosqueforman parte dos ya por la industria atunera y otras mdustnas. En los terrenos ganados al mar, sostienen ■ P. sentantes de Fomento, fueron ubicadas hace plantas de empacar atún que generan sobre cinco pieos directos.

Alarmante la automedicación

PONCE,(EFE)- El presidente de la Asociación Médi ca, José Román de Jesús, denunció ayer que es alta la incidencia de personas que se recetan medicamentos sin la previa intervención de un médico.

Así mismo, Román de Jesús sostuvo que también existela prácticadequefarmacéuticosrecetan medica mentos sin prescripción médica.

Comentó que esta práctica es ilegal y que ha ido disminuyendo, luego de las intervenciones de la Agencia Federal de Drogas y Alimentos y del Departamento de

Salud.

Apuntó durante entrevista radial en Ponce (WEUQ que esta práctica de "automedicarse" y de venta de medicinas sin prescripción médica, ocurre mayormente en poblaciones pequeñas O'intermedias del País.

"No sabemos una cifra exacta pero existe grande mente en pueblos pequeños e intermedios donde,por una tradición, el boticario ha sido un consejero y en cierto modo ha sustituido al médico", sostuvo Román de Jesús.

Instituto de Banca y Comercio

iksx '4i al prog también podría ser el tuyo'

•INTEGRAL BANCARIO

•SECRETARIAL

Con Word Processing

•LINEAS AEREAS Y TURISMO

•DELINEANTE

•TECNOLOGIA ELECTRONICA

•REFRIGERACION Y

AIRE ACONDICIONADO

monturas del grupo B y Spiriis.Visiónsencilla.Single Visión o Flab Top 28. S.V.±4.00 esfera ■ 2.00 C y I: F.i28+4.00 estera add. +2.o,No incluye otras olerías. Recetas iguales o distintas.

CAROLINA-768-0760/257-2520-CAYEY-263-7486/263-7487

GUAYNABO-790-9565 SANGERMAN-892-3430/892-3450

DOCTORESENOPTOMETRIA:Dr.DavidSalib-Dr.FemandoBenitez-Dr.JorgeLRoldán'

EL 30 DE SEPTIEMBRE DE 1992.

•PROGRAMACION DE COMPUTADORAS

Amilcar San Antonio Oficinista de Contabilidad Comeroiai Banco Santander de Puerto Rico

NUEVO DIA-LUNES 31 DE AGOSTO DE 1992

Contrario Colorado a la planta d© Cogsntrix

EL COMISIONADO residente en Washington y candi datoala reelección,Antonio J.Colorado,reconocióquela propuesta planta para generar energía con carbón a estable cerse en Mayagüez es una idea que no tendrá éxito.

"Los tres candidatos a la gobernación están en contra, la Legislatura en contra y el pueblo de Mayagüez también , reaccionó Colorado a preguntas sobre el futuro de la planta de carbón.

- a

Las opiniones del candidato popular a comisionado resi dente fueron hechas en el programa En Record , que produce la Asociación de Periodistas y que se transmitió ayer a las 9:00 de la noche por los Canales 6 y 3.

Sinembargo.Colorado,quienesun defensor y propulsor del establecimiento de más industrias como parte del desa rrollo económico en el país, dijo que eventualmente este sector necesitaráotrafuentedeenergía"seacon elcarbón o con otra fuente".

"HEMOS PERDIDO la confianza en las institucio nes...no sabemos qué es mejor...el carbón o el petróleo , opinó Colorado en torno a la polémica sobre la planta.

En estos momentos, la Autoridad de Energía Eléctnca respalda que la empresa Cogentrix construya una planta de carbón en Mayagüez.

De hecho, el presidente del Senado, Miguel Hernández Agosto, dijo en Ponce este fin de semana que solicitó un estudio adicional a la empresa "Southern States Energy Board" sobre el proyecto de Cogentrix.

HernándezAgostoindicóquefuncionariosdeestaempre sa viajarían al país para reunirse con representantes opuestos al proyecto Cogentrix. Los funcionarios se proponen exami-

que

nar los fundamentos científicos que los opositores citan para combatir la construcción de la planta de carbón.

Colorado reconoció
la Idea de establecer una planta de energía con carbón en Mayagüez no tendrá éxito.
una planta de carbón.

What you see is not necessaríly what is... The headüne beneath the photo at left states that there is a coal-tired generating píant out ot view and the text of the ad published by Cogentríx implíes that the photograph was taken in North Carolina, where the company has estabifshed plants. However, Cogentríx has admitted that the photo actually was taken in Aibonito. The photo above, taken by Misión Industrial, is of the ídentical scene with a cutout overlay of two children waiking and flowers in the foreground to emphasize the sameness to the photograph in the ad.

Cogentríx accused of doctoring ad photo

The partnership behind a controversial proposal to buüd a coal-üred plant was ^ccíxsisa^Ti/á-sú'éiy<?/'tfacioring a print advertisement, while company officials countered that the ad aims to show such a facility. wouJd not damage the environment.

The accusations were aired by a member of Mi sión Industrial outside a Planning Board hearing

over the location of the plant,andtheysurrounda full-page, full-color ad pub lished Aug. 27 in El Nuevo Día.

Cogentrix-Endesa, the two fírms interested in building a $525 million, 300 megawatt coal-fired plant in Mayaguez Bay, have invested more than $1 mil lion to win support for their plans. Amid oppositionfromtownspeopleand politicians alike throughout the island, the proposal received the go-ahead

from the Environmental Quality Board last month, whichclearedthewayfor the firms to pursue several other local and federal permits.

The ad features two La tino children waiking handin-hand in a lush, flowersprinkled meadow. Behind them is a skyline of pine trees and clearly defined mountain tops.

Written in the ads' bottom left córner is a caption stating; "Behind this there is a coal-fired plant." The

accompanying text reads, "The technology for producing electricity with coal is so advanced that it is already compatible with •nature."

"In places where pine trees and vegetation abounds, like in North Car olina," the text continúes, "Cogentrix has constructed coal-fired plants that serve humanity without damaging nature."

However, Misión Indus trial activists said the pho to was snapped not in

North Carolina behind a Cogentrix plant as the ad suggests, but here in Aibo nito, which does not have such a facility.

Misión's community organizer, Jorge Fernández, showed a photograph of an apparently identical site along Highway 717 in Ba rrio Pasto in Aibonito. The stand of pine trees on the left side ofthephoto and themountainrangeonthe right are unmistakably alike, but absent are the springlike flowers, which

Fernández said were potted.

The activists' photo graphispastedalongside theoriginal ad on a plac ará but with a new caption -thisonestating; "Behind this is a big LIE."

A spokeswoman íor Comstat Rowland Inc., the public relations firm that handled the ad, said the picture was taken in Aibonito.

Cogentrix Vice President James Peedin called the ad in question a "per-

En el aire la controversia sobre Cogentrix

MAYAGUEZ - La titularidad de los terrenos de la pro puesta planta de Cogentrix aún permanece en el aire a pesar de que la Compañía de Fomento Industrial presentó un extenso historial legal por el cual defendió su posición. En este segundo día de vistas públicas sobre la ubicación de la planta cogeneradora de electricidad, la Junta de Plani ficación optó por escuchar los argumentos de la CFl y concederleala AdministracióndeServiciosLegales15días, a partirdelafinalización delasvistaspúblicas,paracontes tar los argumentos de la CFI.

Durantelascinco horasdedebate,laoficialexaminadora de la Junta de Planificación, Leda. Nydia Rodríguez, indicó en variasocasionesqueresolveríaelasuntodelatitularidad ese mismo día.

Pero la fúncionaria optó por darle un plazo de tiempo extra a Servicios Legales,para que pudieran digerirtodala información que surgió durante las vistas.

Tanto la organización Mayagúezanos por la Salud y el Ambiente,como la Administración de Servicios Legales y Varios licenciados,entre ellos la licenciada

Hernández de Ramírez, Angel M.Landero y Faustino Chico de Fomento, discuten sobre Cogentrix.

DosintegrantesdeMisiónIndustrialconcartelonesseñalanla "gran mentira" detrás de la planta cogeneradora de carbón Cogentrix.

otros opositores del proyecto han impugnado la titularidad delosterrenosdePuntaAlgarrobodondese pretendecons truir la planta alegando que siendo terrenos ganados al mar, los mismos pertenecen al pueblo de Puerto Rico.

Ayer,la Administración de Servicios Legales dejó sobre el tapete varias interrogantes, de las cuales por lo menos una deberá ser contestada por la Junta de Planificación a su debido tiempo.

LA MISMA está relacionada con la vigencia del Regla mento Número 2 la Junta de Planificación en el cual se amparó el Departamento de Transportación y Obras Públi casen 1967 para registrar los terrenos ganados al mar como propiedad del Estado. .

El Ledo. Armando Carmona,de Servicios Legales,dejó entrever ayer que de ser esa la situación todo el proceso de titularidad de los terrenos quedaba nulo, puesto que la CFI no había renovado el permiso de adquisición de terrenos cada dos años como lo estipula el reglamento.

Por su parte, la Leda. Rodríguez, oficial examinadora, contestó que el reglamento no estaba vigente en 1967, pero dejólapuertaabiertaparaquelaspartesylapropiaJuntade Planificación investigaran más a fondo ese asunto.

Mientras el Ledo. Angel M. Landrón Sandín, vicepresi dente auxiliar para Asuntos Ambientales y Planificación de la CFI, presentó un marco teórico y prueba documental sobre la titularidad de las 27 cuerdas en cuestión que han sido ganadas al mar.

Miembros del equipo de trabajo de la CFI presentaron los títulos de la propiedad de todas las parcelas agrupadas, incluyendoaquellasrecuperadascuandolaCFIleganócer ca de 27 cuerdas a la Bahía de Mayagúez para su uso industrial.

EL PUNTO neurálgico de esta parte de la controversia es la interpretación de las leyes que rigep la zona mantimo terrestre que le da la CH, como la parte proponente y la

Administración de Servicios Legales,como una de las partes interventoras en el caso.

Por unalado,la CFI argumenta que losterrenos no son necesariamente patrimonio del pueblodePuerto Rico,sino que fueron pasados a manos del Gobierno en 1967. Este hecho quedó ratificado por el Gobernador de Puerto Rico en junio de 1991 cuando firmó una Orden Ejecutiva hacien do el traspaso uno gratuito.

Pero los opositores al proyecto, incluyendo al senador AntonioFasAlzamoraylosrepresentantesdelascomunida des de Mayagúez,argumentan que el traspaso de los terrenos no se podía hacer sin el consentimiento de la Asamblea Legislativa.

Mientras tanto, la Leda. Rodríguez, oficial examinadora de la Junta de Planificación, adelantó, tal y como lo hiciera hace unassemanasatrás el Ledo.Pedro Maldonado Ojeda, presidente de la Junta de Calidad Ambiental, cuando el caso se vio en ese foro, que anticipaba la impugnación de la decisión de esa agencia en los tribunales.

LAS VISTAS públicas sobre la ubicación de esta planta decogeneración deenergíacontinúanininterrumpidamente hasta el viernes, pero Rodríguez no se mostró confiada en que rindiera el tiempo y vaticinó la continuación de las mismas en una fecha posterior.

Por otro lado, la Dra. Julia Mignucci, coordinadora de Mayagúezanos por la Salud y el Ambiente, y Jorge Fernán dez Porto, coordinador de Misión Industrial, criticaron du ramente la campaña publicitaria en la prensa escrita de la Cogentrix, calificándola de "engañosa"

Previoaliniciodelasvistas,ambosactivistasambientales presentaron evidencia fotográfica en la que demostraba" que el anuncio publicadoen los periódicostitulado-"AflUÍ detrás hay una planta de carbón", mostraba un paisaie Aibomto, obviamente decorado con flores, donde no pxiste ninguna facilidad de ese tipo.

EL NUEVO DIA-SABADO 12 DE SEPTIEMBRE DE 1992

Expone su caso la Cogentrix

MAYAGUEZ - Ejecutivos de la firma Cogentrix-ENDESA comenzaron ayer su defensa de un controvertible proyecto de construcción de una planta generadora de ener gía a base de quema de carbón en Mayagüuez.

Los funcionarios de la empresa destacaron, entre otras cosas, el uso que se les dará a las cenizas, por qué se escogió la región oeste para su ubicación y cómo el proyecto supues tamente beneficiará a abonados de la Autoridad de Energía Eléctrica (AEE), así como a la industria atunera de la región. El ingeniero JeffFreeman, vicepresidente de desarrollo de la Cogentrix-ENDESA, explicó cómo esa industria desarro lló un método para la quema de carbón mineral "en forma limpia" en los Estados Unidos y cómo la planta propuesta para Mayagüez "servirá de ejemplo" para un próximo pro yecto, cuya localización no especificó.

Dijo que luego de estudiar otros lugares como Barceloneta, otro punto de la región norte, y Yabucoa, se determinó que el área de Mayagüez efa la más apropiada por tener el espacio necesario, por estar cerca al mar, y porque beneficia ría las plantas de empacar atún con la compra de vapor, según el funcionario. Entre otros puntos positivos por los cuales se escogió Mayagüez, Freeman mencionó que la Au toridad de Energía Eléctrica podría comprar a precios bajos la energía que alegan beneficiará a la región, según el funcio nario de la empresa.

UN PANEL examinador de la Junta de Planificación pasa juicio sobre la ubicación del proyecto que Freeman alega representa una estabilidad de precios en el servicio de energía para los abonados y a la vez reduce la dependencia del petróleo.

„ , Freeman añadió que Ja Cogentrix-ENDESA no lanzara

YUnidos operando plantas de este tipo que asegura no afectan el ambiente y mantienen una confiabilidad en el suministro de energía.

El funcionario de la Cogentrix-ENDESA señalo que la empresa se propone iniciar una campaña de orientación. Reconoció que no podrán convencer a todos sobre la necesi dad del proyecto y de que el mismo no afectará el ambiente y la salud de los residentes del área.

El Ingeniero Jeff Freeman, vicepresidente de desarrollo de la Cogentrix-ENDESA, explicó cómo esa industria desarrolló un método para la quemadecarbónmineral "en forma limpia" en los Estados Unidos.

Por su parte, el ingeniero Porfirio Espinosa, Gerente de Proyectos de la Cogentrix, explicó cómo habrá de operar la planta, cómo se dispondrá de las cenizas, qué uso se le dará a la bahía y cómo llegará el carbón al lugar.

La Junta de Planificación, por otro lado, recibió una petición de Espinosa, para un cambio de zonificación ya que el área donde se ha proyectado ubicar la planta está clasifica da como terrenos para industria pesadas.

.±á CWí 3C 3n3W3f3C 3G tr Z3V3UI Alü OV3UM j3

EL NUEVO DtA-JUEVES 17 DE DICIEMBRE DE 1992

Reitera la Cogentrix que no contaminará la bahía

De El Nuevo Día

MAYAGUEZ - La empresa Cogentrix se mantuvo firme en la defensa de sus estu dios que comprueban que las descargas de una planta de cogeneración de energía no contaminarían la Bahía de Mayagüez, mientras que opositores al proyecto cues tionaronla maneraenquefueroninteipretados los estudios ambientales que utiliza ron los consultores de la empresa para llegar a esa conclusión.

En el primer día de vistas públicas que sostiene la Junta de Calidad Ambiental (JCA)sobre la solicitud de autorización del Certificado de Calidad de Agua (CCA), la Cogentrix, por voz de su vicepresidente para Asuntos Ambientales, William Campbell,aseguró que la "cogeneratriz propuesta usará los sistemas más adelantados para proveer la mejor tecnología disponible tan to en el manejo de aguas como en el trata miento de aguas usadas".

La JCA tiene la intención de otorgar la autorización del CCA y de una zona de mezcla para una descarga de aproximada mente 466 millones de galones al día de aguas residuales y tratadas proveniente de las operaciones de dicha planta, que gene raría hasta 300 megavatios por medio de la quema de carbón mineral.

"Los resultados de los estudios aquí des critos demuestran que el proyecto propues to cumplirá con todos los requisitos con agua yque notendráimpacto adversoalgu-

Campbell: "la cogeneratriz propuesta usará los sistemas más adelantados para proveer la mejor tecnología disponible...".

no en la calidad de agua del ecosistema vecino", dijo Campbell.

"Aun bajo las peores condiciones posi bles, todos los parámetros estarán en cum plimiento dentro de un área pequeña en la zona de mezcla", enfatizó el ejecutivo.

EN TERMINOS generales, Campbell destacó los siguientes puntos en la defensa de las operaciones de la futura planta: •que el pH de la descarga estará sobre el

Una "tr)p)eta" aferrada a la vida

Por JOSE JAVIER PEREZ

Especial para El Nuevo Día

MAYAGUEZ- Andrea Santiago, de 19 años de edad y Gilbert Rodríguez, de 25 años, "perdieron el, habla" cuando su obstetra les notificó que tendrían trillizos.

Sinembargo,la buenanuevadelmúltipleadvenimiento se empañó cuando el trío infantil decidió hacer su arribo a las 26 semanas,apenas seis meses de gestación. Los médicoshicieronlosposibleporretardarelalumbramien to, pero el parto ocurrió, y los niños nacieron con las complicaciones inevitables en estos casos de nacimien tos prematuros.

"Lo que hace relevante este caso a nivel científico es que nacieron a las 26 semanas,sin ningún proceso de fertilidad donde es conocido el proceso de embarazo múltiple. Estos niños se aproximaron a la definición de aborto, que es cuando nacen a menos de 25 semanas", explicó el doctor Carlos Ramos Perea, director de la Unidad de Intensivo Neonatal del Centro Médico de Ma-

Martínez: cuestiona la manera en que los ase sores de Cogentrix interpretaron los estudios de corrientes.

límite de 7.3 dentro de los siete metros y medio del punto de descarga; •que la temperatura de la descarga que dará reducida a 1 grado Farenheit sobre la temperatura ambiente del agua de mar dentro de la zona de mezcla (constituida por 15 metros); •que la evaluación de los estudios de hábitat resultó en la reubicación de las es tructuras de la toma y descarga para mini-

mizar los impactos durante la construc cion; •que no habrá recirculacion de descarg en la bahía según lo demuestran los estu dios de corrientes aprobados por la evitando así la concentración de contami-

^

nantes.

Por otro lado, el Dr. Juan C. Cruzado, catedrático asociado del KUM y especialista en genética, cuestionó la rnanera en que los asesores de la Cogentrix ínterpretaron los estudios de corrientes. "HAY EVIDENCIA obviada que apun ta hacia recirculación dentro de la Bahía de Mayagúez.Elloslosaben ylo hanescondi do porque no les conviene", dijo Martínez Cruzado en un aparte con este diario. En su intervención durante las vistas, el profesor demostró cómo en el documento ambientalsometido porla Cogentrix nose incluyeron los resultados de dos estaciones de prueba de corriente que indicaban un flujo hacia el sur, promoviendo así la recir culación de corrientes.

Martínez Cruzado añadió que este fenó meno -combinado con las altas temperatu ras y el bajo pH de las descargas- sería un factor destructivo para la supervivencia de organismos marinos, especialmente para las larvas y huevos de peces que flotan en las corrientes.

Agregó que la Cogentrix no podrá con trolar el pH que descargue en la bahía por que ya el nivel está bajo (ácido)debido a las descargas industriales, pluviales y de los tres ríos que desembocan en.ese cuerpo de agua.

AndreaSantiagoyGilbert Rodríguezposanjuntoalos trillizos másfamosos del oeste puertorriqueño: Gilmarie,Gilandryy Gilbert. yaguez.

Ahora,la Sultana del Oeste no sólo seráfamosa porel brazo gitano de Franco, la sangría de Pido o su "Cole gio", sino que ha cobrado notoriedad por varios alumbra mientos múltiples ocurridos allí. Según se informó,en la última década han ocurridocuatro partos de trillizos, al menos en el Centro Médico mayagüezano.

PEROGILMARIE,GilandryyGilberthansidolosrecién nacidosde másbajo pesoregistradoseneláreaoestey, probablemente,en todala Isla,que han logradosobrevi vir. Los neonatos alcanzaron al nacer una libra y diez onzas, una libra y once onzas y una libra con 12 onzas, respectivamente. Los hermanitos permanecieron hospitalizados cerca de tres meses por diversas complicaciones. A su arribo al

mundo presentaron inmadurez pulmonar, por lo que tu vieron que ser sometidos a ventiladores mecánicos.En las máquinas desarrollaron mainutrición y entero-colitis intestinal. Esta condición provoca burbujas de aire intes tinales y cobra la vida del 50 ó 60 por ciento de los recién nacidos que la padecen.

Estando en el ventilador mecánico desarrollaron fallo cardiaco debidoa la presencia del ducto arterioso.Cuan do al fin sallan de esta máquina, dejaban de respirar debido a lo prematuro de su cerebro, que no enviaba el comando de respiración a los pulmones.

Yluegodeestaarduabatallaporlavida,dondefueron vitales la tecnología avanzada y el cuidado del personal médico del Centro Médico de Mayagüez, los "tres pe queños mosqueteros"salieron victoriosos. Una vezque alcanzaron las cuatro libras de peso, fueron dados de alta.

"Laevidenciaquetenemosesquelosbebésseestán

desarrollando de forma normal hasta ahora", manifestó el pediatra Ramos Perea,al comentar sobre el estado de saluddélosniños,queahoratienentres mesesdeedad LOS PADRES, que residen en Las Marías, dependen del Programa de Asistencia Nutricional (PAN) para sub sistir. Andrea no trabaja y Gilbert, que laboraba como panadero,fuecesanteado.Sóloa unodelosinfantesse le ha asignado ayuda del Plan WIC. Los jóvenes padres aseguran quelos administradoresdeeste programa han retrasado el papeleo necesario para el otorgamiento de dicha ayuda.

Entretanto, el trio de recién nacidos, ya iniciados en la tortuosa tarea de viviren este mundo,se dedicaa mati zarla vidadiariadelosjóvenes padres.Ahoraserántres biberones, seguidos de tres terapias para "sacar los gases";al menostres cambios de pañales varias veces al día... y habrá "llanto triple"en cualquier momento de la madrugada, la tarde o la noche.

Propina revés a(

LA VISTA PUBLICA de la Junta de Calidad Ambiental sobre la Cogentrix fue aplazada ayer luego de que horas antesel TribunalSuperior de Mayagüezaceptara el recurso legal sometido por los opositores a la instalación de esa planta de cogeneración de energía. El juez superior Juan Camacho Fabre aceptó ayer la solicitud de entredicho provi sional que radicaran los re presentantes legales de Mayagüezanos por la Salud y el Ambiente para que se suspen diera la vista hasta tanto no se esclareciera el caso que tienen radicado en el Tribunal Supe rior de San Juan en contra de la JCA ese grupo ambiental. El personal de la JCA se había movilizado ayer en la mañana a las facilidades de la Autoridad de Puertos en Ma yagüez donde debió haberse celebrado la vista. Asimismo, el personal del Dra. Julia MIgnuccl consorcio Cogentrix-ENDESA había instalado las pantallas electrónicas y el equipo audiovisual para hacer su presenta ción,que incluía un vídeo del controversial lavador de gases. Pero momentos antes de comenzar la vista, la oficial examinadora de la JCA, Leda. Lorraine Juarbe Santos, reci bió la noticia de la decisión del Tribunal Superior y dio por suspendida la vista pública.

EN CONFERENCIA de Prensa, la Dra. Julia Mignucci, portavozde Mayagüezanos,indicó que el recursolegal some tido por la or^nización "se fundamentó en que está bajo revisión judicial la Declaración de Impacto Ambiental (DIA) ante el Tribunal Superior". "Los demandantes también entienden que se perdería el sentido de eficacia del recurso de revisión que está ante el Tribunal Superior, Sala de San Juan", añadió la activista ambiental.

Ayerse suponía que las partes comentaran sobre la inten ción de la JCA de emitir un CCA y de autorizar y definir la zona de mezcla de la descarga principal del proyecto.

Pero ahora la JCA ha sido citada para comparecer ante el Tribunal Superior, Sala de Mayagüez,el lunes 14 de diciem bre a que presente sus argumentos para que el Tribunal no conceda en definitiva el entredicho.

Los opositores al proyecto han llevado el caso hasta el Tribunal Superior argumentando que la JCA nunca cum plió con la ley al aprobar la DIA sometida por la parte proponente del proyecto.

Argumentan los opositores a la planta que la JCA aprobó ese documento ambiental sin contestar varias interrogantes que tienen los ambientalistas en torno al caso.

De haberse celebrado las vista ayer, entonces el recurso radicado en la Sala de San Juan hubiera resultado académi co, argumentan los ambientalistas.

Por su parte, la reacción oficial de la empresa ante los últimos desarrollos en esta controversia, dejó entrever que la decisión del Tribunal había limitado la libertad de expresión y de obtener información crucial para entender el proyecto.

"Al cancelar esta vista se evita que el pueblo tenga la oportunidad de participar y conocer de primera fuente datos importantes sobre este proyecto. Sobre 48 ciudadanos y residentes de Mayagüez pidieron turno para deponer", lee un comunicado oficial de la empresa.

WILLIAM CAMPBELL III, Vicepresidente sénior de Asuntos Ambientalesde Cogentrix,quien quedó varado con elequipoenlasfacilidadesjuntoavariosotrosfuncionarios, indicó quelasdescargas no perjudicarían la bahía y quelas estrictascondicionesquelehaimpuestolaJCA asílogaran tizan.

"LaJuntadeCalidad Ambiental hubieserecibido hoylos comentarios de Certificado de Calidad de Agua para el propuesto proyecto.La JCA haincorporado27condiciones especiales al certificado, uno de loscualestiene 23subpartes", dijo Campbell. i

EL NUEVO DIA-VIERNES 18 DE DICIEMBRE DE 1992

Coqentrix salva otra valla ambiontal

Por LUIS A. FERRE RANGEL

De El Nuevo Día_

T A agencia Federal de Protección Ambiental (EPA) ha aprobado, preliminarmente, la solicitud de permiso para emisiones al aire de la propuesta planta de cogeneracion de

^"oíStímaS el controversial proyecto está en vías de obtener dos permisos cruciales para su operación, el de emisiones a la atmósfera y el de descargas a la Bahía de

^En?na carta, enviada por el Administrador de la Región II de Nueva York,la EPA indica que la información someti da por la empresa en tomo al permiso de emanaciones a la atmósferahasidoadecuada,yque,porlotanto,esaagencia federal tiene intenciones de conceder el mismo, sujeto a

bSe'aTinformación sometida en relación con la mejor tecnología disponible y los análisis de calidad de aire

Sra ca^ elemento de la emisión, la EPA concluye que la propuesta de la Cogentrix cumple con todos los requenmientos de las regulaciones del permiso y por lo tanto es preliminarmente aprobable", indica ^onstantine SidamonEristoff administrador regional,en su carta del 8 de diciem- S obtenida por El Nuevo Día y dingida a las oficina de Cogentrix, en Carolina del Norte.

quVteSb en Mayagúee la Juna sobre la intención de esa agencia estatal d^ conced^^^ Certificado de Calidad de Agua(CCA)y permitir las desear gas a la Bahía de Mayagüez.

vistas públicas LASEMISIONES aireas«proceso prove^^ LA NOTICIA surge una vez concluidas las vistas públicas

LAS EMISIONES aéreas del proceso provendrán

de una chimenea de 350 pies e incluyen los ^'^u^ntese ementes, óxido de nitrógeno(NOx),bióxido de lados y particulados finos (pmlO), (CO), compuestos volátiles orgánicos(VOC s), polvo tugiti vo y amonia.

Si la JCA concede dicho certificado y autoriza la zona de mezcla entonces la EPA puede autonzar la descarga en la bahía En este respecto, la EPA ya ha manifestado su satis facción con aspectos cmciales como el estudio de comentes V la tecnología del lavador de gases, entre otras cosas.

Así el controversial proyecto parece estar en camino de obtener los dos permisos más importantes de su operación, lo cual expeditaría el proceso de permisos aun por obtenerse.

Según se desprende de los documentos obtenidos por este diario la EPA manifiesta que imcialmente la agencia federd no estaba satisfecha con los controles propuestos para limi tar las emisiones de óxido de nitrógeno y que por lo tanto le ordenó añadirle otra tecnología.

De acuerdo con la descnpción del proyecto, la Cogentnx cogeneraría 300 megavatios de electncidad por medio de la Sustión de 3,000 toneladas(6,000 libras) de carbón. E proceso generaría hasta 100,000 libras por hora de vapor procesado que será vendido a las atun^as y la electncidad Srá vendida a la Autoridad de Energía Electnca por espacio de 25 años.

Esta última sustancia resulta como tecnología que le impuso la EPA a las emisiones, y conscien te de ello la agencia federal ha incorporado unas condiciones específicas para reducir las mismas.

La tecnología para reducir las emisiones consta de un lavalr de gaL,ín sistema selectivo tica utilizando una inyección de finos controlar las emisiones de particulados y particulados tinos. De acuerdo con las condiciones impuest^ por la EPA,k Cogentrix puede emitir al ano hasta 2,343 toneladas de SS,de nUrógeno;2,332 toneladas de » de ^.to; 234 toneladas de matenal particulado, 2,756 toneladas de monóxidodecarbonoy96toneladasdecompuestosorgáni cos volátiles.

EN UNA edición pública, la EPA próximamente anun ciarálacelebración de vistas públicas,en enero 23y 1993 en el Centro Cultural de Mayaguez para recibir el insumo del público sobre la solicitud del perineo.

Sin apoyo de los químicos la planta de Cogentrix

Por CARMEN MIELAN PABON

De El Nuevo Día

Por CARMEN MIELAN PABON Sin embargo,el organismo reconoce la eos, licenciado Michael Morris y por el técnicas y de política pública ambiental'

De El Nuevo Día necesidad de la utilización de fuentes de doctor Juan J. Rigau, miembro del Consejo realizado oor Rieau. El informe contempl energía alternas y endosa el uso del carbón Asesor del Colegio de Químicos y pasado llenar las "lagunas" relacionadas con el irr

EL COLEGIO de Químicos de Puerto como una fuente alterna de energía. presidente de dicho cuerpo. pacto ambiental que pudiera tener el prc Riconoapoyael proyectoCogentrix"tal y Ambosplanteamientossurgieron en una Rigau -quien fungió como el primer di- vecto Coeentrix

EL COLEGIO de Químicos de Puerto Rico no apoya el proyecto Cogentrix "tal y Sin embargo,el organismo reconoce la necesidad de la utilización de fuentes de energía alternas y endosa el uso del carbón como una fuente alterna de energía. Ambosplanteamientossurgieron en una cos, licenciado Michael Morris y por el doctorJuanJ.Rigau,miembrodelConsejo Asesor del Colegio de Químicos y pasado presidente de dicho cuerpo. Rigau -quien fungió como el primer di técnicas y de política pública ambiental" como está" debido a que todavía tiene"du das legítimas" conferencia de prensa convocada por el presidente entrante del Colegio de Quími

rector de la Oficina de Combustibles Deri vados del Petróleo en Puerto Rico, del 1973 al 1976- criticó que todavía hoy día no haya una declaración de impacto am biental"totalmenteclara"sobreCogentrix. El especialista denunció que al momento es "imposible asumir una posición respon sable" de apoyo o rechazo en torno al pro yecto Cogentrix debido a que la informa ción no ha sido clara.

Critican que ei gobierno no tengo definido o iorgo piozo uno poiítico púbiico cioro sobre energio

Dijo que en ese aspecto, urge educar al país en torno a la necesidad de buscar fuen tes alternas de energía de una forma clara y sin tener en cuenta consideraciones parti distas.

Rigau criticó que el gobierno no tenga definida a largo plazo una política pública clara sobre energía, fundamentada en la disponibilidad de recursos económicos y en las necesidades de otros servicios para el pueblo.

Añadió que en el caso del proyecto Co gentrix,elgobiernodebedefinirlacantidad de dinero que está dispuesto a pagar para asegurarel mínimoderiesgosparalasalud y el ambiente ya que al conocer ese aspecto, podría determinarse la.viabilidad económi ca del proyecto.

Rigau recalcó que el Colegio de Quími cos no se opone al uso del carbón. "Esta mos claros que hay que buscar alternativas energéticas al petróleo y los hidrocarburos. Debemos asegurar que los costos de pro ducción de energía reflejen más fielmente los costos de la salud, la seguridad y el ambiente".

ENTRE LAS alternativas energéticas mencionadas en el Informe del Colegio de Químicos,están el carbón y lasfuentesde hidrocarburos no convencionales como la orimulsión -una mezcla homogénea de un

"ENTIENDO QUE para poder estable cer posiciones en áreas conflictivas que afectanlasalud,elambiente,que haycosto social envuelto, hay que tener un proceso de educación libre de ataduras... sin tomar posiciones.Elsecretode unabuenapolítica públicaestener un balancejuiciosodeele mentos conflictivos que sea lo mejor para el pueblo.No podemos poner la carreta al frente de los caballos", dijo Rigau. La posición del Colegiosurgió delinfor, realizado por Rigau.Elinformecontempla llenar las"lagunas"relacionadascon elim pacto ambiental que pudiera tener el pro yecto Cogentrix.

IPlazo para la Cogentrix

I A OFICIAL examinadora del caso Cogentrix recomen

'"al esta manera el informe coloca gran peso del futuro de estalSa que generarla 300 megavatios de elec rielad en S hrrSoídel Tribunal Superior, PuBto qu= TeríSs"esd":ramíienurh"asm los operaelonales, no

"eo su voluminoso informe de más <1= 30.P/|™¿ríL"resu"S?ottgr^^^^^^

Recae en el Tribunal Superior ei gran peso aei futuro de ia cogentrix | 3»--S5asS5Ss

Superior.

A PFSAR de dejar entrever su confianza en el proceso admintórativo quVlia regido el caso,la odeial «saimnadom pnfatizó aue el mismo está siendo cuestionado en los tnbu nales V recomendó que, para disipar toda duda, la decisión de la Junta de Planificación deberá emitirse después que se '"K:Lérd"feon"ía\e;te''jun^^^^^^ meses nara decidir si acoge o no las recomendaciones de la oficial examinadora, desde el '15 sometido El caso quedó totalmente sometido e pagado 10 rnollembre,e?informe de la olic al examinadora fue "ílSa?dfque%fiSmíu^rgSlaíinrde Planin^ a e'spS a laVisión de los tribuna

""■°En'Ste casoen particular, seestá considerando un pro- 1 nt^ck\ QP ha reaucrido un proceso ambicntcil, 3. Efin?sdetoma las medidasde mitigación necesariaspara ÉíííSSESHSE

párrafo antes de las Recomendaciones.

"Tonn Fl I O nroDcnde a mejorar las condiciones eco-

""ifSeímomento,elproyectoha«hadoglounavalla^ .vsn ha sido la aprobación de la DIA por la JCA, aunque esa aeencia también ha manifestado su intención Certificado de Calidad de Agua, aunque el nuevo Presidente r^p in ICA paralizó la otorgación del certificado alegadamen?e¿ííieTs^iñcíujímntodosloscomentáriosencontra del mismo

'S 9 DE FEBRERO DE I993

Archivan el caso por 30 días en espera de que varias agencias contesten interrogantes sobre ia planta

JO En suspenso el proyecto de la Cogentrix

LA JUNTA de Planificación archivó el caso de la Cogen trix por 30 días en espera de que varias agencias mentales contesten algunas interrogantes que aun rodean el controvertible proyecto. ncnriados el

pronunciamiento alguno a

yagüezdelaplantaquegenerajría 300 megavatios de electricií dad,hastaquela Autoridadde hñ Acueductos y Alcantarillados efe(AAA), el Departamento de F Recursos Naturales(DRN)y el Departamento de Educación hagan unas determinaciones específicas en tomo al proyec¿ oJÍ Además, la Junta de Planifi(cación le está pidiendo al pro"ponente que someta estudios iadicionales que incluyen las i marejadas ciclónicas, olas y el i área geográfica propuesta, enItre otros.

I "La Junta entiende que estos ¡elementos son necesarios para [poder tomar una decisión soBurgos bre el proyecto propuesto por la Cogentrix",declaró Norma E.Burgos Andújar,presidenta ■"anir.cación esjá pidiendo niip la AAA conteste las siguientes interrogantes.

• LA DISPONIBILIDAD de Acueductos y Alcantanllados para servir el proyecto en la fase operacional, asi como Cap^idadactualdelasplantasdetratamientoasícomo '^V^antWad de agua que sirve a la industna atunera y beneficio en que redundaría el que se le P^^ea de vapor a las atuneras por parte de Cogentnx, en lo que a disponibili dad se refiere. Asimismo, el DRN tiene que someter su posición en cuanto al impacto sobre las espedes endémicas o en pdigro de extinción, así como la susceptibilidad de terremotos en el área. Además tendrá que someter sus objetivos y la política pública del departamento. u.itanHn Por otro lado, la Junta de Planificación esta solicitando que el Departamento de Educación exprese su Posicio or»fo oí nrnvi^rto -Hada la ubicación de un p

Urgen cese de campaña publicitaria de Cogenftjx

MIENTRAS LA JUNTA de Calidad Ambiental delibera sobre el caso de la planta de carbón Cogentrix, grupos opositores al proyecto exigieron la renuncia del Ledo.Pedro Maidonado Ojeda, presidente de esa agencia y radicaron

LOS TUYOS

una querella ante el Gobierno por la campaña publicitaria de esa empresa.

La oiganización Mayagüezanos por la Salud y el Ambien te, presidida p6r la Dra. Julia Mignucci, pidió ayer la renun cia de Maidonado Ojeda y exhortó al Gobernador, Rafael Hernández Colón, a que firme una orden ejecutiva que prohiba la instalación de ese proyecto en Puerto Rico.

Aunque tú faltes, es importante que a tu familia no le falte nada. Por eso, asegúrate con COSVI,la Cooperativa de Seguros de Vida de Puerto Rico.

Una empresa de avanzada, con:

•900,000 asegurados,

• 31 años de experiencia,

• tecnología computadorizada queagilizareclamaciones,

• innovación constante en Seguros de Vida, Planes de Salud y de Retiro,

• solidez financiera.

COOPERATIVA DE SEGUROS DE VIDA DE PUERTO RICO

COSVI significa vida.

Pedro Maidonado Ojeda

Grupos opositores

exigieron io renuncia de Maidonado o ia JCA

Mignucci estaba flanqueada por los tres aspirantes a la Alcaldía de Mayagüez.

La portavoz del grupo dijo que anticipaba que la JCA aprobara el Suplemento a la Declaración de Impacto Am biental preliminar"basada en información desde La Fortale za y siguiendo la trayectoria de las decisiones de la JCA sobre la propuesta planta de carbón en Mayagüez".

"De la JCA así hacerlo lo estaría basando en información incompleta, deficiente y engañosa que no le da peso alguno a la evidencia abrumadora presentada por más de 45 exper tosque coincidieron quela planta nole conviene a Puerto Rico por los daños a la salud y al ambiente", añadió la activista ambiental.

Tanto la JCA, como la Cogentrix han rechazado que se hayan reunido en La Fortaleza para "planchar" el proyecto. Pero una llamada de este diario ayer tarde a Maidonado Ojeda reveló queelfuncionariose encontrabaen La Fortale za, aunque no se dijo la naturaleza de la reunión. POR OTRO LADO,la organización ambientalista Mi sión Industrial, radicará hoy una querella ante el Departa mentodeAsuntosalConsumidor(DACO)paraquedetenga la campaña publicitaria de la Cogentrix, según Wilfredo López, uno de los coordinadores del grupo ambiental. López añadió que, contrario a lo que indica la empresa Cogentrix, los abonados,terminarán pagando los costos de construcción y operación de esa planta de cogeneración de energía.

Tels. (809) 765-4240 754-7139, 754-7134

Planificación Familiar

Implantación Sistema NORPLANT

Calle 42 S.E. #1002, Reparto Metropolitano Río Piedras, Puerto Rico 00921

Pruebas de Embarazo \ Medieinas Gratis.

CARTUCHOS DE TONER

(en afielante) 'Oferta váilila con su cartuctio vacio. 'Recogitio y entrega sin cargos (área metro). 'Se compran cartuchos vacíos.

Dos o más cartuchos Slü.üü menos del total.

EQB expectsfast Cogentrix decisión

Recommendation may be made as quick as today

The top officer of the Environmental Quality Board said Tuesday that his agency will make its recommendation on the proposed coal-fired Cogentrix plant in Mayaguez this week — possibly today.

'A vote against the 300-pIus megawatt plant would defy the wisdom ofCommonwealth economic officials and cripple the xompany's three-year drive to build a facility on the island. But an endorsement by the three-member panel would olear the way for its construction, and possibly set off intense public protest.

A negativo recommendation from EQB would kill the project's prospecta for obtaining necessary government building permits.

EQB President Pedro Maldonado said the time is "ripe" for a decisión, despite a formal motion filed by opponents who called for a second public hearing on the project after a lengthy amendment was tacked on to the project's environmental impact statement.

"Both sides are very passionate about tbis matter," Maldonado said In an Interwew. "I am going to meet wittí my advisors and study all the scientific,legal and technical argumenta before making a decisión."

Also taken into consideration will be the recommendations of other key public agencies. The U.S. Fish and Wildlife agency voiced its opinión against the project last month, citing deficiencies in its environmental impact statement.

However, official recommendations from the Department of Natural Resources and the EQB itself are still in the works but are expected shortly, according to EQB Vice President Fernanda Román.

í Maldonado did not say when the deci'sion would be made, but he added that he was prepared to "face the firing squad" from the losing side, regardless of the óutcome.

The board is scheduled to meet today with the coal-fired plant the solé Item on ite agenda. The board's three voting riiembers are Maldonado, Román and Associate Member Francisco Martín.

LegalDivisión Director Manuel Arroyo ^id the panel will delibérate the matter ^foreputtingittoavote.Inthecaseofa 2-to-l split. Arroyo said the majority position is binding even if Maldonado,the tpp officer, dissents.

Foreshadowing the possibility ofa victoryforprojectopponents.Arroyosaida key article in the law governing ComAionwealth environmental policy "conseerates the principie that the public has tile right to participate in all decisions Sffecting the environment."

Because much ofthecompany'shighly technical supplement to the environmen tal impact statement is written in Enrroyo said this makes it

Theproposed Cogentrixcoal-fired plantwould belocated on the empty lotthatdominatesthecenterofthisscene,

maccessible to most cvüzens, including himselí.

Cogentrix officials could not be reached fof comment.

In recent weeks Cogentrix has bombarded local TV viewers with commercials depicting a darkened urban landscape, while a narrator warns of widespread powershortagesshould local officials fail to build the, $540 million plant.

Still, opponents are convinced Gov. Hernández Colón is trying to steam-roll the project through the bureaucracy be fore he makes his exit. Last month, the Charlotte, N.C.,-based Cogentrix Co. publicly joined forces with Spanish utility giant ENDESA on Latin American energy and steam generation projects,raising suspicions that the project was yet another link in the governor's "Spanish connection."

Paúl Hepperly, agricultural scientist and officer of Mayaguezanos for Health and the Environment, said: "ENDESA is really behind this latest push, more so than Congentrix. It's part of a long-term drive to privatize the public utility companies here in Puerto Rico and convert them to coal."

While many crucial questions loom as to how the island plans to meet its future energy needs, community groups are determined to stop the plant from being built in ecologically sensitivo Mayaguez bay.

Julia Mignucci, a university professor and director of the Mayaguez-based group, said a positivo recommendation from the EQB would further mobilize the community against the project.

Thegroup,shesaid,planned toask the governor today "to return residents' peace of mind before running offto Spain byissuing an executive order tostop the project."

r Glance at Cogentrix debate

Subject: Proposed 300-plus megawatt coal-fired power plant to be built on Mayaguez bay.

Builders: Joint ventura between Char lotte,N.C.-based Cogentrix and Spanish utility company ENDESA.

Cost: Estimated $540 million, or roughiy$1,800per kilowattofelectricity.

Whosupportsit:The projectissponsored by Puerto RicoIndustrialDevelopmentCo.Itlargely enjoysthesupportof the business community, the Electric Power Authority and numeroustopeco nomic officials.

Opponents:Mayaguez-area residents are mostiy opposed to it, including the city's three mayoral candidates, as are environmental and conservation groups island-wide. The island's leading medical and engineering societies have also stated their opposition.

Argumente in favor:

■ The island is almosttotally dependenton importad oil, mostiyfromvVene-

zuela,and thatmarketisatthe mercyof the troubled Middie East.

■ The demand for energy by local residents and industry is growing and parts of the island could face shortages if the probiem is not addressed.

■ Proponents clalm that with new technologies, coal is a clean and safe alternativa to oil.

Arguments Against:

■ Due to shipping costs,coal burned in Puerto Rico would come mainlyfrom Columbla and Venezuela, which are politically shaky, too.

■ Coalisconsideradtobethedirtiest forms of energy commonly used and is a principie source of gases known to cause what is known as "the greenhouse effect."

■ Questions remain as to the longterm cleanliness of the saltwater scrubber technology favored by Cogentrix, and the manufacturar provides no guarantees.

Comptroller says $464,000 owed EQB

The Environmental Quality Board failed to collect $464,002 in fines over an eight year period, Comptroller Ileana Colón Cario said in a report released Tuesday.

The ÉQB also did not submit reports on $437,614 spent on environmental contamination studies, ñor did it authorize the granting of $699,788 in contraets to the Budget Office or the Treasury Depart ment, Colón Cario said.

The findings were in an audit covering September 1988 to December 1991 and/or previous operations before that time.

Colón Cario said the Commonwealth agency operated "substantially in accordance with the law," except for three principie and four secondary "discoveries."

She said principie "discoveries" are serious violations of the law while "sec ondary" ones are minor offenses.

EQB President Pedro Maldonado, who was appointed in 1990,acknowledged the problems Tuesday and said the agency was taking steps to correct them.

Maldonado said the agency hired a fulltime attorney to take people or companies to court who don't puy environmental fines within 30 days of receiving notice.He said the agency used to send only letters.

STAR photo by Javier González between the Las Mínimas urbanization and Mayaguez

Environmentalists ríp Cogentrix for using 'deceptive' adcampaign

^ylioi/^n io+KÍí-»l - ' ^ Misión Industrial That "the aiso blasts DACO

Local environmental group Misión In dustrial aceused Cogentrix of directing a deceptive and inflammatory advertising campaign Wednesday in that company's drive to build a $540 million coal-fired plant on Mayaguez Bay.

The group also charged the Department of Consumer Affairs, which houses the Commonwealth Energy Office, with applying a double standard to renewable, as opposed to non-renewable, energy projects under its jurisdiction.

The department is better known by its Spanish acronym, DACO. The Energy Office became part of DACO in 1990 and admmisters funds for alternative energy projects.

Jorge Fernández, community coordinator for the group, said its members were appalled by what they consider to be DACO s stone-walling of renewable energy projects, such as a proposed wind farm in Culebra, contrasted with its atUtude toward Cogentrix in Its recent advertising campaign.

"We sustaln that fCogentrix] is consistently publishing a series of deceptive advertisements in the country's newspapers, as well as in its TV and radio commercials," Fernández said.

plant won't cosf a single cent to the people of Puerto Rico."

■ That "the plant would increase the generating capacity of the island by 12 percent."

■ That "the plant would utilizo the cleanest and most advanced carbón technologies available."

To support the first charge, the group contended that the $540 million construction cost for the plant would be factored into energy consumer's monthly bilis. It also raised the question as to why the plant was more expensive than compara ble stateside plants built by the same company.

James Peedin, sénior vice president for Cogentrix, countered that the company would bear all the costs and risks of construction, and that the energy would then be sold to the Puerto Rico Electric Power Authority at the same price PREPA would pay if it were to produce the energy itself.

Asked if the plant's construction costs wouldleadtopriceincreasesperunitof energy, Peedin said; "We don't control consumer tariffs. Our price to PREPA would be at or below production costs."

The present cost per kilowatt hour of energyforPREPAisslightlymorethan a nickel, but environmentalists point out that this production cost does not reflect the "social cost" of the energy use, failing to include the clean-up and health costs derived from pollution.

Citing financia! documents from

for the 5 percent could account discrepancy.

In response, Peedin referred to the charge as "probably a minor point," and said that, in fact, the 300 megawatt Mayaguez facility would provide in excess of 12 percent of the island's energy use.

Because coal is cheaper to burn than oil, Peedin said the coal-fired plant would bear a disproportionate share of the brunt of energy production. He explained that PREPA would run cheaper energy sources such as coal to capacity before supplementing that output from more costly oil-fired plants.

Peedin denounced as "blatantly false" the third accusation regarding the cleanliness of coal, which was unsupported bv group members. ^

Federal clean air law requires power cornpanies to use the cleanest available technology m the design of all new plants

Peedin said 30 percent of fho cost would be spent on oom.t?n ^ devices, accounUng for' steep price of the plant. '^^'at'vely plant.

Environmentalists rip Cogentrix for using 'deceptive'ad campaign

Misión Industrial aiso blasts DACO

Local environmental group Misión In dustrial accused Cogentrix of directing a deceptive and inflammatory advertising campaign Wednesday in that company's drive to build a $540 million coal-fired plant on Mayaguez Bay.

The group also charged the Department of Consumer Affairs, which houses the Commonwealth Energy Office, with applying a double standard to renewable, as opposed to non-renewable,energy projects under its jurisdiction.

Thedepartmentis better known by its Spanish acronym, DACO. The Energy Office became part of DACO in 1990 and administersfundsfor alternativo energy projects.

Jorge Fernández, community coordinator for the group, said its members were appalled by what they consider to be DACO's stone-walling of renewable energy projects,such as a proposed wind farm in Culebra, contrasted with its permissive attitude toward Cogentrix in its recent advertising campaign.

"We sustain that[Cogentrix] is consistently publishing a series of deceptive advertisements in the country's newspapers, as well as in its TV and radio commercials," Fernández said.

The group attacked the following claims made by the company in a recent newspaper ádvertisement:

■ That "the plant won't cost a single cent to the people of Puerto Rico."

■ That "the plant would increase the generating capacity of the island by 12 percent."

■ That "the plant would utilizo the cleanest and most advanced carbón technologies available."

To support the first charge, the group contended that the $540 million construction cost for the plant would be factored into energy consumer's monthly bilis. It also raised the question as to why the plant was more expensive than compara ble stateside plants built by the same company.

James Peedin,sénior vice president for Cogentrix, countered that the company would bear all the costs and risks of construction, and that the energy would then be sold to the Puerto Rico Electric Power Authority at the same price PREPA would pay if it were to produce the energy itself.

Asked if the plant's construction costs would lead to price increases per unit of energy, Peedin said: "We don't control consumer tariffs. Our price to PREPA would be at or below production costs."

The present cost per kilowatt hour of energy for PREPA is slightly more than a nickel, but environmentalists point out that this production cost does not reflect the "social cost" of the energy use,failing to include the clean-up and health costs derived from pollution.

Citing financial documents from PREPAforthesecond charge,the group said additional power provided by the Cogentrix plant would represent an in crease of onlv 7 nercent. and asked what

could account for the 5 percent discrepancy.

In response, Peedin referred to the charge as "probably a minor point," and said that, in fact, the 300 megawatt Mayaguez facility would provide in excess of 12 percent of the island's energy use.

Because coal is cheaper to burn than oil, Peedin said the coal-fired plant would bear a disproportionate share of the brunt of energy production. He explained that PREPA would run cheaper energy sources such as coal to capacity before supplementing that output from more costly oil-fired plants.

Peedin denounced as"blatantly false" the third accusation regarding the cleanlinessofcoal,which was unsupported by group members.

Federal clean air law requires power companies to use the cleanest available technology in the design of all new plants. Peedin said 30 percent of the construction cost would be spent on pollution control devices, accounting for the relatively steep price of the plant.

DACO Secretary Guillermo Mojica,for his part,said he had no evidence suggesting the company's advertising practices were false or misleading and invited Misión Industrial to file a formal complaint and to supply proof.

The consumer kingpin, however, said he wasn't sure if his agency wielded jurisdiction were such a complaint filed.

"I don't have, in this instance, the means to decide whether these advertise ments are deceptive or not," he said.

EQB head bars repórter from agency meeting

Environmental Quality Board chief Pedro Maldonado barred a STAR re pórterfromattendingacrucialmeeting of his agency's governing board Wednes day, saying the reporters' presence would make members uneasy. At issue during the regularly scheduled meeting of the EQB's three-member decision-making panel is whether to endorse the $540 million coal-fired plant slated to be built on Mayaguez Bay. A positive recommendation by the board would flash the project's backers a green light, whisking them along the permit process. A negativo decisión, by contrast, would virtually ensure its demise.

"I have the duty to make public th' board's final decisión and to explain to the public," Maldonado said wh< asked for an explanation. "But the d cussion must be confined among me bersinorder toavoid achillingeffe Coldshiversnotwithstanding.Re' ca Daugherty, an attorney for the porters Committee for Freedom of ¡ Press, said a similar meeting wou open to the public in all 50 s although certain restrictions i j appiy-

Daugherty said repórter» worl Puerto Rico may be handicapp cause, unlike their stateside c parts, they are not aided by state laws, commonly referred to a shine laws," because of their( tant influence on government pi 1

IN BRIEF

Muñozfilesbilí seeking changos in water biiling

Sen. Victoria Muñoz Mendoza,PDP at-large, Thursdayfileda bilíproposing electric and water utilities charge "social welfare" organizations,includingChristianchurches, aresidentialasopposed to a commercial rate.

Muñozacknowledged there was little chance the bilí,included by Gov. Hernández Colón Thursday in his third addition to the current special session's legislativa agenda,would pass before the session endsat midnight,July25.

But the governor, who also addeda bilíauthorizing theEducation Department to solicit a $33 million loan from the Government DevelopmentBank,isexpected to calia thirdspecial legislativo session soon.

The measure proposed oy Muñoz addresses concerns by Evangelical Christians, who last week called on the Legislatura to override the governor's veto oi a táW that would've tíaaugedtlvelT utWlt^ rateafrom commercial to residential.

Lawsuít chailenges at-large process

San Juan Superior Court Judge Gilberto Gierbolini Jr.willbehearingarguments today in a suit challenging the constitutionalityofleaving it up to the political par tios to determine in what electoral districts at-large legislativo candidatos will appear on the ballot.

ManuelRodríguezOrellana,elections commissioner for the Puerto

RicanIndependenceParty, said Thursday that his par ty will ask for additional time to prepare its argumentsbecauseitwasonly informedofthehearingon Wednesday.

Thesuit,filedbyPuerto Rican Socialist Party Secretary General Carlos Gallisá early this year, alleges the current system violates the one-man,one-vote doctrine because there are nodefinitedistrictsrepresented by at-large candidatos.

Gallisáiscallingfora third ballotlistingthe ñamesofalltheat-large candidatos,from which the voters would select 11 for the House and 11 for the Senate.

Naranjíto stuck withoutambulance

Naranjito's health center does not have an ambu lance to provide service to residentsofthemunicipality,according to Carlos Meléndez,director of the Integrated Health Services Corporation for the area.

MeléndezsaidThursday that the health center's three ambulances are m the municipal government'sshop awaiting repairs.

Barranquitas and Corozalloaned Naranjitoambulancesforeightdays,but they had to recall them to cover their own needs, Meléndez said. Headdedthatthecorpo ration,which providesser vicestoBarranquitas, Corozal and Comerlo as wellasNaranjito,istrying to get the Health Department's Emergency Medi cal Services to cover the municipality's ambulance needs.

From staff and wire reports

OTHER LOCAL NEWS

■ A federal environmental officia! says he is "cautiously optímistic" about a new agreement wlth ASA. 4

■ NPP claims Muñoz plagiarizing Rossello's TV ads. 7

■ Publichearingson AppellateCourt nomlnees expected to end today. 8

Construction blocks offícial access

Access to La Fortaleza has become nearly ímpossible — by car, in this instance —due to construction and restoration work on the road between the Fortress of Santa Catalina and El Palacio Rojo(the Red Palace), which houses the governor's press and communications offices.

Cogentrix offícial opposition green -

VP responds to Martín effort

A high-ranking Cogentrix offícial denounced environmental opposition to a coal-fired plant the company wants to build in Mayaguez as an independentista "smoke screen" to arrest the island's economic development.

Cogentrix sénior vice president James Peedin said Thursday:

"It's clear that the [Puerto Rican] IndependencePartyisopposed tothe plant.They've been opposed to it all along,and I think it would be a big mistake if they were allowed to determine the economic policy of Puerto Rico based on their environ mental campaign of fear."

He elaborated by saying that the environmental movement, led by groups like Misión Industrial, was a "smokescreen"forindependentista subterfuge.

Peedin'sstatement was a responso to an attempt by PIP gubernatorial candidato Fernando Martín to con-

paints as in PIP

solídate opposition to the $540 million plant among his competitors.

Martín called for his counterparts fromthepro-statehood NewProgressive Party and pro-commonwealth Popular Democratic Party to join him in pledging to han construction of the plant if elected.

The Cogentrix offícial also amended a statement made by company president George T.Lewis Jr. during the initial press conference at which the project was announced to Maya guez residents. Lewis said on that occasion that if the people of Maya-

Please see PLANT, Page 10

Martín chailenges opponents PIP hopeful wants Rosseild, Muñoz to promise to block plant

Puerto Rican Independence Party

gubernatorial candidato Fernando Martín Thursday challenged his op ponents to publicly pledge that, if elected, they would forbid the con struction of a coal-fired plant in Mayaguez Bay.

Aides to New Progressive Party candidato Pedro Roselló said he op

posed the project because of health concerns, while PDP candidato Vic toria Muñoz Mendoza said that Co gentrix has not yet demonstrated the project would protect the environment.

Martín said that given the pro posed plant's "potentially disastrous consequences" to residents' health and to the environment, the time had come for opposing candidatos "to express themselves with absoluto clarity over this issue."

The Environmental Quality Board has been deliberating since Wednes dayover whatallsidosagree will be a pivotal recommendation for the proposed $540 million project.

The board's recommendation was expected this week, but a spokeswoman for the agency said the outcome may not be known until next week.

Please see STANCE, Page 10

star photo by Ingrld Torres

vpis •piBs sa^qojj ,,'papnjjsuoo Xjjood SBM apSain Jine/jno pas.ji,, •aijpj? A\Baq aqj oj anp }¡jom }ou pip apS aqj pies sajqoH sjadaaq puB aouBjpa ajos b q^iM papiAoid sem ajBÍ luaqpou aqj a[tqM asnoq pjBnS b puBsauBiaajqísBq ap§uja^nosaqj, •pafojd aqj m uiaq^ apnpui 0} ainpuapi jaAau 'iCauotú jiaq^ >|oo} uoippossv sjuapisay aifj uiiBp ¿(aqjL saaj ímpom aiaq^ 3mÍBd paddois sjuapisaj aq-) p ^soui sq^uovu vamm os'paqaoíA aa\auapp uo aioS ppss s:^uapvsai app qpou aq^ pps aq'spooqaoqq3\au oíai 9^1 uaaíApq ap3 i^puip b Bmdaaq apq«, apnpm papuauiB aaa/A s^tmaad

sseoo^

EaBejluoij

í* "''íl i*' li" -fUoUiUUJIAUíl puB ifíjBBq aqj pq 'Sujpuapp ajpAv /fjjBd JBfnorpBd ÁUB jo sqsajapi aqj pu s,}i„ •piBS aqs ,,'pBid aqí ?s9pjd 0} uonBziuBSjo oiaio XjaAa puB dnoj3 qojnqa XjaAa 'íped iBonílod iüaAa pajiAui pue oipBj aq} uo paM i„ spappaj jBooi joj XueduioD Aq padsaj p qoBi b„ papjpuouiap uonisoddo aq^ Sui^ipajasip p pauiiE suon -BSaip aaqp pus siq^ pres iODnu3™ " ■apudoaddE sbía ^pj aq jx aapi paqsB uaqíA pauiapp papuajap uipaaj

isapid uowsoddo 3muioadn ub papod -dns 'sBia ™ uBup „'ApBd pqBioos

03\U aq^ p aapBa\ aauiaoj uí\ouq ysv(\?muonuam iqpi-^p^^sbíaponu3™ '\Bq'\papomsm asBapassaad auiBs aqj^

JOpajB\aqjaja»AuBdmoaaqVlqsmi^o

qons píBs 'dnoj§ zangBjÍBjv aq; jo Jopajip 'ponugi]^ Bijnf jossajojd iíjisaaAiun •uoipaia-aa jjaas ój pu uoispap siq oj 3uipBai Jojobj JofBui b sbm 9100 uiuiBfuaa jOiÍBuj auiij-Suoi jueid 9qj JjOBq oj uoispap b piBS iípaddaH

íiJUBid aqj asoddo sajBpipuBo IbjoXbui aaaqj pps jípatídaH /'aaau 9nssi iBDtjipd aqj auioaaq SBq iboq,, puB qjiBaH aoj souüzanBDfto^'^íq aS -Ujo puB jsnuaps leanjinouaE ub 'Ajad -d9HIHBd Aqpapataa sbm miEp sx^¿ •patoad-aqj jaoddns sjuappaa BaaB-zana StTSiSI™ «wiSS ssaaa juaoaa b m papuajuoo siEnmr. ™ "» "«'WoddóTo■«lPKB,.pBOi,ÍITObM, 4 BU9jsAq aqoAoad oj papua^m

-J

J9pun auioD Anuaoaj sBq AuBduioo pasea -ON 'ajJoiaBqo aqj 'AneoixopBJBd «51 leiaeiuuoauu, jb,, ÍU7,^;XíPI»05í,«d50„Sd am apenssip oi iibi Tr?'?'' 8u,u,oad„-,BuS■oddoonqpdJOipaspunoasbuaA, g JO i» íq p,Bs uipaaj JoTor,»'"' Wnom BM usq) 'sjbidijjo oqqnd pus san -«OÍB to,Binadaa„ SoajSo mVaS looloadBd,,su,b8p ¿^ WP,BO.,v,„B,d,,,,S,;S¿S

The San Juan Ster

in plans to limit access. Page 3

Bayamdn mayor visits residents to assuage fears over cotmng privatization of the island's pubtic bousing projects. Page 3

Solmerina Pedroza of the Jardines de Caparra public housing project asks Bayamón Mayor Ramón Luis Rivera to answer a question about the upcoming public housing privatization agreement.
STAR photo by Humberto Trias Jr.
STAR photo by Farah Rivera Athletes and journalists arriving at the Olympic Village in Barcelona are greeted by a troupe of actors caliing themselves "The Village Idiots." Reiated storles, Back Page

jBig uenf uBg aitL

The San Juan Star LOCAL NEWS Friday, July 24, 1992.

Plant

guezdid notwantthe plant,he would not forcé it en them.

If a olear mándate against the project vsrere to come from the regulatory agen cies and public officials, then we would decide to go," Peedin said by way oí interpretation.

Butevenagroundswellofpublicopposition at upcoming rallies, he said, would fail to dissuade the company."The Independence Party could organize a lot of people with their environmental fear tactics."

Paradoxically, the Charlotte, N.C.based company has recently come under fire from environmental leaders for its publicity campaign, which they say is

From Page 2

Stance

The 300 megawatt facility would be built and operated by Charlotte, N.C.,based Congentrix, Inc. in partnership with Spanish utility giant ENDESA. Martín added that failure to respond ta hischallenge would be tantamount toan endorsement because it would allow opponents to rely on the excuse that "it's already too late" to stop the plant once in

intended to provoke hysteria.

Despitetheapparently broad-basedlo cal opposition to the plant, Cogentrix officials contended in a recent press release thata"silentmajority"ofMayaguez-area residents support the-project.

This claim was rejected by Paúl Hepperly,an agricultural scientist and officer for Mayaguezanos for Health and the Environment.

Coal has become the political issue here, Hepperly said. "All three mayoral candidatos oppose the plant."

Hepperly said a decisión to back the plant by long-time mayor Benjamín Colé wasamajorfactorleadingtohisdecisión not to seek re-election.

University professor Julia Mignucci, director of the Mayaguez group,said such office.

As a last resort, the governor could issue an executive order to stop the project.

Asked what her stance would be toward the plant if elected, Muñoz said:

"With regards to projects like Cogen trix, these must guarantee, beyond all doubt, that they would protect environ mental quality.

"ThelastIknow,Cogentrixhadn'tdone that."

Inapreviousinterview,Muñozsaidshe

Estado Ubre Asociado de Puerto Rico C2x>rpoT»tión.de Caréate y Desarrollo ComercialyAgrícoladePuertoRico SanJuan,Puerto Rico /

(San Juan Foreigo Zone Na 6l)

Modernasfacilidades dealmacén para distribución internacional y mercadolocaldesde6,480piescuadrados en adelante.

•Importación de mercancía libre de aranceles y arbitrios locales.'*'

•Exencióndepagodecontribuciónsobrela propiedad(Property Taxes).

•Facilidades para manipulación y exhibición de mercancía.

•Seguridadarmada24horas.

•Sistema de rociadores("Sprinkler").

•Excención contributivaaempresasexportadoras.

•Sistema mecanizado de control de inventario.

*Impuesros sólo aplican cuando la niercanc&i entra al mercado

Para información llamar al 793-3090.

claimsbythecompany werethelatestof its "big lies."

The same press release insinuated that Mignucci was a leftist by mentioning that "knownformerleaderofthePuertoRico Socialist Party," Juan Mari Bras, supported an upcoming opposition protest.

Peedin defended this statement when asked later if he felt it was appropriate.

Mignucci said this and other allegations aimed at discrediting the opposition demonstrated "a lack of respect" by the company for local residents.

I wenton theradio and invited every political party,every church group and every civic organization to protest the plant," she said.

"It's not the interests of any particular party we'redefending,butthe health and environment all of us live in'

was in favor of using coal, but that she didn't have a position on the proposed site or on the company itself.

Rosselló could not be reached for comment, but aides said his previously announced opposition to the project was still valid.

Thepro-statehood physician told a Ma yaguezaudience in February he opposed the plant because of "scientific reports by responsible doctors, who are opposed to the plant,thatraise doubtsover thereal risks to residents' health."

Puerto

Partiy

twr.by glva of tht soiiuro «nd Intontlon of tho Govornatnt tol forfoit and aoll, doitroy or othtrvlio dlspott of aceordlng to Itw. thol follovlng MrchtndiM ««Izad for violotlono of th# ü.S. Cuatoai Sorvleal Uv». Porsono havlng clalso agalnat tha aarehandlaa In quaatlon aral raqulrad to appaar and fila with tha Dlatrict Diractor of Cuatoaa vithlnl 20 daya froa tha daU of firat pubUcatlon of thla notlca a cíala to «uch proparty and a bond, tharafora» in tha aua of 10* of tha valúa of tha I aarehandlaa or 19,000.00 but not laaa than *290.00 in dafault of which I toa proparty wlll ba dlapoaad of aceordlng to lav: DC90-4908-00030 - Ona I Halda Plck Up VIH JH2VP6122H0144618, two tranacalvara, ona Colaaan laao ona Huatlar antanna and toraa alacallanaoua Itaaa, aalzad at Ponca P R l flolatlon of 19 U3C 1999(a), 21 U3C 843(b) andl 963. DC91-4904-00006 - Ona 26 ft. vaaaal with angina PR9766AA aalzad atl Dacaabar, 6, 1990, for violatlon of 21 USC 952 and 19f DC91-4907-00029 - Ona 1934 Corvatta Chavrolat VIH #| 1GAY0781ES122684, aalzad at Kayaguaz, P.R. for violatlon of 21 USC 3811 and 841. 13 ÜSC 549 and 19 USC 1999 a(a). 0091-4906-00090 - 220 druaa ofi Potaaalua Paraanganata aalzad on Saptaabar 23, 1991, at Ponca. P.R fori violatlon of 21 USC 971 and 21 CfH 1313.41. DC91-4909-00077 - *3,531.001 in ü.S. currancy aalzad on Harch 11, 1991, for violatlon of 21 ÜSC 952.1 841 and 959. DC91-4913-00030 - Nonatary Inatruaanta totalllng *97,690.0ol and othar alacallanaoua artlclaa aalzad on Octobar 29, 1990, fori violatlon of 31 USC 5316 and 9317. DC91-4913-00209 - 1299,679.00 In U.S.Í violatlon of 31 USC 9316 and 9317. K92-4909-00028 - 71 cartona of Poracha toy cara aalzad Novaabar 15.. 1991, for violatlon of 19 USC 1526 and 1595(a). DC92-4909-00094 - 291 ?2*ii2Í Juan, P.R. for violatlon of 15 USC 50011 D 1595a(c). OC92-4909-00091 27 cartona of valvaa aalzad at San] Fabruary 07. 1992 for violatlon of 15 USC 1124, 1125 and 19I T o 0C92-49O9-OOO92 - 112cartona of waarlng apparal aalzadi 1 Fabruary 11, 1992, for violatlon of 19 USC 1995a(c)l OC92-4909I0011S* ordar no. 12779.1 P R írSl??! e«Ptona of aana ahort panta aalzad at San Juan, and 1125 W92I49ÍM0Í?; vlol«tlon of 19 USC 1595a(c) and 19 USC II24I 0;

From Page 3

Access

permits were amended to include them, providing for a gate on the north side while keeping a similar gate between the two neighborhoods, he said.

But the north side residents said the gate on their side never worked, so that within months most of the residents stopped paying their monthly fees. They claim the Residents Association took their money, never intending to include them in the project.

Thesouthern gate has three lañesand a guard house while the northern gate was provided with a solé entrance and beepers. Robles said the gate did not work due to the heavy traffic.

Its not our fault the gate was poorly constructed," Robles said.

Now, the north side group wants to stop the whole process, despite the fact thatcrime has decreased in their neighborhood. They say they feel bitter and powerless against their wealthier neighbors.

To enter the southern gate, residents from the north side must identify themselves with the guard rather than pass though the automatic gate. They would have beepers to pass through the center gate to get into their neighborhood, but this gate has never been completed

Engineers question Cogentrix coal plant Group saya initial report lacks details on plant's environmenta!impact

The Engineers and Surveyors Association opposed initial plans Wednesday for a coal-fired energy plant in Mayaguez.

At the same time, the group supported coal as an alternativo energy source for Puerto Rico.

Association President Miguel A. Roa Vargas acknowledged, however,that its 16-month report did not take into account additional information submitted by the North Carolina-based company in May.

Theengineers'groupopposedtheprojectduetogapsin the environmental impact study.

"We need 30 to 60 days more to examine the new information," Roa said.

The group plans to ask the Environmental Quality Board for more time to study the documents, coming to the end of a 30-day period of general comment. The engineers' association received a copy of the 322-page supplement on Friday, Roa said.

Joining a cacophony of fiery opinions about the proposed $500 million plant. Roa said coal is an ideal energy source for meeting the island's needs. He said Puerto Rico has the technology to run a coal-fired plant — technology whichcontinúestoimprove withregard to environmental protection.

"Despite this, we believe that the proposed Cogentrix plant doesn't meet the environmental requisitas," Roa said.

He said the initial Cogentrix report lacked details on the plant's impact on the environment,including noise factors, wildlife and Mayaguez Hay.

"It seems the supplement could answer many of our questions and addresses many of our objections," Roa said.

Cogentrix submitted the additional information requested by the EQB after the agency postponed its decisión, claiming the study was incompleta.

The report addressesCogentrix's ability to handle such problems as ash disposal, possible earthquakes and effects on end^ngered species and water quality.

"The Engineers Association can make a scientific and professional evaluation once it examines the submitted document," a Cogentrix news ralease said.

JuliaMignucci,portavozdeMayagüezanosporlaSaludyel Ambiente,grupoopuestoa la instalación deCogentríx.

Silencio rodea a Coaentrix

LUIS A. FERRE RANGEL

De El Nuevo Día

HACE TRES DIAS que venció el plazo que tenía la JuntadeCalidad Ambiental paracomentarsobreelSuple mentoala DeclaracióndeImpacto Ambientaldela planta de cogeneración de energía Cogentrix, y la agencia aún no se ha pronunciado al respecto.

Ayer no fue posible obtener una explicación de la JCA sobre el atraso.

Pero miembrosde la organización Mayagüezanosporla Salud y el Ambiente,queestán opuestosaesta planta que generaría energía por medio de la quema de carbón,indica ron que la JCA les había dicho que estaban en conversa ción con la Compañía de Fomento Industrial para pedir una prórroga antes de emitir una resolución.

Hace más de un mes atrás,los consultores ambientales de la Cogentrix sometieron un voluminoso documento contestando las interrogantes que levantaron la JCA y el público asistente a unas rondas de vistas públicas que se celebraron el año pasado.

INMEDIATAMENTE, la organización de Mayagüez exigió que el apéndice de 5,000 páginas fuese traducido del inglés, a tono con la Ley del Español corfto idioma oficial, y advirtieron que no todos los documentos estaban tan dispo nibles como había dicho la Cogentrix.

La empresa contestó diciendo que eso era sólo una tácti- ■ ca para atrasar el proceso y que los apéndices del documen tos estaban eximidos legalmente de esa ley.

Ahora el grupo opositor advierte que tiene información fidedigna desde La Fortaleza en la que el gobernador, Ra fael Hernández Colón,dio órdenes personales para que la JCA aprobara el proyecto de la JCA.

Aunque esta información no pudo ser confirmada inde pendientemente, la Dra. Julia Mignucci, portavoz del gru po, indicó que la unión de la empresa eléctrica española, Endesa, es prueba del "mollero" con que se piensa seguir adelante con el proyecto, a pesar de la oposición pública al mismo. • , "Este es el mismo gobierno que en voz del secretario del Departamento de Recursos Naturales, Santos Rohena, pre sentó un manifiesto en la cumbre en Brasil promoviendo la reducción en 60 por ciento en el uso del carbón coirio combustible y así como los demás combustibles fósiles", dijo Mignucci. MIGNUCCI añadió que la empresa Cogentrix pretendía venderelectricidad ala República Dominicanaatravésde un cable submarino para las empresas 936 ubicadas en ese país.' - < - ^ ■ «•. tm*

Cogentrix urged to cease efforts to buHd plant

Granados sees no futura for project in Mayaguez

A New Progressive Party legislator said that ef forts to build a coal-fired energy plant in Mayaguez should be abandoned to avoid damaging coal's future on the island as an alternative energy source.

Rep. José Granados Navedo, chairman of the House Planning and Socioeconomic Development Committee, said during a hearing on energy infrastructure that he believes coal is the best way to diversify from the island's 99 percent dependence on oil for electric power generation.

But he recommended to Cogentrix-ENDESA officials that they cease their attempts to build the 300megawatt coal plant planned for Mayaguez.

"I think coal has great possibilities in this country," said Granados, NPPat large, "But if we continué to push Mayaguez we will do permanent damage to tYve ítrm's repu-

tation and, worse than that, permanent damage to the image of coal."

Granados later said; "Even though it may not be for any rational decisión by the government, but an emotional decisión by the community...my advice to the plant's proponents is to re-evaluate your position because I don't think there is absolutely any possibility that yon will be able to establish the project."

Cogentrix spokesman Máximo Cerame Vivas, who said he "got the message loud and clear," re sponded that the main reason why Cogentrix con tinúes to pursue the pro ject, even after it was declined two critical operational permits from the Commonwealth, is its contract with the Puerto Rico Electric Power Authority.

The contract states that Cogentrix must pay PREPA a $3 nyllion penal ty fee if the plant is not built by 1996.

Similarly, PREPA would be Hable to Cogen

trix if it backed out of the contract.

That, said Granados, leaves an open door for a compromiso beneficial to both sidos.

After the hearing. Gra nados said he plans to cali PREPA Executive Direc tor Miguel Cordero López to work out a compromiso.

"I think maybe we could negotiate to avoid all these legal complications," he said.

Cordero could not be reached for comment Monday.Cerame added,howev-

er, that CogentrixENDESA may not be liable for the $3 million if it can be proven that the project's failure was not the fault of Cogentrix.

Cerame said Cogentrix would consider another site for the project,but will wait for the government to pick a site to lessen the possibility of futuro controversies.

"We are not tied to any one place In Puerto Rico. But if we say,'OK,look for another site,' we'll have to go through the whole permit process again," he said.

estimating a four-year de velopment phase.

Advantages of coal include its lower price than oil, the fact that it won't cause extensivo environmental damage from spills and its plentifulness in the United- States and other countries.

Although the World Watch Instituto calis it the most environmentally damaging fossil fuel, Cer ame and Granados agreed that new technology is far less damaging than Puerto Rico s present oil-burning plants.

Moreover, Cerarne pointed out that the is land's two cement manufacturers have burned coal during cement production for more than 10 years.

But in an after hearing conversation. Granados said to Cerame: "You can have all the right in the world, but if the public doesn't want it, it won't happen."

Cerame's responso:"Let them carry the historie responsibility as to how much damage they have caused Puerto Rico."

Cogentrix appeals denial of site permit

Board accused of flimsy evidence, playing politics

Cogentrix-ENDESA, the developers of a proposed coal-fired energy plant in Mayaguez, Monday appealed the government's denial of a site permit for the plant.

Filed on the last day of the appeal period, Cogentrix's request for a recon-

Apartado 1324

Ponce, Puerto Rico 00733

sideration called the Puerto Rico Planning Board's decisión "capricious, arbitrary and erroneous."

Cogentrix charged thata politicaldeci sión has been made to kill the plant and that the government was scrambling to find technical reasons to back its claim th

at the project was environmentally damaging.

"[There is] a premeditated inclination towards denying the site permit independent of the merits and virtues of the proposal," states the document.

Gov. Rosselló has publicly stated his opposition to the project.

Cogentrix's bid to overturn the Planning Board's May 27 denial further lambasted the agencyfor using vague terms in its decisión such as "it could be,""it may be," or "there exists a reasonable doubt," without backing up its claims with sufficient technical data.

The Cogentrix plant, three years in development, encountered large opposi tionfrom Mayaguezresidentswhofeared its environmental impact.The company has maintained that the proposed 300 megawatt plant complies with federal pollution standards.

In addition to the Planning Board's denial, Cogentrix received another recent setback with the denialofa waste-water discharge permit by the Environmental

Quality Board. Cogentrix has already filed an administrative appeal with the EQB.

To build the plant, Cogentrix will have to overturn both agency decisions and obtain additional environmental permits, two of which are needed from the U.S.

nvironmental Protection Agency. Cogentrix also announced Monday that it would cióse its Mayaguez office and consolidateoperationsinSanJuanuntilit decides what strategy to take.

Cogentrix spokesman Máximo Cerame Vivassaid thatCogentrix wasnoteasing up on its fight to build the plant, explaining that the office closure is a way to save money while the company awaits agency decisions. But he has previously saidthatacompanydeadlineforbuilding the project was being considered.

In its Planning Board and EQB ap peals,the company noted that the EQB had previously approved the water quali tycertificateduringtheHernándezColón administration, then decided to reject it under the Rosselló administration. That was one reason cited by Cogentrix in its allegation of political motivations behind the denial.

Yet allegations of political tamperin

was why present EQB president Héctor Russe Martínez said he revoked the wa terdischargelicenseand orderedfurther review in the first place. The EQB contends that the Cogentrix model on which the plant would be built underestimated the amount of pollution that would be discharged into the bay.

The Cogentrix document also cited the support for the plant expressed by two previous Education Secretarles, José Lema Moya and Celeste Benítez, but noted the rejection of the plant by current secretary José Arsenio "Torres.

Further, the Planning Board did not consider testimony by other government agencies such as the Aqueducts and Sewers Authority and the Department of Natural Resources, which were in favor of the project in the previous administra tion, states the document.

Cogentrix alleges that the government is "bending over backwards to admit any information which is against the project but when we submit information, the book is thrown at us," said Cerame.

Forexample,when the Planning Board requested additional information about ocean waves and water,Cogentrix did the additional research but it was denied when submitted for being late, said Cerame.

Cerame further said that the present Planning Board did not submit its deci sión to public hearings, as is required by EQB regulations. g

"Tu ayuda es Vida"

Crucialel permiso de ubicación que debe otorgar ia Junta de Planificación

En el limbo la Cogentrix

EL CASO de la planta de cogeneración de energía Cogentrix-ENDESA aún se en cuentra en un limbo burocrático en lo que la Junta de Planificación decide conceder o denegar la ubicación de dicha instalación en el barrio Algarrobo de Mayagüez.

El permiso es la ficha clave que podría destrancar el proceso administrativo que está detenido desde principios de año en lo que los técnicos de la agencia evalúan toda la información contenida en el voluminoso expediente, producto de más de seis meses de recopilación de datos.

Sin este permiso de ubicación, ninguno de los otros permisos,estatales o federales, son válidos.

Hasta esta semana la Junta de Planifica ción no ha,emitido anuncio alguno o dado señales sobre cuándo se dará a conocer la decisión de esa agencia. Llamadas de este diario inquiriendo sobre el particular no fueron atendidas.

La última vez que esa agencia se pronun ció en algún respecto en torno a la Cogen trix fue el pasado 27 de marzo cuando le advirtió a varias dependencias guberna mentales que aún tenían que rendir infor mación adicional sobre el impacto del pro yecto. Esa información fue rendida tardíamente.

Desde entonces el último desarrollo en el proceso de permisos fue la denegación del Certificado de Calidad de Agua el pasado 15 de mayo por la Junta de Calidad Am biental (JCA).

Privadamente funcionarios de la empre sa Cogentrix reconocen que la decisión de la JCA es otra táctica dilatoria más del Gobierno para no lidiar con el controverti ble caso.

"EL REDISEÑO de un difusor no es un problema;el utilizarotro modelo matemá tico-el quese nosexija- noes un problema; lo que es frustrante es si podríamos para siempre. No hay garantías de que no nos vuelvan a hacer lo que nos hicieron", dijo el Dr. Máximo Cerame Vivas, asesor am biental del proyecto.

LaJCA denegóelCertificadodeCalidad de Agua argumentando que un modelo matemático sometido por los opositores al

proyecto demostraba que el efluente de la planta a la Bahía de Mayagüez no cumplía con los parámetros de calidad de agua.

Por su parte, el grupo Cogentrix-EN DESA argumenta que eso es así porque la JCA no exigió ese modelo matemático en particular, sino otro. Añaden que el consor cio Cogentrix-ENDESA esta dispuesto a rediseñar el difusor(por donde sale la mayor parte de las descargas de la planta) acorde con el nuevo modelo matemático.

Para ello, la JCA tendrá que sostener otros proceso de vistas públicas sobre la nueva solicitud del Certificado de Calidad de Agua, si es que el consorcio CogentrixENDESA decide continuar adelante con el proyecto.

Por otro lado, el proyecto -que consta de una planta de cogeneración de energía que produciría hasta 300 megavatios de electri cidad por medio de la quema de carbón y la producción de vapor- tiene varios permi sos federales pendientes.

Los dos más importantes son el de des carga de efluentesa la Bahía de Mayagüez y el de emisiones al aire.

Para el primero -que permitiría una des carga diaria de más de 400 millones de galones de agua ya procesada-, era necesa rio que la JCA emitiera el Certificado de Calidad de Agua que definía y autorizaba la zona de mezcla o dilución de esa descarga. Dada la negativa de la JCA en este respec to, este proceso queda paralizado, a pesar de que la Agencia de Protección Ambiental (EPA)no había mostrado reservas,particu larmente con el patrón de las corrientes, ángulo altamente cuestionado en la esfera local.

Por otro lado, la EPA ya recibió los co mentarios negativos emitidos el pasado di ciembre por el director del Area de Aire de la JCA,Ing. Francisco Claudio,en torno a las emisiones de la planta, quien advirtió que el sectorse convertiríaen una"zona de no logro" como la de Cataño, por la alta concentración de particulados.

LA EPA puede emitir el permiso de emi sión, a pesar de las objeciones de la JCA, porque el programa de calidad de aire no está delegado a las autoridades locales; pero probablemente la agencia federal no actúe hasta tanto el gobierno estatal -representa do por la Junta de Planificación- decida qué hacer sobre el caso Cogentrix.

environment

Neighbors divided about Cogentrix

ROXBORO, North Carolina — At first glance, Shady Hill Gírele looks like any other road in this little town surrounded by tobáceo fields.

But a eloser look reveáis at least three houses with For Sale signs on the front.

Francés Clayton just sold her house and Is awaiting the construction of a new one just a few miles away.

She had no problem selling her house. Cogentrix Ine., which runs a 60-megawatt coal-fired plant about 100 feet from her baekyard, willingly bought it.

Clayton was one of 16 families who took Cogentrix to the Person County Superior Court in 1988, alleging that the plant pollutes the neighborhood with eoal ash, dust and noise.

"We don't feel it's healthy here," said Clayton, a supervisor at the Collins & Aikman textile plant,to which Cogentrix sells 25,000 pounds of steam an hour."This has uprooted the entire neighborhood."

This dispute, which was settled out of court last summer,appears to be the major problem that Cogentrix — which plans a 326-megawatt plant for MayaguA — has had with neighbors of its power plants. In visits to two towns with the company's cogeneration plants, the STAR found that the firm; in general, is considerad a good citizen.

The Roxboro plant, however, was built at the edge of a residential area, unlike others, in-.-luding the Mayaguez plant, which is planned for a warehouse district.

"In retrospect, the plant was [l uilt] too cióse to a residential area,"Cogentrix founder George Lewis said of Roxboro. "We will never do it again."

While Cogentrix declined to reveal the terms of the settlement, citing a confidentiality agreement, several neighbors said the company bought nine homes and paid damages to other resvdents. Cogentrix rents some of the houses to emptoyees and is selling others.

Clayton got ^5S,000 tor her house and "a lew thousand ddllats" loT tlve aWeged damages, she said.

Cogentrix has dismissed the accusations in thelawsuit, sayjng the plaintiffs were motivated by "prospects of personal gain."

Even those who Uve near the plant are divided in their opinión of it. Six neighbors were interviewed at random along the two roads adjacent to the plant. They all conceded thatitcan be noisy,butonlytwo voiced strong opposition.

"It doesn't bother me at all," said Louis Stanfield, an unemployed lumberyard worker, who Uves across the streetfrom Clayton."You don't hear it unlessthey letthe pressure off."

Lugene Powell, Cogentrix's next door neighbor, says the generator's low-pitched hum doesn't bother her, although she can hear it in her front yard.

"I don't like the shaking of my house," when they unload the coal, said Powell, who works for Eaton Air Controls,a manufacturing plant in Roxboro."But as long as it doesn't harm [my house], I have no complaints."

She claims even some of the residents who sued Cogentrix took the company's money,but decided to stay in the neighborhood.

"Some remodeled the houses instead of moving out," said Powell.

Added Stanley Wilson; "This is a nice neighborhood. You get used to the noise."

But Ivey Ragans says he is ready to take Cogentrix to court. He didn't take part in the first case because he was "too sick" back then, he said, having had a back operation.

The 58-year oíd resident pointed to his cars,which had a thin layer of coal dust — he admitted they were last washed four weeks ago — and complained of having to insulate the windows to muffle the plant noise.

Ragans filed a complaint over the "black dust" with the North Carolina Departmentof Environment,Health and Natural Resources in Raleigh. But Ken Schuster, regionalsupervisor,saidtheagencyfound nothing wrong with the plant.

Theneighborsdoagreeononething — thattheplantis noisy when it releasessteam.Cogentrix workers cali it a "trip situation," which occurs when the industrial custom-

er can't receive the steam,forcing the plant to release it into the air.

Cogentrix olücials say this occurs no no more than three times a year,but neighbors said it is more often. "Sometimes it goes off in the middie of the night, frightening you," said Clayton.

A "loud whistle" was how Ragans described the sound. DanClark,the plant'sshiftsupervisor,knowswhatthe neighbors are talking about. He rents one of the houses

FrancésClaytonsold herRoxborohousetoCogen trix as partofa settlementin alawsuitinvolving 16 neighbors. Now she's building a new home a few miles from the plant.

Cogentrix bought near the plant.

"I can hear the plant humming," concedes Clark."But it puts me to sleep."

Still,Roxboroofficialssaytheplanthasbeenreceptiva to the community's complaints.

Cogentrix spent $760,000 building a structure around the coal shaker, to muffle the noise, said Cogentrix founder Lewis. Another $180,000 was spent landscaping the plant grounds.

A Une of pine trees borders the railroad track that separatas Shady Hill road from the plant. Still, the constant hum can be heard up to about 300 feet from the plant.

But Roxboro town officials say that witliout the coalfired plant, Collins & Aikman may have closed its factory, taking about 1,000 Jobs.

The coal-fired plant "saves our single largest employer about $900,000 a year in electricity," said Roxboro Mayor Donald J. Waldo. "[Cogentrix] pays its bilis and has lived up to everything they told us."

H.G.Stonbraker,chairman of the Person County Board of Commissioners, said Cogentrix has actually cut pollution in the area. Before buying steam from Cogentrix Collins & Aikman's used coal-fired boilers that were far worse polluters than the power plant.

"They have taken care of the angry people," Ston braker said. "We have no complaints about thém."

Some 50 miles east of Roxboro, in Rocky Mount Cogentrix has caused much less controversy. '

Its 120-megawatt plant, double the size of Roxboro's is located in an industrial area, with no immediate neigh bors. The plant sells steam to Abbott Laboratorios.

The state environmental regulatory agency has on file only a two-year oíd complaint from a resident, worried about "brown particulates falling on his car."

In responso to complaints about the noise when coal is unloaded from the train, Cogentrix is designing a struc ture to surround the coal shaker. It will be presented to a community public meeting for approval,said Jef Freeman, Cogentrix vice president of public affairs.

Also,Cogentrix has agreed not to unload coal after 9 p.m.or duringSunday church servicesfrom 11 a.m.to 1 p.m.

"They have been very good corporate citizens," said Rocky Mount Mayor Frederick E. Turnage.

STAR photos by Oiedre Laird
The Wilson famiíy Uves across from the Cogentrix plant in Roxboro, N.C., but say they have no complaints. Stanley Wilson,right,is shown here with,from left, niece Latoya Thomas,sons Diantra and Antoni,and daughter Sherika.

,estigacion.

TONCE — La Agencia para la Protección del Ambiente (EPA) decidirá dentro de 30 a 60 días si concede los permisos que solicitó la firma Cogentrix para construir en Mayagüez una planta de car bón para generar electricidad, se informó el martes."La EPA estu dia los permisos que la Cogentrix solicitó tanto para aire como para agua y vamos a tener una determinación final dentro de ese plazo", dijoPedro Gelabert,director parael Caribe de la agenciafederal.

Explicó Gelabert, que la Cogentrix solicitó permisos de emi siones en el caso de aire y de descarga en el caso de agua. "En los dos planteamientos se han notado una serie de problemas que esta mos estudiando", dijo Gelabert mientras participaba en Ponce en los actos de mejoras alas instalaciones dela Puerto Rican Cement. La Cogentrix proyecta construir en el país la primera planta de carbón para generar electricidad, pero el proyecto es combatido por dirigentes ambientalistas. Por otra parte, Gelabert anunció la cre ación del Instituto Ambiental del Caribe que trabajará conjunta mente con los gobiernos de 23 países, para resolver los problemas educacionales del ambiente así como la investigación tropical, transferencia de tecnología y establecer en Puerto Rico un Centro de Información Ambiental. Precisó que 23 países se afiliaron al nuevo proyecto, incluyendo México, Puerto Rico, Colombia, Vene zuela y República Dominicana. Este Instituto está avalado por uni versidades latinoamericanas y dirigentes y grupos ambientalistas, se dijo.

Gelabert informó además que el gobierno de Estados Unidos negoció un acuerdo con Jamaica, en el que se le "perdonó" $220 millones, de un total de $270 millones en deuda externa que debía. "Esto es lo que llamamos el cambio de deuda exterior por naturale(Pasa a la Páff. 94|

EPA

iniormación alguna,segui.-

decidirá...-—

dinero, Jamaica lo va a uiáli- za , benai" oo+ahlprpr un Fondo de oon zar ahora pa ^ millones para la servacion que 6 funcionario. compra de terrenos , agr g Tunta de D nnrte la presidenta de la Junta ue

^

oue se inhibirá porque Custodio, sa un David Rodríguez tiene Señalo que ® oyecto sometido por la a su cargo cualquier prycv, Cogentrix ante la Junta de Plan

Asalta a punta cuchilla

Luis A. González Vega "Freddie", de la Calle 21 en Las Colinas, Vega Baja(der.), es conducido a prisión por el agente del CIC Javier Fuentes, luego de que el juez Eddie Ríos Benítez, del Centro judicial de San Juan lo acusara de que el pasado 25 de febrero en la Farmacia Vega Alta uti lizando una cuchilla curva amenazó a Priscila Calderón Pantojas, a quien le quitó dinero en efectivo y otras pertenencias. Le fue señalada unafianza de$5,000.(Foto EL VOCERO por Manuel Córdova Díaz).

nO r

The Associated Press

EL NUEVO DIA-MIERCOLES 3 DE MARZO DE 1993

Paralizan los permisos a la planta Cogentrix

LA JUNTA de Calidad Ambiental dejará sin efecto la resolución que hubiera autorizado el Certificado de Calidad de Agua para la planta de Cogentrix quefue firmada,pero no notificada,porel pasado presidente dela agencia minu tos antes de que saliera de su cargo.

La información fue adelantada ayer por el licenciado Miguel Morales, director de la división legal de la JCA, durante el primer día de vistas públicas que celebra la comi sión senatorial que investiga el proceso administrativo que ha regido el controversial caso.

Con toda probabilidad la Junta de Gobierno de la JCA se reúna hoy y notifique su cambio de opinión dejando nosólo en suspenso la resolución firmada por el licenciado Pedro Maldonado Ojeda,sino que redacte una nueva resolución que puede abrir la puerta para otro proceso de vistas públi cas en torno al Certificado de Calidad de Agua. Morales dijo que la decisión de la Junta de Gobierno está basada en la preocupación de que no se hayan tomado en consideración yque nosele hayadadoel valoradecuadoa toda la información presentada a favor o en contra del

proyecto y su impacto a la Bahía de Mayagúez.

POR SU PARTE,el senador

Freddie Valentín, presidente de la Comisión de Recursos Natu rales, Asuntos Ambientales y Energía, aplaudió la decisión de la JCA.

"Felicitamos a la JCA por su posición ya que la firma de la resolución fue en un momento donde había un cambiode go bierno, en un momento donde el gobierno se encontraba en plena transición. La decisión delaJCA habíadejadoun muy mal sabor en el pueblo", dijo Valentín.

La decisión de la JCA afecta Valentín adversamente al proyecto pues to que sin el Certificado de Calidad de Agua, el Gobierno Federalnopuedeemitirsu permisodedescargadeaguasde escorrentía y de aguas tratadas a la Bahía de Mayagúez. De Maldonado Ojeda haber notificado a las partessobre

lá intención de otorgar el certificado, entonces habría conti nuado el proceso administrativo, pero como sólo la firmó y no notificó la intención de la JCA para otorgar el certificado, el mismo quedó prácticamente en el limbo hasta que la nueva administración se encontró con la controversia cuan do asumió las riendas de la JCA.

LA DECISION de la JCA no fue del agrado de los funcionarios de la Cogentrix,algunos de los cualesse encon traban en la vista pública.

Esto lo que indica es que la politiquería es más impor tante que el bien económico y el progreso de Puerto Rico", dijo James Feedin, representante de la Cogentrix en Puerto Rico.

Peedin añadió que la decisión de la JCA parecía indicar que el gobierno de Pedro Rosselló estaba asumiendo una posición de "wait and see" o de postergación de decisiones en torno al controversial caso.

La decisión de la JCA ocurre en momentos en que la Junta de Planificación ha archivado temporeramente el caso enesperadequevariasagencias,entreellaselDepartament'" de Recursos Naturales y la Autoridad de Acueducto Alcantarillados, contestaran algunas interrogantes. /

LOCAL niEWS

Clinic to receive $102,000 grant for AIDS project

WASHINGTON-A $102,000 grant has been made to a San Juan clinic for an AIDS prevention project for gay naen, it was announced here Friday.

The federal grant will go to the Puerto Rico Community Network for Clinical Research on AIDS, which is in Río Piedras, near the University of Puerto Rico campus.

The project involves "street outreach" and workshops aimed at educatinggay menaboutAIDS,saidaSan Juan City Hall spokesman.

The non-profit, community-based clinic, run by Dr. Rafael Pagán, pro vides services and AIDS testing for gays, students and women.

The San Juan grant,the only one for theisland,wasoneof10giventocities around the nation. The grants, totaling $1 million, were announced by the Washington-based U.S. Conference of Mayors.

Cogentrix still pluggíi^ plant plans

But many Mayaguez residents just áren't interested

A top official for the proposed coalburning plant said Friday the company will not give up trying to convince Maya guez residents Cogentrix-ENDESA can naeet the needs of their community.

However, in a telephone interview from North Carolina, Jef Freeman Jr., vice president for public and government affairs,said he would not reveal details of the campaign.

But whether the company offers specific or general information, many residents arent interested in hearing more from Cogentrix.

A resident who has been actively opposed to Cogentrix moving into her neighborhood, said the North Carolina-based company is burning its money in trying to embark on a new publicity blitz.

They ve been holding public forums for the pastthree yearsand haven't been able to convince the public. We haven't seen any new arguments,and it appears the more public forums they hold, the morepeopleareagainstthem,"saidJulia Mignucci, president for Mayaguezanos for Health and the Environment.

The latest in the three-year-old battle lodged by Mayaguez residents to try to

stop Cogentrix and its partner ENDESA ofSpainfrom building the300-megawatt facility could take a new direction when company officials hope to begin holding another series of public forums to offer compromisos and solutions.

"This time around we're going to try to better balance the project," said Free man Jr.

Cogentrix recognizes environmental concerns have become a delicate issue with residents, he said.

Thisis nota massive public relations barrage on our part. Public relations can appear to look as if we're pushing Cogen trix on Mayaguez, but we're not."

Mignucci said her group is willing to discuss options with company officials. But she added: "I would recommend to Mr. Freeman that it's already too late for Cogentrix because of the bad publicity."

Freeman said this time around the companywantstoofferspecificsolutions to residentsconcerns.He declined tosay what Cogentrix is willing to propose, saying speculation "doesn't serve anybody any good."

"There are some issues, other than environmental,that need to be addressed. We want to establish a productivo dialogue with Mayaguez. People have been

concerned about their property valúes and the closings ofsome schools. Maybe there are some things we can do to help them," he said.

The Congentrix-ENDESA plant would hire 100 people, most of whom would comefrom the Mayaguezarea,Freeman said.

Buttop positionssuch asplant manag er and shift supervisors would be filled by personnel from stateside plants, he said, because Puerto Ricans don't have the training yet.

Apartado 1324

Ronce, Puerto Rico 00733

"Tu ayuda es Vida"

Emplazadas a opinar de la ubicación de Cogentrix

LA JUNTA de Planificación le concedió un limite de 10 díasa tres agencias públicas para que agreguen sus comentarios a la consulta de ubicación para la planta Co gentrix o,delocontrario,laJuntainterpre tará que esas agencias están endosando el proyecto.

El Departamentode RecursosNaturales, la Autoridad de Acueductos y Alcantarilla dos y el Departamento de Educación aún no han sometido los comentarios adiciona lesque pidiera la Junta de Planificación al archivar por30díasel pasado9defebrero la consulta de ubicación para la controversial planta de cogeneración de energía, "Entendiendo que de no someterse co mentario alguno en el término de tiempo estipulado se procederá con el trámite co rrespondiente para este tipo de proyecto entendiendoquela agencia endosa la con sultade ubicación",leelaresoluciónemiti dael martesyobtenidaayerporestediario. Desde el comienzo del proyecto, el DRN ha levantado dudas sobre el impacto de las descargasdela planta a la Bahía de Mayagúez y los efectos a ese ecosistema marino

utilizado por especies en peligro de extin ción.

ESPECIFICAMENTE el DRN expresó - durante sus comentarios al Suplemento de la Declaración de Impacto Ambiental Final el año pasado - que albergaba dudas sobre el impacto a largo plazo la descarga alta en temperatura y cambios en la acidez del agua.

Además, el DRN hizo referencia al im pacto que tendrá la descarga sobre los arre cifes y animales en peligro de extinción tales como el pelícano pardo, el falcón pe regrino ylaballenajorobadaqueutilizanla bahía .permanente o temporeramente.

El DRN también ha expresado dudas so bre el posible efecto de licuación durante un episodiosísmico yaqueellugar hasido rellenado y la posibilidad de la subida del nivelfreáticoylasubsiguientelicuacióndel terreno parece ser una posibilidad real, se gún especialistas de esa agencia.

Sin embargo, el DRN no ha vertido esas expresionesformalmente a la Junta,pero sí a la Compañía de Fomento Industrial, agencia proponente del proyecto,cuando el DRN comentó sobre el Suplemento de la DIA preliminar.

Por otro lado, la AAA aún tiene que

responder sobre los aspectos de disponibili dad de acueducto y alcantarillado para ser vir el proyecto en la fase operacional así como de construcción.

Además, la corporación pública tiene que indicar la capacidad actual de las plan tas de tratamiento, así como de acueducto, según la Junta.

Cuestionanel impacto de ias descargas

sobre ei peiícano pardo

Y POR ULTIMO la AAA tiene que esti mar la cantidad de agua que sirve a la industriadelasatunerasybeneficioenque redundaría el que se le provea de vapor a las atuneras por parte de Cogentrix, Finalmente,el Departamento de Educa.ción tiene queexplicarla razón porlacual procediócon la construcción de un plantel escolar en una zona industrial cuando el reglamento de zonas escolares del propio departamento no lo permite.

El pelícano pardo, en peligro de extinción.

-Tensions sweil at Cogentrix proceedíngs^

MAYAGUEZ — Federal perniit pro-

ceedings for the Cogentrix-ENDESA power plant teetered on the verge of collapse Friday evening, as dissenting townsfolk drowned out officials with shouts of protest. The residents calmed down after several minutes of unrest inside the townCulturalCenter,wherethepublic hearing was held. Opposition leader Julia Mignucci, president of Mayague-

pacified the crowd although periodie outbursts continued.

The proposed 300 megawattfacility would be built by a partnership between North Carolina-based Cogentrix Inc. and the Spanish utility ENDESA.

The $525 million facility, located on Mayaguez Bay and within about a three-mile radius of some 100,000 peopie,would becapableofburning 3,000 tons a day of coal. If built, it would provide energy for the west coast.

The protest zeroes in on the latest

Protection Ageney, which is sponsor-

ing a two-day public comment period on its preliminary approval of an airpollution permit.

The hearing kicked off with a few words in Spanish by lead examiner

Doug Blazey, an attorney with the Environmental Protection Agency's regional office in New York.But when Blazey exhausted his limited vocabulary and started speaking in English, the theater erupted in shouts of"We

making English the island's second official language.

Cari Soderberg, the local EPA di rector, then translated for Blazey. "^mpany executives cited "overig scientific evidence" suptheir claim that the plant roduce harmful environmental ects. ve always been firm in that if Tould be(adverse effects), we wouldn't built it," said James

From Page 3

Co^enílrix

Peedin, sénior vice president of Cogentrix.

Prior to the hearing, several thousand residents gathered for a protest march, unfurling their skull-andcrossbones banners once again in opposition to the proposed coal-burning facility. Most participants agreed the turn out was less than half as large as at last August's rally, which attracted more than 10,000.

The event was billed as a funeral march, but few appeared to be mouming.

Doingthe cha-cha-cha and blowing a plástic whistle at thehead ofa contingentfrom the WestCoastChamber of Commerce was its president,Robin H.Montes.The civic leader said the chamber held two referendums on the

System

This is the stereo system that Diego'searsselected atPrecisión Audio, That Diego,the same personthatalwaysmakestheright decisions. He's the guru of iong terminvestments.Smart.Nowhe's happierthan ever.

issue and that on both occasions its 350 members voted overwhelmingly against it.

"Tbepeoplebere don'twant(the plant),"Montessaid, adding tbat tbe it could interíere witb tbe growtb of tourism in the area.

Also present at the march was Misión Industrial activist Jorge Fernández Porto, who said that for Gov. Rosselló to do anything other than termínate the plant would be political suicide on the west coast.

"He (Rosselló) said he was against it during the campaign, and he said he was against it afterward," Porto pointed out."Now it's time for him to move from words to deeds."

Popular Democratic Party President Victoria Muñoz Mendoza,issued a statement also urging Rosselló to keep his campaign promise.

"ThefederalgovemmentandthePuertoRicangovernmenthavetotakeresponsibilityfirstforthehealthofour people's health and for the quality of our environment, which are threatened by the proposed Cogentrix plant."

Low-income residents of Barrio Mani, located across the street from the proposed plant site again showed their forcé.

Demonstrators carted four cardboard coffins along the route,sayingsuchthingsas"MercenariesofScience"and "Manipulators ofInformation,"veiled references to what they perceive to be a company-sponsored disinformation campaign. Several months ago, the company had run a

The proposed Cogentrix-ENDESA coal-burning plantto feed the west coast ontinued to III!

I ency. TheEPAissponsoring a two-day public commentperiodonits prelimínary approval ofanair-pollution permit.Company offícíals vow the facility, which would be located on this empty lot, would not harm the environment.

print ad showing two children playing in a prístino mountaintopfield,statingthatjustbeyondsometrees,a VJ.S.-hased Cogentrix plant was located, emitting no adverse effects.It was revealed later that the picture had been taken in Aibonito.

Scribed on a wall adjacent to Suau Park, the march's starting point, was the warning:"We will bury Cogen trix." And residents have cast Gov.Rosselló to play the role of undertaker.

Company executives have said that without Rosselló's support, the proposal could fade away.

In an interview last month,Cogentrix executive Peedin said:"Bydoingnothing,Rossellócouldstoptheproject.It takes a tremendous amount of support from the bureaucraciesinSanJuantogetanythingthroughtheagencies. So anything we and the Puerto Rico Electric Power Authority try to do would be hard without the support of the (new) administration."

Cogentrix-ENDESA officials say they are victims of a massive, ideologically inspired defamation campaign.

"We understand that the natural reaction to something new is worry and fear at first," Peedin said in a prepared statement this week. "But the level of rhetoric and defamation that have been expressed publicly in Mayaguez is simply startling."

Since the election, Rosselló has toned down his opposi tion to the proposal.In addition,he hasfailed to respond to STAR requests for comments over the past month.

Rest. MUTAMBA

Calle Loiza 1966, Santurce, P.R. (Frente a Topeka) 268-4883

Parking disponible Abierto 11:00 am a 11:00 pm

Menú variado, cuatro platos diferentes a escoger diariamente SOLO

diario para cuatro personas 'San Juan, Condado, Santurce e Isla Verde.

Turn static files into dynamic content formats.

Create a flipbook
Issuu converts static files into: digital portfolios, online yearbooks, online catalogs, digital photo albums and more. Sign up and create your flipbook.