Mini-Portfolio Claudia Maude

Page 1

The Building

Educational Facility

Year: 2023

Size: 5,000 sqm Location: Chambers Street, Edinburgh

The Building a ms to cha lenge the tradit onal studio-based learning methods and explore new approaches to design teaching Influenced by the heritage of the site and the school’s long history, the proposals follow a user-centered approach Providing clear c rculation and regulating access nto certain work areas were key strategies imp emented to improve the use of the build ng

The People's Library

Public Library

Year: 2022

Size: 750 sqm

Location: Royal Mile Edinburgh

An evolving archive of diaries that represents individual and collective memory, to which both locals and visitors contribute The brief explores vertical connections and accessibility within a historical site.

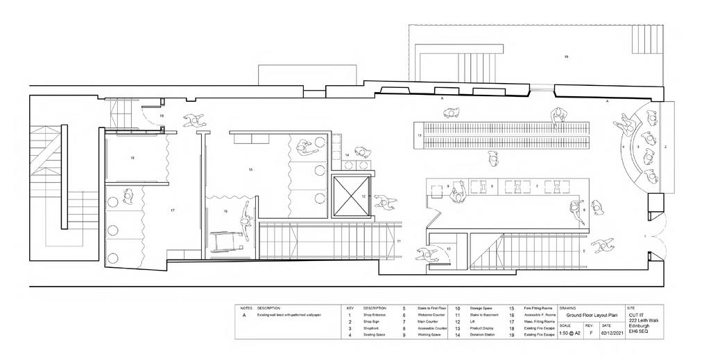
Cut It

Retail Store

Year: 2021

Size: 680 sqm

Location: Leith Walk, Edinburgh

A clothing store that challenges fast fashion through reworking pre- oved pieces Based on the circular economy model, the idea is built upon four core values: educat on, transparency, originality and susta nability.

Turn static files into dynamic content formats.

Create a flipbook
Issuu converts static files into: digital portfolios, online yearbooks, online catalogs, digital photo albums and more. Sign up and create your flipbook.
Mini-Portfolio Claudia Maude by claudiamaude - Issuu