Portfolio Clare Japhet

Page 1


The Maze Restaurantp.6

The Centre for African Sculpturep.1
The Eremite Hotel -p.8
Statili DuareCredenzap. 10
The Four Chair-p.11
The Oblique Tablep.12

The Centre of African Sculpture

Reimagining a decolonised space for African sculpture and artists in Europe.

The project envisions a reimagined, decolonized center in Europe, driven by the desire to create a venue for discourse and appreciation of African sculpture and its significant impact on art.

In the representation of African art in Europe, exhibitions and spaces often prioritize colonial interpretations. This leads to the systematic categorization of non-Europeans, particularly Africans, as inferior based on culture, history, and race. This African sculpture museum will employ immersive representation and interpretation techniques to enhance knowledge and cross-cultural understanding of both the sculptures and the diverse beliefs and life experiences of the people or groups they represent. Additionally, the project aims to foster strong connections between the museum and source communities, recognizing these communities as authoritative and leading the interpretative process. This initiative arrives at a critical time, as indigenous claims for acknowledgment, rights to their art and representation, and the hope for repatriation are gaining attention from tourists, researchers, and practitioners alike.

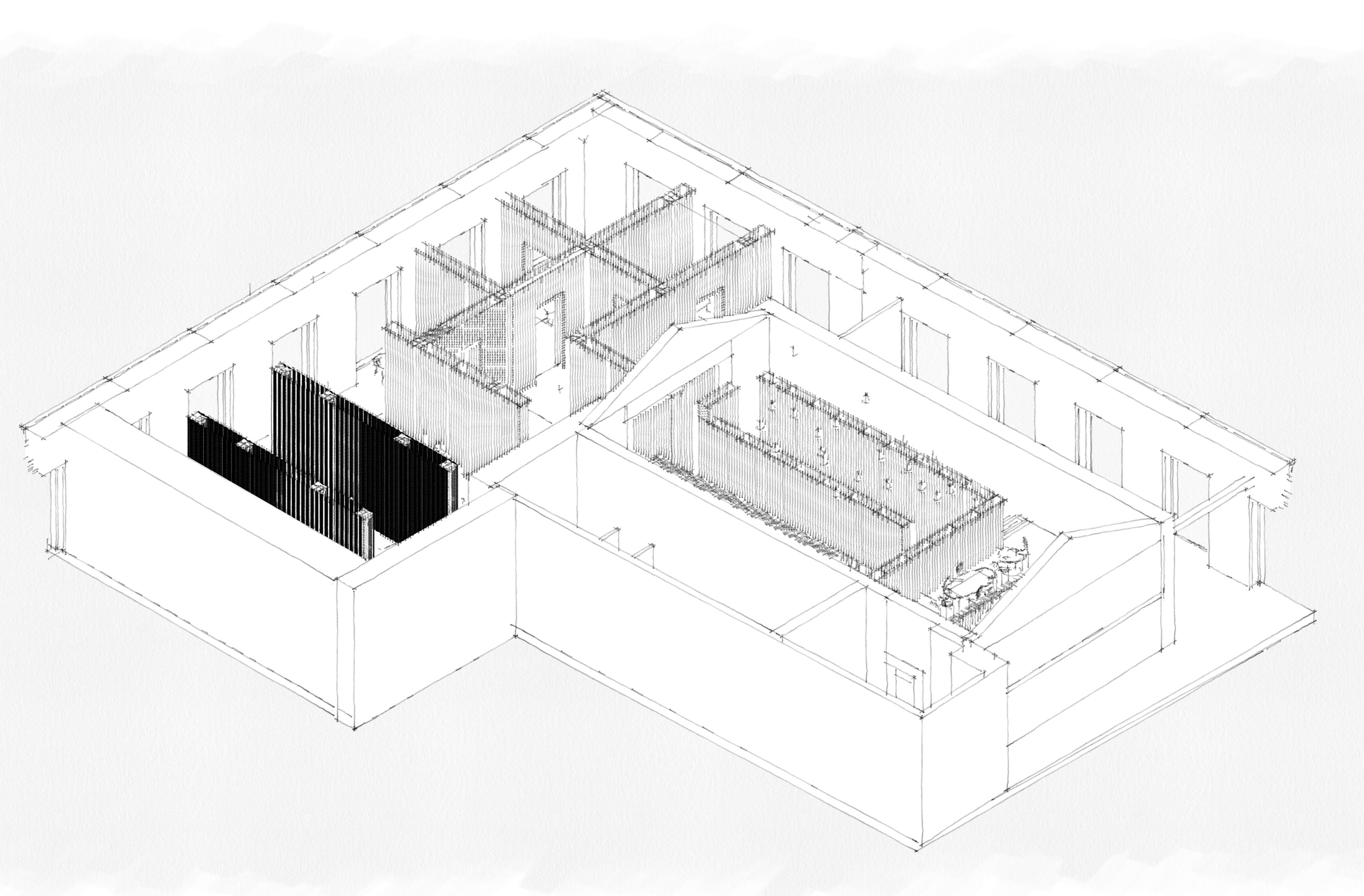
The Intervention

The architectural design of the cylinders is intentionally modeled after the traditional Bantu homestead, where the ritual house serves as the focal point, surrounded by functional spaces. The comprehensive excavation covers an area of 3,769 square meters, while the constructed facilities span a total of 1,150 square meters. This project blends modern construction practices with cultural inspiration, achieving a harmonious balance between tradition and functionality.

Pre-existing

San Galgano Strada Comunale di S. Galgano, Chiusdino SI, Italy
Homestead design
Church, no roof or floor
Cloister 1st floor
Cloister ground floor
Pre-existing
New Structure
Cylinders in the design of a homestead
Container walls
Vertical connection Bridge

The Church Exhibition: Private Rituals

The church serves as the first point of entry, immediately leading visitors into the exhibition. The ruin is left without a roof, and the exhibitions are housed either outdoors or within 3D-printed structures. A key aspect of the exhibition is horticulture, which helps create a walled-in village landscape where various community rituals can take place. This is the second space a guest encounters after entering the church. These outdoor exhibitions are dedicated to sculptures associated with rituals that exclude the broader community. Rituals related to health, wealth, and other private matters are typically handled through consultations with an elder or healer.

One such sculpture is from the Tikar people a male medicine man totem. At the base of the neck, between the shoulder blades, there is an opening for inserting traditional medicine. The totem is hand-made from terra cotta, with a dark brown patina, red camwood powder, and white kaolin.

These architectural volumes create an indirect circulation pattern, guiding visitors on a contemplative, ritualistic journey. The outdoor exhibitions within the garden focus on sculptures tied to private rituals, maintaining a separation from communal practices. This thoughtful arrangement encourages a nuanced exploration of both shared and intimate aspects of the artworks, resulting in a dynamic and purposeful exhibition space.

The Church Exhibition: Communal Rituals

This area, located at the intersection of the church, features distinctive volumes crafted from custom 3D-printed structures made with chitosan, a material derived from chitin. These structures are designed with graded material properties that allow for hydrationguided self-assembly. The preservation of the ruin in its near-original state is a conscious decision, aimed at maintaining a sense of historical continuity while allowing for a potential return to its original form. The suspended flooring along the walking path directs visitors through a carefully curated experience, guiding their interaction with the exhibition in a deliberate and thoughtful way.

The landscaping reflects the seasonal transformations of the ruin and its surrounding area, contributing to the overall ambiance and evoking the feeling of being within a homestead. The volumes in this space are dedicated to sculptures that represent community dynamics, encompassing rituals tied to seasons, initiation events, births, and deaths. In particular, the volumes at the crossing display initiation sculptures, paying homage to the vibrant geometric patterns and symbolic language of the Ndebele people, as seen in the art on their homes. This design choice deepens the cultural narrative within the exhibition, forging a meaningful connection between artistic expression and the heritage it seeks to honor.

Design of the Temporary Structures

based 3D printed structure 50mm

anodized steel connector 4mm

anodized steel 10mm x120mm

The material I aimed to create for the volume in the ruin is a 3D-printed single-material system derived from chitin. The structure is designed to be self-supporting, incorporating both primary and secondary supports. In the initial design, I used a pattern reminiscent of what you might see if you closely examined an insect’s wing. However, this pattern lacked meaningful relevance to the project and did not add value to the exhibition space. After receiving feedback, I turned to the patterns, or “language,” found on Ndebele tribal houses, which change according to the season or significant events. From this, I extracted a pattern that I felt not only made the structure more stable using the outer lines as the primary structure and thinner inner lines as secondary supports but also added texture. The finest lines complete the pattern, contributing to the overall design. It was crucial to me that the pattern both honored the

Chitisin
Champagne
Champagne
Screw 2mm ø

Reception

The design of the reception superfurniture was inspired by the columns, allowing me to explore a playful interaction with the existing architectural elements. My goal was to create a piece that feels contemporary and striking, while also complementing the space through material choice and form. The concept of large geometric volumes continued to guide the design, with the oval and square being particularly relevant, as these were the final shapes encountered in the church’s architecture.

To develop the form, I connected two ovals and subtracted half from opposite ends, achieving a dynamic yet cohesive shape. The furniture is constructed from MDF, clad in marble, giving it a refined finish. Initially, I considered using simple metal squares for detailing, but after reflection, I opted for pink stone accents. This choice was made to better harmonize with the terracotta flooring, ensuring the furniture both stands out and integrates into the overall design of the space.

This reception area serves as the point where visitors make their payment before proceeding downstairs, marking the transition into the next phase of their experience.

The Underground Exhibition

Gallery

Gallery

This temporary gallery installation space is designed to deliver an immersive and evocative experience. The exhibition is thoughtfully curated around the life cycle of a woman, inviting visitors to witness pivotal moments marked by eloquent rituals that define her journey.

The first space serves as a poignant introduction, delving into the ritual of birth, an inseparable experience intricately woven with the fabric of family and community. This initiation sets the tone for the entire exhibition, emphasizing the interconnectedness of the woman’s life with those around her. The second space focuses on the Bamana Harvesting Seasonal Ritual. The headdresses in this exhibition were all worn by men in male-female pairs during performances celebrating the farming beast named Chiwara, which introduced the Bamana people to agriculture. The rituals motivated young men to work hard. Each headdress combines the graceful horns of an antelope with the body of an aardvark. A young male calf sits upon the female’s back, symbolizing the fertile union of men and women, and of the earth and the sun. The installation is meant to be immersive and not static. These rituals would take place in the community, so to give the sense of being part of something, I added posts with LED lights that stand at 1.60 m, which is the average height of a woman. The lights are meant to make the space feel less static and more alive. Guests would stand between these posts and feel like they were part of something special. The second space captures the essence of a seasonal ritual, symbolizing the passage of time. Here, we are in an initiation ritual of the Poro society of the Senufo people. Senior Poro members instruct initiates in the work of Poro, also referred to as work for “Old Mother,” the female aspect of the supreme deity and protector of Poro initiates. This ritual involves a body of water. The solution was to add a shallow water fountain at the center of the space, which complements the skylight and increases the height of the space. Moving forward, the third space is dedicated to the initiation phase, encompassing coming-of-age rituals and the transition from girlhood to womanhood. The journey culminates in the fourth and final space, a celebration of marriage. Here, the woman ascends to a higher societal rank, becoming a focal point for community celebration. Through its immersive design, this temporary gallery installation transforms into a captivating narrative canvas, offering a rich tapestry of emotions and cultural significance encapsulated within a life cycle. Visitors engage deeply with the exhibition, connecting on a visceral level with the beauty and significance of each ritualistic milestone.

Il Dedalo Resaurant

The project involved the conceptualization and design of a fusion restaurant situated in the prime location of Via de’ Vecchietti in the heart of Florence. The clients, comprising a promising young chef and his sister, a renowned clothing designer, envisioned a versatile space that transcended the conventional confines of a typical restaurant. The multifaceted requirements included provisions for a breakfast area, an informal dining area, a cocktail bar/lounge, a formal dining section, a fully equipped kitchen, and four restrooms, one of which was designed for accessibility. Additionally, a dedicated space for a clothing shop was essential to showcase the clients’ designs.

The architectural considerations accounted for natural light, with the building primarily receiving morning light from the east and some diffused light from the north. Noteworthy is the incorporation of a glass ceiling, allowing sunlight and heat penetration, necessitating measures to control it.

The Maze design

The overarching theme for the restaurant design revolves around the concept of a garden maze. Departing from the traditional approach of crafting organic mazes with natural materials, I opted for a distinctive method by utilizing expanded wire mesh. This mesh, strategically positioned, forms a labyrinth with diverging paths emanating from the entrance, providing a unique and captivating spatial experience.

A notable feature of the design is the partial use of glass in the roofing, allowing natural light to permeate the space. Beneath this glass-covered area, a suspended flower installation adds an enchanting touch. This creative arrangement contributes to an immersive and intriguing ambiance, evoking the sensation of navigating through a lush, voluminous upside-down garden within the confines

Via de’ Vecchietti, 5, Firenze

The Tea Garden in the Mezzanine

The use of expanded wire mesh serves a dual purpose in the design, creating a visually engaging overlapping effect that manipulates visibility within the space. A distinctive aspect of this approach is the commitment to authenticity, utilizing the expanded wire mesh in its unaltered state. This decision reflects an honest and unembellished use of the chosen material.

To introduce a natural element, live flowers and dried flower installations are strategically suspended beneath the glass ceiling. This installation serves multiple roles: filtering the incoming light from the glass ceiling, infusing a refreshing ambiance, and harmonizing with the vibrant palette of the culinary offerings.

Contrasting the rigidity of the wire mesh structure, the seating arrangements are characterized by voluminous, playful, and colorful elements. This intentional juxtaposition aims to soften the visual impact of the wire mesh while enhancing the overall dining experience with a lively and dynamic atmosphere.

The staircase leading to the mezzanine level features a glass construction with an optical coating, ensuring a sleek and visually striking ascent. Upon reaching the mezzanine, guests are welcomed into the tea room, strategically positioned to maximize the immersive impact of the inverted garden concept. Here, patrons sit 2.8 meters below a sizable dry flower installation, creating a captivating focal point. The seating arrangements in the tea room are thoughtfully curated, featuring the Family Chairs designed by Junya Ishigami. These chairs not only embody a sense of lightness but also cleverly echo the wire mesh maze concept, fostering visual continuity throughout the space. The intentional selection of these chairs contributes to a harmonious and cohesive ambiance.

To enhance the overall aesthetic, the design philosophy strategically places the bulk of volume and weight on the ceiling, creating a perceptual illusion of upward movement. Both the furniture and the wire mesh components are intentionally kept lightweight, contributing to the overall sensation of elements gracefully ascending, aligning with the overarching theme of the voluminous upside-down garden.

Vibrant and Voluminous Formal Dining

Design of Wire mesh anchorage system

Le Eremite Hotel

Le Eremite is a hotel located in the Le Murate Comples in Florence Italy. The 15th Century complex was initaly a monestry where cloistered nuns known as Murate lived. Then for about 100 years, from 1883 to 1935 it became the prison of Florence.

Previous Intervenntion

The unitary urban recovery project: The reuse of the Murate responds to a great challenge: respecting the historical and architectural value of the precious complex, while transforming it into an integrated piece of the city, almost a “citadel with the widest mix of possible functions”, in order to re-propose the complexity and richness of urban space. This leads to the need for a general project with the aim of developing integrated urban recovery solutions. The project, drawn up by the Municipality of Florence and inspired by the architect Renzo Piano on behalf of UNESCO, was approved by the City Council on 14/9/1998. The solutions adopted orient the reuse towards a vertical stratification of different functions

Project

The assignment was to design a hotel in the five-story building that aligns with and, ideally, takes into account the history of the complex while aligning with the unitary recovery project.

Concept Waiting Area and Gallery

The concept for Eremite Hotel is the juxtaposition of a modest exterior with a lavish interior. The façade meticulously preserves the reminiscent charm of an ancient monastery, providing a humble and unassuming exterior. In contrast, the interior is a realm of sensory richness, offering visitors an elevated experience. The ground floor of the building features a generous gallery space, providing a platform for resident artists or external exhibitions, such as the notable Olafur Eliasson’s “One-Way Colour Tunnel.” This multifunctional space seamlessly transitions into a cozy sitting area, fostering an environment where guests can engage with art in a relaxed and contemplative setting. Throughout the hotel, discreet sitting nooks are strategically scattered, offering unexpected and picturesque views of the architecture, art installations, or nature. These thoughtfully curated spaces provide intimate retreats for guests to unwind, appreciate their surroundings, and immerse themselves in the visual and sensory delights that the hotel has to offer.

50122 Firenze FI, IItaly

Le Murate
Piazza delle Murate,

The Villa occupies three floors on the northeast side of the building, thoughtfully curated to offer a distinct experience. The first floor is dedicated to the kitchen and dining area, while the second floor features the bedroom and bathroom, designed with meticulous attention to comfort and aesthetics. The third floor houses a luxurious lounge with a terrace featuring a plunge pool and an indigenous garden that offers a breathtaking view of the city. The bedroom is furnished with custom-designed furniture, emphasizing exclusivity and sophistication. The floor mosaic is bespoke, crafted from marble and gilded glass, paying homage to the Byzantine gilded tesserae mosaics found in iconic churches like San Miniato al Monte.

The staircase, with its graceful curve, complements the suspended vaulted ceiling, adding continuity to the architectural design. Distinctive details, such as the deliberately distorted bathroom entrance, further contribute to the opulence and richness of the room, creating a culturally rich and unique living space.

The Details: Suspended Vaulted Ceiling

Floor Mosiac Design Materials

CaIaccata marbIe Venetian plaster Bardiglio marbIe Dark Blue marbIe Gilded glass

Statili Duara Credenza

The name “Mstatili Mduara,” meaning circle and rectangle in Kiswahili, encapsulates the essence of this credenza. The fundamental design concept revolves around the deliberate subtraction of one volumetric form from another, where a sphere intricately carves into a cuboid. This deliberate geometric subtraction introduces a compelling disruption within the otherwise structured grid, which is composed of luxurious marble.

The credenza seamlessly integrates both drawers and cupboards, cleverly concealed to maintain visual cohesion through the meticulous application of the grid. The result is a visually striking, exquisitely detailed curvilinear design that achieves a harmonious balance between form and function.

Colour Options, Section & Elevations

Four Easy Chair

The Four chair embodies the culture of natural luxury. In the post-pandemic period, there is a growing willingness to renounce mass consumption in favor of sustainable products. The desire is to shift away from quantity and cheapness towards a focus on quality. Authentic furniture and furnishings are best expressed in simple forms that utilize traditional craftsmanship, premium materials, and soft-edge design.

Drawing inspiration from the rich heritage of Tanzanian craftsmanship, the Four chair is influenced by the Mbuzi ya Nazi, a traditional contraption used for grating coconuts. This design ethos seamlessly integrates with contemporary values, paying homage to authenticity and tradition. Crafted entirely from solid wood— a material that exudes both warmth and durability— the Four emerges as a distinctive piece characterized by its unique angularity. The resulting design, both unusual and evocative of tropical influences, exemplifies a synthesis of traditional craftsmanship and contemporary sensibilities.

Section & Elevations

Oblique Table

Oblique is a low 40-cm coffee table characterized by a refined, minimal design. The base, with its irregular shapes, is angled obliquely to the top, forming a rectangle at the center of the surface. The top is constructed from 30mm plywood with a dark ash wood veneer finish, while the base is made of slender 30mm plywood with a laminated finish. Each part of the base features a striking color inspired by modernist design. The contrast between the top and base creates a harmonious balance and distinct personality.

The design is intended for flat packing and self-assembly, resulting in a sleek, modernist-inspired piece made from affordable and sustainable materials. Materials

with Ashwood Veneer

Section, Elevations & Colour Options

Flatpacking & Assembly Details

Dezeen

Turn static files into dynamic content formats.

Create a flipbook
Issuu converts static files into: digital portfolios, online yearbooks, online catalogs, digital photo albums and more. Sign up and create your flipbook.