Claire Bright 2024 Portfolio

Page 1

Claire Bright Portfolio

Table of contents

01. 02.

03. 04. next design competition greek restaurant firestation redesign personal work

steelcase next design competition

Project Brief

NEXT is a progressive and global architecture and interior design firm that leads the world in innovative corporate workplace, healthcare, education, aviation, hospitality and sports design work. Based in Los Angeles, California, with a new design hub in Dallas, Texas.

design drivers

Technology Connection

Employee Wellbeing

Employee Experience Engagement Collaboration

01.
balcony

case studies research

WELL Design Series:

A Case Study in WELL Workspace Design

In order to achieve an office that follows WELL guidelines RDG included natural daylighting and live plants throughout the office as well as incorporate sit-to-stand desks and allow for employees to choose where they sit and work. RDG also included work spaces with views to nature or natural scenery backgrounds.

It’s important to acknowdlege and design for the fact that our bodies recognize healthier enviornments whether its conscious or not.

Connecting to the enviornment with biophilic design leads to an overall sense of wellbeing and should be implemented into the workplace.

characterizATION OF ACOUSTICS IN OPEN OFFICE SPACE

In four case studies offices were tested with different acoustical elements which proved to improve the acoustics in each space. The elements tested include sound absorbing baffles, screens, curtains, and masking sounds.

Acoustics drastically improved just by using one acoustical element in the office space. Implementing these elements in a variety of ways could create a peaceful workspace while keeping open concept designs.

Offices, especially offices with open concept designs, need to include different acoustical properties in order to absorb sound and create a comfortable, inclusive environment for all who inhabit the space.

concept and logo development

next design seed concept statement

NEXT is a progressive and global architecture and interior design firm. NEXT brings over 3,000 employees from 27 different locations together to collaborate and bring the most innovative, talented, and targeted design solutions.

When looking at Texas’s state flower the bluebonnet, there are bundles of bouqets coming from the stem. When looking more closely, the bouqets of flowers have their own stems that come together from the main stem.

Looking at NEXT and Texas’s state flower there is convergence, the coming together to one point, which fosters how NEXT tackles their design projects. This idea of convergence can then be translated into the NEXT office.

NE
Sketch
+ NEXT
NEXT
Convergence
Convergence
Final
Logo
level 3 Furniture Plan mezzanine Furniture Plan 1. 3. 2. 4. 5. 6. 7. 7. 7. 7. 8. 9. 10. 11. 12. 13. 1. Reception 2. Meeting Rooms 3. Client Presentation Room 4. Phone Rooms 5. Yoga Room 6. Work Cafe 7. Private Offices 2. NOT IN CONTRACT NOT IN CONTRACT LIGHT WELL 5. Mother’s Room 6. Wellness Room 7. Resource Center 8. Health Care Workstations 9. Corporate Workstations 10. Education Workstations 11. Resource Center 12. Design Library 13. Innovation Lab and Model Shop 1. 2. 2. 2. 2. 3. 3. 3. 3. 4. 5. 6. 7. NOT IN CONTRACT OPEN TO BELOW 1. Training Classroom 2. Private Offices 3. Huddle Rooms 4. Phone Rooms

Space Planning

Level 3 Bubble Diagram Mezzanine Bubble Diagram

Converging Circulation

The reception serves as the central point that the converging circulations paths lead to. These converging lines also serve as emergency egress circulation.

Reflected Ceiling Plans

level 3 Reflected Ceiling Plan

1. Arktura Soundbar Acoustical Baffles 2. Axis Linear Lighting 3. Tech Lighting Pirlo Pendant 4. Arktura Vapor Hue Acoustical Light Panel 5. Tech Lighting Linear Chandelier
6. Tech Lighting Palestra Pendant 2.
1. 3. 4. 5. 6. 3. 1. NOT IN CONTRACT Ceiling Height: 14’-6” Ceiling Height: 30’-0”

Reflected Ceiling Plan

Mezzanine 1. Axis Linear Lighting
1. 2.
2. Arktura Vapor Hue Acoustical Light Panel
Ceiling Height:
12’-9”

EDUCATION WORKSTATIONS

GREEK RESTAURANT

Bringing greece to san francisco

Embarcadero, San Francisco

Embarcadero is located on the eastern waterfront in the Port of San Francisco along the San Francisco Bay. Embarcadero has become a bustling area for shops, businesses, and sight seeing attractions, making it the perfect spot for a Greek restaurant.

San Francisco

02.

Project Context and Research

Historical Context

After the earthquake and fire in 1906, largescale Greek immigration to San Francisco took off. By 1930 there were approximately 6,000 Greek people living in San Francisco and has continued to grow since then.

Greek Culture

Modern day Greek culture is highly religious and family oriented. In Greek culture it is common to prepare an elaborate meal and drinks to share with those you love.

Greek cuisine uses lots of vegetables, olive oil, grains, fish, and meat with olive oil being the most characteristic because of its flavor.

concept and logo development

concept statement

Olive trees and olive oil is important to Greek culture. There is mythology about Athena gifting the people of Athens a olive tree to provide them food, olive oil, and firewood. With its high importance in Greek culture, the main concept throughout The Olive Tree restaurant will focus on qualities from olive trees. Principles of line, repetition, and balance are derived from olive trees and used in the space.

First Logo Sketch Final Logo Sketch
Bar Custom Booth & Arch

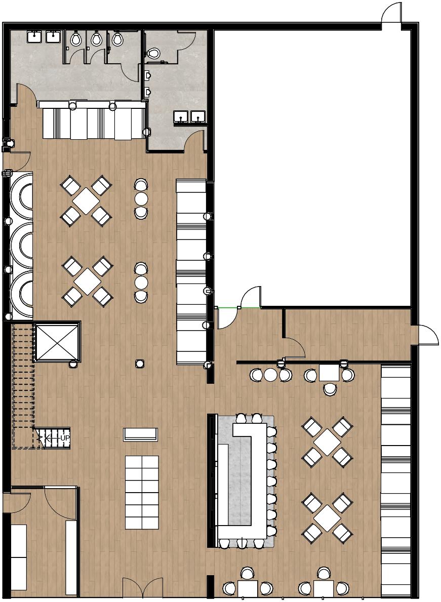
level 1 furniture plan

Existing walls that could not be removed for structural purposes are heavy black lines. These walls extend to the roof of the building.

1.

2.

3.

4.

5.

6.

7.

8.

Entry and Waiting
Grab and Go Lunch
Dining
Bar and
Dining room
Women’s Restrooms
Men’s Restrooms
Server Station
Room
6.
NOT IN CONTRACT
Employee Locker
1. 4. 5.
7. 3. 2. 8.
EXISTING KITCHEN

level 2 furniture plan

Client wished for back half of restaurant to remain open to below.

1. Community Room 2. Small Bar 3. Private Office 4. Server Station 5. Universal Bathroom 6. Additional Dining 3. 2. 5. 1. 4. 6. OPEN TO BELOW OPEN TO BELOW

Bar

dining

Wabash Township Firestation Redesign

Project Summary

Revamped to better support the lifestyle of local firefighters, the Wabash Township Firestation Redesign focuses on dynamic connection demonstrated through the design seed of water. The redesign targeted the biggest problem areas for the station including: upstairs living quarters, training room, and breakroom.

Parti Diagrams

Diagrams used to better mimick the careless curvatures of water currents and the ripple effect throughout the space

03.
kitchen

level 1 furniture plan

Conference Room Break Room

level 2 furniture plan

Client asked for room 5 to be Purdue Residents’ Bunk Room or for a Wellness Space.

1. Living Room

2. Dining

3. Kitchen

4. Bunk Room

5. Purdue Residents’ Bunk Room

Wellness Room Option #2
Level 2
1. 2. 3. 4. 5.

personal work

04.
Ink Pen
Acrylic Paint
Graphite Pencils Black and White Film Photography
Contact Info 574.835.3160 claireannbright@gmail.com www.linkedin.com/in/clairebright2389

Turn static files into dynamic content formats.

Create a flipbook
Issuu converts static files into: digital portfolios, online yearbooks, online catalogs, digital photo albums and more. Sign up and create your flipbook.
Claire Bright 2024 Portfolio by clairebright - Issuu