

![]()















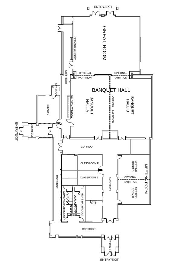
This beautiful and unique Full Event Center provides a dramatic location for a variety of events. The Full Event Center includes the Banquet Hall, Great Room, Gazebo, and Kitchen. This versatile room can host weddings, receptions, banquets, reunions, craft/trade shows, and convention activities. The adjacent kitchen is equipped with state-of-the-art appliances capable of meeting any caterer’s needs.
7174 sq. ft.
2 Internal Projectors & Screens
Exterior Glass Doors
Serving Windows

480 Banquet Style
480 Audience Style
360 Classroom Style
320 Banquet Style with space provided for a Dance Floor.



The Banquet Hall at Mustang Town Center can be rented as one large room capable of holding up to 240 people or divided into smaller rooms. There is a convenient full service catering kitchen with curbside loading area available for an additional fee. Choose any caterer for the event or keep it simple and self-cater.
3424 sq. ft.
Internal Projector & Screen
Adjacent to Catering Kitchen
Serving Window
Approximately



The Great Room is a beautiful setting for a wide variety of events including banquets, weddings, and parties. This venue features exterior glass windows and doors overlooking a patio and beautiful landscaping, making a perfect entrance for your guests.
Serving Window GREAT ROOM SETUP CAPACITY
3750 sq. ft.
Internal Projector & Screen
Exterior Glass Doors
224 Banquet Style
220 Audience Style
180 Classroom Style
160 Banquet Style with space provided for a Dance Floor




Two meeting rooms are available for reservation and are ideal for small seminars, meetings, birthday parties or showers. Guests can arrange for the use of 1 or 2 rooms depending on specific needs. Only rectangle tables are available for this room.
1058 sq. ft.
Projector & Screen available at additional fee
Available only during regular business hours



Town Center provides a catering kitchen to be used for events serving food and/or beverages within the banquet facilities. The kitchen is fully equipped with a warming oven, refrigerator, ice machine, warming trays, and an adjoining restroom. Coffee service is available for an additional fee. The catering kitchen is adjacent to the Banquet Hall but can be reserved with the Great Room as well.




Includes use of the Great Room, Full Banquet Hall, Catering Kitchen, Classroom and the Gazebo
Accommodates up to 480 guests
Two Built-In Projectors and Sound Systems included 50% Discount on a Meeting Room Reservation (Provided the Meeting Room is available) Available until Midnight on Friday and Saturday only
Accommodates
to
guests.
A non-refundable $100 alcohol permit fee is required if alcohol will be served at any time during the event.
The alcohol permit fee must be paid at least 30 days prior to the event. An off duty Mustang Police Officer is required to be present at the event when alcohol is present. The officer will be hired by City staff.
The officer is to be paid $125 for the first 2 hours and $25 per hour thereafter. Cash payment must be made to the officer at the time security is provided.
Failure to pay the police officer will result in termination of the event.
Renter accepts the responsibility for use of alcohol in the facility and agrees to prohibit use of alcohol by minors. Violation of this policy will result in immediate termination of the event
Epson VS250 SVGA 3,200 Lumens Color Brightness (Color Light Output) 3,200 Lumens White Brightness (White Light Output) HDMI 3LCD Projector. Projector Lamp Model is H838A. Resolution rated at 800 x 600 (SVGA) with the option to resize up to 1400 x 1050 (SXGA+).
Stage One: Two Pieces; Each Piece is 6' x 8' x 32". Arranged as 12' x 8' or 16' x 6'. Stage Two: Two Pieces; Each Piece is 4' x 8' x 2'. Arranges as 8' x 8' or 16' x 4'.
Audience Style
Used for presentations and displays
Allows for optimal room occupancy
Ideal for situations not requiring note taking
Boardroom Style
Ideal for debate and discussion
Encourages interaction between participants
Tables in square shape w/chairs on outside
Classroom Style
Used to present to small to medium groups
Ideal for testing and individual training
Provides workspace for pen, paper and/or laptop.
Banquet Style
Perfect for wedding receptions, parties and dances.
Most common for events serving meals. Custom layout available for additional fee.
What is included with my room rental?
The rental fee includes the use of the space, tables and chairs.
How do I tour the Facility?
Tours of Mustang Town Center facility are available by appointment only. Please call us at (405) 376-3411 or email ldiment@cityofmustang.org
How do I reserve a room at Mustang Town Center?
Once you have identified a date and other specifics of your event, contact staff to request a rental agreement. Reservations can be made up to one year in advance. In order for events to be placed on the reservation calendar, you must submit a signed rental agreement complete with valid credit card information.
Why do I have to provide credit card information?
Credit card information is required for all facility rentals. If an event causes the need for:
* Cleaning procedures, which are beyond the scope of normal Town Center maintenance, or repairs or replacement due to structural or equipment damage, the credit card information may be used to pay for these services.
* The information may also be used in part or in total when the renter’s event does not meet or exceeds contractual terms (e.g. the event ends one hour later than scheduled.)
If none of the preceding conditions occur, then the credit card information will be not be used.
When will the balance of my rental be due?
If you have a remaining balance after your initial payment, it will be due 2 weeks prior to your event. If payment is not paid by this time, a $25 late fee will be assessed.
What if I cancel my reservation?
Cancellation of the event or date changes must be submitted in writing or via email to ldiment@cityofmustang.org
There is a 25% cancellation fee for refund requests received 30 days in advance of the rental date. Any request for refund submitted less than 30 days in advance will not be eligible for a refund. A rental date change can occur without penalty if notice is given at least 1 month before the original date if an optional date is available.
Can I serve alcohol at my event?
A $100 non-refundable Alcohol Permit is required in order to serve Alcohol. For more information on alcohol visit page 12.
What are the policies on food and beverages?
Food and drinks may be brought into the Great Room, Banquet Hall, and Meeting Rooms.
Can the Meeting Rooms be reserved after hours for an additional fee?
The Meeting Rooms are not available to be reserved after building hours, even for an additional fee.
Can I rent just the Catering Kitchen?
The catering kitchen is only available as part of a Great Room or Banquet Hall event.
Can I bring in my own catering?
Yes, there is not a preferred catering list. Self catering is allowed.
What are the clean-up requirements?
Clean-up is the responsibility of the Renter unless the $100 Clean-up fee has been paid. The room needs to be returned to the same condition it was in prior to the event.
What time can I get into the facility before my event to decorate?
The rental time period must include all time necessary for room preparation and clean-up. Access to your room prior to your scheduled rental time is not permitted. In addition, Town Center will not be opened prior to the rental time for caterers, musicians, decorators, or deliveries. All clean-up must be completed, and the room vacated by the end of the scheduled rental time.
What can I use to hang decorations?
Painters tape and removable white mounting putty are allowed.
Are my guests required to stay in a designated area?
All participants need to stay in the reserved area. It is your responsibility to inform your guests that they should not be wandering into other areas of Town Center.
Who do I contact if I have a problem during my event?
A facility attendant will be on-site for all events. If a problem arises, their phone number is posted in the hallway outside the Catering Kitchen.
Are inflatables allowed in the banquet facilities?
Inflatables are not allowed in the banquet facilities
What size are the tables included with my room rental?
There are a variety of tables sizes available, depending which room is rented: 6’ x 30” x 30” rectangular tables are available in any room. 6’ x 19” x 30” rectangular tables are available in the Meeting Rooms. 5’ x 30” round tables are available in the Banquet Halls and Great Room only.
If we rent a space in Town Center, are we granted access to the Recreation Center? Passes to the Recreation Center are not included in your rental.
Is there Wi-Fi available?
Yes. MPL-Guest and MustangCC are public networks. No password is required.


All reservations must be made through the Recreation Center Front Desk. The responsible party must be at least 21 years of age.
Monday-Friday events can begin as early as 9:30 a.m. and end by 8:30 p.m. This includes cleanup time. Penalty fees will be assessed if the facility is not vacated by the end of the reservation time.
Sunday events can begin at 1:30p.m. and end by 5:30 p.m. This includes cleanup time.
Rental times include decorating and cleanup time.
Smoking, vaping and gambling is not allowed within the facility.
Firearms are prohibited inside the facility.
Children must be supervised by a responsible adult at all times.
Pets/animals are not permitted inside Town Center with the exception of service animals.
All event attendees must remain in their designated room. Loitering in the hallways is not allowed.
The individual or group reserving the facility assumes full responsibility for the conduct of the guests at their event.
Fights, vandalism, or destructive behaviors are grounds for immediate cancellation of the contract (and all future contracts). The party will be asked to leave the facility immediately. In such cases all rental payments will be forfeited.
Exits, corridors, and hallways must be free of obstructions. Exit doors cannot be locked.
There is no refund of unused reservation time or equipment.
Parking may be limited due to other scheduled events.
Mustang Parks and Recreation will actively work to provide a healthy food environment for youth, residents, and park users experiencing programs or services within facilities owned and operated by the Mustang Parks Department.
Payment and a completed rental agreement including valid credit card information is required to reserve a room.
Payment is due in full at time of booking for rentals of $400 or less. All other rentals require $400 plus half of the remaining balance at time of reservation. Add-ons due at time of booking.
A valid credit card number is required for all rentals. This will only be used after the event in case of damage to the facility or late payment fees.
Cash, checks, Visa, and MasterCard are accepted. Please keep all receipts of payment. Post dated checks will not be accepted.
All rental refund requests for use of the facilities must be submitted in writing or via email to ldiment@cityofmustang.org
There will be a 25% charge assessed on any cancellation request received more than 30 days in advance of the rental date.
Any request for refund submitted less than 30 in advance of the rental date will not be eligible for a refund.
Renters are responsible for any loss or damage to the rental space, adjoining facilities, building common areas, or building exterior or grounds. This includes all damages to any equipment, fixtures, surfaces, including the ceiling, floors and floor finishes, or any property. Renters agree and acknowledge that the cost of any damages will be charged to the credit card on file.

Set Up and/or decorating time is included in the rental time. Additional set up and/or decorating time can be purchased (when applicable).
Clean up is the responsibility of the renter unless the staff clean up option has been purchased.
Tables and chairs must be cleaned and wiped down. All food must be removed from the premises. The room needs to be returned to the same condition it was in prior to the event.
Fees include table and chair set up and take down by staff.
Hours requested should include time for set up and clean up needs. Individuals associated with the event will not be allowed to enter the facility before the time indicated. All individuals associated with the event must vacate the facility by the indicated ending time.
Delivery/pick up of supplies or equipment must occur at the facility during the rental time.
Mustang Town Center staff is not responsible for any items left in the facility after the scheduled event has concluded.
A facility attendant will be on-site for all events. If a problem arises, their phone number is posted in the hallway outside the Catering Kitchen.
A rental checklist will be filled out at the end of the event by the facility attendant noting the condition of the facility.

City of Mustang staff takes great pride in being able to offer a quality facility. Thank you for reviewing and observing our policies. In order to maintain our facility we request that you comply with the following guidelines:
Candles (including birthday and Unity candles), open flames, or pyrotechnics of any kind are not permitted.
Decorations must be non-flammable.
All decorations must be removed at the end of the rental period.
No cellophane tapes, adhesives, staples, tacks, nails, or screws may be used to hang decorations.
The only approved tape is blue painters tape.
Event holders should bring their own supplies. Items such as batteries, scissors, paper, tape, markers, etc. will not be provided.
Rice, confetti, glitter, birdseed, hay, straw, silly string, cornstarch, sand, bubbles or other substances are prohibited in or around the facility.
Special effect machines such as smoke machines, bubble machines, or fog machines are not allowed due to the fact that they will set off the fire alarm.
Signs, posters, and/or fliers are prohibited from being posted in the foyer, hallways, or on the grounds.
The City of Mustang will not be responsible for any injuries that may occur while an individual or group is decorating.

Staff is not responsible for any items left in the facility after the scheduled event has concluded.





The picturesque gazebo is designed to hold outdoor events such as concerts in the park, weddings, family reunions and more! It provides a beautiful setting with recessed lights and electric hookup capabilities surrounding the perimeter of the gazebo.
Fifty chairs will be provided. Electrical outlets are available.



Located in Wild Horse Park, the Large Pavilion is perfect for outdoor events such as cookouts, parties, family reunions and more! It provides a fun and family friendly atmosphere featuring a Pirate Ship themed playground.
Picnic Tables
Playground

Electrical outlets are available. Charcoal Grill


The picturesque gazebo is designed to hold outdoor events such as concerts in the park, weddings, family reunions and more! It provides a beautiful setting with recessed lights and electric hookup capabilities surrounding the perimeter of the gazebo.
Fifty chairs will be provided. Electrical outlets are available.



The picturesque gazebo is designed to hold outdoor events such as concerts in the park, weddings, family reunions and more! It provides a beautiful setting with recessed lights and electric hookup capabilities surrounding the perimeter of the gazebo.
Fifty chairs will be provided. Electrical outlets are available.
















