PORTOFOLIO CILENA EVE
2022 - 2024

![]()
2022 - 2024


Allow me to introduce myself, Eve an enthusiast whose architectural journey commenced within the nurturing environment of the Architecture Major at Atma Jaya University in Yogyakarta. To me, architecture is more than a visual spectacle; it unfolds as a profound exploration of the transformative potential of design It evolves beyond mere aesthetics, becoming a solution that intricately weaves experiences resonating intimately with and impacting users’ lives
My proactive and inquisitive nature defines my engagement with university life. As an independent and dynamic student, I wholeheartedly immerse myself in various aspects, participating fervently in campus organization activities, volunteer initiatives, and committee responsibilities Through these endeavors, I contribute substantively to the vibrant tapestry of the academic community
In the expansive landscape of architectural interests, I find myself captivated by Landscape Architecture and Hospitality This fascination isn't a fleeting curiosity but a deep-seated aspiration to delve into the intricacies of architectural innovation The prospect of cultivating a nuanced understanding within these domains ignites a genuine desire within me, propelling me on an ongoing quest for knowledge and innovation in these specific realms of the architectural discipline
Universitas Atma Jaya Yogyakarta
Universitas Negeri Gorontalo
Alamat :
Nomor Handphone : E - mail : Yogyakarta, Indonesia +6289516757054

evecilena

cilena.eve@gmail.com
behance net/cilenaeve issuu com/cilenaeve
Universitas Atma Jaya Yogyakarta
Apprenticeship
Work From Home Intrenship as Architect Budi Pradono Architects
SMA
Universitas




Location: Jl. Stadion, Maguwoharjo
Area : 10140 m²
The Maguwoharjo Public Market project was conceived in response to the proliferation of street vendors along the roads of Maguwoharjo. This design aims to organize and accommodate these vendors by providing 200 kiosks within a well-structured market environment. In addition to retail spaces the market integrates recreational areas such as a skate park, communal spaces playgrounds, and multifunctional zones. These features not only support local commerce but also enhance community interaction and provide a versatile public space for various activities.
The Maguwoharjo Public Market, designed with the concept of "Guyub Rukun Nyawiji," emphasizes the unity between humans, nature, and architecture to foster harmonious coexistence This design caters to the needs of people for commerce, recreation, and socialization, aiming to strengthen the local community through positive activities. The "Guyub Rukun Nyawiji" concept is implemented through sustainable architectural approaches and thoughtfully designed spaces.
Sustainable architecture is employed to create synergy between humans and nature through the use of local, ecofriendly materials, natural lighting and ventilation, and energy efficiency This approach ensures a minimal environmental impact while enhancing the overall user experience.
The Maguwoharjo Food Park is envisioned as a destination for ecological and culinary tourism. It aims to boost the economy of local vendors and provide recreational spaces for the community The park features green open spaces, a skate park, communal areas, and multifunctional zones, creating a vibrant and engaging environment for various activities.



Keterangan:
KiosMakananRingandanMnuman
KiosNon-Pangang
KiosMakananBerat
AreaMakandanMinum
ComunalSpace
SkatePark
Playground
Seatngarea
CreativeSpace
Parkir
R StaffKeamanan
R Adminstrasi
R.StaffKebershan
R StaffTeknsi
MeetngRoom
R.Darurat
ToiletdanR Latas
R.ME
R Plumbing
TitkSampah
KolamIkan
PointLookIn/Out
TitikPickupSampah Sirkulasi
Entrance
DropOff/LoadngDock
DropOff/LoadingDock2 Out












3rd Place on Landscape Design Competition by FT - UNG
Location: Jl Wolter Wolongsidi, Gorontalo
Area : 3800 m²






Pasar Hayati stands as a transformative project, breathing new life into the urban fabric of Gorontalo City. This visionary initiative entails revitalizing the city park into a dynamic marketplace for street vendors, aptly named the "Pasar Hayati." Beyond its primary function, Pasar Hayati has evolved into a multifunctional city park that serves as a nexus for economic, social, and educational activities. This holistic approach to urban planning positions Pasar Hayati as more than a commercial space, envisioning it as a vibrant urban oasis with many amenities and benefits for the community.
The design concept of Pasar Hayati adheres to the principles of urban retrofitting, emphasizing a thoughtful balance between environmental sustainability and societal impact. This approach seeks to minimize adverse effects on the environment while maximizing positive contributions to both society and the surrounding ecosystem. The result is a harmonious blend of functionality and aesthetics, where the city park seamlessly integrates into the urban landscape, fostering a sustainable and thriving community.










Pasar Hayati is designed to be disabledfriendly by providing a special parking lot, ramp access enlarged circulation area, and so on. Thus, visitors to this Biological Market are not limited, and visitors with disabilities can also enjoy the atmosphere and design of this Biological Market
Machines are placed at several points on the site to collect plastic waste Users can exchange plastic waste into money that is directly linked to an e-wallet
Local Forest is a plant cultivation area typical of Gorontalo as an effort to preserve and educate visitors. This forest area is equipped with an information wall and skywalk for visitors to enjoy the forest atmosphere
Pasar Hayati uses Rain Water Harvesting technology as an independent rainwater treatment effort This method usually involves collecting rainwater. The collected water can then be stored in a tank or reservoir and used for various purposes
























Top 10 Landscape Design
Competition by SKCE
Lokasi : Luas :
Universitas Syiah Kuala, Banda Aceh
6000 m²









Meusapat a revitalization project surrounding the student hall at Syiah Kuala University, emerges as a welcoming haven for students to gather, innovate, and connect across diverse backgrounds More than a mere physical space, Meusapat embodies an inclusive platform, fostering collaboration on positive activities while actively addressing the critical issue of mental health challenges among students This vibrant hub encourages socialization and stands as a symbol of the university s commitment to holistic student development, providing a friendly and nurturing environment where innovation and collective well-being take center stage
Meusapat is designed to foster positive activities for students, offer a social space, and provide facilities for student self-development. In addressing site-specific issues and challenges, the design employs a holistic approach that centers on the integration of ecology and culture Ecological elements are incorporated to create a natural space that refreshes the mind. Meanwhile, cultural elements are strategically infused into the design concept, imbuing the University with local wisdom and character
Meusapat embodies a conceptual design deeply rooted in the rich tapestry of Acehnese culture, aligning seamlessly with the local cultural identity of Banda Aceh City. The objective is to imbue the space and student activities with the enduring values of the region's culture Explicitly showcased in the design are elements inspired by the Kerawang Gayo Mata Itik and Kerawang Gayo Pucuk Rebung motifs thoughtfully integrated through ornamental details and site transformations that incorporate contemporary adjustments. This deliberate fusion serves as a testament to showcasing the distinctive local identity of Banda Aceh, fostering cultural preservation and cultivating a university area with a unique and characterful context.

The Meusapat design incorporates an autonomous rainwater treatment system utilizing Rainwater Harvesting technology. This innovative method involves the processing of rainwater to serve as a sustainable and clean water source within the buildings Furthermore, Meusapat harnesses the power of the sun and wind, integrating an open design that maximizes natural light penetration and promotes efficient air circulation This holistic approach not only emphasizes eco-friendly practices but also demonstrates a commitment to resource efficiency and environmental sustainability














Healing & Consultation Area
This area facilitates students to be able to refresh their minds and provide space to consult with psychology experts so as to reduce student stress levels










Community Center
Community Center is a space that accommodates students from various UKM or various interests and talents to unite to socialize and exchange experiences
Art Space
Art Space is an area for developing student creativity This area is a place to hold performances, arts, and exhibitions for students.


COWORKING SPACE&LIBRARY MENTAL CONSULTATION








































Location :
Area :
2600 m²





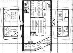
Agrapana stands as a Co-Working Library conveniently positioned in the city's bustling heart. With its backdrop as a student city, the imperative for knowledgeenhancing facilities becomes evident Constructed upon the collaborative concept, this architectural marvel is purposefully crafted to cultivate positive societal collaboration Conceived with the explicit aim of furnishing supportive facilities for individual development Agrapana, translated as the "source of life," embodies the practical application of science as the very wellspring of existence. The architectural embodiment of Agrapana underscores an unwavering commitment to nurturing an environment conducive to collaboration and individual growth, thereby establishing Agrapana as an invaluable resource for enriching society
Agrapana Library & Co-Working is designed to foster interactions among users, promoting expanded community connectivity. Shared spaces, including co-working areas communal spaces and shared learning environments enhance the quality and functionality of the building.
Learning activities in various forms are a focal point in the design of the zoning for Agrapana Library & CoWorking. The separation of zones by floor and mass is advantageous for users. With four floors the concentration of activities increases with each subsequent level Spaces with high user engagement, such as the auditorium, canteen, and cafeteria, are situated on the first floor
Yogyakarta, recognized as a student city, implies that the population is predominantly comprised of students. Agrapana, functioning as a community knowledge center, should be easily accessible to all demographic groups. The parametric facade design transforms this building into a landmark in the Student City, serving as a connecting hub for students and the broader community to enhance knowledge. Curved elements are frequently integrated into the building, symbolizing the boundless nature of knowledge.





















4th Floor
3rd Floor
Meeting Room Ruang Koleksi, The Great Reading Room, Ruang Arsip, Toilet
2nd Floor
Co - Working, Creative Space, Cafetaria, Ruang Koleksi, Ruang Baca, Unit Kesehatan Locker, Ruang Ibadah, Ruang Manager, Toilet
1st Floor
Technology Area, Perpustakaan Anak, Co - Working, Ruang Koleksi, Ruang Baca, Ruang Diskusi, Ruang Santai, Toilet

Auditorium, Locker Foodcourt, CoWorking Staff Room, Toilet
Lift, Car Parking, Motorcycle Parking, MEP Room

The building mass is divided into three sections. This mass separation aims to optimize air circulation in each space Activities such as reading, studying, and working require fresh air in order for users not to easily feel fatigued and to engage in activities to the fullest extent
Natural Lighting
Lighting in each space utilizes the sun as the main source. Productive spaces such as reading rooms and co-working spaces are designed to have large openings so that maximum sunlight can enter Secondaries Skin facade is used to balance the thermal so that light can enter without any heat effect.










Lokasi : Luas :
Jl. Kusumanegara, Bantul
8510 m²











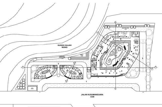
Amanjiva is inspired by the guiding ethos of "Aman Jiwa," embodying the apartment as a refuge that ensures both physical and mental security Comprising 120 meticulously designed units, the Amanjiva Apartment is dedicated to meeting the needs of residents while contributing positively to the broader community, with a primary goal of enhancing the surrounding environment. Conceptualized as a versatile, adaptive, and visionary space, Amanjiva gracefully nestles beside a river, intricately integrated with the natural landscape. Infused with cultural elements, the design concept imbues the Amanjiva Apartment with a distinctive character, elevating it beyond a conventional dwelling. Aspiring to transcend mere physicality, this residence aims to establish a sanctuary harmoniously attuned to its natural surroundings, embodying the synthesis of architectural sophistication, environmental mindfulness, and cultural richness
Amanjiva Apartments are meticulously crafted to provide a pedestrian-friendly environment in response to the scarcity of comfortable pedestrian spaces in Yogyakarta The design integrates an uninterrupted pedestrian circulation system, ensuring a pleasant and secure walking experience. Abundant greenery and diverse recreational areas, such as riverside walkways and seating areas, contribute to an inviting and revitalizing atmosphere within the complex, enhancing connectivity and community well-being.
Amanjiva Apartments intricately embody Yogyakarta's cultural richness, strategically positioned near key tourist destinations and the globally recognized Yogyakarta Philosophical Axis The facade, adorned with Kawung batikinspired patterns, serves as a captivating cultural focal point Within the complex, a market introduces local products to the public, while the spatial arrangement harmoniously blends with Javanese cultural nuances, seamlessly integrating tradition and modernity
The tropical climate in Yogyakarta contributes to high temperatures in the area Amanjiva Apartment is strategically designed to mitigate heat ingress into the living spaces. This is achieved through mass separation to optimize air circulation, incorporation of green spaces throughout the complex, utilization of vegetation as cooling elements and the implementation of ecofriendly materials


















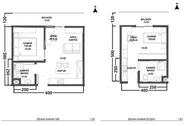
Apartement Room ( Type
Studio, Type 1 Bed, Type 2 Bed), Green Space
Apartement Room ( Type
Studio, Type 1 Bed, Type 2 Bed), Green Space


Apartement Room (
Studio, Type 1 Bed, 2 Bed), Baby Day Mini Library, Clinic, T
Apartement Room ( Studio, Type 1 Bed), Court, Toilet

Lobby, Marketing Office, Swimming Pool, Gym, Cafetaria, CCTV Room, Market, Toilet

Menyediakanareahjau bag ngkungandan pengguna



Material
AreaHijau Usngwoodenmaterias togveatraditonafeel andreducecarbon footprint
Lift Car Parking, Motorcycle Parking, MEP Room
Menyedakanareahiau padatiaplanta apartementdan menggunakanfasad tanaman GreenBalcony








Amanjiva Apartment adopts an Eco-Culture approach, meticulously applied across several criteria This approach is implemented to create a building that not only reflects Yogyakarta's culture but also has a positive impact on the environment and enhances the comfort of its occupants Cultural elements extend beyond the exterior, permeating the interior design with features such as the incorporation of batik elements and the use of natural colors This conscientious design approach aims to seamlessly integrate cultural aesthetics with ecological considerations, resulting in a harmonious and environmentally conscious living space
The site is designed in accordance with Javanese culture, guided by the philosophy of "Memayu Hayuning Bawana," which translates to making the world beautiful. This philosophy is manifested both visually and non-visually by prioritizing environmental considerations and preserving the existing culture. Additionally, typical Yogyakarta flora serves as an ornamental element in the landscape of Amanjiva Apartment
The building design responds to the sun and wind direction so that light and air can be maximized. In addition, Amanjiva Apartment utilizes contours as communal areas, adapting the culture of Javanese people who like to gather"srawung" and create areas that can create social interaction between users.

Location : Jl Sukun Raya, Yogyakarta
Area : 274 m²
"Ayom, Ayem, Tentrem" in Javanese signifies protection, inner peace, and tranquility Over time, the Covid-19 pandemic has become an integral part of our lives influencing even the design of our homes The aim of this project is to create housing that can adapt to the challenges posed by the COVID-19 pandemic while providing security and comfort for its residents The design is rooted in the specific needs of the residents, comprising a family unit of parents, two children, and a disabled grandfather The goal of this house is to provide comfort in daily activities and contribute to the psychological well-being of its residents. The objective is to offer comfortable living spaces and support the psychological health of the residents
The susceptibility of public health to diseases, particularly during the Covid19 pandemic, underscores the imperative for residences to positively impact health and uphold the well-being of residents both physically and psychologically. The design of a health-conscious home adheres to the Healthy Home Criteria outlined in SNI 036572-2001, focusing on aspects such as natural lighting, thermal comfort, and noise standards










The design of Ayom House incorporates a blend of minimalist and tropical concepts The minimalist style characterized by its limited furniture, offers flexibility, particularly beneficial for individuals with disabilities The tropical style is derived from Indonesia s tropical climate and weather conditions, creating a design that aligns with the natural surroundings of the region. This style also ensures harmony with the local environment.








The user, a person with a disability, requires wheelchair accessibility in every space Stairs are replaced with ramps, and furniture placement adheres to wheelchair standards, ensuring a universally accessible and accommodating environment


A

Section B













Location :
Area :
40 m²
Anantya House is a minimalist residence meticulously crafted to cater to the daily activities of its occupants within a limited land area Prioritizing the aspect of tranquility, this residence, intended for four residents, provides ample facilities for daily activities In alignment with its name, "Anantya," signifying unlimited, the architectural design eliminates corners creating an effect of infinite space for its inhabitants

A home serving as both a physical and nonphysical sanctuary, can be realized through the design of a healthy residence Utilizing natural sunlight, maximizing air circulation, and incorporating vegetation contribute to a naturally refreshing environment. Despite limited space, the design of Anantya House ensures comfort for its inhabitants
Anantya House is designe within a constrained land a ea, e su g optimal accommodation for residents' activities The open-space arrangement creates expansive movement areas for users, and the walls, intentionally designed without corners, contribute to a flexible ambiance









Location : Area :
30 m²
This project is a one-bedroom apartment interior design, carefully curated with the EcoCulture concept, which seamlessly combines environmentally conscious elements with the richness of local culture. This design adheres to sustainable principles, which are realized through the integration of ornamental plants, energy-saving measures, and the use of environmentally friendly materials Additionally, the essence of local culture is elegantly woven into the design through carefully selected ornaments, evoking a sense of local wisdom The main aim of this project is to create a residence that not only provides visual comfort but also functions as a positive environmental contributor, achieving harmonious coexistence with nature and local heritage.














Top 5 Sketch & Maquette Design Competition by UAJY
















Sketching is the language of design; through sketches, I can channel ideas, communicate effectively, and translate the contents of my mind. My hobby of drawing has propelled me into the realm of architecture, fueling my aspirations to become an architect and illustrator












I have a strong passion and extensive experience in social media and event organizing. My skills include creating engaging content, managing online engagement, and coordinating events from planning to execution, enabling me to deliver impactful and memorable experiences.


