2225 Fletcher Avenue, Armstrong

![]()

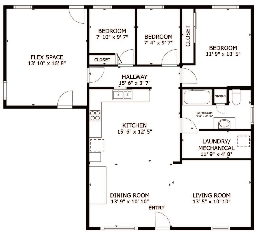
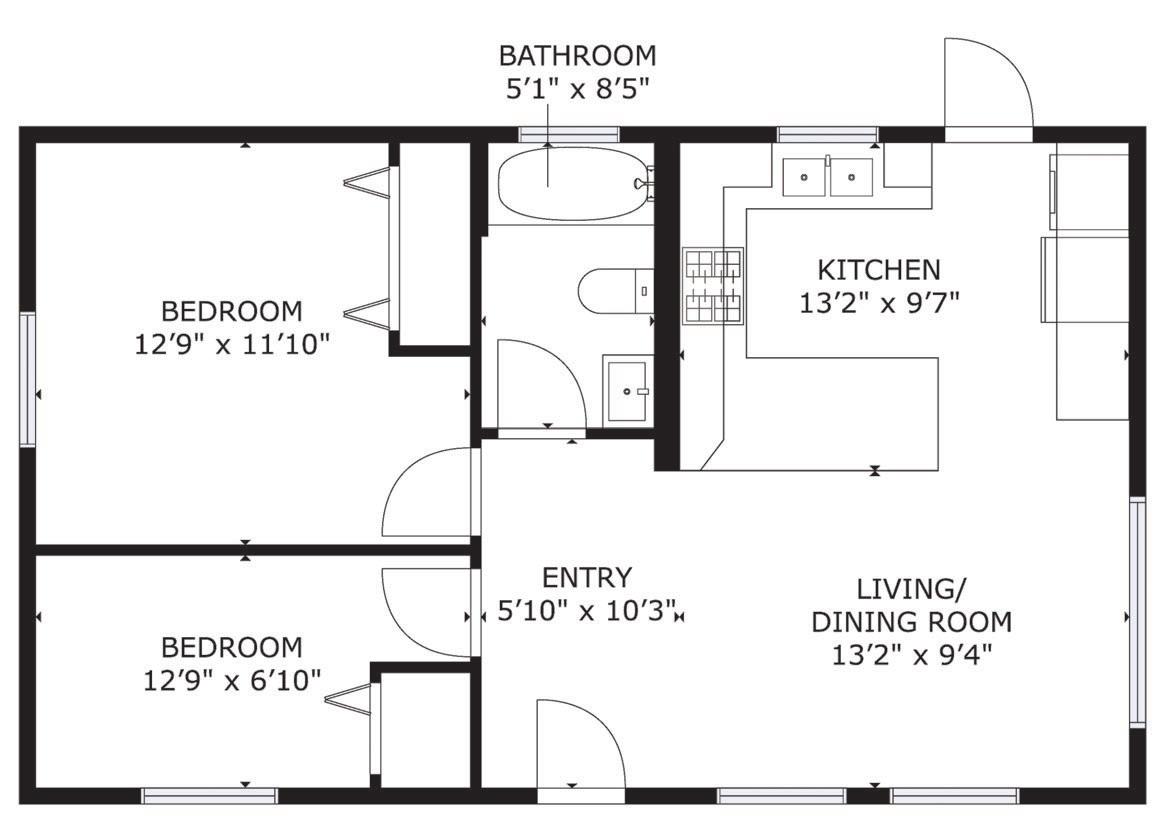
This property is a triple threat—ideal as a home, a savvy investment, or a prime development opportunity. Whether you’re looking for a fixer-upper, a solid rental, or a future build site, this one checks all the boxes. The main home is an older three-bedroom, one-bathroom house, offering plenty of potential for a renovation project or immediate rental income. But the real value? If you decide to take it down, the lot opens up for exciting development possibilities. Meanwhile, the carriage house, built less than five years ago, is a standout feature. With two bedrooms, one bathroom, dedicated parking, and its own yard, it’s a perfect rental or a comfortable place to live while you plan your next move. Move in, profit, or build—this versatile property is ready for your next big move!


Main House: bonus room behind garage was cemented, did flooring and drop ceiling, no heat running out there but it is attached to the main house.
Hot Water Tank
Approximately 2014
Roof
A portion of the roof was redone approximately 7 years ago.
Great reception, we use Shaw and would recommend.
Everything is within walking distance.
Neighbourhood
The neighbourhood is family friendly.

CARRIAGE HOUSE
Natural Gas $75/mo. (January)
Hydro $50/mo.
Water $160/mo. (both homes) + sewer/garbage
Insurance $2800/yr. (both homes)
Taxes $3424.90/yr.
Fridge Frigidaire (Carriage)
Inglis (Main)
Stove GE (Carriage)
Whirlpool (Main)
Microwave Panasonic (Carriage)
Washer GE (Carriage)
Maytag (Main)
Dryer Frigidaire (Main)
*All appliances are negotiable

The main home is a 3 bed one bath home that is currently a rental. The 2 bed, 1 bath carriage house was built less than five years ago. It is bright and airy and move-in ready. The main home is ready for your renovation ideas!
Features of this home
Central air conditioning, vinyl flooring



This property provides an excellent opportunity for someone who would like to take on a renovation project or create something new. There is a newer 2 bed 1 bath carriage home available as well.


613 SF


1 (250) 309-0039
chris@chrisholm.ca chrisholmrealestate.ca
@chrisholmrealtor /chrisholmrealtor /chrisholm

Want to learn more about this property? Check out this listings featured page on our website! https://chrisholmrealestate.info/Features2225Fletcher
Browse more photos, watch our virtual tour video with Chris, and even take a tour through the home with the 3D tour option.
Want to schedule a viewing? Give us a call today!

