Twin Lakes Road, Enderby

![]()

Escape the hustle and embrace a slower, more serene lifestyle at 34 Twin Lake Rd – your hidden retreat just minutes from Enderby. This peaceful property is more than just a home; it’s an invitation to rediscover the beauty of rural living.
Tucked away in a private, yet convenient location, this gem offers easy access to the vibrant Enderby community, where the Shuswap River provides endless opportunities for paddleboarding, beach days, and summer floats. Positioned between Vernon and Salmon Arm, you’re never far from the action.
Now, to the heart of it all – the property itself. This haven offers a beautifully updated kitchen, equipped with plenty of space, a new coffee bar, and pantry. A door leads you to a covered deck, perfect for morning coffee or evening relaxation. The living room, with its vaulted ceiling, wood-burning stove, and corner windows, is a cozy sanctuary surrounded by nature’s beauty.
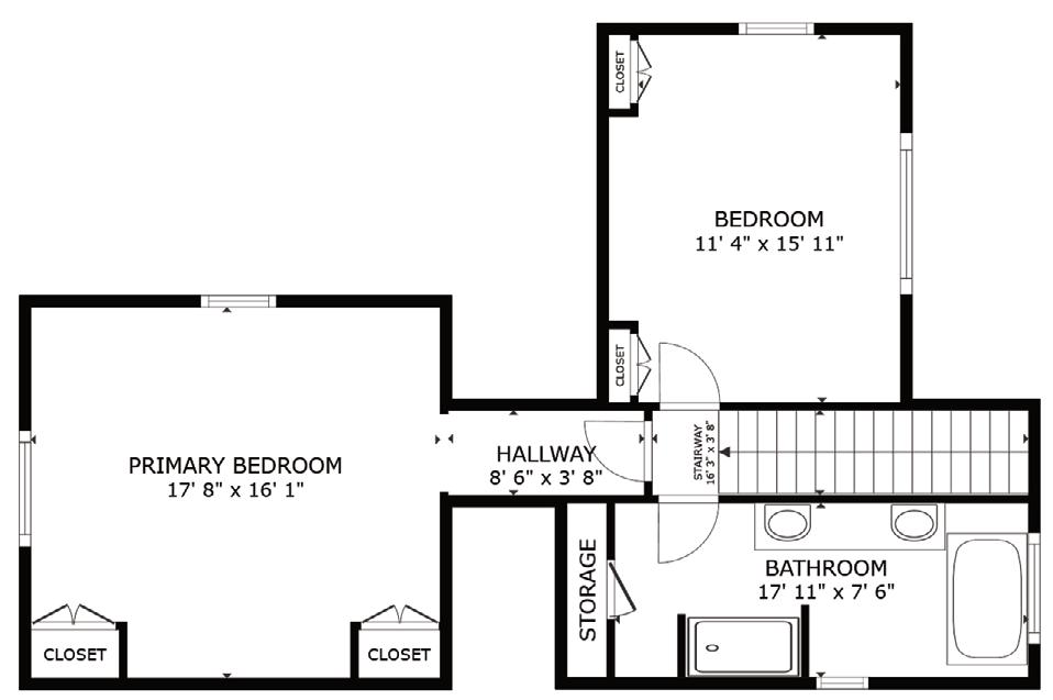
The main level also features a two-piece bathroom, a den, and an additional space ideal for a craft room. Upstairs, you'll find two bedrooms, including a primary suite with a charming propane fireplace and a luxurious five-piece bathroom – a true escape to soak away your worries.
A unique feature of the property is treehouse retreat. Surrounded by nature, it’s an enchanting escape that adds character to the property. Whether you're tending a garden, caring for animals, or simply embracing the tranquility, 34 Twin Lake Rd offers a lifestyle that feels like home from the moment you arrive.


Upgrades/Renovations
None
Hot Water Tank
Replaced in 2019
Electrical
110 amp service
There is a hook up for a hot tub
Roof
Metal roof
Cell service is good, we have a Telus hub for internet
Everything needed is about 4 km away.
Neighbourhood
The neighbourhood is filled with small residential acreages and families.

Propane $133/yr. rent
$350/fill approx.
Hydro $155/mo.
Insurance $2660/yr.
* Incl. $293 for BNB
Taxes $2409.07/yr.
Fridge Kenmore
Stove Whirlpool
Microwave Whirlpool
Dishwasher LG
Washer Kenmore
Dryer Kenmore
Freezer Woods
*All appliances are

If you are looking for a property where you can escape to and be surrounded by nature, this lovely 2 bed 2 bath home will be perfect for you. The layout is open, bright and is filled with a country flavour. The vaulted ceilings in the primary bedroom and living room add extra charm.
Features of this home
Heat pump, wood burning stove, propane fireplace in primary bedroom, hardwood/tile flooring, kitchen island, soaker tub in main bath



This property is the perfect space to relax, unwind and fill the soul with nature and views. There are outbuildings for storage, a dog kennel, plenty of open space for pets to run, spaces to entertain guests or gather family, and so much more.
Main Floor 1179 SF




1 (250) 309-0039
chris@chrisholm.ca chrisholmrealestate.ca
@chrisholmrealtor /chrisholmrealtor /chrisholm
@chrisholmrealtor /chrisholmrealtor /chrisholm

Want to learn more about this property? Check out this listings featured page on our website! https://chrisholmrealestate.info/Features34TwinLakes
Browse more photos, watch our virtual tour video with Chris, and even take a tour through the home with the 3D tour option.
Want to schedule a viewing?
Give us a call today!

