Info Booklet 3101 Highland Park Avenue, Armstrong, BC

Page 1

3101 Highland Park Avenue, Armstrong

The content presented here is solely for informational purposes. Any information deemed important by a Buyer should be verified

About this property

This 4-bedroom plus den, 3-bathroom home is a hidden gem waiting to be discovered. This is a perfect family home as it is or with a little vision, you can unlock its true potential. The upper level features a gorgeous three-pane picture window in the living area, offering a scenic view of the subdivision, along with the formal dining area make this a great space and cozy natural gas fireplace adds warmth and charm. The kitchen with eating nook opens to an upper deck, perfect for outdoor dining and relaxation.

The upper level houses three bedrooms and two bathrooms, including a primary bedroom with a walk-in closet and a private 3-piece ensuite.

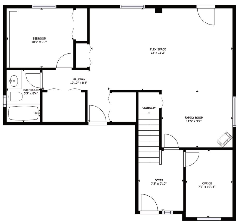
On the lower level, you'll find a spacious front entryway and a versatile den set-up perfectly for a home based business. The back area of the basement can easily be converted into a separate suite with its own entrance, featuring two additional bedrooms, one bathroom, and a covered lower patio. This level also provides access to the double car garage.

Conveniently located close to schools, the Armstrong Fairgrounds, and the outdoor pool at Memorial Park, this home offers both comfort and convenience. Don’t miss the opportunity to transform this property into your dream home.

Hot Water Tank

Replaced in 2021

Electrical

100 amp

Roof

Asphalt shingles

Cell Reception/Wifi

We use Telus and no issues

Nearby Amenities

3 blocks away

Neighbourhood

The neighbourhood is quiet, and family oriented.

Expenses

Natural Gas

$96/mo. Hydro $34/mo. Water Jan-June $459.69/quarter Insurance $732/yr. Taxes $1981.16/yr.

Appliances

Refrigerator Samsung

Stove Kenmore

Dishwasher KitchenAid

Microwave Kenmore

Washer Kenmore

Dryer Kenmore

*All appliances are negotiable

FAQ
This information is provided by the Sellers to the best of the Seller's knowledge and is not guaranteed. Any information deemed important by a Buyer should be verified.

The Home

This lovely home has 4 bed plus den and 3 baths and is awaiting the next family to make it their own. Enjoy your morning coffee and breakfast on the deck off of the kitchen. The lower level has it’s own separate entrance and can be converted to a suite for added income potential.

Features of this home

Central vacuum installed, carpet/hardwood/ linoleum flooring, central air conditioning, 2 gas fireplaces, primary bedroom ensuite

The Exterior

The property is very private, surrounded by lush trees and beautiful landscaping. There is a double attached garage and plenty of parking space for guests or toys and also a shed to store your tools in.

Floorplan

Main Floor 1207 SF

**All measurements are taken from Matterport Floor Plans and are interior measurements only.

Floorplan

**All measurements are taken from Matterport Floor Plans and are interior measurements only.
Lower Level 888 SF

Chris Holm

Personal Real Estate Corporation

1 (250) 309-0039

chris@chrisholm.ca chrisholmrealestate.ca

@chrisholmrealtor /chrisholmrealtor /chrisholm

@chrisholmrealtor /chrisholmrealtor /chrisholm

For more information

Want to learn more about this property? Check out this listings featured page on our website! https://chrisholmrealestate.info/Features3101HighlandPark

Browse more photos, watch our virtual tour video with Chris, and even take a tour through the home with the 3D tour option.

Want to schedule a viewing?

Give us a call today!

The content presented here is solely for informational purposes. Any information deemed important by a Buyer should be verified.

Turn static files into dynamic content formats.

Create a flipbook
Issuu converts static files into: digital portfolios, online yearbooks, online catalogs, digital photo albums and more. Sign up and create your flipbook.
Info Booklet 3101 Highland Park Avenue, Armstrong, BC by ChrisHolmAssociatesRealEstate - Issuu